HOUS SAND - FRAN SILVESTRE

Page 1

3,70 4,10 -0,40 -0,41-0,40 0,00 -0,41 -0,41 -0,41 CONTENIDO ARQUITECTONICO HOUSE SAND
: 250
Alta - Anteproyecto
: 250
ANTEPROJETO
ESC:1
Planta
ESC:1
TÉRREO

Cubierta - Anteproyecto

ESC:1 : 250

Seccion A

ESC:1 : 250

Seccion B

ESC:1 : 250

3,70 7,60 -0,40 -0,41Planta baja 0,00 Planta Alta 4,10 Terraza 3,70 Cubierta 7,60 Patio -0,40 Planta baja 0,00 Planta Alta 4,10 Terraza 3,70 Cubierta 7,60 Patio -0,40
HOUSE SAND
CONTENIDO ARQUITECTONICO

Este

ESC:1 : 250

CONTENIDO ARQUITECTONICO

Norte

ESC:1 : 250

Oeste

ESC:1 : 250

ESC:1 : 250 Sur

HOUSE SAND
4,23 1,28 69 75 2,60 1,05 5,61 5,86 Planta baja 0,00 Patio -0,40 CONTENIDO ARQUITECTONICO HOUSE SAND - ESTUDIO
1 : 50
ANTEPROJETO
1 : 50
B
ESC:
TÉRREO
ESC:
Estudio

CONTENIDO ARQUITECTONICO

Planta baja 0,00 Patio -0,40 Planta baja 0,00 Patio -0,40 Planta baja 0,00 Patio -0,40
HOUSE SAND - ESTUDIO ESC: 1 : 50 Estudio A ESC: 1 : 50 Estudio C ESC: 1 : 50 Estudio D

Dormitorio B

ESC: 1 : 50

TÉRREO ANTEPROJETO

Planta baja 0,00 Patio -0,40
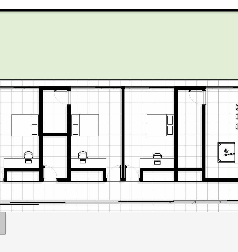
HOUSE SAND - DORMITORIO
CONTENIDO ARQUITECTONICO
ESC: 1 : 50
Planta baja 0,00 Patio -0,40 Planta baja 0,00 Patio -0,40 Planta baja 0,00 Patio -0,40 CONTENIDO ARQUITECTONICO HOUSE SAND - DORMITORIO ESC: 1 : 50 Dormitorio A ESC: 1 : 50 Dormitorio C ESC: 1 : 50 Dormitorio D

Turn static files into dynamic content formats.

Create a flipbook
Issuu converts static files into: digital portfolios, online yearbooks, online catalogs, digital photo albums and more. Sign up and create your flipbook.
HOUS SAND - FRAN SILVESTRE by FULTON MENDOZA - Issuu