DIPLOMA PROJECT
Molenbeek’s urban service station
atelier Muck Petzet
Directed by prof. arch. Kersten Geers, the AAM Diploma year 2022 consisted in inventing spaces on existing competition sites to solve different areas of the city of Brussels, under the title Brussels - the Production of Culture, by always keeping in mind a sense of community and sensibility to culture.
Supervised by prof. arch. Muck Petzet, my diploma project consists of a shelter and learning center for the homeless, immigrants, and people in need. It re-qualifies the busy and trafficked area of Sainctelette square in the Molenbeek district by bringing a covered public space equipped with various services such as electricity and water, that descend from the pillars. The square serves different events such as food or goods markets, public gatherings, a relaxing area along the canal, etc. Its value is enhanced by the wooden structure which respects a grid of 5x5 meters, accomodating on top the shelter studios, a canteen, sanitary and health services, a double-height library looking towards the canal, and a vegetable garden on the roof which generates food to then be eaten or sold in the market-place. The volume is a rectangle of 50x52,5 meters, contoured in three sides by an offset of 2,5m that serves as an outdoor space for the shelter apartments. There are 36 apartments/studios furnished with bathrooms, living and sleeping area. The intervention seeks to establish a balance between the social classes present in this area of the city of Brussels.



Axonometric view Groundfloor / Marketplace square
Trasversal facade / First floor
Trasversal section / Second floor
A LARGE FORM
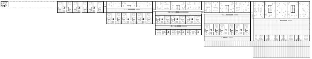
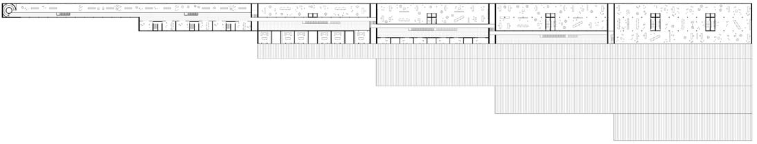
Rogoredo’s social residence & working space
atelier Kersten Geers
The project is located in Rogoredo, a south-east border district of the city of Milan located 6-7 km from the city center. The site has an important proximity to the Rogoredo Station, which is one of the stops of the high-speed rail coming from Milan and reaching as far as southern Italy.
The project represents a high density apartment building which includes around 102 residences targeting new families with low-middle income and 102 ateliers and office spaces for freelance workers as well as artisans.
This creativity hub is composed of 5 stretching stripes which connect the main station with the residential area. These stripes are clearly noticeable from the outside, wether on the inside they become whole neighborhoods by attaching with each other.
Quality spaces are created with the introduction of seven full height voids which represent the interconnection and communal space of both residents and artists.
A passage goes through these voids and crosses the whole building in length. This passage becomes a vertical promenade with seven interconnecting interior courtyards. The lower floors and the passage are devoted to communal uses and ateliers, rentable workshops, exposition spaces, etc. The residential units are based on one or more 37.5-squaremetre modules, which create on different levels dwellings that rang from single-module studios to large multiple-module apartments, duplexes, triplexes and atelier houses.
Partitions between modules may be modified, designed to shift as family structures shift. Outdoor spaces represented by these communal and interactive balconies are always oriented towards the inside of the building overlooking the voids.
renders realisation with Rhinoceros & Cinema 4D