CurriculumVitae
Profile


Education
Name
Date of Birth
Mobile Address About
Arkananta Bhaskara, S Ars Bandung, 8 March 2000 arkanantabhaskara@gmail.com {+62) 819129502 70 Bandung, West Java, Indonesia
- An architect who has an interest in art that is applied in the formof buildings. In myopinion, buildings will feel morealive if held by the right people. Therefore, I want to learn more aboutdesignandarchitecture.
Achievement
2022 Student Creativity Program-DIKTIRISTEK
Passed Funding Grant for Air Purifying Acoustic Bamboo Panel Proposal
2027 Redesign FKMTIK UNIKOM Logo Competition- UNIKOM 1st Place Winner
2027
2078- 2023
2075-2078
2072- 2075
Experience
2022
April -August
Indonesian Computer University
Faculty of Engineering and Computer Science, Department ofArchitecture, GPA 3.46 /4.00 Bandung, Indonesia
78 Public Senior High School Science Major Bandung, Indonesia
28 Public Junior High School Bandung, Indonesia
PT. Ruang Hijau
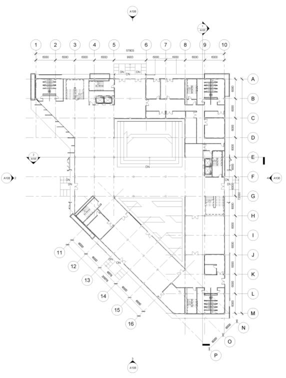
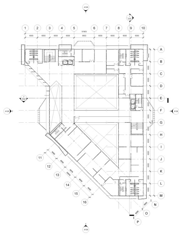
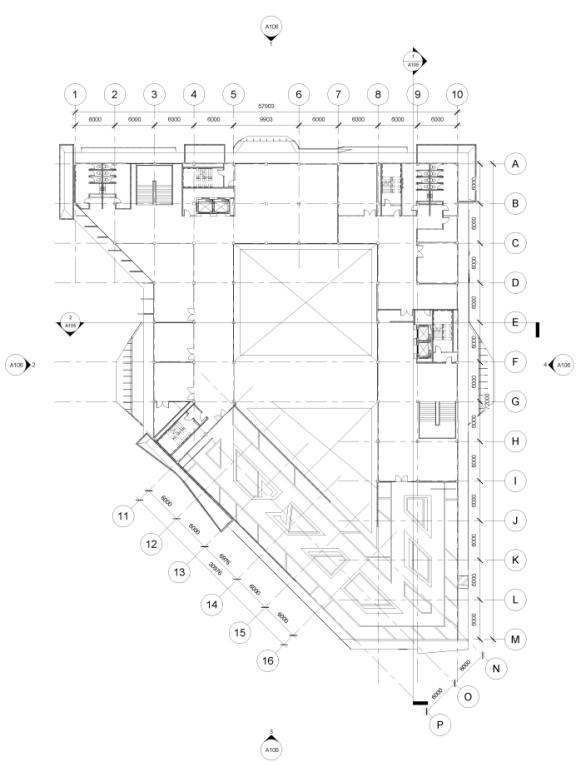
Internship -Architectural Drafter 2D & 3D Architectural Design, OED Drafting, BoQ, Architecture Visual & Presentation
2027-2022
September -February
Organization
2078-2027
2078 2076
AP2SC Directorate-UNIKOM Very Good Predicate, Score 88,5 /100 Computer assembly, computer installation, networking and computer troubleshooting exams
PT. Amarta Karya (Persero) Internship -Assistant Surveyor
Site Observation, OED Drafting, BoQ, Graphic Design
HIMARS Student Association
Head ofDepartment Scientific Publications and Studies
Glosarium Community Organization Member ofPhotography Division
"Laskar Dallas Berkarya" School Magazine Editor in Chiefand Graphic Design Division
Skills Language
2D Drawing
Photoshop
CorelDraw
AutoCAD
3D Modelling & BIM
SketchUp
Revit
3D Visualization
Enscape
Lumion
Yray
Document & Video Editor
Microsoft Office
MAGIX Vegas Pro
Indonesian
English
Active & Passive

































































































































































































































































