Architectural Portfolio

Page 1


Areti Zioga

73 Trundley’s Road, SE85BD, London, UK

ziogaareti@gmail.com

professional

Monteverde Apartment

La Mistica Supervoid Architects Supervoid Architects

Pizzeria Gabilondo Supervoid Architects

personal

Halkeon Apartment

Villa in Plagiari

academic

Coastal regeneration

Architectural Association

Unseen museum

University of Thessaly

Rythm and Pattern

Architectural Association

sustainability

Greenock Road HTA Design

Croydon Park Hotel HTA Design

Optimisation of Modular Facade University College London

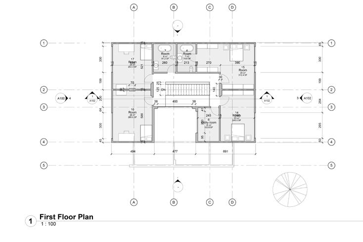
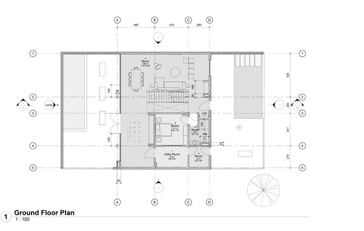
Monteverde Apartment

Apartment renovation

Supervoid Architects

Role : Assistat Designer

Phase : Concept stage 2- handover stage7

Status : Completed Rome, Italy, 2020

Worked on stages 2-7. This project consists of a full refurbishment of an apartment located in a Villino, a typical Roman building type from the early twentieth situated in the Monteverde district.The new organization of the apartment, located on the two upper floors of the Villino, is essentially defined by two design choices: the demolition of all partitions on the lower floor and the relocation of the staircase connecting the two floors. The new staircase is strategically positioned on the perimeter of the space to make room for the free arrangement of the living room area. It revolves around a 5m tall yellow perforated steel bookcase containing the client's book collection. My role in this project was the production of all the detailed plans and the participation in the design and layout perception.

La Mistica

Urban regeneration of the Mistici village while preserving the approved restoration plans for historical buildings

Supervoid Architects

Role : Assistat Designer Rome, Italy, 2020

Status : Completed

“La Mistica” project aims to transform a Rome estate into a multifunctional center with a focus on urban agriculture, well-being, leisure, and sustainability. Divided into three main areas, it includes agriculture, sports and well-being facilities, and leisure spaces.

The project seeks to revitalize the area, historically marked by urban expansion, while preserving its natural and historical heritage. Additionally, the Mistica agricultural village is undergoing renovations, with a central courtyard revitalization featuring a perimeter portico. These projects aim to create vibrant, sustainable community spaces that respect the region’s history and environment.

Halkeon 25

Halkeon Apartment

Professional project - Apartment renovation

Thessaloniki, Greece, July 2021- 2022

Apartment renovation, collaborated with D2C2 Architects Engineers

Freelance project directly liaising with the client

Team : Areti Zioga (Project Architect)

Status : In Construction

Hussam Houseim, Galatia Chante (mechanical engineers)

Thessaloniki, Greece 2021 - 2022

Phase : Stage 0 - 7

Status : Completed

This project entails the renovation of two adjacent apartments located on the third floor of a building in Thessaloniki. The primary goals include reconfiguring the layout to optimize views of the open square, designing new kitchens and bathrooms, replacing outdated flooring and openings, and upgrading the heating and cooling systems for enhanced efficiency.

The selected materials include terrazzo tiles for the hallway floors and bathroom walls, along with wooden flooring and separating surfaces. The colour and texture of these materials evoke the ambience of mid-60s apartments in Thessaloniki, aiming to blend modernity with a sense of minimalism and nostalgia.

This freelance project refers to a full rufurbishment of two neighboring flats, located in the 3rd floor of a six floor apartment building in Thessaloniki, with views to a central square. The client’s brief was to rearrange the flats’ bounderies in order to provide front views to both apartments. A new kitchen was designed, new floorings and sliding doors and windows were installed, lighting, heating and cooling systems were also replaced to achieve more efficient energy use.

Apartement A Apartment B

Pizzeria Gabilondo

retail, refubrishment of a pizza place in Santiago Chille

Supervoid Architects

Role : Assistat Designer Rome, Italy, 2020

Status : Completed

This pizzeria features an open-plan layout where the concrete kitchen counter is prominently displayed for all customers to see. It’s designed to adapt to various uses, serving as both an aisle for waiters and a table when needed. The pizza oven, surrounded by white tiles, stands as the centerpiece of the kitchen area, elevated to emphasize the concept of show cooking.

The industrial theme of the space is evident through the repeated use of materials in the counters and the visible metallic structural elements throughout the interior. Behind the open kitchen, a bar wrapped in light grey corrugated metal and topped with marble offers patrons a view of both the kitchen and the seating area.

To draw attention to the entrance, a similar corrugated metal-clad banner displaying the word ‘pizzeria’ in red LED lights is placed along the front of the building. Additionally, the restaurant hall seamlessly connects to a small garden near the entrance, providing additional seating options for guests.

Villa in Plagiari

Residential villa

Architect : Areti Zioga Plagiari - Thessaloniki, Greece

January 2024

Phase : stage 2, Ongoing

In the Plagiari region on the outskirts of Thessaloniki, this family residence epitomizes comfortable living in a serene residential area characterized by single-family houses. Boasting a private pool, five bedrooms, and seamlessly integrated indoor-outdoor living spaces, this property offers unparalleled comfort and relaxation. Situated on gently sloping terrain, the plot affords captivating views of the Thermaikos Gulf.

The ground floor features liberated spaces that seamlessly integrate with the interior of the house, creating a sense of spaciousness. Positioned orthogonally above, the upper floor’s volume structure extends generously over the freed ground floor areas, imparting remarkable visual impact and effective solar control.

Coastal regeneration

Short Course in AA visiting school

London, UK, January - May 2023

AA School of Architecture

This project aims to provide a wild nature reserve for the life in the wetland of Coquimbo, while visitors will get to know the importance of it through an open learning route which includes birdwatching points and an open nature museum for the observation and education of the flora and fauna. At the same time, the east side of the route is being transformed into an open farm - hub, which stimulates the reuse of water for non-potable uses. The intervention on this side of the coast is converting from a route into an open green hab that can host different types of activities, such as farming and cultivating, catching rainwater as well as commercial and cultural activities.

Diploma Thesis

University of Thessaly

Athens, Greece

September 2019

The National Archaeological Museum of Athens, located in Exarhia, requires expansion to accommodate the increasing number of exhibits and enhance its public accessibility. To address this need, a series of design proposals have been undertaken, focusing on additional storage, showrooms, and a new permanent exhibition space. This path forms a circular route, facilitating movement between the new intervention and the current building. The proposed expansion plan involves the creation of a new underground extension in front of the existing building, along with a strategic circulation system. Vertical exploratory sections across the museum’s courtyard have been designed to establish an underground path, connecting the new extension to the building’s existing basements.

sustainability

Greenock Road HTA Design

Croydon Park Hotel HTA Design

Optimisation of Modular Facade University College London

Greenock Road

Daylight and Sunlight building analysis

HTA Design

Role : Environmental Designer London Borough of Ealing , UK

February 2023

Phase: Stage 2-3

The development comprises the demolition of the existing industrial units and the development of a residential scheme, at Greenock road , in the London Borough of Ealing.The development will contain light industrial uses in the ground and the first floor of the development. The proposal provides a total of c.2213sqm of light industrial space with a total of 110 homes.

A daylight, sunlight and overshadowing analysis has been carried out in MBS plug in to Revit and Sketchup, to assess the impact of the new development on the existing surrounding properties as well as the performance of the new residential units within the scheme.

Croydon Park Hotel

Daylight and Sunlight building analysis & Early stage facade concept design

HTA Design

Role : Environmental Designer

London Borough of Croydon UK

September 2023

Phase: Stage 2-3

Croydon Park Hotel proposes the demolition/ deconstruction of the existing hotel building and the comprehensive redevelopment of the site to provide 455 residential units across two buildings with associated internal and external communal amenity space. The building height ranges from 9, 12, 38 and 39 storeys. The development includes 3 distinctive building typologies, with an asymmetric tower form (39 floors) located at the key corner to create a celebratory entrance point, a linear shorter block (9 floors) and a 12-storey attached villa.

A daylight, sunlight and overshadowing analysis has been carried out in MBS plug in to Revit and Sketchup, to assess the impact of the new development on the existing surrounding properties as well as the performance of the new units within the scheme.

Massing
Massing

Optimisation of Modular Facade

The Bartlett School of Environment, Energy and Resources

Post-graduate project

Module Title: Multi Objective Design Optimisation

Individual work

April 2021

This study is based on the Wates House as a case study building located in central London, and it will explore alternative options of its South-West façade onto Gower Street with a primary aim to minimise the overall cooling demand by developing a shading strategy for the SW façade. By using 3d parametric modelling and environmental design tools, a modular façade focusing on the 2nd to 6th floor will be created.

Through optimisation tools, design trade-offs will be explored to minimise energy demands, control solar gains and fabric heat losses, and maximise the distribution of natural light inside the building The diagonal window shape is blocking the sun from the right and letting it enter from the left The glazing ratios are selected and calculated in specific percentages per floor according to the ADF of the previous daylight analysis.

Turn static files into dynamic content formats.

Create a flipbook
Issuu converts static files into: digital portfolios, online yearbooks, online catalogs, digital photo albums and more. Sign up and create your flipbook.