Portfolio architecture - Valeria FORTINI - 2023 2 Part

Page 1

Piranesi Prix de Rome // Villa Adriana

Création d’un centre thermal dans la Villa Adriana de l’Empereur Adrian à Tivoli

LeprojetduPrixPiranesideRomeconsiste en un parcours thermal et balnéaire à l’intérieur du parc archéologique de la Villa Adriana à Tivoli à une trentaine de kilomètresdeRome.

La Villa Adriana est la résidence voulue parl’empereurHadrienauIIesiècle.C’est un des ensembles monumentaux les plus riches et mieux conservés de l’Antiquité surunesurfacede120hectares.

L’itinéraire choisi avait pour but d’accompagner le visiteur dans la découverte des trouvailles et des vestiges tout le long du parcours thermal accompagnéparlesonetlavuedel’eau,fil bleudecetteexpérience.

Les anciennes thermes donnent la possibilité d’ouvrir un dialogue : l’eau des thermesromainshieretaujourd’hui.

Leprojets’insèreàl’intérieurdudomaine avecattentionauxvestigesetacouverture rappellelesarcadesainsiqueladisposition dessalles.

Leconcoursaétédéveloppéen2semaines parl’équipe.

Leprojetagagnéleprix.

Axonométrie avec hiérarchie de la structure

Insertion du projet dans le domaine de Villa Adriana
Plan avec fonctions
Plan masse de projet

Elévations

Le parcours

LAFONTANA levasche
La fontaine
Vue du tunnel
L’entrée
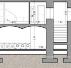
Section sur le tunnel entre Grandi Terme et la SPA Détail technique structurel des pavillons

Re-use the roman ruin// Piscina Mirabilis

The présence of the absence : the Piscina Mirabilis in Bacoli

Extraitdutextedelaplanchedeconcours:

La présence de l’absence, œuvre d’Olafur Eliasson que nous avons choisie comme sourced’inspiration,exprimesonintensité enbraquantlesprojecteurssurlevide. Cetteabsence,laisséeparlaglacefondue dans le ciment, crée une contradiction entrecequiestvisibleetcequiestrendu visiblegrâceàsonabsence.

L’absence d’eau dans la Piscina Mirabilis, qui était entièrement remplie de cet élément, la rend encore plus présente pourlesvisiteurs.[...]

Cetimmenseédificesouterrainconservela mémoiredesonpassé,mêmes’ilnecontient plusl’élémentprincipaldesonhistoire.[...]

D’une part, le Musée d’Art Contemporain est un contenant par définition, qui doit êtreleplusneutrepossibleselonlesidées du White Cube, le plus caractéristique et personnel pour la conception des Wundercammers.

La Ruine est représentative de ce qu’elle contient:sonhistoire,savie.[...]

La Cathédrale d’eau entretient donc une relation contrastée avec le Musée d’art contemporain. Cependant, cette relation esttrèsintéressante,ilssontenopposition temporelle dans notre cas, mais ils se complètentparfaitement.Ainsi,lecontenu et le contenant s’effondrent, laissant une barrière souvent trop marquée, trop présente. L’absence de limites marquées dans ce sens nous a permis de penser un musée d’art contemporain à l’intérieur d’une ruine et plus précisément dans une ancienne citerne romaine. Cela renforce encore l’esprit des deux éléments en les confrontant à leurs différences.

Les œuvres exposées acquièrent une résonance majeure par rapport à leur position,entouréesd’unestructurequiaune histoire,unpassé.

LaRuineaungeniuslociquidoitêtreinaltéré, le Musée doit donc être à la fois présent et absent, nous avons décidé de pouvoir gérer les contraintes dues à ce concept par l’étude de deux espaces différents pouvantaccueillirdesœuvresdifférentes.

Un lieu atypique, essentiellement silencieux,maisoùlemoindresonrésonne, se répercute et se propage pour inonder l’ensembleduvolume.Lesentimentinitial est que ce lieu va extraire les gens du mondeextérieur.

Axonométrie

En effet, la citerne est un lieu à l’identité fortequipeutfourniruncadrerichepourdes œuvresquiinteragissentavecleursupport.

L’art contemporain a la capacité de tisser des liens avec n’importe quel lieu, n’importe quelle personne, n’importe quelle culture. Il peut vous projeter dans n’importe quel univers où l’artiste veut vous emmener. Dans une ruine, l’effet ne peut être accentué qu’en fusionnant n’importe quelélémenteten enrichissant lesensprécédent.

Lesondanslacathédrale,commeautrefois celui de l’eau, remplit tout l’espace sans affecter les vues à couper le souffle de cette merveilleuse structure dans les coulissesdel’histoire.

Le chemin que nous avons tracé à l’intérieurdelaciternepeutêtreconsidéré commeune œuvreàpartentièrequi joue aveclesvisiteursetleurimposedifférents rythmes pour mieux apprécier l’espace et l’architecture.

Au niveau supérieur, nous avons conçu un musée qui n’est pas une boîte dans une boîte mais un lieu d’échange entre différentes époques et entre l’art et l’architecture, qui peut pousser les visiteurs à une réflexion plus profonde

[...]
Planche de projet

The Acropolis Museum // Athènes

Réaménagement du parcours de visite de l’acropole et création d’un musée intégré

L’Acropoleestl’undessitesarchéologiques les plus visités au monde. Des millions de visiteurs se rendent à Athènes chaque année.

Aucoursdenosvisites,nousnoussommes rendu compte que l’Acropole ne répond pas de manière satisfaisante aux attentes etauxbesoinsd’unpublicaussiimportant.

Le Parthénon a besoin d’une restauration et d’un entretien constants ; il en résulte que le chantier sera réduit dans les années à venir, mais qu’il ne sera jamais complètementdémantelé.

Àcejour,l’organisationetl’installationdes ateliers et des entrepôts ne passent pas inaperçuesetempêchentcertainesvues.

La “croûte” qui recouvre la quasi-totalité dusoldelazoneestglissanteetnefacilite pas la circulation des visiteurs vers les principauxpointsd’attraction,lesbâtiments presquedisparusnesontpasidentifiables

aujourd’hui le visiteur n’a aucun consciencedel’ensembledebâtimentsqui constituaientl’acropole.

L’ Acropole a donc besoin d’une profonde réorganisation avec une empreinte plus contemporaine qui réponde mieux aux nouveauxbesoinsd’utilisation.

La visite : sanctuaire d’Artémis Brauronia Plan masse du projet de réaménagement

L’accès au parcours de visite à gauche l’autel d’Athéna Poliàs

La visite : sanctuaire de Zeus Polieus

THÈMESDECONCEPTION

Athènes, ville berceau de la civilisation occidentale, tire son nom de la déesse Athéna, qui était célébrée chaque année parlesfêtesdesPanathénées.

Afin de rendre plus évident le lien étroit qui existe encore aujourd’hui entre l’Athènesdel’époqueclassiqueoùestnée ladémocratieetlamétropolecosmopolite d’aujourd’hui,ilaétédécidédeprendreces célébrationsetleurparcoursdel’intérieur delavilleàlaforteressesacréecommeun traitd’unionphysiqueettemporel.

L’objectif du projet est de tenter de faire remonter le visiteur hypothétique dans le temps en re-présentant certaines caractéristiquesdel’Acropoleàsonapogée, la période péricléenne, qui s’ajoutent à la richestratigraphievisiblesansaffecterles tracesdesautresépoques.

La valorisation de l’Acropole s’effectue donc en suivant six thèmes différents qui sontétroitementliésafindeprésenterune image cohérente et historiquement plus compréhensible et plus compétitive en ce quiconcernelesfluxtouristiques.

- L’étudeetle traçage dunouvel itinéraire principal pour la visite des temples et des structures qui leur sont liées en suivant l’itinérairedesPanathénéesavecsonpoint deplus grandintérêtdevantle Parthénon combiné aux nombreuses connexions aveclerestedusystèmedetemplesetde structuresenrespectantlesdifférencesde hauteur déjà présentes et celles recréées suiteàlamiseenterrasse.

différentes stratigraphies des murs des périodesmycénienneetcimonienne.

- Le désir d’inclure une installation temporaire et réversible dans le périmètre de la cellule du Parthénon, une réinterprétation contemporaine du lieu le plus sacré et le plus inaccessible detoutelacitadelle.

-Lavalorisationdecertainspointsclésde l’Acropoleaujourd’huidiminués,relatifsàla positiondelastatued’AthénaPromachos,

de l’autel d’Athéna Poliàs, du sanctuaire deZeusPolieusetdusanctuaired’Artémis Brauronia,parlemarquageausoldeleurs périmètresetlacréationd’airesderepos.

- La réorganisation du système de sites de manière à créer une zone unique dans laquellesont regroupés lesserviceset les ateliers nécessaires au bon entretien et à larestaurationdesbâtiments.

- L’élimination du musée du XIXe siècle, sous-utilisé,etlapropositiond’unnouveau parcoursdevisiteàl’intérieurdesColmates persanes qui mettrait en évidence les Coupe sur le musée et l’escalier de retour

Plan du musée intégré dans la «croute»

Le parcours du musée avec les différentes point clés : Athéna, les phases historiques, les phases de la restauration, les techniques de la restauration, les techniques appliquées aux matériels, les repères d’Athéna

Installation témporaire dans la cellule du Parthénon La place du musée et le système de muséographie Le musée

Le bateau solaire de Khéops // Au Caire

Le bateau solaire de Khéops son musée et les alentours sur le plateau de pyramides de Gizeh

LabarquesolairedeKhéopsestunartefact découvert en 1954 dans la nécropole de Gizeh,auxpiedsdelapyramidedeKhéops.

La barque solaire selon les études des archéologues servait de moyen de transport au mort pour passer dans l’audelà.Presquesurementlenaviren’ajamais servidebateaudansl’eau.

Lethèmeduworkshopétaitceluidecréer un nouveau parcours de visite pour le bateau ainsi qu’un nouveau musée qui pouvaitlecontenir.

Le parcours grâce à des passerelles permette la découverte de la barque et de sa stricte relation avec la pyramide juste à côté. Les grands vitraux au Nord quirépliquentlemêmeangled’inclinaison de la pyramide permettent de créer ce dialogue entre le monument funéraire et l’outilpourvoyagerdansl’au-delà

Le plateau
pyramides
Les

Coupe longitudinale

La visite le nouveau parcours de visite La visite le nouveau parcours de visite

Designing archeology // Berlin

Concevoir l’Archéologie - un parcours expositif pour le Neues museum de Berlin

Le Neues museum est l’un des majeurs musées de Berlin, il se situe sur la museuminsel.

Il accueille une grande variété de la collection d’antiquités classiques de l’Allemagne.

Le Workshop avait comme but celui de créer une exposition temporaire à partir d’un catalogue de artefacts de l’ancien Egypte.

L’exposition voulait raconter l’histoire de la ville d’Amarne à travers l’amour entre NefertitietAkhenaton.

Les artefacts sont insérés dans des colonnes en bois qui filtrent et règlent l’éclairage. Les colonnes sont orientées afin de créer un jeu de regards entre les différents personnages et les objets qui leurappartiennent.

Les colonnes pour le parcours de visite

La visite Coupe du Neues museum et emplacement de l’expo

Coupe sur la cour intérieure

Le début de la visite

Détail du système pour l’exposition de la statue de Nefertiti

Surélévation d’un batîment du XIXe // Turin

Répondre aux besoins du quartier San Salvario

L’accès aux logements se fait par des balconsextérieurs,typiquesdesimmeubles turinoisduXIXesiècle.

De cette manière, les habitants du bâtiment historique peuvent également utiliserl’ascenseur.

L’escalier est recouvert de brise-soleil en boisquirappellentles«petiteschalets»sur letoit.

Le projet comprend cinq types de logements différents : de l’appartement de deux pièces au triplex, pouvant accueillir une famille nombreuse ou des ateliers d’artistes, d’architectes, etc.

Le jardin sur le toit permet de créer une petitebulledepaixdanslagrandeville.

La cour de la maison a été repensée pour disposer d’un véritable espace commun organisé.

Dans ce cadre, l’atelier a accordé une grande importance à l’utilisation des matériaux, à l’acoustique, à l’isolation thermiqueetàlastructure.

Le nouveau bâtiment est principalement construit en béton, tandis que les logementssurletoitsontenX-Lam.

Chaque détail a été traité avec le plus grand soin et la plus grande expertise, du modèle de parapet à l’escalier intérieur. Larépartitiondupoidsdeslogementssurle toitestassuréeparunestructureenacier quipermetlesdifférentesorientationsdes mursporteurs.

Axonométrie du bâtiment
Plan volumétrique de l’îlot et du contexte
Détails 3D de la structure en X-lam Plan et élévations du bâtiment

Gare chemin de fer // Vitry-sur-Seine

Une nouvelle vie pour la gare, un nouveau centre pour les habitants

Danslecadredel’interventionsurlaGare auThéâtre,ilaétédécidédenepasmodifier la physionomie de l’enveloppe extérieure dubâtimentpardesinterventionsinvasives surlesfaçadesprincipales.

Ilaainsiétédécidédesupprimerlecorpsdu bâtimentjuxtaposéàlaGaresurl’élévation nord.

En repensant la morphologie des espaces intérieurs, il a donc été jugé nécessaire d’agir sur deux fronts, en donnant une nouvellevocationàl’usagedessalleseten redéfinissantlesaccès:laporteprincipale del’élévationnordaétéfermée,etl’entrée n’est plus possible que par l’élévation est.

Enaccordaveclesanalysesdedégradation, les surfaces de pierre seront donc nettoyées, les matériaux incohérents seront enlevés et réintégrés par la suite avecdesmatériauxpluscompatibles,oules dégradations biologiques seront enlevées etleslacunesserontréparées.

Uneplacesurélevéede0,90mètreentrele bâtiment existant et le nouveau bâtiment relie les deux espaces, permettant de centraliser la zone et donc de relier les deux bâtiments, l’existant et le nouveau. Un mur entièrement vitré a ensuite été construit sur le côté ouest, face au “tunnel” utilisé comme piste cyclable.

Enfacedelagare,etparfaitementparallèle àcelle-ci,setrouveunbâtimentdemême volume.Ils’agitd’unenouvelleintervention qui s’impose non pas par contraste mais parcontinuitéaveclebâtimentexistant.

Cela ne se traduit toutefois pas par une simple émulation, mais par un jeu dynamiqued’analogiesetdecontrastes.

Le plan structurel du bâtiment est également conçu pour mieux dialoguer aveclagare:lesbaiessontdélimitéespar lebalayagedespiliersdontlalumièrereste constante.

Comme pour la Gare, l’étage supérieur abritecesespacessuspendusentièrement dédiés aux salles à manger, avec la possibilitéd’êtreégalementutiliséscomme sallesprivées.

De l’autre côté de la rue, toujours parallèlementàlaGareetparconséquent au bâtimentderestauration,setrouveun autre bâtiment destiné au commerce. Il s’agitd’unbâtimentuniquemaistripartite entredifférentesactivitéscommerciales.

Vue de la gare depuis le RER A Vue des deux volumes depuis l’Ouest Vue de la gare depuis le rails Vue de l’intérieur du nouveau bâtiment
C
A
Plan masse du projet
C’ C’’ C’’’ A’
B’
+3.9 m +0.0 m +0.9 m +0.9 m Élévation Sud Élévation Nord Élévation Ouest Élévation Est Coupe CC’ Détail technique vue intérieure Détail technique vue extérieure Détail technique +3.9 m +3.1 m +6.2 m +0.9 m +0.0 m +0.0 m +3.9 m +0.9 m +0.0 m
Coupe AA’ +3.9 m +0.9 m +0.0 m Sezione BB’ +3.9 m +0.9 m +0.0 m Élévation Sud +3.9 m +0.9 m +0.9 m +0.0 m Élévation Ouest Élévation Est
Élévation Nord
Coupe C’’C’’’
technique
Détail
Axonométrie

L’Éco-musée du blé et de la chanvre // Govone

LeMolinoSoprano(ouMolinoGerotte)est situédanslazonedesplainesausud-estde Govone,danslavalléeoùcouleleTanaro.

Cette portion de territoire est principalement utilisée pour la culture de céréales et de cultures arables, elle est occupée principalement par des fermes etabriteégalementunezone industrielle, située le long de la route nationale qui traverselavallée.

Le Molino est bordé, à l’est, par le canal de Lavandaro, un canal d’irrigation alimenté par un réseau de canaux et de prises d’eau qui, depuis Santa Vittoria d’Alba, permet l’irrigation des champs et le fonctionnement des moulins situés le long de la route hydrographique. L’enquête historique menée sur les cartographies montre comment le fonctionnement du moulin était lié à la manière dont les terres agricoles étaient irriguées. La construction du moulin semble avoir eu lieu entre 1721 et 1758.

La phase de relevé a été fondamentale pour la reconnaissance des différentes phasesdel’artefactetaégalementpermis d’étudier le cycle de transformation des céréalesetduchanvre.

Le relevé de la machinerie a permis de comprendre la distribution interne de l’objet, les méthodes de stockage et de production et les différentes fonctions présentes..Àcelas’ajoutel’observationdes matériaux,destechniquesdeconstruction et des phénomènes de dégradation, afin d’évaluer l’état de conservation de l’artefact, les points les plus critiques et l’ampleurdelarestauration.

Le Molino Gerotte, parcour de découverte du territoir Plan masse
Coupe BB’
Charte des matériaux de l’édifice

Etat sanitaire du moulin avec identification des pathologies par matériel

Charte avec liste des interventions et des prestations à exécuter pour la restauration du moulin

L’interventionenvisagéeviseàpréserverle matérielexistant,lamachineriehistorique etàrécupérerl’imagedumoulin,entenant comptedelacohérencedelamaçonnerie, des finitions et des matériaux conservés, tout en agissant sur les causes de la dégradation.

Il a été décidé de restaurer la fonction d’exposition et didactique du moulin. L’objectif est de mettre en évidence la valeur historique de l’objet, en tant que témoignage de la nature agricole et productivedelarégionetdesestechniques deconstruction.

Il a donc été décidé de créer un parcours d’exposition à l’intérieur du moulin, afin de rendre visibles les installations et les machinesetd’exposerlesoutilsconservés.

Le parcours sera utile pour présenter des informations et des témoignages sur le territoire, son fonctionnement et la transformationdescéréalesetduchanvre.

Le musée sera intégré dans un circuit d’espaces fonctionnels à des fins pédagogiques, de promotion, d’aménagement du territoire et de valorisationdesressourceslocales.

La visite sera étendue aux espaces extérieurs du moulin, en particulier au passage de l’écluse et au talus adjacent, ainsi qu’à la tranchée située devant la façadeprincipale,quidonnesurlecanal.

Le parcours de visite prévu est divisé en troismacro-zonesd’intérêt.Unepremière partie concerne l’histoire du territoire et de l’hydrographie, dans laquelle sont

illustrées les méthodes de culture, de récolte,destockageetdedistributiondes produits du moulin, à l’aide de matériel audiovisueletdefilmshistoriques.

Leparcourscomprendl’accèsàuneplateforme surélevée au-dessus de la salle des machines.

La deuxième section est consacrée à la culture et à la transformation des céréales et du chanvre, avec un accès à la galerie principale, où sont illustrées les méthodes de culture, les phases de croissanceetlespropriétésdescéréaleset duchanvreutilisésdanslatransformation. De là, il sera possible d’accéder à la salle de transformation des grains et des céréales mineures, où seront exposés des machines et des engrenages, et à la salle de transformation du chanvre, où il sera possible d’observer le fonctionnement de lameule.

La dernière partie du parcours concerne les extensions extérieures, dans le jardin didactique et sur la vue du canal, pour l’observation des cultures de démonstration des matières premières de la transformation et du cours d’eau du canal.

La récupération de la consistance de l’artefact, tant matérielle que chromatique, fait l’objet d’une conception d’éclairage visant à mettre en valeur avant tout les caractéristiques historiques et architecturales du moulin, ainsi que la matérialité des surfaces.

Coupe AA’ hiver Coupe AA’ été Schéma de la turbine pour l’autosuffisance Croquis du détail de la passerelle Axonométrie du projet Croquis du détail de la passerelle Croquis du détail de la passerelle Vue de la salle des machines et du projet d’éclairage Vue du parcours de visite Passerelle extérieure La salle des machines : parcours de visite

Requalification urbaine // Sant’Ambrogio

Restauration d’une cour et création d’une crêche

La zone de projet identifiée est située à proximitédespentesdumontPirchirianoà l’ouestetdutissuurbainhistoriqueàl’est; elle s’étend au-delà descoursdu Prigione delFeudo.

Le projet s’articule autour de deux axes principaux : le premier concerne le réaménagement de la zone bâtie, la valorisation des murs et des cours intérieures historiques ainsi que des

espaces publics qui y seront insérés, tandis que le second se concentre sur la zone de filtrage entre la montagne et la zone bâtie historique.

Le réaménagement des bâtiments par le biais d’une gestion publique permet de préserver les témoignages constructifs et architecturaux, mais aussi de réorganiser la distribution interne et externe des bâtiments et

des cours, en étendant l’intervention d’un seul bâtiment à l’ensemble du systèmedecourscommunicantes.

Le bâtiment “prison” (180mc) est utilisé pour l’insertion d’une petite bibliothèque publiquedanslazone.

La résidence temporaire (332 m²) comprend, outre le bâtiment abandonné dansladernièredescourscommunicantes,

Schémas compositifs crêche Schéma bibliothèque et résidence Plan masse avec plan au rdc Axonométrie de la crèche

deux bâtiments adjacents au bâtimentprincipal.

les cours communicantes, ainsi que deux bâtimentsadjacentsaucorpsdela“prison”, actuellementàusagerésidentiel.

Ladivisiondescoursparlesmursexistants est surmontée par la réouverture au passage des piétons des trous reconnaissablesdanslesmurseux-mêmes, quiontmaintenantétébouchés.

Pour la crêche, il a été décidé d’utiliser la morphologie actuelle du quartier comme support;ilaétédécidéd’intervenirsurla zone avec un nouveau bâtiment capable deremplirlevideetdedonneruneforme définieàl’îlot.

Le bâtiment contiendra une école maternelle d’une capacité d’environ 45 places, offrant ainsi à la population un service actuellement absent sur le territoiremunicipal.

D’une vue aérienne, comme celle de la Sacra di San Michele, il sera possible d’observer le “coin” face à la montagne obtenu à partir d’éléments solides, qui seracontrastéparunautreorientéversle centrehistoriquecaractérisépardesvides avecdesfonctionsd’espacepublic.

Élévation Est des bâtiments sur cour Élévation Ouest des bâtiments sur cour Coupe Longitudinale Élévation Nord sur cour Élévation Est sur cour

Le jardin d’enfants a été expressément conçucommeunvolumeferméàl’extérieur maisextrêmementperméableàl’intérieur.

Ce contraste est également visible d’un point de vue structurel : alors que sur les mursextérieurs,unsystèmedemaçonnerie porteuse a été privilégié, vers l’intérieur, la structure devient plus légère et plus ponctuelle avec unsystèmede poutres et depiliersenbétonarmé.

Le bâtimentsecomposede deux niveaux, le rez-de-chaussée, où se trouvent toutes lesfonctions,etunétagesupérieurouvert surlejardindutoit.

Détail technique de la paroi extérieure

Élévation Est de la crèche

Élévation Nord de la crèche

Coupe transversale de la crèche

Élévation Sud de la crèche

Élévation Ouest de la crèche

Coupe territoriale

Croquis

Sélection de croquis faits pendant les années d’études et pendant mon expérienceprofessionnelle.

Réalisation à partir de différentes techniques:crayonHB,styloPilot0.2mm ouencoredessinsurIpadavecPencil.

Lapossibilitédecréerundessinàpartirde différentstechniquesetsupportsréponds aux besoins d’insérer les dessins et les utiliserpourdesraisonsdifférentes.

Pigeonnier et communs du château de la Mothe Chandeniers - Les Trois Moutiers Eglise Saint-Pierre - Parçay-Meslay Vue de l’Isle-sur-Tarn depuis la rivière Maison à colombages - Isle-sur-Tarn Communs du château des Brétignolles - Anché Vue de l’entrée au château de la Mothe Chandeniers - Les Trois Moutiers Le château de la Mothe Chandeniers depsuis le parc - Les Trois Moutiers Les toits de la Mothe - Les Trois Moutiers Musée des Abattoirs - Toulouse La Mothe Chandeniers - Les Trois Moutiers Saint-Sernin - Toulouse Logis Royal de Loches Château des Brétignolles

Photographies

J’ai toujours aimé la photographie, depuis mon enfance j’ai pu m’exprimer à travers cettetechnique. Jesuistotalementautodidacte. Àl’université,j’aiapprisàutiliserlelogiciel Photoshoppouréditerlesphotos.

Vous trouverez sur ces pages quelques photos prises au fil des ans et qui m’inspirentparticulièrement.

Le thème que j’essaie de suivre depuis quelques mois est le blanc et le noiretlasymétrie.

Contact +33 07 69 19 51 65 valeria.fortini@hotmail.com vfortini93@gmail.com CE PORTFOLIO EST DISPONIBLE SUR Dernière Mise à jour 2023 COURRIEL TELEPHONE

Turn static files into dynamic content formats.

Create a flipbook
Issuu converts static files into: digital portfolios, online yearbooks, online catalogs, digital photo albums and more. Sign up and create your flipbook.