








![]()





























































































I am a Senior Architectural Designer with experience in complex, multidisciplinary residential, commercial, and mixed-use projects across all phases. My work focuses on shaping clear design strategies early in the process and carrying them through to re ned, buildable outcomes, resulting in cohesive, well-resolved solutions. This approach re ects a strong commitment to design expression, technical performance, and the high-quality presentation of project deliverables.




This portfolio showcases professional work completed over the past seven years in Canada. Projects are organized into ve categories: Masterplans, High-Rise, Medium-Rise, Low-Rise, and Other Selected Work, presented in brief.


Gusto 501 is a built project completed in 2020, developed during my time at PARTISANS. All other projects included in this portfolio were undertaken at Turner Fleischer, with design concepts and associated graphics produced by me. Masterplan work was developed collaboratively under my leadership.




Moorings on Cameron Lake is another completed project, delivered in 2024. Bloor Crossing is a six-block development; this portfolio highlights three blocks I worked on as part of the project team. It is currently under construction, with completion anticipated in 2026. All remaining work is progressing through studies and approvals



In addition to design concept development, I contributed to project documentation, translating ideas into coordinated drawing sets for approvals and construction; a selection of these drawings is included in this portfolio. Throughout this work, I collaborated closely with the Design Director, Project Managers, internal teams, and external stakeholders, ensuring functional performance, regulatory compliance, budget alignment, sustainability, and the delivery of comfortable and well-composed spaces.









30

33
THE GORE RD BLOCK 140 (pre-construction)
WOODBRIDGE SQUARE (pre-construction) BLOOR CROSSING BLOCKS B, C, D (under construction) 123 EDWARD ST (pre-construction) 2079 YONGE ST (pre-construction) 955 WESTON RD (pre-construction)


36 39
1230 THE QUEENSWAY (pre-construction) 84 NANCY ST (pre-construction)



52
GUSTO 501 (built) THE MOORINGS ON CAMERON LAKE (built) OTHER SELECTED WORKS


























































Vaughan, ON | 2025 | Mixed-use | Pre-construction
320,314 m2 residential | 6,382 m2 retail
Role: Job Captain Project Team: 8
Firm: Turner Fleischer
This proposal reimagines the existing Woodbridge Square shopping centre, located at the intersection of Weston Road and Highway 7, as a mixed-use community in downtown Vaughan. The project comprises nine towers ranging from 12 to 57 storeys, and delivers 4,388 residential units, ground-level retail, including a large grocery store. Starting from an extruded site block, the mass was strategically carved to shape the buildings while accommodating light, views, and streetscape connections. This process established a central open area - a privately owned public space (POPS) of over 3,700 m² - where curved forms introduce continuity and spatial ow, with building heights stepping down toward the south to optimize solar access.
The architectural concept adopts a contemporary aesthetic, expressed through articulated façades that avoid rigid compositions, and supported by a re ned material palette. At the terminus view, the building is emphasized as a focal point through a bolder design gesture. Balcony con gurations were strategically varied according to solar orientation, supporting passive performance while enhancing façade composition. This approach was complemented by a 30–40% window-to-wall ratio that improves thermal performance by reducing seasonal heat loss and gain.
Developed under a condensed schedule, the project required rapid progression and close coordination across a large internal team. As Job Captain, I led a team of three designers, shaping the design while coordinating schedule and budget.
The architectural approach was re ned through ongoing collaboration with the client, aligning the architectural language with the project vision through iterative discussions and re nements. I also worked closely with the Project Manager, Design Director, and external stakeholders to translate the architectural vision into coordinated drawing sets.

























































feature tower


























tower at terminus view














from Internal Park Looking Northeast (conceptual render)

























LOWER SOUTHERN MASSING
Central open space solar access



















WEST AND EAST ELEVATIONS
Mild sun exposure
Individual projecting balconies










NORTH ELEVATIONS
Minimal sun exposure
Inset balconies








SOUTH ELEVATIONS
Intense sun exposure
Continuous projecting balconies








Ground Floor Plan
residential units
amenities
horizontal circulation, lobby
vertical circulation, service areas, parking
retail
re route
primary residential entrance
secondary residential entrance
retail entrance
exit













Brampton, ON | 2023 | Mixed-use | Pre-construction
166,050 m2 residential | 2,412 m2 retail | 5,410 m2 of ce
Located at the intersection of The Gore Road and Queen Street East, this masterplan envisions seven towers delivered across four phases, ranging from 23 to 43 storeys and connected by mid-rise podiums with ground- oor retail, of ce, and amenity spaces. Together, the development delivers 2,461 residences, including a mix of market units and 123 affordable-rate rentals, supported by three levels of underground parking, a central landscaped park with promenades, gardens, and an amenity building.
The distribution of tower heights across the site was strategically arranged according to solar orientation to minimize shadow impacts on the central open space. The architectural concept draws inspiration from greenhouses, referencing Brampton’s identity as the “Flower City of Canada.” This idea informs both the formal expression and spatial organization of the project, where transparency, lightness, and layered volumes evoke greenhouse structures. A key design challenge was applying this inspiration across multiple towers while ensuring each building maintained a distinct identity and avoided visual repetition.
As Senior Designer, I led the overall design process, overseeing a team of three designers, coordinating task assignments, schedule, and project budget, while also contributing to the preparation of the project’s drawing sets for City applications.























1. Retail plaza
2. Decorative landscape
3. Park with amenity building
4. Market
5. Outdoor amenity
6. Playground

Gateway
Vehicular + pedestrian circulation
Pedestrian circulation
Connection with adjacent park system
Towers heights decrease
































HISTORY OF BRAMPTON FLOWERTOWN OF CANADA










FAÇADES FEATURES INSPIRED BY GREENHOUSES
roo ine
roo ine
balconies shape

top frame balconies railing







South ElevationWest Elevation




S-N Cross-section - Towers C and D



















































HIGH-RISE







Toronto, ON | 2021 |Mixed-use | Under Construction
Block B: 58,175 m² residential | 1,520 m² retail
Block C: 30,144 m² residential | 3,172 m² retail
Block D: 20,267 m² residential | 1,739 m² retail
2,488 m² of ce | 2,548 m² institutional
Role: Senior Designer Project Team: 12 Firm: Turner Fleischer
This proposal introduces a carefully integrated urban intervention at the intersection of Bloor Street West and Dufferin Street in Toronto’s west end, adjacent to Dufferin Mall. The development is composed of six building blocks (A–F) and a publicly accessible park located to the south for optimal sun exposure. It provides an extensive rental housing program, with ground- oor retail activating the streetscape.
I led the development of the façade designs for blocks B, C, and D, presented on the following pages, in close collaboration with the Design Director and the clients. Block B was undertaken for Hazelview, while Blocks C and D were developed for Fitzrovia. I also contributed to the project documentation, supporting the translation of the design concept into technical drawings. The project progressed from concept through to construction within a compressed timeframe, requiring an elevated level of coordination and agility across multiple teams.


































Site Plan developed by author
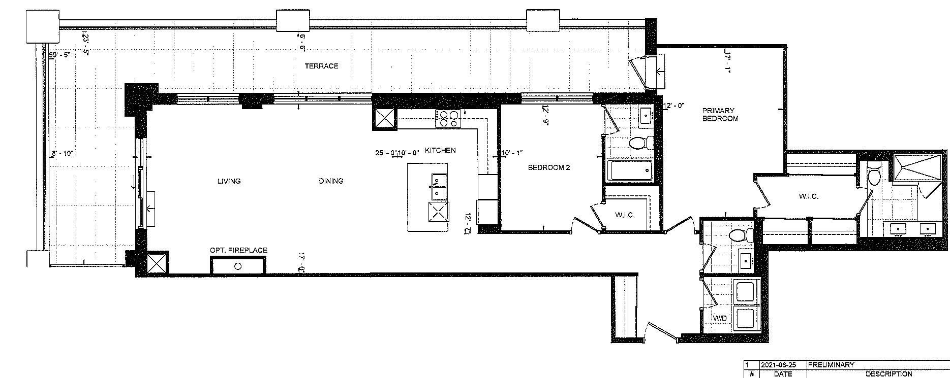
Located in front of the park, this block consists of an 8-storey podium topped by 34- and 37-storey towers, with a total of 856 units. Retail at grade brings activity to the ground oor. The façade design of both the podium and towers is inspired by the composition of the nearby Kent School’s facade, creating respectful dialogue with the historic context.
The red cladding was initially conceived as a system of metal panels, selected for their boldness and contemporary expression. However, due to budget constraints, the material was revised to brick-inlay precast concrete panels, requiring a comprehensive rethinking of the façade detailing while preserving the original design intent. This shift presented a key challenge, as details developed for the thinner, more exible metal panel system had to be adapted to accommodate the thickness, jointing, support conditions, and assembly requirements of the precast panels.



retail
horizontal circulation, lobby
vertical circulation,service areas
amenity
residential units












































































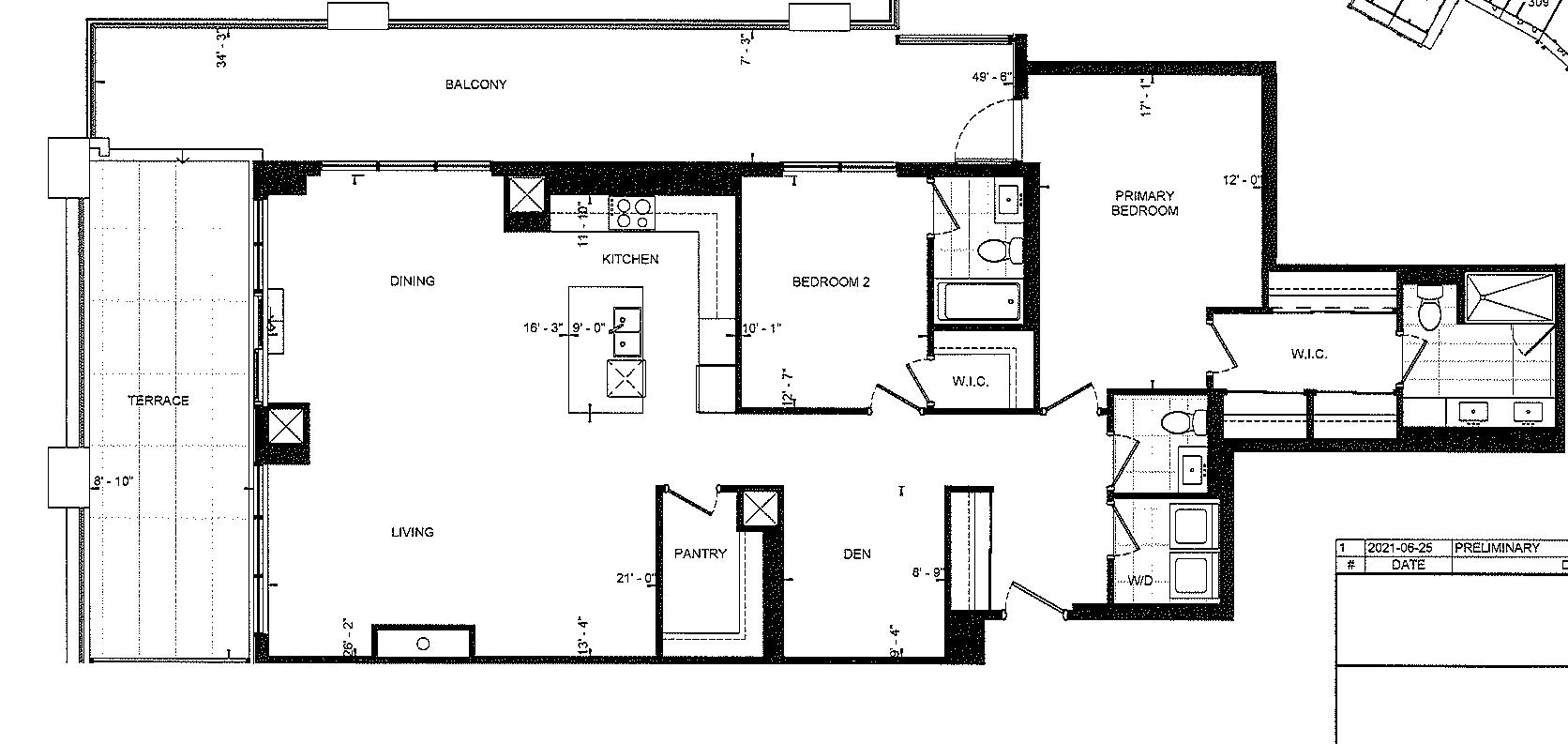
Marlow is a 32-storey building at the corner of Bloor Street and Dufferin Street, comprising 413 units with retail uses activating the ground oor. The design adopts a timeless expression aligned to the client’s identity, with vertical modulation coordinated to units demising and partition walls to reduce reliance on spandrel glazing.
Originally conceived with white brick-inlay precast concrete cladding across the entire building, the material palette was later re ned to a medium grey tone for the tower to better relate to its context, and a darker grey at the base to reinforce the building’s visual anchoring. The ground oor corner was designed to enhance the pedestrian experience, with metal panels cladding articulating the galleria entrance and emphasizing its presence. On the 7th oor, a triple-height basketball court and double-height gym and sports lounge are articulated through a distinct metal cladding treatment, introducing additional variation to the façade.
1. Vision Glazing (clear)
2. Vision Glazing (fritt)
3. Brick-inlay Precast (light)
4. Brick-inlay Precast (dark)
5. Metal Panel (light)
retail
horizontal circulation, lobby
vertical circulation, service areas
amenity
C - W-E Cross-section retail horizontal circulation, lobby vertical circulation, service areas amenity residential units
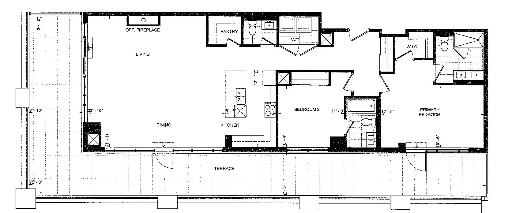
The Quinton is a 19-storey building situated along Dufferin Street that incorporates Kent School as a retained heritage element. The development includes 214 residential units, with ground- oor retail activating the public realm and strengthening connections to the park. Within the school, the ground oor is programmed as a community hub to support local initiatives, while the second and third oors are dedicated to of ce uses.
The façade design draws on the proportions of the existing school, establishing a cohesive architectural dialogue. Dark brick-inlay precast concrete cladding was selected as a neutral counterpart, complementing the original material palette without competing with it. The initial proposal included a glass volume above the school to mediate the transition to the new construction; however, as it was not required for the program, this element was removed and replaced with a more restrained glass reveal that articulates the transition. Terraces were originally introduced along the west façade, but the massing was later re ned to improve oor plate ef ciency.
heritage building (Kent School) proposed building transitions












residential units
horizontal circulation, lobby
vertical circulation, service areas, parking retail
community hub of ce





Toronto, ON | 2024 | Mixed-use | Pre-construction
102,690 m² residential | 430 retail m²
Role: Senior Designer Project Team: 4 Firm: Turner Fleischer
Located approximately 500 metres from Toronto City Hall, the project responds to the limitations of a constrained downtown site. The initial proposal featured two 72-storey residential towers separated by only 6 metres due to the compact site dimensions. Their architectural expression emphasized vertical articulation, with towers’ pro les conveying the impression of a mass broken into two slender volumes. While well received by the client group, the minimal separation raised concerns from the City regarding building performance and spatial quality. Also, the towers’ prominence risked competing with the visual presence of City Hall when viewed from Nathan Phillips Square.
The design evolved to address these challenges through a revised massing strategy. The latest proposal consolidates the towers into a uni ed composition connected by an intermediate volume, reducing their heights to 59 and 53 storeys. The façade articulation recalls the original concept, maintaining the perception of two distinct volumes, with the connection being expressed through a glazed intermediate link. This iteration responds to regulatory constraints while improving spatial relationships.
Working closely with the Design Director, my role included developing the design concept, assisting with feasibility and massing studies, and contributing to the development of the project drawings for submissions.






INITIAL MASSING REVISED MASSING




INITIAL MASSING
INITIAL DESIGN












REVISED MASSING
REVISED DESIGN










































































































March 21st
shadow cast by existing development shadow cast by proposed development shadow cast by submitted / not yet constructed developments shadow cast by developments under construction
residential units
horizontal circulation,lobby
vertical circulation, parking, service areas
amenity retail







Toronto, ON | 2023 | Mixed-use High-rise | Pre-construction
33,662 m² residential | 1,893 m² retail
Role: Senior Designer Project Team: 5 Firm: Turner Fleischer
Situated on a prominent midtown block between Hillsdale Avenue and Manor Road, the proposed redevelopment introduces a 29-storey mixed-use building that thoughtfully integrates elements of the site’s heritage at the ground oor. The project re ects the challenges and opportunities of densifying a well-connected Yonge Street corridor while respecting its historical context
Ground- oor retail activates the public realm along Yonge Street and Hillsdale Avenue East. The streetscape design evolved through multiple iterations in collaboration with the heritage consultant to align with the vision for the site and its context. Clad in aluminum-toned metal panels, the tower presents a re ned contemporary expression that enhances visual lightness, durability, and skyline presence. The design and material palette were carefully selected to complement the heritage character at the base without competing with it.
I was responsible for developing the design concept and coordinating its translation into the drawing sets, working closely with the project documentation team, consultants, and ity planners. One of the challenges was achieving a sensitive transition between the building and the adjacent low-rise neighbourhood to the east. The terraced podium mediates this change in scale, while four townhouses along Manor Road introduce a ner-grain residential frontage that further reinforces this interface.
transition to low-rise neighbourhood Ground Floor Plan
residential units
horizontal circulation, lobby
vertical circulation, service areas
amenity retail garbage room bicycle parking








1917 photograph showing the original design of the primary elevation of 2111 Yonge Street (Source: City of Toronto Archive).
roo ine modillions
dentilled cornice original 2nd oor openings



chamfered entrance
visual break between heritage and proposed new building


Proposed restoration of the North elevation of 2111 Yonge Street










Toronto, ON | 2023 | Residential | Pre-construction
61,151 m²
Role: Senior Designer Project Team: 4 Firm: Turner Fleischer
Located in Toronto’s Mount Dennis neighbourhood, the project comprises two towers, 34 and 24 storeys high, rising above an eight-storey podium and delivering 1,003 residential units ranging from studio to three-bedroom layouts. A portion of the site is dedicated to a new public park, contributing to the neighbourhood’s public realm.
The initial application proposeda larger building footprint occupying most of the site. The revised design reduces the site coverage while maintaining density by shifting mass vertically and setting the towers further back from the street. This strategy lowers the perceived scale at the streetscape, and introduces an internal courtyard that enhances light, openness, and shared outdoor space.
A terraced podium establishes a pedestrian-scaled frontage. The façade combines metal and precast panels, with the podium nished in warm-toned materials that add richness to the streetscape. Rounded internal podium corners soften the massing and enhance the ow of the outdoor spaces.
Working closely with the Design Director, I assisted in feasibility studies, developed the design for the revised massing, and contributed to project documentation for submissions.
View from Southwest
Latest Submission (conceptual render)




View from East
Latest Submission (conceptual render)
Site Plan - 1st Submission (larger footprint)
Site Plan - Latest Submission (reduced footprint)
Latest Submission (conceptual render)







View from South
Latest Submission (conceptual render)






Toronto, ON | 2025 | Mixed-use| Pre-construction
10,623 m² residential | 500 m² retail
Role: Job Captain Project Team: 4 Firm: Turner Fleischer
This is a proposed 11-storey development along The Queensway corridor in Toronto’s South Etobicoke area, located near Kipling Avenue. The project comprises 143 residential units above a four-level underground parking structure, with retail integrated at grade.
An initial submission proposed a higher datum line along The Queensway, resulting in a street wall perceived by the City as overly tall in relation to its context and at the pedestrian scale. The massing was subsequently revised to reduce the building’s bulk along the street. A contemporary palette of light-colored panels and glazing emphasizes vertical modulation. The nal façade design evolved through multiple iterations in close collaboration with the client. I led the design concept process, developing and advancing the architectural expression throughout these iterations.
Accommodating the required parking within the constrained site presented a signi cant challenge. The site did not allow for a continuous 15% ramp across all levels; instead, 5% sloped drive aisles were integrated along the parking rows, enabling incremental level transitions while optimizing the layout. I was part of the team responsible for producing the drawing sets and coordinating with external stakeholders.
INITIAL DESIGN









VARIATIONS 1





VARIATIONS 2




















1. Precast (light)
2. Precast with pattern (light)
3. Spandrel glass 4. Clear glass 5. Aluminum mullion
Metal cornice (dark)



Bolton, ON | 2023 | Residential| Pre-construction
15,160 m² residential
Role: Senior Designer Project Team: 4 Firm: Turner Fleischer
This proposal demonstrates a contextually responsive architectural approach to a sensitive sloping site adjacent to established neighbourhoods and protected natural landscapes. With an elevation difference of approximately 12 metres between the southeast and northwest edges, the building steps along the slope, allowing it to integrate naturally with its surroundings.
The 8-storey, 123-unit building is shaped by a modulated massing strategy that reduces perceived scale and responds to the site’s topography. Its architectural expression draws on the site’s natural character, using a re ned material palette that complements Bolton’s evolving urban fabric while maintaining a strong relationship to the southern landscape edge. A material transition at the corner visually divides the building into two masses, reducing its apparent bulk. An alternative scheme explored a more uid expression with continuous, undulating balconies.
Durable, low-maintenance materials, energy-conscious envelope strategies, and thoughtful site planning contribute to long-term environmental performance while preserving adjacent green space. The project re ectsacoordinateddesigneffortfrom concept throughdevelopment, including cross-disciplinary collaboration to address site constraints, re ne the building envelope, and support planning submissions.
Cross-section






































































Toronto, ON | 2018 | Commercial | Built
630 m²
Role: Designer Project Team: 6 Firm: Partisans
Gusto 501 is a restaurant project located along the eastern edge of Toronto’s downtown, realized as a purpose-built two-story building with a rooftop at the intersection of Queen Street East and Broadview Avenue. The design features a re ned industrial aesthetic, articulated through a Corten steel façade, terracotta brick, dark metal accents, and warm wood elements, creating a layered and inviting atmosphere.
I contributed to the development of the interior material strategy, particularly in the articulation of the terracotta brick. By incorporating a range of brick types and subtle variations, the design achieves a more organic and textured surface, introducing a sense of movement while enhancing the tactile quality of the space and avoiding a repetitive or overly rigid expression. Integrated lighting within the brick further emphasizes its depth and material richness, highlighting its natural variation. Careful consideration was given to the development of construction details that allow HVAC grilles to be seamlessly integrated within the brickwork, ensuring they remain visually concealed and do not disrupt the continuity and clarity of the design.
In parallel, I worked on producing construction drawings and developing millwork details for interior areas, including the second- oor bar. The furniture and millwork were custom-designed, requiring a high level of coordination and precision.











LOCATION
















Waitstation - Front ElevationWaitstation - Cross-section





Fenelon Falls, ON | 2021 | Residential | Built
8,680 m²
Role: Senior Designer Project Team: 5 Firm: Turner Fleischer
Situated at 99 Louisa Street in Fenelon Falls, the building is a three-storey, 57-unit condominium that integrates contemporary lodge architecture with prairie in uences and its lakeside setting. The project highlights materiality and form through a façade that pairs two tones of stone for depth and texture, wood-clad elements that add warmth and a resort character, and expansive glazing that enhances transparency and views.
The initial massing featured a symmetrical composition with a central entrance element, informed by historical references from the site. The nal design evolved through iterative re nement, optimizing the form for greater program ef ciency. Terraces and articulated roo ines reduce visual mass and strengthen the connection between indoor and outdoor spaces. Prairie in uences are expressed through a strong horizontal emphasis, a layered façade with projecting elements, and a close connection to the landscape.
I led the development of the design concept in close collaboration with the Design Director and client, supported the creation of efcient unit layouts, and contributed to design re nements with the construction drawings team to ensure constructability, long-term durability, and alignment with the project budget.



Sextant: artifact related to David Thompson (1770–1857), the renowned surveyor and explorer who mapped the region between Hudson Bay and the Paci c Ocean










View from West - Initial Design (conceptual render) MASSINGMATERIALITY





mechanical room amenity lobby







Primary residential entrance
Secondary residential entrance Exit Fire hydrant Siamese connection
View from Southwest (completed project - 2024) Site Plan







































































Brampton, ON | 2024 | Mixed-use | Pre-construction
525,152 m² residential | 3,328 m² retail |7,265 m² of ce
Role: Senior Designer
Project Team: 8
Firm: Turner Fleischer





















































































































































































Toronto, ON | 2023 |Mixed-use | Pre-construction
36,750 m² residential | 149 m² retail
Role: Senior Designer
Project Team: 5
Firm: Turner Fleischer
horizontal circulation, lobby vertical circulation, service areas retail garbage room







59 KING ST N
Waterloo, ON | 2024 | Mixed-use | Pre-construction
56,200 m² residential |490 m² retail
Role: Senior Designer
Project Team: 4
Firm: Turner Fleischer










































8127 YONGE ST
Markham, ON | 2022 | Mixed-use| Pre-construction
69,656 m² residential | 1,192 m² retail
Role: Senior Designer
Project Team: 4
Firm: Turner Fleischer




Toronto, ON | 2022 | Mixed-use| Pre-construction
20,970 m² residential | 710 m² retail
Role: Senior Designer
Project Team: 4
Firm: Turner Fleischer
residential units
horizontal circulation, lobby vertical circulation, service areas
retail garbage room
bicycle locker
Toronto, ON | 2025 | Residential | Pre-construction
15,285 m²
Role: Job Captain
Project Team: 4
Firm: Turner Fleischer
residential units
horizontal circulation
vertical circulation, service areas




2065 FINCH AVE W
Toronto, ON | 2023 |Mixed-use | Pre-construction
28,540 m² residential | 980 m² retail| 5,810 m² of ce
Role: Senior Designer
Project Team: 4
Firm: Turner Fleischer
Mississauga, ON | 2022 |Mixed-use | Pre-construction
26,112 m² residential | 676 m² retail
Role: Senior Designer
Project Team: 5
Firm: Turner Fleischer
residential units
horizontal circulation
vertical circulation, service areas, parking retail garbage room







Scarborough, ON | 2021 |Residential | Pre-construction
34,597 m²
Role: Intermediate Designer
Project Team: 4
Firm: Turner Fleischer




























Vaughan, ON | 2022 |Residential | Pre-construction
28,878 m²
Role: Senior Designer
Project Team: 4
Firm: Turner Fleischer
























