Smith, Molly

Page 1

Molly Smith

2023 Portfolio

Bachelor of Architecture / BA(Hons) Architecture

Liverpool School of Art and Design

About:

I’m Molly, a 21 year old from the East Midlands looking for a Part One Architectural Assistant job. I am an incredibly hardworking indivdual and am very excited to progress into the architectural world as well as my career. I am most interested in going down the sustainability route as I feel that is the future of architecture, my design style compliments this as I love to work with timber through different forms which makes me believe I will be a great addition to any organisation also going down this path.

Contents

BA Year 3 Semester 2: Comprehensive Design Project 1 - 6 BA Year 3 Semester 1: Weather of Not 7 - 10 BA Year 2 Semester 2: Experimental Project - Street Scape 11 - 15 BA Year 2 Semester 1: Photography Studio 15 - 16 Curriculum Vitae 17

Shadowing the Limelight (CDP)

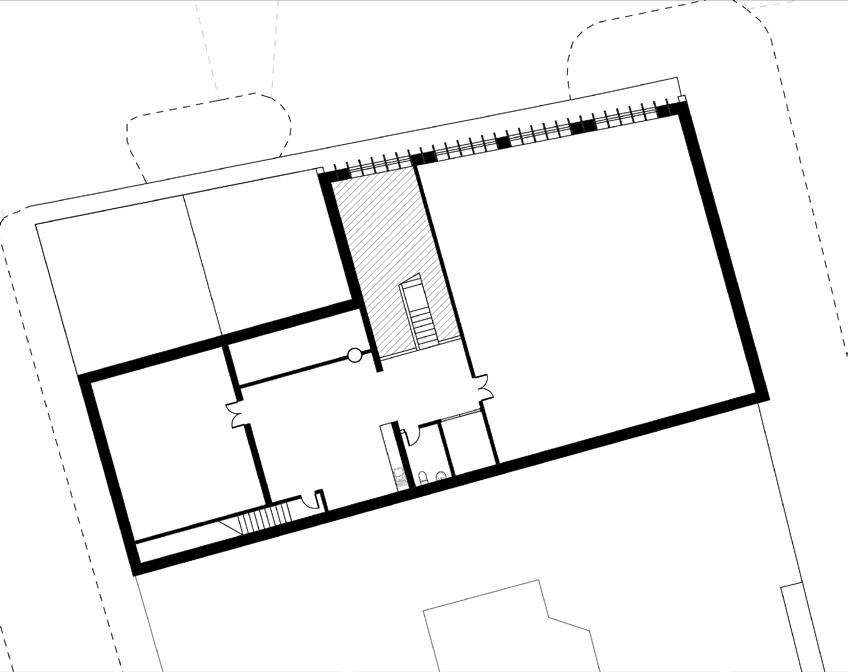
Shadowing the Limelight is a performative arts school for Liverpool John Moores University in the heart of the Baltic Triangle. Consisting of three buildings, merged together with a series of corridors the opputunities this building allows is endless. From dance and drama studios to costume and set design workshops this space is a sactuary for the creatively minded people with in the performing arts. An 840 seat theatre allows for large audiences, in which will hopefully bring in more people into the ever-growing Baltic Triangle area. The concept for ‘Shadowing the Limelight’ was all about light and shadow and how you can display it with movement. A polycarbonate skin wraps around the top half of the structure and the entirety of the workshop to create visuals of shadows when looking into the interior. The brick and larch cladded exterior creates a neutral but warm and inviting element, wanting you to step inside the space.

1
2
3
4
5
6

Weather OR Not - The Plyrooms

The Plyrooms - an educational facility aimed at secondary school children aged from 11-16. The design is divided into two buildings. An informal space with an interactive classroom, exploring creative new ideas on how we can slow down the climate crisis. And a formal space, providing lectures on the impacts of climate change has in rural areas around the United Kingdom. The aesthetic of the design is represented in an organic way of teaching through less confined, free flowing spaces.

7
8
9
10

CONNECT

CONNECT - a temporary gallery space to allow to local community connect with eachother through artworks and the emotions it brings with it. This is an essential space when it comes to the after effects from the Covid - 19 pandemic when it comes to helping local business and bringing the community back together once again.

11
12
13
14

Larch Studios

Larch Studios, based on Kempston Street in the heart of Liverpool holds photography based studios. This provides a space for upcoming photographers to get a boost of their careers. Larch studios have multiple large and small scale photography studios, including dark rooms to provide all needs for the user.

15
16

Contacts

+447464891120

mollyesmith7@gmail.com

mxllyarch

https://www.linkedin.com/ in/mollyesmith7/

Achievements

- Full UK drivers license

- Certified first aider

- Student Representative

2022/2023

- Womens Rowing Captain 2022/2023

- College course representative

2018 - 2020

- National citizen service (NCS) July 2018 - August 2018

Education

Liverpool John Moores University (2020 - 2023):

Final Year Student undertaking Bachelor of Arts in Architecture (predicted 1:1)

Nottingham College (2018 - 2020):

UAL Level 3 Extended Diploma in Art and Design:

- Distinction

Welland Park Academy (20162018)

GCSES: - 1 B

- 7 C’s

Undergraduate architecture student

As a creative and environmentally conscious architectural student in my final year at Liverpool John Moores university, I am excited to pursue a career that allows m eto make a postive impact through design. With a keen eye for detail and a passion for innovation, I have excelled in projects that challenge me to embrace the technological, environmental, and societal impacts of our modern world.

Having spent over six years living in New Zealand, I have gained a unique perspective on different cultures and beliefs, which has informed my holistic view of the world. I am eager to continue learning and growing as a designer, and I believe that your companies focus on sustainability and innovation aligns with my goals. I am confident that I can contribute to your team and make a meaningful difference in the world through architecture.

About Work General:

- Waitrose (Shopfloor Assistant) - May 2018 - September 2020

- Waitrose (Shopfloor Assistant (Temporary contract summer and christmas)) 2020 - 2023

- PDSA (volunteer shop assistant) March 2017 - May 2017

- Studio Assistant (helping set up degree show) - April 2021 - May 2021

Architectural:

- Peak Architects - August 2017

- HLM Architects - August 2020

Skills

Photoshop

Illustrator

Indesign

Auto CAD

Adobe PDF

SketchUp

Revit

Enscape

Microsoft

Model Making

M o l l y S m i t h
Takapuna Grammar School (20152016)
17

Turn static files into dynamic content formats.

Create a flipbook
Issuu converts static files into: digital portfolios, online yearbooks, online catalogs, digital photo albums and more. Sign up and create your flipbook.
Smith, Molly by Architecture@LJMU - Issuu