PORTFOLIO Katie Roberts
BA(HONS)INTERIOR ARCHITECTURE

LIVERPOOL SCHOOL OF ART AND DEDSIGN



MAY 2023
LIVERPOOL SCHOOL OF ART AND DEDSIGN
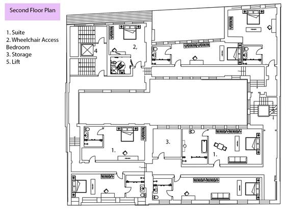
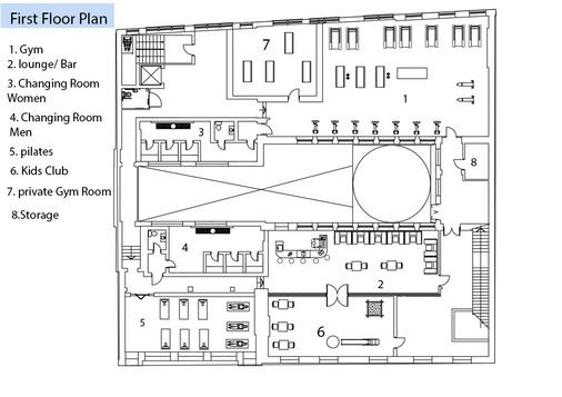
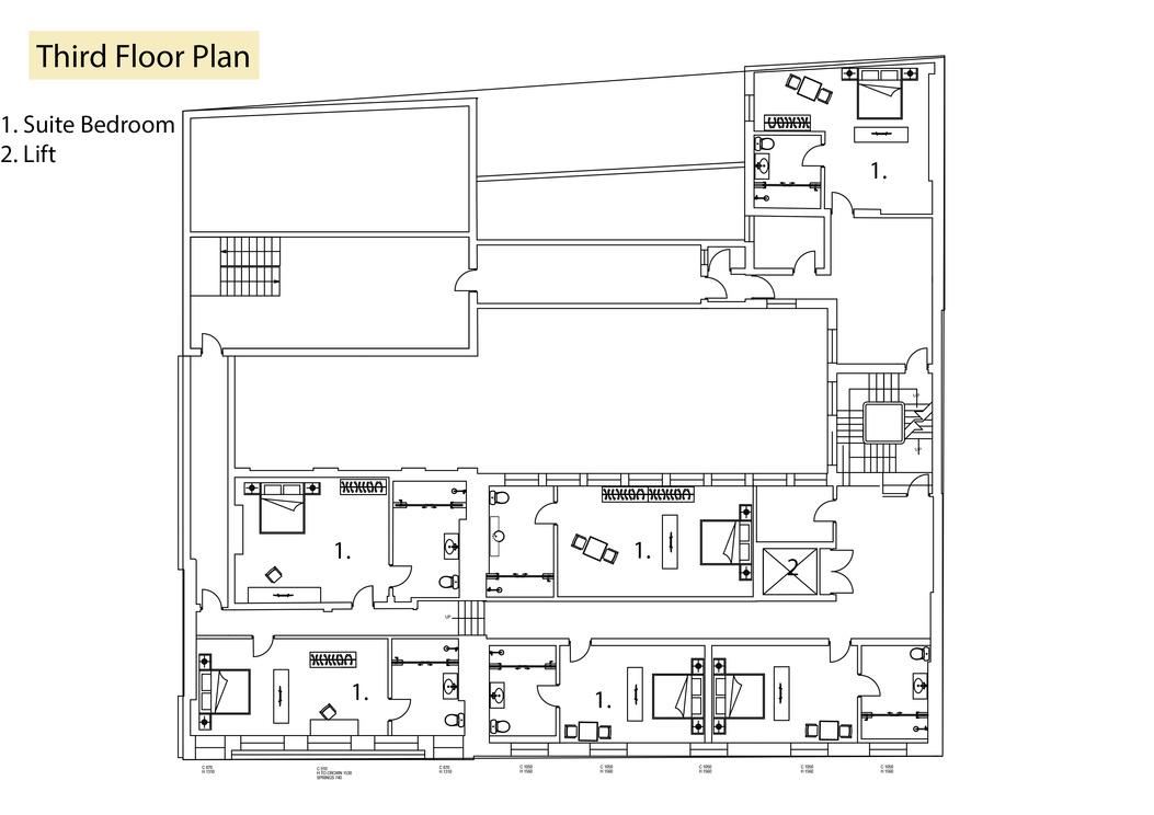
The brief for this design was to create a tale within the uncovered hotel while simultaneously accommodating a 24 hour hotel. The aim of this hotel is to grant hotel guests to appreciate an atmosphere of old-fashioned luxury and adventure into a mysterious world below, that is the speakeasy style bar with the sumptuous building to succeed in the search for escapism and nostalgia