Kernahan, Rafi

Page 1

2024 Portfolio

BA(Hons) Architecture

Liverpool School of Art and Design

Rafael Kernahan

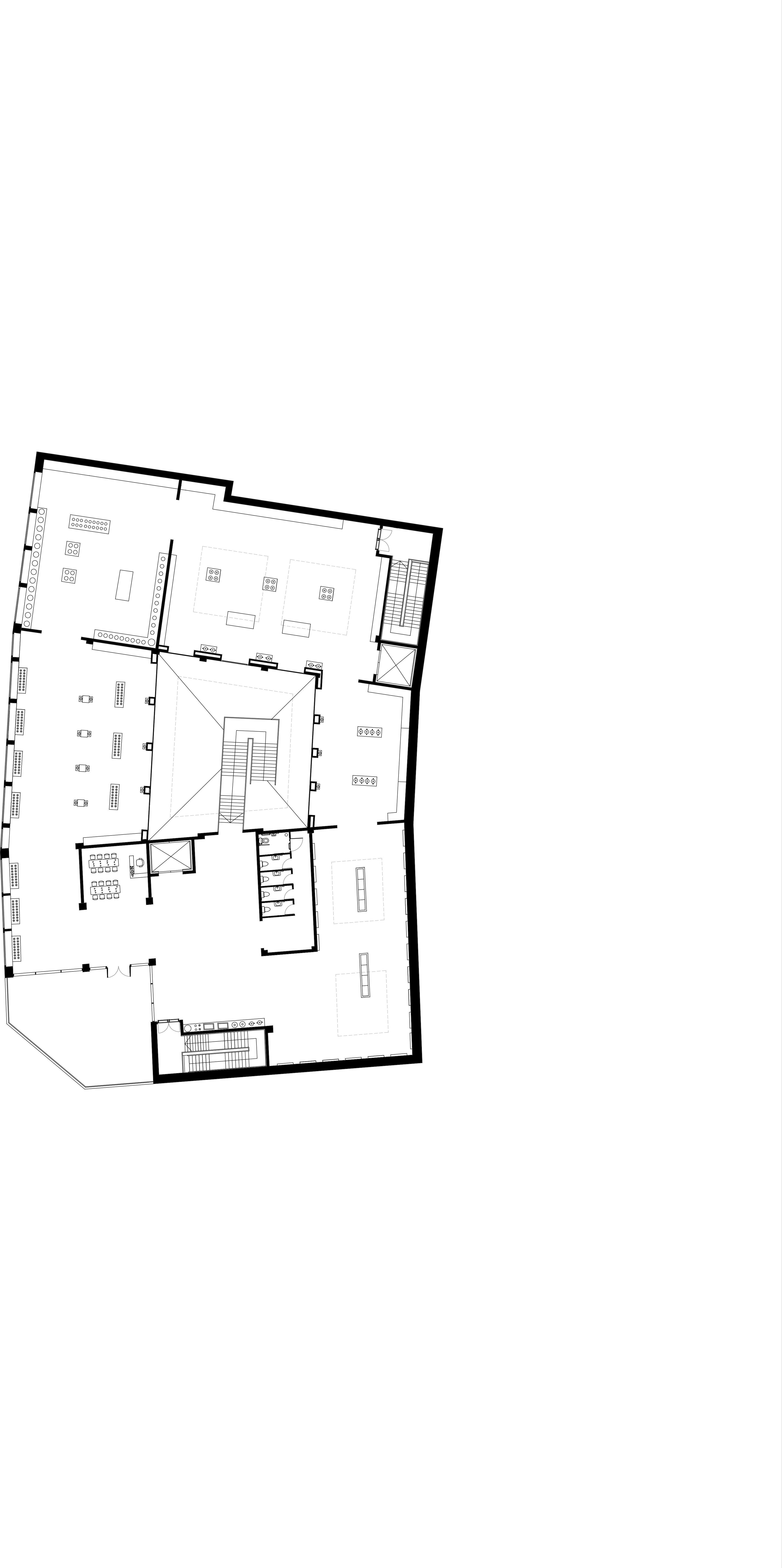
The Della Robbia Pottery Museum

My museum design harnesses natural light to showcase the distinctive shapes, textures, and colours of Della Robbia inclusive atmosphere, catering to both enjoyment and education. Spaces such as interactive pottery workshops

The museum also features a ground floor display hall and pottery garden where visitors' creations itself provides an immersive and social experience, guiding visitors through a deliberate journey

Robbia pottery. Through the strategic integration of interactive spaces and displays, I aim to foster a warm and workshops and Children's Pottery & Nature Prints Classes are designed to promote creativity within the community. are showcased, enhancing the sense of community involvement. The architectural layout of the building that unveils the history and step-by-step process of crafting various Della Robbia Pottery pieces.

1 2 3 4 5 6 7 8 9 10 11 12 13 14 15 14

1.

Intro to Della Robbia Gallery Space
First Floor Toilets
Della Robbia Wall Plaque Space 4. Della Robbia Large Ceramics Space 5. Della Robbia Main Exhibition 6. Della Robbia Plate Exhibition 7. Della Robbia Small Ceramics Space 8. Della Robbia Childrens Pottery & Nature Prints Class 9. Main Lift 10. Terrace Space 1 2 3 4 5 6 7 8 9 10
2.
3.
Larger Pottery Room Main Staircase from Small Pottery Exhibition Space
Roof Detail : 1. Metal coping 2. Block Upstand 3. Surface treatment 4. Waterproof Membrane 5. Vapour barrier 6. Floor screed 7. Pre-cast concrete slab 8. Steel I-beam 9. Internal Sandstone Block 10. Ceiling 11. Timber Stud 12. 100mm Wool Insulation 1 2 3 4 5 6 7 8
Detail :
clip 2.
3.
4. 40 mm Rigid Insulation 5. 100mm Wool Insulation 6. 20mm Sandstone Cladding 7. Wall Tie 8. Internal Sandstone Block 9. Ceiling 10. Steel I-beam 11. Pre-cast Concrete Slab 12. Floor Screed 2 10 11 1 5 6 3 4 7 8 9 10 11 12 Floor
: 1.
Slab 2. Sand Layer 3. Damp Proof Membrane 4. 200mm Insulation 5. Thick
Floor Screed 6. Internal Sandstone Brick 7. Wall Tie 8. 100mm Wool insulation 1 2 3 4 5 6 7 8 12
Floor
1. Terracotta cladding fixing
Sheathing Board
Terracotta Cladding
Detail
Concrete
Concrete

The Windermere Research and Debate Facility

The Windermere Debate and Research Facility is a public building Primarily designed to facilitate political leaders to discuss and to the debate chamber for important meetings.

This Facility has a Library, Tea Room, and a Scientific Research Laboratory inside the main facility, while outside is a sociable courtyard meetings take place. The separate building sectors are designed as a place to brief and meet before going to the debate chamber

and debate how to combat climate change. The separate building sectors are designed as a place to brief and meet before going

courtyard overlooking Lake Windermere which then steps lead to a path to the immersive outdoor debate chamber where the chamber for important meetings.

The sun path has influenced my design in regards to my window placement on the south side of the building making use of the solar energy heating the library space at its peak sunlight hours. The use of curtain walling on the northeast sides of my building has allowed plenty of daylight within the building while creating a view from outside the building for the public walking past and people overlooking the views of Lake Windermere.

Library
5 6 4 2 3 1 7 1: Entrance & Reception 2: Unisex Toilets 3: Library 4: Tea Room 5: Research Laboratory 6: Courtyard 7: Debate Chamber

Turn static files into dynamic content formats.

Create a flipbook
Issuu converts static files into: digital portfolios, online yearbooks, online catalogs, digital photo albums and more. Sign up and create your flipbook.
Kernahan, Rafi by Architecture@LJMU - Issuu