Hettiarachchi, Pramuditha

Page 1

Pramuditha Hettiarachchi

PORTFOLIO 2023

Master of Architecture

Liverpool School of Art and design

About me

I am a post-graduate architecture student currently studying at the Sri Lanka Institute of Information Technology (SLIIT) School of Architecture which is affiliated with Liverpool John Moors University (LJMU) Uk. I am a selfmotivated, energetic, and enthusiastic person who looks for new challenges and capable of producing quality work in busy time schedules’ love to design clean, smart, and effective work that inspires people. I am very open-minded, and flexible at any time.

ii Pramuditha Hettiarachchi 2023 Portfolio
MArch Year 02 Semester 02: Thesis Design Project 01 MArch Year 01 Semester 02: Conservation Project 19 MArch Year 01 Semester 01: Housing Project 37 Curriculum Vitae 59 2023 Portfolio Pramuditha Hettiarachchi iii
Content

THESIS DESIGN PROJECT - SCHIEDAM, NETHERLAND

M.Arch - Year 02 - Semester 02

The primary goal of the thesis project is to create a recreational wellness center that will complement the masterplan's wetland park. Managing the flow of visitors, commuters, and meeting attendees is a vital component of the project because the retreat center is situated in a critical area of our design and so becomes a significant space for the entire urban project. Extensive consideration of circulation and how the retreat becomes an important component of the urban area was one of the design's main concerns. The various steps of the design process are examined in this report, starting with the initial research and concept creation of the brief and moving on to the site analysis and consideration of the smaller aspects and functions that comprise a retreat center.

01 Pramuditha Hettiarachchi 2023 Portfolio
2023 Portfolio Pramuditha Hettiarachchi 02

PROJECT BACKGROUND

• Project name – Retreat Center

• Location – Schiedam, Netherland

• Client – Municipal council of Schiedam

• User – Locals & Foreigners

SITE ANALYSIS

Schiedam is a significant shipbuilding center and is well known for its gin and liquor distilleries. Additionally, it has a broad variety of manufacturing and service sectors. (Industries)

The eight Schiedam windmills are officially the highest classical windmills in the world. Schiedam’s ancient roots have aided in the port's development. All of the marine companies that possess the historic structures have roots in Schiedam and value preserving their cultural heritage.

Here, A community master plan with flood risk reduction initiatives for an underdeveloped peninsula.

Macro Context

Micro Context

03 Pramuditha Hettiarachchi 2023 Portfolio

EXISTING SITE CONTEXT

The location is in Schiedam, Netherlands. In this context, a number of historically noteworthy buildings are observed. The land will be situated near key transportation routes as part of the "RISE 2100" Masterplan, which was designed in the initial urban level research, moving urban residents towards and along the new developments.

2023 Portfolio Pramuditha Hettiarachchi 04

MASTER PLAN

The community master plan includes flood risk reduction strategies for a section of the coastline that requires redevelopment. Outside of the main dike, there is a green edge wetland that occupies 60% of the site's potential and a flood defense strategy that emphasizes regulated retreats and promotes education & biodiversity. The site area will integrate with the nearby amenities to develop a vast network of citywide amenities

05 Pramuditha Hettiarachchi 2023 Portfolio
2023 Portfolio Pramuditha Hettiarachchi 06

▪ The Being a part of the land related to the green belt proposed by the master plan.

▪ Therefore, getting views from all three sides of the site without visual barriers.

▪ Also having water connection on both sides and the front side of the site.

▪ The Selected location is nearby to a main intersection and is easily accessible to the general public while also being in an environment of moderate tranquility.

▪ More connections could be developed between the retreat center and the proposed botanical garden in the master plan, due to its close proximity.

▪ Also is located near the proposed housing scheme, educational, health sector buildings, and cultural hub and therefore, easy to engage the community with a wetland park.

SITE SILECTION
07 Pramuditha Hettiarachchi 2023 Portfolio

Key Words - Sustainable, Therapeutic, Interactive, public space

Main Concerns:

▪ Flood risk

▪ Lack of mental and physical well-being of the community within context.

Solution:

“Retreat center” for the coastal wetland park

Wellness retreats allow any individual, the opportunity for change and self-discovery in an environment that fosters relaxation, and healing.

▪ Can gain deep relaxation and peace.

▪ Refreshing, re-energizing, rejuvenating, and re-empowering.

▪ Creates Sacred spaces with spiritual connections.

▪ Aid to recovery from many illnesses.

The Importance of Retreat

Why is retreat essential? We require time and space for our spirituality, morality, wisdom, focus, and perception of reality to develop. This is not available to us in the typical setting of the twenty-first century. It either causes distraction or sluggishness, and retreat can help us get beyond both. Humans have the capacity for unbounded development, boundless compassion, and wisdom, etc. Retreat thus becomes crucial to facilitating this.

▪ Build a deeper relationship with nature

▪ Retreats provide long-term benefits

▪ Break old habits, routines, and thought patterns

▪ have a remarkable ability to regulate the nervous system and promote relaxation(Yoga)

Main ActivItIes of the proposed retreat center.

This design (retreat center), has four main spaces with different functions. Such as,

Healing garden – heal any individuals through 5 senses – experience the essence of the wetland. Hydrotherapy Center – provides relaxation and wellness through water-related activities. Light and heat therapy center- wellness through light and heat-related activities.

Yoga and meditation center- create a proper platform to uplift the mental wellness of the community.

2023 Portfolio Pramuditha Hettiarachchi 08

CONCEPTUAL IDEA

The majority of people nowadays experience various forms of mental illness and it is detrimental to their daily routines.

To deal with this issue, there must be a means of distancing the human mind from the complex world they must contend with Not only will that suffice, but there should also be a means to reclaim the mental tranquility that has been lost through nature, which is the only source of spiritual purification for humans.

A retreat with a strong connection between the Mind, Space, and Nature is the only way to achieve this refraction of the soul.

How to Achieve Conceptual Idea

Inspiration

▪ Five Elements in Nature

▪ Water, Earth, Fire, Air, and Space are the five primary elements in nature.

▪ Accordingly, the nature-based healing methods include the body and mind interaction with these five fundamental elements. And anyone's physical and mental health are mostly affected by the imbalance of these 5 elements, which results in a variety of issues

09 Pramuditha Hettiarachchi 2023 Portfolio
Serial vision Visual Connection to green belt Visual Connection to water body

CONCEPTUAL SKETCHES

Air - Can feel

Water - Can see/ feel

Earth - Can see/ feel

Fire - Can feel

Space - Can’t see/feel

Here, the Pentagon’s five sides represent the five fundamental elements of nature. The stability of the Pentagon would be destroyed if any of its sides were removed. Additionally, it is a circular process. According to the abovementioned idea, these five elements are interconnected, and if one of them breaks, the stability of nature would also disintegrate

WaterHydrotherapy Center

Earth –Healing garden

FireLight & Heat Therapy

Air –Yoga & meditation center

space Water Fire Earth Air
Air water Earth Fire Space
2023 Portfolio Pramuditha Hettiarachchi 10

FLOOR PLANS

(A) Healing Garden

1) Entry lobby

2) Changing rooms and Locker Room

(B) Hydrotherapy Center

3) Center Pond

4) Outdoor Pool

5) Indoor Pool

6) Sounding Shower Stone

7) Shower Stone

8) Flower Bath 30 deg C

9) Cold Bath 12 deg C

10) W/C

11) Shower Rooms

12) Aromatherapy Rooms

(C) Light & Heat Therapy Center

13) Common Space

14) Common Steam Rooms

15) Private Steam Rooms with attached showers room

16)Private Light Therapy Rooms

17) Shower Cubical

(D) Yoga Therapy Center

18) W/C

19) Yoga Studios

20) Private Yoga Spaces

(A) (B) 10 (D) (C) 2 3 4 5 6 7 8 9 12 11 18 13 14 15 16 17 1 19 20 12 12 12 19 19 20 20 20 20 16 15 15 Y1 Y1 Y2 Y2 11 Pramuditha Hettiarachchi 2023 Portfolio Entrance
Level
Lower
(E) Restaurant Area
21) Restaurant – Kitchen areas
22) Restaurant - Dining Spaces
23) Staff Room
24) W/C
25) Laundry Room
26) Storage Room
27) Staff Room for minor staff
28) Boiler & Service Area
29) Pump & Machine Room
30) Changing Rooms and Locker Rooms
31) Return Lobby
23 24 25 26 27 28 29 30 21 21 31 (E) 22 21 22 22 32 Y2 Y1 Y1 Y2 2023 Portfolio Pramuditha Hettiarachchi 12
32) Exit DoorC

PERSPECTIVES

SECTIONS
Section Y1 – Y1 Section Y2 – Y2
13 Pramuditha Hettiarachchi 2023 Portfolio

ELEVATIONS

Front Elevation Side Elevation
2023 Portfolio Pramuditha Hettiarachchi 14

The Journey begins on the road, where the user first comes across a brick building. Even someone standing on the street can identify it differentiates itself from other buildings because of the pointed space of concrete placed out of it. Users may see what occurs inside by observing through the varioussized glass windows that are designed in the shape of a pentagon that protrudes from the building's front facade wall and by observing the movements of the people in the interior.

A visitor arriving here from the entryway can easily take the wetland's attraction and can feel the surroundings from the light rays that come from the left wall. Two intersecting circles can be seen as you move forward along the ramp. It focuses a strong emphasis on a stunning view of the sea, sky, and marsh. And the interaction between the center, the wetlands, and their activities is represented by this.

Users are motivated to visit the endpoint of the center when they observe the scene. However, there isn't a straight route for it. And it creates a wonderful journey. The healing garden is the first place someone arrives, and the plants there invigorate anyone who visits. And Brick is used as a nature-friendly material within the center. Bricks with a rough texture reflect less light and give the vicinity a warmer feel. Perforated brick walls are used in certain of the surrounding spaces. Consequently, there is a tenuous visual relationship to the wetlands. The user will then come across the changing room and locker room after entering the entry lobby. The central pond will then be seen by anyone seeking to ascend the ramp.

15 Pramuditha Hettiarachchi 2023 Portfolio

The pathways have been designed to allow users to take a moment to rest. According to my concept, it serves as an interactive space for connecting people altogether. And in this center, individuals can acquire mental wellness care in three different methods, and it inevitably develops into an ideal gathering place. And the central pond has been created to come from level 1000mm as well as level 3000mm.

When ascending 2 meters along the ramp from the 1000 mm level, the light that enters the window at the end of the ramp will continue to provide direction. The hydrotherapy center is located on the right side when anyone proceeds in the direction of the light edge.

When anyone enters this area, can see the light streaming directly from the Pentagonshaped window that is observed from the street. As usual, it will direct the pathway. In order to go up the ramp here, the user is able to see the indoor pool first and then the outdoor pool.

The indoor pool has 4 chambers. It varies from one another based on the materials utilized, and the cold bath has water that is 12 degrees Celsius. A natural stone that is affixed to the floor and provides an outdoor sensation is called a shower stone. In the floral bath area, terracotta tiles are also utilized. The visitors can feel different from the fountain's moving water. The sounding shower is the next bathing area, and its floor is made of wood. Due to wood's ability to reflect sound, it is used.

2023 Portfolio Pramuditha Hettiarachchi 16

Then the other side is the place for aromatherapy baths. The outcomes of what occurs inside it will vary depending on the material used there. The aroma therapy rooms have open courtyard balconies with a sill height of 1000mm, then it is possible to have treatments while admiring the surrounding scenery.

The light and therapy area can then be found on the right side when anyone comes along the ramp to the other side. A communal area is in the center, and common steam rooms are placed all around it. Additionally, there are private steam rooms and red and infrared light therapy rooms nearby to the balconies.

When exiting from this area and after ramping up 1,000 mm and turning to the right, users will notice the yoga space. It is situated about 5000 mm above sea level. There are three primary areas for yoga. And also, there are three main studios that adhere to the concept of the yoga of mind, body, and soul. Accordingly, it is made of three separate sorts of material that are distinct from one another. Next to each primary yoga studio are private yoga rooms. And each room has a wide area to capture more views. This is the route that leads to the viewpoint from which the journey began. On the roof, timber strips of various sizes have been used. It gives off an appealing aesthetic and provides the impression that there is plenty more left to explore.

17 Pramuditha Hettiarachchi 2023 Portfolio

The restaurant area is located after the user descends the ramp from the 5000 mm level. There are three different kinds of restaurants. In other words, it fluctuates according to the meal offered and the food style. There, amenities are offered so that anyone can visit the kind of restaurant they prefer and take in the natural beauty of the surroundings.

On the same level, there also exists staff restrooms, a laundry room, a storage area, and a service area, as well as a pathway to return to the locker rooms after completing the journey.

2023 Portfolio Pramuditha Hettiarachchi 18

HERITAGE & CONSERVATION PROJECT- ANURADHAPURA

MArch - Year 01 - Semester 02

This study focuses on the conservation and restoration of the ancient city of Anuradhapura, a Heritage site of architectural and Archaeological value, as well as its sustainability. The preliminary study of the project focuses on the Archaeological and architectural heritage of the "Isurumuniya and Ranmasu Uyana" located within the ancient city limits of Anuradhapura. The main objective of the project is to present a hypothetical strategy for an architectural design solution as an effective archaeological heritage conservation project combining building ruins and landscapes.

19 Pramuditha Hettiarachchi 2023 Portfolio
2023 Portfolio Pramuditha Hettiarachchi 20

PROJECT BACKGROUND

• Project name – Heritage & Conservation

• Location - Anuradhapura

• Client – Archeology Department

• User - Locals & Foreigners

SITE ANALYSIS

SITE IMAGES

PROBLEM IDENTIFICATION

Tourists visiting Anuradhapura are restricted to visiting the Ranmasu Uyana. The main reason for this is that this place does not have a proper understanding and guidance. This is a key factor in interpreting it simply as a place used for bathing by ancient kings. This is mainly due to the lack of a clear understanding of the Ranmasu Uyana and its use of technology in landscaping and architecture in landscaping gardens in Sri Lanka. There is no guide to properly identify the archaeological value here and its uses.

Another factor is the lack of a proper access road to the Ranmasu Uyana. Ranmasu Uyana is located in the northern part of Isurumuniya. The park can be reached by a small road that falls into the Isurumuniya car park area over the Tissawewa bund. However, due to the difficulties encountered on the road and the small space available at the entrance, the number of tourists visiting the Ranmasu Uyana is less. This is one of the reasons why tourists do not pay attention to this ancient land of ancient value. Created with a high level of understanding of the use of technology after Sigiriya, this goldfish garden has begun to gradually depreciate due to improper conservation and failure to preserve its antiquity.

CONCEPT

“ MIRROR THE GLORY ”
21 Pramuditha Hettiarachchi 2023 Portfolio

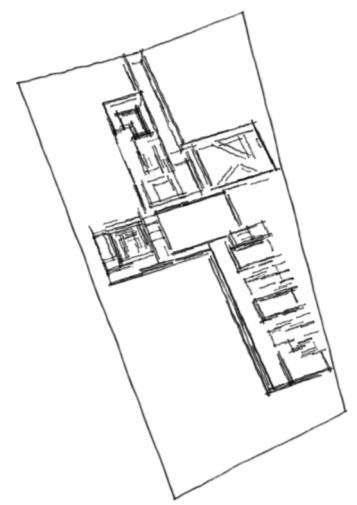
LAYOUT PLAN

( A) PROPOSED AWARENESS BUILDING

(B) POND B/C

(C) POND A

( D) PROPOSED MUSEUM

(E) PROPOSED LEISURE PAVILION

(F) NORTHERN RUINS

( G ) ( G ) STAR
( E ) ( E ) ( D ) ( C ) ( B ) ( A ) 2023 Portfolio Pramuditha Hettiarachchi 22
GATE

PROPOSED AWARENESS CENTER

LOCATION –MICRO LEVEL

23 Pramuditha Hettiarachchi 2023 Portfolio

JUSTIFICATION

This Journey starts in awareness center built at the starting point of the entrance to the Ranmasu Uyana. There, people can be given a basic understanding of the place.

Stones were primarily used for the construction during the Anuradhapura period. It was necessary to show the glory of Anuradhapura stone technology even with this design. This type of box-shaped design was made to show the solid quality of the stones. The building is located at the beginning of a staircase that can be climbed up. The stairs are designed to arouse the curiosity of the visitors as well as to create a sense of enlightenment in their minds. A staircase is used in the design of places of worship such as Mihintale as it is a factor that evokes the concentration of the mind of the visitor and directs the mind towards the design and has been used in the design of the staircase in this building. At the end of the upper staircase is a brick facade. It highlights the ruins of the East, and was built on a ruined part that is not present in the ruins of the East. This design was able to highlight the architectural essence of the Ranmasu Uyana. Also, the main areas within this awareness center are the presentation area / ticket counter and souvenir shop.

Then take people to places with these ruins in the form of a journey.

3D PERSPECTIVE
2023 Portfolio Pramuditha Hettiarachchi 24
SECTION 25 Pramuditha Hettiarachchi 2023 Portfolio
PLANS / ELEVATIONS /SECTIONS

PROPOSED AWARENESS BUILDING

POND B/C Y-Y 2023 Portfolio Pramuditha Hettiarachchi 26

The guests have to walk along the deck to visit the ruins. There, display units installed on this floor provide a basic understanding of the ruins that have to show next

DISPLAY UNITS

27 Pramuditha Hettiarachchi 2023 Portfolio

After that, the mirror glass shows the present ruined buildings looked like in the past.

MIRROR GLASS
2023 Portfolio Pramuditha Hettiarachchi 28

PROPOSED MUSEUM

29 Pramuditha Hettiarachchi 2023 Portfolio
LOCATION –MICRO LEVEL

JUSTIFICATION

In addition, a museum should be set up to house the artifacts found at this site. In that case, it should be made in such a way as to minimize the damage to the ground as the constructions are done on the land of archaeological value.

3D PERSPECTIVE
2023 Portfolio Pramuditha Hettiarachchi 30

PLANS / ELEVATIONS /SECTIONS

31 Pramuditha Hettiarachchi 2023 Portfolio
2023 Portfolio Pramuditha Hettiarachchi 32

PROPOSED LEISURE PAVILION

–MICRO LEVEL 33 Pramuditha Hettiarachchi 2023 Portfolio
LOCATION

JUSTIFICATION

Also need to create a leisure pavilion for people to relax during this journey. There they have to touch the ground of this ancient significance and build that experience so that the feeling can take over. The reason for this is that there is no opportunity to reach the ruins while traveling on the deck There is no opportunity to get down from the deck That is to say, this place allows Them to experience the knowledge gained through the entire tour with Their touch. Here the total cost of making this design can be found by charging a visitor fee from such visitors once people start to be attracted to this place.

3D PERSPECTIVE
2023 Portfolio Pramuditha Hettiarachchi 34
POND B/C
PLANS / ELEVATIONS /SECTIONS SECTION 35 Pramuditha Hettiarachchi 2023 Portfolio
POND A

PROPOSED LEISURE PAVILION

X-X 2023 Portfolio Pramuditha Hettiarachchi 36

HOUSING PROJECT- COLOMBO 10

MArch - Year 01 - Semester 01

In this project we have to housing neighborhood. Housing is a basic need for humans. family life & relationship are fostered bonds between family members at home while the communities are based on the housing neighborhoods. The objective here is to design a housing neighborhood for people for certain economic class in a given site in Wanathamulla, Colombo 10. The total project will cater 200 housing units and commercial activities.

37 Pramuditha
Portfolio
Hettiarachchi 2023
2023 Portfolio Pramuditha Hettiarachchi 38

PROJECT BACKGROUND

• Project name – Community Housing

• Location – Wanathamulla, Colombo 10

• Client - Government

• User – Middle income government officers

SITE ANALYSIS

JUSTIFICATION

Many of the housing projects introduced by previous governments before the lower income category have been provided with housing after a certain amount of valuation. There the value of those houses had to be paid in installments If such a lower income project is carried out on such a valuable land, the value of that land will also be added to the houses being built here What happens there is that the problems of those lower income people get worse. There they start making money even though they are doing various anti-social work. What is happening is that the housing schemes designed to uplift the living standards of the poor and uplift the living standards of the people are further degrading their living standards.

There I considered who really needed this housing scheme. What I found there were more than 20 government agencies located within 5km of the site. Overall, the majority of these public servants belong to the professional category. 30% as a percentage. 20% of it belongs to the western province. 9% of them have permanent housing in Colombo. The remaining 11 percent may be temporarily residing in Colombo. Or some may come from homes in their outlying areas. Either way, it is a waste of money and time for those public servants.

As a result, they become mentally and physically unhealthy. So, all they have to do is build houses so that they can easily go to their place of work.

39 Pramuditha Hettiarachchi 2023 Portfolio

A scattered mind caused downgraded Mental health

CONCEPT

In the middle class most of the times both mother & father are breadwinners. Which results them both with busy lives and less chance to interact with each other.

It also increases stress

An environment that is stress free & allow the busy people to interact more. Views and environment related gathering places are provided in order to calm their minds which will allow them to interact more & Strengthen their bonds.

INTERCONNECTION for strengthen the bonds

INSPIRATION Pattern of woven fabric

PROBLEM IDENTIFICATION
2023 Portfolio Pramuditha Hettiarachchi 40
41 Pramuditha Hettiarachchi 2023 Portfolio
GROUND FLOOR
2023 Portfolio Pramuditha Hettiarachchi 42 FIRST
FLOOR
SECOND FLOOR 43 Pramuditha Hettiarachchi 2023 Portfolio
THIRD FLOOR 2023 Portfolio Pramuditha Hettiarachchi 44
FIRST FLOOR SECOND UNIT FLOOR PLANS 45 Pramuditha Hettiarachchi 2023 Portfolio
FLOOR THIRD FLOOR 2023 Portfolio Pramuditha Hettiarachchi 46
47 Pramuditha Hettiarachchi 2023 Portfolio
SECTION X-X 2023 Portfolio Pramuditha Hettiarachchi 48
49 Pramuditha Hettiarachchi 2023 Portfolio
SECTION Y-Y 2023 Portfolio Pramuditha Hettiarachchi 50

3D PERSPECTIVES

FRONT ELEVATION HEALING

GARDEN
51 Pramuditha Hettiarachchi 2023 Portfolio
VIEW A VIEW VIEW ANGLE “ A “ VIEW ANGLE “ B “ VIEW B VIEW C
2023 Portfolio Pramuditha Hettiarachchi 52
VIEW ANGLE “C “

ENVIRONMENTAL STUDY

AMBITION

According to the user category of this design, one of the design problems that I found to be related was the declining mental level of the people. The main purpose of this design was to find a solution to that problem. This is designed so that views are not blocked to solve the problem. The use of louvered swing windows allows for better ventilation inside each unit through cross ventilation, and the windows and light well are designed to allow light to enter each individual unit. Therefore, a good thermal comfort is created inside the building. There, the use of such environmental strategies raises the mental state of the people and thereby improves the quality of life.

SITE ANALYSIS

Plumbing Room

Plumbing Duct & Light well

Solar maintenance Room

Generator Room

Garbage chutes

Morning Direct sun 8 am

53 Pramuditha Hettiarachchi 2023 Portfolio

RESOLUTION OF BUILDING SERVICES

Water supply - Water from the Drainage Board is used to meet the water requirement. The water coming from the road through the pipes is stored in a sump and the pressure pump is used to carry the water collected in the sump to the overhead tank at the top of the building. The water is distributed to all the units through pipes passing through the overhead tank.

Waste water recycling - Due to this design, a large area of land is allocated to the landscape area and a large amount of water is required to maintain it. There, this wastewater management is an important aspect that needs to be looked at critically. If this wastewater is used for maintenance without treatment it can be harmful to living organisms in the land. Therefore, the wastewater should be transmitted through anaerobic filters for treatment and then discharged into the environment.

Roof drainage & rain water harvesting- Here a rainwater harvesting system can be used to collect and store rainwater and reuse it. In this design, the collected rain water can be used for supply water to plant tuff and the toilet flushing system. The water collected on the roof of the apartment complex is piped to an underground tank below. The water in the sump is then pumped through a pipe to the units on each floor.

Waste management - The collection of organic waste and solid waste is done through the Colombo Municipal Council There are common spaces in this design where the organic waste & solid waste are placed in the garbage chutes installed near the lift lobby so that they go through the pipe of the garbage chutes into a room on the ground floor. The location is easily accessible to the municipal council vehicle.

Energy supply – The basic electricity requirement is provided by the Electricity Board. The solar panel on the roof of the housing complex also supplies electricity to the housing complex.

Day time 12 pm Evening Direct sun 4 pm 2023 Portfolio Pramuditha Hettiarachchi 54

STRUCTURE AND FACADE STUDY

AMBITION

When constructing a building in such an urban environment where the natural environment is severely affected, the damage to the environment should be minimized as much as possible. Also, the structure should be designed to be easy to build and durable. Therefore, when considering the structure, it should be constructed to suit the context.

55 Pramuditha Hettiarachchi 2023 Portfolio

TYPICAL THIRD FLOOR

INTEGRATION OF BUILDING STRUCTURE INTO DESIGN

TYPICAL SECOND FLOOR

TYTPICAL FIRST FLOOR

Substructure - The substructure is the lowest part of the building that transmits the entire weight of the building. Here the nature of the soil and the bearing capacity of the soil should be taken into consideration while selecting the substructure. There pile foundation and raft foundation were used for the substructure of this design. This structure was used as a remedy because the t18 / t20 ‘watta’(slums) near the site was submerged in water and it was assumed that the soil moisture was high However, the pile / raft foundation used that structure due to its high load bearing capacity.

TYPICAL GROUND FLOOR

Super structure - Basically the super structure consists of a 300 * 300 column base structure. Also, the floor of this structure is made of rcc concrete, and all the walls here are made of compressed stabilized bricks. Its windows and doors are made mainly of materials such as steel and timber.

2023 Portfolio Pramuditha Hettiarachchi 56

FACADE STUDY

AMBITION

The aim was to provide a natural healing effect to the occupants of the home, while preserving their privacy and giving them a greater view of the environment.

This avoids direct sunlight and direct wind flow. Also, the vines around the vertical blind give the viewers a natural healing effect.

1000mm high half wall around the cantilevered balcony protects the viewers privacy and allows viewers to view maximum views. Also, the flower trough around the balcony tries to bring naturalness into the house.

The aluminum swing window consist with double glazed glass. So, it prevents the heat come into house. it only allows light enter to the house.

Lastly there is a 225mm thick wall coated with weather shield paint to protect it from the rain.

( A) Vertical Blind (B) Balcony
(C) Aluminum Swing Window 57 Pramuditha Hettiarachchi 2023 Portfolio
(A) (B) (C)

PLANT VINES

50mm x 40mm

ALLUMINIUM BOX BAR

300mm DEEP FLOWER THROGH

225mm BRICK WALL

ALUMINIUM LOUVER WINDOW

12mm THK DOUBLE GLAZED GLASS WINDOW

DETAIL SECTION 2023 Portfolio Pramuditha Hettiarachchi 58

CURRICULAM VITAE

EDUCATION

2022 -2023 Liverpool John Moores University – UK (LJMU)

2021 - 2022 Sri Lanka Institute of Information Technology (SLIIT)

2017 – 2020 Sri Lanka Institute of Information Technology (SLIIT)

BSc (Hons) Architecture with a First Class awarded by Liverpool John Moore's University

2010 – 2012 Dharmapala Vidyalaya Pannipitiya – Sri Lanka

1999 – 2009 Boys School Malabe – Sri Lanka

WORK EXPERIENCE

2019 – 2020 TWA Associates – Intern (12 months)

2020 – 2021 Daminda Prasad Charted Architects – Intern Architect (9 months)

LANGUAGES

SINHALA ( FLUENT)

ENGLISH (FLUENT)

59 Pramuditha Hettiarachchi 2023 Portfolio
SOFTWARE SKILLS Traveling Photography Cycling Rendering Lumion Enscape Email – pramudithahettiarachchi@gmail.com Contact Nos - +447392856677 /+94112562066 2D Graphic Autodesk Auto CAD Adobe Photoshop Adobe Illustrator 3D Modelling Sketchup Autodesk Revit INTERESTS CONTACT 2023 Portfolio Pramuditha Hettiarachchi 60

Turn static files into dynamic content formats.

Create a flipbook
Issuu converts static files into: digital portfolios, online yearbooks, online catalogs, digital photo albums and more. Sign up and create your flipbook.