Ashworth, Fin

Page 1

FINLAY JOSEPH ASHWORTH

2023 Portfolio

BA(Hons) Architecture

Liverpool School of Art and Design

BA YEAR 3 SEMESTER 2

- COMPREHENSIVE DESIGN PROJECT

BA YEAR 3 SEMESTER 1

- WEATHER OR NOT

BA YEAR 2 SEMESTER 2

- EXPLORATIVE PROJECT

CURRICULUM VITAE

CONTENTS

BA YEAR 3 SEMESTER 2

COMPREHENSIVE DESIGN PROJECT

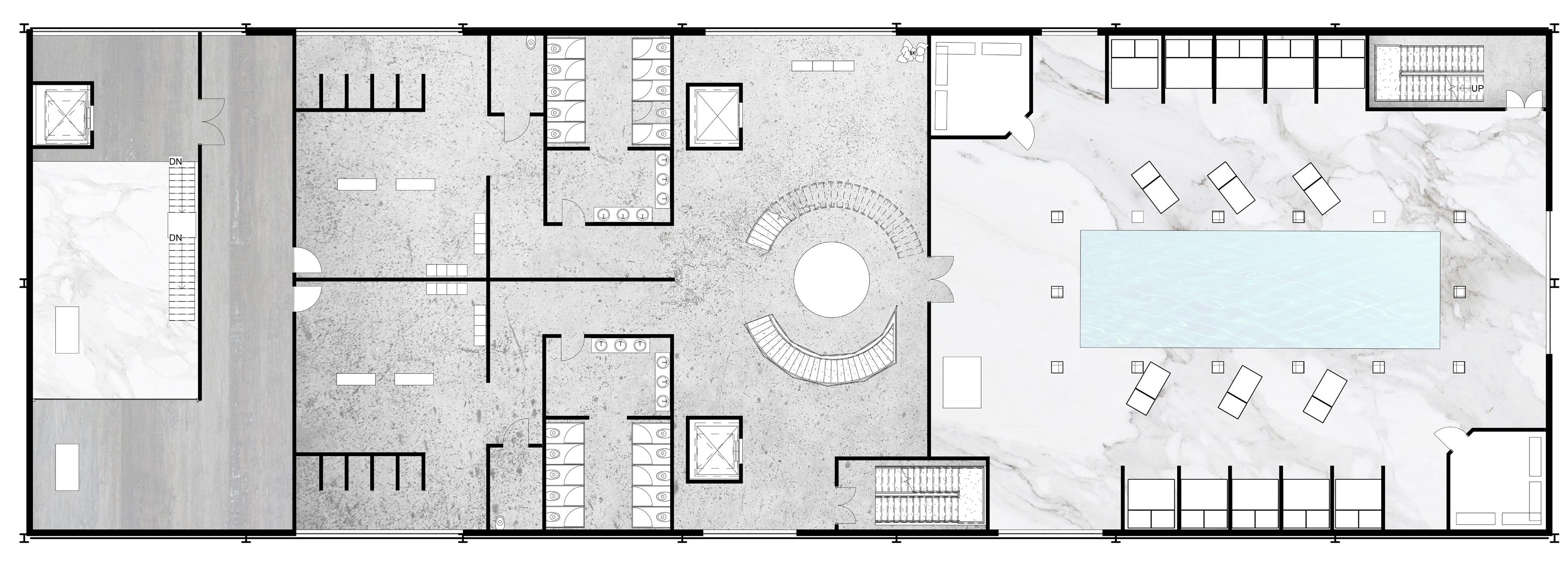
H20

BRIEF

The Dockhouse Spa is located at Princes Dock, Liverpool. Incorporating three traditional spa cultures: Japanese, Roman and Finnish, the building is encased in a steel lattice frame which is externally visible to emphasise the bridge structure placed on the existing dock. Thus creating a contrast between classic and modern, whilst keeping an industrial feel to the scheme. The design also features a main circulation space, with two glazed oculi cutting thought the heart of the building. The project aims to bring new life to the site whilst maintaining the history that comes with it.

SITE ANALYSIS

FIGURE GROUND TRANSPORT LINKS SUN PATH INLAND/SEA WATER

DESIGN DEVELOPMENT

The spa is a metaphor of the movement from above ground to below ground. Encapsulated within a simple cuboid is a complex spacial jouney through three bathing cultures.

SECOND FLOOR (JAPANESE ZONE)

FIRST FLOOR (ROMAN ZONE)

GROUND FLOOR (FINNISH ZONE)

DETAILED SECTION

ELEVATIONS

3D MODEL

RENDERS

TECHNICAL STUDY

BA YEAR 3 SEMESTER 1

WEATHER OR NOT LAKESIDE

OPEN SPACE NETWORK
WINDERMERE
LAKE
SITE SITE ANALYSIS
FIGURE GROUND ROAD & PATH NETWORK

DESIGN DEVELOPMENT

3D MODEL
ROOF
PLAN

FLOOR PLANS

SECTIONS

ELEVATION

TECHNICAL STUDY

BA YEAR 2 SEMESTER 2 EXPLORATIVE PROJECT 3 STORYS

SITE ANALYSIS

DESIGN DEVELOPMENT

3D MODEL

FLOOR PLANS

SECTIONS

RENDERS

TECHNICAL STUDY
CURRICULUM VITAE FINLAY JOSEPH ASHWORTH 2023

CONTACT DETAILS:

Oak Cottage, Overton Road, Marchwiel, Wrexham, LL13 0TE

Email: finlayashworth@hotmail.co.uk

Phone: 07935482644

PERSONAL PROFILE

I am a creative final year Architecture student with a desire to design innovative, sustainable buildings. Throughout my studies I have developed strong technical skills using software such as AutoCAD, InDesign and Revit as well as traditional sketching, drafting and model-making techniques. I am a proficient communicator, able to work effectively in teams to find solutions to complex design challenges. I look forward to collaborating with clients and colleagues in professional practice in the future.

EDUCATION & QUALIFICATIONS:

2020 - 2023 (tbc): Liverpool John Moores University, BA (Hons) Architecture

2018 - 2020: The Maelor School, Penley.

Level 3 Qualifications - A*, B, C (Art, Business, Welsh Baccalaureate)

GCSE Grades - 10 passes (including Maths and English)

SKILLS:

- Design - proficient in designing and creating architectural solutions through practice, experimentation, and critique.

- Technical - confident in the use of a range of design software packages (AutoCAD, InDesign, Revit).

- Communication - clear and confident communicator with the ability to collaborate with clients, colleagues and other professionals involved in the design and construction process.

- Problem Solving - Good critical thinking skills and the ability to work independently to design innovative solutions.

INTERESTS:

I have played competitive football from a young age and currently play Futsal for a local team. I also play squash and coached younger players at my local club as part of my DofE volunteering. I enjoy travelling to observe the diverse array of architectural styles and influences around the world. I have also been on several ‘Architecture’ trips with academic staff including London and The Lake District to research the development of urban architecture and sustainable design.

EXPERIENCE:

Greenspace Architects, Ellesmere, Shropshire - As an advocate for sustainable design, I was able to learn how to incorporate sustainable materials and energy efficient strategies into real world designs at this eco-architectural practice. I worked collaboratively with experienced Architects and a placement student to further develop my understanding of design principles.

Harrison Ince Architects and Interior Designers, Manchester - Here I experienced the collaboration between Architects and Interior Designers when working on major projects for commercial clients. I was able to contribute to design concepts and given the opportunity to present my designs to the team.

EMPLOYMENT:

2022 - present: Groundsman, Moreton Hall, Oswestry, Shropshire. My role involves working as part of a team to maintain the sports pitches and grounds around the school buildings to a high standard.

Previous Employment:

Part-time bartender at ‘Stonehouse Brewery’, Oswestry.

Part-time outdoor assistant at Stan’s Superstore, St Martins.

Part-time kitchen porter at The Boat Inn, Erbistock.

REFERENCES:

Available on request.

Turn static files into dynamic content formats.

Create a flipbook
Issuu converts static files into: digital portfolios, online yearbooks, online catalogs, digital photo albums and more. Sign up and create your flipbook.