PORTFOLIO
EDITH HERNANDEZ
bygningskonstruktør │architectural engineer
https://dk.linkedin.com/in/edithhernandez │ https://issuu.com/archiehg/docs/eh_portfolio
![]()
bygningskonstruktør │architectural engineer
https://dk.linkedin.com/in/edithhernandez │ https://issuu.com/archiehg/docs/eh_portfolio
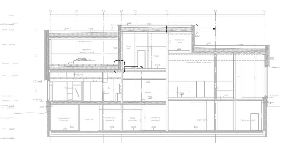
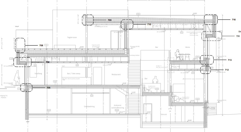
Udførelsesfasen • Service Provider • Projektleder / KMA – Brennum Park 25L, Hillerød År 2023 - nuværende • Areal 65.000 kvm • 15,9 mia • Pharma produktionsfaciliteterne
Arkitema │ COWI │ Exyte - Rådgiver│ Tscherning - SP
https://www.novonordisk.com/careers/career-areas/manufacturing/novo-nordisk-hillerod.html
About the project: Site Expansions
NN-Site 25L, Hillerød is an undergoing significant development in these years. By constructing several new facilities and expanding the existing production facilities at the site. In this context, it is also upgrading the energy supply and the traffic infrastructure, as well as securing the production facilities against damage from heavy rainfall.
G. Tscherning S/A.
Danmarks Grønne Entreprenør arbejder vi konstant med udviklingen af bæredygtig adfærd og cirkulær økonomi som forretningsområde.
Mineopgaver –somprojektleder
• Planning og koordineringsmøderne – interne, rådgiveren og bygherren
• Kontrol af tilbudsliste og indkøb af materialerne af opgaverne i gennem projektets tidligere faser til udvendige områder (Laydown areas).
• Registrering, dokumentations billeder og journalsrapport
• Kick-off møderne, intro til systemet og projektsretningslinjer (appendix 8) til UE
• Ansvarlig for at sætte i gang UE til bl.a. udgravarbejde, vinterforanstaltninger, afspærringsområder, EL og lysmasterne, VVS, interimsvarme, interimslukning, dækning af betonstrapper in-situ.
• Udarbejdelse af – Risk Assessment & Method Statement (RAMS ) og Permit to Work (PTW )
• Ansvarlig for dokumentationen - Exytes Audit 20232024
Mineopgaver – somKMA(B)
• WBM, tilsynsrunderinger
• Planning og koordinering sammen med supervisorer, formændene
• Kontrol og rapporter af near miss (uforudset hændelse)
• Udarbejdelse / tilsynet af Safe Plan of Action (SPA)
• Ansvarlig for Toolbox-talk (TBT) til ca. 67 GO’s, drivers og funktionær på byggepladsen
ITværktøjer:
• EIDA Systemet, Dalux,Construction Site Management,
• NN - Exyte’s sharepoint (EAR, MR, RFI’s, Correspondence)



Projektforslag • Udbudsmaterialet • Bygherrerådgivning – Nuuk, Grønland
År 2023 • Areal 1000 m² • Erhverv • Janina Zerbe, kreativ partner
https://khr.dk/projekter/restaurant-i-nuuk/
Deskription:
Et nyt erhvervsbyggeri til restaurant og butik er under opførsel centralt i Nuuk. Bygningen er tegnet af KHR og kommer til at huse en skøn restaurant med en fabelagtig tagterrasse og et butikslokale til udlejning. KHR er arkitektrådgiver for hele projektet, der ud over arkitekturen også omfatter design af specialfremstillet inventar og indretning af restauranten, der skal åbne senere i år.
Mine opgaver:
• Koordineringsmødet og ansvarlig for referaterne
• Bygningsdelsjournal fra normalkonstruktionsliste
• Udarbejdelse af konstruktionsdetaljer 1:5
• Ny opsætning af NIVI-projekt fra AutoCAD filerne til KHR – Revit layout og projektstruktur: projektviews, tegninger, browser-group, worksæts
• Planlægning, kontrolliste og detaljeroversigtsplan af Call-outs, U/I, L/V
• KS-Kvalitetssikring af detaljerne i 2D
• KS- Kvalitetssikring af hovedprojekt/ udbudsmaterialet, sammen med projektlederen
Jeg brugte:
• Revit 2022 – detaljerne i 2D
• Sketchup – udtræk og konvertering til AutoCAD-fil
• AutoCAD – plan- og facadetegninger













Konkurrenceforslag • Bygherre: SBH Schulbau Hamburg – Hamburg, Tyskland
År 2022 • Areal 14 000 m² • Uddannelse • Mikkel Beedholm, arkitekt og kreativ direktør
https://khr.dk/projekter/campus-hafencity/

Deskription:
HafenCity i Hamborg er en populær ny bydel, som er skudt op de seneste år. En ny 8-sporet videregående skole og daginstitution skal dække det hastigt voksende behov på uddannelses- og pasningsområdet. Samtidig skal skolen efter skoletid være et samlingssted for lokalsamfund og foreningsliv.
KHR Architecture var som ét af 12 hold udvalgt til at deltage i en lukket arkitektkonkurrence for det prestigefulde byggeri
Mine opgaver:
• Ansvarlig for opsætning af planerne i AutoCAD af facaderne fra SketchUp, med konkurrences – layout og projektstruktur
• Krav: Bruttorauminhalt (BRI) oberirdisch, Konstruktionsart/ Bauweise, Fassadenmaterial, Farbgebung der Fassade
• Data-beregning af facadernes arealer / m2
• Data-beregning af typer af materialebeklædninger
• Dataregistreringen i Excel-generalskema til konkurrencen
• Ad-hoc opgaver vedrørende konkurrencen
Jeg brugte:
• Sketchup – udtræk og konvertering til AutoCAD-fil
• AutoCAD – facadetegninger
• Excel-generalskema til konkurrencen


Arkitektkonkurrence 2020 • Bygherre: HOWOGE – Berlin, Tyskland
År 2022 • Areal 19 875 m²
• Uddannelse • Mikkel Beedholm, arkitekt og kreativ direktør
https://khr.dk/projekter/schule-am-breiten-luch/




Deskription:

Skolen ”Am Breiten Luch” er resultatet af en arkitektkonkurrence om at udforme en integreret skole til 725 elever i bydelen Lichtenberg i Berlin. Skolen udformes efter et såkaldt Compartment-princip med små skoleenheder i skolen. Der skal integreres to sportshaller på en forholdsvis lille grund, hvor der er kraftig støjbelastning fra både en stor vej og et banelegeme. Dertil kommer en vandledning på tværs af grunden, som skal holdes fri for byggeri, hvilket har krævet en anderledes måde at organisere byggeriet på. Skolen åbne i sommeren 2025..
Mine opgaver:
• Ansvarlig for udarbejdelse af BIM-modellenEL- Loftplanerne. Koordinering med ELingeniørernes planer og efter design manualen ifh af design lysarmaturer, osv.
• Ansvarlig for opdateringen af projektmappe, tegninger, pdf-filerne og kommunikations e-mail mellem Danmark og Tyskland
• KS-Kvalitetssikring af projektet, sammen med BIM-Manager og projektlederen i DK
Jeg brugte:
• Revit 2022 – BIM-modellen
• Sketchup, In-Design

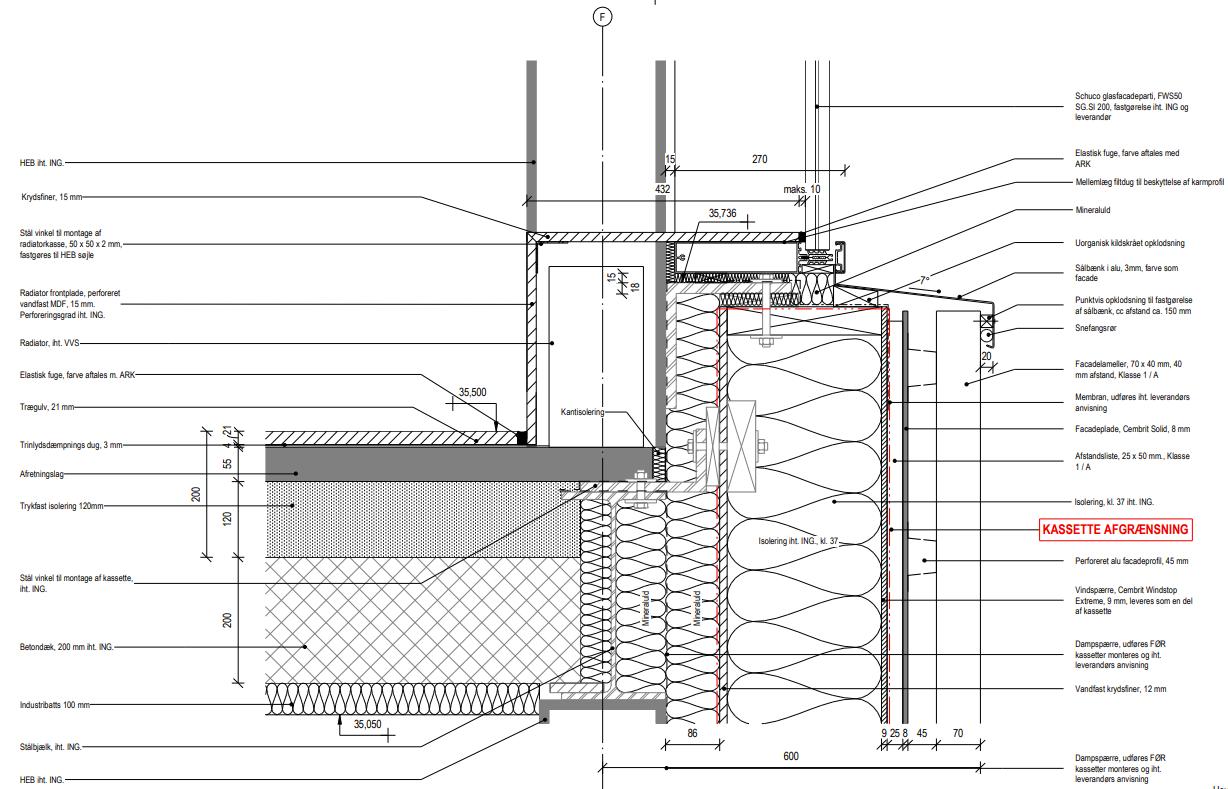
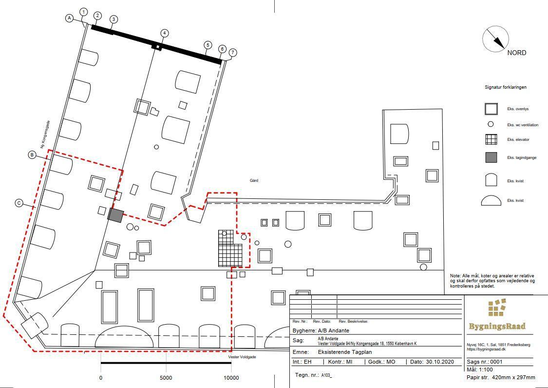
Bygherre: A/B Andante • Rådgiver: BygningsRaad • Rådgiver Ingeniør: Ingholt Consult
År 2020 • Areal 732 m² • Københavnertag • Vester Voldgade 94 • København V
https://bygningsraad.dk/renovering/
Deskription:
I forbindelse med projektet, den er tagrenovering på et Københavnertag 732m² til A/B Andante ejendommen, ved Ny Kongensgade 18 og Vester Voldgade i København.
BygningsRaad bygherrerådgiver, repræsenteret af byggetekniskrådgiver Morgan Nilsson og bygningsrådgiver Mikkel Petersen, og samt med Claus Jensen og Rasmus Toppel, rådgivende ingeniør fra Ingholt Consult. Byggesagen omfatter renovering af konstruktionstag inkl. nye tekniske installationer, energioptimering på taget og de eks. kvister, ny tagdækning i tagpap på den flåt side, tagpap/naturskiffer på de skråsider, og efterfølgende nye ovenlys, ventilationsanlæg og elevators huset.
Tagkonstruktion (Københavnertag):
Historikken viser at taget på ejendommen er blevet hævet i 1968, hvor man har fjernet de eksisterende trempel-spær, der lå ud mod Ny Kongensgade og Vester Voldgade Dette har svækket tagkonstruktion en del. Det betyder, at hvis man skal etablere større huller (kviste, Velux), så skal der ske stålforstærkninger på konstruktionen.





Mine opgaver:
• AB Andante- koordineringsmøder og referater
• Registrerings måler, billeder af eks. forhold og planer
• Ny tegningsmaterialet og projekts dokumenter: tagplan, konstruktions detaljer 1:5, situationsplan og byggeplads generelplan til PSS
• Projektplanlægning og projektbeskrivelse
• Udbudsbrev
• Tilbudsliste
• Udbudstidsplan
Andre opgaver:
• BygningsRaad – Ny tegningslayout og title block i AutoCAD og Revit
• Udarbejdelse af dokumentskabeloner til: udbudsbrev, tilbudsliste og udbudstidsplan
Jeg brugte:
• AutoCAD – Eks. tagplan
• Revit 2022 – 3D-model af træspær
• Sigma og MS-projekt - Omkostning og tidsestimering




Bygherre: A/B Nest • Rådgiver: BygningsRaad • Entreprise: Byens Tag & Facade
År 2020 • Areal 600 m² • Facaderenovering • Niels Ebbensens Vej / Svend Trøsts Vej • Frederiksberg https://bygningsraad.dk/renovering/
Deskription:
Totalfacaderenovering og vindueskiftning projekt omfatte udbedring af skader i bygningens murværk, gesimser og sokler,
Med rettidig handling skal forstås, at renovering af facader kan forebygge sådanne skader på både murværk og sokkel, som altså ganske effektivt gør ejendommens facade mindre eksponeret for skader.
BygningsRaad rådgiver i samarbejde med Byens Tag & Facade entreprenøren, som udfører alt inden for malerarbejde og murerarbejde –herunder renovering af facaden som efterfølgende af tidligere tagrenovering i 2020.
Til den alsidig facaderenovering benytter entreprenøren udelukkende produkter af højeste kvalitet og specialsprøjter fra Rockidan, som er både støv- og tågefri. Facaderenoveringen har inkluderet naturligvis nye fuger samt udbedring af eventuelle skader. En anden opgave entreprenøren havde stået for var at fjernet graffiti på facadens murværk og sten, lige på hjørnet af Svend Trøsts Vej, som det kan ses på den første billedet af den eksisterende forhold
Mine opgaver:
• Koordineringsmødet – BygningsRaad og Byens Tag & Facade entreprise
• Ansvarlig for registreringsbilleder og mødereferater, vedrørende udførelsen af facaderenoveringen hver uge
• Tilsynet
Jeg brugte:
• AutoCAD – Tegninger
• Sigma og MS-projekt til omkostning og tidsestimering






Indledende designprojekt • Bygherrerådgivning • Gladsaxe
År 2016 • Areal 600 m² • Uddannelse • Lars Clausen, partner
https://www.nsark.dk/projekter/daginstitutioner
Deskription:
Formålet med projektet er at opføre en ny Fritidsklub på Vadgård Skole i Gladsaxe kommune.
Tjenester
Indledende designprojekt.

Mine opgaver:
• Plantegninger, facader, ny indgang og forlængelse af eks. gangforbindelse til den eksisterende klassefløj
• Indledende præsentation i 3D Revit – model og rendering
• Udvælgelse af byggematerialer til loft, vægge, gulve og lysarmaturer
• Rum visualiseringer
• Koordinering med producenterne og konsulenter bl.a. Troldtekt, Moelven, Armstrong, Fagerhult
Jeg brugte:
• AutoCAD – Tegninger
• Revit 2016 – model
• In-Design - Projektpræsentation






Occupied Renovation • Seismic upgrade • Interior remodel • New entry • Inglewood, CA
Year 2012 • Areal 120000 sf • Healthcare • Client: Prime Healthcare
https://www.hed.design/
Overview:
https://americanbuildersquarterly.com/2015/puchlik-design-associates/ Puchlik Design Associates, today as HED.
A complete detailed Master Plan to facilitate the hospital's plans for future growth and expanded services beyond 2030.
Resulting improvements
Seismic improvements to four of the ten buildings and redesign of the Main entry with a new canopy and landscaped gardens. A new electrical infrastructure for the entire campus. Relocation and redesign of the executive administration offices. Laboratories in its entirety; remodel /expansion of the emergency department; and removal of noncompliant buildings and site improvements.
Seismic improvements featured a new Tubex Pile structural foundation system, a solution never utilized in any hospital in California within OSHPD jurisdiction. All construction took place while the hospital was fully occupied and operational including active surgery on the floors immediately above.
My assignments
• Registration of the existing equipment at the laboratories, patient rooms, surgery rooms, and administration offices.
• Registration measurements and photographs of the existing designated areas.
• New plans from archiving drawings, and existing AutoCAD files.
• Construction documents, FF&E plans and details - AutoCAD 2D
• Presentation boards of material finishes, and lighting fixtures.
• Assisting in the supervision of the construction of designated areas: Patient rooms, surgery rooms, emergency area, admitting area, and administration offices.


• The team used Revit og 3D Max – Rendering and project presentation
• I used AutoCAD – Tegninger og detaljer in 2D,
• In-Design – Design manual


A tenant improvement • Interior remodel • Glendale, CA
Year 2011 • Areal 1800 sf • Healthcare • Client: Adventist Health Glendale https://www.healthdesign.org/about-us/our-members/corporate/puchlik-design-associates-inc-pda

Overview
A tenant improvement/ Interior remodel
Objective/Solution
Create an upscale hallmark facility utilizing dual design components for two services. The overall design evokes an upscale sense of calm through curved hallways, ample day lighting, elegant artwork and custom mosaic glass tiling.
Services
Master planning, programming, interior design, design, and construction administration.
Awards/Distinctions
Featured in Healthcare Design Magazine, Nov. 2011
My assignments
• Interior design concepts
• Construction documents, and details in AutoCAD– 2D
• Assisting on material finishes and fixtures selection
• Project presentation material boards
• The team used Revit og 3D Max – Rendering and project presentation
• I used AutoCAD – Tegninger og detaljer in 2D,
• In-Design – Design manual


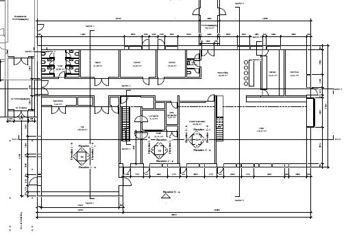
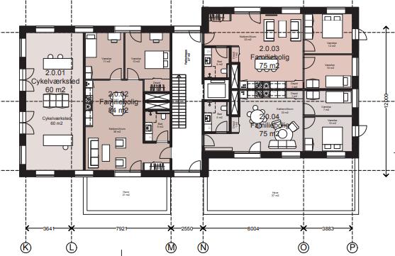
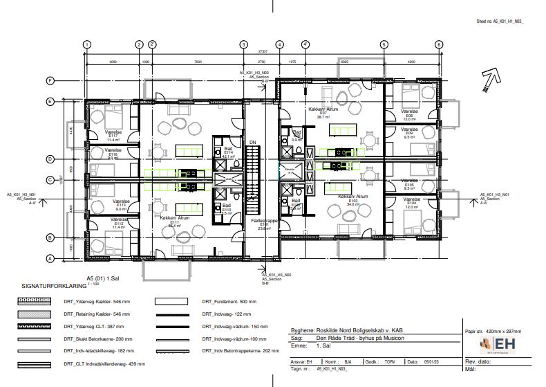
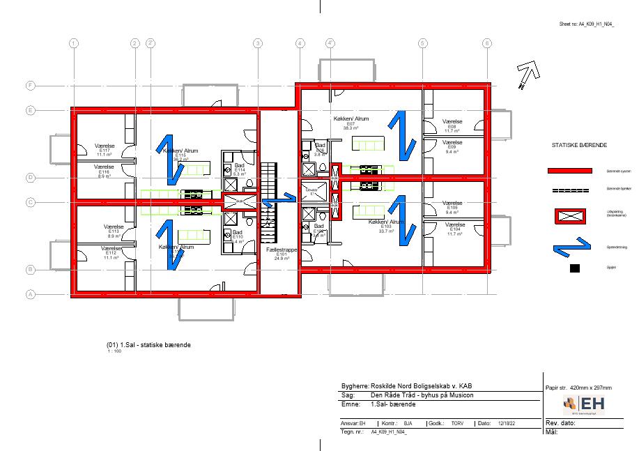
År 2018 • Areal 6713 m² • Skitseprojekt • Boliger • Roskilde
Bachelorprojekt • Totalrådgiver • 7.2 projektforslag, myndigprojekt og udbud faser
Deskription:
Den Røde Tråd- fungere som familieboliger og seniorboliger. Projektet blev etableret i Musicon i Roskilde i 2022. Musicon - musikbydelen er uden en masterplan - en national rugekasse for kunstnere, designere, musikere, kreative virksomheder og andre med behov for utraditionelle rammer.
Den Røde Tråd er fordelt over to bygninger, der er sammensat af mange funktioner og typologier: bl.a. butiksliv, café og fællesrum i stueetagen, ungdoms- og familieboliger og seniorbofællesskab på toppen med kig over hele Musicon.
Bygning 2:
Bestå af 3 familieboliger og cykelværksted i stuen, 4 familieboliger på 1-2 sal. og 4 seniorboliger på 3-4 sal. Bygningen har ingen kælder.
De oprindelige gennemgående materialer er beton og stål. Fundering: er direkte fundering, traditionelle støbte terrændæk, tag og etagedæk udførte i præfabrikerede huldæk i beton, betonelementvægge, røde tegloverflade på facaderne og Corten stål på altanerne.

Fokusområdet påmitprojekt:
• Projektforslaget herunder ændringer på konstruktionsmateriale, oprindelig fra beton og stål, til nybyggeri af CLT – massivtræ.
• Facade- Klimaskærm: energiberegningen, detaljer, beskrivelser og udbudsprojekt jf. YBL18
• Fokus på CLT i projekteringsfasen ifh af: fugt, brand og lyd
• Ny digitalt model i 3D-Revit og konstruktionsdetaljer
Projekteringsfasen:
• Krav – adgang, konstruktion, statik og betonkærne, elevator og trapper, energi, brand, lyd, fugt, osv.
• Granskningsprotokol – projektgranskning for at sikre bygbarhed, totaløkonomi, standarder, mindstekrav, lokalplan, osv.
• Bygbarhed – klimaskærm primær bygningsdele, bæredygtighedsprofil
• Skitsering, egenskabsanalyser, u-værdi og kondensrisiko
• Analyse – statisk, brandnotat, brand-præaccepterede løsninger for boligbyggeri, energi, energiberegning princip, statiskredegørelse, overslagsdimensionering, installationsnotat, mekaniskventilation
• Myndighedsprojekt
• Tegningsmaterialet
• Analyse- og redegørelsesdokumenterne
• Beredskabsplan, byggepladsindretning og PSS
• Økonomi og Hovedtidsplan
Udbudsprojekt – facadeelementer
• Tegningsmaterialet
• Analyse- og redegørelsesdokumenterne
• Økonomi og Tidsplan
• Arbejdsbeskrivelse(kap 4.) og Kontrolplan
• Tilbud og Kontrahering




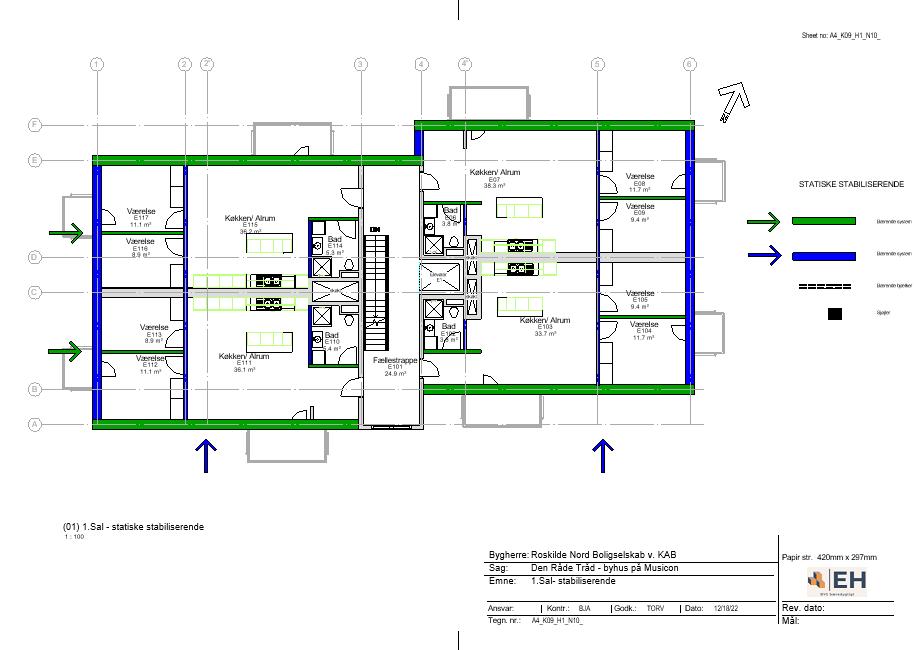
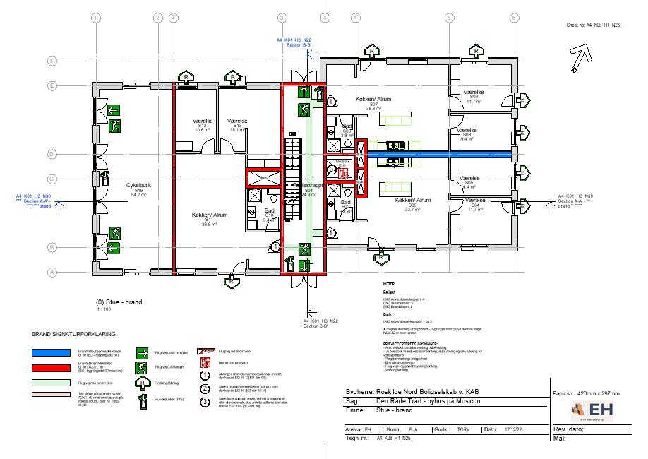
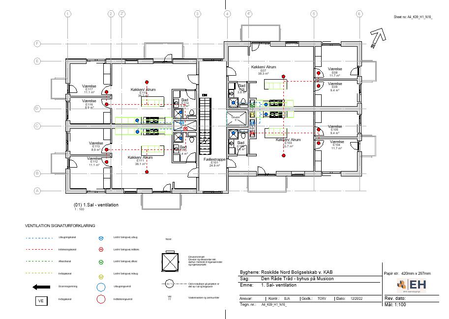
1 Sal plan – Dispositionsforslag (pdf fil)

1 Sal plan - Myndighedsprojekt (Revit-model)

1 Sal plan – Bærende plan (Revit-model)

1 Sal. plan - Stabiliserende plan Revit-model)

1 Sal. plan – Brandplan Revit-model) 1 Sal. plan - Ventilationsplan (Revit-model)


Projektgrundlag
Indledning
Der i dag en stigende opmærksomhed på at bygge på en bæredygtig måde, hvor der tages vidtgående hensyn til klima, miljø og sundhed. I byggeriet har man traditionelt benyttet sig af betonkonstruktion. Imidlertid medfører betonproduktionen store udledninger af CO2 og er derfor en kraftig medvirkende årsag til klimaforandringerne.
En måde hvorpå man kan bygge mere bæredygtigt, er ved at bruge CLT (krydslamineret træ) massivtræ elementer i stedet for beton. Da CLT er lavet af træ er produktionen langt mindre energikrævende sammenlignet med f.eks. stål og beton, og samtidig optager og lagrer træet CO2. Derudover er funktion, æstetik og holdbarhed selvfølgelig også vigtige aspekter i valget af CLT.
CLT–trækonstruktion kan derfor være en god løsning til at reducere CO2-udledning i byggeriet, men da det er et diffusionsåbent materiale, er det meget vigtigt at håndtere trækonstruktionen korrekt for at minimere risikoen for fugt igennem hele udførelsesfasen.
Funktion, æstetik og holdbarhed omkring CLT-byggeri

Oprindeligemateriale:
• Konstruktion - beton og stål
• Fundering - direkte fundering (ingen kælder)
• Tag og etagedæk - huldæk i beton
• Betonelementvægge
• Røde tegloverflade på facaderne
• Corten-stål på altanerne
NyematerialemedfokuspåCLT-massivtræ:
• Konstruktion - CLT-massivtræ
• Fundering - ifh til den ny cykelkælder
• Tag og etagedæk - CLT massivtræ
• Facade - præfabrikeret facadeelementer i CLT
• Røde teglfacadeoverflade (oprindelig krav fra BH)
• Corten-stål på altanerne (oprindelig krav fra BH)
Jeg brugte:
Revit – til 3D modellering, tegninger og 2D- detaljer
In-Design - Projektpræsentation

Projektforslag fasen – Skitsering af bygbarløsninger, egenskabsanalyser, U-værdier, energi og kondensrisiko analyser

Projektforslag fasen - Skitsering
Udbudsfasen – CLT-massivtræ facadeelement, isoleringslæg og røde teglfacadebeklædning




