
















































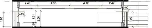
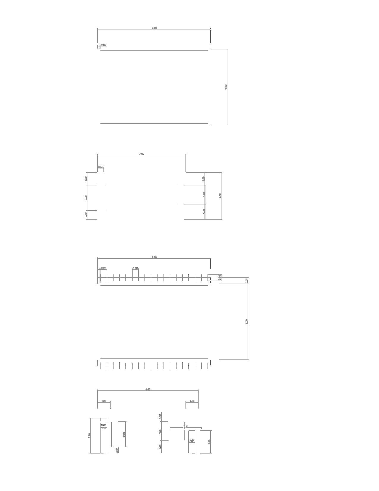
Urban Microclimate Prediction Model : Temporal Fusion Transformer with LSTM-Attention Encoder (TFT-LAE)

















































Summer Solstice
Winter Solstice

Case II: An ambient wind speed of 3 m/s is considered












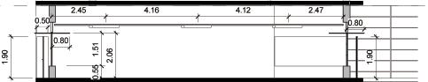
![]()

















































Urban Microclimate Prediction Model : Temporal Fusion Transformer with LSTM-Attention Encoder (TFT-LAE)


















































Case II: An ambient wind speed of 3 m/s is considered











