Skip to main content

General Hospital 200 Bed

Page 1

GENERAL HOSPITAL 200 BEDS

ZAFAR
ARCHITECTURAL DESIGN-IV
USAMA
70073021
About the Project 01 Master Plan All Floor Plans Elevation Section 05 Site Documentaion Case Studies 03 Project Requirements 02 3D Model 06 Design Considerations Zoning 04 TABLE O F CON TENTS 2

ABOUT THE PROJECT

Hospital has always been a place of intense pressure, traumatic experience and apprehension. The impression a hospital leaves on its patients can make a huge difference to the process of recuperation. It's vital that functionality of a hospital remains at the forefront of the design process but the changing paradigms in hospital planning have proven that exterior and interior of a hospital can affect the healing process.

However, a new generation of medical facilities is changing the concept of hospital design rapidly. Hospital design must contend with the ever-evolving nature of healthcare technology. Thus, it is imperative to design a building that can morph and expand accordingly. Moreover, hospitals have a broad range of users with different societal needs and cultural diversity. The cultural experience of the architecture should reflect in the environmental experience of the hospital (both for patients and staff). For instance, in our culture, hospital experience is more like home care where an entire family might stay with the patient. So, it's not easy to set a balance between culturally tailored layout and designed functional spaces.

ABOUT THE PR OJECT 3

Project Requirements

Designing a hospital is no easy feat. In a perfect world, there might be a simple, one-size fits-all solution. However, there is no such thing, especially when it comes to hospitals. While the goal of any building is to meet the maximum number of goals while staying within a strict budget, hospitals seem to require a more strategic approach. This is primarily because the facility will be required to provide a wide range of services and functions including;

• Outpatient services (emergency, clinics)

• Inpatient services (medical, surgical, psychiatric, surgery, pharmacy)

• Diagnostic and treatment services (labs, surgery, imaging, morgue)

• Administrative services (reception, registration, record keeping, HR, marketing, accounting)

• Service functions (cafeteria, housekeeping, supplies)

Emergency

Help Desk + Waiting + Public Toilets + Wheel chair & Stretcher Space/Storage

• Resuscitation Room

• Triage (Initial Examination)

• Pharmacy

• Blood Bank

Medical Emergency

• M.O Office

• Medical Emergency Ward (Male + Female)

• Nursing Station

• Dirty/Clean Linen + Equipment Storage + Staff Changing Surgical Emergency

• M.O Office

Surgical Emergency

• Surgical Emergency Ward (Male + Female)

• Minor Operation Theater

• Nursing Station

• Dirty/Clean Linen + Equipment Storage + Staff Changing

Paeds Emergency

• Pediatrics M.O Office

• Paeds Ward

• Nursing Station

• Dirty/Clean Linen + Equipment Storage + Staff Changing

· Cardiac Emergency

• CCUs

• Nursing Station

• Dirty/Clean Linen + Equipment Storage + Staff Changing

Cardiac Emergency

• CCUs

• Nursing Station

• Dirty/Clean Linen + Equipment Storage + Staff Changing

Project Requirements 4

Hospital Research Data

Case Studies

Site Documentation

C hapter 3 5

Research Data

Rese arch Data 6

Case Studies

Local Case S tudy 7

Case Studies

Internatio nal Ca se Stud y 8

Site Analysis

Sit e Analy sis 9

Form Development

Bubble Diagrams

Design Considerations

Zoning

Design Con siderati ons Zon ing 10

Form Development

Form Develop ment 11
Zoning 12
Hospital Zoning
Bubble Diagram And Zoning

Architectural Plans

Archit ectural Plans 13

Master Plan

14

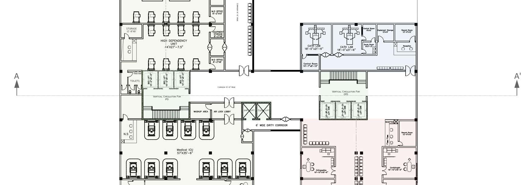
Plans

15

Plans

16

Plans

17

Plans

18

East Facing Elevation

19
20
North Facing Elevation
21
AA’ Section

3D Views

3 D Views 22

3D Model

23

3D Model

24

3D Model

25

3D Model

26

3D Model

27

3D Model

28

For

THANK YOU
Your Time
Misce llaneou s file 30
Miscellaneous file
Zoning 31
Bubble Diagram And Zoning
Zoning 32
Bubble Diagram And Zoning

Turn static files into dynamic content formats.

Create a flipbook
General Hospital 200 Bed by Architect Usama Zafar - Issuu