Lee's portfolio

Page 1


蜉蝣

钢铁创新中心设计

参与2024届Steel Competiton 参与2024届米兰设计周 指导教师:吴雨涵 地点:美国圣路易斯州密西西比河旁 个人设计

2023.11-2024.3

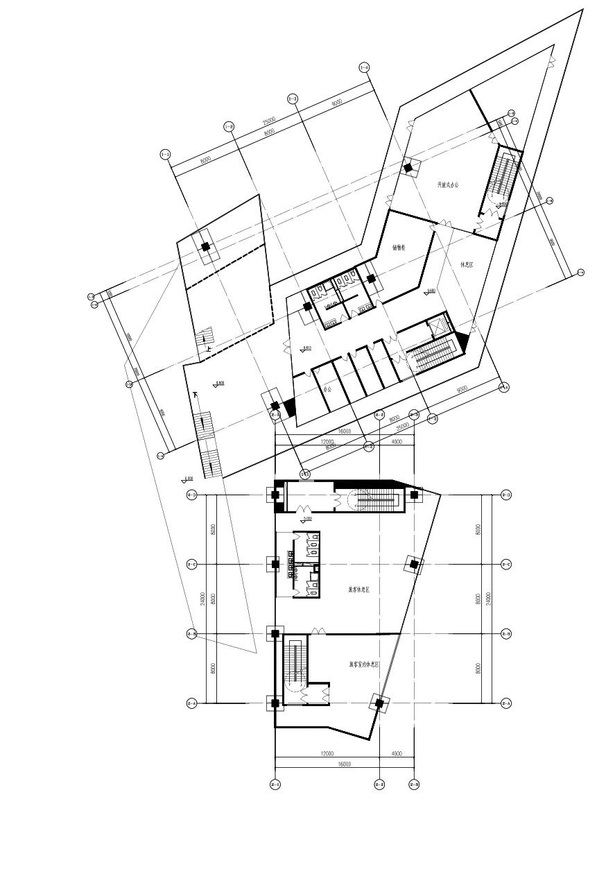
该创新中心位于美国圣路易斯州,毗邻密西西比河。建筑的主要采用钢结构和框架结 构,总建筑面积约为9600平方米,其中开放区域面积占地约2000平方米。

为了实现能源节约和生态可持续性的目标,该建筑的屋顶采用了藻类生物管道板进行 采光。这些生物管道板通过电极反应将光能转化为电能,以供应建筑的电力需求,从而 减少对传统能源的依赖。这种设计不仅实现了能源的自给自足,还赋予了建筑生物特性, 使其具有生态美感。

在游客入口处,设计师特意设置了未激活的生物管。这些生物管需要游客的自发性行 为来激活。当游客与生物管互动时,生物管会被带入上层并激活,从而展示建筑的时间 变化。这种设计激发了游客的参与感,使他们更加亲身地感受到建筑的生命力和变化。

这个钢铁创新中心的建筑设计充分融合了科技创新、生态可持续性和互动体验。它不 仅是一个功能完备的工作场所,还是一个引人入胜的参观景点,为人们提供了一个体验 钢铁创新的独特机会。

社会发展问题:

人均垃圾产量 25.9 吨,综合全国年产约 84.3 亿吨垃圾,人均垃圾产量全球第一。其中,2016至2025年随城市发展建

筑垃圾增预估为 70%

可持续发展建材背景:

回收利用型建材:

(1)医疗/塑料/食物/等生活废弃物整合为建材再利用。

(2)纸质物品加工为家具再利用。

生物创新型建材:

(1)主要为微藻类生物反应。通过光反应容器使微藻大量繁殖/产氧/食物饲料。

(2)黄粉虫食用塑料/自然死亡后提取骨骼等混合物脱脂酰化成抗震材料与生物薄膜。

(3)生物寄居于类丝瓜馕结构内部,产生气泡,容纳动植物生命/降低砖块温度, 冷却室内环境/净化空气。

地域环境分析:

藻类问题亟待解决。 建筑相关项目产生的垃圾总量是家庭和企业产生的城市垃圾的两倍。超过20%%的美国废物是建筑和拆迁废物。从1990年到2018年,美国 的建筑和拆除垃圾产生量增加了342%。 ————美国建造业垃圾数量逐年攀升,产能过剩:回收利用整合为新型建材。

场地位于圣路易斯州,密西西比河 沿岸。南、北、西三侧被地面道路以及 高架围护。西侧三座仓库,人流量较少, 机动交通较为便利。

场地东侧为密西西比河岸,由于圣 路易斯州农产业链发达,过度施肥导致 的水中氮磷含量过高,水体呈富营养化。

过度繁殖的藻类长期无法得到有效 处理,对周边生态链和人群的日常生活 造成恶劣影响。

生物创新型建材
问题措施与设计策略:

随着生物多样性缺失以及气候变化等环境挑战,设计运用新型材料将植物生长与建筑生长相结合,提出新的研究方向。同时在全球经济下行和资源枯竭的背景下, 将建筑去一体化,模块化组装也成为研究大势。

钢结构局部与整体研究:

钢结构与藻类产能具象化:

日照时间长,藻类繁殖越活跃,产能越强,藻类 面板电能运输越大,夜间钢管附着照明越强烈。

日照时长与钢管照明程度正相关。

藻类光反应器详解

有机材料混合比例实验探究:

RENDERING RENDERING RENDERING

这一建筑的核心在于其钢结构。使用钢材作为主要材料不仅确保了耐 用性和强度,还增添了现代感和精致感。裸露的钢框架构成了一种视 觉奇观,展示了线条和角度错综复杂的相互作用。它证明了建筑师敢 于突破传统设计界限的独创性。

整个结构由三个三角棱柱组成,无缝地结合在一起,形成一个和谐的 整体。每个棱镜都代表了建筑的一个独特的方面,有助于增强其整体 的美感。三角形表面上光影的相互作用创造了令人着迷的视觉效果, 增加了结构的深度和维度。当游客在建筑中走动时,他们会看到不断 变化的视角,让每一次体验令人难忘。

声境

多感官艺术装置

参与2023届霍普杯竞赛 参与2024届中国好创意艺术设计竞赛 指导教师:尚伟 地点:西安市未央区 合作设计

负责工作:组内分工协调 全程建模 前期场地调研 设计生成 场地平面布局 区块功能 功能映射 模型渲染 2023.6-2023.9

本建筑设计旨在在高密度城市中创造一个舒适而宜居的集合社区。通过穿插筒形功 能区并生成白噪音,我们旨在提供一种舒缓情绪、缓解失眠等效果。白噪音的频率与自 然环境的声音相似,能够创造一种宁静的背景声音,使居民能够在繁忙的城市生活中找 到平静和放松。集合社区的布局以功能区为核心,各个区域之间相互穿插,创造一个多 样化且互补性强的环境。简形功能区的设计不仅优化了空间利用,还有助于扩散和传播 白噪音,使整个社区受益。

此外,设计还注重在下部景观和廊道中增设绿化设施。通过精心设计和布置植被、 花园和水景等绿化元素,我们提供了更好的生活环境。绿化不仅能改善空气质量,吸收 噪音和调节温度,还提供美观的自然景观。这些绿化设施为居民创造了一个宜人的居住 环境,增强了社区的生态可持续性。

本建筑设计追求至美而生的理念,旨在提升居民的生活质量和幸福感通过集合社区 的白噪音治疗和绿化景观设计,我们为居民创造了一个和谐。安静、自然的居住空间。 居民可以在这里找到平静和放松,摆脱城市的喧器和压力。

峡处

商业综合体设计

参与第 18 届中国好创意暨全国数字艺术设计大赛 参与 2024 届米兰设计周 指导教师 : 刘成 地点 : 湖北省武汉市户部巷东侧某用地 个人设计

2023.11-2024.1

建筑用地位于湖北省武汉市民主路,总建筑面积约为 33830 ㎡。建筑主体采用钢筋 混凝土框架结构。

场地周边建筑北高南低且居住区颇多,为了引入人流,建筑首层充分利用了这一地 形特征,在建筑内营造类似峡谷的开放中庭空间。中庭空间作为主要的公共活动中心设 置了阶梯式休憩平台,营造了自然、休闲的氛围。首层更加开放的活动场所意味着生活 方式的创新和更新,建筑设计方案不仅仅是对现有环境的适应,更是对老旧小区的一种 文化和生活方式的创新与提升。由此提出“与谷为新”的设计理念。

建筑主体根据功能流线划分成三个部分,主体由不规则退台变化,各主体部分由中 庭空间廊道连接,仿峡谷的形态,创造出具有峡谷特征的内部空间,如深邃、层次分 明,同时具有开放和连接的特点。首层为公众开放性空间,实体性隔断较少,为居民提 供必需的活动场所的同时为商场引流。商场底层由奢侈品牌和大型娱乐设施组成,上层 由服饰功能为主过渡到餐饮功能为主。

此次设计核心考虑了"商业,自然,人文"三者之间的关系。"与谷为新"结合了峡谷形 态特征和创新设计理念,旨在通过建筑的空间创新来激发社区活力,提供新颖的社交、 文化和休闲体验,推动社区的持续发展和进步。将设计概念元素提取转译可以使自然其 较好的融入建筑,对周边居民生活的调研也让建筑更适应人群实际需求。

指导教师:刘成 地点:湖北省武汉市户部巷用地 个人设计

2023.9-2023.11

设计以纽带和桥梁为基本元素,旨在改善户部巷临江区的生活、生态和商业环境。通 过不规则架空桥的设计,在老旧小区内部插入带型生态园,为居民提供休闲娱乐空间。同 时在主商业街构造垂直商圈,实行商业再激活,为区域经济发展注入新动力。为解决老旧 小区与江滩之间的出行问题,在临江大道上方设计人行天桥,连接两地,缓解交通压力。

方案从“三环”策略针对该地区整体性问题进行方案探讨,以"纽带"和"桥梁"为基础, 从生活、生态和商业三个方面入手,通过一系列的优化措施,实现户部巷临江区的全面提 升,打造宜居、宜业、宜游的城市新名片。

OTHER WORK

Turn static files into dynamic content formats.

Create a flipbook
Issuu converts static files into: digital portfolios, online yearbooks, online catalogs, digital photo albums and more. Sign up and create your flipbook.