PORTFOLIO
Apollo Rene

M.Arch 2026
Cornell
University School of Art, Architecture & Planning
![]()
Apollo Rene

M.Arch 2026
Cornell
University School of Art, Architecture & Planning
01 03 02 04 05
A collection of work created during a summer 2024 internship at GuernseyTingle.
Professional
Programs: Revit | Bluebeam
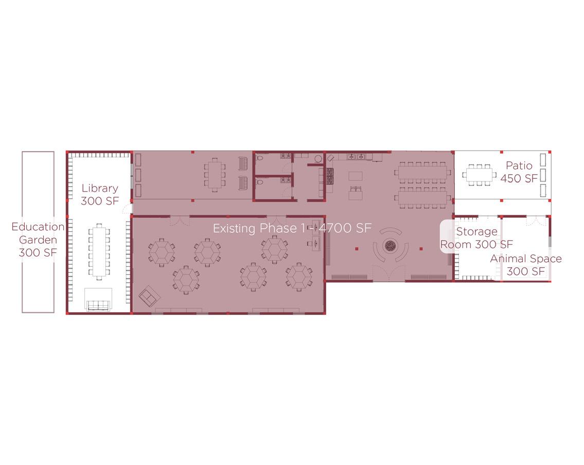
Campus design for a Re-Use Center in Ithaca, NY. Focuses on passive systems, retail and low income housing
Programs: Rhino, Illustrator, Photoshop, D5 Render, Climate Studio
Collaborators: Danaya Gaines
ANIMAL REHAB CENTER
Short-term rehabilitation and educational center for bear cubs native to Upstate New York
Programs: Revit, Rhino, Illustrator, D5 Render
ITHACA RE-USE CENTER WILDFLOWER OBSERVATION CENTER
Academic Academic Academic
Collaborators: Bhodie Chisum | Jaden Godfrey
Programs: Rhino, D5 Render, Illustrator
Collaborators: Bhodie Chisum | Jaden Godfrey
FOREST CITY: INDIGENOUS LEARNING CENTER
Learning and community center for the Gayogohó:no’ Nation in Upstate New York
Viewing pavillion at Cornell University. Academic
Programs: Rhino, D5 Render
Illustrator
Collaborators: Daniella Zhang
MASTERS OF ARCHITECTURE:
Cornell University
August 2023 - December 2026
NCARB member, AIAS member, Cornell Director’s Merit Award, Cornell M.Arch Merit Scholarship Award, Olive Tjaden Merit Scholarship Award
DIGITAL SKILLS:
Graphics:
Illustrator Photoshop AutoCAD
OTHER SKILLS:
Analogue:
Wood Joinery
Framing
Welding / Metalsmithing
Laser Cutting
Miniature Painting
CNC Cutting
3D Printing
Photography
Contact: ajr329@cornell.edu +1 (757) 634-7460

Website: https://apollorene.com/ https://www.linkedin.com/in/apollo-rene/ ISSUU - apollorene

B.F.A FINE ARTS:
NEW YORK UNIVERSITY August 2019 - May 2023
USAO Representative, Printmaking Faclilities Assistant, Silverstein Merit Scholarsip Award, Steinhardt Merit Scholarship Award
ADVANCED DIPLOMA: Walsingham Academy August 2015 - May 2019
Art Club President, Jefferson Cup Award of Arts
3D Modeling:
Rhinoceros 3D Revit SketchUp
Presentation:
Premire Lumion After Effects V-Ray InDesign Enscape D5 Render
Qualities:
Organized
Quick Learner
Attention to Detail
Punctual
Collaborative
Proactive
AWARDS:
Olive Tjaden Merit Scholarship Award
Cornell M.Arch Merit Scholarship Award
Cornell Director’s Merit Award
Silverstein Merit Scholarsip Award
Steinhardt Merit Scholarship Award
Jefferson Cup Award of Arts
SUMMER INTERNSHIP:
Plan A Architects
June 2025 - August 2025
Collaborated in the design development of an ongoing university construction project in Punjab India. Drafted initial construction documents for new additions to an existing university campus development project. Partnered with developers and consultants at designing schematics for a billion-dollar luxury villa project.
WINTER INTERNSHIP: GuernseyTingle
December 2024 - January 2025
Revised construction documents for the residential phasing component of a community center project. Advanced the design and development of additions to a theme park and a new food bank project in collaboration with clients and engineers. Partnered with contractors and builders on-site for an ongoing community center project.
SUMMER INTERNSHIP: GuernseyTingle
May 2024 - August 2024
Advanced the schematic development of three new projects: a food bank, a church, and a fire station, in collaboration with clients and engineers. Collaborated with contractors and builders on-site for two ongoing construction projects: a church and a utility station. Produced updated documents for a military housing project and a church under ongoing construction.
IN THIS HOUSE MADE OF SAND:
New York University
April 2023
Thesis exhibition curated by Laurel Ptak, exploring themes of passage and the body’s presence in third spaces. Conceptualized and produced printmaking etchings and paintings showcased in the exhibition. Organized and collaborated with fellow artists on the promotion and planning of the opening event and exhibition.
LOST AND FOUND
Brooklyn Art Cave - New York, NY
March 2022
Group exhibition curated by Amanda Lindsay, centered on themes of navigation and spatial artworks. Coordinated and planned the event space layout. Collaborated with the curator to oversee the organization and installation of multiple artworks.
GREENPOINT GALLERY
Brooklyn, NY
July 2020
Online group exhibition exploring themes of identity and destabilization. Conceptualized and created a series of paintings and printmaking etchings for the exhibition. Collaborated with the curator and fellow artists to ensure a safe and accessible installation and viewing experience during the early stages of the COVID-19 pandemic.


Project Details:
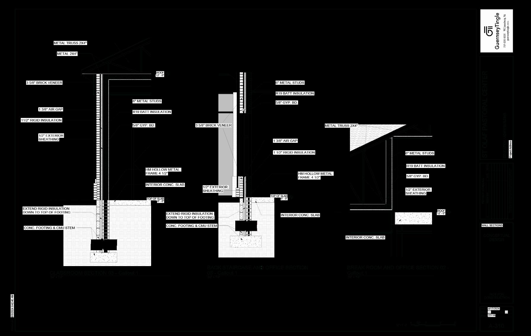
GuernseyTingle Summer & Winter 2024 Internships
Location: Williamsburg, VA
Project Managers: Brad Sipes, Kristin Baum Programs: Revit | Bluebeam



Cornell University
Spring 2025 Studio
Location: Ithaca, NY
Finger Lakes Re-Use Center is a mixed-use campus design project set in Ithaca, New York. The project focuses on a community retail Re-Use facility with affordable housing units, and outdoor gardening. This multidisciplinary design aims to promote social, economic and evironmental growth for the area.
The design aims for a connected environment. Linking residential spaces to workshops, career center support, the Re-Use marketplace and community gardens. The project is constructed in Cross-Laminated Timber (CLT) and light wood framing. Passive systems are a key factor in the campus layout. All buildings were programmed to maximize on daylighting and natural ventilation with private balconies and a public pavilion to provide outdoor shading to residents and the public.
Collaborators: Danaya Gaines
Programs: Rhino, D5 Render, Illustrator




SHIFTING RE-USE
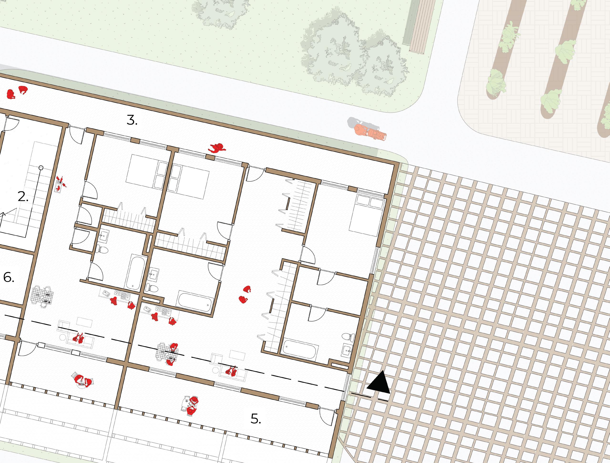
The retail space was repositioned to align with the main road, creating room for new low-income apartments that address local affordable housing needs. This led to a major gain in solar optimization as well as passive ventilation for private residential units as well as public access points.



Residential units are offset by 4’ per floor to offer open terraces for solar gain to help heat each unit. The offset also provided an opportunity for private greenspaces to be interwoven into each apartment unit’s layout. These offsets enhance outdoor living and privacy within the residential complex. Additionally, an existing on-site structure was repurposed into a community bike shop.





The new siting for the Re-Use Center offers outdoor experience that is both private and public for community members and residents. Outdoor education experiences such as a community farm allow for individuals to engage more in the land apart of their community.



The privacy offered by the terraces creates intimate moments for residents shared equally in each unit. The terrace itself also becomes a larger public feature as each individual resident is responsible for nurturing their shared green space. As this unified responsibility blossoms, passive shading becomes shared amongst all units in Ithaca’s warmer months.









Cornell University
Fall 2023 Studio
Location: Ithaca, NY
Wildlife centers play a significant role in protecting endangered species. This project focuses on a center designed for black bear cubs in upstate New York. The center is intended on housing the cubs for nine months, from fall through spring and then release the cubs back into nature. The key objective is to accurately simulate their existing wild conditions to foster the cub’s ability to thrive in nature. The center is sited on a steep topography and will require some landscape architecture in order to create an adequate sanctuary space.
Human and bear cub interaction must be limited at all times. This is crucial for bear cubs to be released back into the wild and be fully self-sufficient. To address this, the design circulates around a public access system that removes the public from the cubs. This ensures tha they remain undisturbed during the rehabilitation process.
Balancing environmental preservation, species centered design and minimal human engagement provides an optimal environment for black bear cubs to be rehabilitated and released into the wild to thrive.
Collaborators: Bodie Chisum | Jaden Godfrey
Programs: Revit, Rhino, Illustrator, D5 Render



A cut and fill system to create a natural boundary for the bear cubs was employed as well as a tunneling system to prevent disturbances to the rehabilitation process. Caretakers in emergency situations have access to the enclosure through hatches and sliding doors invisible to the bear cubs. These systems provide a smooth rehabilitation process to bear cubs while also allowing caretakers access to bears who need intensive and emergency treatment.










Cornell University Fall 2023 Studio
Location: Ithaca, NY
The objective of this project is to conceptualize the tetromino as an operable form. Interior spaces must be defined and integrated into the final design. The goal is to establish a system for arranging tetrominoes into a group and resolving how this system evolves into either an ‘L’ or ‘T’ shape. A key design question is: How can this system facilitate a unique and abstract form while still providing functional interior spaces for human interaction?
As a group, we were tasked with creating viewing planes for the tetrimino system. We were also navigating spatial and programing layout based on the patterns of the, ‘L’ or ‘T.’ This was a conceptual exercise with the intent of analyzing circulation, form and function based on the tetrimino’ s inherent shape. Highlight the ways in which the system’s organization informs its final shape and usability.
Collaborators: Bodie Chisum | Jaden Godfrey
Programs: Rhino, Illustrator, D5 Render



A singular conceptual element of a ribbed system was discovered through rigorous physical models and sketches. This ribbed system is what defined our programming and structural system for our observation center.


Cornell University
Fall 2024 Studio
Location: Ithaca, NY
The Gayogohó:no’ Tribe is one of the remaining Indigenous tribes originating from Upstate New York. In response to political conflicts and social upheaval, we developed a project to establish a learning center rooted in the tribe’s cultural heritage and values. This project also aims to help reunite the tribe which has been dispersed accross New York State.
The proposed learning center is designed to embody these principles by seamlessly integrating indoor and outdoor spaces, incorporating culturally significant materials, and harmonizing with the surrounding landscape. Sourcing locally with timber native to their region, we wanted to blend their cultural values of education, nature and spirit into the surrouding landscape. These themes dictate the programming and layout of the center. The project was also proposed in a phasing plan to help with budgetary constraints and facilitate the initial construction process.
Collaborators: Daniella Zhang
Programs: Revit, Rhino, D5 Render, Illustrator


The site for our learning center is located on the Southern portion of our site, with access to direct sunlight and access to roads for construction. The ambition for this project was to create a learning and community center for the Gayogohó:no’ nation in a two-phased development.



We selected locally sourced timber specifically from white pine trees to help with lumber and the transportation of materials. We took inspiration from the white pine in its anatomy to produce a structure that was sustainable and also helped blend nature and tradition into the design project.




The anatomy of the white pine was also beneficial in creating a natural heating and ventilation system for the project. In the first phase of construction, we constructed a centralized gathering space with an indoor firepit. As a means of ventilating smoke, we employed a slanted roof system to regulate interior conditions during occupation annually.



Contact: ajr329@cornell.edu +1 (757) 634-7460
Website: https://apollorene.com/ https://www.linkedin.com/in/apollo-rene/ ISSUU - apollorene

