Not Your College Dorm An Analysis of Co-Living and Affordable Housing

Page 1

Not your College Dorm:

An Analysis of Co-Living and Affordable Housing Options

Florida APA Conference 8 September 2022

Agenda

Introduction Affordable Housing Shortcomings Co-Living

Barriers to Co-Living Solving the Problem

Introduction

What is Co-Living

Definition “A housing arrangement in which a tenant pays rent for a private bedroom but shares common living areas such as kitchens, bathrooms, and laundry facilities with other tenants,” (US HUD, 2021) Source: .908 Coliving. retrieved from https://www.908coliving.com/common space/

How is Co-Living Unique?

Co-Living Features • Relatively affordable • Fully furnished • No roommate search • Lease is attached to the individual instead of the entire unit • Shared common space and kitchen facilities • Amenities

Affordable Housing Shortcomings

Accessory Dwelling Units

• Historic use; Planners began advocating for ADUs again in 2001 • Flexible family resource supporting financial stability • Provides neighborhood- integrated affordable housing • Diversifies neighborhood income and age stratification • Citizen driven, not developer driven
Neighborhood Grassroots Solution Credit: Getty Images

Barriers to

Dwelling Units

• Since 2001 we have identified the barriers to implement ADUs in neighborhoods o Suburban or Urban Neighborhood built environment o Permitting process o Zoning regulations o Permitted accessory uses • Size • Density limitations • Parking and owner-occupancy requirements o Character consistency
Accessory
https://www.mightysmallhomes.com/house kit ideas/accessory dwelling unit adu/

Lessons

ADU best practices • Permit ADUs as accessory uses • Exempt from density requirements • Neighborhood compatibility design guidance • Remove parking & owner-occupancy requirements when feasible • Exempt from impact fees Policy changes Florida Statute 163.31771; 2020 • Encourages local ADU Ordinances for purposes of providing affordable housing • Owner signs affidavit committing to affordable rate
Learned & Moving Forward https://www.co.washington.or.us/LUT/Divisions/LongRangePlanning/PlanningPrograms/CommunityPlanning/Housing/accessory dwelling units adu s.cfm

Co-Living

Co-Living: The Urban Solution • Rising rental costs • Desire to live in an area of opportunity • Social isolation post COVID-19 • Evolving definition of family • Rise in nonfamily households $2,062 $2,106 $2,848 $1,783 Average rents taken from the Waller, Weeks and Johnson Rental Index, June 2022

Who Benefits from Co-Living?

• Middle income renters earning $60,000 to $80,000 a year • Younger adults and recent college graduates • Older adults • New city residents Source: Cushman & Wakefield, https://cw gbl gws prod.azureedge.net/ /media/cw/americas/united states/insights/research report pdfs/2019/ coliving report_may2019.pdf (p. 39)

Why Advocate for Co-Living?

Implications

• Located in areas of opportunity o Proximity to work, family, and amenities • Increase social support and community building o Improves mental health • Expands housing choices for all o Older adults
Equity

What

Looks Like

Single Family Residential Source: https://www.dockedliving.com/ Location: St. Petersburg, FL Floorplan: 8 bed, 8 bath Amenities: • Comfy spaces • Private baths • Furnished common areas • Wi-Fi and utilities • Monthly cleaning • On-site laundry • Community connection • Fire pit and grill Cost: Membership cost + $150 monthly amenity and service fee; a monthly income of $2,850 required Lease: 12-month lease Source: https://www.dockedliving.com/
Co-Living

What Co-Living Looks Like

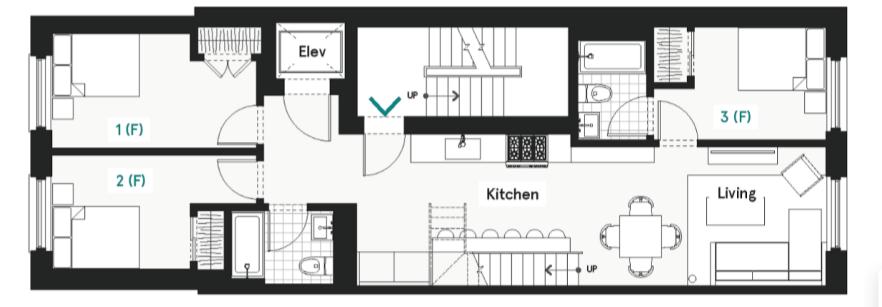
Single Family ResidentialLocation: Chicago, IL Floorplan: 4 bed, 3 bath Amenities: • Private, furnished bedroom • Fully furnished shared spaces • High- end stainless steel kitchen appliances • Stocked household essentials • Fully furnished community spaces • Free Wi-Fi • All utilities included in the rent, • Keyless access and tech-enabled spaces • Weekly cleaning of all shared spaces included Cost: From $1,145/month Lease: 3 months or more Source: https://www.common.com/violet/

What

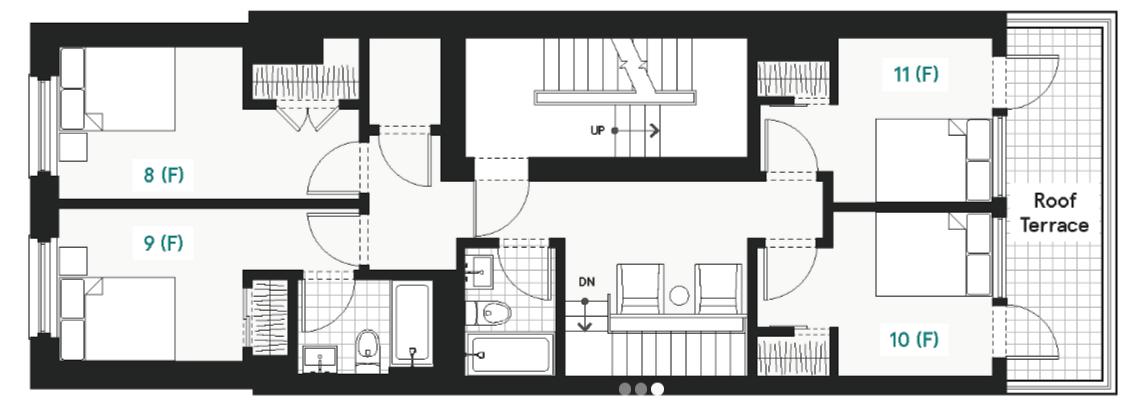
Mid-Rise Residential https://www.common.com/lenox/ Location: Harlem, NY Floorplan: 11 bed, 6 bath Amenities: • Furnished rooftop • Private bedroom • Fully furnished • Weekly cleaning • Basic supplies • On-site laundry • High-speed Wi-Fi • Property services Cost: Starting at $1,366 Lease: 3 months or more Source: https://www.common.com/why common/
Co-Living Looks Like

What

Mid-Rise Residential https://thepropolis.com/aerie coliving miami/?utm_source=gmb&utm_medium=info&utm_campaign=link Location: Little Havana, FL Floorplan: 2 and 3-bed units, 2 baths Amenities: • Fully furnished • Private bathrooms • Household cleaning • Private workstation • Basic supplies • High-speed Wi-Fi • Property services Cost: Starting at $975 Lease: 12-month, with a few units reserved for month-tomonth leases https://thepropolis.com/aerie coliving miami/?utm_source=gmb&utm_medium=info&utm_campaign=link
Co-Living Looks Like

What Co-Living Looks Like

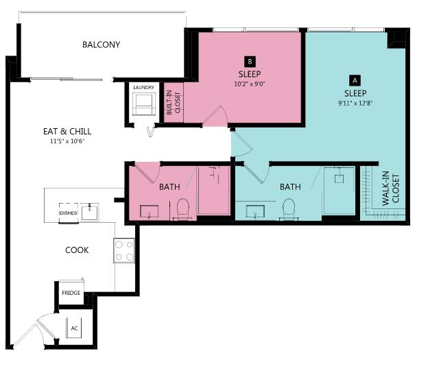
High-Rise Residential Source: https://xmiami.co/gallery/ Location: Miami, FL Floorplan: 2 Bed, 2 Bath (Individual 1 Bed, 1 Bath, 433 SF) Amenities: • Roof Terrace • Grill and entertainment area • Bike storge • Clubhouse • Courtyard with dog park • Pool with ocean views • Fitness center • Storage space Cost: $1,882/month - $2,249/month Lease: 7-15 months Source: https://xmiami.co/floorplans/

Barriers to Co-Living

Antiquated Zoning Codes

Definition of family Use regulations

standards

Development
https://www.louispoulsen.com/en/professional/applications/city landscapes

Building Code Intent

Section 553.72, Florida Statutes, sets forth the Legislature’s intent

Florida Building Code (code) serves as a mechanism for the uniform adoption, updating, amendment, interpretation, and enforcement of a single, unified state building code. It consists of a single set of documents that apply to the design, construction, erection, alteration, modification, repair, or demolition of public or private buildings, structures, or facilities in this state and to the enforcement of such requirements. The code is to allow for the effective and reasonable protection of public safety, health, and general welfare for all the people of Florida t the most reasonable cost to the consumer.

MODIFICATION, ALTERATION, CONSTRUCTION

PUBLIC SAFETY, HEALTH, AND GENERAL WELFARE

Building Code Definitions

R-1 Congregate living facilities (transient) with more than 10 occupants R-2 Congregate living facilities (non-transient) with more than 16 occupants R-3 Congregate living facilities (non-transient) with 16 or fewer occupants Congregate living facilities (transient) with 10 or fewer occupants

Building Code Requirements

Separation Walls:

Walls separating sleeping units in the same building will require a fire-resistance rating of not less than 1 hour. (FBC 420.2 and 708.3) Exception: Type IIB, IIIB and VB construction *Images developed from Underwriters Laboratories

Building Code Requirements

Vertical Separation:

Horizontal assemblies serving as sleeping unit

shall be not less than 1-hour fireresistance-rated construction.

and

Type IIB, IIIB and VB construction

separations
(FBC 420.3
711.2.4.3) Exception:
*Image developed from Underwriters Laboratories

Building

Code Requirements • AUTOMATIC SPRINKLER SYSTEM REQUIRED! IN “FIRE AREAS” • Average Cost For A New Kitchen: $6 per SQFT • Average Cost For A Sprinkler System: Existing Building: $6 per SQFT New Building: $1.25 per SQFT

Solving the Problem: The Developer’s Role

Co-Living Market

Global funding for co-living facilities has increased by 210% since 2015.

Debt brokers have stated that co-living can generate operating margins that are 3050% higher than conventional multifamily.

Today, there are approximately 30 co-living companies operating close to 3,500 rooms in the US with 7,000 more planned over the next two years.

New Construction vs. Conversions

What are the

systems are already

type and previous

How easy is it to install a

is the construction

goals? - Large scale or small scale Large Scale - What
installed? - Construction
use? Small Scale -
fire sprinkler? - What
type?

Building Code Considerations

Change the building code vs. Adapt to the code o Building code amendments - timely, costly, difficult path o Adapt – work with the municipality to interpret the code and provide a safe, secure, feasible development Code considerations o Additional fireproofing equates to additional development costs o More gypsum board o More sprinklers

Solving the Problem: The Planner’s Role

Zoning Code Considerations

Definition of Family

Permit the Use

Criteria for Approval

Remove the definition of family

o Allow co-living facilities in urban, mixed-use zoning districts as a permitted or conditional use

o Single-family co-living may be compatible in some lowmedium density zoning districts

o Determine whether coliving is a conditional use or permitted by right

o Required facilities and

standards (i.e. laundry, bathroom, kitchen)

Minimum bedroom square

Planners Role

The Long View

Where should planners focus? • Monitor industry trends (i.e., is it cyclical or generational?) • Monitor transportation advancements oHow does advancement in transportation options impact housing, livability, and commuting time? • Be innovative with the zoning code o How do you incorporate co-living concepts in repurposed retail areas? o Is there an opportunity to intensify development around transit hubs? o Allow additional units to existing homes?

Questions?

Turn static files into dynamic content formats.

Create a flipbook
Issuu converts static files into: digital portfolios, online yearbooks, online catalogs, digital photo albums and more. Sign up and create your flipbook.
Not Your College Dorm An Analysis of Co-Living and Affordable Housing by APA Florida - Issuu