

Blueprints for Better Health: Planning for People
Presented by Tyler Johnson, AICP
Steve Noto, AICP
Chuck Barmby, AICP CTP
Chris Kintner, AICP
September 18, 2025




Welcome








VHB
Southeast Institutions Market Leader
Orlando Health
Director of Planning
City of Lakeland
Planning & Transportation Manager
Chris Kintner, AICP
City of Longwood Community Development Director
Chuck Barmby, AICP CTP
Steve Noto, AICP
Tyler Johnson, AICP
Healthcare in Florida - Market
• 219 acute care hospitals in 2023
• $135 billion for FL GDP
• ~300 total hospitals by end of 2025
• 7 hospitals under construction between Pasco and Fort Myers counties (greater Tampa Bay area) with a value of over $1.7 billion
• People continue to move and retire
• Changing needs
• More specialty cares (e.g., cancer)
• Rapid growth in FSEDs
• This is not what Cities, Counties, and States are seeing across the County

Healthcare in Florida - AHCA

• Florida Agency for Health Care Administration (https://ahca.myflorida.com/)
• Established in Florida Statues
• Chief health policy and planning entity for the state
• Primarily responsible for the state's estimated $35 billion Medicaid program
• Sharing of healthcare data
• Licensure of the state's more than 50,500 health care facilities
• ALFs and Nursing Homes
• Home health care
• Compounding Pharmacies
• Hospices
• Hospital Wards, Departments, and Roving Nuclear Medicine Services
• Additional Review process and schedules
• Sometimes regulations don't match local AHJs
• Different regions and teams can have different focus and review style

Healthcare in Florida – Certificate of Need
• Removed in 2019
• 35 states, plus DC, still do
• Opened up competition throughout State
• More choice for patients and providers
• Speed to market
• Competition for Staff
• Amenitized facilities (e.g., natural light, equipment, layouts)
• Seeing expansion into new geographies
• FSEDs, Urgent Cares, ASCs, MOBs
• FSEDs/Hospital connection
Healthcare in Florida – Federal Funding

• Rural hospitals are struggling, even before cuts
• 48% of rural hospitals operated at financial loss in 2023
• Service lines that lead losses are behavioral health, pulmonology, obstetrics, and burn units.
• 92 have closed in past 10 years.
• 250 rural hospitals have closed labor & delivery departments since 2010
• 47% rural births and 65% rural nursing home residents
• Florida: Roughly 8,000 people could lose coverage with a $210 million impact to rural hospitals.
• 1.8 million people and $50.4 B at risk through 2034
• $177 million in local tax revenue ion jeopardy due to ripple effects
Sources:.
1) American Hospital Association. “Rural Hospitals at Risk: Cuts to Medicaid Would Further Threaten Access.” https://www.aha.org/fact-sheets/2025-06-13-rural-hospitals-riskcuts-medicaid-would-further-threaten-access
2) National Rural Health Association. “Estimated Impact on Medicaid Enrollment and Hospital Expenditures in Rural Communities.” 2025 June 20. obbb-impacts-on-ruralcommunities_06-20-25-final_v3-(002).pdf
3) Paul, G. “Medicaid cuts could put a $3 billion hole in Florida’s economy, study predicts.” WUSF. 2025 April 8. https://www.wusf.org/health-news-florida/2025-04-08/medicaidcuts-could-put-3-billion-hole-florida-economy-study



2025 FAPA CONFERENCE

Steve Noto, AICP
Director of Planning








At-A-Glance


Certificate of Need
HISTORY OF CERTIFICATE OF NEED (CON) REQUIREMENTS IN FLORIDA

1973 – Florida Adopts CON Process
o Followed national trends
o Was a way to manage healthcare costs, growth, and services
o Over time, the State of Florida had one of the most robust comprehensive in the Nation
o CON covered hospitals, nursing homes, hospices, ambulatory surgical centers, and specialized service centers.
HISTORY CERTIFICATE OF NEED (CON) REQUIREMENTS IN FLORIDA

2019 – Florida HB 21
o Full repeal of CON requirements for general hospitals, complex medical rehab beds and tertiary hospital services
o Predicated by the Department of Health and Human Services Report, Reforming America’s Health System through Choice and Competition
o “States should consider repeal of Certificate of Need (CON) statutes or, at a minimum, significantly scale back the scope of their CON regimes, for example by ensuring that competitors of CON applicants cannot weigh in on these applications.”

HISTORY CERTIFICATE OF NEED (CON) REQUIREMENTS IN
FLORIDA
2021 – Expansion of Exemptions
o Class II hospitals, including children’s and women’s hospitals;
o Class III hospitals, including specialty medical, rehabilitation, and psychiatric and substance abuse hospitals;
o Class IV hospitals, which are specialty hospitals restricted to offering Intensive Residential Treatment Facility Services for Children.

WHAT HAS THIS CREATED?
Growth in the State
o Per KFFHealthNews.org, from 2020 to 2022, a minimum of 65 new hospitals were announced to be built by a variety of providers
o This compares to 20 new hospitals from 2016-2018
o As of 2021, almost 90 free-standing emergency departments were in operation in the State.
o More facilities are planned by all healthcare providers operating in the state.

Community Development
Project Types
o Urban Campus
o ORMC
o Bayfront Health
o Community Hospitals
o Dr. Phillips
o South Lake
o Health Central
o Free Standing Emergency Departments
o Longwood
o Reunion
o Four Corners

o Institutes
o Advanced Rehab
o Cancer
o Digestive Health
o Neuroscience
o Specialty Hospitals
o Arnold Palmer Children’s Hospital
o Winnie Palmer Hospital for Women and Babies
o Behavioral Health
o Jewett Orthopedic
Campus Types

Community Hospitals
o 30-80 acres
o Typical uses
o General Hospital with specialties
o 2-3 MOB outparcels
o Helipad
o Lakeland Highlands Hospital
o Over 500,000 sq. ft.
o Entitled for over 350 beds

Highlands Hospital Campus
Lakeland
Campus Types

Community Hospitals
o Zoning Needs
o PUD or flexible zoning/FLU
o 100+’ height allowances
o Helipad
o Architecture that understands use
o High quantity parking
o Master Signage Plans

Lake Mary Hospital
Campus Types

Free-Standing Emergency Departments
o 3+ acres
o +/- 11,000 sq. ft. structure
o Operations
o 12 or more beds
o Open 24/7
o 24/7 on-site security
o CT and Xray services
o Two-hour average visit time

Longwood FSED
Campus Types

Free-Standing Emergency Departments
o Zoning Needs
o Use Definition
o Flexible architecture
o Flexible signage and wayfinding

Longwood FSED
Campus Types

Institutes
o These can vary based on community needs and organizational goals
o Institute Square in St. Pete consists of:
o 120,000 sq. ft. Medical Pavilion
– Florida Cancer Specialists
o 60,000 sq. ft. Women’s Institute
o 9,500 sq. ft. imaging center
o Multi-story parking deck

Institute Square Rendering

Community Health, Investment, and Infrastructure



Wayfinding
• Patient and Visitor Mindset

• EMS Access
• Decision Points
• Off-site Visibility


Wayfinding


Architecture
• Transparency Requirements
• Patient Privacy
• Exterior design considerations while being mindful of interior needs



















Longwood FSED


Waterford Lakes FSED


Reunion Village FSED


Thank You
Health Care Trends in Lakeland
2025 Florida Planning Conference

September 18, 2025


Health Care Trends in Lakeland
About Lakeland Area
• City Population: 124,725 (+10.7% since 2020)
• County Population: 852,878 (2024) (+17.6% since 2020)
• Significant residential and employment growth, proximity to Tampa Bay and Orlando Metros
• Major roadway investments that changed travel patterns and increased connectivity to nearby communities:
• SR 570/Polk Parkway (initial construction completed 1999);

• In-Town Bypass around Downtown (completed 2009).
Health Care Trends in Lakeland Needs
• Polk County is a designated Health Care Professional Shortage Area for primary care, mental health and dental health by the Health Resources and Services Administration (per 100,000 Population):
o 27.0 Licensed Dentists vs. Florida rate of 61.5.
o 115.6 Licensed Physicians vs. Florida rate of 261.2.
o 77.9 Licensed Behavioral/Mental Health Prof. vs. Florida rate of 121.8.
• Population below poverty threshold: 14.7% vs 12.6%

Source: 2025 Polk County Community Health Assessment, Polk Vision
Health Care Trends in Lakeland
One Hospital Town, Lakeland Regional Health
• 910 Beds
• 40,000 annual admissions
• 8,000 team members
• Second busiest Emergency Department in the U.S.
• Cancer Care, Women & Children’s Pavilion, Behavioral Health, Graduate Medical Education

• Anchor of Medical District with Watson Clinic
Health Care Trends in Lakeland



Morrell Hospital - 1926
Lakeland General Hospital - 1961
Health Care Trends in Lakeland Trends
• Service and Administrative De-Centralization
o Urgent Care Expansions
o Free-Standing Emergency Departments
• New & Expanded Clinics
o Low-Income, Family (LVIM, Central Florida Healthcare)
o Veterans Administration
• Investment from New Providers/Systems
• Orlando Health
• Advent Health

• HCA Florida (FSEDs)
Health Care Trends in Lakeland Codes
• How do they address FSEDs?
• Signage
• External Impacts (Traffic, Noise, Hours of Operation)
• Architectural Design & Urban Form (Construction Phasing)
• Concurrency
• Parking, Parking & Parking (Did I mention parking?)

• Urban (Existing Operations) vs. Greenfield Contexts




Lakeland Medical District


Lakeland Regional Health Watson Clinic Central Florida Healthcare

Lakeland Medical District


Lakeland Regional Health Watson Clinic Central Florida Healthcare

• Near Downtown, ,


• Served by established transit routes, future BRT
• Good sidewalk and trail connections
• Focused on incremental campus development, infill, external connectivity & internal circulation
• Fragmented ownership, utilities, proximity to public facilities, older infrastructure
Health Care Trends in Lakeland
Lakeland Regional Health
• Opened at this location in 1956.
• New Bed Tower w/ Parking Garage completed in 2004.
• Women and Children’s Pavilion completed in 2019.
• Behavioral Health completed in 2022.
• Managed through Conditional Use Permits and PUD.
• CUPs added or expanded with property assembly.
• Surface parking in high demand.

• Maintenance of traffic and parking during construction.

Lakeland Regional Health
Lakeland Regional Health – Kathleen Road

•
• 76,300 sq. ft. building, first of a new campus
• Up to 300,000 sq. ft. of medical office uses, free standing emergency room, accessory uses
• Supporting NW Lakeland & Polk County
Central Florida Healthcare

• Maintain operations during construction
• Property assembly
• Right-of-way and easement vacations
• Urban Form Standards
• Transit shelter, coordinated with FDOT and School District
Central Florida Healthcare


“Southeast Medical Hub”

Lakeland VA Clinic
Orlando Health

“Southeast Medical Hub”

• On City’s periphery
• Near Polk Parkway interchange
• No transit service
• Fort Fraser Extension
• Greenfield site
• Unified ownership
• Proximity, timing of Orlando Health – VA Clinic
Orlando Health Lakeland VA Clinic

Lakeland VA Clinic


Lakeland VA Clinic

• Relocation & Expansion
• Private developer w/ long-term lease to Federal GSA
• Platting and access road construction
• PUD approved in 2021
• Transit Funding Agreement
o Bus Purchase ($150,000)
o Four Years of Operating ($78,000/year)
• Transit Shelter and On-Site
Circulation
• Began on August 5, 2024
Orlando Health


Orlando Health & Partnership with Watson Clinic
Health Care Trends in Lakeland
Orlando Health
• Annexation of approximately 80-acre site
• PUD approved in September 2020
• Maximum Intensities
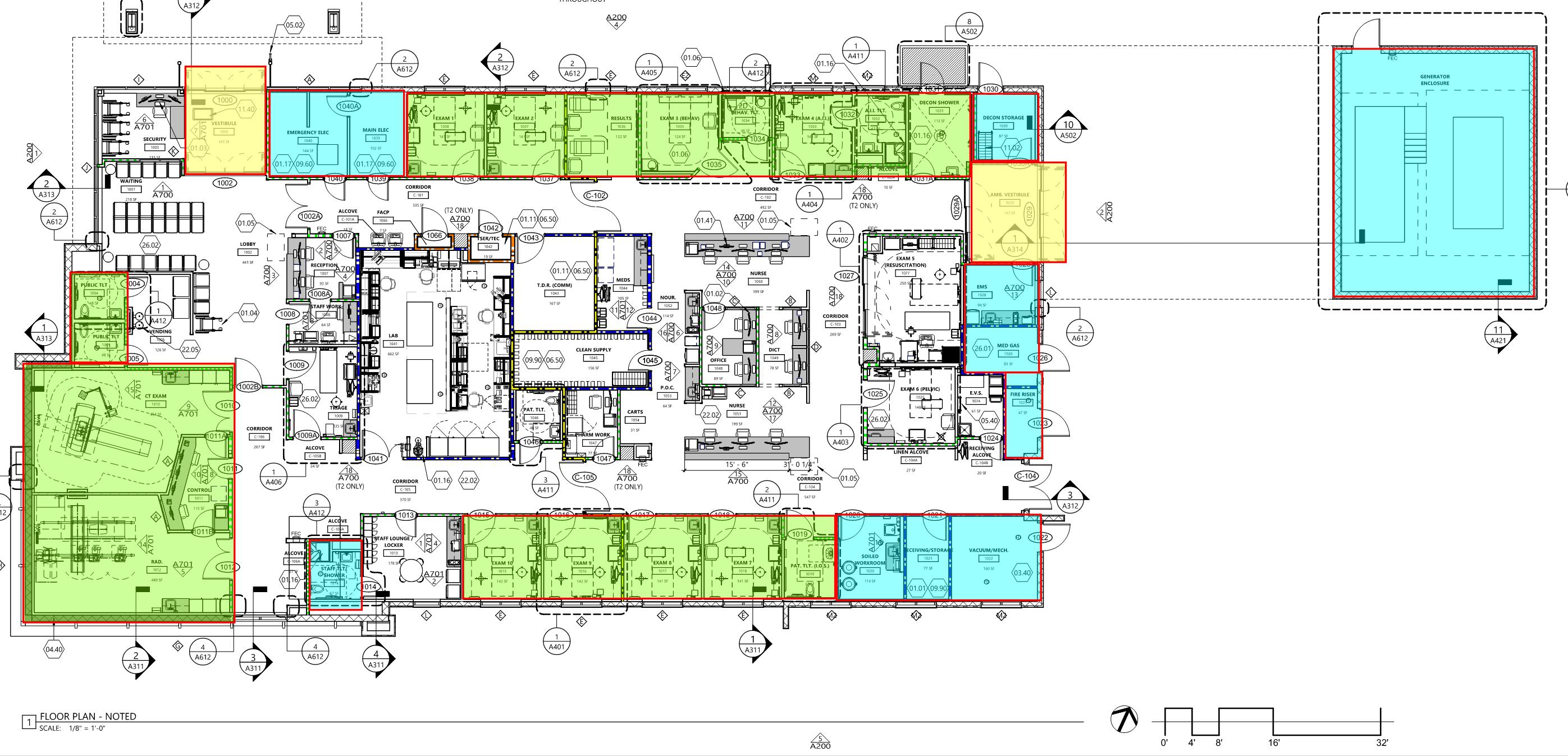
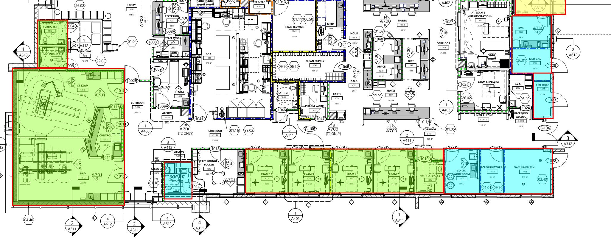
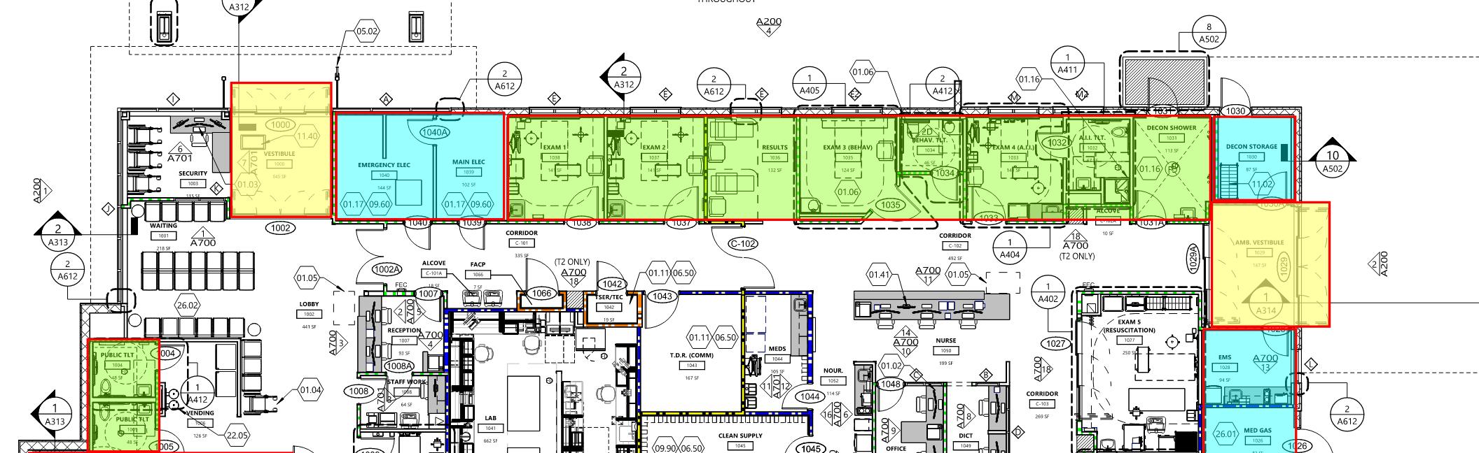
o Hospital: 730,000 sq. ft./360 Beds
o FSED: 30,000 sq. ft.
o Medical Office: 240,000 sq. ft.
o Surgical Center: 20,000 sq. ft.
o Supporting Retail: 20,000 sq. ft.
o Hotel: 150 rooms

• Urban Development Area, but adjacent to Central City Area
Health Care Trends in Lakeland
Orlando Health
• Transportation Concurrency through Development Agreement
• Access & Intersection Improvements
• Multi-Use trail corridor dedication
• Bus purchase < $500,000 (City Impact Fee Credits)
• Operating costs, five years @ $150,000/year
• On-site transit superstop
• Transportation Demand Management
• On-site bicycle/pedestrian network, including trail connection
• 2020 Transportation Impact Fee Schedule

Health Care Trends in Lakeland
Orlando Health
• Buildout Reserved Capacity
• Transit Services Funding Agreement and Easement Agreement with Lakeland Area Mass Transit District
o Approved September 10, 2025
• Wastewater force main construction (coordination with trail and access construction, City & County permitting)
• Administrative Parking Variance

• Master Sign Package

Health Care Trends in Lakeland
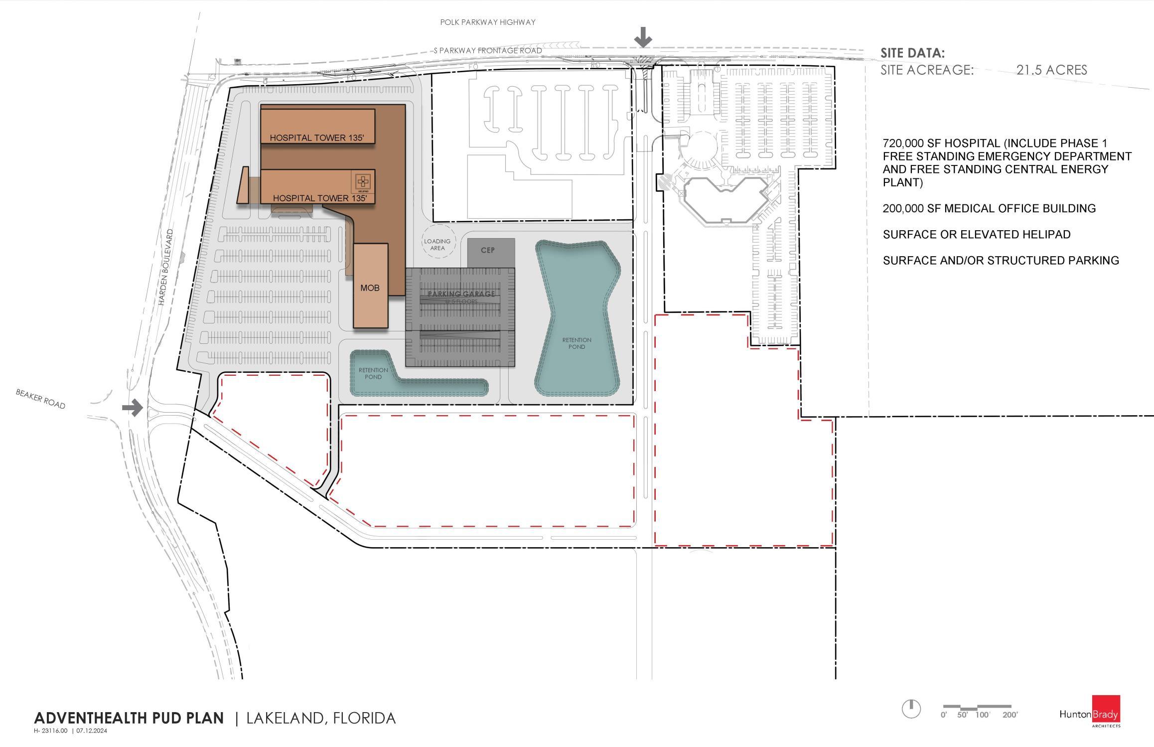
Advent Health
• Oakbridge Development of Regional Impact
• DRI Notice of Proposed Change, PUD and land use approved in 2024.
• 218-acre site
• Development Program
o Hospital: 400 Beds/720,000 sq. ft.
o Medical Office: 200,000 sq. ft.
o Retail/Commercial: 192,500 sq. ft.

o Multi-Family Residential: 250 dwelling units



Lakeland Central Park (Former DRI)
Publix HQ (Former DRI)




Oakbridge DRI
South Village


Health Care Trends in Lakeland
Advent Health
• Transportation mitigation already addressed through DRI.
• Trip equivalency relative to previous retail entitlements.
• Internal connectivity and transit conditions.
• Coordination with planned South Wabash Avenue Extension.
• Review by Lakeland International Airport and FAA.
• Master plat and site plan have not been submitted to date.

• Scope of initial phase and buildout TBD.


LONGWOOD AND THE SOUTH SEMINOLE OPPORTUNITY
CHRIS KINTNER, AICP
CITY OF LONGWOOD
COMMUNITY DEVELOPMENT DIRECTOR



HISTORIC LONGWOOD
• Longwood is an approximately 6 square mile city located in Seminole County with over 17,000 residents

• 15 miles north of Orlando
• Longwood is anchored by a 35-acre Historic District listed on the National Register of Historic Places
• Home to a thriving industrial core with UPS and FedEx distribution facilities, and more than 1,500 total businesses city wide

• Largely built out with a very limited number of vacant properties


SOUTH SEMINOLE HOSPITAL AND LONGWOOD
• The hospital building was constructed in 1984, and purchased by Orlando Health in 1992
• Located in the center of Downtown Longwood and adjacent to the Historic District

• Orlando Health was Longwood’s top employer for many years, with more than 900 employees



CHANGING DOWNTOWN
• SunRail opened one of its initial stations in Longwood in 2014, providing transit access to Orlando, Winter Park, and more
• The proximity to transit and desire to live in walkable neighborhoods helped spur residential and commercial development in the area, including the construction of nearly 1,000 new residential units in downtown alone as well as office expansions and relocations


• Longwood opened Reiter Park in 2018, which immediately became a regional events including the annual 4th of July Event


ORLANDO HEALTH REDEVELOPMENT
• In September 2022, Orlando Health announced plans to close South Seminole Hospital

• Announced plans included the construction of a Free-Standing Emergency Room as part of a “healthcare hub” with a “high-quality mix of multi-family residential, retail, and office uses”

• The FSER opened in 2025
• Most of the hospital has closed, with the behavioral health center relocated to Apopka within the next year


DOWNTOWN LONGWOOD



























ORLANDO HEALTH REDEVELOPMENT
• The 15-acre South Seminole site creates a generational opportunity to transform Downtown Longwood:
• A well-designed “healthcare hub” can be worked seamlessly into Longwood’s Historic District
• The commercial component of the site, with access to SR 434 (~42,000 ADT) will provide walkable destinations for the District’s existing residents, while the proximity to SunRail, Reiter Park, shopping, and more makes a desirable location for new residents and end users of the site
• Retail/restaurant component can absorb the existing demand from users that have not found a suitable building in Longwood or do not develop on their own
• Intersects with Florida Central Parkway, which accesses the Florida Central Commerce Park and includes the UPS and FedEx distribution centers and thousands of jobs



Tyler Johnson, AICP
VHB, Southeast Institutions Market Leader
tjohnson@vhb.com
Steve Noto, AICP
Orlando Health, Director of Planning stephen.noto@orlandohealth.com
Chuck Barmby, AICP CTP
City of Lakeland, Planning & Transportation Manager
Charles.Barmby@lakelandgov.net
Chris Kintner, AICP
City of Longwood, Community Development Director ckintner@longwoodfl.org