
edited by MANLIO MICHIELETTO
![]()

edited by MANLIO MICHIELETTO
edited by
MANLIO MICHIELETTO
Architectural projects in Venice and Rome


RECOMPOSING THE FORMA URBIS
Architectural projects in Venice and Rome
ISBN 979-12-5953-175-9 (printed version)
ISBN 979-12-5953-181-0 (digital version)
edited by Manlio Michieletto
editorial board
Ahmed Hegazy, Yara Galal, Omar Salem
related laboratories and research programmes
The book showcases the outcomes of two bachelor’s design studios, ARCH800, conducted in the fall semesters of 2023 and 2024 at the German University in Cairo, GUC.
translation by Manlio Michieletto
publisher Anteferma Edizioni Srl via Asolo 12, Conegliano, TV edizioni@anteferma.it
First Edition: September 2025
Copyright
This work is distributed under Creative Commons License
Attribution - Non-commercial - Share-alike 4.0 International
Manlio Michieletto
The following research collects the experiences related to bachelor design studios carried out in two consecutive academic years, under the direction of Assoc. Prof. Dr. Manlio Michieletto and teaching assistants Yara Galal, Ahmed Hegazy and Omar Salem. A special thank go to Habiba Riad, Roaa Tawfik and Salma Hefnawi for their valuable contribution in collecting, selecting and editing the students’ projects.
The 2022/23 bachelor design studio, THE LIMINAL SPACE: RE-SHAPING THE SANT’ELENA ISLAND VENICE, and the 2023/24 bachelor design studio, RECOMPOSING THE FORMA URBIS. The first project redefined a former ACTV vaporetto workshops property in Venice, integrating residential, commercial, and public functions while preserving the local ecosystem. Students analysed the site, studied Venetian precedents, and developed master plans emphasising thresholds as transition elements between architecture and nature. The second project addressed the regeneration of Rome’s former military compound in Via Guido Reni, envisioning a science museum, social housing, and civic spaces aligned with Roma Capitale’s urban strategy and citizen participation efforts. This study underscores the pedagogical value of engaging students in real-world urban challenges, fostering
an awareness of sustainability and community-driven design. The projects illustrate architecture’s capacity to mediate between history and contemporary urban needs, offering insights into the evolving role of architects in shaping the cities.
Venice is an amphibious organism, which serenely perpetuates itself between land and lagoon. This liminal space is vital for its continuity, or rather for its sustainability over time. The redevelopment must take up the city’s invitation to establish a renewed relationship with architecture capable of reducing the hemorrhage of inhabitants towards the mainland. The anthropic pressure on Venice has long been understood as mass tourism or some mass invasion pushing those who built it out of their habitat and who, knowing its nature and dynamics, can allow its preservation. Venice and the Venetians cannot be considered two distinct or dissociated entities. For this reason, the municipality is working on residential projects capable of repopulating the lagoon community. The following students have individually designed and defended their bachelor thesis: Adham Zakaria, Ahmed Abdel Bary, Ahmed Tagy, Amira Walid, Farah Kodsy, Ganna Hammad, Gina Samy, Habiba Hatem, Hassan Shdeed, Lobna Mahmoud, Mai Mahmoud, Malak Abou Zekry, Mavy Ayman, Nada El Sayed, Nour Donia, Rahma Mohamed, Rana Mohamed, Renada Mohamed, Rola Zaky, Sarah Al Abhar, Sarah Yasser, Sherine El Abd and Yara Amr.
Rome is the Urbe, or the reference for the construction of numerous cities, without being typically “Roman” itself, where history is built in four dimensions. The projects developed by the students of the Bachelor Design Studio have attempted to recompose the area intended for the redevelopment of the former Caserma di via Guido Reni, located in the Flaminio district. This project involves the creation of new public spaces, including a library, a neighborhood civic center, social housing and an area dedicated to disseminating scientific culture. The design of these services is entrusted through a competition announced by Roma Capitale, following an essential process of involvement of citizens and the Municipality. The projects presented concern the individual design of the general plan to continue with the definition up to the architectural scale of a new science museum or residential neighborhood. The following students have individually designed and defended their bachelor thesis: Aly Tarek, Anne Marie, Farah Hisham, Habiba Maged, Habiba Riad, Hana Amr, Hana Mamdouh, Ilaria Samuel, Jana Amir, Joumana El Khouly, Karma El Antably, Nourhan Abdullah, Omaima Gaber, Rawan Ramadan, Roaa Tawfik, Salma Hefnawi, Salma Moussa, Sandra Mazouz and Yoanna Sameh.
Manlio Michieletto, associate professor, Department of Architecture and Urban Design, GUC German University in Cairo, Egypt
This chapter offers a pedagogical reflection on the urban design proposals developed by bachelor students, analysed from both compositional and methodological perspectives. It focuses on their design strategies for new urban developments in contexts where the city is the primary reference point. Through these academic exercises, students engaged in a critical dialogue between contemporary architectural interventions and the historical urban fabric, emphasising the formative role of architectural education in shaping the next generation of urban designers. The projects illustrate how historical and architectural awareness can be integrated to produce sustainable and contextually attuned urban solutions. In doing so, they reinforce the significance of these principles within broader architectural and urban planning discourses, while exploring ways of envisioning the city as a dynamic and responsive entity. By grounding their proposals in place-specificity, the students adopted a forward-thinking approach to urban development that seeks a balance between historical continuity and modern needs. As Aldo Rossi (1966) reminds us, “the city builds itself over time,” a dynamic process in which subject and object interact to pursue a shared objective: preserving and evolving collective memory.
Since its foundation, the urban development of Venice has demanded a continuous dialogue with its fragile and unique environment. As Italo Calvino evocatively describes through the fictional account of Marco Polo, Venice appears as a city “entirely built on water,” its foundations submerged, its canals replacing streets (Calvino, 1972). Yet Calvino invites us to look beyond the visible city to sense the invisible layers that truly define its character. As in a Turner watercolour, the boundaries between what is seen and sensed dissolve, merging into a compositional space that reveals the lagoon’s domesticity.
This reflection provides the critical lens through which we approach the analysis of the students’ design proposals, focusing on compositional and operational choices. Particular attention is given to how the proposals engage with the surrounding ecosystem, not merely preserving it, but incorporating it as an essential material in the architectural language.
The area under investigation lies in the easternmost part of Venice, within the Castello sestiere, on the island of Sant’Elena. Historically peripheral and only marginally represented in Jacopo de Barbari’s 15th-century map, Sant’Elena was named in 1233 following the arrival of Saint Helena’s relics, which remain enshrined in the church bearing her name. The island remained abandoned mainly after the Napoleonic suppression until its post-WWI urban revival. Key figures such as Duilio and Giuseppe Torres, Giulio Alessandri, and engineer Fausto Finzi led the reclamation of the salt marsh, transforming a former military training ground into a new urban fragment. Among the realised interventions, the Parco delle Rimembranze – extending the public green edge of the Giardini Pubblici – has become a beloved local landmark, reinforcing the island’s relationship with the lagoon.
To counter Venice’s declining population, the municipality launched several housing initiatives, one of which is centred on Sant’Elena. In 2020, the city introduced a preliminary proposal titled Riqualificazione dell’area Ex Cantiere ACTV a Sant’Elena, Venezia, envisioning the transformation of the former ACTV (public transport) shipyard. The plan proposes the demolition of the existing sheds and creation of a new, mixed-use development with a total gross floor area of 45,500 square meters across 6.5 hectares.
The proposed redevelopment aims to combine private residences with small commercial and artisanal activities, production spaces, and public amenities. A network of pedestrian alleys links these functions, culminating in a central campo that overlooks the docks. Sports facilities will occupy the southern part of the site, including open playgrounds and a public gym. The existing carpentry workshop will be relocated further south, maintaining its connection to the Rio dei Giardini, and integrated within a new production volume.
Residential architecture is conceived as multi-family, multi-storey buildings with varied heights and articulated forms to avoid monolithic masses. Private outdoor spaces are an integral part of the housing layout. These design principles recall the guidance of Egle Renata Trincanato in her Guida alla Venezia Minore (1948), where she highlights the singularity of Venice’s topography and its profound influence on the architecture developed within it.
Venice occupies a unique position at the intersection of nature and culture, past and future, land and sea. Its liminal space – physical and metaphysical –functions as a threshold between the built and unbuilt, humankind and environment. It is a fragile and dynamic boundary, held in a delicate balance that any contemporary design intervention must respect and respond to. This balance, however, is not solely a matter of architecture or engineering; it is also social and cultural. In this context, the inhabitants become active participants – the actual actors – in shaping and maintaining this equilibrium.
The design research and student projects presented in this subchapter address transforming a site within this liminal geography: the Island of Sant’Elena. Here, the studio brief encouraged students to engage with Venice not as a static historic entity, but as an evolving urban organism. Their work explores the thresholds between land and water, memory and innovation, science and art, proposing new relationships and morphologies for a portion of the city often perceived as peripheral. Venice is a city that has historically sustained itself through a symbiotic relationship with its environment. As such, it embodies a form of ecological intelligence long before the term entered contemporary urban discourse. To propose Venice as a model of sustainable urbanism is to affirm its capacity to teach us about climate adaptation, spatial resilience, and the productive coexistence of humans and nature. This perspective demands a mode of engagement that goes beyond the city as an image. Venice should not be seen merely as a postcard or spectacle, but as a living paradigm, offering profound insights for future urban models, particularly when contrasted with less effective contemporary developments. The design studio that frames this exploration was structured as the final course in the architecture and urban planning curriculum. Its methodology was shaped around case study analysis, site investigation, and typological experimentation. Students were first introduced to exemplary urban regeneration projects, including: Housing in the ex-Saffa area by Vittorio Gregotti; Ex Junghans Renewal Plan by Cino Zucchi; Campo di Marte Social Housing by Álvaro Siza Vieira, Carlo Aymonino, and Aldo Rossi; Residential Building Complex by Gino Valle; The unbuilt Hospital Project by Le Corbusier.

Sketches of the final projects’ proposals.
Source: Manlio Michieletto.
These precedents, carefully selected for their critical engagement with context and typology, served as design references and instruments of reflection. The theoretical foundation of the studio centred on Carlo Aymonino’s (1966) notion of the interplay between urban morphology and building typology, a theme that remains central to contemporary design discourse. This was complemented by a field study in Venice, enabling students to confront the materiality and atmosphere of the site firsthand.
Travel – understood here not as leisure, but as a critical and immersive act –was treated as a form of knowledge production. In the words of Richard Rogers (1997), travel acts as a “construction material”, enhancing the consistency of architectural intervention through engagement with environmental and cultural pre-existences. As Italo Calvino (1974) wrote, “The force with which Venice acts on the imagination is that of a living archetype that overlooks utopia.” Through the lens of the studio, Venice becomes not only an object of study but a pedagogical model – an urban landscape that simultaneously evokes memory and provokes future visions.
The Tiber Bend, located along Via Flaminia and historically part of the ancient Prata Flaminia, remained largely undeveloped for centuries due to its marginal position beyond the Aurelian Walls and its proneness to flooding from the Tiber River. Its remote and unstable terrain discouraged significant urbanisation until the early 19th century, when the De Tournon Administration, under Napoleonic rule, recognised the site’s strategic potential within a broader vision for the embellishment of Rome.
Architect Giuseppe Valadier conceived two visionary urban proposals in this context: Nuovo Campo Marzio (1805) and Villa di Napoleone (1809). These plans aimed to redefine the northern gateway to Rome by transforming the area into a monumental urban park composed of tree-lined avenues, public squares, and recreational spaces, thus establishing a dialogue between the natural landscape and the emerging urban fabric (Muntoni, 1996). Urban growth accelerated with Rome’s designation as the capital of unified Italy in 1870. The 1883 Master Plan by Alessandro Viviani and the 1909 plan of Edmondo Sanjust di Teulada introduced a formalised trident layout for the Flaminio district. This geometry was structured around a central square and a new bridge envisioned to connect the area to future northern expansions, reflecting a Beaux-Arts approach to city planning. Industrial activity marked the next phase of development. In 1916, an automobile manufacturing facility within the district was converted into the Royal Arms Factory (Fabbrica Reale d’Armi), progressively
expanding across Via Flaminia, Via dei Settanta, and Via del Vignola. The 1931 General Regulatory Plan reinforced the residential function of the district while maintaining the trident configuration. It also integrated new infrastructure, including a direct roadway connecting Via Flaminia with the planned Piazza Mancini and the Ponte Duca d’Aosta, an essential link across the Tiber (Portoghesi, 2000).
By the mid-20th century, the industrial complex had evolved into the Stabilimento Militare per l’Elettronica e Elettrotecnica di Precisione (SMEEP), a major facility for precision electronic materials. It remained operational until its decommissioning in the late 1990s, marking the end of the area’s industrial chapter and opening the door to new urban redevelopment prospects.
The redevelopment of the former military barracks along Via Guido Reni, located in the heart of Rome’s Flaminio district, marks a pivotal moment in the city’s ongoing urban transformation. Spanning approximately 55,000 m², the site – currently owned by Cassa Depositi e Prestiti – is the focal point of an ambitious urban regeneration strategy initiated by Roma Capitale (2010) and supported by scholarly frameworks (Strappa, 2014). The master plan outlines a mixed-use program consisting of 35,000 m² of residential buildings (including 6,000 m² for social housing), a 7,000 m² hotel, 3,000 m² for local retail, and 2,000 m² of public services. These include a state-of-the-art library, extensive green areas, and pedestrian-oriented open spaces to reinvigorate the district’s urban fabric.
Crucial to this transformation has been the academic design exploration led by students of the Department of Architecture at the German University in Cairo. In 2024, students developed a comprehensive master plan for the site, adopting a mixed-use framework that integrated public services, diverse residential typologies, and cultural infrastructures. Central to their proposal was a rethinking of urban permeability: students countered the historic barriers imposed by the site’s former military enclosure by organising the site along a north-south axis. The master plan promoted continuity with the existing urban fabric. It emphasised key landscape features such as the preserved rows of lime trees along Via Guido Reni, reinforcing ecological identity and urban memory. Building on this foundational framework, the Bachelor’s Thesis projects presented detailed architectural interventions demonstrating various interpretive responses. Some students proposed a Museum of Science, conceived as a dynamic cultural hub, enriching the district’s intellectual and educational landscape. Others explored the potential of a new residential neighbourhood,

experimenting with typologies that balanced urban density and openness. Their projects emphasised spatial quality, with visual connections to internal courtyards, tree-shaded public squares, and panoramic views of the Tiber River and surrounding hills.
This approach resonates with broader critiques of Flaminio’s urban development. The students’ proposals actively engaged with historical and contemporary models of urban form. Rejecting both the closed-block typology typified by Viale Pinturicchio and the fragmented urbanism along Via Flaminia (Landi, 2015), the projects instead referenced precedents such as Villa Riccio, known
for its thoughtful articulation of open spaces. However, unlike Villa Riccio, the students avoided creating a secluded enclave. In parallel, they drew from the Olympic Village’s generosity in public space design while critiquing its rigid functional zoning and proposing a more integrated, layered spatial structure. A key element of the proposed redevelopment is the role of public space as a structuring device. The master plan envisions a continuous pedestrian axis that connects the Ponte della Musica with the Montemario Reserve to the west and Villa Glori to the east. This linear system strengthens the district’s axial relationships, integrating it with the wider urban composition of the Flaminio trident, particularly linking Via Masaccio in the north to Viale del Vignola in the south. The scheme also interacts directly with the open spaces of the MAXXI Museum (Celant, 2001), proposing a park in the southern portion of the site to establish a visual and functional continuity with Villa Flaminia Park. In doing so, the plan promotes a more permeable and connected urban environment. This layered design methodology – bridging historical strategies, contemporary policies, and academic experimentation – positions the Flaminio redevelopment as a model of critical urban regeneration. The involvement of architecture students demonstrates the value of educational research in real-world urban discourse and reinforces the potential of design education to influence planning paradigms. By mediating between heritage and innovation, the project affirms that future urban transformations in Rome must operate within a continuity dialogue, respecting the city’s complex palimpsest while advancing new visions of sustainable and inclusive urban living.
Bibliography
Aymonino, C. (1966). Rapporti tra la morfologia urbana e la tipologia edilizia. Cluva, Venice.
Calvino, I. (1972). Le città invisibili. Einaudi, Torino.
Calvino, I. (1974). Venezia archetipo e utopia della città acquatica. Mondadori, Milano.
Celant, G. (2001). MAXXI – Museo nazionale delle arti del XXI secolo: Il progetto. Electa, Milano. Insula (2010). Piano di Assetto del Flaminio. Roma Capitale, Dipartimento Programmazione e Attuazione Urbanistica.
Landi, G. (2015). Il quartiere Flaminio a Roma: Trasformazioni urbane tra memoria e progetto. Gangemi, Roma. Muntoni, A. (1996). Roma moderna. Da Nathan al Sessantotto. Laterza, Bari.
Portoghesi, P. (2000). Roma del futuro. Progetti per una metropoli moderna. Laterza, Bari. Rogers, E. N. (1997). Esperienze dell’architettura. Einaudi, Torino, pp. 286–293.
Rossi, A. (1966). L’architettura della città. Marsilio, Padova.
Strappa, G. (2014). Un progetto per Roma: Forma urbana e costruzione della città. FrancoAngeli, Milano. Trincanato, E. R. (1948). Venezia minore. Edizioni del Milione, Milano.
Yara Galal, teaching assistant, Architecture and Urban Design Department, GUC German University in Cairo, Egypt
During the Spring Semesters of 2023 and 2024, bachelor students from the German University in Cairo were tasked to work on designing mixed-use housing projects in Venice and Rome respectively. The course is part of the Architecture and Urban Design track in the university. Along with the teaching staff, there were an average of 30 students per semester, during their academic career at the university, the student’s mainly worked within the Egyptian context. The Bachelor thesis semester was one of the first chances for them to experience a foreign context and in particular the Italian one. The context brought by the two cities, despite being in the same country, offer a refreshingly different environment.
With the aim to get familiar with the urban background, the students started reviewing various historical maps of the two cities. To conclude the unique character of Venice as a city frozen in time, while Rome is an expanding city with a preserved historical center. While mapping the cities, and in hope of understanding Venice and Rome better, the students crafted models of the cities in different scales, this allowed them to take the time in building and detailing the cities which gave them a deeper understanding of the context.
A period of a month and half in the semester was spent in a process of learning and accumulating information, the aim was to completely process the cities to be able to critically and competently design in them, especially cities with long standing history. During the analysis period, students were able to visit Venice in the Spring of 2023, but unfortunately, a visit to Rome was not possible.
In Venice, the site proposed for the students to work in is on the Sant’Elena Island on the easternmost side of the city. The aim of the studio is to reshape part of the Island, on the peripheries of the city, where land meets water. The target was to promote the students to experience Venice as a sustainable urban model through its compactness and walkability. Sant’Elena Island previously centered around the church of Sant’Elena and its monastery, during 1920’s the island was extended to be linked to the city of Venice by three bridges, leading to it being more accessible.
In Rome, during the spring semester of 2024, the bachelor thesis students worked on the outskirts of the city. The site was located in the Flaminio District north of the ancient city center. The district has been in constant flux since its conception, characterized by military walls and multi-storey residential buildings. The site has a straight connection to the city through the via Flaminia. With the historic city to the south and Zaha Hadid’s museum to the north, the site occupies a vital center to the ancient city of Rome. A master plan of the district was proposed to reshape the area, centering on making the city a more sustainable and walkable area, while being a center of sports and artistic center.
The first step taken by the Bachelor thesis students to get a grasp of the context is reviewing a variety of historical maps. The historical maps gave an insight on the frozen in time state of the city of Venice and the expanding state of the city of Rome. Jacopo De Barbari View of Venice (1500 AD) was the main map consulted by the students. The print shows the island of Venice surrounded by the island on the Venetian lagoon such as: Murano, Burano, Giudecca, Mazzorbo and Torcello. The map also shows the names of prominent buildings and locations printed including the Venetian Churches and the 103 bell towers.
What added to the value of the De Barbari map is the realistic depiction of its topographic view, the large and important buildings are not highlighted but rather shown in the same scale as less important ones. However, the street plan is simplified in some areas and the height of some buildings and bell towers are depicted as twice as tall.

The accuracy of the map led some commentators to suggest that the map might be based on a ground survey from one of the city’s bell towers. However, recent research suggests that the drawings were perhaps based on plans used for maintenance of the city’s waterways1.
On the other hand, the site in Rome yielded a lot of historical maps since it was a military compound. However, the focus of the studio was to promote learning from the past, hence the introduction of Forma Urbis Romae (205-208 AD), the map was detailed enough to show nearly every public building in the city. Interestingly, the map was oriented with the south direction to the top, with the names and plans of buildings, streets and private homes illustrated on it.
The main source of information for the studio about the city of Rome was the map drafted by Giambattista Nolli of Rome in (1736-1748 AD) of the ancient center of Rome. The Nolli map was of interest to the students since it represents public buildings such as the colonnades in St. Peter’s Square and the Pantheon were open public spaces for civilians, which gave an understanding about the relationship between buildings and public space. Due to the accuracy of the map, it was used in government planning for the city of Rome until the 1970s.
To stimulate an understanding of unfamiliar context, different scales of models were requested of the students. In pedagogy, Models are generally seen as a provocative and direct way of conveying information, it is a method that engages more than the observatory senses, thus leading to a very rich and three-dimensional aspect and properties that imitates real life.
It was requested from the students to model two scales of each city, in hopes of perceiving the three-dimensional experience rather than imagining it. The first scale was of a 1:5000 scale model of both cities, modeling a large scale of the cities allowed a familiarity of the morphological characteristics of the urban fabric of each city. The time taken to draft the city and visualize its heights and proportions gave a significant advantage in communicating the size and typologies that exist in each city.
Other models of a scale ranging from 1:500 to 1:100 were requested of the students; as it gave an understanding of the human-level elements of the city. This scale of modeling was especially intriguing when modeling spaces in historical cities where facade, form and structure resemble walking through an open-air exhibition.
Parallel to exploration through historical maps and model making, a process of urban analysis was ongoing. The start was by analysing the historical devel-
opment of Venice and Rome. The students focused on making a sequential understanding of the eras of each city, it was essential to understand how power plays into shaping the fabric of a city.
As for the Eternal City, Rome was first to be known as a settlement along the Tiber River due to its fertile land. Later, this small settlement would become the heart of the Roman Empire. The power of the Roman Empire was very clear through the symbolic and prominent architecture impeded through the fabric of the city. The Roman Forum, as a basic unit of the city, portrayed the city grandeur. After the fall of the Roman Empire, the city faced a decline until the 16th century which was followed by the renaissance period that brought with it its own enlightenment.
A knowledge of the city’s history and power dynamics that shaped it gave a base of understanding to smoothly start the analysis of the morphological and typological aspects of the city. The students first started with analysing the morphology of the city, with the aim to form an understanding of the different urban spatial forms and fabric, to observe how the buildings are assembled and how in turn the buildings assemble public spaces. While exploring the urban morphology, one important aspect was to analyse the spatial practices that influenced the production of the city. The city of Venice provided a very unique case study in this regard, it is a city that perfectly encompasses Henri Lefebvre’s definition of production in his book The Production of Space which explains that space is a social product made of social constructions such as values and rituals that are unique to each society, which in turn affect spatial practices.
Through a lecture given to the students, an introduction to certain urban elements in Venice that collectively encompasses the urban fabric unique to it.These elements added to the whimsy of the city, the streets were narrow paths with different name and the Venetian square famously known as Campo in contrast to other Italian cities where it is simply called a Piazza. The difference that is granted to Venice comes from the socio-spatial practice of Venetians, where Campo literally translates into a cultivation field with houses around it to tend to, surrounded by shops, Churches and workshops; it acted as a model example of a node in a historical city. During the student’s research it was discovered that public spaces had a different hierarchy according to the practice of individuals such as Campiello and Corte, which is a smaller Campo or square. The street network of Venice was also a major element of analysis and its hierarchy, similar analysis was applied to the city of Rome with similar methodology.

The typological analysis was another branch of analysis that was essential in understanding a foreign context, the typological analysis gave insight on different typologies in the city that cluster together to form space in the fabric. This is a study to classify what type of buildings were dominant in the fabric of the city and take inspiration from it in the design process. It was concluded through analysis that both cities were dominated by courtyard buildings with a variety of other typologies.
Building on the contextual analysis provided through the morphological and typological analysis, a site analysis was additionally conducted. With the belief that designing a building or a neighbourhood is a product of accumulating knowledge and respecting the context, and as Frank Llyod Wright elaborated in his biography “ No house should ever be on a hill or on anything. It should be the hill. Belonging to it. Hill and house should live together, each the happier for the other”3. Thus, the students started the design process.
During March of 2023, the bachelor studio designing in the city of Venice had the opportunity to conduct a site visit to the city. The city offered a bounty of information and projects to study and be inspired from. However the focus of the visit, along with visiting historic buildings and experiencing the urban city, was to visit the island of Giudecca Island. The island had a variety of projects that was built by masters of architecture in the last 50 years. Most prominent of which is Gino Valle’s project Casa Alla Giudecca where he perfectly embodied the urban hierarchy of the city, and Cino Zucchi’s D residential building, ex Junghans area, where the students drew a lot of inspiration from the typologies of the apartments. The aim of the site visit is to get a deep and personalized understanding of the context while offering how modern and contemporary architects work in a well established and historic fabric. Unfortunately, a similar site visit for the bachelor studio working in Rome was not possible at the time.
In conclusion, working in a very rich and dense urban environment such as the cities of Venice and Rome, and coming from a middle eastern context that offers a poles apart reality, the students and teaching assistants went through an intensive period of accumulating informations through lectures, presentations, studying historic maps, model making and analysis.

Notes
1.Juergen Schulz, J. (1978). Jacopo de’ Barbari’s View of Venice: Map Making, City Views, and Moralized Geography before the Year 1500 The Art Bulletin, Vol. 60, n. 3 , pp. 425-474.
2.Barbari, J. de’. (n.d.). View of Venice, Jacopo de’ Barbari, Anton Kolb, Minneapolis Institute of Art. Mia. https:// collections.artsmia.org/art/111219/view-of-venice-jacopo-de-barbari-anton-kolb.
3.Wright, F. L. (1943). Frank Lloyd Wright: An autobiography. Duell, Sloan and Pearce, p. 168.
Bibliography
Juergen Schulz, J. (1978). Jacopo de’ Barbari’s View of Venice: Map Making, City Views, and Moralized Geography before the Year 1500 The Art Bulletin, Vol. 60, n. 3.
La Regina, Adriano, ed. (2007) [2004]. Archaeological Guide to Rome. Richard Sadleir (trans.) (New update ed.). Electa. p. 179.
Nuova Pianta di Roma. Online on : nolli.uoregon.edu. Archived from the original on 2007-02-06. Retrieved 2007-02-09.
Habiba Riad, Roaa Tawfik and Salma Hefnawi, graduate students, Architecture and Urban Design Department, GUC German University in Cairo, Egypt
It is crucial to introduce and briefly discuss the works that affected student projects in Rome and Venice in order to fully understand their intellectual foundations. In this chapter, several important projects that students studies during the design process are examined. Among them are the works of Cino Zucchi and Gino Valle in Venice’s Giudecca district, with a background of Aldo Rossi’s contributions to the city’s urban theory and Giulia Foscari’s Elements of Venice, the modular housing of Rome’s Olympic Village, and Le Corbusier’s unbuilt Venice Hospital. Giudecca transformed from Venice’s manufacturing and farming heart into a testing ground for architectural innovation (Plevoets & Van Cleempoel, 2019).Here, Gino Valle’s flats demonstrated how contemporary architecture could be both bold and sensitive to its surroundings. By putting theory into practice, Aldo Rossi’s concepts enabled us to perceive the city as layers of history that are constantly being rewritten. Later, Cino Zucchi demonstrated how modern architecture may enhance the island’s personality and character rather than overshadow it. The Olympic Village in Rome, meanwhile, was a bold declaration of modernism (Tafuri, 1973). Le Corbusier’s hospital design for Venice, which was never constructed, is still an intriguing “what if” that served as the basis for many of the projects (Cohen, 2013; Samuel, 2010). The chapter progresses through key themes, contrasting different design approaches, contextuality and urban integration, as well as materiality.


Giudecca island was the perfect area for experimenting with design when it comes to building projects that are modern yet connected to the area’s rich identity and history.One of the most significant projects that resemble this integration is The Junghans project by Cino Zucchi. The masterplan acknowledges Giudecca’s dual character urban fabric, from the dense fabric at the north to the more spacious industrial part at the south, giving the project multiple scales (Foscari, 2014). He introduces a new canal that traverses the southern residential area, extending the site to the rest of Venice with a square that overlooks an existing school (Plevoets & Van Cleempoel, 2019). Zucchi’s approach was inspired by the traditional hierarchy of open spaces in Venetian urban fabric (Rossi, 1982); public squares and courtyards provide communal gathering spaces and visual links to the lagoon (Foscari, 2014). Zucchi based his concepts around the contrast found in th urban pattern and implemented it in his designs. For the northern part, the existing calli was the guideline for the arrangements of the new buildings. While some of the industrial buildings have been maintained or transformed to other buildings. On the other hand, the southern area of the site, previous buildings of the industrial area were replaced completely with a new set of buildings in a row, with a new square and canal facing the lagoon pro-

viding better landscape accessibility and visual connection; each one of them carries a different perspective of Venetian architecture (Foscari, 2014).
On the new campo, a building alludes graphically to the stone scores of Venetian buildings (Foscari, 2014, p. 87), while there are continual allusions in the openings, in the cornices and in the deformation of the roofs (Zucchi, 2013, p. 112). The main two buildings of the project (G1 and G2) hold different functions. Distinguished by their contemporary design, the use of local materials such as brick and Venetian stucco made them feel like they are part of the historic city. The design of the building focuses on emphasizing the connection between the outside and the inside resembling the contrast found in the area, the subtracted part of the building carrying the recessed staircase, angled walls increasing the view towards the lagoon, adding the subtracted area on the bottom level to interact more with the water all act as a cohseive formula to relate to the identity of the Geduicca island. Cino Zucchi’s design is a perfect example of integration of old and new, responding to the different urban fabric of the land through all layers of his design (Rossi, 1982, p. 56; Zucchi, 2005, p. 74). Cino Zucchi was not the only one to implant his concepts in the Giudecca island. Architect Gino Valle designed the IACP complex (Valle, 1995, p. 203).
Located in the southern part of the Giudecca island in Venice, behind the former Stucky Mill, the design pays respect to Venice’s urban character by having hierarchy in open spaces or porticos while creating a flexible fabric that resembles the past industrial buildings (Tafuri, 1980, p. 167; Valle, 1995, p. 210)The building’s ground attachment to the north, set back from the side ends, can be crossed until reaching the courtyard inside the fabric of houses, a sort of closed campiello. Valle embedded the same modular pattern through the buildings within themselves generating contrast of spaces that complement each other (Tafuri, 1980). Dwellings with individual access, the C-shaped plan provides more enclosed courtyards that act as a view for rooms. Ensuring inclusivity, the buildings host multiple housing typologies; duplex, and triplex units, apartments vertically combined, creating a dynamic yet orderly composition. Valle followed a dialogue with the environment that can be seen through the chosen materials of the facades; clad by pink bricks, framing the structure by reinforced concrete slabs and arches, colored plaster coating for staircase blocks, and roof tile for pitched roofs (Valle, 1995; Plevoets & Van Cleempoel, 2019). Gino Valle shows how a straightforward grid can serve residents while respecting the site’s past (Frampton, 2020; Tafuri, 1980).
Venice’s Giudecca projects stand in stark contrast to Rome’s Olympic Village, which was created by Cafiero, Libera, Luccichenti, Monaco, and Moretti (Kirk, 2005). This later-converted housing complex along the Tiber River was constructed to house 8,000 athletes during the 1960 Olympics. Its modular concrete apartment layout and expansive green areas emphasize community through common courtyards and pedestrian routes (Ghirardo, 2013). It uses Mediterranean elements, such as terracotta accents, but its materials are simpler than those of Giudecca’s structures (Benton, 2017). Its raised pilotis allow for visual connectivity, and its creative croquette residential blocks produce well-lit complexes (Tafuri, 1976). Without contextual integration, the design demonstrates the long-term durability of modernist housing by accommodating a variety of unit kinds (Kirk, 2005). The complexes house anything from family duplexes to small apartments, demonstrating that modernist architecture that does not necessarily blend in with the surroundings could produce long-lasting and livable housing. In contrast to temporary Olympic projects, the village continues to be a successful place to live today (Ghirardo, 2013).
The unfinished Venice Hospital by Le Corbusier (1964–65) provides a fascinating contrast to the Olympic Village in Rome and the designs in Giudecca (Cohen, 2013). It was created as a floating medical facility close to Giudecca,
mirroring the city’s historic arrangement with square courtyards and connected modules that adopted Venice’s architectural language (Samuel, 2010). Similar to Venice’s ancient structures, the hospital would have been situated on pilotis, utilizing Corbusier’s renowned concrete instead of wood, giving the impression that it was an organic part of the city (Cohen, 2013; Samuel, 2010). It honored Venice’s distinctive waterscape with its raised walkways and modular grid of concrete structures (Frampton, 2020). Later Venetian architects may have been affected by this innovative project; its modular design can be seen in Valle’s housing grids, and its water-based architecture foreshadows Zucchi’s canalside structures.Despite never being constructed, the hospital is nevertheless a significant architectural “what if,” forcing designers to strike a balance between creativity and conservation (Cohen, 2013). Where Rome’s Olympic Village showed modernism’s success, and Giudecca proved its contextual adaptability, Corbusier’s hospital would have tested modern design within Venice’s historic fabric (Frampton, 2020; Samuel, 2010).

Plan and elevation of Le Corbusier’s unbuilt hospital in Venice.
Source: Foundation Le Corbusier.


Benton, T. (2017). Modernism and Italian architecture. Routledge, London. Cohen, J.-L. (2013). Le Corbusier: An atlas of modern landscapes. The Museum of Modern Art, New York.
Foscari, G. (2014). Elements of Venice. Lars Müller Publishers, Surich.
Frampton, K. (2020). Modern architecture: A critical history. Thames & Hudson, London. Ghirardo, D. (2013). Italy: Modern architectures in history. Reaktion Books, London.
Kirk, T. (2005). The architecture of modern Italy: Visions of utopia, 1900-present. Princeton Architectural Press, New York.
Rossi, A. (1982). The architecture of the city. MIT Press, Cambridge.
Samuel, F. (2010). Le Corbusier and the architectural promenade. Birkhäuser, Basilea.
Tafuri, M. (1976). Architecture and utopia: Design and capitalist development. MIT Press, Cambridge.
Tafuri, M. (1980). Theories and history of architecture. Harper & Row, New York.
Valle, G. (1995). Gino Valle: Complete works. Electa, Milano.
Zucchi, C. (2005). Cino Zucchi: Buildings and projects 1985-2005. Electa, Milano.
Plevoets, B., Van Cleempoel, K. (2019). Adaptive reuse as a strategy towards conservation of cultural heritage. International Journal of Heritage Studies, 25(1), pp. 140-156.
Zucchi, C. (2013). Junghans: A new piece of city. Architectural Design, 83(2), pp. 110-119.
PROJECT
PROJECT
PROJECT
PROJECT
PROJECT
PROJECT
PROJECT
Bachelor Thesis
The Liminal Space Re-shaping
The Sant’Elena Island
Advisors
Assoc. Prof. Dr. Manlio Michieletto
Arch. Ahmed Hegazy
Arch. Yara Galal Student
Roula Zaki
This bachelor’s thesis proposes a sus tainable redesign of Sant’Elena Island, focusing on the liminal spaces be tween land and sea, past and future. It aims to provide affordable housing while preserving the island’s natural and cultural identity. The project en hances public space through widened pathways, improved connectivity, and varied building heights that ensure light and livability. A key feature is the extension of the existing park into a continuous green spine, promoting recreation and well-being. By inte grating water, greenery, and urban life, the proposal supports a vibrant, inclusive community.




Figure (1) shown in the adjacent page , is a masterplan showing the project in its context in relation to its surroundings.

Figure (2) shown above is an axonometric view of the project highlighting the buildings functions and it’s placement within the landscape.
Figure (3) shown above , is the ground floor plan of the focus typology of the project showing the entrance and the terraced backyard .
Figure (4) shown above under the ground floor plan , is the first floor plan of same typology highlighting the courtyard in the middle and the double hight of the living area.
Figure (5) shown on the right, is a detailed section of the same typology showing the spatial qualities of the unit and it’s construction details.





Bachelor Thesis
The Liminal Space Re-shaping
The Sant’Elena Island
Advisors
Assoc. Prof. Dr. Manlio Michieletto
Arch. Ahmed Hegazy
Arch. Yara Galal
Student Farah Kodsy
This proposal addresses Venice’s housing crisis by introducing inclusive housing for all social classes, aiming to eliminate segregation and improve safety through integrated community design. A secondary goal is to extend and preserve the existing park at Giardini della Biennale, creating a continuous green spine that wraps around the island. Thoughtfully arranged trees maintain open views toward the lagoon, offering residents and visitors serene, accessible spaces for relaxation and recreation.






Figure (4) shown above is an exterior shot showing the spaces between masses and the visual connection to the canal.
Figure (5) shown on the right, is a shot taken under the bell tower overlooking the canal.


Bachelor Thesis
The Liminal Space Re-shaping
The Sant’Elena Island
Advisors
Assoc. Prof. Dr. Manlio Michieletto
Arch. Ahmed Hegazy
Arch. Yara Galal
Student
Ahmed Abdelbarry
This proposal for Santa Elena Island presents a forward-thinking urban and landscape design that draws inspiration from Venice’s rich archi tectural heritage. Incorporating tradi tional elements like campo, campiello, calles, and waterfront row housing, the project creates a seamless di alogue between past and present. Designed as an inclusive, mixed-use community, the masterplan sup ports social diversity and enhances livability through sustainable design strategies. Prioritizing accessibility to public transport, green spaces, and community amenities, the project fos ters a vibrant, resilient neighborhood while preserving the historic spirit and identity of Venice.




Figure (1) shown on the left shows that the masterplan is organized along a central axis formed by two new bridge connections. This axis extends the Biennale path and guides both circulation and building placement. A continuous green space system flows along it, linking the site to its cultural and natural context.

Figure (2) shown above is a zoomed in axonometric view of the pilotis building, showing the mass connection with the water canal and the accessibility as well as the street side with the landscape leading to the building’s protruding staircase entrance.

Figure (3) shown on the left is the typical detailed floor plan of the pilotis building which is the focus typology, showing 2 mirrored apartments.



Bachelor Thesis
The Liminal Space Re-shaping
The Sant’Elena Island
Advisors
Assoc. Prof. Dr. Manlio Michieletto
Arch. Ahmed Hegazy
Arch. Yara Galal
Student Gina Sami
Drawing inspiration from Aldo Rossi’s Campo di Marte masterplan, the project embraces linearity, order, and symmetry while adapting to the site. Water is integrated to support thriving ecosystems, providing natural resources and ecological benefits to residents. Mixed-use buildings with retail, restaurants, and cafes line the water, complemented by two open commercial squares with fountains and shops. Perpendicular to these, row houses offer residential spaces. Bridges connect Sant’Elena to surrounding islands and cross the inner canal, linking the two parts of the development.




Figure (1) shown on the left , is a masterplan of the project showing the overview of the masses with the context and the accessibility within the project.

Figure (2) shown above , is a bird view shot showing the whole project and it’s connection with the canal and the context.

Figure (3) shown on the left , is the ground floor plan of the focus typology of the project , having a courtyard in the middle dividing the spaces.

Figure (4) shown above , is a detailed section of the same typology showing the spatial qualities and division of the space.


Bachelor Thesis
The Liminal Space Re-shaping
The Sant’Elena Island
Advisors
Assoc. Prof. Dr. Manlio Michieletto
Arch. Ahmed Hegazy
Arch. Yara Galal
Student
Mavy Ayman
This bachelor thesis reimagines part of Sant’Elena Island by addressing the transitional space between land and water. It proposes a mixed-use complex that tackles Venice’s housing crisis while integrating commercial spaces around a central campo to enhance services, safety, and public life. The project extends the Remembrance Garden and Biennale green spine, increasing open space across the island. It also includes sports facilities to support health and leisure for residents and visitors alike.




Figure (1) shown on the left , is the masterplan that features buildings with direct canal access, including an internal canal running through the site. Residential blocks are organized around shared courtyards, while a commercial campo – facing the lagoon – is framed by mixed-use housing to create a vibrant gathering space.

Figure (2) shown above is the ground floor plan of the focus typology of the project , showing entrances, the spatial qualities and the division of the space.

Figure (3) shown above is a detailed typical floor plan of the focus typology of the project.
Figure (4) shown on the right , is a detailed section of the same typology showing the spatial qualities of the unit.



Bachelor Thesis
The Liminal Space Re-shaping
The Sant’Elena Island
Advisors
Assoc. Prof. Dr. Manlio Michieletto
Arch. Ahmed Hegazy
Arch. Yara Galal
Student Mai Mahmoud
The area’s reconversion examines the integration of houses, small com mercial and craft companies,sports equipment, public green areas, and production activities inside the prop erty. New pedestrian streets must connect the functional sections in the region, eventually leading to a central paved “Campo” Different scenes and experiences while walking in the area passing by Giardini della Biennale un til reaching 2 ways either the commer cial Campo area or the contentious path of greenery ,The opportunity of housing to be connected to water and greenery in different situations throughout the area of Sant’Elena island that overlooks the Lagoon.




Figure (1) shown on the left side, shows the masterplan of the project, it’s relation ship with the context, how it respond to the site in an harmonious way; showing the commercial axis and the green axis while showing all typologies through the ground floor plan, access points, and landscape of the project.
Figure (2) shown above, is a zoomed in isometric view shot of the project focusing on the masses connection with the water canals and their accessibility as well as the street side with the landscape leading to the building’s entrance ; while showing the massing and the design of the residential space.

In figure (3) shown on the adjacent page, the detailed plan view of the focus typology of the project , showing entrances from both sides, spatial qualities and division of the spaces .

Figure (4) show in previous page, is a section of the focus typology showing spatial qualities and details of construction.
In the below figure (5) is the main elevation of the focus typology, showing the brick facade with tall narrow openings and the middle double height glass opening.


Bachelor Thesis
The Liminal Space Re-shaping
The Sant’Elena Island
Advisors
Assoc. Prof. Dr. Manlio Michieletto
Arch. Ahmed Hegazy
Arch. Yara Galal
Student
Rahma Mahmoud
This project aims to re-shape the Sant’Elena Island into a local integrat ed community through the establishment of a mixed-use urban regeneration. A regeneration that aims to provide a range of affordable living in contact with the rich nature of Sant’Elena, easy access to services and retail facilities, extended green infrastructure, leisure opportunities and public spaces, carpentry workshops and sports facilities. While keeping in mind the urban structure of Venice. In order to preserve its identity and collective memory.







Figure (3) shown on the left of the previous page , shows a detailed plan of the focus typology showing a courtyard at the center of it that divides the ground open plan into separate parts.
Figure (4) shown in the previous page , is a detailed section of same typology

Figure (5) shown above , is a shot taken showing the public retail facilities in the ground floor and the residential units in the upper floors.

Bachelor Thesis
The Liminal Space Re-shaping
The Sant’Elena Island
Advisors
Assoc. Prof. Dr. Manlio Michieletto
Arch. Ahmed Hegazy
Arch. Yara Galal
Student
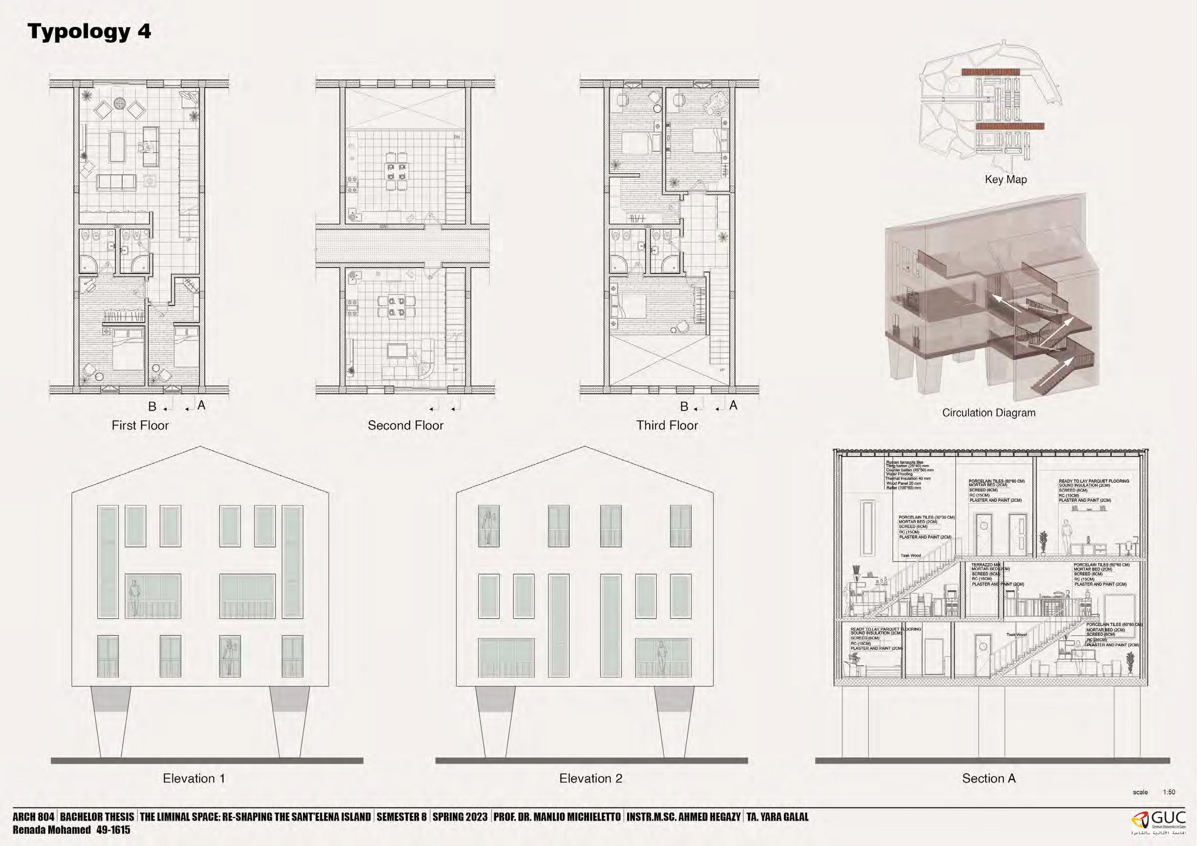
Renada Mohamed
The Project is situated on the east part of the island and extends slightly onto the water to create an interesting space in between- Liminal. The project also allows for the continuation of the biennale greenery onto the west side to create a huge park allow for more greenery into the site. The access to the island is opened more on the north and west so that visitors and residents will always enjoy the promenade through the park before reaching their final destination. The overall composition is inspired by Le Corbusier’s work and hopes to respond to the venetian lifestyle while also creating new spaces.






In figure (3) shown in the adjacent page , is a facade section elevation of the same focus typology showing the division of spaces with the openings on the elevation.

shown above, figure (4) , is an exterior shot showing the pathway between masses and their visual connection to the lagoon.


PROJECT 01
Roaa Tawfik
PROJECT 02
Habiba Maged
PROJECT 03
Salma Moussa
PROJECT 04
Habiba Riad
PROJECT 05
Farah Mousa
PROJECT 06
Jana Amir
PROJECT 07
Karma Ahmed Elantably
PROJECT 08
Salma Hefnawi




On the left figure (1), is the masterplan of the project showing the museum basement floor plan in context.
In figure (2) shown above,shows a closer look of the first floor plan and its open plan design that shows the space’s flexibility for the user’s experience.




In Figure (3) shown on the left,is the basement floor plan of the project and is shown in relation to a section of the building. It shows “the sphere” as a space which is another integral part of the museum’s design. the section also shows the buildings proportions and main spaces as well as a glimpse into the building’s structure.
Shown above on the left, Figure (4) shows a documentation of the project when it was exhibited among other projects in the exhibition that was held in the Italian Institute of Culture in Cairo, Egypt. A selected portion of the project was shown as well as several physical models showing the design.
On the right, Figure (5) shows an interior shot of one of the museum’s exhibition spaces.


Bachelor Thesis
Re-Composing The Forma Urbis
Advisors
Assoc. Prof. Dr. Manlio Michieletto
Arch. Omar Salem
Arch. Yara Galal
Student Habiba Maged
Kinetico - Museo della Scienza , Kinet ico emphasizes movement and inter action, reflecting the dynamic nature of science. The design invites curi osity, guiding visitors through a fluid path shaped by double-height halls, interactive exhibits, and stepped cir culation. The piazza extends into the museum, blurring the line between interior and exterior. Concrete gives the building a bold, contextual pres ence, while travertine highlights the central stair elements – key to both experience and form.



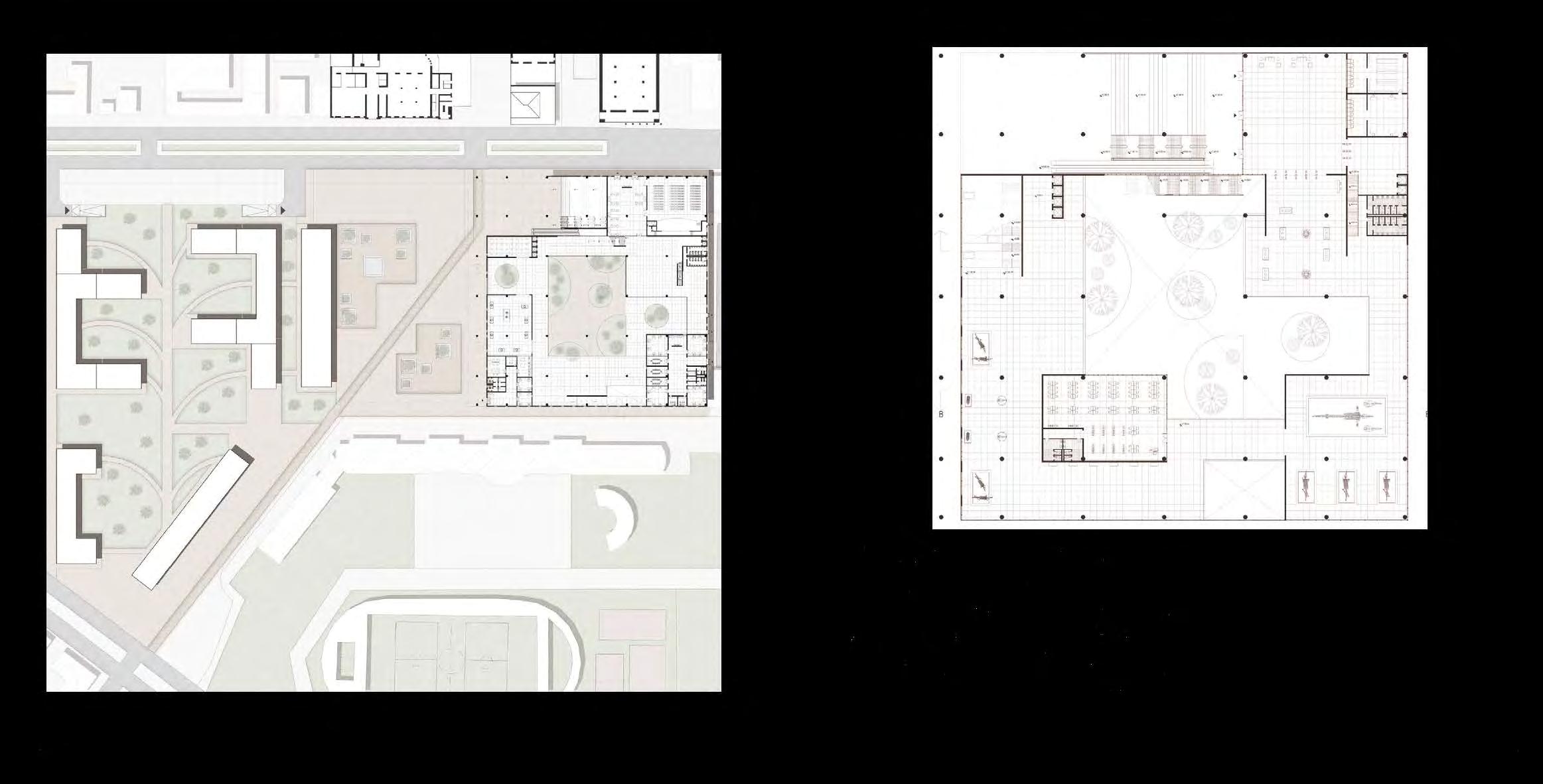
Figure (1) shown in the adjacent page, is a masterplan of the project showing the balance of mixed-use, residential, and cultural spaces. U-shaped and linear blocks ensure privacy, while a piazza with a fountain connects to the Science Museum, integrating public and cultural areas.

Figure (2) shown above , is a detailed floor plan of the project, where the visitor’s path begins on the first floor, moving through exhibition halls, the library, and bookstore.

Figure (3) in the adjacent page , is a detailed section of the museum showing the spacial qualities and division of the spaces in the project.

Figure (4) shown above is an interior shot taken on the ground floor in the central courtyard.


Bachelor Thesis
Re-Composing The Forma Urbis
Advisors
Assoc. Prof. Dr. Manlio Michieletto
Arch. Omar Salem
Arch. Yara Galal
Student Salma Moussa
The Quartiere Flaminio mixed-use housing project integrates modern functionality with the rich historical context of Rome. At its core is a central piazza inspired by the dynamic public space of the nearby MAXXI Museum, designed to foster community en gagement and cultural exchange. The project incorporates a variety of res idential typologies – mixed-use linear blocks, condominial apartments, and townhouses – alongside public amen ities such as a community library. This diverse layout enhances pedestrian flow, encourages social cohesion, and supports a wide range of housing needs, creating a vibrant and inclusive urban environment.









Bachelor Thesis
Re-Composing The Forma Urbis
Advisors
Assoc. Prof. Dr. Manlio Michieletto
Arch. Omar Salem
Arch. Yara Galal
Student Habiba Riad
The Cultural Crossing, this urban design project in Rome’s Flaminio district, , features a mixed-use development with a science museum, central piazza, and diverse residential typologies. Anchored by a main axis connecting key streets, the plan enhances pedestrian flow and community interaction. The central piazza, framed by a colonnade roof, links cultural and residential elements. Housing includes mixed-use blocks, courtyard apartments, linear buildings, and townhouses – creating a cohesive, vibrant urban fabric that respects the area’s heritage while supporting modern living.




On the adjacent page figure (1), is the master plan of the project in relation with the context, highlighting the continues axis and the main piazza , the residential section featuring four building typologies and their entrances through green corridors of the landscape design.
Figure (2) is a detailed floor plan of the focus typology , showing the division of spaces.
Figure (3) shown on the left of the next page , is a detailed first floor plan of the focus typology
In the figure below it figure (4) is a detailed section of the same typology showing the cubic form of the apartment masses with the corridor hall in the middle and the spatial qualities of the units.



Bachelor Thesis
Re-Composing The Forma Urbis
Advisors
Assoc. Prof. Dr. Manlio Michieletto
Arch. Omar Salem
Arch. Yara Galal
Student Farah Mousa
The project is inspired by the Roman Forum, a historic space for gathering and community life. At its heart are two U-shaped buildings facing each other one a museum, the other a mixed-use building. Between them is a vibrant public courtyard designed for social interaction and community events. The masterplan features three main building types: mixed-use buildings, residential buildings, and townhouses reflecting the diverse uses of the Roman Forum. Overall, the design aims to strengthen the cultural and social fabric of the Flaminio neighborhood by creating inclusive, active spaces that bring people together.




Figure (1) shown on the left , is the masterplan of the residential project with the surroundings.
Shown above, figure (2) is an axonometric view of the whole project in relation with the context.


On the left ,figure (3) is the ground floor plan of the focus typology of the project , highlighting the entrances and the division of spaces in each unit.
Figure (4) shown above is an elevation of the focus typology.


Bachelor Thesis
Re-Composing The Forma Urbis
Advisors
Assoc. Prof. Dr. Manlio Michieletto
Arch. Omar Salem
Arch. Yara Galal
Student Jana Amir
This project proposes a housing project that aims to transform the existing industrial site into a dynamic residential and public space. The development features seven distinct masses, symbolizing Rome’s lucky number, and harmonizes modern design with historical context. The facades facing the proposed science museum and huge green public space are mixed-use developments that include residential apartments on the upper floors, while offices, retail spaces, and restaurants lie on the ground floor. Most importantly, the project offers a variety of housing typologies, offering flexible options for different lifestyles.



On the left, Figure (1) shows the different housing typologies designed that cater to a variety of lifestyles and personal needs. Varying from different modules of studio apartments, lofts, single bedroom apartments, 2 bedroom apartments, 3 bedroom apartments and townhouses. With the addition of commercial ground floors that serve both the public and residents.

In the figure shown above, Figure (2), an axonometric of the housing project shows the design in its context in relation to its surroundings. It shows the proposed roof design which is an integral part of the concept. Furthermore, the housing project is shown in relation to its designed landscape .


Bachelor Thesis
Re-Composing The Forma Urbis
Advisors
Assoc. Prof. Dr. Manlio Michieletto
Arch. Omar Salem
Arch. Yara Galal
Student Karma Ahmed Elantably
This project in Rome’s Flaminio district promotes an inclusive community with diverse housing, commercial spaces, and sustainable design. Drawing inspiration from the former military buildings, it features 30-degree pitched roofs, Roman-style vaults, and contemporary elements like loggias and terraces. The design incorporates green courtyards, community gardens, and pedestrian pathways, improving residents’ quality of life. It also references the historical trident pattern from Piazza del Popolo, enhancing connectivity through major streets like Viale Pinturicchio, Via Guido Reni, and Viale del Vignola, ensuring smooth navigation within the site and district.




Figure (1) shown on the left , is a masterplan of the whole project with it’s surroundings , showing the ground floor plan of the buildings, their entrances and the landscape design.
Shown above figure (2) is an axonometric view of the project showing the heights of the masses in relation to it’s surrounding,
Bachelor Thesis
Re-Composing The Forma Urbis
Advisors
Assoc. Prof. Dr. Manlio Michieletto
Arch. Omar Salem
Arch. Yara Galal
Student Salma Hefnawi
This project in Rome’s Flaminio district connects the city’s historic character with modern urban living. It includes a Science Museum, a residential complex, and a central public plaza that forms a vibrant community hub. The plaza, inspired by traditional Roman piazzas, offers space for events, leisure, and daily life, surrounded by shops, cafes, and green areas. Pedestrian-friendly pathways link all parts of the development, ensuring easy access and movement. The housing combines classic Roman design elements with modern, sustainable construction. Overall, the project blends culture, community, and contemporary living while honoring Rome’s historic context.




On the left page ,Figure (1) showing the masterplan of the project with the ground floor plan of residential area showing accessibility, different typologies and landscape.
Figure (2) shown above is the ground floor and first floor plan of the focus loft typology.

(3) shown above is an interior shot of the focus typology showing the spatial qualities of the unit.

Venice Excursion & ICC Exhibition
EXCURSION
Venice, 2023
EXHIBITION
Italian Cultural Institute in Cairo, 2024
















BACHELOR DESIGN PROJECT
The Liminal Space. Re-Shaping The Sant’elena Island In Venice
ARCH800
AA 2022/23
GUC German University in Cairo, Egypt
BACHELOR DESIGN PROJECT
Recomposing The Forma Urbis
ARCH800
AA 2023/24
GUC German University in Cairo, Egypt
Team
Associate Professor, Dr. Manlio Michieletto (Bachelor Design Projects Coordinator)
MSc Ahmed Hegazy
MSc Omar Salem
BSc Yara Galal
Invited Professors Florian Seidel
Maria Chiara Tosi
Participant Students 2022/2023
Adham Zakaria, Ahmed Abdel Bary, Ahmed Tagy, Amira Walid, Farah Kodsy, Ganna Hammad, Gina Samy, Habiba Hatem, Hassan Shdeed, Lobna Mahmoud, Mai Mahmoud, Malak Abou Zekry, Mavy Ayman, Nada El Sayed, Nour Donia, Rahma Mohamed, Rana Mohamed, Renada Mohamed, Rola Zaky, Sarah Al Abhar, Sarah Yasser, Sherine El Abd and Yara Amr. 2023/2024
Aly Tarek, Anne Marie, Farah Hisham, Habiba Maged, Habiba Riad, Hana Amr, Hana Mamdouh, Ilaria Samuel, Jana Amir, Joumana El Khouly, Karma El Antably, Nourhan Abdullah, Omaima Gaber, Rawan Ramadan, Roaa Tawfik, Salma Hefnawi, Salma Moussa, Sandra Mazouz and Yoanna Sameh.
Manlio Michieletto
Manlio Michieletto is an associate professor at the Department of Architecture and Urban Design at the German University in Cairo. He holds a master’s in architecture and a PhD in architectural composition from the Iuav University of Venice. He has held teaching and research positions in various institutions in Europe and Africa. After being an assistant lecturer, he became an associate professor in the Democratic Republic of Congo from 2011 to 2016. After that, he was the Dean of the School of Architecture and the Built Environment of the University of Rwanda in Kigali. He also set his practice designing and implementing projects in Italy, Burkina Faso, the Democratic Republic of Congo and Rwanda. He is supervising master’s and doctoral theses focused on modern and adaptive architecture. His latest research primarily investigates the city development process, adaptive architecture and architectural heritage in the sub-Saharan and Egyptian context.
Ahmed Alaa El Dien Hegazy
Ahmed graduated from the GUC Faculty of Architecture and Urban Design and started his academic career just after graduation. He received his master’s degree from the GUC in 2023. His research interests are in building technologies and BIM. The topic of his master’s thesis discussed the application of BIM to the Egyptian construction sector.
Omar Salem
Omar Salem is a lecturer in the Interior Architecture & Design at Coventry University, Cairo campus. Salem studied Architecture & Urban Design at the German University in Cairo, where he also earned a postgraduate degree focusing on Mediterrenean Studies and Migration Strategies. He is currently pursuing a PhD in Urbanism at Iuav University of Venice.
Yara Galal
Yara Galal has been a teaching assistant in the Architecture and Urban Design Program since 2017. She worked on various courses, including Building Technology, Visual Design and Design Bachelor Studios. Yara’s primary experience and research focus on visual studies and their relation to space and architecture.
The book offers a pedagogical reflection on the urban design proposals developed by bachelor students, analysed from both compositional and methodological perspectives. It focuses on their design strategies for new urban developments in contexts where the city is the primary reference point. Through these academic exercises, students engaged in a critical dialogue between contemporary architectural interventions and the historical urban fabric, emphasising the formative role of architectural education in shaping the next generation of urban designers. The projects illustrate how historical and architectural awareness can be integrated to produce sustainable and contextually attuned urban solutions.
ARCH800 Bachelor Design Studio
“The liminal space. Re-shaping the Sant’Elena Island in Venice” AA 2022/23
“Recomposing the Forma Urbis” AA 2023/24
GUC German University in Cairo, Egypt
