MRO - April 2010

Page 1


MACHINERY AND EQUIPMENT

Fix is in For Bearing Contamination

Coatings Enhance Bearing Performance

Hybrid Seals Deal With Tough Demands on Bearings

Refurbished Drives Save 50% on Mine Startup Costs

Overcoming Pump Alignment Challenges

Clearing Machinery Jams Safely

Canadian Electrical Equipment News

It’s our 25th Anniversary!

External gear pump solves high-pressure problems

Viking Pump has expanded its line of high-pressure positive-displacement pumps to 43 m3 /hr (190 gpm). The pumps feature the sealless Viking Mag Drive, single or double cartridge seals, component mechanical seals or lip seals. The SG-10 and SG-14 sealless external gear pumps are for high-pressure applications where liquid or vapour containment is crucial. The series offers 29 displacements, and pressures to 34 bar (500 psi) standard, with some models offering pressure up to 170 bar (2,500 psi). All models operate at up to four-pole motor speeds and offer either foot bracket or close-coupled motor mount to both NEMA C and IEC frame motors. They can handle liquids from 1 cSt to 250,000 cSt viscosity.

Viking Pump

Granular sorbent soaks up viscous spills

Enviro-Dri Universal Perlite base granular product, which absorbs most acids and bases, has been introduced by Can-Ross. Particularly suitable for picking up viscous products, including both alkyd and latex paints, the product also suppresses vapour and can be used to extinguish magnesium fires. It is nonWHMIS-controlled, passes the TCLP

(Toxicity Characteristic Leaching Procedure) in accordance with Ontario Regulation 558, and is non-flammable per class 4, Div 4.1 of the Transportation of Dangerous Goods Act. It is available in a 5-gal. pail with dispenser cup and 1-gal. shaker jugs.

Can-Ross

Environmental Services Reader Service Card No. 356

Cylindrical roller bearing line boasts brass cage

Timken offers a broad line of cylindrical roller bearing lines. Its single-row EMA series features an increased-capacity design with a machined brass cage. This premium design outperforms both the Timken published ratings and the industry’s leading high-performance design to provide longer bearing life. From a unique cage design to proprietary internal geometries and special surface textures, the single-row EMA series cylindrical roller bearings feature unique characteristics designed to increase load ratings, resulting in longer life, improved uptime and reduced maintenance costs.

Spherical roller bearing has extra-strong cage

The Timken Company Reader Service Card No. 358

The Beham EX-V series vibrating screen bearing from Nachi is designed for applications with high impact or heavy vibrations. A hardened steel cage offers increased tensile strength, and is more fatigue resistant and more resistant to wear than standard cages. In addition, the floating guide ring and impact-resistant, rugged cage design generate less heat and promote lower operating temperatures than the standard series.

This spherical roller bearing series uses extra-long and large-diameter rollers to maintain high load capacities.

Nachi Canada

Reader Service Card No. 357

Website illustrates bearing isolator

Garlock has launched a revised MicroTec II bearing isolator website, www.microtec2.com, featuring an easy-to-use technology navigator that allows users to learn more about the product at a click of the mouse. The bearing isolator comprises an engineered unitizing ring that eliminates metal-to-metal contact and reduces energy consumption. A micro-

cellular filter blocks out the tiniest of particles, and the Cam-Lock system allows easy installation. Available in standard sizes that range from 0.875 in. to over 11 in., the isolator is offered in a wide range of configurations in bronze or stainless steel construction.

Garlock Sealing Technologies

Reader Service Card No. 354

Bearing grease keeps wind turbines running

Formulated for wind turbine applications, SKF’s high-load, wide-temperature bearing grease, LGBB 2, provides consistent lubrication for the demanding operating conditions of blade and yaw bearings, which are subjected to high loads, temperatures varying from very low to medium (minus 40°C to plus 120°C) and very slow speeds, including oscillating movements and standing-still conditions. The oftenstatic conditions in combination with vibrations can lead to false brinelling. The grease helps prevent corrosion resulting from this situation. It is based on a highly refined synthetic base oil and a complex lithium thickener, and is designed to withstand offshore turbine installation.

SKF Canada

Precision Attachment Roller Chain

Drives, LLC is the world leader in USA manufactured chain products. A complete line of Precision Attachment Roller Chains are available to meet your specific needs.

Drives’ Rapid Response Program delivers your solution. Drives Precision Attachment Roller Chains are produced in accordance with ANSI standards and manufactured to exact tolerances. Three classifications of matching and tagging are employed to meet the tolerances of your most precise application. If you’ve experienced unnecessary downtime due to mis-feeds or jams, look into the complete line of Drives standard chain attachments, available in carbon or stainless steel. Custom services are available to modify standard attachments to your specifications. Engineers are available to advise on new or difficult Precision Attachment Roller Chain applications.

Drives relentlessly delivers leading edge solutions with over 100 years of advanced engineering knowledge and experience.

in this issue

features

To catch up on maintenance work, Genfoot Inc. is looking for an engineer with a taste for both grease and outrageous complexity.

Overcoming pump alignment challenges / 15

A successful pump alignment requires planning, careful execution, the proper tools and documentation of the results.

The Case of the Missing Foreman / 12

1985-2010

Extreme contamination botches bearings / 17

A world-class manufacturer of asphalt roofing shingles was having difficulty maintaining a serviceable length of time with its roller bearings, which had to be replaced at every shutdown, if not sooner. New bearings customized for the harsh application solved the problem.

Seal of Approval / 19

Hybrid bearing isolators, a.k.a. labyrinth seals, meet tough demands for sealing.

Bearing Magic / 20

Special coatings and materials enhance bearing performance in a wide variety of applications.

Eight smart repair tips / 21

Ingenious corrective maintenance methods have been developed over the years to executive repairs on site.

Refurbished drives save 50% on mine startup costs / 22 Drive supplier helps Highland Mining make the most of its existing 9-km-long conveyor belt motors.

editor’s selections

We ask a lot of the machines. We have to. We are one of the last surviving boot manufacturers in Canada.

AROLD ISAAC / 12

The plant is leaving the bearings on longer every time, expecting them to fail, and they still have not seen a failure.

LUKE KRESS / 17

A common misnomer is that the seal’s unitizing element creates a barrier, but this is just not the case.

EARL ROGALSKI / 19

A very strong repair can be made to cracked machine foundations, gear cases, big gears and more.

CHRISTER IDHAMMAR / 21

columns

Maintenance Management:

special section

Canadian Electrical Equipment News

Improving motor management in a weak economy / 27

Effective decisions regarding motors can be made when a good repair/replace policy is based on scientific facts.

Report from EASA / 29

EASA’s Ontario Chapter gets international status.

Plan implementation begins in earnest / 24

Follow along with Step 32 in a journey to World-Class Maintenance at the Plentya Paper Company as the team undergoes major changes to achieve its goals.

The Safety File: Clearing machinery jams in a safe and productive way / 25

Often, clearing jams, making settings and cleaning operations are mistaken for maintenance actvities that require lockout. But this is not the most productive or necessary way to operate a machine.

CMMS Solutions: Making it work / 26

Got problems with your CMMS? They may be caused by issues with your procedures, not the software.

The future is looking better for all of us

W

hen I unfolded the Globe and Mail’s Report on Business on April 1, the headline put a smile on my face, but then I noted the date and hoped it wasn’t an April Fool’s Day joke. “Widespread strength drives economy higher: After five consecutive months of gains, momentum of recovery comes as surprise,” read the main headline.

In fact, we sensed that the recovery was under way, but it was good to read a confirmation: “The Canadian economy is roaring ahead,” said the Globe. We had already felt it because we’d seen some advertisers — who have been missing among our pages over the past year — finally return. The bearing industry, coincidentally

the theme topic of this issue, is notable among those that are restoring their marketing budgets, meaning its confidence in the industrial market is returning.

We ourselves haven’t been sitting on our thumbs during the recession, having been investing in our future all along. After all, it’s our 25th anniversary this year.

Despite a couple of thinner-thannormal issue sizes, you may have noticed we’ve invested in a higher ratio of editorial pages. And we continue to develop our content, introducing useful ideas at every opportunity. As one example, see the new Maintenance & Repair feature — the first of a series by

Christer Idhammar — in this issue.

Furthermore, we’ve been investing in our website to make it even more useful and easier to navigate. You’ll notice a cleaner layout on our home page, with additional links to the many resources available on our site.

One of our goals was to make our site more interactive, so you can now comment on articles as you read them. Feel free to express your views on any topic we cover in our online news and features. As well, our web developers have added a function that lists the Most Read, Most Commented and Most Recommended stories on our site, to guide you to topics others have found worthwhile.

You can continue to read archived issues online as text pages or view the whole issue as you see it here in our complete digital editions. We’ve also bolstered our online buyer’s guide, so you can find a variety of sources for a broad range of industrial products and services.

Plus we’ve introduced a new Online Reader Service Card. Instead of mailing or faxing in a request card to obtain more information on a product or advertisement you see in the magazine, you can speed up the process by going to mromagazine.com/rsc and — once you’ve registered — point and click to request more information. These requests are sent by us directly to the supplier, who will then send you what you need to know. And for those who still love filling out paper forms, we’ll continue to provide our printed Reader Service Card as well. As always, we’d love to hear what you think. And don’t hesitate to let us know about any innovations or interesting products you come across that you feel other readers would like to find out about. Our point of being, after all, is to share knowledge and information from those who have it with those who need it.

ApRil 2010

G. Ensman Jr.,

Carroll McCormick, Peter Phillips, Angela Webb, Cliff Williams BusinEss nick naunheimer, Publisher 416-510-6868 nnaunheimer@mromagazine.com

Eric achilles Cousineau, adv. sales Manager 416-510-6803 eachilles@mromagazine.com

Stronger, lighter, more powerful, and a longer working life – only from NORD Gear.

But, perhaps, what’s most remarkable about the innovative new design of the NORDBLOC.1

Helical In-line series is that we were able to improve upon its already superb predecessor. Yes. We even impressed ourselves.

Advanced innovation gives you yet more durability, more efficiency and more reliability. Consider its compact dimensionally interchangeable design plus an aluminum alloy housing that’s both corrosion resistant and 60% lighter than castiron. Plus, oversized output bearings providing larger capacity and increased working life.

What could be better?

How about a NORDBLOC.1 configured to your exact specifications. We’re ready, 24/7, to design, assemble and ship — anywhere in Canada or worldwide. Call NORD Gear to find your perfect match.

The only intelligent choice is NORD Gear.

Rolling bearings keep London Eye turning for 10 years

London, England — After more than 10 years of operation, spherical roller and spherical plain bearings are continuing to ensure that the ‘London Eye’ keeps turning safely and reliably.

Officially known as the Millennium Wheel, it has been rotating continuously, day after day, for 10 years and is now one of the most popular visitor attractions in

London, as well as a landmark of the British capital. Since opening, the total number of passengers to have used the observation wheel is more than 36 million.

At the centre of the wheel are FAG rolling bearings, originally supplied by The Schaeffler Group in 1999/2000. The wheel, which was constructed using around 1,500 tonnes of steel, rotates with the help of two FAG double-row, radial spherical roller bearings, which are fitted as a locating and non-locating bearing set at the hub of the wheel.

Firmly located on the shaft, the locating bearing has an outside diameter of 2.66 m and weighs 6.3 tonnes. The nonlocating bearing, which has an outside diameter of 2.62 m and weighs 5.2 tonnes, moves back and forth on the shaft in order to compensate for thermal expansion. These two spherical roller bearings have a rated life of more than 50 years.

Engineers from FAG Industrial Services carry out regular inspections to ensure defect-free, reliable functioning of the bearings. These checks include endoscopic inspections of the raceways and rolling elements in order to ensure early detection of any problems. Lubricant samples also are taken at regular intervals to check for particulates and abrasion.

If at any point during the Wheel’s lifetime, the bearings require dismantling,

Schaeffler has devised a novel, cost-effective, time-saving solution. As the nonlocating bearing has a larger bore (2.1 m) than the locating bearing (2.04 m), it can be pulled over the locating bearing seat, enabling both bearings to be dismantled from one side. Dismounting would be carried out on the river side, as the observation wheel only has a support on the land side.

As well as supplying bearings for the central hub, Schaeffler also provided large Elges spherical plain bearings that hold the London Eye in an upright position. During the original installation of the wheel, these spherical plain bearings enabled the wheel to be moved from its horizontal mounting position across the Thames and into its final vertical position. Since installation, the function of the bearings has been to compensate for micro-movements caused by the wind.

OLDER WORKERS DO NOT NECESSARILY PERFORM WORSE

Tilburg, Netherlands — Do older staff members earn more than they deserve?

Dutch research carried out into productivity and incomes among older workers by labour economist Jan van Ours of Tilburg University shows that the difference in performance between older and younger employees is negligible. It is generally thought that most employees reach their peak at some time between the ages of 40 and 50. After that, their productivity gradually declines.

treal, QC, covering the next five years, and is valued at about $12 million annually. SPI also has been named the official provider of health and safety equipment for RTA for eastern Canada.

“This new contract represents a big challenge but we will use our talent to integrate major accounts and use our expertise in health and safety,” said Martin Tremblay, president, SPI. The contract is for the mining company’s facilities in Montérégie (Sorel), Saguenay, the north coast of Quebec, and Labrador.

“The mission of IDI is to promote the interests of its members and to help them to maintain their independence in a competitive market,” said Scott Bebenek, president of IDI. “SPI worked hard to achieve this contract. The reputation of SPI is very coveted in the province of Quebec for the combined quality of its services and the expertise of its employees. We are therefore very proud to have obtained this contract with SPI,” he said.

Founded in 1972 in Jonquière, QC, SPI is an independent distributor and manufacturer of health and safety products. The company has 185 employees in 17 branches, five service workshops, a distribution centre in Blainville, and two regional warehouses. The company also operates a manufacturing subsidiary and a fire-prevention division.

work of a more intellectual nature, age does not matter much.

According to Professor Jan van Ours, this decline in performance was always assumed to be so self-evident that no one carried out research to find out if it was actually the case. In fact, he himself decided to undertake research into a group of runners and discovered that physical performance begins to decline from around the age of 40. But when he investigated whether older economists also publish less in scientific journals, he discovered that there was no noticeable fall-off in productivity.

Van Ours also found that older employees in manufacturing tend to produce a little less than they are actually paid for. For younger workers, the opposite is true.

Van Ours’ research confirms that productivity rates for physically demanding work in particular decline somewhat with age, but for work of a more intellectual nature, age does not matter much.

Generally, older workers earn a little more relative to the level at which they perform, but this difference is negligible, says Van Ours. The biggest problem, to which Van Ours thinks a solution should be found, is that older workers find it difficult to get another job if they find themselves out of work.

Founded in 1981, IDI is a member-owned cooperative of independent industrial distributors based in Mississauga, ON, with close to 100 members and more than 250 branches throughout Canada. Its members include industrial suppliers of items such as power transmission products, industrial supplies, safety supplies, fluid power products and more.

PTDA CANADIAN CONFERENCE RETOOLED

Montreal, QC — After the turbulence in the economy over the past year, companies are seeking innovative programs that deliver ideas that can be implemented immediately. The Power Transmission Distributors Association (PTDA) is meeting that need with an innovative new program for its 2010 Canadian Conference. Scheduled for June 3-5, 2010, at the Marriot Montréal Château Champlain in Montréal, the PTDA Canadian Conference has been retooled to help attendees make more connections, work together more efficiently to serve end users and continue innovating in the new economy. The changes to the 2010 program were driven by input from PTDA’s Canadian distributor members, and enhance the networking and educational components of the event.

A product showcase has been added on June 3 to provide an additional opportunity for channel partners to meet in an informal format. Held during the welcome reception, the product showcase will feature tabletop exhibits of new products from PTDA’s manufacturer members.

One of PTDA’s five strategic goals is to champion manufacturers and distributors, operating in concert, to effectively and efficiently serve their mutual customers. Led by facilitator and former PTDA president Don Latham of Belterra Corp., Delta BC, a panel of some of the industry’s top executives will discuss the challenges and opportunities for improving the distributor/manufacturer-suppli-

Photo: The Shaeffler Group

er relationship, concentrating on those factors that can improve the efficiency of the channel in serving the customer.

Panelists Francois Arbique, Kinecor LP; Ali Moghadam, Canadian Bearings Ltd.; Dermot Strong, BC Bearing Engineers Ltd.; Randy Breaux, Baldor Electric Co.; Sean Hickey, Lafert North America; Tom Karch, SKF Canada Ltd.; and Jos Sueters, Tsubaki of Canada Ltd., will explore how distributors and manufacturers can work together to streamline processes and reduce expenses in order to increase margins and profitability.

Also, corporate planner Ryan Garrah will lead attendees through an interactive session that will help unleash the creativity needed to foster corporate innovation. In a short program followed by roundtable discussions, attendees will discover what they can achieve by stepping outside of their comfort zone and embracing new ideas.

Pierre Marc Johnson, former premier of Quebec, leads off the Canadian Conference with a keynote address on free trade. Currently serving as chief negotiator for Québec for the Canada-EU freetrade negotiations, Johnson is counsel to the offices of legal firm Heenan Blaikie, where he acts as lead counsel in commercial negotiations, international partnerships and foreign investment ventures.

Ken Wong of the Queen’s School of Business will address Marketing & Your Next Big Thing on Friday afternoon. Wong combines a review of the recent trends in the power transmission/motion control industry with lessons learned from other industries with common characteristics

to present an outsider’s view of the challenges and opportunities that lay ahead.

Joe Ellers, author of The Sales Manager’s Handbook and The Best Distribution Sales Book Ever, will give attendees tools to take sales management efforts to the next level. Ellers will cover setting goals that drive the right activities, creating the value proposition, using six major tools of the sales management professional, compensating for what you really want, and developing a sales process that is easy on the manager and really helps the salesperson.

For more information on the PTDA Canadian Conference, visit www.ptda. org/CanadianConference.

DEMAND FOR GEARS TO EXCEED $30 BILLION IN 2013

Cleveland, OH — US demand for gears and gear assemblies is forecast to increase 3.9% per year to US$30.1 billion in 2013. This will be a considerable improvement from the less than 1% yearly growth posted during the 2003-2008 period.

Gains will be supported primarily by rebounding levels of motor vehicle production. In 2008, over three-quarters of all gear sales were motor-vehicle-related, despite unusually low levels of vehicle production. Gear manufacturers will also benefit from value gains derived from product improvements and upgrades, such as transmissions with higher numbers of speeds.

Increased sales opportunities will also present themselves in the relatively small but rapidly expanding wind turbine market, in which large, high-value gearboxes are required. Output in the aerospace equipment and machinery industries is

expected to advance modestly from its level a decade earlier, which will restrain gear demand in those markets to some degree.

These and other trends are presented in Gears, a new study from The Freedonia Group Inc., a Cleveland-based industry research firm.

The motor vehicle market for gears and gear assemblies is forecast to record the fastest gains of any market through 2013, advancing 4.7% per year to $23.8 billion. Trends within the automotive industry will also support increased sales of higher-value gear products, as transmissions will generally feature more speeds, power accessories will require more gearmotors, and more cars will feature four-wheel-drive systems, which require the use of differentials.

Transfer case sales will also be boosted by strong growth in medium and heavy vehicle production.

However, several emerging trends in the motor vehicle industry will limit gear demand increases. Continuously vari-

able transmissions, which do not require gears, are rapidly gaining a foothold in the automobile segment of the industry. Furthermore, while not an immediate threat, steer-by-wire technology could eventually limit the use of gears in steering assemblies. Within the individual gear category, helical and bevel gears will register the strongest gains. Helical gears will continue to displace spur gears in a number of applications, while bevel gear manufacturers will take advantage of high-value sales opportunities in the aerospace market.

Original equipment manufacturing applications, which accounted for nearly 70% of all gear sales in 2008, will outpace aftermarket demand increases through 2013 as motor vehicle manufacturing recovers. Aftermarket demand will be restrained by the greater durability of many newer gear products, as well as by moderating growth in the US motor vehicle park. Gears is available for US$4,700 from Freedonia. For further details, contact Corinne Gangloff at pr@freedoniagroup.com. MRO

Large, high-value gearboxes will be required for the expanding wind turbine market.

Company Briefs

News and views about companies, staff, product lines and more.

• The European Power Transmission Distributors Association (EPTDA) has a new member, CMD, a supplier in the mechanical power transmission market. Founded in 1902 by André Citroën (famous for Citroën cars), CMD is based in France and is a player in the field of mechanical couplings.

• Koyo is now the owner of the Torrington needle roller bearing business, acquired from Timken effective January 1, 2010. For details on the product line, contact Koyo Canada Inc., Burlington, ON, or visit www.koyo.ca.

• Uvex, a supplier of protective eyewear, has launched a new Culture of Safety online resource centre at www.Uvex.us

to help improve safety among industrial workforces in North America. The site includes tools, tips and expert insights from Uvex and others.

• Kaman Industrial Technologies Corp., Windsor, CT, has formed a new distribution agreement with Bison Gear and Engineering Corp., a manufacturer of fractional horsepower AC and DC gearmotors, motors and gear reducers.

• Tammi Pickett has joined People and Processes Inc. in a marketing and business development role. In her new position, she will be responsible for brand development, advertising, public relations initiatives and business development. Previously, she was marketing

director at IRISS Inc. and marketing manager at Commtest Inc. She continues her involvement with several maintenance and reliability organizations.

• Commtest Inc., Knoxville, TN, has appointed Tim Whitacre as a corporate solutions specialist, and Chris Keniston and Shane Smith as customer success engineers. Founded in 1989 in New Zealand, Commtest is a privately held company whose mission is to bring the benefits of vibration analysis to mainstream industry.

• At the end of 2009, the KSB Group shipped five large submersible borehole pumps for the purpose of dewatering and maintaining the water in New York’s Delaware Aqueduct while repairs are being done. This task required the most powerful single-entry submersible borehole pumps KSB has ever produced, with each of the five units featuring a 2,650-hp, 4-pole, 4160-V high-voltage motor. The capacity of each pump is around 8,800 gpm at a maximum rated

Better Than New – Renewed!

The name of the game is Uptime, which provides a peace of mind to your business. Even the highest quality Falk® Gear Drives, like the one you purchased 15 years ago, wear down.

Repair and Remanufacture Solutions

At Falk RENEW, we don’t believe any gear drive should be considered obsolete just because it’s no longer manufactured. If it meets a customer’s application requirements, it’s worth repairing. Falk RENEW has the resources and expertise to:

Restore your Falk, Link-Belt®, or Rexnord gear drive to its original new condition, or better.

Repair, replace, or reverse-engineer any manufacturer’s drive to improve efficiency.

Everything we do is focused towards maximizing our customer’s uptime, and increasing their bottom line.

Recycle – Scrapped parts are melted down and recycled to build new housings and geared parts.

Reuse – Gearing can be reworked or flipped to utilize unworn profiles and worn shafts can be chrome plated or sleeved to achieve maximize sealing efficiency.

RENEW – Your drive isn’t just repaired to “original tolerances,” it’s RENEWED to “original design specifications and quality”; backed up the industry’s most comprehensive warranty.

Regardless of the age or condition of your equipment - Falk RENEW has the right solution.

by

head of 1,050 ft. The Aqueduct was built in the 1940s and was last pumped dry for maintenance in 1957. It currently leaks in areas of poor geology.

• Wright Tool, Barberton, OH, has opened new warehouses in Ontario and British Columbia in Canada, and in California and Texas in the US. Canadian customers will benefit with additional time and cost savings, since shipments no longer need to clear customs and custom house brokerage fees can be avoided. The company manufactures more than 4,000 hand tools for the industrial, contractor and MRO markets.

• The Timken Company, Canton, OH, has been recognized as one of the World’s Most Ethical Companies for 2010 by the Ethisphere Institute, an international organization focused on the advancement of best practices in business ethics. Ethisphere reviewed thousands of nominations from companies in over 100 countries and 36 industries to determine the winners. Companies listed with Timken in the award’s Industrial Manufacturing category are Eaton and Rockwell Automation. Timken secured its distinction through consistent demonstration of its foundational value of ethics and integrity. Among its activities were recycling almost three million tons of scrap metal over the past two years to produce new steel, with nearly 100% of Timken’s steel content made from recycled material; the elimination of six million pounds of waste annually through the company’s returnable and reusable packaging initiative; the elimination of 31,000 tons of waste from landfills since 2008 though recycling and reusing electric-arc furnace dust; and contributing Timken Charitable Trust and corporate donations of US$2.4 million in 2009 for community and educational needs. • Founded in 1963, AST Bearings

KSB’s Homburg, Germany, factory shipped pumps to New York.
Photo
KSB AG

INDUSTRY NEWSWATCH

LLC, Montville, NJ, a supplier of miniature bearings, precision ball bearings and related products, has applied for and recently received registered trademark status for both its name and logo from the US Patent and Trademark Office. The company maintains an inventory of bushings, rod ends, roller and linear bearings, sub-assembly products and more. MRO

Editor’s note: More detailed versions of many of these stories, along with additional news items, can be found online at www.mromagazine.com.

Digital camera an easy way to identify problems

Problem: As a maintenance planner, it’s often a challenge to explain to members of our maintenance team exactly what a problem is and where it is located in our huge facility. Is there a way to deal with this?

Solution: One simple shortcut to solve this problem is to use an inexpensive digital camera to photograph the problems and their locations. Digital photographs, with the addition of simple notes, are a very powerful planning tool and can save hours of work.

For example, by taking a photograph of valves connected to a pipe, you can add a message and arrows pointing to exactly where the problem lies, and what needs to be done to fix it. This way, the message to the tradesperson is clear, and it takes just a few minutes to create. Text and arrows can be added to a photo using the drawing tool in MS Word. Another option is to use a laser pointer with a digital camera to pinpoint the location of a problem, e.g. a leak in a pipe 15 ft above the floor. It doesn’t take long to shoot the photo and add the text.

Compare the time it takes using a digital camera to pass on detailed information with the time it takes to make sketches or write detailed descriptions. Then compare the cost of a digital camera to the value of your time as a maintenance planner, and you’ll likely find that this is a tool that no planner should be without.

Mr. O’s thanks for this tip go to Idcom. For more tips, visit www.idcom.com.

Do you have a solution for a maintenance problem? Send it in and if it’s published, we’ll send you a Mr. O Problem Solver T-shirt. Include your address, telephone number, print complete details and, if possible, add a sketch to help explain your tip. Send your tips to Mr. O, Machinery & Equipment MRO, 12 Concorde Place, Suite 800, Toronto, ON M3C 4J2.

PTDA celebrates 50 years

Fifty years ago, on Feb. 10, 1960, the Power Transmission Distributors Association (PTDA) was founded to “solve problems plaguing manufacturers and distributors through education and communication.”

At PTDA’s founding, representatives from 41 distributors in 23 states in the US came together to form the ‘Mechanical Power Transmission Equipment Distributors Association’, as PTDA was then known. It was decided that the association would serve as a forum for power transmission distributors across the country to meet, exchange ideas, become acquainted and explore ways to assist each other. Shortly after, 13 manufacturers and trade publishers joined the association.

“For 50 years, PTDA has been the glue that helps distributors and manufacturers forge and build lasting relationships. That’s why I am excited to serve as the association’s president in its 50th anniversary year,” said Keith Nowak, president MPT Drives Inc., Madison Heights, MI, and president of the PTDA board of directors.

The association is commemorating its golden anniversary with articles and features in its two newsletters, a special anniversary issue of its Annual Report, web content and a birthday bash at the 2010 Industry Summit on October 21-23 in Phoenix, AZ.

Nowak’s emphasis on PTDA’s vital role in enhancing relationships is echoed by Randy Breaux, vice-president of marketing for Baldor Electric Co., Fort Smith, AR, and chair of PTDA’s Manufacturer Council.

According to PTDA’s executive vice-president, Mary Sue Lyon, who is retiring at the end of 2010, these goals are consistent with the founding principles of PTDA. “PTDA founder Warren M. Pike wrote, ‘In unity, there is strength. If we distributors and manufacturers of mechanical power transmission equipment band together, we will increase the recognition, the prestige and the status of all distributors, manufacturers and their personnel.’ I think he would be very proud to see the evolution of our association and hear the comments of today’s leaders,” said Lyon. For more information, visit www.ptda.org.

Kinecor Solutions

Mr.0 The Practical Problem Solver
Cut here
Support here

the of the Case Missing Foreman

Once upon a time, a production manager in a boot factory sent his head mechanic back to school to learn all about computerized maintenance management programs, planning to have him come back and launch a new era of maintenance that would make the equipment work better. Life, however, had other plans. The production manager lost his head mechanic to another job and gained a massive headache.

If only this were just a fairy tale. Two years ago, Arold Isaac, the production manager at Genfoot Inc., a Montrealbased boot manufacturer, did send his head mechanic to l’École de technologie supérieure in Montreal for a month-long course. The plan was to put him in charge of replacing the old CMMS that a programmer custom-wrote in 1996, and for him to overhaul the plant’s maintenance strategy. Unfortunately, the head mechanic did not come back to his job.

Finding his replacement has become a tale of woe. “It is very difficult to find an electro-mechanic, and especially one who has management skills,” Isaac laments.

In the meantime, Isaac explains, “I have been working with the mechanics on building a new maintenance program. They are writing their own maintenance routines. We cannot wait. But we do need someone in charge, because our mechanics are focussed on repairs, not overall maintenance. Without a head mechanic, we cannot organize the maintenance.”

Ten injection moulding machines dominate the 27,000-sq-ft (2,508-sq-m) production area in the 25-year-old, 60,000-sq-ft (5,573-sq-m) plant. “Each machine is actually a group of machines, with six to 10 moulds and three injectors. This makes them very complex. We are the only plant in North America with this many machines of this complexity. It is a big challenge for the foreman,” Isaac explains.

A full complement of maintenance team members numbers eight: Three men work full-time to keep the over 500 boot moulds (with five parts per mould) in good repair, four electro-mechanics work to maintain the production equipment, and one head mechanic, also an electro-mechanic, also would help out.

Years ago Genfoot sent its mechanics

To catch up on maintenance work, Genfoot Inc. is looking for an engineer with a taste for both grease and outrageous complexity.

to school to upgrade to electro-mechanics. This has been the educational requirement ever since. Even so, the injection moulding machines are so complicated that Isaac recently sent two mechanics home after just six months on the job. They simply could not wrap their brains around the hardware.

Each machine is shaped a bit like a giant fantasy lollipop lying flat on the floor, flanked by huge motors and bun-

dles of fat cabling that would petrify an Anaconda. Three closely-clustered ram injectors are the lollipop stick. The moulds, in stations, are arranged around the perimeter of a rotary table, or carousel, 12 ft (3.66 m) in diameter, which makes up the tasty part of the treat.

Boot-making works like this: An injector squeezes melted plastic pellets into the mould in the station positioned in front of it. At the station on the opposite

side of the carousel, meanwhile, an operator quickly wriggles inner boot linings over two metal boots. At the station directly to his right, a now-cooled mould yawns, revealing a pair of gleaming boots ready to be pulled off their cast aluminum feet. Roughly every half-minute the carousel rotates clockwise to bring the next station into position in front of an injector … and ‘round and ‘round it goes. The machines are flogged hard to meet a heavy production schedule and to keep Genfoot competitive with manufacturers in countries with cheaper labour. To squeeze out three million pairs of boots a year, the usual production schedule is 24 hours a day, Monday to Friday, and 12 hour days on Saturday and Sun-

continued on page 14

Top: Production manager Arold Isaac is mobbed whenever he enters the production area. A physicist by trade, he likes the action and gobbles up the complexity.
Above: Each machine has six to 10 moulds on a rotating carousel.
Left: A sampling of the 500-plus shapes and sizes of boots Genfoot makes.
Photos by Carroll McCormick

Special Features

Crowned rollers provide lower friction and smooth operation through even load distribution.

Case carburized steel enhances long life operation and improves shock loading capabilities.

Optimized roller/rib interface promotes lubrication and lowers bearing running torque. Honed raceways ensure low friction for trouble free operation.

A Case for NTN Tapered Roller Bearings

Preferred by leading manufacturers, NTN tapered roller bearings are renowned for their ability to operate reliably in some of the world’s harshest environments. NTN tapered roller bearings are ideally suited for heavy duty applications ranging from rail to aggregate and mining equipment, where marginal lubrication, vibration and impact loads are considered the norm. NTN tapered roller bearings are made to meet or exceed industry standards and feature case carburized steel. Carburizing hardens the steel from the surface to the proper depth, leaving a relatively soft core, improved durability and longer life. These results make the material ideal for shock loading and extreme conditions. Like all our products, NTN tapered roller bearings are backed by our knowledgeable technical support team, competitive pricing, 24/7 service and unmatched inventory capability.

Better Support Makes a Better Bearing

As an integral part of after-sales service and support, NTN provides an engineering and service staff across Canada to assist customers in gaining maximum service from the life of their bearings

• In depth bearing failure and machine troubleshooting

• Bearing (re)selection and machine redesign to prolong bearing life and up time

• Liaison with original equipment manufacturers and third party suppliers

• Preparation or review of maintenance schedules and procedures

• End user in-house training seminars

• Accurate part number crossover to one of NTN’s complete range of products

day. Often enough, though, this dials up to 24/7 to fill big orders.

“We ask a lot of the machines. A lot of our competitors ask for 55- to 60-second cycle times from them. We ask for 32- to 38-second cycle times. We have to. We are one of the last surviving boot manufacturers in Canada,” Isaac says.

These machines cannot go eight hours without a mechanic’s help and they are too complex for the operators to maintain. One point of great complexity in each machine is the stationary carousel connector at the centre of the rotary table. Hydraulic, cooling water, pneumatic and compressor lines pass through it to the moulds, as do electrical lines.

Cabinets of electronics cooled by big fans control the complicated choreography of the machines.

The big plan Isaac wanted to launch by sending his man to school was to completely modernize how maintenance is or-

A Better IEEE 841 Inside and Out

ganized and performed. In anticipation of this, he purchased some powerful new tools, including a Fluke Ti10 thermal imager and a Reed Model TV300 Vibration Tester. Although their proper integration into the maintenance routine is temporarily on ice, Isaac reports some successes.

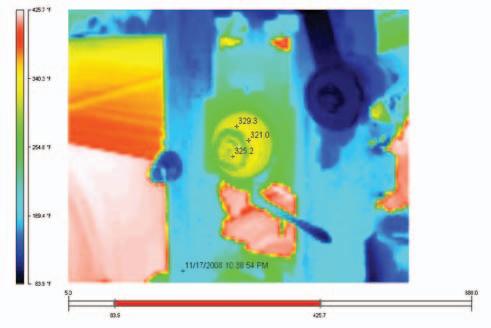
“We use the thermal imager from time to time to identify problems. I have saved money already using this equipment; for example, we were scanning some pipes on a cooling system and we found some hot spots. We saw that one pipe was 60 degrees Fahrenheit higher than the other pipes. A filter was clogged completely. It would have caused serious damage had it gone unfixed.

“Last week we had a problem with an injection machine. It was driving us crazy. We discovered that a heater band was not heating the barrel; rather, the barrel was heating the heater band. There was no other way we could have seen that.”

Genfoot took delivery of a new six-mould machine last December. Isaac wants to use the thermal imager on it to develop reference data for the other machines.

The mechanics sometimes use the vibration analysis machine, but there is much to learn. “We must learn how to extract data from tests done when motors are on the production line. Now we have no reference. We have to remove motors and put them on stable benches,” Isaac explains.

While the head-hunting for a versatile head mechanic continues, much remains on hold; maximizing the potential of the thermal and vibration analysis equipment, developing an effective PM program, upgrading some of the electronics to PLC, putting all four robots to work and decreasing downtime by at least 50%.

As the clock ticks, routine maintenance is taking a back seat to reactive maintenance. The mechanics are able to do some PM during weekly shutdowns of the machines for cleaning, but, Isaac says, “We really need to stop the machines for one day to do good maintenance. We are falling behind and there is too much work for us to do.”

Isaac has pretty well concluded that the new head mechanic should be an engineer who understands electro-mechanical things, who can then be trained inhouse. “We do not need engineers with neckties. We need engineers with handson skills,” he says. MRO

Montreal-based Carroll McCormick, an award-winning writer, is the senior contributing editor for Machinery & Equipment MRO.

by Carroll McCormick

Photos

Overcoming pump alignment challenges

A successful pump alignment requires planning, careful execution,

the proper tools and documentation of the results.

In your facility’s pump system, one thing can solve a lot of problems: the proper alignment of the pump shaft with the driver can reduce vibration and significantly improve reliability. For appropriate applications, the time, expertise and instruments needed to achieve precision alignment (tolerances of less than 0.005 in.) will prevent seal leakage and extend bearing life. However, not all pumps will require such precise alignment; it depends on factors such as operating speed and the coupling type. When assessing a plant’s alignment needs, it helps to understand basic shaft alignment concepts and procedures, as well as applicationspecific factors that dictate the required tolerances.

The effects of misalignment

A common misconception about pump shaft/driver misalignment is that it increases bearing load, causing bearings to fail prematurely. In fact, except in cases of extreme misalignment, the resulting vibration is what damages the bearings and seals.

Since some vibration is normal for pumps, it is best to have an experienced vibration technician determine if the vibration is due to shaft misalignment, and whether it is severe enough to affect pump reliability.

Alignment basics

The purpose of shaft alignment is to minimize the vibration resulting from forces transmitted across the coupling. The goal is to have both shafts rotating on a common axis, referred to as collinear. All misalignment of shaft centrelines (i.e., deviation from the collinear condition) can be described in terms of offset and angularity.

Theoretically, two perfectly aligned shafts would rotate in the same axis, and if properly balanced and coupled, would not generate abnormal vibration during operation. If instead the two shafts are misaligned in the horizontal or vertical plane (or both), or are at an angle with respect to one another, they will rotate in different axes. The amplitude of the resulting vibration will vary, depending on such factors as the severity of the misalignment, operating speed and coupling type.

In addition, the relative positions of a horizontal pump and driver can be viewed independently in the horizontal and vertical planes. Reducing alignment conditions to offset and angularity, inde-

pendently in the horizontal and vertical planes, simplifies manual calculation of required ‘correction moves’. Automated techniques for calculating corrections also use this convention. (Vertical pumps, solid couplings and hollow-shaft motors present unique concerns and require special procedures not discussed here.)

Alignment (or misalignment) is measured at the coupling — the point of power transmission — not at the feet. The number of shims to be added or removed beneath the feet does not directly indicate the alignment condition at the coupling.

Alignment tolerances

Alignment tolerances specify how close the pump and driver shaft centre-lines should be to collinear at running conditions. Offset tolerances are measured in thousandths of an inch (or mils), centreline to centre-line at the coupling. Angularity tolerances are expressed as pitch or slope (mils/in.).

Alignment tolerances for pumps range from the ‘rough alignment’ that a conscientious technician can accomplish with visual indicators (with an accuracy of about 0.02 in.) to precision alignment (accuracy of 0.0005 in. or greater). The latter requires an experienced technician and accurate instruments (e.g., dial indicators or a laser alignment system). Accuracy of about 0.005 in. can be accomplished with a simple straight edge and a feeler gauge.

The degree of precision required for a specific pump/driver will depend on the pump’s rotating speed, the distance between the pump and driver shafts (spoolpiece length) and the application’s thermal characteristics. The required precision increases exponentially with operating speed; proportionally less precision is necessary with longer coupling spool pieces.

Other kinds of couplings fall between these extremes.

Assessing alignment needs

Attempts to guesstimate most often result in wasted time and frustration. Attempts to perform manual calculations also may result in frustration.

With these concerns in mind, it is evident that a single tolerance value for pumps would be unrealistic. Rather, each installation should be evaluated individually. For a large 1200-rpm pump, with an elastomer-in-shear coupling, precision of 0.005 in. is fine and a straight edge and feeler gauge alignment would be all that is necessary.

1200-rpm pump. A thermal growth analysis is unwarranted on the hot water circulation pump.

Common sense dictates that an evaluation of the alignment needs of individual pumps, including coupling type and thermal changes, along with rotating speed and spool piece length, will yield the most cost-effective approach to shaft alignment.

With these concerns in mind, a discussion of alignment procedures follows.

Alignment procedures

For applications where temperature changes occur during operation, evaluation of thermal effects is also needed to determine target values.

Another important factor is the coupling type. Industrial users generally agree that non-segmented elastomer boot couplings produce less damaging vibration than jaw or gear couplings, given equal amounts of misalignment.

A mediumsize, common 3600-rpm hot water circulation pump with a jaw-type coupling would require a precision alignment with dial indicators or a laser system.

A high-temperature (400°F) refinery pump would likely be fitted with a spool piece coupling to accommodate thermal movement, and would require an in-place operational assessment of target values.

While precision techniques and target value assessment could be done on any of these pumps, the expense would outweigh the benefits on the

Measuring misalignment at the coupling: Alignment tolerances are applied at the coupling, where the power is transmitted. Alignment techniques measure the misalignment of the shaft’s axis of rotation at the coupling.

The simplest method of measuring misalignment is with a precision straight edge and feeler gauges. Often, a taper gauge or caliper is used between the coupling faces to measure angularity. These methods can achieve accuracy to about 0.005 in., and may be acceptable for pumps operating at 1200 rpm or less.

There are a variety of dial indicator methods for measuring misalignment.

Fig. 3
Figure 1: Alignment tolerances in relation to operating speed.
Figure 2: Offset and angular tolerances in relation to operating speed. Figure 3: Sample alignment target values.

The most common are rim and face, and reverse-dial. With proper care and compensation for bracket sag, accuracy of 0.0005 in. is achievable.

Most pumps operating at 5000 rpm or less can be aligned properly using dial indicator methods.

Laser systems are available that will achieve more accurate alignment measurements than dial indicators. This accuracy will translate into more precise move calculations and can reduce the time to complete the alignment process. In addition to accuracy, a laser system can eliminate data recording errors and other common problems that frustrate the alignment process.

Calculations: It is important to calculate correction moves from the measured misalignment data. Attempts to guesstimate moves most often result in wasted time and frustration.

Attempts to perform manual calcula-

tions also may result in frustration: Sign (±) errors and poor math skills with proportions are common sources of incorrect results. Graphic methods have proven very successful and provide visual cues to the direction of the moves.

There are quite a number of calculator and computer programs that will perform the calculation. Some include graphic indications of the direction of the move. Laser systems perform the calculation automatically. Most provide graphics.

Moving machines: Corrections are achieved by adding or removing shims at the machine feet. For horizontal pumps, shims are nor-

mally added or removed at the drive motor feet to correct misalignment in the vertical plane, and the motor is shifted side to side to correct in the horizontal plane. In order to maintain good foot plane, both front feet are raised or lowered the same amount, and similarly, both rear feet are moved equal amounts. Shim adjustments that would tilt the motor side to side should be avoided.

Actually moving the machine may present some challenges. A hydraulic ‘port-a-power’ jack is the ideal tool. Of course, machines fitted with jack bolts are the best situation. Note: vertical jack bolts are only used to lift the machine to adjust shims; they must be loosened for final alignment.

Even with jack bolts, difficulties can arise. A machine may be bolt-bound or base-bound, preventing sufficient adjustment. In these cases it is necessary to move the opposite (fixed) machine case. Most calculator and laser systems provide means to recalculate for base and bolt-bound conditions.

Not all parts are created equal

Gorman-Rupp of Canada Limited is an ISO 9001-2000 registered company committed to manufacturing excellence, uncompromised performance and industry leading customer service. Genuine Gorman-Rupp parts are the most reliable in the industry.

When it comes time to repair your Gorman-Rupp pump, use genuine Gorman-Rupp parts. It is a decision you will not regret. Should pump problems arise, time is money. Gorman-Rupp invests significant capital in parts inventory to ensure you receive industry leading service. Action not excuses, we ship over 90% of parts ordered within 24 hours. Get all the benefits, use GENUINE Gorman-Rupp parts!

To order genuine Gorman-Rupp parts contact your local distributor or Gorman-Rupp of Canada Limited through our web site www.grcanada.com or email address grcanada@grcanada.com

Documentation: The object of performing shaft alignment on pumps is to achieve longer mean time between failure (MTBF). As with all such proactive approaches, documentation is essential. Alignment technicians should have at their disposal a convenient means to record pre-alignment conditions and the final aligned condition. Those means should also provide for listing target values and the desired tolerances prior to beginning the alignment procedure. Calculator and laser systems will likely have documentation features; however, they may be inadequate for recording all pertinent data. Visual observations of foundations, machine feet, shims and coupling components can be important information related to machine reliability. A paper or electronic work order system will likely have provisions for recording pertinent alignment information.

Conclusion

A successful pump alignment requires planning, careful execution, and documentation of results. An evaluation of tolerances, target values, alignment methods and the data recording method should be conducted prior to beginning work. Pump speed, coupling type and spacing are important elements in that evaluation.

Technicians performing the alignment should have proper training in the chosen technique and be provided with the necessary tools to measure misalignment and safely move the machine. Throughout the alignment procedure, data should be recorded via the provided means to document the original misalignment, the final alignment condition, and any special observations that relate to machine reliability. MRO

Eugene Vogel is a pump and vibration specialist at the Electrical Apparatus Service Association (EASA), St. Louis, MO. EASA is an international trade association of more than 2,100 firms in 58 countries that sell and service electrical, electronic and mechanical apparatus. For more information, visit www.easa.com.

Most pumps operating at 5000 rpm or less can be aligned properly using dial indicator methods.

Extreme contamination botches bearings

A world-class manufacturer of asphalt roofing shingles was having difficulty maintaining a serviceable length of time with its roller bearings, which had to be replaced at every shutdown, if not sooner. New bearings customized for the harsh application solved the problem.

major roofing products plant uses a multi-step process to create residential asphalt shingles. To say it’s a harsh environment for the equipment would be putting it mildly.

One of the main steps in this process is the coating of the shingles. In this section of the plant, sheets of glass-fibre are sent through rollers where hot asphalt is poured onto them. Then the sheets are run through large rollers to even out and smooth the application of the asphalt. During this process, extremely hot oil and asphalt is slung around the rollers and other components.

In this application, the plant was using a variety of a popular brand of bearings, with mixed results. These bearings were susceptible to the extreme contamination of the coating process. The hot oil and asphalt would adhere onto and penetrate into the bearings. This caused repeated bearing failures as a result of inadequate contamination protection in the units.

It became policy at the plant to change out these bearings at every shutdown, even if the bearings hadn’t shown signs of failure. The change-outs caused greatly inflated downtime and increased the bearing replacement budget as well.

Through a major distributor near its location, the plant’s maintenance staff and engineers learned of QM Bearings and its Blue Brute bearing line. The staff contacted QM personnel to determine if anything could be done to solve the situation that plagued the coating roll section of the plant.

They then started working with representatives from QM to come up with a solution for the extreme contamination that was present in this application. Due to the design and structure of the coating roller section, there were obstacles and challenges that presented a problem for standard out-of-the-box bearings. However, after working with QM’s engineers and staying in constant contact with its representatives, the company came up

with a solution to deal with the problem.

Designing a unique combination of components, QM was able to battle the extreme contamination as well as the high temperatures that this application presented. To account for the high temperatures present, QM recommended a high-temperature lubricant and a strict lubrication schedule for the plant to follow. Also, QM recommended high-temp Teflon seals to ensure its bearings would run continuously at high speeds at those high temperatures.

Most importantly, the biggest component of the switch to QM Bearings was to protect the bearings from the hot oil and asphalt that they would be exposed to.

For that, QM turned to its new steel auxiliary covers. The covers were designed to take the punishment of aggregate applications while still offering protection from extreme contamination.

After working at the facility with the maintenance staff, QM representatives discovered that the roller shaft in this application exceeded the length of the auxiliary covers. QM engineers quickly came up with a solution and designed custom spacer rings to give the covers extra clearance from the shafts.

Extending bearing life through design The first trial bearings were put on the

coater rolls with a review date scheduled for 120 days later. The bearings were examined after that period and showed no signs of failure. Using ultrasonic equipment to monitor the vibration waves coming through the bearings, as well as thermal imaging equipment to gauge their running temperatures, the plant’s maintenance staff was able to quickly determine that it had found the solution to its problem. The new bearings were showing no signs of failure and were running much cooler than the previous bearings that had been used.

The plant is now running the new bearings for six months between change-outs with no bearing failures reported to date.

“The plant is leaving the Blue Brute bearings on longer every time, expecting them to fail, and they still have not seen a failure” said a QM representative.

As a result, the roofing products company has taken steps to increase the life of the bearings throughout its plant. The company recently installed a new line of coating rollers in the plant, which came from the factory with new bearings from the previous vendor. However, the maintenance staff at the plant mandated they be switched to Blue Brute bearings before the new line was put into service.

Seeing the positive results from the coater rolls, the plant has started converting the other sections in the plant to Blue Brute bearings. In the granule section of the plant, small granules are added to the hot asphalt to give the shingle the rough texture that everyone is familiar with. In the cooling section, the asphalt and granules are run through cooling rolls. Here, the rotary unions will sometime leak water over the bearings. In these sections, the plant’s maintenance staff was finding multiple bearing failures resulting from the granules’ gritty and abrasive nature, as well as from the large amount of moisture present as a result of the cooling process. Again, after switching to Blue Brute bearings with the steel auxiliary covers, the plant is seeing dramatically increased life over the bearings that were in place before.

The company says it will continue to switch to the new bearings as the other bearings in the plant fail. MRO

Luke Kress is the sales and marketing coordinator for QM Bearings. The roofing products facility in this case study requested that its identity not be revealed for competitive reasons. For more information, visit qmbearings.com.

Reader Service Card No. 401

Fig. 4
Fig. 5
Fig. 6
Fig. 1
Fig. 4: The running temperature of the previous flange block bearing is shown. Fig. 5: Before — This display shows the running temperature of the previously used take-up bearing. Fig. 6: After — This display shows the running temperature of the Blue Brute take-up and flange bearings.
Fig. 1: The old bearings were unable to handle the extreme contamination and heat of the coating application. Fig. 2: The installation of the new Blue Brute bearings on the coater roll is shown before the steel auxiliary covers were installed. Fig. 3: The Blue Brute bearings are shown after the auxiliary steel covers were installed.
Fig. 3
Fig. 2

Seal of Approval

Hybrid bearing isolators, a.k.a. labyrinth seals, meet tough demands for sealing.

ynamic sealing technology has continued to advance in recent years, changing from off-theshelf radial lip seal commodities to high-tech engineered products. As asset uptime and governmental requirements become more and more demanding, the need for high-quality engi-

neered sealing solutions increases.

labyrinth technology. These new technologies consist of unique unitizing elements, hydrodynamic pumping features, cellular foams and/or liquid o-ring seals.

Hybrid labyrinth seals are typically chosen for technically challenging applications when standard labyrinth technology just won’t work.

Seal design advances include contact lip seals and non-contact labyrinth seals. For labyrinth seals, commonly known as bearing isolators, the intricate path and advanced design features are important factors to ensure consistent and reliable sealing. Understanding all of these factors will allow the user to make intelligent seal choices that will have a positive impact on equipment life, productivity and total maintenance costs.

Understanding labyrinth seals

Unlike elastomeric radial lip seals, labyrinth seals are relatively simple in theory. In standard designs, a labyrinth seal is nothing more than an intricate pathway with abrupt directional changes (see Figure 1). The intricate directional change creates a barrier that prevents ingress or egress of material, application lubrication, external fluids or airborne contamination. However, new labyrinth seals, commonly referred to as hybrid labyrinths, are becoming popular. Hybrid labyrinth seals are essentially a combination of new sealing technologies with standard

Although the cellular foam has limited capacity, once capacity is met, effective sealing will still occur as the foam will act as a permanent barrier.

Although this type of hybrid labyrinth is unique, it has been used successfully in highly c ontaminated environments when other sealing technologies simply will not work.

What defines the level of protection?

Many bearing isolator models conform to accepted standards for operation, including API, IEEE and NEMA. Understanding these standards, along with your requirements, is essential to ensure appropriate system protection.

API 610 is a standard for ANSI pumps commonly used in petroleum, heavy-duty chemical and gas industry services. API

Figure 2 represents a hybrid labyrinth that uses a unitizing element to keep the assembly together while maintaining appropriate internal clearances. A common misnomer is that the unitizing element creates a seal barrier, but this is just not the case. The unitizing element simply prevents the rotor and stator from coming into contact with one another during operation, which prevents the potentially harmful generation of metallic particulates.

If contact between the rotor and stator were made during dynamic operation, the particulates generated would then contaminate the lubrication system and eventually lead to premature bearing failure, both of which are costly endeavours.

Figure 3 is yet another version of hybrid labyrinth seal technology. In this design, cellular foam is used in combination with standard labyrinth and unitizing technology to prevent contamination ingress.

The microcellular foam prevents ingress of airborne particulates or fluid by trapping the material into the outer surface of the cellular material. Airborne particulates are simply trapped, while liquid contamination is held via surface tension.

standards are published by the American Petroleum Institute body and are intended to provide fundamental standards for use by manufacturers and buyers alike.

Specific to labyrinth seals, API 610 indicates that bearing housings for rollingelement bearings must be designed to retain lubrication while preventing contamination ingress, all without additional facilities such as air purging. Acceptable sealing devices include replaceable labyrinth and magnetic face seals, while disallowing traditional contact radial lip seals. In addition, the materials used must be non-sparking should dynamic contact occur. The nature of this specification inherently limits the type of seal used and the selection of such.

IEEE 841, created and maintained by the Institute of Electrical and Electronics Engineers, defines the requirements for enclosures used in the petroleum and chemical industries.

Enclosures are defined as either Totally Enclosed Fan-Cooled (TEFC) or Totally Enclosed Non-Ventilated (TENV). Definitions are specified by ingress protection ratings as per NEMA MG 1, part 5.

Case study: Harsh environment calls for upgraded seals

In the production of long steel products, it is often required to cool the newly rolled steel in an even and controlled method. A common solution is to allow the steel to roll through an open-air, liquid-cooling system on long run-out tables.

As the steel rolls across hundreds of rollers, a cooling solution is sprayed onto the steel (Fig. 4). The combination of controlled cooling and properly spaced rollers allows the steel to cool evenly and prevents physical distortion of the finished product.

During this cooling process, power transmission systems are often exposed to airborne contamination and oftentimes corrosive cooling solutions. The power transmission system, in this example, consisted of hundreds of rolling elements driven by variable-speed electric motors (Fig. 5). To control finished product quality, the electric motors were tuned to match the speed of the cooling steel. The electric motors were utilizing standard labyrinth seals but these were failing to provide adequate ingress protection — or they were failing prematurely.

Once it was determined that the original equipment labyrinth seals were not providing IP55 or better, a surface-mounted IP56 rated hybrid labyrinth seal was installed on each electric motor (Fig. 6). The upgrade of the original equipment labyrinth seal to an IP56-rated hybrid labyrinth seal solved the problem.

Once all the electric motors were upgraded, the run-out table was no longer a production issue, nor did it cause production downtime.

NEMA, the National Electrical Manufacturers Association, designates the degree of protection provided by enclosures for rotating electrical machines. In addition, NEMA designates the test procedures used to determine if a machine meets the ingress protection requirements.

The IP rating designates two numeric identifiers for an enclosure’s ability to protect against ingress. These characteristic numerals for the applicable ratings are, for example, IP55 or IP56. With the IP5 number, the number 5 specifies the ability to protect the machine from dust ingress.

To verify conformance, a labyrinth seal is installed in an enclosed environment. Talcum powder, sifted through a sieve with a nominal spacing of 75 µm, is agitated to create a talcum suspension replicating a dusty environment. Vacuum is generated to create air flow through the seal for a minimum of two hours. Ingress protection is determined if no accumulation of talcum occurs; i.e. there is no ingress of talcum through the labyrinth to the measurement side of the test fixture.

The second characteristic of the numeral 5 indicates a machine is protected against water jets. Conformance is verified by installing the labyrinth seal in an enclosed environment and subjecting the seal to a water spray from all practical directions. A water flow of 11.9 to 13.2 litres/min. (3.1 to 3.5 gpm) for three minutes with a minimum nozzle discharge pressure of 0.3 bar (4.4 psi) is used.

For the IP6 number, a characteristic of the numeral 6 indicates a machine is protected against heavy seas or powerful water jets. Again, conformance is verified by installing the labyrinth seal in an enclosed environment and subjecting the seal to a water spray from all practical directions. A water flow of 100 litres/min. (26.4 gpm) for three minutes at a minimum nozzle discharge pressure of 1.0 bar (14.5 psi) is used.

For either IP55 or IP56, the water must not limit the capability of the equipment. Understanding how labyrinth seals function is imperative to ensure the appropriate seal technology is specified. Seal selection, when matched appropriately to the expected application and environment to which the equipment will be exposed, will directly have an impact on seal life, productivity and total maintenance costs. Armed with this knowledge, users are encouraged to work with seal manufacturers to appropriately match seal technologies with application needs. MRO

Earl Rogalski is the marketing manager for Garlock Klozure, an EnPro Industries company based in Palmyra, NY. For more information, e-mail earl.rogalski@garlock.com or visit www.klozure.com. Reader Service Card No. 404

Stator
Unitizing element Labyrinth path Fig. 2
Labyrinth path
Rotor
Rotor
Stator
Fig. 1
Fig. 3
Rotor
Unitizing element
Stator
Labyrinth path
Microcellular foam
Fig. 1: Labyrinth bearing isolator. Fig. 2: Hybrid labyrinth bearing isolator with unitizing ring. Fig. 3: Hybrid labyrinth bearing isolator with cellular foam material.
Fig. 4: Run-out table.
Fig. 5: Run-out table rolls. Fig. 6: Run-out table rolls.
Fig. 4
Fig. 5
Fig. 6

Bearing Magic

Special coatings and materials enhance bearing performance in a wide variety of applications.

Have you ever wondered why manufacturers have been able to extend the warranties or service intervals for their products? Or how an automaker can offer an unlimited powertrain warranty?

Often this is because of recent advances in material science that have allowed that very essential component — the bearing — to last longer and perform better than ever before, even in environments that were, until recently, quite inhospitable to bearings.

With the availability of higher-quality bearing steel, new alloys and platings, heat treatments and microstructure control for improved service life, bearings are going into more places than ever before, while providing superior solutions and improved performance under the most demanding conditions.

Figure 1 shows the wide variety of characteristics needed by bearings in various applications. They can operate in hightech environments or very demanding applications found in steel and paper mills.

Whatever the application, there will

Coating types

Zinc with metal alloy

Zinc and chrome (non ferrous materials)

Zinc phosphate (ZnP)

Thin dense chrome (TDC)

Nickel plating

likely be a material or plating designed specifically to allow the bearing to provide the equipment life required.

Obviously, due to the many operating conditions listed, the list of available materials is quite extensive. For the purpose of this report, Tables A, B and C provide details on just three key operating requirements: protection from corrosion, protection from wear and electrical conductivity protection.

These lists are not meant to be comprehensive, but are a sampling of what is being used to make bearings last longer. Many materials are proprietary to specific manufacturers and their production processes.

The bottom line in the evaluation of any application is the cost benefit — the improved life, and the increased production time — makes it worth the added cost of the special material. MRO

This BSA Bearing Brief, created by the education committee of the Bearing Specialists Association, is one of several available from the association. For more information, visit www.bsahome.org.

Figure 1: Operating Requirements for Bearings and Bearing Components

TABLE A: Protection from corrosion and fretting corrosion

Corrosion protection

Corrosion protection

Fretting corrosion, corrosion protection

Fretting corrosion, corrosion protection

Corrosion protection

Paper processing, rolling mills, automotive applications and outdoor equipment

Various accessories, primarily for automotive engineering

Rail vehicles

Vibrating screen bearings, applications involving exposure to seawater

Food industry

TABLE B: Protection from wear, friction and skidding

Coating types Purpose/Advantage

Black iron oxide

Insert bearings, tapered roller bearings

Insert bearings, tensioners

Tapered roller bearing, cages, sleeves, wheel bearings

Spherical roller bearings, spindle bearings

Pillow blocks, track rollers

Running-in behaviour, oil film retention Wind power, rail applications Cylindrical roller bearings

Manganese phosphate (MnP) Sliding and running-in behaviour Mixer gears

Thin dense chrome (TDC) Wear resistance

PTFE (Polytetrafluorethylene)

PVD (physical vapour deposition)

Coating types

Frictional behaviour

Multi-purpose as various materials can be applied for each characteristic

Oscillating equipment and at-risk lubrication conditions

Bearings for cement mills, ship engine, suction roll

Paper processing, rolling mills, automotive applications, wind, mining and outdoor equipment

TABLE C : Conductivity prevention

Purpose/Advantage

Spherical roller bearings (steel cage), adaptor sleeves

Linear monorail systems

Spherical plain bearings, spherical roller bearings

Deep groove ball bearings, track rollers

Types

Eight smart repair tips

Along time ago, I discovered that most maintenance people like gadgets and smart methods, especially from within their fields. I must include myself in this group, and have learned to use the knowledge of a variety of maintenance methods to keep up my own enthusiasm while generating interest and commitment for implementing better preventive and corrective maintenance practices. Most of these methods are old, but they are very new to many, especially to people who are just entering the area of maintenance.

for shrinking a bearing journal, instead of heating the bearing, when assembling or replacing a bearing.

6. On site machining and repair methods. There are many special machines and services that can be bought to repair components on site, with a minimum of dismounting. Examples of these machines include portable lathes, key way milling machines, flange facers, pre-

heating and stress-relieving equipment, and grinding machines. It is often worthwhile to stay informed about these methods and services. I have seen some remarkable work done using them.

7. Thread inserts. A damaged thread can cause a lot of problems and high costs.

For many years, it has been common to use thread inserts. First, a hole is drilled and the damaged thread is removed. After this, a special tap is used for the thread insert, which is then put in position so that the thread is like new again.

8. Disintegration of broken bolts. Broken bolts can many times cause a lot of problems and unnecessary high costs. There is a special tool you can use that is designed only for the purpose of removing broken bolts — and tools. This tool will pulverize or disintegrate the broken tool or bolt.

MRO

Christer Idhammar is president of IDCON, Raleigh, NC, a reliability and maintenance management consulting firm, specializing in education, training and implementation of improved operations, reliability and maintenance management practices. For more information, write to info@idcon.com, call 919-8478764, or visit www.idcon.com.

I discovered many of these mainte nance methods during my years in the merchant marines on salvage ships, as well as during my years teaching and implementing better maintenance prac tices in five developing countries. In both cases, we were isolated from the rest of the world and the only choice was to do repairs with what we had.

For the experienced maintenance per son, these methods for preventive and corrective maintenance might seem com mon and obvious. However, even the ex perienced reader might find some good ideas from this brief review.

1. Brush plating or selective plating. Brush plating or selective plating is a cold electrolytic method of applying a thin layer of metal to a metallic surface without dip ping the object in a bath of electrolyte. This method provides good bonding and is also used in the manufacturing industry to cor rect undercut tolerances of, for example, shafts. I have seen it used many times to build up a thin and very accurate layer of metal on a bearing journal or to reduce the inner diameter of a bearing. The method is portable and can be done on site.

2. Metal stitching. Often called the Met alock method, metal stitching allows the cold repair of metal — especially cast iron. By drilling a pattern of holes into which a specially designed key is hammered, a very strong repair can be made to cracked machine foundations, gear cases, big gears, etc. For more information, visit www.metalockinternational.org.

3. Leak sealing under pressure. With this method, a special compound of rub bery consistency is injected at room tem perature around the area to be sealed. Application of heat — either externally or from the medium to be sealed — cures the material, which then expands slight ly. Curing time is about 20 minutes at a temperature of 49ºC (120ºF).

4. Installing a new valve in a pipe under pressure. Big and small valves can be installed in pipes under full pres sure. With this maintenance method, a threaded or flanged spigot is welded or clamped around the pipe. A valve is then fitted to the flange or thread, and a spe cial drill is used to make a hole in the pipe through the valve. After the drill and the cutting debris are removed, the mounted valve is closed and can be con nected to a pipe if so desired.

5. Jet freezing. Using CO2 and an isola tion cloth, water pipes can be frozen so that repairs can be done while a system is under pressure. This device is also useful

• Seals 6 mm (1/4 inch) punctures in tread area

• Seals larger punctures in heavy ply tires

• Seals most bead and rim leaks

• Helps maintain constant tire pressure

• Effective from -43˚C (-45˚F) to over 93˚C (200˚F)

• Tires run approx. 25% cooler, providing a cooling effect

• Contains 4 Industrial Rust Inhibitors & 1 Vapour Inhibitor

• Will not corrode steel, aluminum or chrome rims

• 100% water soluble - easy clean out for recapping, patching

• Indefinite shelf life, no mixing required

• Does not void tire warranty • Stays pH neutral

• Works in high & low pressure tires / high & low speed tires

• Formulated for tube or tubeless tires

• Will not adversely effect balance when properly installed

• Completely homogeneous

• Never separates

• Works with most TPMS / low tire pressure indicator sensors

• Not recommended for low tire pressure equalizer systems

• Do not mix with fluids, balancing powder, or

Above: The Metalock process is a method of stitching metal together on site. Right: Thread-forming inserts can repair damaged threads.

FOCUS ON MINING

Refurbished drives save 50% on mine startup costs

Drive supplier helps Highland Mining make the most of its existing 9-km-long conveyor belt.

As the world’s largest private-sector coal producer, Peabody Energy is always looking for ways to work more efficiently and cost-effectively. The development of a new mine in western Kentucky by Highland Mining Company, a wholly owned subsidiary, was no exception. This would be the first new deep mine project in western Kentucky in more than a decade. It began operations in 2003.

IDI/MC7580/MRO 1/30/09 10:25 AM Page 1

Highland Mine No. 9, designed to produce about six million tons of coal a year,

incorporates a 9-km long above-ground belt to move the coal from the mine to the company’s Camp No. 9 preparation plant.

In developing the facility, the project team at Highland Mining thought an existing, but idled, Tilden-St. Libory-Marissa (TSM) Belt Line might provide the most economical solution to the new mine’s material handling needs.

Logistically, the TSM Belt Line was located in southern Illinois, about 274 km away from the Kentucky site. Although idle for several years, the

belt line was generally intact.

Nick Doshi, senior project engineer for Peabody Energy, sized up the project.

“We knew the TSM Belt Line was in good condition, and that the majority of existing components could be reused,” he said. “What we needed to determine was the status of the 20-year-old Falk 2145Y2 Parallel Shaft Gear Drives at the TSM site. So, we contacted Ken Vetter, Falk’s district manager in St. Louis.”

Supplier goes to work in the field

In April 2001, Vetter accompanied site personnel on a field inspection of the idled TSM drives. Vetter followed up with a written report of the findings. Of 11 drives inspected, nine were selected for the Highland No. 9 Mine project. Eight would be placed into service on the relocated belt line, with the remaining drive serving as a spare.

“The housing exteriors needed work,” noted Vetter, “but the rotating internals

were observed to be in good shape. Refurbishing by Falk Renew was clearly an economical option.” Doshi concurred and all nine drives were removed from the TSM Line and shipped to Falk Renew’s dedicated repair facility in New Berlin, WI.

Over 260 Locations Coast to Coast Across Canada

Falk Renew specializes in returning drive system components to original performance specifications, for a lot less than the price of a new drive. According to Brian Halverson, general manager of Falk Renew, “The goal is to deliver a restored drive for 75% of the price of new … or less.”

The renewal process called for complete disassembly of the drive. Individual components are cleaned and inspected, followed by repair or replacement as needed. In the process, new bearings, seals, shims and gaskets are installed.

Housings: “In this case,” Halverson pointed out, “every housing was shotblasted, taken right down to bare metal, and then repainted. Our goal is to provide as-new-as-possible functionality and aesthetics.”

Gear sets: The gear sets were in good shape, so most components could be reused, which further reduced Highland Mining’s costs. By flipping original shaft assemblies end-for-end in the housings, the internals were oriented so power would be transmitted on previously unused flanks of the gear teeth.

Doshi met with the Renew team to review site plans for the new belt line. “Based on this information, we knew the direction of shaft rotations and exactly how the internals of each drive needed to be configured to run on the previously unused flank of the gear sets.

Drives would arrive at the site ready for quick, cost-effective drop-in placement on the line,” noted Halverson. “The key was to insure that new pinions were running against previously unused flanks of the original bull gears.”

Accessories: “On this particular job,” said Halverson,“some of the drives came in missing the cooling fans originally furnished on the high-speed shaft, so we supplied new fans and shrouds. We also mounted new coupling hubs.”

The drive supplier’s participation in the Highland No. 9 Mine project was not limited to the services of its refurbishment program. Falk also furnished Type NRT low-speed backstops for inclined belt conveyor applications.

The NRT Backstop features an instant-response roller/ramp stopping mechanism. The doorstop type action means the higher the torque load, the tighter the stop.

The gear drives were remanufactured to their original condition and then improved by outfitting them with Magnum Seal cages and AirMax breathers. This technology was not available when the drives were originally manufactured two decades earlier.

Magnum Seal cages: Magnum Seal cages keep oil in and dirt out. The cages incorporate an inboard bushing seal and an outboard lip seal, creating a drainback cavity between the seals. Any oil clearing the inboard seal is ported back to the oil sump via a drain channel drilled into the housing sidewall. Falk Renew added Magnum Seal cages and drilled the necessary sidewall passages, upgrading the Highland Mining drives to this superior sealing system. An additional feature of the Magnum Seal cage is a grease-purgeable cavity that protects the outboard lip seal, excluding coal dust and other contaminants.

AirMax breathers: Designed to allow the drive to breathe, while excluding airborne moisture and particles, the filtration media in the breathers is pleated to maximize the surface area, enhancing filter capacity and longevity. Efficiency is 99.7% at 3 microns.

Cost of spares reduced

The nine gear drives renewed for Highland Mining Company were all identical in size and ratio. At locations where there are many drives that are identical, except for assembly number, Falk Renew can make use of double extended shafting to reduce the number of spare parts. With double extended shafting, appropriate shaft extensions can be exposed for coupling connection and unused shaft extensions can be capped with cast shaft guards bolted directly to the housing (with no seal cage).

Where facilities have a common spare to address several identical drives of different assembly numbers, special removable fabricated shaft guards could be used. In lieu of the original cast shaft guards, the spare drive is outfitted with a Magnum Seal cage at every shaft extension. Easy-to-remove fabricated shaft guards were attached directly to the seal cages. Changes to the spare drive could be easily accomplished by moving shaft guards to the proper shaft extensions, but removal of seal cages and associated shimming is not required.

FOCUS ON MINING

with

ing its old drives. “There were clearly many areas of savings, beyond the cost of the drives themselves,” said Halverson.

“Highland Mining saved money by not having to change its drive bases. It gave us the opportunity to apply

our full-service supply capabilities, which helped it reduce installation time and costs,” he added. Also, “Highland Mining was able to reduce the number of spares required for the line through the use of a universal spare design.”

For more information on Falk Renew, contact Rexnord Canada Ltd., Toronto, ON, by using the number below on a mailin/fax-in reply card in this issue, or use our online reader reply service at www. mromagazine.com/rsc.

Left: Nine-kilometre-long belt delivers coal from the mine to the preparation plant. Above left: Disassembly begins
removal of housing split bolts, shaft guards, end covers and seal cages. Centre left: Bearing bores are checked versus original specifications. Deteriorated or distorted bores can be restored. Centre right: Initial bearing adjustments are done with a dial indicator; new shims are used to attain readings within original design specifications. Above right: The Magnum Seal cage is outfitted with an outboard split grease purge cage to protect the outer lip seal.

This article is part of an ongoing series. The introduction appeared in Machinery & Equipment MRO’s February 2005 issue and the series has run in every issue since. Previous instalments are archived online at www.mromagazine.com. In this issue, we pick up where we left off in the February 2010 edition, as maintenance manager Bob Edwards gets ready to take on more responsibility in implementing major changes to the mill’s maintenance operations.

Plant manager Joe Davis held his so-called Town Hall meetings in the mill over the next week and everyone seemed to be intrigued by what he had said. I was still a little uneasy about how I would put a positive spin on what he had told me about having to get better quicker, but with so much happening, I didn’t have much time to think about an approach.

Wednesday brought the pre-shutdown meetings, first with the guys to make sure everyone knew what it was they would be doing — and then with the other departments to iron out the final details. At the first meeting, millwright Pete handed out a procedure describing what would need to be done if we had an alarm on the new vibration monitoring system.

“John, our vibration consultant, is not going to activate the auto-shutdown until Friday, as he wants to have 24 hours of history to ensure everything is functioning properly. We’ll post a list of alarms and John’s phone numbers next to the console in the control room. Next week, John will come in and do some training on the system and answer any questions that we have. By the end of shutdown tomorrow, all of the major rolls at the wet end of the machine will have on-line vibration monitoring, as will the drive motors.”

I read through Pete’s procedure and found it was very detailed — and included an overview for the production group.

“That’s great Pete,” I said. “Would you mind coming to the meeting this afternoon to explain to everyone what they can expect? Thanks, and let’s have a safe and productive day tomorrow.”

Dave approached me as I was leaving the meeting. “Bob, have you got a minute?”

“Sure, Dave. What’s on your mind?”

“I couldn’t help but notice that you’ve not been your enthusiastic self the past few days, Bob. Are you nervous about the way things have developed, or are you questioning if we’ll succeed? I can tell you one thing and that’s if the guys have anything to do with it, it’ll be a great success. It just takes time, that’s all, so just be patient.”

I wondered whether I should tell Dave about Joe’s comments and then I thought about his talk about needing everyone on board.

“It’s neither, Dave, it’s more that I think we need to improve a lot quicker, something Joe would agree with, I’m sure. But I’m not sure how we’ll do it.”

“I think there are two ways we can improve, Bob. There’s incremental, where all of the little things we do better start to add to the bottom line, and then there’s step change. Given what you said last week at our meeting, we should be looking at reducing the number of — or at least the length of — our shutdowns. If we can get away from changing rolls on a frequency basis, we should be able to reduce maintenance downtime dramatically, as they are always the critical jobs.”

Dave was right again. One of the solutions we were looking for was right in front of us. I needed to look at the up-

“How long would we have been down for a felt change?”

“Normally it takes four to six hours, depending on what was happening in the area. Why do you ask, Bob?”

“It’s just something we’re looking at, Fred. Do we have to change the rolls every six months? It’s one of the benefits vibration monitoring brings.”

After the meeting, I decided to see what was happening with the KPI boards and that was when I made a decision. I had another KPI I wanted added to our board — planned downtime. I wasn’t sure how Joe would take it, but I had enough belief that it was a relevant measure, for which I was prepared to stick my neck out.

Plan begins in earnest

Follow along with Step 32 in a journey to World-Class Maintenance at the Plentya Paper Company as the team undergoes major changes to achieve its goals.

coming shutdown schedules and figure out if we still needed to have them and if we did, determine how long they would be if they didn’t involve changing rolls. It had become obvious that I needed Joe to tell me where corporate saw the opportunities for improvement, so we could focus on achieving them.

“Thanks, Dave. You’ve helped once again. You really seem to have a grasp of all of this management stuff. Have you ever thought about moving up the ladder?”

“Funny you should ask that. I never wanted to be ‘the boss’ when it meant that you made all of the decisions and everyone else did what they were told. Now that it seems you can allow people to be as good as they can be, I wouldn’t mind giving it a try.”

see what his measure for planned downtime was and how it fit into the overall results. Joe seemed a little calmer and asked that I let him know what I found.

Feeling a little more confident, I headed to my office to prepare for the afternoon production shutdown meeting. Pete was able to put all of the production people at ease about the vibration sensors and everyone seemed confident that there wouldn’t be any hiccups.

Key Points

The shutdown went as planned, with Pete updating me every couple of hours on the progress he and John were making.

Don’t be narrow-minded when looking for improvements.

Take good advice no matter where it comes from.

If you deliver the results, no one will question the reasons.

I left Dave and headed straight to Joe’s office, where I found him working on a plan for the numbers we needed to reach if we were to achieve 600 tonnes per day. When I asked about what the numbers were for planned downtime, Joe seemed a little upset.

“Why don’t you concentrate on the KPIs I gave you, Bob, and stop looking for other things!”

This wasn’t like Joe and I figured he was feeling the pressure along with the rest of us. So I explained what Dave had said and suggested that I would call Alan, the mechanical team lead at the big mill we had visited in Wisconsin, to

Friday’s review meeting was almost a formality, except for the fact that the shutdown had overrun by one hour due to the centre roll change taking longer than planned.

“That will be classified as maintenance downtime, okay Bob?,” commented Fred, our production manager.

There wasn’t much point in arguing, as we’d decided some time ago that if there was more downtime than planned, the responsible department would be assigned the downtime. This made Dave’s point about not changing rolls, or shortening the planned downtime, even more relevant.

“No problem, Fred, but I have one quick question. If we didn’t have to change the centre roll yesterday, would we have to had shut down for any other reason?”

“We would still have had to change the paper felt, as it was due.”

Later at home, as I told my wife Sandy about what had happened, she had a smile on her face. “That’s more like it. I’m sure that Joe will be okay with it, as long as you have a plan to reduce the downtime. You’re going to have to take some chances along the way and you need to believe that what you are doing is the right thing to do — not just for you or Joe but for all of the guys as well.

“From what you say, they feed off what you do and how you feel – it was really great that Dave talked to you. It shows that for him at least, you are approachable and that’s very important when you’re trying to change something.

“You’re going to have to find ways that you can show everyone that you mean what you say. It was a good start with Pete but you need to have that sort of responsibility-taking as part of the day-to-day business.

“Talk with Carol, your reliability manager, too. I’m sure she is doing work that could be done by the guys. It may take a little change in the level of authority they have, but that’s going to be the challenge everyone faces. Fred is going to have a tough time but he’s going to have to give his operators more authority if he’s going to do what Joe has asked.”

I thought about what Sandy had said and it occurred to me that sometimes repairs or parts being ordered took longer than they should, simply because the guys didn’t have the authority to take things to the next level.

That was a lesson we had learned in Wisconsin, where their guys had much more authority than our guys. And then it dawned on me — if we didn’t have the same tools as Wisconsin did, how could we achieve what they achieved? I shared my revelation with Sandy and, as usual, she was able to build on my thoughts.

“You could demonstrate this to Joe if you were to get the guys to make a record of every time the process was stopped or delayed because they didn’t have authority to move ahead. In fact, you should add any other reason work was delayed — because they were waiting for instruction, they needed some knowledge, the tools weren’t available, or they weren’t trained and had to get someone else involved.

“You could then prioritize what you need to focus on to meet your goals. If you’re going to call Alan about the Planned Work measure, why don’t you ask him about how he decided on what authority level was appropriate for the guys.”

Once again I was impatient to get back to work due to Sandy’s comments — in a good way!

Cliff Williams is the corporate maintenance manager at Erco Worldwide in Toronto, ON, and a consultant with TMS Total Maintenance Solutions Inc., Markham, ON. He can be reached by e-mail at williamscliff@rogers.com.

Clearing machinery jams in a safe and productive way

Often, clearing jams, making settings and cleaning operations are mistaken for maintenance activities that require lockout. But this is not the most productive or necessary way to operate a machine.

Preventing access to moving parts is regulated, in Ontario, by the provincial Occupational Health and Safety Act, and throughout Canada by machine guarding standards. There is no choice in this matter; it is something that must be done.

However, if machine guarding is applied incorrectly, it can create a serious health and safety issue for the machine operators, as well as a serious productivity issue. One can easily erect a box around a machine so there is no access to moving or rotating parts, and then the machine will be safeguarded. However, the guarding would not last long, because there is always jam clearing to be done, adjustments to be made, and so on. Soon, such a box would likely be removed and workers would then be exposed to the machine’s dangerous motions and actions.

Before any type of guarding is considered, a risk assessment needs to be carried out to establish what the hazards are, how frequently a person will be exposed to those hazards, and what the likelihood is and what the severity of an injury could be. It is, of course, important that the risk assessment be documented. A proper Pre-Start Health and Safety Review (PSR) must have a risk assessment as part of the review.

As a rule of thumb, if fixed guards need to be removed more than once per week, even for machinery maintenance or cleaning, interlocking should be considered. Interlocked guards will cause the machine to stop if the guards are opened; alternatively, the guard cannot be opened until power to the machine has been removed.

For low-risk applications, it is acceptable to use an interlock with a single actuator on the guard and a single control channel with monitoring, but higher-risk applications need two independent actuators with separate control channels and crossmonitoring so that, should one switch or channel fail, the other will operate as it should.

If part of a machine takes a relatively long time to come to rest, a time-delay relay should be incorporated so that the guard will remain locked until the machine has come to rest.

A common misconception about guarding a machine is that the main issue is to keep operators away from the hazards. However, it is vital to ensure that the full operational, cleaning and maintenance needs of the machine are considered.

Let’s look at jam-clearing situations. Sometimes entry into a machine to clear a jam or do set-up while it is running is essential. If the system allows the operator to be in control of the machine at all times, then such an entry is possible. The CSA Z432-04 Standard for Safeguarding of Machinery describes the following:

Clause 6.2.1.9.12.1 allows certain operations (i.e. setting, process changeover, fault-finding) to be performed, if required, with the guard/door open and the protective device neutralized.

This requires the use of a manual control mode that simultaneously disables the automatic control mode; permits operation of the hazardous element only by triggering an enabling device, a hold-torun control device, or a two-hand control device; and permits operation of the hazardous elements only in enhanced safety conditions (e.g. reduced speed, reduced energy/force, step-by-step).

Enabling devices are controls that may allow an operator to enter a hazardous area with the hazard running, only while the operator is holding the enabling device in the actuated position.

Enabling devices use either two- or three-position types of switches. Two-position types are off when the actuator is not operated, and are on when the actuator is operated. Three-position switches are off when not actuated (position 1), on when held in the centre (position 2) and off when the actuator is operated past the mid-position (position 3). In addition, when returning from position 3 to 1, the output circuit must not close when passing through position 2. This concept is shown in Figure 1.

Enabling devices must be used in conjunction with other safety-related functions. A typical example is running the machine in a controlled slow mode. Once in slow mode, an operator can enter the hazardous area holding the enabling device.

Clearing jams, setting, process changeovers and fault-finding are considered to be normal operational activities and are not classified as maintenance activities. Standards require that maintenance activities shall follow strict lockout procedures. All sources of energy (electrical, mechanical, hydraulic, and any other source of energy) shall be locked out or dissipated and the system shall be brought to a zero-energy state.

Lockout/tagout provisions and procedures as per the CSA Z460-05 Standard, Control of Hazardous Energy Lockout and Other Methods, are required to be in place and communicated to staff. Often, clearing jams, making settings and so on are mistaken for maintenance activities which require lockout. Once the lockout is implemented and the machine is brought to a zero-energy state, the power is lost to the controller and all coordinates and settings are lost. When the machine starts again, it may take a while to bring it back to the position it was in before a lockout. It is defi nitely not the most productive or necessary way to operate the machine.

Using appropriate controls based on a hazard assessment allows a safe and efficient way for clearing jams, and doing set-up work and cleaning operations.

Simon Fridlyand, P.Eng., is president of S.A.F.E. Engineering Inc., a Toronto-based company specializing in industrial health and safety issues and PSR compliance. He can be reached 416-447-9757 or simonf@safeengineering.ca. For more information, visit www.safeengineering.ca.

Fig. 1: Enabling Switch Operation.
Fig. 1
Got problems with your CMMS? They may be caused by issues with your procedures, not the software.

vendor and labour costs are recorded on every work order. The total cost of maintaining equipment can help justify capital expenditures to purchase new equipment.

5. The inventory module was being used minimally. Entering inventory into the software and building equipment spare part lists are among the more powerful functions of the software. Substantial ROI can be realized with further development of the Inventory Module.

P6. The project module was not currently used in the CMMS. Projects allow the tracking of both work progress and cost. Work orders and purchase orders can be charged against the project number for one seamless, well-organized, easily tractable project flow. The use of the project module would give accurate information to all people involved in the project.

Makingwork it

eople often blame their CMMS for not functioning properly. We hear this over and over again, with comments like “This darn thing won’t work.” This happens for a host of reasons. In this column I will share an onsite CMMS assessment my company did for one of its clients in order to illustrate how a CMMS can run into problems.

The following describes a report we sent to our client after our on-site visit to its facility. These findings may be able to help you identify areas where you can correct a problem in your own situation.

Our goals during the visit were to:

• Deliver basic and advanced training to the CMMS users.

• Review the progress from our recommendation of the previous year.

• Determine and document the current work order flow and uncover bottlenecks.

• Identify current practices that impede the effectiveness of the CMMS and make recommendations for improvement.

Our first step was to assess the training that we delivered. The basic and advanced training was delivered on Monday, Tuesday and Wednesday, and was well attended and received by the participants. The training was held in the company’s training centre and each of the participants had their own computer to work on; as well, a copy of the organization’s own database was used.

We gave the participants an opportunity to express their concerns about the software. Their key concerns were:

1. The inability to get specific reports from the CMMS. This was caused by inconsistent data being entered into CMMS, as well as the variety of equipment nomenclatures currently being used in the program. For example: it was impossible to get a report to show the work orders being done on cafeteria equipment. This was due to the naming conventions for the equipment. The conventions made the report awkward to create and it was difficult to determine whether the work on the equipment was completed, still in progress or forgotten. Participants felt that the data in the CMMS was unreliable and certainly was not current.

2. The inability for CMMS users to enter or update even basic work order informa-

tion was another issue. Any work entered into the software, including minor work order updates, flowed through the maintenance clerk, causing extreme frustration among the users.

3. Project information entered into the CMMS was insufficient and users could not determine the project’s status. This made it necessary for customers to contact the person responsible for the project to get an update. Contacting the people responsible was not always easy as they were often out of their office and difficult to reach.

4. The inability to roll up the total cost of a project. There are one or more project work orders created in the CMMS to execute one project. Projects costs are very often taken from several sources and it takes a lot of time to get project cost reports for managers.

Next we addressed the issues discovered during the consulting phase of our visit. First we examined the company’s CMMS work order process.

It has been our experience that 90% of the issues experienced when using and managing a CMMS are caused by a poorly constructed or non-existent business process flow for the software.

On our second day at the site, we facilitated a workflow development meeting with key managers. This exercise identified the work inputs into the CMMS and followed the work order progression through the software. Several bottlenecks were identified and documented. Here are the work order flow bottleneck issues we found.

1. Work requests come in through the help desk in several ways and must be entered into the CMMS manually. The work requests are received by phone calls, phone messages, e-mails, notes and word of mouth.

2. The flow shows that work orders cycle through the maintenance clerk, even for minor updates. This slows the progress of the work order through the system.

3. A major bottleneck is the closing of preventive maintenance (PM) work orders. Completed work orders are left open up to nine months after they are generated by the CMMS. There were 1,545 active work orders in the software. More than 300 were nine months old,

varying in status from open, completed to on hold. These numbers are due to an ineffective workflow and to current work order management practices.

4. Daily PM checks and meter readings were the biggest work order offenders. The PM inspection sheets and readings are returned to the maintenance clerk. The readings are typed into a template and then copied into the CMMS. This is a long and tedious process by industry standards. Using a handheld computer to record the daily readings would allow the data to be directly uploaded into the CMMS, where the readings can be analyzed and appropriate actions taken.

5. Work in restricted areas must be approved and signed off. Presently the work order is sent to the affected department for signatures. This authorization could be done electronically through the CMMS software.

6. Work orders also cycle back and forth between the purchasing department and facility management. This also could be done electronically through the software.

A poorly designed work order flow, and not using the full functionality of the CMMS, were causing extra workload. Users were taking five to 10 minutes to do something that could be easily done by the CMMS. This time was adding up to hours of extra work per week.

We also examined the database and found the following practices that had been adopted over the years and were causing problems for users.

1. There are several fields that had been renamed over the years to facilitate the recording of data. For example, the ‘work order type’ field was changed to ‘expense class’ and now was causing problems with report structures. Fields should be changed back to their intended use.

2. Nomenclatures for key CMMS fields had not been clearly defined. Current naming conventions did not follow CMMS standards.

3. The equipment list needs restructuring to reflect parent and child relationship and non-equipment items should be removed from the software.

4. Wage rates had not been entered for employees. An accurate cost of maintaining equipment can be obtained when material,

7. Contractors were listed as employees. The CMMS has a contractor function to record their work and cost. Using this function would correct the issue of contractors and vendors being listed in the program’s employee list. Vendor work order costs can be tracked separately from facility employees.

Overall recommendations

In the end, we offered our recommendations to management. We provided them in order from the highest priority to the lowest.

• Develop a Standard Operating Procedure for work orders and create a sustainable work order flow structure, thus eliminating current bottlenecks.

• Use the CMMS technology to reduce the bottlenecks in the work order flow. The software has secure approval stages and can electronically route work orders to the appropriate department.

• Change the CMMS fields back to their original purpose and choose or create fields that better suit the site’s requirements.

• Develop and document nomenclatures for all CMMS key fields. Change the current naming structure to the new naming conventions.

• Give specific users more access to enter data into the software. Routing everything through the maintenance clerk causes many delays.

• Train personnel to use the CMMS project module. The project module will save hours of tracking and extra paperwork.

• Use CMMS add-ons to electronically enter work requests into the software. This will eliminate the need for customers to request work through the current call centre. People requesting the work can also check their work request status online.

• Purchase mobile software and a handheld computer device to allow maintenance personnel to record their daily meter readings and upload them directly into the software.

• Add employee wages in the software for maintenance cost tracking.

• Separate vendors from employee records.

So here you have our assessment and report on this facility’s CMMS. Maintenance programs are very powerful and useful tools to manage work activities. However, if the software is not properly implemented, the program will not function effectively.

Poorly developed practices create more work for the maintenance department than if they had no CMMS at all. MRO

Peter Phillips of Trailwalk Holdings, a CMMS consulting and training company based in Nova Scotia, can be reached at 902-798-3601 or by e-mail at peter@trailwalk.ca.

Poorly developed CMMS practices can create more work for the maintenance department than if they had no CMMS at all.

electrical equipment news

report

Improving Motor Management in a Weak Economy

Effective decisions regarding motors can be made when a good repair/replace policy is based on scientific facts.

When production drops due to a weak economy, plant managers and engineers often try to control costs by delaying the replacement or repair of failed electric motors. While this may save money in the short term, it could put the plant at a competitive disadvantage once the economy starts roaring back. A better approach to motor management during slack periods is to target mission-critical equipment based on a sound motor repair/replacement policy.

It’s easy to find ‘expert’ opinions on the Internet about which motors to repair or replace, so it shouldn’t be too hard to create a good repair/replace policy, right? Unfortunately, much of this free advice ignores the type and size of the motor, as well as differences in applications, hours of operation and load conditions — i.e., how, where and when the motor is used.

Often such advice also fails to consider modifications that may be needed or the time it may take to get the new motor. Worse still, some of these ‘expert’ opinions recommend replacing every motor that fails, based on the false assumption that repair inherently degrades motor efficiency, or that energy-efficient and premium-efficient motors are impossible to repair or rewind.

Getting the facts

Energy-efficient motors: A good motor repair/replace policy should be based on scientific facts, not opinions or assumptions. For starters, nothing about energy-efficient or premium-efficient motors is magical or mysterious. Manufacturers simply improved the efficiency of these models by minimizing the

amount of energy that is lost to the combination of heat, friction and windage in the process of converting electricity into work. Simply put, there are no technological breakthroughs associated with these motors.

To reduce core losses, for example, some energy-efficient models have longer stator and rotor cores than standard motors. They also have more copper in the windings to decrease copper losses, and open or shielded bearings (lubricated with a specified quantity of grease) to reduce friction. To minimize the power diverted to cooling, totally enclosed, fan-cooled (TEFC) designs use the smallest fan that can handle the job.

Effect of motor repair and rewinding: When it comes to repair, a rewind study commissioned by the US-based Electrical Apparatus Service Association (EASA) and the UKbased Association of Electrical & Mechanical Trades (AEMT) in 2003 scientifically proved that the energy efficiency of high-efficiency NEMA and IEC motors is maintained by following the good practices identified in the study. The efficiency levels of the motors tested ranged from the original EPAct level to the NEMA Premium and IEC EFF1 levels.

The study, which was performed at the University of Nottingham in the UK, tested 22 motors ranging in size from 50 hp to 200 hp (37kW to 150 kW), before and after multiple winding burnouts and rewinds. An earlier study by AEMT, in 1998, also proved that the efficiency of motors with lower hp/kW ratings can be maintained during repair, dispelling the notion that, of themselves, winding burnout and removal damage the core.

According to these studies, following best

practices during repair is critical to maintaining motor efficiency. To control bearing friction loss, for example, requires using the original bearing type, maintaining or restoring the proper bearing journal and housing fits, using the correct quantity of lubricant, and running in the bearings before testing for efficiency. For a copy of the most recent study, go to www.easa.com and click on the Industry Info button.

To retain the original efficiency of repaired or rewound motors, consider using a service centre that follows ANSI/EASA AR100-2006, Recommended Practice for the Repair of Rotating Electrical Apparatus (also available for download on the Industry Info page at easa.com), and the Rewind Study’s Good Practice Guide.

Developing a repair/replace policy

A motor repair/replace policy is useful a tool for determining the best course of action when a motor fails. But each application is unique. Although the extensive flowchart in Figure 1 lists key decision points, it doesn’t cover every possibility. Application review: The first step is to determine if the failed motor suits the application. A motor with an open enclosure, for instance, may not be practical for a sawmill application with lots of airborne dust and

Fig. 1
Repair or replace? This flowchart lists key decision points for failed motors.

debris. A better choice might be a totallyenclosed, fan-cooled (TEFC) replacement. Processes and duty cycles often change over time, so it always pays to re-examine the application when deciding whether to repair or replace a failed motor.

If the failed motor is a good fit for the application, check the condition of the stator core. Has it sustained significant damage? Prior to failure, did the motor exceed its rated temperature rise (i.e., high core losses)? Absent special features that might affect price or availability, it may cost less to buy a new motor than to repair a badly damaged stator core.

Next, consider these decision points simultaneously:

• Has catastrophic failure occurred?

• Is there evidence of a prior catastrophic failure?

• Is the rotor damaged?

• Are other mechanical parts severely damaged?

• Is it an EPAct, NEMA Premium or IEC EFF1 motor?

Catastrophic failure: If a catastrophic failure has occurred, weigh the cost of repairing the motor against that of replacing it. Such failures typically do significant damage to the stator core and windings, as well as to the rotor, shaft, bearings and end brackets. In such cases, replacement may be the most economical option — especially if you question the suitabil ity of the motor for the application.

Rotor damage varies widely — from sur face smearing due to contact with the stator, to melted bars and end rings on die-cast designs, to lifted bars or broken end rings on fabricated designs. Surface smearing can often be repaired economically. Other kinds of rotor repair may not be feasible unless the motor is very large or has special features.

The shaft, frame or other mechanical parts may also be damaged so badly that they must

be replaced. Here again, the cost of buying or making a new shaft, or of purchasing a new frame, may make repair a less attractive choice than replacing the motor — unless the motor is very large or has special features.

Prior catastrophic failure: Sometimes evidence of a prior catastrophic failure is discovered only after disassembly. Examples include a bent shaft that has bent again; a damaged rotor core or damaged rotor bars or end rings; and damaged stator core laminations.

Whether you choose to repair or replace the motor, be sure to identify the contributing causes of failure to prevent a recurrence.

Energy-efficient motors: The points discussed so far have shaped motor repair-replace decisions for more than 50 years. The advent of energy-efficient motors introduced another consideration — whether to replace the failed motor with a more energy-efficient model.

Broadly speaking, energy-efficient motors are those covered by federal regulation (such as the EPAct in the US), IEC motors labelled EFF1, as well as newer, premium-efficient models (for example, NEMA Premium). Repair considerations for these motors are the same as for standard-efficiency models.

Following the good practices of the EASA/ AEMT rewind study, qualified service centres can repair any of these motors without affecting the efficiency rating.

Before repairing a standard efficiency motor, consider the return on investment for a more energy-efficient replacement, including the expected life of the motor or process, load conditions, hours of operation, the price of electricity and any modification costs. If your analysis shows that replacement is preferable to repair, the next consideration is whether you have the money in your budget. If not, you may still opt for repair as long as it costs less than a new motor.

Assuming you have the funds for a new motor, the next decision point is availability. Motors such as those that fall under EPAct rules are normally stock items. Delivery times for larger motors, or for those with special features, often range from a few weeks to several months. If the delivery time is longer than you require, a qualified service centre usually can repair the original motor in far less time. It also may be able to add the special features you need to a stock motor — for example, by converting it to a C-face mounting.

Addressing critical motor repair and replacement concerns during economic slowdowns enables you to ramp up production quickly as market conditions improve. Implementing a sound motor repair/replacement policy now also will assure wise management of plant assets well into the future.

Thomas H. Bishop, P.E., is a technical support specialist at the Electrical Apparatus Service Association (EASA), St. Louis, MO. EASA is an international trade association of more than 2,100 firms in 58 countries that sell and service electrical, electronic, and mechanical apparatus. For more information, visit www.easa.com or use the

EASA Ontario on international forefront

Toronto, ON — The Ontario Chapter annual general meeting of the Electrical Apparatus Service Association (EASA), held at Metropolitan Hotel Toronto on Jan. 23, 2010, featured meetings, a tabletop trade show, a dinner-dance with the group New Hollywood, and a keynote talk from the association’s international chairman.

Chapter president Brian Larry of Larry Electric Motor Service Ltd. commented on the change of venue to the Metropolitan Hotel, which he said had made the weekend more affordable. “Next year is an election year,” he added, asking “anyone interested in a board position to contact any member of the executive.”

Larry presented an award to Tom May of Trade-Mark Industrial Inc. for support of EASA and the Ontario Rewind Apprenticeship Program. Also, Gerry Siemon of Ampro Electric Ltd. was presented a 20-Year Service Award plaque in recognition of his long association with the chapter.

Chapter vice-president Anthony Lekkas of Stanford Electric Rebuilders noted that EASA Ontario’s Spring Meeting will take place May 7-8, 2010, at The Westin Hotel Ottawa. “The board is working on a shop tour for the Friday,” he noted. “The Friday hospitality suite will be held at the hotel from 8-11 p.m., with cash door prizes to be drawn. The business meeting takes place Saturday at 8:30 a.m.” The details for the Saturday evening dinner and entertainment are to be determined, added Lekkas.

He also noted that EASA Ontario’s Fall Meeting is scheduled for Sept. 10-11, 2010, at the Blue Mountain Resort, Mosaic Village, Collingwood, ON.

Affiliate coordinator Peter Tedesco of Electrowind-Wind Supply Inc. welcomed Ringball Corp. as a new affiliate member, and reminded members to visit easaontario.ca for chapter notices, current news, member information and photographs of past functions. He also

thanked all vendors for participating in the event’s sold-out tradeshow

The Ontario Chapter had set up a collection for Haiti Relief at the entrance of the trade show, with the funds raised being donated to the Red Cross on behalf of members.

In his Regional Directors report, Mike Dupuis of Monelco noted that the EASA International meeting and show takes place in Orlando, FL, June 27-29, 2010. He encouraged members to attend. He also suggested they take advantage of all the subsidized training that is offered by EASA, such as webinars. “You can take one per month at an amazing low rate of $49. For one low price, as many people as you would like from your organization can attend. Check out the webinar schedule at easa.com.”

In his Education Committee report, Dupuis said that Conestoga College, Kitchener, ON, will “no longer be providing any future education for our trade. The Ontario government has been approached to help with putting together a new educational program, however the government correspondence is very slow.”

Dupuis also informed the membership that apprentices are eligible for up to $4,000 in government grants and that he had more information available about this program.

International vice-chairman Sandi Howlett of Ainsworth Inc. reminded members that EASA’s annual operating survey is due and noted that the information obtained for it is confidential. “Anyone that participates receives a free copy. A personalized copy of the survey results can be obtained for a small charge.”

Michael Stewart of Stewart’s Electric, Orlando, FL, gave an overview of how EASA’s Roving Chief program works, and discussed how beneficial it has been for himself and his company.

The event’s keynote speaker was EASA International chairman David Griffin, CPM Engineering Ltd., Manchester, UK, who acknowledged the three international board members

in the room: Sandi Howlett, Mike Dupuis and Ken Gralow (Gray Electric, Schenectady, NY). Griffin, who travelled from the UK to attend the chapter meeting, gave a 30-minute presentation highlighting the benefits of EASA to its members and about the work EASA has been doing on behalf of the industry in challenging times. He noted that the association is expanding its technical capabilities, educational programs and products. “Gene Vogel has been

hired as the fourth engineer on staff, and EASA is currently on pace to handle over 20,000 technical inquires this year,” Griffin noted.

Griffin also said that EASA Ontario’s Sandi Howlett was to become the first female chairman of EASA International at the association’s annual meeting in June, putting the chapter on the international forefront. For more information, visit the website at www.easaontario.ca.

Scenes from EASA’s tabletop trade show

Top: Regional director Mike Dupuis, celebrating his birthday, was cajoled into singing on stage with the band New Hollywood. Bottom left: EASA International chairman David Griffin. Bottom centre: EASA Ontario chapter president Brian Larry. Bottom right: David Griffin presents 20-year service award to Gerry Siemon of Ampro Electric.

What’s new in electrical & electronic components

Guide helps in selection of electric actuators

Thomson’s Guide to Industrial Linear Actuators provides an overview of electric actuation applications, as well as information on the benefits of converting manual, hydraulic or pneumatic applications to electromechanical motion. In addition, the guide details the company’s family of Electrak AC and DC electric

linear actuators, Electrak non-driven actuators, rotary actuators, actuator controls, and accessories and parts. Also included are a glossary of terms and a simple selection procedure to determine the most suitable electric linear actuator for a given application.

Thomson Industries

Reader Service Card No. 305

Swivel clamp meter is for use in tight spaces

One housing contains three energy monitoring devices

Carlo Gavazzi’s EM21 series compact, threephase energy meter is provided with a detachable, connector-less and battery-less

display, which allows the user to configure the instrument for panel mounting or DINrail mounting, either as an energy meter or a transducer. The measurement of the housing is 72 mm by 72 mm by 65 mm. The meter is suitable for both active and reactive energy metering for cost allocation, but also for main electrical parameter measurement and retransmission. A two-wire RS485 communication port is optionally available.

Carlo Gavazi

Reader Service Card No. 309

The ACD-21SW swivel clamp meter from Amprobe features a rotating head clamp design that allows easy viewing of measurements in tight or hard-to-reach plac es. Rotating the body of the meter gives an unobstructed view of the LCD display. Suit able for use in electrical and HVAC applications, the meter features a 180-degree rotating head, advanced VoltTect non-contact voltage detection, slim jaw design and onehand operation. It measures AC current up to 400 ACA, AC/DC voltage up to 600 V, resistance and capacitance, as well as temperature, and accommodates conductors up to 20 mm (1.18 in.) in diameter.

ITM Instruments

Reader Service Card No. 307

Firestop sleeve puts emphasis on safety

A ready-to-use, one-step cable management firestop solution, the Hilti CP 653 Speed firestop sleeve features spin-on flanges for quick installation. Cables do not need to be inserted in a uniform height to comply with the firestop detail. The constrictive smoke seal limits smoke migration whether empty or 100% visually filled. With robust smoke seal fabric that is tested to 250 open-close cycles, the lightweight device can withstand long-term, high-traffic use.

Hilti

substantial efficiency advantages over conventional AC induction motors. Stator currents are lower, generating lower losses due to low current demand, which in turn reduces temperature in the windings and bearings. These low-temperature rises can eliminate the need for a cooling fan and its related losses, thereby allowing higher running speeds and extending bearing life. The HP series is suited for applications involving pumps, fans and compressors. The range includes single-phase power ratings of 0.75 kW to 2.2 kW and three-phase supply versions of 0.75 kW to 22 kW in both 50 Hz and 60 Hz applications. These units are available with a built-in drive or as a stand-alone unit that is compatible with most other manufacturer’s drives.

Lafert North America Reader Service Card No. 392

Probe indicates live voltage even with blown fuse

Reader Service Card No. 317

Small frame size motors handle high-performance

applications

Baldor Reliance RPM AC motors are available from stock in totally enclosed fan or blower cooled and drip-proof designs from 3 hp through 1,000 hp. They offer compact square laminated steel frames for inverter duty and vec tor duty applications. Designed to handle demanding, high-performance industrial applications in smaller frame sizes, these highefficiency motors feature low inertia and are optimized for use with adjustable speed drives. They are suitable for use with extruders, conveyors, crane and hoist systems, converting, web processing and printing.

Baldor Electric

Fluke has introduced FTP fused test probes with built-in fuses for additional measurement protection. If the probe fuse blows, the probe still allows the meter to indicate live voltage. The units are rated to CAT III 1000 V and have sheathed tips for safety. Features include 2-mm threaded probe tips that include remov able 4-mm lan tern-style spring contacts and removable GS38 insulated IC caps for probing closely spaced leads, and an operating temperature range of minus 20°C to 50°C (minus 5°F to 120°F). These modular probes can mount on to any modular lead format.

Fluke Electronics Canada Reader Service Card No. 411

Interface operates in wet environments

Reader Service Card No. 410

New hybrid motors use less space and save big on running costs

The Lafert HP series technology takes the latest in AC induction motor technology and combines it with established brushless permanent magnet

motor principles to create a motor that can produce savings of up to 80% in energy costs, while offering the capability of significant frame size reductions and weight savings of approximately 50%. Integrating these technologies provides

Ross Controls’ Namur interface from VickersWarnick, a solenoid valve designed for washdown applications, has minimum collection points for contamination. Suitable for food and beverage, as well as process, industries, the interface features ‘duck-bill’ protected exhaust ports, corrosion-resistant epoxy powder coat, solenoid pilot, and 3/2 normally closed and 5/2 function. Ball-poppet internals offer near zero internal leakage for the life of the valve, self-cleaning valve seats and sure shifting. The product works well in hot, cold and wet environments.

Vickers-Warnick

Reader Service Card No. 396

Controller consumes little energy

End users and SCADA system designers can take advantage of a single-source solution used in harsh and extreme environments, such as in the oil and gas and wasterwater industries, with the Allen-Bradley DataSite remote terminal unit (RTU) controller from Rockwell Automation. The RTU is a PLC that processes a user program, and controls and monitors the operation of other equipment. It can operate on 12 VDC, making it suitable for remote environments that lack power, and use a solar cell or small wind generator to charge a battery. The controller features an advanced 32-bit processor with an embedded real-time, multi-task operating system, as well as serial and Ethernet ports. In addition, the RTU has a HART multi-drop port that can monitor up to 13 instruments on a two-wire system. Other features include an embedded web server.

Rockwell Automation

Reader Service Card No. 395

Rate controller is available with factoryconfigured enclosure

The HI 4060 rate controller from Hardy Instruments is available factory installed in a NEMA 4X enclosure. It can be configured as a blind unit or with a keyboard and display. A local cell summing board or intrinsic barrier assembly can be added to eliminate the need for a system junction box or for use with hazardous Class I, II, III DIV 1 and 2 applications. The controller comes with Ethernet and optional EtherNet/IP TCP/IP, DeviceNet, Allen-Bradley Remote I/O, Profibus or Modbus TCP/IP networks. Also included are an SD-based Secure Memory Module card for fast transfer of configuration data, an embedded web server for instrument access over a web browser, and Integrated Technician for system diagnostics and troubleshooting.

Hardy Instruments Reader Service Card No. 399

Explosion-proof

thermostat is durable

maintenance costs. The system uses heat and pressure recovery technology requiring minimal heat (200°F).

Neo Code Energy Reader Service Card No. 327

Adjustable frequency

AC drive runs quietly

Omega’s series NFX9000 adjustable frequency AC drive provides adjustable speed control of three-phase motors. The drive comes with an easy-tounderstand, removable keypad and features V/Hz motor control and RS485 serial communications. Features include quiet motor operation, high motor efficiency and smooth low-speed performance.

Omega

Omega has introduced a compact series of explosion-proof thermostats designed to give highly accurate readings. The REX011 series features a black anodized aluminum housing and it is DIN rail mountable. The design ensures small switching differences and a long service life. Because of the high switching capacity of the thermostat, heaters usually can be directly connected and switched, without the need for additional relays. This CEcompliant thermostat is suitable for the petroleum and automotive industries.

Omega Reader Service Card No. 388

Digital DC drive makes installation easy

Sprint Electric has increased its range of PLX digital DC drives up to 2,250 A (980 kW/1,320 hp). All models, ranging from 650 A to 2,250 A, are offered with either top-entry or bottomentry three-phase supply inputs, and in 690 VAC or 480 VAC. Available as two-quadrant or regenerative four-quadrant types, these drives are suitable for controlling DC motors in heavy

industrial applications, such as metalworking, steel mills and mining, and the cement, rubber and plastics industries. The high-voltage model is for use with 750-VDC armature motors, and provides an increase in shaft power of up to 1,500 kW/2,000 hp.

MDA Controls

Reader Service Card No. 412

Waste heat generator produces emission-free electricity

The Electra Therm Green Machine from Neo Code Energy is a waste heat generator that has broad commercial application. The system captures waste heat from almost any geothermal or industrial source to generate fuel-free, emission-free electricity. Built on a skid, it is both modular and mobile, making it easy to transport and install as a single unit or in a series. Automated control systems permit unattended operation, resulting in low operation and

Reader Service Card No. 413

Power distribution box is made of rubber

for safety

Meltric has introduced a line of portable power distribution boxes made of a durable rubber material. These heavy-duty boxes provide portability, while the switch-rated plugs and receptacles ensure electrical safety and simplify code compliance. Standard as well as custom configurations are available with inputs up to 100 A and voltages up to 600 V. Optional features include mini circuit breakers and duplex receptacles. The product distributes power to welders, lighting, pumps and other electrical equipment.

Flexible coupling fits in difficult spaces

Adalet has added PECO flexible couplings to its line of cable fittings and accessories for hazardous locations. All sizes of explosion-proof flexible couplings are constructed from bronze braided brass tubing with an arcresistant liner. The couplings include two female threaded end fittings with male nipple inserts. Particularly suitable for tight spaces where difficult bends are needed, they allow the safe joining of equipment in hazardous locations where stationary equipment is connected to machinery that moves or vibrates. The couplings are UL listed for use in Division 1 hazardous areas.

Meltric

Reader Service Card No. 322

Electrical panel delivers portable power

Designed for safe and convenient temporary power feeds for tools and appliances on busy job sites, Sommers’ Power Web electrical panels feature a high-visibility finish for safety in construction zones. A wide range of models is available to suit specific needs and power applications. Also offered by the company are Redi Power mobile rental units from 5 kW to 800 kW to meet urgent shortterm requirements. All Power Web panels feature corro sion-resistant alu minum enclosures with a powder-coated lid to withstand outdoor exposure. Circuit breakers, individual GFCI circuit interrupters and feed-

through outlets are standard. All units are CSA approved.

Sommers Motor Generator Sales

Reader Service Card No. 328

Fluorescent worklight illuminates dark corners

Designed for plumbers, electricians, contractors, elevator technicians, installers and punchout crews, the compact DC020 cordless/corded fluorescent worklight from DeWalt can be used wherever additional light is required, such as dark areas, crawl spaces and basements. The durable 38-W fluorescent bulb offers a long working life and generates a soft, bright light. The worklight can use AC power or any 12-V to 18-V DeWalt battery. Roll cage protection and a spring-loaded battery holddown keep the batteries securely in place.

Reader Service Card No. 321

Resistive load bank solution is custom built

The custom-built AC/DC resistive load bank service from Ohm Loads is designed for use in industries that require high-quality resistive loads for the in-house testing and ongoing maintenance of plant equipment and electrical systems. The company specializes in designing and manufacturing variable resistive load bank solutions to customers’ exact specifications. Loads are enclosed in a rack mount/ bench top chassis from 25 W to 30 KW in a single chassis, and three 30-KW units can be combined. All load requirements can be handled, including DC, AC single-phase and three-phase, 1% or 5% resistor tolerances, power factor loads configured with remote or manual operation, and more.

Ohm Loads

Reader Service Card No. 414

Surge protection

device extends equipment life

Raycap’s surge protection device provides continuous protection from lightning, temporary over-voltage and other transient voltage activity. Designed to protect the facility as well as the equipment inside, the Strikesorb modules can be installed at the building service entrance or anywhere critical equipment is connected. Also, they can be directly connected on to the busbar on the load side of a circuit breaker.

Comprising a single large distribution-grade metal oxide varistor disc in a hermetic aluminum housing, the construction provides uniform distribution of the surge current over the total area of the MOV protection element.

Raycap

Reader Service Card No. 415

Safety guard switching unit protects operators

Omron has introduced the G9SX-GS safety guard switching unit. External outputs enable status indication of two safety input devices, auxiliary outputs enable monitoring of safety inputs, safety outputs and errors, and detailed LED status indicators provide quick, easy system diagnosis. Additionally, logical AND connections allow complicated applications in combination with other G9SX series units. Each unit supports auto- and manualswitching functions. Auto switching, for applications with co-ordinated operations, monitors the machine or robot and operator to ensure that the machine and operator do not enter the co-ordinated area at the same time. The manual switching function is for applications that require limited machine access for operations such as maintenance and cleaning.

Omron Scientific Technologies Reader Service Card No. 374

Infrared camera is for general maintenance jobs

The EZTherm 880 entry-level, portable infrared camera line is designed for use as part of a predictive maintenance program. These cost-effective cameras are used by electricians and facility managers responsible for inspection of electrical circuits, motors and other rotating equipment, UPS systems, and building roofs, siding and interior walls. Features include sharp images, dual mode focus control (motorized or manual) and a close focus distance of only 4 in., making the camera suitable to image through inspection windows mounted in high-voltage switchgear. Three models are offered.

What’s new in bearings

Cylindrical roller bearings withstand tough conditions

NKE has introduced the NNF series of compact, double-row, full-complement cylindrical roller bearings, sealed on both sides and suitable for extreme operating conditions. The series features maximum radial load-carrying capacity, which is accomplished through the full-complement design, that is, a maximum number of rollers is fitted within the available cross-section. The bearings are suitable for low to medium speeds in such applications as rope wheels and pulleys. Lubrication holes in the outer and inner ring enable easy relubrication.

Global Bear

Reader Service Card No. 325

Bearing handles heavy loads at high speeds

Smith-Trax idler-roller bearings with tapered roller or deep-groove ball bearings are designed to handle both heavy radial loads and thrust loads without skewing and failing at high speeds. These maintenance-free bearings are lubricated for life, and have special seals to keep out sand, moisture and other heavy-industry contamination. They are manufactured in stud styles for fast installation and in yoke styles for maximum load capacity. Produced in inch and metric sizes, they come in four configurations, plain, flanged, v-grooved and u-grooved, to suit a wide range of applications.

Accurate Bushing

Reader Service Card No. 327

Mounted miniature ball bearing line is economical

Spyraflo has introduced a line of precision mounted, miniature ball bearings, designed for application in a variety of instruments and mechanisms used in the medical, pharmaceutical, scientific and other precision-oriented fields. As the pillow blocks can simply be screwed in place, there is no need for designing, manufacturing or assembling precision mounts. The cost-effective bearings are available in both inch and metric sizes from 4-mm to 10-mm (1/8in. to 3/8-in.) shaft diameters, as doubleshielded bearings that are pre-greased for life. Sealed versions are available as an option.

Spyraflo

Machining centre opens for shafting

Thomson has opened the 10,000-sq-ft Northeast Machining Centre in Long Island, NY, for delivery of its 60 Case shafting. The centre promises same and next-day shipment of the stainless or carbon steel shafting, in quantities up to 25 pieces; for larger quantities this is subject to availability. Full random lengths are available up to 202 in. in di-

ameters up to 50 mm (2 in.), or shafting can be cut to customer specifications. A full range of machining is offered, including special length and straightness tolerances, axial and radial holes, keyways, flats, diameter reductions, threaded shaft diameters, annealing, retaining ring grooves, machined joints, etc.

Thomson

Reader Service Card No. 329

Sealed spherical roller bearing line suits many applications

SKF has expanded its range of sealed spherical roller bearings, increasing the number of applications for which they can be used. Currently, over 100 sizes are available. Integral seals protect these easy-to-install bearings against particle contamination and moisture, enabling them to be re-lubrication-free in most applications. The seals virtually eliminate the risk of lubricant leakage. Providing high dynamic load-carrying capacity, the bearings can be used in demanding applications such as material handling, off-highway, metal and mining industries.

SKF Canada

Reader Service Card No. 332

Ball bearings suit high load capacity applications

Reader Service Card No. 328

A line of general-purpose, shielded deepgroove ball bearings with high load capacity has been introduced by NSK. Offering energy-efficient, long service life, the bearings are designed for use in such applications as motor speed reducers, industrial pumps, drum washing machines

Tapered roller bearing housed units are durable

Designed for rugged applications, such as in process and material-handling equipment, Timken’s Type E tapered roller bearing housed units feature enhanced-performance bearings, double lip seals, corrosion-resistant housings and locking collars. Electro-deposition coating on both the housings and locking collars helps protect exposed surfaces and improves corrosion resistance. The units come equipped with the company’s premium all-purpose industrial grease, which contains corrosion inhibitors and extreme pressure and antiwear additives. The line includes two-bolt and four-bolt pillow blocks, four-bolt and piloted flange units, and wide angle and top angle take-up units.

Timken

Reader Service Card No. 326

and agricultural machinery. Their dynamic load rating is 26% greater than regular ISO-standard bearings of the same size, and the number and diameter of the balls has been increased. A thin shield, compatible with ultra-large-diameter balls, creates a sealed, grease-filled, high-load-capacity product that is the same size as conventional models.

NSK Canada

Reader Service Card No. 333

Linear motion components always in stock

Lee Linear has a full inventory of linear motion components in stock and available for immediate delivery. By keeping products in stock, the company ensures that its customers will get the part they need when they want it. This helps reduce or eliminate downtime and keep

production running. Shafting products carried include roller bearing pillow blocks, precision linear ball and composite bearings and pillow blocks, 60 Plus and Ready Shafts, shaft supports, linear ball bearings and accessories.

Lee Linear

Reader Service Card No. 330

Bearing line accommodates swivel motion

Elges plain bearings are offered by Schaeffler as an alternative to roller bearings. These bearings are available in maintenance-free designs and in versions requiring re-lubrication, both available as radial, angular contact and axial spherical plain bearings, and as maintenancefree cylindrical plain bushes. The maintenance-free plain bearings are fitted with an ElgoGlide sliding layer. Wear-resistant and 0.5 mm thick, the layer is made of PTFE fabric embedded in synthetic resin and bonded to the outer ring bore. This sliding material accommodates the loads,

transmits them and takes over the lubrication function. The bearings are particularly suited to applications characterized by high loads and small swivel angles, such as tie rod bearing supports, as well as lift mast connections for adjusting the mast tilt, in powered industrial trucks.

Schaeffler Group Industrial Reader Service Card No. 334

Linear guide suits

miniature applications

NSK’s PU/PE series of linear guides provides smooth linear motion in a compact design. Fabricated from martensitic stainless steel, the series features high corrosion resistance and is suitable for miniature applications in the automation, semiconductor and medical industries. Resin ball recirculation components offer smooth motion, low noise output and low dust generation. A safety design prevents steel balls from dropping out of the ball slide. Interchangeable rails and ball slides are stocked for quick delivery, and high-accuracy preloaded assemblies also are available. The series comes standard with the com-

pany’s K1 lubrication units for longterm, maintenance-free operation.

NSK Precision America Reader Service Card No. 331 MRO

What’s new in safety supplies

Comfortable glove has superior cut resistance

Superior Touch foamnitrile palm-coated gloves from Superior Glove Works are extremely comfortable to wear. Offering high dexterity, flexibility and touch sensitivity, these gloves are made with cut-resistant Dyneema, a lint-free, continuousfilament yarn that is 15 times stronger than steel on an equal-weight basis and twice as strong as Kevlar. The palm coating gives a good grip in the slipperiest of situations, making the gloves particularly suitable for workers handling oily sharp steel, glass or circuit boards, especially when lint and particulate contamination is a concern. Available in sizes 6 to 12, they are CFIA-approved for food handling.

standard black, the helmets are lightweight and comfortable and come with five outside and two inside replacement cover lenses, a fatigue-reducing cushion and helmet bag.

Miller Electric Reader Service Card No. 343

Safety footwear contains no metal

Protective eyewear comes in three styles

Sperian Protection has introduced the Specifix collection of protective eyewear, featuring Uvex’s Supra-Dura anti-scratch coating for superior scratch resistance. The lightweight, versatile Uvex VersaPro is designed for light industrial applications, such as assembly line work and shipping. Uvex PrecisionPro combines a frameless design with precise optics for applications where clarity is critical. This style suits such work as quality control and inspection. The ruggedly built Uvex ExtremePro model stands up to extreme environments, such as foundries and metalworking. Designed for allday comfort, all three models feature FlexFit bendable temples and nosepieces for a customized fit and ratcheting temples for easy lens angle adjustment.

Sperian Protection

Reader Service Card No. 344

Superior Glove Works

Reader Service Card No. 340

Welding helmet has programmable memory

Miller Electric’s Digital Elite series of auto-darkening welding helmets accommodates welding, cutting and grinding. Users can quickly switch between four modes, welding, cutting, grinding and XMode, and set and store their shade, sensitivity and delay preferences. The XMode provides full protection for those instances when there is an arc present, but the sensors are obstructed. In addition, it eliminates interference from sunlight and outof-position welding angles. Available in three graphic designs, the Inferno, Stars and Stripes II and the Joker, as well as in

The Zero-Metal line of safety footwear from Dynamic Safety International has no metal inside. The lightweight series meets CSA Green Patch standards, including dielectric. These non-metal boots, with composite toe and plate, are warmer than steel-toe boots, which tend to be cold in the winter months because of conductivity. In addition, the lack of metal reduces the risk of electrocution or electrical shock to the worker. The footwear is non-magnetic and static-free and will not set off alarms if there are metal detectors in the work area. Eight models are available, from a shoe style to an 8-in. boot style. All models are made of full grain leather with Thinsulate insulation and aggressive rubber soles.

Dynamic Safety International Reader Service Card No. 345

Footwear is designed to promote healthy feet

Mark’s has introduced a line of comfortable footwear incorporating Quad Comfort technology This four-layer technology is available in a wide range of footwear styles for men and women, including many industrial and active styles that are

suitable for the manufacturing sector. Given the physical demands of industrial work, footwear needs to be supportive and built to withstand daily impact and pressure. Features include heel counters for support and stability, anti-fungal, anti-microbial, moisture-wicking liners, arch support and various densities of cushioning. Included in the line are the Dakota Quad Comfort 8-in. leather workboot with CSA Grade 1 steel toe and Armour-Flex metal-free safety plate and the Dakota Quad Comfort 8-in. workboot with DuraToe TPU toe cap.

Mark’s Work Wearhouse Reader Service Card No. 341

Fluid level sight glass will not explode

The series GN 743.6 metric-sized ATEX explosive protective fluid level sight glasses has been introduced by J.W. Winco. These RoHS-compliant sight glasses have a body of turned aluminum, bright finish, an ESG scratch-proof sight glass, a stainless steel retaining ring and a Viton seal. Suitable for use in explosionrisk environments, the device is sealed with an o-ring on the periphery, rather than on the face edge of the glass. The seal is housed in a groove, which prevents it from being extruded when the sight

glass is tightened. Cold/heat resistance range is minus 20°C to plus 150°C (minus 4°F to plus 300°F).

Reader Service Card No. 346

Glove stands up to tough conditions

Combining flame and cut resistance, and enhanced grip in an ergonomically friendly and comfortable design, Ansell’s PowerFlex 80-813 glove is a multi-based solution for reducing hand-related injuries. Testing of the glove was conducted in the demanding work environment of the oil sands operations. Over 200 workers tested the gloves in 12 applications, including construction, electrical work, heavy maintenance and repair, oil refining and pipe fitting. Top-rated features included fit, feel and grip. Available in sizes 6-11, the glove is suitable for facility and machinery maintenance, gas and electrical vehicle maintenance, processing and refining, and construction.

Ansell

Reader Service Card No. 342

Safety light curtain guards hazardous machinery

Self-contained and optically synchronized, the Allen-Bradley GuardShield Safe 4 Pac two-box safety light curtain is available in a two-segment pair with a 600-mm protected height or a three-segment pair with an 840-mm protected height. This Type 4 safety light curtain can be used as an opto-electronic fence or for access-guarding at the entry or exit end of a machine process. It may be connected to the MSR 42 safety module for additional functionality. The integrated laser alignment system comprises two active laser elements located at the top and bottom of the light curtain. Operating range of the curtain is 30 m. Rockwell Automation

Reader Service Card No. 347

Stretch your budget with remanufactured bearings from KAYDON Corporation. You get like-new performance (and warranty) at a fraction of the cost.

Kaydon Bearings is the leader in remanufactured and replacement bearings, with:

• exceptionally fast turnaround

• sizes from 10” to 240” (254mm to 6.1m)

• ISO certification

• free inspection (under 8’)

• full engineering support, NDT and more

For top quality, a full-year warranty and prompt, personal attention, call 1-800-286-6274 today.

Silicone half-mask respirator fits snugly

The U.S. Safety Premier Comfort-Air Series 100 half-mask respirator from Dentec Safety Specialists is moulded in silicone without any additives. Comfortable to wear and comprising just six parts, the respirator has a simple design that makes easy work of cleaning and maintenance. All replacement parts are interchangeable with all masks in the line, so component inventory can be reduced. In addition, the same cartridges fit both half-mask and fullface respirators.

Dentec Safety Specialists

What’s new…

Ultrasound data collector is a useful tool in predictive maintenance

The SDT270 portable ultrasound data collector from SDT Ultrasound Systems includes both a built-in temperature sensor and a laser tachometer, in addition to the onboard SQL database for capturing and managing survey data. Each wave file is sampled 250,000 times per second, resulting in clear, accurate and comparable time signals stored in the internal memory. An ultrasound detector that connects to the Internet offers remote access for support, training and measurement. Features include two-channel sequential measurement, a buildingblock concept for hardware flexibility and upgradeable platforms.

SDT Ultrasound Systems

Reader Service Card No. 301

Concrete stand supports mixer in wastewater plants

KSB Pumps has introduced a support structure for its Amaprop line of submersible, propeller-type mixers, used in wastewater treatment facilities. Made from a cast polymer concrete, the structure is corrosionfree, abrasion-resistant and more resistant to mechanical impact than steel structures. The vibrationdamping qualities of the concrete composite contributes to smooth, quiet and efficient mixer operation. The design simplifies installation and requires virtually no maintenance.

KSB Pumps

Reader Service Card No. 310

Product catalogue is weighty tome Acklands-Grainger has published its 2010 catalogue, detailing more than 89,000 products, 15,000 of which are new products across nine categories, including hand tools, power tools, metalworking, fasteners, electrical, facility maintenance, material handling, safety, and equipment and fleet. The catalogue numbers 2,880 pages and weighs a hefty 8-3/4 lb.

Acklands-Grainger

Reader Service Card No. 304

Bench DM line receives powerful upgrades

Fluke has announced enhancements to its bench digital multimeters. The Fluke 8808A 5.5-digit digital multimeter and the 8845A/8846A 6.5-digit multimeters now include a USB-to-RS232 cable adapter, as well as FlukeView Forms Basic software. In addition, the warranty period has been extended to three years. The software enables users to document, store and analyze individual readings or series of measurements, then convert

them

ments.

Clutch/brake stands up to harsh conveyor applications

Warner Electric has introduced a heavy-duty Gen2 electromagnetic packaged clutch/brake Unimodule for use in tough conveyor applications, including baggage-handling systems. The Gen2 module features two design modifications. A larger bearing provides a dynamic load capability increase of 47%, and a redesigned armature and spline hub features an effective spline length increase of 83%, resulting in a 44% increase in spline compressive stress. Two assembled, pre-burnished, factorytested modules are offered for 143/145TC NEMA frame, up to 2 hp. Warner Electric Reader Service Card No. 308

Turn-key dynamometer test cells are custom-designed Sakor Technologies provides turn-key test cells for engine, powertrain and component testing. At the heart of each test cell design is the DynoLab PT data acquisition and control system, which integrates external devices, including dynamometers, throttle actuators, spark and fuel controllers, combustion analysis systems, emission analyzers and other smart I/O devices into a single, coherent test system. Sakor engineers select each of these components, as well as all sensors, actuators and any necessary cell mechanics to custom-build test cell equipment for customers’ specific needs. The system is designed to work with all types of dynamometers; however, the

Accudyne line of AC motoring dynamometers is recommended.

Sakor Technologies

Reader Service Card No. 303

Platform truck converts to two-shelf cart

Its three-in-one design transforms Rubbermaid’s convertible platform truck or U-boat into a two-shelf cart. The truck features a variable-grip-height handle that improves manoeuvrability and helps reduce muscle strain for users, regardless of their height. A range of sizes is available to meet materialmoving needs. Duramold technology enables the truck to hold and transport up to 2,500 lb. Formulated to absorb impact and resist chemicals, this virtually maintenance-free resin and metal composite material will not warp, dent, splinter, rust or rot.

Rubbermaid Commercial Products

Reader Service Card No. 311

Pallet truck delivers loads at appropriate working height

The PalletPal lift truck from Southworth Products is both a lift table and a pallet truck, allowing the operator to

pick up a load, transport it to the workplace and lift it to the most convenient working height. Ergonomically designed for improved productivity and reduced risk of worker injury, the lift truck features a lifting capacity of 3,300 lb and can be raised as high as 31-1/2 in. Forks are 45-in.-long, with either 20-1/2 in. or 27 in. as the outside dimension. Safety features include an overload relief valve and automatic stabilizers that lock into place. Both electriclift and manual-lift models are offered. Applications include feeding printing presses, cutters, metal presses, conveyors, packaging stations, etc.

Trans-Quip

Diagnostic tool hears problem before it causes breakdown

The Spectroline Marksman ultrasonic diagnos tic tool from Spectronics con verts and amplifies inaudible ultra sonic sounds into audible, natural sounds that alert service technicians to problems such as compressed air leaks and electrical discharge, as well as vacuum, natural gas, propane, refrigerant, seal and gasket leaks. This allows technicians to repair problems before they become major headaches. The MDE-1000 Marksman master kit comes with a receiver, full-size headphones, two probes and an ultrasonic emitter. Standard 9-V alkaline batteries are included. All components are packed in a sturdy case with foam insert.

Spectronics

De-rusting liquid soaks off rust without scrubbing

Daubert Cromwell’s EvapoRust is a non-toxic, biodegradable, water-based derusting liquid that removes surface rust without scrubbing. The odourfree, non-acidic, reusable solution eliminates the need for blasting, grinding or the use of harsh caustics and chemicals. Its neutral pH formulation bonds and removes rust, yet does not affect metal compositions, plating or nonoxide paint coatings. The solution can work in as little as 30 min., but may require immersion for up to 24 hours for total rust removal. One gallon of the product de-rusts approximately 300 lb of steel, or about 20 lb of dry rust. In most cases, the spent solution can be disposed of safely down the drain.

Cleaner/degreaser is biodegradable

Kafko International offers the Oil Eater Original waterbased, biodegradable cleaner/degreaser. Non-corrosive, nontoxic and non-flammable, the low-VOC cleaner cuts through oil, grease, carbon, sludge and dirt, encapsulating them into a solution that rinses off easily and leaves no residue. Kind to the skin, it is effective on equipment, shafts, bearings, hous ings, tools, concrete floors, walls and other surfaces. In addi tion, it can be used in parts washers and pressure washing systems. The fresh-scented product is made from a mixture of non-ionic surfactants, emulsifiers, water softeners and other biodegradable ingredients. It is available in 1-gal, 5-gal, 30-gal and 55-gal containers.

Kafko International Reader Service Card No. 314

Reader Service Card No. 312

Daubert Cromwell Reader Service Card No. 315

Your Piece of the Sales Pie is Ready.

Scott’s Ver tical Custom Lists give you the custom information needed to make your sales process more cost-ef fective and productive.

Video inspection camera has attractive pricetag Reed Instruments has released its affordable and versatile BS-150 video inspection camera.

Scott’s Ver ticals allow you to create a more effective marketing campaign for your niche products. By refining your list to the specific industr y or business area that you are targeting, you will:

Cut Costs with Customization

Scott's Ver tical Custom Lists allow you to choose the specific industr y or business area you are interested in. Stop paying for contacts you don't need or will never contact.

Save Time on Niche Prospecting

Shor ten your prospecting and sales cycle by reaching only qualified contacts, who can appreciate the specialized ser vices you provide.

Browse Ver ticals

Master Your Target Market

Our custom lists are designed to help you discover new prospects and gain deeper knowledge about a specific industr y

Scott's Ver tical Custom Lists span across multiple industries, segments, and job functions. Browse our featured ver ticals by visiting us at

ScottsDirectories.com.

Maintain

Accuracy & Increase Reach

Scott's Ver tical Custom Lists exceed Canada Post's requirements at 97.2% deliverability or better Reduce wrong numbers, wrong addresses, and missed oppor tunities

Professionals can use this waterproof borescope camera to access tight spots, with the added capability to record 2 Gb of video or capture jpeg images. Features include pistol grip, forward-facing controls, 3.2-in. colour TFT LCD monitor with 320-by-240 resolution, and flexible gooseneck imager head. Viewing distance is 15 cm to 25 cm, and viewing angle is 0 degrees to 180 degrees. Included are video borescope, imager head, magnet, hook and mirror attachments, 3.7-V rechargeable lithium battery, DC power supply, USB and video output cables, user manual and hard carrying case.

ITM Instruments

Reader Service Card No. 313

Profile screw driven linear actuator is built for light loads

Bishop-Wisecarver has introduced the HepcoMotion PSD80 profile screw driven linear actuator to meet the need for a cost-effective, Z-axis solution in lightload applications such as pick-and-place and assembly operations. Housed on a high-strength aluminum beam and fitted with a stainless steel sealing band, the actuator uses high-efficiency Herculane wheels mounted to an adjustable carriage, offering long life and no re-lubrication. Single or multiple carriages on a unit are possible and can handle loads to 500 N. The item is supplied as a closed or open format. A corrosion-resistant version is available, as well as a doubleacting version for applications that require symmetrical movement from opposing carriages.

Bishop-Wisecarver

Reader Service Card No. 318

IR thermal imager pinpoints problems

The Fluke Ti55 FlexCam infrared thermal imager features 320-by-420 detectors and, with a 60-Hz detector acquisition rate, displays temperatures live on a

large, 5-in. colour display. It features IR Fusion technology, which captures a visible light image in addition to the infrared image. This helps the technician to better identify and report suspect components and enables the repair to be done right the first time.

Fluke Electronics Canada

Reader Service Card No. 319

Free MRO Product Literature Guide

NorD eXPaNDs raNGe oF ‘sCP’ sCreW CoNVeYor DriVe

nord Drivesystems has added an additional size to their very popular ‘SCP’ line of CeMA compatible screw conveyor drives. now with seven sizes with output torque capacity to 32,475 lb.in. Many options and styles including right angle are available. Contact nord at info@nord-ca.com for complete information.

nORD GeAR Circle Reply Card No. 273

PreCisioN tiMiNG Belt PulleYs

RotoPrecision now offers in Canada made-to-order Precision Timing Belt Pulleys from Onvio in virtually all pitch types including MXL, XH, T, AT, HTD and Curvilinear. Custom machining including bores, keyways, bearing hubs and taper bores. Wide selection of available materials including stainless steel, aluminium, plastic, and steel as well as various finishing and plating options. Specials manufactured in as little as two weeks. Application Support: 1-888-712-3400 Web: www.rotoprecision.ca

ROTOPReCISIOn Circle Reply Card No. 276

sPheriCal roller BeariNGs that saVes You MoNeY aND tiMe

The FAG X-life series e1 spherical roller bearings provides optimum operating life far beyond conventional values. With our optimized roller geometry and raceway finish, operating life is increased up to 70%, reducing downtime and maintenance costs. That is why you will find our bearings in all kinds of applications where heavy loads have to be accommodated or where shaft deflections or misalignments of bearing seats must be compensated for. They operate in the harshest environmental conditions, for example in gearboxes, paper machines, construction machinery and vibrating machinery.

tiMKeN tYPe e taPereD roller BeariNG houseD uNits

n ew Type e tapered roller bearing housed units from Timken set a new performance standard for industrial bearings. The units feature enhanced-performance bearings, double lip seals, corrosion-resistant housings and locking collars –which provide advanced operating levels compared to current industry leading designs utilizing standard Timken bearings, including 55 percent longer design life, 10-times more sealing ability and superior corrosion resistance.

TIMKen CAnADA Circle Reply Card No. 272

ClearaNCe, MouNtiNG & luBriCatioN GuiDe

When you need vital bearing clearance, mounting, lubrication & substitution information, Think nSK. In our Bearing Replacement Guide, you will find specification & selection details covering:

• Bearing types & tolerance classes

• Load conditions & fit

• Radial internal clearance

• Lubrication requirements

• Mounting details

• Conversion factors

To obtain your copy, contact a local nSK distributor. For any other information, visit www.ca.nsk.com or call 1-877-994-6675.

nSK Circle Reply Card No. 274

For Your NatioNal Mro requireMeNts

IDI is a group of independent, Canadian owned and operated, industrial distributors that joined together in 1981 to enhance the value of their services to their customers. With over 250 locations coast to coast across Canada, IDI is where you are, poised to meet the challenges of today’s marketplace. We offer the unique advantage of national coverage with local entrepreneurial ownership. Tel # (905)858-0988 www.idiind.com

IDI Circle Reply Card No. 277

Mill suPPlies aVailaBle at KiNeCor!

Kinecor recently launched a new line of mill supplies throughout more than 60 branches across Canada. We have the tools you need for critical maintenance and repair work, from lubricants, paints and abrasives to industrial fans, flashlights and hand tools.

For more information, please consult our mill supplies brochure at www.kinecor.com or contact us at 1-866-KIneCOR.

KIneCOR

Circle Reply Card No. 280

Belt DriVe PreVeNtatiVe MaiNteNaNCe & saFetY ProGraM

Gates is dedicated to providing reliable information to keep your facility running safely at optimum capacity. When compared to the maintenance and replacement costs of roller chain or gear drives, belts can be the most cost-effective and reliable power transmission solution. An effective preventive maintenance program consisting of a safe working environment, proper belt drive installation, inspection and performance evaluations will continue to keep costs down. Let Gates help increase your facility’s uptime and avoid costly belt drive failures. Visit www.gates.com

GATeS Circle Reply Card No. 275

KNoWleDGe-eNGiNeereD luBriCatioN solutioNs FroM sKF

Some 36% of premature bearing failures are caused by incorrect specification or inadequate application of lubricant. Preventing such failures means delivering the right lubricant, in the right amount, at the right time, to the right lubrication point. With over 100 years of rotating machinery expertise, SKF delivers a complete line of lubrication solutions to do exactly that.

InA/FAG Circle Reply Card No. 279 WeG’s NeW W22 liNe oF Motors

eNerGY saViNGs BroChure

A new 18-page brochure outlines the advantages of premium efficiency Baldor_Reliance Super-e® motors, which meet or exceed ne MA premium efficiency standards. Baldor’s B e $T (Baldor e nergy Savings Tool) software, included with the brochure, can compare the operating cost of industrial electric motors with Baldor-Reliance motors. For a free copy, contact a Baldor District Sales Office, or visit www. baldor.com/support/literature_ request.asp, complete the form, then click on ‘energy.’

BALDOR Circle Reply Card No. 282

DriVes, llCProDuCt You NeeD, serViCe You eXPeCt. extended Life CHP™ hard chrome plated pins possess standard steel’s metallurgical properties for toughness and strength while delivering an extremely hard wear-resistant pin surface. CHP chain pins resist wear longer than standard heat-treated pins, even in dry and abrasive environments. Contact Drives, LLC for more information on extended Life CHP™ series chains. Visit our website, www.drivesinc.com, today.

DRIVeS, LLC

Circle Reply Card No. 283

WeG’s new higher efficiency motor design incorporates a new airflow and end bell design for cooler running. W22 motors have 12:1 CT ratings for VFD use and flexible mounting for F1, F2, F3, vert. and horiz. options. The new flat foot design and FC200 High Grade Cast Iron provide less noise and vibration. W22 motors are CSA Inverter Duty rated for Div. 2 Class 1,

tion and use of Loctite® products. A wide variety of preventive maintenance, as well as repair techniques, is explained in step-by-step detail. This can be considered a supplemental service manual for every piece of equipment in your plant.

LOCTITe Circle

NtN ultra Class BeariNG uNits

nTn Bearing Corporation, a leader in the supply of bearing units, also offers the Ultra Class Mounted Unit series. nTn’s research, along with extensive experience in original equipment and the aftermarket, has led to the development of a unit with unique features that take mounted units to an elevated level of design and performance. For more information on Ultra Class Bearing Units, or on our wide range of bearing products, visit us at www.ntn.ca

nTn BeARInG CORPORATIOn Circle Reply Card No. 285

teChNiCal serViCes NoW oFFereD BY tsuBaKi!

Tsubaki’s Technical Services staff is available for on-site inspections and can recommend the best solution for your application. A partial list of our services includes the following: On-Site Services

• Maintenance Seminar

• Critical Application Survey

• Application Troubleshooting In-House Services

• Facility Tours

• One Day Seminars

• Failure and Wear Analysis

• Sample Identification Contact Tsubaki at info@tsubaki.ca for the complete list and to see how our Technical Services can help you best.

TSUBAKI Circle Reply Card No. 286

KoYo CaNaDa aDDs

NeW liNe oF NeeDle roller BeariNGs

Koyo Canada now offers the full range of Torrington® needle roller bearings and cam followers from stock, in metric and inch sizes. Bearings can be ordered pre-lubricated to reduce assembly time and in bulk packaging which cuts down on material waste. Contact your local authorized Koyo distributor or Koyo Canada for more information at 1-800-263-5163, www.koyo.ca.

KOYO Circle Reply Card No. 287

NeW PulleY CataloG “B216”

BR e CO flex ’s new B216 pulley catalog offers made-to-order and stock pulleys. The new domestic “C n C” pulley maufacture allows for precise machining standards, leading to superior product quality and quick product availability.

BReCOflex now provides finished custom precision pulleys and stock pulleys with pilot bores, for immediate delivery. Custom pulleys include backlash, reduced backlash “Se” or zero backlash “0” tooth gap design. Call for our free engineering support!

BReCOflex CO., L.L.C. 888-463-1400 or 732-460-9500, email: info@brecoflex.com

BReCOFLeX Circle Reply Card No. 288

continued from page 36

Hose reel handles long lengths

The lightweight Hannay E1500 reel is engineered for long lengths of hose. This versatile reel is equipped to handle 1/4-in. to 5/8-in. I.D. hose and features an electric-powered chain and sprocket drive. It can operate at pressures to 3,000 psi and perform at temperatures from 20°F to 400°F. Applications include pressure washing, washdown, air compressors, steam cleaning, hydraulics, chemical transfer, fuel dispensing, fire protection, water sup ply, sewer cleaning and general agriculture.

Hannay Reels

Reader Service Card No. 323

Mobile fume extractor is self-cleaning

The Filtair MWX-S from Miller Electric is a self-cleaning mobile fume extractor designed for use in heavy-duty manu facturing and fabrication envi ronments. Featuring a nanofibre filter that cap tures the submicron parti cles contained in welding fumes, the extractor uses pulse-jet technology to restore filter life in one minute. It is designed for welding applications with high arc-on time and processes that produce large amounts of fumes. Extraction capacity is 875 cfm. The externally supported arm is equipped with a large bell-shaped hood for optimal fume extraction. The unit is available with 7-ft, 10-ft and 12-ft extraction arms.

Miller Electric

Reader Service Card No. 316

progressively to determine the machinery alignment condition, while an Active Clock measurement mode automatically collects the laser coordinates for the corresponding shaft position. Only three to four readings over a rotation angle of less than 70 degrees are required to achieve a precision alignment.

Prüftechnik

Reader Service Card No. 320

Bearing withstands extreme temperatures

Retaining ring replaces nut in pump applications

hPs™ sPheriCal roller BeariNGs

With some of the highest load ratings in the industry, nSK’s HPS™ (High Performance Series) Spherical Roller Bearings pull out all the stops, delivering unparalleled performance and long life.

• Average 50% increase in bearing service life

• Average 12% higher load capacity

• Higher limiting speed

• Reduces costs and improves productivity

For more information, visit www.ca. nsk.com.

nSK CAnADA

Endplay vibration in automobile power-steering pump applications has been eliminated by the use of a bevelled retaining ring from Rotor Clip. Machining a simple groove into the application allows the complementary angle of the bevelled ring to assume the function of the more costly and cumbersome threaded nut that was previously used to retain the bearing. Once installed, this cost-effective retaining ring eliminates the need for additional labour to torque the part or machine threads on the housing.

Rotor Clip

The Thomson stainless steel ‘A’ Ball Bushing bearing has been introduced by Danaher. The all-steel construction offers rust and corrosion resistance and provides system rigidity in the most challenging environments, including vacuum, ozone and mild radiation, in temperatures up to 315°C (600°F). The bearings deliver steady state travel speeds up to 3 m/sec (10 ft/sec) and accelerations to 150 m/s2 (450 ft/s2), without the use of derating factors. They are available in 1/4-in., 3/8-in., 1/2-in., 5/8-in., 3/4-in. and 1-in. sizes with adjustable, closed and open configurations. Bearing life is lengthened, and combining the bearing with Thomson stainless steel 60 Case shafting also extends the shaft life.

Danaher Motion

Reader Service Card No. 306

Air amplifier directs increased air pressure where needed

AirBooster air amplifier systems are designed to boost plant air pressure at point-of-use workstations and pneumatically operated ma chinery when the available working pressure is insufficient. This energy-saving system allows for pinpointed increased air pressure without increasing the pressure on the entire plant air system. Easy to install and low maintenance, the units are avail able in standard and custom configurations with 2:1, 5:1, 15:1 and 30:1 ratios. They can be used in explosion-proof applications, because they do not need electrical power, using the same compressed air source for both driving and amplifying.

Impact RM

Reader Service Card No. 393

Reader Service Card No. 390

Wireless condition monitoring system is cost-effective

Timken’s StatusCheck wireless condition monitoring system is designed to economically detect excessive temperature and vibration that could lead to equipment breakdown. Intrinsically safe transmitters can be magnetically mounted or threaded and can send wireless readings at variable intervals up to 1/2 km to a PC. The easy-to-interpret readings and customizable software allow for accurate diagnostic condition reporting.

The Timken Co. Reader Service Card No. 391

Conveyor end bearing keeps contamination out

Laser shaft alignment system is versatile

The Shaftalign laser shaft alignment system has been introduced by Prüftechnik, featuring a backlit TFT colour display. The computer’s built-in display light sensor optimizes image quality and the device power management. An intuitive auto-flow capability guides the user

Designed especially for the food industry, Ultra Seal conveyor end bearings from Technicor are blind ball bearings that prevent bacteria build-up inside the conveyor roller tube. Bearings are injection-moulded acetyl with stainless steel balls. Popular sizes fit into standard 1-1/2-in. or 2-in. Schedule 40 PVC pipe and come ready for installation with stainless steel hardware: spring-loaded 5/16-in. diameter M8 threaded stub shaft, nut and washer. Additional sizes are available to suit various tube/pipe sizes.

Technicor

Did you know?

Koyo Seiko was formed in 1921. Today we are part of the JTEKT Corporation with consolidated sales of $10.3 billion and employing more than 33,000 around the world.

Going green starts with a commitment to the future.

It’s about creating a vision for the future and then communicating that until it becomes a part of your culture. It’s about new approaches to break through old barriers. And it’s about holding true to your commitment when challenges arise.

In January 2010 JTEKT acquired the Torrington® needle roller bearing business from the Timken Company and these products are now available from authorized Koyo distributors worldwide.

The Koyo brand supports an extensive array of applications, forming part of the original equipment for many world-class names and is a trusted supplier to industry for the ongoing repair and maintenance wherever anti-friction bearings are required.

Koyo continues to research, develop and deliver products that consume less energy, last longer and lighten their load on the environment. Since 2005 we’ve reduced the CO2 output per unit in manufacturing by 30% and since 2008 reduced our CO2 footprint in logistics by 31%.

In 2009 alone we reduced energy consumption in manufacturing by 14%, raw materials by 20% and CO2 emissions in logistics by 16%; all this while maintaining production levels.

Here are some of the many targets we are working towards achieving this year: Zero landfill waste; 90% reduction of 2001 levels of incineration waste; 30% reduction from 2003 levels of overall waster per unit; 5% increase in manufacturing efficiency per unit and 5% reduction in weight per unit.

For a copy of Koyo’s Corporate Social Responsibility report please visit www.koyo.ca

UNMATCHED ENGINEERING EXCELLENCE FROM THE SCHAEFFLER

PowerTherm Induction Heaters

Many rolling bearings and other rotationally symmetrical parts made from steel have tight fits on the shaft. Larger bearings and parts - in particular - can be mounted more easily if they are heated first.

Induction heating is superior to the conventional methods, and particularly suitable for batch mounting. Heating is carried out on complete bearings, rings for cylindrical roller or needle roller bearings and rotationally symmetrical steel parts such as labyrinth rings, roll couplings, etc.

Advantages

• Quick, safe and energy-efficient operation

• Environmentally friendly - no disposal required

• Uniform, controlled heating

• Automatic demagnetization

For the mounting of bearings and parts with a mass up to 300 kg, Schaeffler supplies five FAG brand table-top heating devices -

PowerTherm HEATER10 to 300 - suitable for mobile and/or stationary use. For parts with a mass as great as 3,000 kg, Schaeffler offers and recommends heavy duty standalone devices.

Driven to E xtremes

The constant evolution of capacity and efficiency in the field of power transmission increases the standard to be achieved in technical product design. And in the selection of technology partners. Drawing from years of close collaboration with designers and manufacturers, Schaeffler Group implements the latest technology into compact and powerful INA and FAG bearing design solutions. From industrial gears and transmissions to wind turbines and modern rail applications, Schaeffler is driven by innovation and operational reliability to achieve extreme standards of performance.

Transport and Mounting Tool BEARING.MATE

B EARING.MATE is an accessory used for the safe quick and easy handling of medium-sized and large rolling bearings. It can also be used where bearings are heated prior to mounting. The tool is comprised of two handles and two steel strips. Turning the handles clamps the steel strips firmly on the outer ring of the rolling bearing. The compact packaging also includes two brackets to be used when handling spherical roller bearings and selfaligning ball bearings. The clamps secure the bearing in order to prevent tilting of the inner rings.

The tool and bearing can either be carried by two people or by crane using slings (ordered separately). If two carrying slings are used, the rolling bearing can be rotated to any position when transpor ted by crane. During heating on an induction heating device, the BEARING.MATE remains mounted on the bearing. The steel strips expand uniformly with the bearing, maintaining optimum tension.

B EARING.MATE is recommended for use in conjunction with bearings weighing as much as 500 kg, and can tolerate heating temperatures as high as 160° C. It is available in three different sizes that can be matched to bearing outside diameters ranging from 250 to 850 mm.

For additional information about PowerTherm induction heaters or BEARING.MATE, contact your local Schaeffler representative or visit www.fis-services.com

To receive FREE information circle the numbers on the card below that correspond to the number found on the product(s) that interest you. Fully complete the card below and be sure to print clearly so your request can be processed accurately. Print out and fax/mail this card today! For faster service fax to (416) 510- 6875 Please provide your e-mail address to receive the MRO Newsletter full of Industry and Product News. MRO will also update your subscription via e-mail.

MY

q

q

q

MANUFACTURING

q

q

q

q

q Lumber & Wood Products

q Furniture & Fixtures

q Paper & Allied Products

q Printing, Publishing

q Chemical Products

q Petroleum Refining Product

q Rubber & Plastic Products

q Leather Products

q Stone, Clay, Glass & Concrete

q Primary Metal Industries

q Fabricated Metal Products

q Industrial & Comm. Machinery

q Electrical & Electronic Equip.

q Transportation Machinery

q Instruments, photo & medical goods

q Misc. Manufacturing

q Transportation Services

q Communications Services

q Electric Power, Gas & Sanitary Serv.

q Goverment

WHOLESALE TRADE

q Electrical Apparatus & Equipment

q Construction & Mining Machinery

q Industrial Machinery & Equipment

q Industrial Supplies

q Misc. Wholesalers

SERVICES / OTHER q Retail q Electrical Repair Shop q Welding Repair q Armature Rewinding q Misc. Repair Shops q Misc. Services Incl. Engrg Serv.

PLEASE INDICATE WHICH OF THE FOLLOWING PRODUCTS YOU ARE PLANNING TO PURCHASE OVER THE NEXT FEW MONTHS.

A q Aerial Work Platforms/Lifts

B q Automation Components

C q Bearings – to 3”

D q Bearings – over 3” E q Bearings – Split Roller

F q Linear Bearing/Systems

RENEW YOUR SUBSCRIPTION TODAY! Don’t miss

Turn static files into dynamic content formats.

Create a flipbook
Issuu converts static files into: digital portfolios, online yearbooks, online catalogs, digital photo albums and more. Sign up and create your flipbook.