



![]()




My name is Anna Sis. Thank you for looking at my work!
I am currently in my third year at the University of Kansas pursuing a Bachelor of Science in Interior Architecture.
Interior architecture drives my passion of human wellbeing and allows me to create with care in mind. I have come to understand the significance that well-designed environments have on human experiences. Therefore, I am excited to continuing pursuing a career full of creativity, functionality, sustainability, and striving towards positive human experiences.




BOUTIQUE
02


HEALTH CLINIC ASCENSION

04 PAGE 11 PAGE 27
THE NEST SUSTAINABLE SMART HOME

MOANAKAI PATTERN CAFE
06 PAGE 41

HAND CRAFT FURNITURE AND MODELS
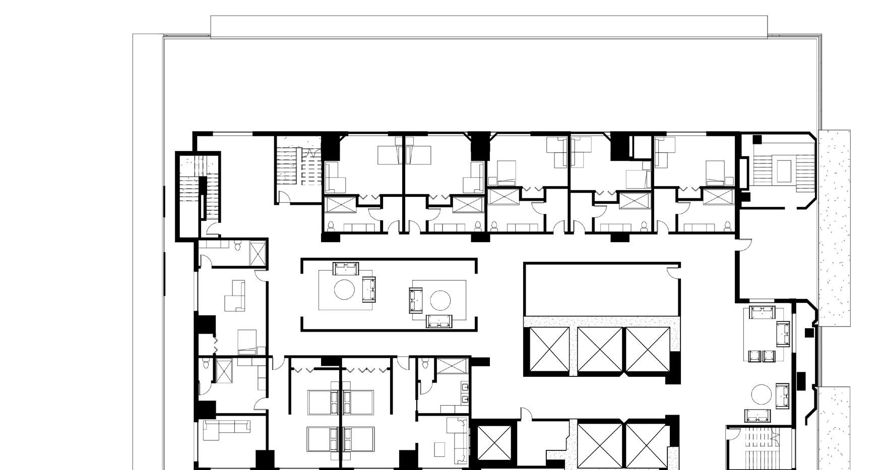
PROJECT DESCRIPTION
This boutique hotel design project is based on a portion of the existing W San Fransisco hotel building footprint. The design specifically focuses on four main guest service areas. This project aligned with the NEWH Green Voice National Hospitality Design Competition, which challenges students to design an adaptive reuse boutique hotel inspired by a geo-cultural location and hotel type of choice. I decided to curate an active focused hotel located in Granada, Spain based on my recent trip to this site in the summer of 2025.
DESIGN CONCEPT
The boutique hotel is a transformative journey, where guests ascend from the grounded energy (the mountain’s base) through unfolding layers of light, perspective, and atmosphere, culminating in clarity and accomplishment (the mountain’s peak). This design intertwines Granada’s Moorish culture with nature’s unfolding perspectives in graduation.











This family wants to have a fun, adventurous trip while needing areas of rest and recovery, and needing age appropriate activities and supervision.

The couple not only wants these opportunities but needs proper climbing equipment, reliable guides, and good recovery spaces.

While on this trip the group will need access to public transportation, information about local attractions, and areas to focus on school work.
































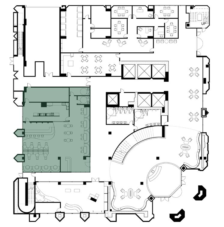
RESTAURANT FURNITURE PLAN



KEY

CHAIRS


SOFAS


TABLES


C-1
Herman Miller Full Twist
Guest Chair Herman Miller Resonance Sepia
C-2
OFS
Raya Chair Posh Textiles
Hayden Emerald
S-1
Martin Brattrud Las Filas Banquette Posh Textiles
Hayden Emerald
S-2
West Coast Industries
U-Shaped Banquette
Posh Textiles Hayden Emerald
T-1
West Coast Industries
Tulip Table
West Coast Industries Medium Walnut
T-2
West Coast Industries
Tulip Bar Table
West Coast Industries Medium Walnut

RESTAURANT BANQUETTE SEATING

RESTAURANT NIGHT DINING

















PROJECT DESCRIPTION
This project included designed a smart, sustainable home in a city lot in Wyandotte County, Kansas, addressing a specific social challenge. The project promotes environmental, social, and economic sustainability through thoughtful design and technology. The home design reflects diverse user needs and support efficient, connected urban living.
DESIGN CONCEPT
The Nest is a home designed to provide a comforting and secure environment for foster families. Through sustainable materials and smart technology, each child has a space of flexibility, individuality, comfort and protection that they need to thrive. They are gradually prepared to leave the nest knowing they will always have a family.
























FLEXIBILITY

Creating systems or products that can accommodate change, customization, or multiple uses over time.
ADJUSTABLE FURNITURE
Creating systems or products that can accommodate change, customization, or multiple uses over time.
Creating systems or products that can accommodate change, customization, or multiple uses over time.

INDIVIDUALITY
INDIVIDUALITY



Expressing personal or unique characteristics that distinct one from another.
Expressing personal or unique characteristics that distinct one from another.


ADJUSTABLE FURNITURE
Designed with multi-functional furniture to easily adapt to changing family dynamics and the needs of the children.

PRIVACY ZONES
Expressing personal or unique characteristics that distinct one from another.



Creating spaces or products that promote ease, well-being, and a sense of relaxation for the user.

Creating spaces or products that promote ease, well-being, and a sense of relaxation for the user.

ADJUSTABLE FURNITURE
Designed with multi-functional furniture to easily adapt to changing family dynamics and the needs of the children.

NEUTRAL ROOMS
Designed with multi-functional furniture to easily adapt to changing family dynamics and the needs of the children.
Designed with multi-functional furniture to easily adapt to changing family dynamics and the needs of the children.
Spaces with calming, versatile colors to create an inclusive area where the children can make the space their own.



NEUTRAL ROOMS
NEUTRAL ROOMS
Spaces with calming, versatile colors to create an inclusive where the children can make the space their own.

STORAGE SPACES
Spaces with calming, versatile colors to create an inclusive where the children can make the space their own.
Spaces with calming, versatile colors to create an inclusive area where the children can make the space their own.
Organization to allow children to keep their belongings secure while promoting a sense of security and ownership.



STORAGE SPACES
STORAGE SPACES
STORAGE SPACES
Organization to allow children to keep their belongings secure while promoting a sense of security and ownership.
Organization to allow children to keep their belongings secure while promoting a sense of security and ownership.
Organization to allow children to keep their belongings secure while promoting a sense of security and ownership.

PRIVACY ZONES
A personalized sanctuary where children can retreat, reflect, and express themselves, fostering a sense of emotional security.

PRIVACY ZONES
A personalized sanctuary where children can retreat, reflect, and express themselves, fostering a sense of emotional security.
OUTDOOR AREA
A personalized sanctuary where children can retreat, reflect, and express themselves, fostering a sense of emotional security.

A personalized sanctuary where children can retreat, reflect, and express themselves, fostering a sense of emotional security.



OUTDOOR AREA
An environment where children can connect with nature, cultivate their own interests, and express their individuality.
OUTDOOR AREA
An environment where children can connect with nature, cultivate their own interests, and express their individuality.
EMBRACING SPACES
Cozy furniture, soft lighting, and warm colors to create a welcoming, safe, and comfortable environment.
Creating spaces or products that promote ease, well-being, and a sense of relaxation for the user.



EMBRACING SPACES
EMBRACING SPACES
Cozy furniture, soft lighting, and warm colors to create a welcoming, safe, and comfortable environment.


EMBRACING SPACES
CALMING TEXTILES
Cozy furniture, soft lighting, and warm colors to create a welcoming, safe, and comfortable environment.
Cozy furniture, soft lighting, and warm colors to create a welcoming, safe, and comfortable environment.
Soft, comforting, and sustainable textures, to create a soothing environment that enhances tranquility.



PERSONAL EXPRESSION
An environment where children can connect with nature, cultivate their own interests, and express their individuality.
An environment where children can connect with nature, cultivate their own interests, and express their individuality.

CALMING TEXTILES
CALMING TEXTILES
Soft, comforting, and sustainable textures, to create a soothing environment that enhances tranquility.




PERSONAL EXPRESSION
Incorporating picture displays, chalkboards, or playrooms, to creatively showcase their interests, emotions, and identities.
CALMING TEXTILES
NATURAL LIGHTING
Soft, comforting, and sustainable textures, to create a soothing environment that enhances tranquility.
Soft, comforting, and sustainable textures, to create a soothing environment that enhances tranquility.
PERSONAL EXPRESSION
PERSONAL EXPRESSION
Incorporating picture displays, chalkboards, or playrooms, to creatively showcase their interests, emotions, and identities.
Incorporating picture displays, chalkboards, or playrooms, to creatively showcase their interests, emotions, and identities.
Incorporating picture displays, chalkboards, or playrooms, to creatively showcase their interests, emotions, and identities.

Large windows and skylights to create a bright atmosphere that enhances comforting and positive environment.


NATURAL LIGHTING
NATURAL LIGHTING
NATURAL LIGHTING
Large windows and skylights to create a bright atmosphere that enhances comforting and positive environment. PROTECTION
Large windows and skylights to create a bright atmosphere that enhances comforting and positive environment.
Large windows and skylights to create a bright atmosphere that enhances comforting and positive environment.

PROTECTION

Incorporating features that ensure durability, and security for users and their environment.

SAFE ACCESS
Incorporating features that ensure safety, durability, and security for users and their environment.
Incorporating features that ensure safety, durability, and security for users and their environment.


SAFE ACCESS
Designing secure, well-lit entrances with reinforced doors and entrances using smart technology to ensure safety.

SAFE ACCESS
High communication
Balance of connection
Self care and positivity
Emotional support and stability
Safe and nurturing environment
Privacy and independence
Emotional security and stability
Connection with her brother
Privacy and independence
Safety and stability
Social skill development
Positive reinforcement
Emotional attachment
Opportunity for play
Nourishing environment
Designing secure, well-lit entrances with reinforced doors and entrances using smart technology to ensure safety.

SAFE ACCESS
OPEN FLOW
Designing secure, well-lit entrances with reinforced doors and entrances using smart technology to ensure safety.
Designing secure, well-lit entrances with reinforced doors and entrances using smart technology to ensure safety.
Spaces with clear, pathways throughout high traffic zones to ensure safety and monitoring in the house.



OPEN FLOW
Spaces with clear, unobstructed pathways throughout high traffic zones to ensure safety and monitoring in the house.
SAFE ZONES
Spaces with clear, unobstructed pathways throughout high traffic zones to ensure safety and monitoring in the house.

Spaces with clear, unobstructed pathways throughout high traffic zones to ensure safety and monitoring in the house.
Spaces where children can retreat to in a time of emotional discomfort where they can express their emotions.



SAFE ZONES
SAFE ZONES
Spaces where children can retreat to in a time of emotional discomfort where they can express their emotions.
Spaces where children can retreat to in a time of emotional discomfort where they can express their emotions.














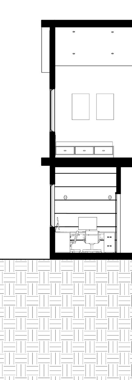
AIR operable windows

UPSTAIRS LEVEL 10’- 0”
GROUND LEVEL 0’- 0”

SECTION A
scale: 3/32 = 1’ 0”

ELEVATION 1: MUDROOM
scale: 1/3 = 1’ 0”
SMART TECH. door alarm security FLEXIBILITY storage spaces


MATERIALS & RESOURCES construction waste management
MATERIALS & RESOURCES construction waste management

SECTION B
scale: 3/32 = 1’ 0”

ELEVATION 2: STUDY AREA
scale: 1/3 = 1’ 0”



UPSTAIRS LEVEL 10’- 0”
GROUND




SMART TECH. electronic glass
INDIVIDUALITY privacy zones

SMART TECH. electronic glass
FLEXIBILITY adjustable furniture scale: 1/3 = 1’ 0”
PROJECT DESCRIPTION
Designing interior spaces for a small Health Center or Hospital in the rural village of Kapkemich, Kenya. Specific health, cultural, and human-centered needs were addressed to create functional and sustainable environments. Designs must support patients, medical staff, and the community using thoughtful layouts, local materials, and appropriate technologies.
DESIGN CONCEPT
Rooted in the Kenyan traditions of harambee- a call to “pull together”- the pediatric ward symbolizes “the tie”, with children as the vital link in community bonds. Through thoughtful design and natural elements, the space fosters connection to nature, renewal in healing, and belonging of community, ensuring the spirit of togetherness for future generations.



WALKWAYS
OTHER BUILDINGS EXISTING PEDIATRIC WARD EXPANSIONS TO PEDIATRIC WARD EXPANSIONS TO WALKWAYS/RAMP
Inspired by the Kenyan value of harambee, the pediatric ward represents a unifying tie that connects the community and the entire clinic. Its design fosters connection through natural elements and shared space. This approach supports collective care and strengthens the bonds across generations and functions within the facility.

























• Relief
• Excitement
• Relief • Excitement
• Confused
• Confused
• Uncertain
• Confused
• Uncertain
Comfort
Gratitude
Kiptoo Chebet
Kiptoo Chebet
NURSE
Kosgey
• Wakes up with no family.
• Wakes up with no family.
• Vitals are taken.
• Wakes up with no family.
Wakes with family. • Vitals are taken. personalized
Needs personalized space.
• Vitals are taken. Needs personalized space.
Determined
Mentally
• Determined • Mentally Prepared
• Determined • Mentally Prepared
• Joy • Sense of Normalcy
• Joy • Sense of Normalcy
Sense of Normalcy
• Anxious • Nervous • Scared
• Anxious • Nervous
Scared
Comfort • Gratitude • Uncertain • Anxious
Uncertain



• Spends time playing in the play area outside.
• Spends time playing in the play area outside.
• Spends time playing in the play
space to play

space to play
time outside. Needs space play & positive
• Spends time playing in the play area outside. Needs space to play & positive distractions.
• Family comes to visit and they are outside.
• Compassionate • Empathetic
• Empathetic
Needs space to play & positive distractions.
Needs space to play & positive distractions.
• Compassionate
• Vitals are taken. Needs personalized space. ARRIVAL CHECK PATIENTS
Confused Uncertain Wakes up no Vitals taken. Needs space. ARRIVAL CHECK PATIENTS
Miriam Kosgey • • belongings Needs room lockers. • Checks all patients to ensure
• Walks to work.
• to work.
• Walks to work.
• Family comes to visit and they are outside.
Needs connection to nature & family area.
• Family comes to visit and they are outside. Needs connection to nature & family area.
Needs connection to nature & family area.
Family to visit are connection & area.
• Fatigued
• Fatigued
Drained
Grateful
Drained
• His procedure is done & seeks mother for Needs positive distractions.
• His procedure is & seeks mother comfort. Needs distractions.
• His procedure is done & seeks mother for comfort. Needs positive distractions.
• His procedure is done & seeks mother for comfort. Needs positive distractions.
• Mother brings homecooked meal for dinner.
Needs by bed.
Needs family space by bed.
• Mother homecooked meal for dinner. Needs family space by bed.
• Mother brings homecooked meal for dinner. Needs family space by
• Mother brings homecooked meal for dinner. Needs family space by bed.
Frustrated
Tired
PROCEDURE STOCK STORAGE
• Mother leaves and he falls asleep in an unfamiliar place.
Needs space that make it feel homey.
leaves and he falls asleep an Needs space feel homey.
• Mother leaves and he falls asleep in an unfamiliar place. Needs space that make it feel Determined Mentally Prepared
• Mother leaves and he falls asleep in an unfamiliar place. Needs space that make it feel homey.
Mother and he falls unfamiliar place. that it feel
Mentally Physically& Exhausted
• Puts belongings in break room.
Miriam Kosgey • Walks work. • Puts belongings break room. Needs room lockers.
• Puts in break room. Needs break with lockers.
Needs break room with lockers.
• Puts belongings in break room. Needs break room with lockers.
with workstation.

RENEWAL
RENEWAL
Child-friendly environments revitalizing health and vitality



CONNECTION
• Checks vitals of all her patients to ensure wellbeing. Needs well organized workstation.
• Checks vitals of her patients to ensure wellbeing. Needs well organized workstation.
• Checks vitals all patients to ensure wellbeing. well organized
• Checks vitals of all her patients to ensure wellbeing. Needs well organized workstation.
Eats
• Eats lunch while relaxing her feet.
• Tired from work.
Child-friendly environments revitalizing health and vitality

CONNECTION
Child-friendly environments revitalizing health and vitality

Fostering connection between space and nature
Fostering connection between space and nature

Strengthening social interaction CONNECTION
COMMUNITY
COMMUNITY
Strengthening social support and interaction
Strengthening social support and interaction

• Eats lunch while relaxing her feet.
Needs a private space & a foot rest.
• Eats lunch while relaxing her feet. • Tired work. Needs private space & a foot
• Eats lunch feet. • from a space & rest.
from a space rest.
• Tired from work. Needs a private space & a foot rest.
INTEGRATED PLAY
INTEGRATED PLAY
INTEGRATED PLAY

Design play zones within treatment spaces to reduce fear and encourage emotional well-being.

• Performs procedures on patients in need Needs distractions kids.
• Performs procedures on patients in need Needs positive distractions for kids.
procedures in need positive for
• Performs procedures on patients in need Needs positive distractions for kids.
• Stocks storage.
• Stocks storage.
• Stocks storage.
• Across the facility (no easy access). Needs storage the pediatric ward.
• Across the facility (no easy access). Needs storage within the pediatric ward.
• Across the facility (no easy access). Needs storage within the pediatric ward.
Design play zones within treatment spaces to reduce fear and encourage emotional well-being.
Fostering connection between space and nature



NATURAL LIGHT INTEGRATION
Design play zones within treatment spaces to reduce fear and encourage emotional well-being.

The use of sunlight in interior spaces healing. Large windows and skylights to let in sunlight, which improves mood and supports health.

The use of sunlight in interior spaces for healing. Large windows and skylights to let in sunlight, which improves mood and supports health.


SHARED FAMILY SPACES
Provide gathering areas with comfortable seating where families can sit together, support each other, and ensure caregivers can stay with their children.
Provide gathering areas with comfortable seating where families can sit together, support each other, and ensure caregivers can stay with their children.

NATURAL LIGHT INTEGRATION

• Checks on patients one last
• Checks on patients one last time.
• Checks on patients one last time.
• Walks home. Needs a quiet space to decompress
facility (no storage within ward. on patients last time. Needs quiet space decompress
Walks home. Needs a quiet space to
• Walks home. Needs a quiet space to decompress
POSITIVE DISTRACTION
POSITIVE DISTRACTION
Redirecting attention away from stressors by engaging in activities that are enjoyable, relaxing, or stimulating.
Redirecting attention away from stressors by engaging in activities that are enjoyable, relaxing, or stimulating.
Redirecting attention away from stressors by engaging in activities that are enjoyable, relaxing, or stimulating.
The use of sunlight in interior spaces for healing. Large windows and skylights to let in sunlight, which improves mood and supports health.


OUTDOOR ACCESS DESIGN
OUTDOOR ACCESS DESIGN
Access to outdoor areas to play, gather, heal, and escape the inside of the facility.
Access to outdoor areas to play, gather, heal, and escape the inside of the facility.
Access to outdoor areas to play, gather, heal, and escape the inside of the facility.
CULTURALLY FAMILIAR DESIGN
CULTURALLY FAMILIAR DESIGN
Provide gathering areas with comfortable seating where families can sit together, support each other, and ensure caregivers can stay with their children.


Incorporate local art, traditional patterns, and nature-inspired elements to make the hospital feel like part of the community.
Incorporate local art, traditional patterns, and nature-inspired elements to make the hospital feel like part of the community.
Incorporate local art, traditional patterns, and nature-inspired elements to make the hospital feel like part of the community.


BATHROOM
STAFF ENTERANCE PEDIATRIC PATIENT WARD
SOIL ROOM
PROCEDURE ROOM
GROUND LEVEL scale: 3/8 = 1’ 0”


PEDIATRIC PATIENT WARD
OUTDOOR GATHERING SPACE STAFF ENTERANCE
BATHROOM




CONCRETE




PROJECT DESCRIPTION
Exploring how culture-inspired patterns can be used to shape space and create multifunctional systems for seating, dining, and spatial division. The use of geometric, organic, natural, or technological forms influence design elements that convey meaningful messages through spatial design. The work will be installed in Strong Hall, providing a real-world context for applying this design.
DESIGN CONCEPT
Moanakai is a New Zealand restaurant that creates an inviting atmosphere through curved forms and open spatial flow. Using neutral, natural materials like wood and stone, the design evokes a sense of luxury, peace, and flow. The goal is to offer guests a calm yet refined dining experience where movement feels effortless and the environment supports relaxation and comfort.


The Maori pattern is very present in the culture of New Zealand. The many different variations are all deeply connected to the natural environment and the cycle of life. The Patiki Maori pattern is a flounder shape that is representative of the sea and availability for life. The red color represents warmth and life, the white, future and promise, and black is for earth. The Maori curve shape inspired the spatial systems and seating in this design. A reflected S shape creates a balanced form with spatial organization.















SMALL GROUP SEATING INDIVIDUAL SEATING


SMALL GROUP SEATING
LARGE GROUP SEATING


GROUND LEVEL scale: 3/64 = 1’ 0”






SMALL GROUP SEATING
INDIVIDUAL SEATING seats 3-4 seats 5-6 seats 1-4
LARGE GROUP SEATING

ELEVATION 1: INDOOR SEATING AND WINE BAR scale: 1/8 = 1’ 0”






This material, used on seating booths, is used to create a comforting feeling for the customers as well as adding an accent color to the space.
This wood material, used on the walls, is harmonious with the flooring and other seating materials to create peace throughout the space.
The marble counter tops are a warm tone addition that induce a luxurious feeling for each customers.
Felt used in the interior of the seating booths are used to reduce sound and create a peaceful experience for all.
This wood flooring is cohesive to the neutral tones of the space. The natural materials provoke a restorative, luxurious feeling.
This limestone flooring change is important to the flow of the space to show contrast of seating and open spaces.
ELEVATION 2: KIOSK AND HIGH TOP SEATING scale: 1/8 = 1’ 0”

ELEVATION 3: BRIDGE AND SEATING scale: 1/8 = 1’ 0”

ELEVATION 1: BRIDGE AND LARGE GROUP SEATING



This study abroad program explored the architectural and cultural heritage of Southern Europe, focusing on the impact of Moorish and Arabic influences. Through site visits, tours, and field analysis, each student examined how geography, materials, and cultural aspects have influenced urban development, construction methods, and architectural identity in these countries.
This experience taught me the importance of cultural and historical awareness. I gained a deeper understanding of how Moorish and Arabic architecture and cross-cultural exchange continues to impact the built environment. Southern Europe gave me a deeper insight to the importance of geography in the built environment. I was in awe of the uniqueness and detail of the design and inspired by the thoughtful concept and purpose of each structure. I am very grateful for this opportunity.
































Hands on experiences have always been something I have enjoyed. In the first two years of my interior architecture degree, we focused highly on drawing and building from hand. This allowed me to use craft and precision to express my designs. Although we create less physical models in studio, this year I got to participate in a furniture build class where I got to turn ideas into a three-dimensional object. I also had an amazing opportunity to craft a physical model with the supervision of the JE Dunn team to represent the University of Kansas KUbe construction to help the company challenge for a bid.
Through all of these hand craft projects, I was able to further enhance my hands on and model making skills, as well as learn many new skills such as sawing, drilling, and staining. Through the JE Dunn partnership I was able to understand the depth of communication and collaboration of a company.












Spring 2024
Fall 2024


Spring 2024



Fall 2025



