A nna R eventlow
EJENDOMSFORMIDLING

SANKT PAULS GADE 21
1311 KØBENHAVN K

Få steder er vigtigere end hjemmet...
Vi forstår det, og vi er enige!

![]()


Få steder er vigtigere end hjemmet...
Vi forstår det, og vi er enige!

01 SANKT PAULS GADE 21 - boligen
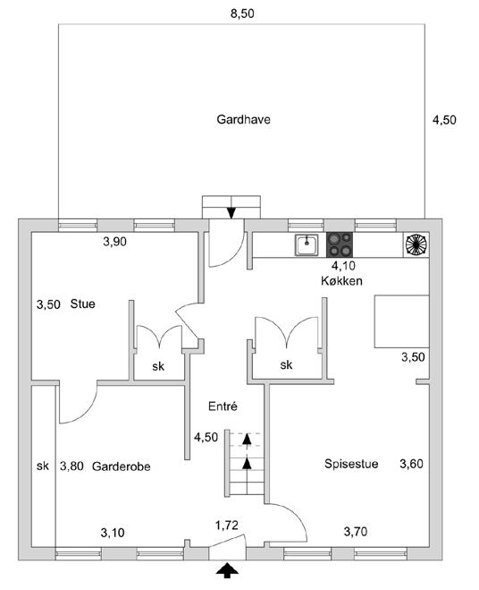
02 SPECIFIKATIONER - plantegning
03 EJENDOMMEN - miljøet omkring boligen
04 NÆROMRÅDET - geografi, område og historie
05 ANNA REVENTLOW - hvem er vi
“Hos os ligger fokus på jer som kunder og på hver gang at overtrumfe jeres forventninger. Vi arbejder med nogle af Danmarks smukkeste boliger, og vi sætter en ære i at realisere jeres boligdrøm. Denne bolig er særligt udvalgt på grund af dens unikke beliggenhed, særegne atmosfære og smukke indretning. Vi vil guide jer gennem boligen og dens indretning, nærområdet og bydelens kendetegn og historie”
Velkommen til Sankt Pauls Gade 21 og til Anna Reventlow Ejendomsformidling

EJENDOMSMÆGLER MDE
TELEFON: +45 3155 4001
info@annareventlow.dk


Midt i Nyboders sjælfulde kvarter venter det mest charmerende byhus, der bærer næsten 150 års historie. Huset fra 1887, er en del af de syv ”Grå Stokke”, et stykke levende københavnsk kulturarv der pryder de brostensbelagte gader med sine ikoniske rustrøde skodder og grønne døre. Her har liv udfoldet sig bag de solide facader, mens byen omkring langsomt forandrede sig. Husets 233 etagemeter fordeler sig over tre etager som er klar til at fyldes med en ny families historie og minder. Hele huset er renoveret med en klassisk og lys skandinavisk stil, der diskret møder de historiske rammer. Den kreative og historiske atmosfære inspirerer til løsninger og en indretning der passer lige præcis din familie. På stueplan starter du i en rummelig entré som leder dig videre ind til en hyggelig stue, samt et lyst køkken / alrum. På stueplan kan du desuden gå direkte ud til din private gårdhave, hvor solen finder sin vej mellem de ”Grå Stokkes” mure og hvor du finder en sjælden balance mellem byens puls og et stille fristed. Førstesal når du via den charmerende trappe der svinger sig op gennem etagerne. Heroppe ligger to store soveværelser, et kontor med en indbygget reol, samt et påklædningsværelse. Hvert soveværelse har sit eget badeværelse. På øverste etage findes tre hyggelige værelser, et stort bryggers, og et behageligt badeværelse med badekar. Dette fredede hus vil tryllebinde dig fra første øjekast. Det er et indbydende hus hvor du kan sidde på din bænk foran huset med en kop kaffe, og følge med i Nyboderstemningen fra første parket. Midt blandt kvarterets historiske rødder og rolige nærmiljø, ligger byens mest hippe cafeer og restauranter, som Atelier September, Bottega Barlie og Apotek 57.

Allerede når du tager det første skridt over dørtærsklen, kan du mærke den vidunderlige stemning i dette eksklusive byhus. I det varme og indbydende entrérum kan du hænge frakken og stille skoene på plads i de indbyggede garderober - en funktionel detalje i et hjem fyldt med historie og charme. Fra gangen kan du ane lyset fra den private gårdhave, som trækker dig længere ind, mens den originale trappe inviterer dig til at gå på opdagelse videre op til første- og andensal.








I denne rolige stue er der plads til fordybelse og til at sænke tempoet. Her kan du synke ned i en lænestol med en kop te og nyde udsigten til den stille gårdhave. Lyset falder smukt ind gennem de to vinduer og fremhæver de originale detaljer og de lyse plankegulve.

Den lyse spisestue ligger i åben forbindelse med køkkenet og danner et naturligt samlingspunkt, hvor samtaler frit får lov til at flyde mellem rummene. Med lysindfald fra begge sider, føles dette som en levende og venlig plads, hvor I kan spendere mange timer. Her findes en social og nutidig stemning, samtidigt med at væggene emmer af historie og charme. Det klassiske køkken er udvalgt med omsorg og er respektfuldt tilpasset, så det understøtter husets oprindelige stil.





Fra spisestuen kigger du ud til Nyboders ikoniske gule huse.

Husets trappe leder dig videre op til førstesals fredelige univers der indbyder til nærvær og afslapning. Her mødes hverdagens rytme og husets sjæl i en smuk balance.




Et behageligt og lyst værelse med vægge malet i en rolig beige farve. Det kan enten indrettes som et soveværelse med plads til både et karlekammerskab og arbejdsplads, eller som en hyggelig tv-stue.



Rummet ligger ved siden af det ”røde bibliotek”, et charmerende og roligt hjemmekontor, med direkte adgang til et af førstesals to badeværelser.




Et drømmesoveværelse der er som et spejlbillede af det beige værelse. Det er den perfekte voksenafdeling med både påklædningsværelse og et eget badeværelse.


Velkommen op til husets øverste etage. Heroppe venter hyggelige værelser med en intim og rolig stemning.




I de tre soveværelser på andensal, mødes du af skråvægge, synlige bjælker og masser af kreativ charme.

Både badeværelse og bryggers er indrettet med en klassisk og tidløs stil. På en elegant måde har man bevaret husets dna, med en kombination af smagfulde materialer og funktion.





Vejledende tegning uden ansvar






De karakteristiske huse ”De Grå Stokke” er en del af det historiske nærmiljø som Nyboderkvarteret er kendt for. Byhusene blev oprindeligt opført i 1887 til flådens folk, og emmer af ægte Københavnsk charme. Indenfor de ikoniske facader, er det nu moderne ejendomme med plads til den store familie. Alle husene har en gårdhave, hvor man har mulighed for at skabe og indrette et eget uderum. Man kan også placere en bænk og et par stole foran huset og nyde gadens unikke stemning og fredelige miljø. Hele kvarteret ligger i den rolige del af København med gåafstand til Kastellet, Marmorkirken, Kongens Have og Nyhavn.


















Drømme kan være mange ting Kig indenfor hos Anna Reventlow

Vi er mere end bare et almindeligt ejendomsmæglerfirma.
Vi går i dybden med de individuelle behov I måtte have, om det er den helt rigtige plantegning eller den bedste beliggenhed.
Vi ledsager jer uafhængigt gennem hele forløbet og i alt rundt omkring. Den fornemste opgave for os, er at sætte os grundigt ind i hvem I er og hvilke behov I har og derudfra skræddersy den præcise løsning til jer.
Vi gør det vi er aller bedst til, så I kan fokusere på det som er vigtigst for jer
Vi glæder os til at møde jer og realisere jeres boligdrømme!
Damgaard
Segnerøddalsvej 1 2970 Hørsholm
Telefon: +45 3155 4001
CVR.: 34 88 22 82
ar@annareventlow.dk www.annareventlow.dk

ANNA REVENTLOW
Efter mange og lærerige år ved større ejendomsmæglerkæder, voksede savnet efter noget mere genuint og personligt. Dét at sætte fokus på ejendommene og ikke på at brande firmanavnet bag salget, at kigge på mennesket bag hver handel og på, hver gang at overtrumfe forventningerne.
Vi ser ikke kun på boligen, men betragter det som en helhed at forene mennesket og boligen med alle dets facetter.
Det betyder at vi betragter forholdet til vores kunder som kernen i vores virksomhed. At sætte os ind i hvor man befinder sig i livet, hvilke store udfordringer der kommer i fremtiden, drømme, ønsker og behov er udgangspunktet for at kunne skabe rammerne dertil.
