A nna R eventlow

LØNGANGSTRÆDE 21B, 4
1208 KØBENHAVN K
![]()

LØNGANGSTRÆDE 21B, 4
1208 KØBENHAVN K
Få steder er vigtigere end hjemmet...
Vi forstår det, og vi er enige!


01 LØNGANGSTRÆDE 21B, 4 - boligen
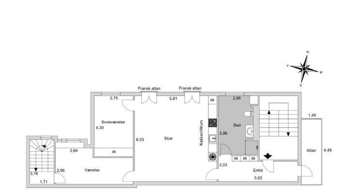
02 SPECIFIKATIONER - plantegning
03 EJENDOMMEN - miljøet omkring boligen
04 NÆROMRÅDET - geografi, område og historie
05 ANNA REVENTLOW - hvem er vi
“Hos os ligger fokus på jer som kunder og på hver gang at overtrumfe jeres forventninger. Vi arbejder med nogle af Danmarks smukkeste boliger, og vi sætter en ære i at realisere jeres boligdrøm. Denne bolig er særligt udvalgt på grund af dens unikke beliggenhed, særegne atmosfære og smukke indretning. Vi vil guide jer gennem boligen og dens indretning, nærområdet og bydelens kendetegn og historie”
Velkommen til Løngangstræde 21B, 4 og til Anna Reventlow Ejendomsformidling

EJENDOMSMÆGLER MDE
TELEFON: +45 3155 4001
info@annareventlow.dk


DRØMMER du om at bo midt i København K og opleve Københavns charme og rige kultur fra første parket, hver dag? Men måske har du også en drøm om mere rolige og private omgivelser. Ligesom ordet løngang, en diskret og hemmelighedsfuld gang, fører porten på Løngangstræde 21, ind til en skjult cityoase hvor du omfavnes af en grøn og rolig atmosfære.
Det føles helt enkelt som en flugtvej væk fra det pulserende byliv, ligesom Løngangstræde var i begyndelsen af 1600-tallet, en flugtvej som kunne benyttes af kongerne hvis Slotsholmen skulle blive truet. Alle ejendommene der omkranser gården, har gennemgået en totalrenovering fra kælder til tag. Lejligheden, måske dit blivende private tilflugtssted, er topmoderne og smagfuldt istandsat.
På fjerde sal kan du nyde lyset og luften, både fra det store køkken / alrum, og fra den solrige altan. Både køkken og bad er lavet med højkvalitetsmaterialer, der smelter perfekt ind i det stilrene look der gennemsyrer hele lejligheden. Udover den store stue, findes her to sjælfulde soveværelser. 119 kvm fyldt med ro og eksklusiv stemning, lige klar til at flytte ind i.
Udenfor venter en af Københavns ældste og mest pittoreske kvarter, med sine charmerende stræder, butikker, caféer og museer. Du har gangafstand til alt du har brug for, blandt andet Metroen på Gammel Strand, og Hovedbanegården.




Opgangen til nr. 21B, ligger inde på den hyggelige og skjulte gård. I den indbydende entré findes både funktionel opbevaring, samt udgang til den private altan.




En stue der opfylder dit ønske om en stor og åben stue der fungerer som hjemmets samlingspunkt. Her spiser I middag med vennerne ved de franske altaner, eller ser på film i den hyggelige sofa.








Køkkenet emmer af minimalistisk storbyelegance med sine mørke trælåger og kvalitetshvidevarer. Det er desuden et stilsikkert valg af køkken, der ikke stjæler opmærksomhed fra den fashionable stue.


Et charmerende og roligt soveværelse med kig ud til den fine gård.

En altan på fjerde sal, betyder både ugeneret udkig over hustagene og, at I kan nyde forårs-og sommermånederne i ro og mag, uden indkig.






Dette store og misundelsesværdige badeværelse, er et værelse hvor du kan vælge at gå i bad, eller vaske tøj, eller bare nyde den generøse plads du har når du laver din skønhedsrutine.





Et bedårende soveværelse der kan indrettes lige efter dine behov. Måske et hjemmekontor med plads til den overnattede gæst?




Eller et fantastisk børneværelse med plads til både bøger og tøj i den fine reol?



Vejledende tegning uden ansvar





LØNGANGSTRÆDE 21 er en historisk ejendom fra 1799, med en iøjnefaldende og smuk facade, der pynter på gaden. Porten på Løngangstræde leder til flere ejendomme og en utrolig dejlig og rolig fælles gård. Ejendommene blev renoveret i 2015. Gaden er opkaldt efter en løngang, der lå her fra 1607 til omkring 1670. Den kunne bruges som flugtvej i tilfælde af krig og som en diskret vej ud af byen for kongerne i fredstid. Det her er et stykke københavnsk historie, der smukt møder nutiden og vores måde at leve på.








LANGS MED de hyggelige historiske gader i det gamle København ligger vinbarer og caféer side om side. De mange krogede stræder har byens bedste udvalg af butikker og restauranter. Her bor man midt i mellem Københavns rige kulturliv og hovedattraktioner. Metro ved Gammel Strand tager dig rundt i resten af byen på nul tid.







Drømme kan være mange ting
Kig indenfor hos Anna Reventlow
Vi er mere end bare et almindeligt ejendomsmæglerfirma.
Vi går i dybden med de individuelle behov I måtte have, om det er den helt rigtige plantegning eller den bedste beliggenhed.
Vi ledsager jer uafhængigt gennem hele forløbet og i alt rundt omkring. Den fornemste opgave for os, er at sætte os grundigt ind i hvem I er og hvilke behov I har og derudfra skræddersy den præcise løsning til jer.
Vi gør det vi er aller bedst til, så I kan fokusere på det som er vigtigst for jer
Vi glæder os til at møde jer og realisere jeres boligdrømme!
EJENDOMSFORMIDLING
Damgaard
Segnerøddalsvej 1 2970 Hørsholm
Telefon: +45 3155 4001
CVR.: 34 88 22 82
ar@annareventlow.dk www.annareventlow.dk

ANNA REVENTLOW
Efter mange og lærerige år ved større ejendomsmæglerkæder, voksede savnet efter noget mere genuint og personligt. Dét at sætte fokus på ejendommene og ikke på at brande firmanavnet bag salget, at kigge på mennesket bag hver handel og på, hver gang at overtrumfe forventningerne.
Vi ser ikke kun på boligen, men betragter det som en helhed at forene mennesket og boligen med alle dets facetter.
Det betyder at vi betragter forholdet til vores kunder som kernen i vores virksomhed. At sætte os ind i hvor man befinder sig i livet, hvilke store udfordringer der kommer i fremtiden, drømme, ønsker og behov er udgangspunktet for at kunne skabe rammerne dertil.
