EJENDOMSFORMIDLING

GOTHERSGADE 91, 2TV 1123 KØBENHAVN K
Få steder er vigtigere end hjemmet...
Vi forstår det, og vi er enige!


![]()
EJENDOMSFORMIDLING

GOTHERSGADE 91, 2TV 1123 KØBENHAVN K
Få steder er vigtigere end hjemmet...
Vi forstår det, og vi er enige!


01 GOTHERSGADE 91, 2TV - boligen
02 SPECIFIKATIONER - plantegning
03 EJENDOMMEN - miljøet omkring boligen
04 NÆROMRÅDET - geografi, område og historie
05 ANNA REVENTLOW - hvem er vi
“Hos os ligger fokus på jer som kunder og på hver gang at overtrumfe jeres forventninger. Vi arbejder med nogle af Danmarks smukkeste boliger, og vi sætter en ære i at realisere jeres boligdrøm. Denne bolig er særligt udvalgt på grund af dens unikke beliggenhed, særegne atmosfære og smukke indretning. Vi vil guide jer gennem boligen og dens indretning, nærområdet og bydelens kendetegn og historie”
Velkommen til Gothersgade 91, 2tv og til Anna Reventlow Ejendomsformidling

EJENDOMSMÆGLER MDE
TELEFON: +45 3155 4001
info@annareventlow.dk


Bag en koboltblå port på Gothersgade, gemmer sig denne eksklusive lejlighed. Du finder den i en charmerende ejendom fra 1775, med en smuk beliggenhed lige foran Kongens Have. En personlig og elegant opgang, leder dig ind til dette drømmehjem hvor du mødes af en dejlig og rolig atmosfære. De originale træpaneler, bjælker, skydedøre og hyggelige kvistvindue, fremhæver lejlighedens en helt unik karakter. De 157 kvm har desuden blevet renoveret med fokus på høj kvalitet og naturmaterialer. Lejlighedens to stuer en-suite har begge en misundelsesværdig udsigt over Konges Have. Herfra kan du følge med i hvordan haven ændrer karakter i takt med årstiderne. Den frie udsigt over haven og Rosenborg Slot er mægtig, men den sikrer også en helt privat stemning i stuerne, helt uden indsyn. Udover stuerne findes her en smuk spisestue med et lækkert køkken, samt et elegant og rummeligt badeværelse. Længst nede i lejligheden ligger det rolige soveværelse med direkte udgang til hjemmets solrige altan og tilhørende opbevaringsrum. Som prikken over i’et har du desuden en parkeringsplads i gården. Velkommen til et unikt og smukt hjem hvor du har Kongens Have som nabo, og København K som legeplads. Her bor du kun et stenkast fra Kongens Nytorv, Nørreport Station og byens bedste restauranter og rige kulturliv.

Allerede i den blåmalede og elegante opgang, får man første indtryk af husets særegne karakter og personlighed. Opgangens gulvtæppe, malerier og smukke trægelænder bidrager til en hjemlig følelse.

Vel inde fortætter hyggen i en fin entré med plankegulve, skråtag og et vindue der vender ud til gården. Herfra har du indgang til hjemmets to stuer.




Fra denne magiske stue har du en misundelsesværdig udsigt over Kongens Have og Rosenborg Slot. Stuen er både repræsentativ og hyggelig, med plads til socialt samvær eller stille stunder i den store sofa. Her mødes du af fine detaljer som originale vægpaneler, nyt plankegulv, radiatorskjulere, og en skydedør der fører dig videre ind til den anden stue.










Hjemmets spisestue byder på varm atmosfære fyldt med charmerende detaljer som hyggelige kvistvinduer, en dejlig pejs, og synlige hvide bjælker. Fra de fire vinduer kommer der ind et naturligt lysindfald, og du har en udsigt over ejendommens baggård og byens hustage.


I det åbne køkken fortsætter den sociale og varme stemning fra spisestuen. Det elegante køkken fra Multiform komplementeres med den smukkeste bordplade i Ølandskalksten, og eksklusive topmodel hvidevarer fra Gaggenau. Fra køkkenet leder en gang med indbyggede gulv til loft skabe, helt ned til soveværelset.









Lejlighedens hyggelige soveværelse er fyldt med ro og harmoni. Rummets skråtag med de fine kvistvinduer forstærker den intime stemning. De indbyggede skabe fra Multiform med pocket døre og skuffer i træ, er en drømmegarderobe som smelter perfekt ind i rummets symmetri. Herfra kan du gå direkte ud til hjemmets altan og fylde lungerne med den friske morgenluft, eller hvorfor ikke sove med åben dør en varm sommeraften?




På den dejlige sydøst vendte altan kan du nyde morgensolen og udsigten over den idylliske baggård med klassiske bindingsværkshus og facader i brændt orange. Desuden findes her et fint opbevaringsrum, som kan blive til et bryggers hvis du vil.







Fra opholdsstuen kommer du ind til en lidt mindre stue. Også her kan man nyde Kongens Haves sæsoner fra første parket, men du kan også se ud over Marmorkirkens torn. Rummet kan indrettes som et luksuriøst hjemmekontor med bibliotek, eller måske et andet soveværelse?



Under skråtaget gemmer sig et smukt og rummeligt badeværelse med bruseniche og væghængt toilet.
Det har fået samme mørkerøde Ølandskalksten som i køkkenet, og det pryder både vask, gulv og væg. Armaturerne er fra Vola, og i det brede vaskeskab i varmt træ fra Multiform, er der masser med plads til skønhedsprodukter og håndklæder.


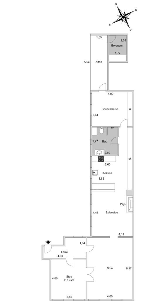
Vejledende tegning uden ansvar





Nr. 91 finder man på den ældste del af Gothersgade, foran Rosenborg Slot og Kongens Have. Denne klassicistiske ejendom fra 1775 er en del af det historiske kvarter, Rosenborg Kvarteret og med sin hvide facade og koboltblå port, smelter den smukt ind i Københavns idylliske bybillede. Gothersgade blev anlagt 1650-1655 og navnet stammer fra de middelalderlige titler Goternes Konge og Vendernes Konge. Ejendommen blev bygget med kælder og tre etager for kaptajn Georg Alexander Thaae, og blev ombygget i perioden 1981-1983 under ledelse af arkitekten Ole Guldbrandsen. Gennem den blå port når man lejlighedernes fine opgang og det hyggelige brostensbelagte og lukkede gårdmiljø. Her bor man i sin egen verden men med det bedste af byens muligheder lige udenfor døren. Nogle skridt fra huset ligger Cinemateket og fortsætter man nedad Gothersgade, når man Kongens Nytorv.










Livet omkring Gothersgade, den vitale åre der går gennem Indre By, byder på weekends med picnic i Kongens Have, efterfulgt af vin på en af gadens eksklusive vinbarer og hvorfor ikke slutte af med en gammel filmklassiker på Cinemateket. Slentrer man ned ad Gothersgade rammer man Kongens Nytorv og på sidegader som Gammel Mønt og Pilestræde finder man nogle af byens bedste butikker og caféer. Går man op ad gaden, kommer man til Nørreport station og drejer man ind på Landmærket når man Rundetårn og hjertet af den Indre By. Beliggenheden er ganske enkelt guld værd for det bekvemme city-menneske.








Drømme kan være mange ting Kig indenfor hos Anna Reventlow
Vi er mere end bare et almindeligt ejendomsmæglerfirma.
Vi går i dybden med de individuelle behov I måtte have, om det er den helt rigtige plantegning eller den bedste beliggenhed.
Vi ledsager jer uafhængigt gennem hele forløbet og i alt rundt omkring. Den fornemste opgave for os, er at sætte os grundigt ind i hvem I er og hvilke behov I har og derudfra skræddersy den præcise løsning til jer.
Vi gør det vi er aller bedst til, så I kan fokusere på det som er vigtigst for jer
Vi glæder os til at møde jer og realisere jeres boligdrømme!
Damgaard
Segnerøddalsvej 1 2970 Hørsholm
Telefon: +45 3155 4001
CVR.: 34 88 22 82
ar@annareventlow.dk www.annareventlow.dk

ANNA REVENTLOW
Efter mange og lærerige år ved større ejendomsmæglerkæder, voksede savnet efter noget mere genuint og personligt. Dét at sætte fokus på ejendommene og ikke på at brande firmanavnet bag salget, at kigge på mennesket bag hver handel og på, hver gang at overtrumfe forventningerne.
Vi ser ikke kun på boligen, men betragter det som en helhed at forene mennesket og boligen med alle dets facetter.
Det betyder at vi betragter forholdet til vores kunder som kernen i vores virksomhed. At sætte os ind i hvor man befinder sig i livet, hvilke store udfordringer der kommer i fremtiden, drømme, ønsker og behov er udgangspunktet for at kunne skabe rammerne dertil.
