Skip to main content

Hyunji Kim Architecture Portfolio

Page 1


Hyunji Kim Architecture Portfolio

Table of Contents

Hyunji Kim

01

Nestled Commons

Spring 2025, UC Berkeley

02

Vault Home

Fall 2024, UC Berkeley

03

Collective Cloud

Fall 2023, U Penn

04

Strong Box

Fall 2023, U Penn

05

Oakland Fire House

Fall 2025

06

Thesis-Shared and Layered

Fall 2024-Spring 2025, UC Berkeley

07

Construction

Fall 2024, UC Berkeley & Fall 2023, U Penn

Nestled Commons

Mixed Use Housing | San Fernando Valley, CA Spring 2025 | ARCH 202 | Michael Maltzan, Ian Miley

University of California Berkeley, College of Environmental Design

Nestled Commons proposes housing as a spatial framework for collective care, shaped by climate, proximity, and daily routine. Located in the San Fernando Valley—where extreme heat, limited shade, and social isolation disproportionately affect older adults—the project organizes domestic life around shared interiors and protected ground rather than isolated units.

Communal kitchens, dining rooms, and living spaces act as the primary spatial organizers, forming the center of daily life and extending domestic space outward. Housing unfolds as a field of relationships—between neighbors, rooms, and thresholds—rather than as a collection of enclosed apartments.

Space is calibrated as a gradient from private to shared and from interior to exterior: circulation becomes inhabitable, visibility becomes connective, and care is embedded as an architectural condition rather than a discrete program. Nestled Commons frames aging not as retreat, but as continued participation in a shared spatial life.

Design Excellence Award 2025

senior / veteran facility

population over 65 > median

heat level above moderate

heat level below moderate

vegetation and parks

public transit line

At the intersection of industrial, commercial, and residential uses and the Tujunga Wash, the site primarily serves elderly and mobility impaired users amid extreme heat and limited public space.

Massing Model

The massing study respond to the Tujunga Wash and the street edge.

With the site directly adjacent to the Wash, an infrastructural boundary between larger industrial buildings and smaller residential houses, the study explores variations in volume, height, and roof form to find a spatial middle ground between the two scales

Hyunji Kim
Hyunji Kim
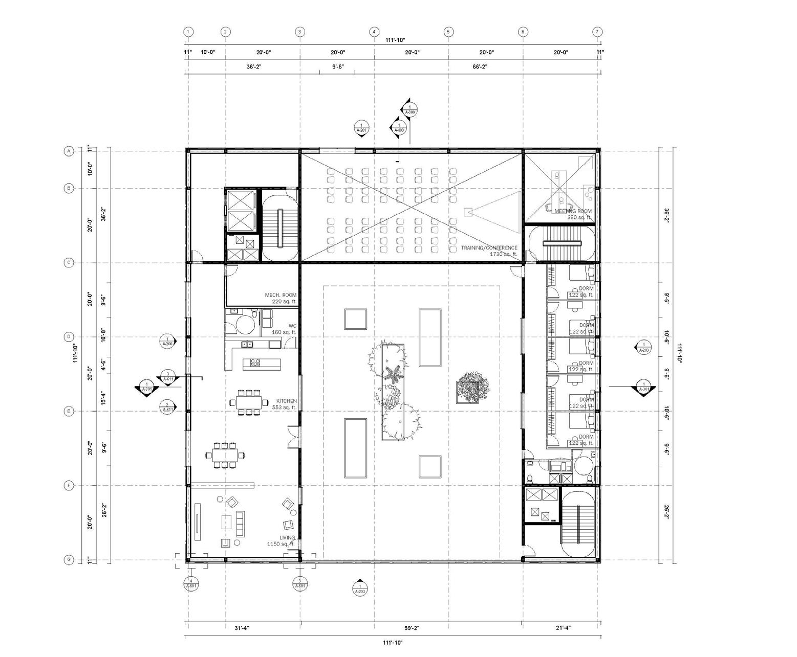
Ground Floor Plan

Vault Home

Medium Density Housing | Berkeley, CA

Fall 2024 | ARCH 201 | Gines Garridos, Juana Canet University of California Berkeley, College of Environmental Design

Vault Homes rethinks the boundary between dwelling and street through the inhabitable wall. Rather than acting as a static divider, the wall becomes a thickened, occupiable zone that mediates light, privacy, and everyday use. Openings, depth, and curvature transform the wall into a spatial device that filters views, carries light, and supports domestic activities.

Deep, narrow vaults enhance this condition by drawing natural light into the units while maintaining privacy. The arching form increases ceiling height, allowing light to travel across surfaces and intensify the interior atmosphere. With minimal conventional partitions, the open plan remains flexible, enabling residents to adapt and personalize their living environment. 02

Public street lighting plays a minor role at night. The street is shaped instead by private light sources such as storefronts, spotlights, and signage. This produces an uneven atmosphere where individual lighting, rather than civic infrastructure, defines visibility and activity.

Units and Organization

The units explore the wall as infrastructure. By housing domestic functions within its thickness, the design enables an active system that mediates between street and interior. Light, storage, and occupation are integrated into the wall, opening opportunities for visual interaction and spatial exchange.

Privacy is negotiated through depth along the elongated space, allowing gradual transitions rather than rigid separation. A brick veneer operates as a regulating layer, filtering light, views, and exposure.

Collective Cloud

ICA Museum Extension | Philadelphia, PA

Fall 2023 | ARCH 501 | Anthony Gagliardi

University of Pennsylvania, Weitzman School of Design

Monumentality is not defined by grand production, but by the accumulation of daily encounters and subjective perspectives. It emerges through shared, ordinary moments, where curiosity, perception, and imagination are continuously shaped through experience and play. Rather than residing in singular architectural gestures, monumentality is understood as a condition produced through repetition, interaction, and shifting interpretations.

Collective Cloud situates monumentality within everyday life rather than isolating it within institutional boundaries. Extending beyond the museum’s physical limits, the project occupies pre existing urban space, engaging the rhythms, movements, and unpredictability of daily activity. This displacement challenges conventional associations between monumentality, scale, and permanence, asserting instead that presence can be constructed through perception and participation.

Resembling a building block system, the architecture operates as an open framework that invites appropriation, adaptation, and reinterpretation. Color, form, and texture function as perceptual instruments that destabilize fixed readings of scale, revealing spatial effects through proximity and engagement. Monumentality becomes not an object to observe, but a condition to participate in, unfolding through interaction, emotion, and collective experience.

Exhibited in 2024 Year End Show,

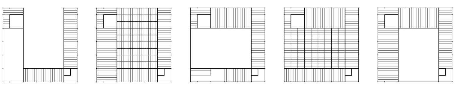
The collage functions as a conceptual study of grounding and addition.

Anchored masses define a primary field, while smaller elements operate as spatial and perceptual insertions. Space is constructed through layering, overlap, and transparency.

Hyunji Kim
Collage as Generator
Stack
Ground Floor Plan
Embed
Soften
Inflate

Upper Floor Plan and Plan Diagram

The project organizes space through a system of indentation and vertical displacement. The ground floor is structured around an indented plaza that distributes movement across multiple levels, linking the lobby, outdoor terrace, and museum shop through half-floor shifts. Circulation is embedded within the masses, allowing transitions between programs to occur as spatial experiences rather than discrete connections. On the upper level, smaller volumes are nested within the larger inflated mass, accommodating more contained programs while maintaining continuity with the overall spatial framework.

Hyunji Kim

Plan Diagrams

Strong Box: Soft Containment

dsffdsfdsfdsfd | Philadelphia, PA Fall 2023 | ARCH 521 | Daniel Markiewicz

University of Pennsylvania, Weitzman School of Design

A strongbox is traditionally defined by its logic of separation, establishing a clear boundary between what is protected and what is excluded. Its function is rooted in hardness, resistance, and the assurance of impenetrability. This work reconsiders that premise by shifting protection away from rigidity toward softness, absorption, and material mediation. Containment is no longer understood as a defensive act, but as a spatial and perceptual condition.

A reflective, rigid object is embedded within a fuzzy foam mass, where protection emerges through absorption rather than resistance. The surrounding material destabilizes conventional readings of enclosure, producing tensions between softness and rigidity, clarity and diffusion, sharpness and blur. The object is neither fully concealed nor fully revealed, but held in a state of perceptual ambiguity. Security shifts from closure toward an effect constructed through material contrast and sensory perception.

Object Assembly:

Foam

The assembly drawing isolates the core and its surrounding elements, foregrounding the relationship between object, cavity, and material. Structure is understood through sequencing rather than completion.

Strongbox

Oakland Fire House

Fire Station | Oakland, CA

Fall 2025 | ARCH 203 | David Jaehning

University of California Berkeley, College of Environmental Design

In collaboration with Isabelle deMetz

The project reconceives civic infrastructure through the spatial logic of "inbetween" conditions at the Wildland-Urban Interface. Drawing from the site’s dual nature, the building translates physical and visual compression and expansion into a vertical sequence of thresholds. One side of the hillside is defined by the physical compression of retaining walls and the dense native tree cover of Butters Canyon, while the other is shaped by the rhythmic expansion of neighborhood views. To internalize these tensions, three U-shaped volumes are rotated and stacked, creating carved voids that transform these site conditions into an active system that mediates the relationship between civic life and critical fire station operations.

These voids define clear boundaries on every level—separating the apparatus bay from the public library, framing the landscape for a community-facing gym, and providing a domestic buffer for sleeping quarters. This spatial strategy allows high-intensity emergency response and daily community use to inhabit the same footprint without interference. Supported by a hybrid CLT and glulam framing system, the architecture is wrapped in a mirrored aluminum exoskeleton that reflects the surrounding landscape, visually embedding the station into the community it protects.

Site Analysis

The site reveals physical and visual edges that generate in-between spaces. On the hillside, residual zones form between slopes, bounded and restricted, while between houses, sightlines open and compress, creating shifting exposure and enclosure.

1. Initial Placement

Base mass set within property

2. Program Volumes

Three primary volumes - ap-

3. Rotated Voids and U s

Stackes voids create rotat4ed U-shaped volumes that frame

A calibrated composition of Massing

4. Circulation Cores

Cores positioned along edges

5. Elevation Adjustment

Surrounding bars shift in height

6. Final Massing

Ground Floor Plan
Apparatus Bay facing north to support rapid deployment and maintain clear, efficient access to the street.
Second Floor
Full-size basketball court facing west over as a refuge, with gym, lockers, and showers
Butters Overlook, designed to serve
supporting training and daily use.
Third Floor Plan
Courtyard for firefighters, organizing the building by separating communal space from living quarters.
Hyunji Kim
Apparatus Bay
Gymnasium

Floor Diaphragms Framing Plans

Facade Types and Assembly

Hyunji Kim

Shared and Layered Formalizing

the Gap through the Thickened

Wall

M. Arch Thesis

Fall 2025-Spring 2026 | ARCH 204 | Maria Paz Gutierrez

University of California Berkeley, College of Environmental Design

In the modern city, architecture has taught us to fear the gap as "wasted space." Driven by numerical efficiency and rigid boundaries, the contemporary apartment has been reduced to an isolated domestic container, severing the social ties essential to urban resilience. This thesis asserts that the value of high-density dwelling is found in the continuity of everyday practices across thresholds, shifting the high-rise from a static enclosure toward an elastic, shared territory.

This thesis formalizes the informal logic of the alleyway to restore this social adhesive—observed in the relational resilience of Guryong Village—into a vertical context. Within the aging Eunma Apartment complex in Seoul, the project proposes a collectively produced territory where the gap replaces the sterile corridor as the primary infrastructure of life. By reclaiming floor area from dormant private functions, the unit is allowed to "breathe" into a shared, layered landscape of mutual care.

Home is not a container; it is the domesticity produced in the gaps we create for one another.

Hyunji Kim

Guryong Village serves as the resilient evidence of the alleyway as a single, layered interior—an elastic system where the gap, the alley w is not a void, but a relational substrate for collective survival. In this informal setting, domesticity is not a private luxury, but a collectively produced territory where the boundaries of the home are perpetually negotiated through

To map this logic, the project adopts the lens of the Cheonhado, a Joseon-era worldview that prioritizes a nested, shared center over rigid, edge-to-edge boundaries. Unlike the Western grid, which partitions space into discrete cells, the Cheonhado suggests a cartographic proof for shared territory. Here, the "center" is not an empty void to be bypassed, but a common ground where private and public lives are inextricably linked.

Guryong Cheonha do

Construction

Case Study - Materials and Assembly

School in Orsonnens | TEd’A arquitectes

Fall 2024 | ARCH 260 | Yasmin Vobis

University of California Berkeley, College of Environmental Design

In collaboration with Heather Highland and Anh Tang

Nostalgia operates as the conceptual framework for reading the School in Orsonnens, shaping the interpretation of its construction, materials, and spatial organization. Rather than appearing as visual imitation, nostalgia emerges through the translation of familiar architectural logics. The project reveals how memory can be embedded within structural decisions, construction strategies, and material expression.

The central pillar, timber framing, and exposed beam structure recall the openness and clarity of traditional barn houses, producing a sense of familiarity grounded in spatial and structural continuity. This relationship extends through the building’s materials, where wood shingles, copper surfaces, and laminated wood elements negotiate between vernacular references and contemporary techniques. Nostalgia is therefore understood as an active process, one that reinterprets past logics to construct new spatial and atmospheric experiences.

Hyunji Kim

Case Study - Joinery

Margaret Esherick House | Louis Kahn

Fall 2023 | ARCH 531 I | Philip Ryan

University of Pennsylvania, Weitzman School of Design

Tectonics of the key post demonstrate how joinery, mass, and structure shape architectural expression. Although the dado joint system was not fully realized in the built condition, the drawing and model rearticulate this unrealized assembly.

Isometric of Original Keypost

Piece “C”

Turn static files into dynamic content formats.

Create a flipbook
Hyunji Kim Architecture Portfolio by Berkeley Arch Grad 26 - Issuu