

I T O R
EDEsta revista tiene como objetivo
principal dar a conocer 2 proyectos principales por la empresa Foster+Partners Como lo son el 270 Park Avenue ubicado en New York y el Zayed National Museum que se encuentra en Abu Dhabi
A lo largo de esta revista se encontrarán los diferentes procesos constructivos y los materiales que se desarrollaron en estos proyectos
Revisado por: Dra. Elizabeth Vázquez Quitl


V I D E O S
Video Español Video Ingles
I N D E X

06. 270 PARK AVENUE
07. CARACTERÍSTICAS DEL 270 PARK AVENUE
08. FICHA TÉCNICA
09. CIMENTACIÓN
10. ESTRUCTURA
11. ACABADOS
13. ZAYED NATIONAL MUSEUM
14. Ficha técnica
15. PRELIMINARES
16. Cimentación
17.Estructura
18. Instalaciones
19 iluminación
20 acabados
22 PABELLÓN NEST OF LIGHT
23 FICHA TÉCNICA
24. CONCEPTO
25. UBICACIÓN
26. PLANOS
27. PROCESO
28. RESULTADOS
29. BIBLIOGRAFÍA

FOSTER+







El Concepto de




Concepto


Estructura de Transferencia y Megacolumnas









MUSEUM DISEÑO
D E S I G N



PRELIMINARES PRELIMINARIES



CIMENTACION
E S T R U C T U R A

S T R U C T U R E

INSTALACIONES
ILUMINACI






DESARROLLO DE PROYECTO



formwork
N C E P






La techumbre del pabellón estaba pensadaenlaformade unaestrellademar.De igualmaneratodoesto le daba su esencia propiaalproyecto,al no ser una figura común dentro de la arquitectura
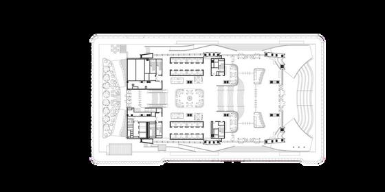
Elterrenoseencuentraubicado entre el edificio de Humanidades y el Colegio Bernal. En este espacio se plantea la realización de un pabellón con dimensiones aproximadasde17mx17m, pensado para integrarse de manera funcional con el entornonatural.
Elterrenonocontabaconuna pendiente muy pronunciada, porloquelaaccesibilidadpara realizarelproyectoeraviable.

En estos planos podemos observar el tipo de celosía seleccionadaycómoseintegra enlaestructuradelatechumbre. Tambiénseaprecianlostriplays utilizados en las demás superficies, elegidos por su resistencia y su buena integraciónestéticaeneldiseño delpabellón.



Aquípodemosobservarel plano estructural del pabellón,dondesemuestra la configuración de la cimbra. Este elemento definelaformaysoporte provisionaldelatechumbre, permitiendoentendercómo sedistribuyenloselementos que refuerzan el sistema constructivo.



El proceso de elaboración de esta maqueta fue de aproximadamente 1 mes.







Estepabellóncuentaconuna techumbreformadaporocho piezas triangulares que se integranentresí,utilizandoun patróndecelosíaypanelesde triplayparaaportarestructuray de igual manera que sea atractivo.
Enlapartecentralseincorpora unmurodivisorioqueorganiza el espacio y permite definir distintas áreas dentro del pabellón.
Gracias a este elemento se generantreszonasprincipales: unapequeñasala,unacocineta yunáreademesasdestinadasal usocomún.
El interior busca transmitir tranquilidad,combinandoluz, materiales y mobiliario para crear un ambiente acogedor queinvitealdescanso,lacalma ylaconvivencia.



Foster+Partners.(2023).270ParkAvenue: Projectoverview.FosterandPartners. https://www.fosterandpartners.com Foster+Partners.(2022).ZayedNational Museum:Architecturaldesignreport. FosterandPartners.Agregaralgodetexto Smith,J.,&Allan,P.(2019).High-Tech Architecture:Systems,structureand transparency Routledge Ali,M,&Moon,K (2018) Structuralsystems fortallbuildings.JournalofArchitectural Engineering,24(3),1–12. Schodek,D.,Bechthold,M.,Griggs,K.,&Kao, K.(2015).Structures:7thEdition.Pearson. Ching,F.D.K.(2014).BuildingConstruction Illustrated(5thed.).Wiley. Allen,E.,&Iano,J.(2020).Fundamentalsof BuildingConstruction:Materialsand Methods(7thed.).Wiley. Edwards,B.(2020).Sustainable Architecture:Principles,paradigmsand casestudies Elsevier
Givoni,B.(1998).ClimateConsiderationsin BuildingandUrbanDesign.Wiley. Yeang,K.(2008).Eco-Skyscrapers.Images Publishing. Wood,A.,&Salib,R.(2013).Natural ventilationinhigh-risebuildings.CTBUH ResearchJournal,1,24–37. Kolarevic,B (2003) Architectureinthe DigitalAge:Designandmanufacturing Taylor&Francis. Harrison,M.(2017).TallBuildingStructures: Analysisanddesign.McGrawHill. NSCCInternational.(2016).Ground engineeringandvibro-compaction techniques.NSCCTechnicalReports. Picon,A.(2010).Digitalculturein architecture:Anintroductionforthedesign professions.Birkhäuser.

Revisadopor/Reviewed by:ELIZABETHVÁZQUEZQUITL
Video
Ingles
Video Español