PORT FOLIO


DESIGN PORTOFOLIO


ABOUT ME
M.Arch Candidate (Year 2) at the University of Washington with a BFA in Interior Architecture. Strengths include Revitbased documentation, Rhino modeling for iterative studies, and presentation-quality graphics using Adobe Creative Suite and rendering tools.
Currently seeking opportunities to contribute to architectural teams through design development, production support, and clear communication.






18. Table Harvest | Code
Compliance & Life Safety
ARCH 504
Concurrence | High Perfromance Design
ARCH 570
Marika Alderton | Case Study


This case study explored how stereotomic and tectonic forces inform building design
Through group research, we deconstructed Glenn Murcutt’s Murika Alderton House to understand its kit-ofparts approach
We built a basswood model from available drawings and photographs to align as a team and define shared parameters showcasing the stereotomic strategies Murcutt used.
Modeling clarified how the house responds to its environment, especially its relationship to the sky, and sharpened our understanding of the design intent.



Water Research Station | New Build

Magnuson Park carries a layered history from old growth forest to naval base to a s te of ongoing wetland restoration In this shifting context the project uses architectural language to strengthen narrative and respond to the surrounding ecology
Designed as a water accessed research hub for ten rotating artists and scientists in residence, the scheme separates living and working to support both privacy and focus A lighter tectonic studio and lab building contrasts with the main residence’s heavier stereotomic massing creating spaces that frame daily routines and deepen connection to the wetland.

Water Research Station | New Build












The Joinery | Adaptability ARCH 502

Joinery is the project’s strategy for adaptability and community
The timber connections are standardized and expressed so the building can be assembled with clarity adjusted over time, and maintained without erasing how it is made By using reversible, accessible details elements can be removed and updated as users rotate through the site and as program needs shift
The vis ble structure turns construction into a shared language, inviting visitors and community to understand the building, care for t and treat it as an evolving place built for change and connection


The Joinery | Adaptability

The Joinery | Adaptability

JOINTASSEMBLY

Terraced Block | Residential & Mixed Use ARCH 503

Terraced B ock is a mass timber mixed use proposal in Rainier Beach that pairs housing with a ground level food and community program.
A cafe, restaurants, and outdoor gathering spaces bring daily activity to the street and support local makers.
Residential levels rise above the concrete podium ground floor, in a terraced form that increases daylight, creates outdoor space, and softens the buildings scale at the neighborhood edge
The project uses c ear circulation and an expressed timber structure to keep the building legible, welcom ng, and rooted in public life.

Terraced Block | Residential & Mixed Use




Terraced Block | Residential & Mixed Use


Terraced Block | Residential & Mixed Use

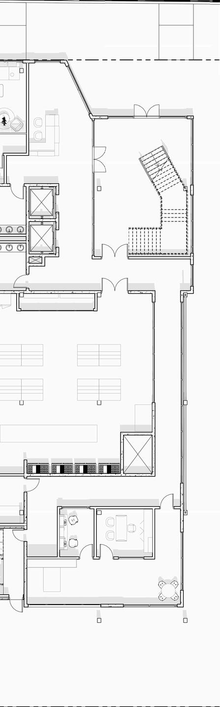
Table Harvest is a code focused project that translates design intent into clear comp iance and life safety strategy
Using the IBC and local amendments, I evaluated occupancy classifications and occupant loads then tested egress capacity, travel distances, and exit layout to confirm safe, code aligned circulation
The work produced a coordinated set of diagrams and summary sheets that guided decisions on construction type, fire resistance requirements, and sprinkler assumptions, alongside accessibi ity checks and plumbing fixture calculations.
This process positioned code as a design tool, strengthening both clarity and performance from early planning through documentation.






















Concurrence | High Perfromance Design

Concurrence is a group project sited at the north entrance of the University of Washington Seattle campus, designed as a compact food and sit down destination for students between classes and after schoo
The proposal strengthens campus life by creating a warm, efficient place to pause, meet, and refuel within the everyday flow of passing hours
The project focuses on high performance system integration, using lessons from the perfect wall to coordinate structure air and water control layers, insulation, and detail ng as one continuous envelope strategy.
By treating performance as a design driver Concurrence connects comfort, durability, and energy awareness to an inviting student focused experience.



Concurrence | High Perfromance Design

THERMAL BREAK

SOLAR PANELS |ROOF MOUNTED





FOOTING SILL DETAIL 1/2" = 1'-0"


Concurrence | High
Perfromance Design


