




![]()





Andrea Garcia-Rangel Andrea

Bachelors of Architecture (B.Arch)
Bachelors of Architecture
University of Wisconsin-Milwaukee of Wisconsin-Milwaukee 2021-2025







2024 Comprehensive Design Studio
Location|Milwaukee
Programs|Rhino, AutoCAD, Lumion, Photoshop, Illustrator


The Milwaukee City Archive project fosters community engagement and accessibility. Adjacent to City Hall, it serves as a cultural and educational hub, offering access to historical books, manuscripts, and photographs. A gallery space and an independent coffee shop further enrich its inviting public atmosphere. Seamlessly integrating functionality, sustainability, and aesthetics within its urban surroundings.
The exterior facades are cladded in grantique stone placed in a brick pattern, complementing neighboring buildings while standing out with its darker tone.
Ultimately, this project embodies the philosophy that simplicity and functionality create lasting beauty, establishing an enduring and resource efficient landmark for the community.


Given the steady foot traffic in this part of the city, from nearby offices and casual strollers, the space was designed to act as a natural gathering point. During the early design phases, the focus was on creating a welcoming entrance that would draw people in, whether or not they were visiting the archive. The intent was to encourage passersby to stop, enjoy the seating areas, or grab a coffee, making it accessible from both the north side of the building and from within the archive itself.








Steel Structural System
The archive is constructed with a steel frame structure and concrete floor slabs embedded with radiant heating coils. The exterior is clad in Krukowski dark Aqua Grantique, cut into narrow pieces and laid in a brick-like pattern.




Sawtooth Roof System

Radiant Flooring

Structural Glass Flooring

































































































































































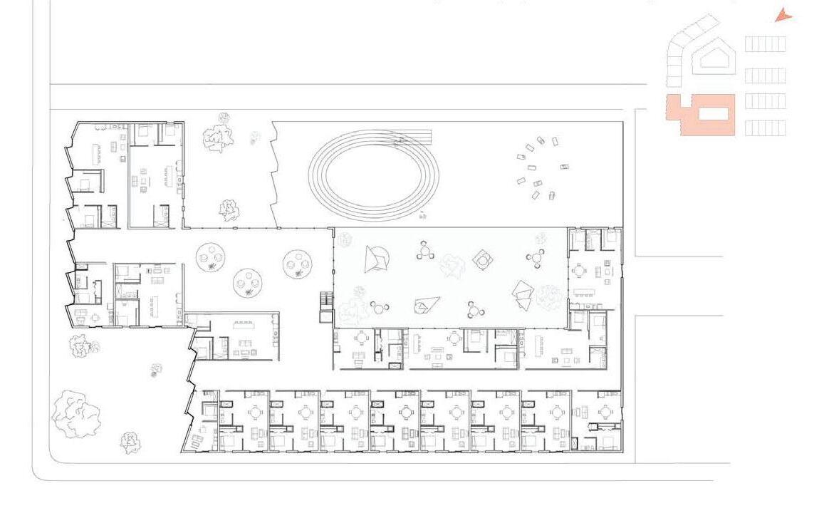
Ground Plan + Site Plan
Scale:1/8”=1’
Section Drawing






Archive features a two-story atrium functioning as the main lobby and central gathering space, creating visual and spatial connections to the second-floor offices above.






Café corner and outdoor lounge serving as a social hub for pedestrians, connecting the archive to the surrounding streetscape through greenery and accessible seating.





2021 NOMA Design Competition
Location|Detroit, Michigan
Programs|Rhino, llustrator, Photoshop
Contributers| Danya Hani Almoghrabi, Natalie Ann Kuehl, Maysam Jamal Abdeljaber, Moctezuma Lopez






The 2021 NOMA design competition was located in Detroit, Michigan. As a team we were given the challenge to create a master plan for a complete community with the NOMA Legacy Headquarters as the anchor. Within this community we had to also consider access to jobs, shopping, learning, open space, recreation, along with other amenities and services.














Black communities in America have historically had the highest unemployment rates, with the current Black unemployment rate in Michigan at 8.2% (USBLS). Additionally, the demolition of the Brewster-Douglas Projects led to the displacement of the Douglas community and their homes.
The NOMA Nest aims to support the Black, Indigenous, and People of Color (BIPOC) community by providing flexible spaces for businesses, affordable housing, and family support resources that are designed to help individuals rebuild their neighborhood.



Townhome Elevation Drawing



The NOMA Nest creates a home for all people within the community by inviting individuals to socialize in basketball courts, skateboarding parks, outdoor picnic areas, a rooftop fitness space, and rooftop gardens that are all connected to the NOMA headquarters and courtyard which acts as a central hub for the community.


2023 Architecture Design Studio II
Location|Milwaukee
Programs|Rhino, Photoshop, Illustrator
Contributers|Abigail Heyroth

Our proposed elementary school design concept draws inspiration from the nurturing qualities of a tree, creating an environment that ties into nature. This concept aims to provide a holistic and enriching educational experience















Early studies explored spatial forms that balanced circulation efficiency with playful, exploratory environments for children.






Rooted in the metaphor of a tree, the final design branches outward to foster growth, connection, and discovery through light-filled, nature integrated learning spaces.





















2024 Architecture of Belonging
Location|Milwaukee
Programs|Rhino, Lumion, Photoshop, Illustrator
Contributers|Sela Fossum, Landen Cowell, Aaron Duenk


As a group we individually designed spaces that foster inclusiveness and involvement for Marquette’s campus. The goal was to promote social connection, student success, and community engagement while strengthening Marquette University’s role as a gateway to Milwaukee.






Marquette University’s role as a gateway to Milwaukee. By embracing the 15-minute city concept, we propose enhancing pedestrian and bike networks, improving public transit by extending the Hop Line to spur real estate growth and integrate academic life with the city’s vibrant urban energy.






Rendering of the community garden nestled between the two urban farm structures, providing a quiet retreat for gathering and growth.







The farm’s entry, where a vendor area forms a quiet, inviting nook between the site and the street for passersby to stop and connect.






Inside the hydroponic systems, where sustainable food meets hands-on education for the Marquette community.

2023 Building Construction
Location|Milwaukee
Programs|AutoCAD, Rhino, llustrator
The project seen here involves designing a typical bay of a glass clad steel frame for a reading room on a small college campus facing a river. This south facade will feature a 1” insulating glass that provides a view to the river while managing solar gain and glare. The adjacent west wall is a 20” masonry wall. The section drawing incorporates a mechanical strategy to prevent down drafting off the glass and addresses heating, cooling, and ventilation for the reading area. The design will utilize a singular vertical aluminum element, specifically Kawneer’s 1600 wall system mullion “162-002” , with a wind design loading 30 PSF for double twin span.
Here we see this illustrated in a typical bay elevation, a wall section, and a plan section all scaled at 3/8”=1’. On the following page there are three details highlighting different parts of the section drawing, all drawn at 1 1/2”=1’.
Insulation Insulation
Kawneer's 1600 Wall System 1 Mullion "162-002"
CW Slip Connection Slip
Detail A 1 1/2"=1'
Wood Blocking
Surface 1: Anti Bird Collision Glass Coating Coating
Surface 2: Low E-Coating E-Coating
Detail B 1 1/2"=1'
Desiccant Beads Black Silicone Adhesive
Kawneer's 1600 Wall System 1 Mullion 1 Mullion "162-002"
3 1 2" Steel Decking "
18" Deep Steel I Beam
HVAC Vent
Floor Slabs W/Radiant Heating/Cooling
Concrete Slab
Sealant and Backer Rod Insulation
3" Rigid Insulation Flashing Flashing
Detail C 1 1/2"=1'
Concrete Footing
HVAC Duct
Surface 3: frit pattern on glass for solar gain reduction

Location|Milwaukee
Programs|Photoshop, Inventor
“Tejido” was a chair design exercise for my Architectural Making 1 class, this upholstered barstool I designed was something that represented my Mexican culture and I took this opportunity to create something that would represent the beauty of it.
At first glance this chairs attention grabber is the design of the seat and backrest. These two pieces were created using a classic Mexican method that is found in their own traditional handcrafted chairs. This method is called “tejiendo” which translates to “weaving”.
In Mexico when you come across these vintage chairs the “tejido” is created by using “mecate” (a rough type of rope) to form the seats of the chairs. Here, due to the small scale of it I used yarn to achieve the look of it. The artwork incorporated onto the backrest and cross bars is Mexican folk art.


