Campus universitario San Buenaventura - Proyecto talleres lúdicos Tacanas

Page 1

PROYECTO: CAMPUS UNIVERSITARIO DE SAN BUENAVENTURA

Univ.: Cruz Morales Angela Narda

Docente: Gianni Renzo Borja Godoy

Auxiliar: Abraham Lenz Lema

Gestión: 2021

Taller: 3 A

TURISMOY COMUNIDAD

ÁREA
CARPINTERÍA CERÁMICA TEJIDOS T A L L E R E S L Ù D I C O S
ACTIVA

TALLERES LÚDICOS

Los talleres lúdicos esta destinado al área turística y a la comunidad para realizar actividades de aprendizaje de oficios ancestrales de la cultura Tacana, para promover el conocimiento de saberes y oficios y para enseñar a turistas interesados en el conocimiento de nuevas artes las instalaciones del proyecto del taller son las siguientes:

PROGRAMA

AREA DE TALLERES LUDICOS Taller

Talleres

Lúdicos 3 40 13 por taller

Área de trabajo 1 3 3

ofrecer un espacio para trabajos para carpintería, cerámica y tejidos.

3 maestros de talller Turistas comuna ríos

Mobiliario para cada area

Depósito 1 3 3 depositar materiales estante para los materiales

Oficia de administracion 1 1

ubicación en la planta baja iluminación natural con ubicación óptima al viento Con luminarias artificiales

espacio de secado para proyectos de turistas Cerrada, sin igreso de luz natural, ventilacion convectiva y con ventanas superiores luminarias artificiales con

Exposicion de trabajos -

UBICACIÓN EN ELTERRENO LOSTALLERES LÚDICOS

UBICACIÓN EN EL TERRENO UBICACIÓN PARTE TURÍSTICA DEL CAMPUS

PERÍMETRO DE LOS TALLERES LÚDICOS

ÁREA DE TALLERES LÚDICOS

ÁREA

DIAGRAMA

UBICACIÓN DEL ÁREA

CIRCULACIÓN VERTICAL

BALCON

parqueo

UBICACIÓN PARTE TURISTICA DEL CAMPUS

ÁREA DE TALLERES LÚDICOS

INGRESO SECUNDARIO HALL DE POLI.Y TALLERES

DEPOSITO

tejido TALLER

DEPOSITO

CIRCULACIÓN VERTICAL

CIRCULACIÓN DE LOS PARTICIPANTES/ JUGADORES

CIRCULACIÓN DEL PUBLICO

CONEXIÓN VISUAL CIRCULACIÓN DEL PERSONAL

ZONAS SITUADAS EN LA PLANTA BAJA

TALLERES LÚDICOS CARPINTERÍA ceramica

CAMPUS

DEPOSITO

TURISMO

ZONAS SITUADAS EN EL PRIMER PISO (O EN PLANTA BAJA)

BAÑOS

Ingreso principal

Oficina administrativa

zonificación / flujograma

ÁREAS

• TALLER DE CARPINTERÍA

• TALLER DE TEJIDO

• TALLER DE CERÁMICA

medidas del modulo

baños

ingreso principal

salida al campus uní

taller de carpintería

circulación vertical

oficina administrativa

baños

balcón

taller de tejido

circulación vertical

deposito deposito

taller de cerámica

area de secado

deposito

ingreso por el área del parqueo y el atrio

PLANTA ALTA PLANTA BAJA

INGRESO PRINCIPAL RAMPA ASISTIDA Medidas mínimas

1,50 descansos por el radio de giro de la silla de ruedas

1 80 ancho de rampa

- Ubicadas cerca al ingreso principal que vincula a una de las puerta secundarias para llegar al nivel +1 80

- La rampa esta destinada para la circulación de artefactos con ruedas, y silla de ruedas por esa razón posee una pendiente al 11%, de modo que se puedan movilizar de manera asistida

PLANTA BAJA

CIRCULACIÓN

NUCLEO DE CIRCULACION

PEATONAL Ubicación estratégicamente ubicado al centro, tiene como función separa el área de servicio de los talleres lúdicos o permite vincular a la planta alta

ESCALERA ELICOIDAL

Tributo a la escalera de Lina Bo bardi, escalera de madera une lo tradicional y lo moderno en un elemento funcional y simbólico FUNCION/ construcción

- Artesanal

- Circulación vertical

- 32 escalones que transportan del nivel +1.80 al nivel +6.10

INGRESO PRINCIPAL

- Puerta principal del ingreso

Posee una escalera peatonal de 10 escalones de H A que comunican de manera directa el exterior con el interior del edificio.

Comunican del nivel +0 00 al +1 80

ESCALERA EN LOS PASILLOS

Se encuentran en uno de sus contornos que ayudan a circular del estacionamiento a otro ingreso secundario del edificio

FUNCIÓN/ CONSTRUCCIÓN Comunicar dos espacios del exterior con el ingreso secundario

NUCLEO DE

SERVICIOS

NÚCLEO DE BAÑO

El baño multifuncional cuenta con

2 urinarios

2 lavamanos

2 inodoros

1 Pañalera

Destinado al uso mixto

PLANTA BAJA

Destinado principalmente a los talleres lúdicos y la oficina de administración

Puerta corredera de ingreso principal

• Puertas al ingreso de los baños inodoros que se abren hacia afuera

• Posee un shaft de ventilación de 45*45 en forma pentagonal

• El área del baño posee muros de ladrillo y esta hecho con construcción tradicional y posee 2 muros de bahareque que se ubican a los costados de los muros que dan la cara al exterior para que se mimetice con el conjunto de muros exteriores del edificio, ya que es un área húmeda y necesita otro trato mas funcional

ÁREA ADMINISTRATIVA

el área de los talleres lúdicos posee una pequeña oficina de administración que se encarga de realizar labores de control de inscripción de los talleres, y de comunicador informativo de las visitantes

MOBILIARIO

• estante empotrado

• ventanilla de servicios

• escritorio dimensiones

4 1 x 4 1

16 81 m2 área

TALLERES LUDICOS

TALLER DE CERAMICOS

TALLER DE CARPINTERÍA Y TALLADO

Se enseñan técnicas de tallado en madera de Tajocho, la madera tradicional y la que abunda en el lugar que proviene de una palmífera que abunda en San Buenaventura

ÁREAS DENTRO DEL TALLER

• Deposito

• Corte y pegado en seco (prensadora y cortadora de madera)

• tallado de esculturas y carpintería

• destinado a la comunidad y a turistas

• área 132m2

• 14 estudiantes

Se enseñan técnicas de trabajo y manejo de arcilla para la elaboración de vasijas silbadoras o ocarinas en barro, que funcionan gracias a un sistema de agua y ductos dentro del instrumento.

ÁREAS DENTRO DEL TALLER

• Deposito

• Área de secado

• Área de horneado

• Elaboración tradicional

• Elaboración contemporánea

• 14 estudiantes

• área de 132m2

RAMPA ALTA

DE SERVICIOS

Área pintado de hilos y manejo de colores naturales y su elaboración para los telares

Ingreso para artefactos con dos ruedas o como un mirador improvisado.

DEPOSITO GENERAL

FUNCIÓN ESPECIFICA transportar a personas con capacidades diferentes por medio de rampas al 11% de pendiente que permiten la movilización a la planta alta. medidas mínimas

• 1.50 grosor de descansos

• 1.80 de grosor de rampa

• posee la forma de M en el idioma tacana

PLANTA ALTA TALLERES AL AIRE LIBRE
NUCLEO
PROFESOR TEJIDO MARICO DE MEDIO PECHO

TECHOS

Fusión de techos a dos aguas, que juega con sus terminaciones colocada una encima de la otra creando un juego de escamas o alas de una mariposa en pleno vuelo

PLANTA SITIO Y TECHOS

La pendiente de las aguas de 2 techos bajos son de 45 grados de inclinación Estructura metálica y tensores de metal que sostienen al techo Material del techo es de JATATA

A T E R I A L E S

Las caídas del techo están a 35 grados de inclinación la cual permite la circulación del agua de la lluvia al exterior. estructura de madera casi en toda su elaboración excepto por sus uniones metálicas y viguetas de madera y vigas principal de madera

DEPOSITO GENERAL
M
JATATA CECHAS DE MADERA CON UNIONES METALICAS MADERA

FUNDACIONES

Posee dados de zapatas de H.A. en las fundiciones la columna y la zapata, ambas poseen una altura de 3m, de alto, suponiendo que en el lugar sufre de inundaciones y la tierra no es firme o estable por eso la justificación de las alturas de las fundaciones Dado es de 1x1m

PLANTA CIMENTACIÓN

inspirada en las construcciones en elevación para evitar el contacto directo con el suelo y así evitar el ingreso de las aguas en épocas de inundación

La elevación mas baja es de 1,26m, de 1 80 en el ingreso principal y en su parte mas alta en la creciente de la curva de nivel a 2,40 m

Columnas de madera de 30x30

Ubicados estratégicamente a los lados del edificio, para soportar las cargas y el peso de la losa y el techo, posee 2 listones en x incrustados en los lados de las columnas principales para que puedan transmitir las cargas hacia abajo y se distribuyan en el suelo

LOSA
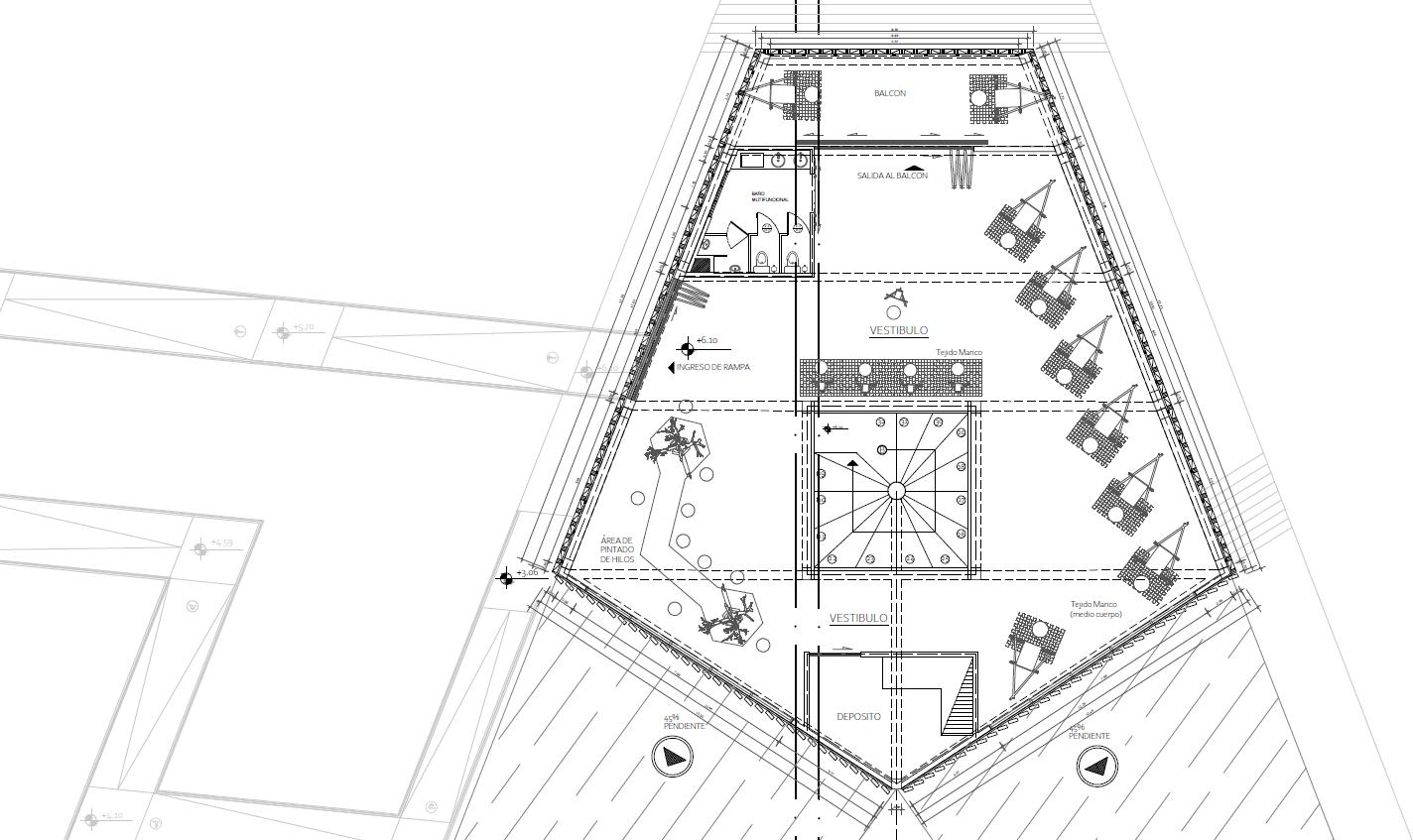
VESTIBULO ACCESOPRINCIPAL PEATONAL +0.00 PLANTABAJA Esc:1:100 BAÑO A' A B' B 1.0 +1.80 INGRESOPRINCIPAL +1.80 INGRESO SECUNDARIO +1.80 S +3.06 VESTIBULO S +3.06 12 13 32 +6.10 +1.80 +1.80 DEPOSITO DEPOSITO TALLERDE CERAMICA TALLERDE CARPINTERIA TALLADO +3.06 +1.80 +1.80 +3.06 ACCESOPRINCIPAL RAMPAS +0.00 +0.82 +1.39 +1.99 +2.52 +5.70 +3.06 +3.56 +4.10 +4.59 +5.17 A B C D E F G H I J K A B D E G I J K 5 6 7 8 9 10 11 25.29 10.18 10.32 0.30 4.04 0.30 0.30 9.95 4.70 0.30 0.30 0.30 0.30 2.96 13.46
PLANTAALTA Esc:1:100 VESTIBULO BAÑO A' A B' B +6.10 VESTIBULO 20 22 23 24 25 26 27 28 29 31 32 +5.70 +3.06 +3.56 +4.10 +4.59 +5.17 A B D E G A B D E G 5 6 7 8 9 10 11 BALCON SALIDAALBALCON TejidoMarico +6.10 INGRESODERAMPA 45% PENDIENTE 45% PENDIENTE ÁREADE PINTADO DEHILOS DEPOSITO TejidoMarico (mediocuerpo) 17.56 12.46 12.60 2.76 3.96 0.30 12.29 0.31 0.95 7.68 3.37 3.77 12.44 0.68 17.61 0.30 0.30 %10
9.54 5.07 5.61 12.19 10.84 10.8 12.2 4.33 4.19 PLANTADECIMENTACION Esc:1:100 A' A B' B A B C D E F G H I J K L M N O P 1 2 3 4 5 6 7 8 9 10 11 7.07 7.05 29.37
PLANTADESITIOYTECHO Esc:1:100 45% PENDIENTE 14.20 14.13 15.19 15.47 10.46 7.56 10.36 9.99 9.41 10.62 45% PENDIENTE 35% PENDIENTE 30% PENDIENTE 30% PENDIENTE 45% PENDIENTE 45% PENDIENTE 30% PENDIENTE 30% PENDIENTE 35% PENDIENTE
2 N.T.P.+3.06 N.T.P.+1.80 N.T.P.+/-0.00 N.T.P.+6.10 N.T.P.+13.51 1 3 A DB E
10 4
CORTEA-A' Esc:1:100
G C F 11GH
CORTEB-B' Esc:1:100 B N.T.P.+3.06 N.T.P.+1.80 N.T.P.+/-0.00 N.T.P.+6.10 N.T.P.+13.51 DG987G C8 K J 6 A 11

DETALLEDERAMPA

CimentaciónconposteselevalasColumnasdeAcero. sosteneruna rampadechapametalica,queseelevahastaelnivel+6.10m.

ZAPATASAISLADASRÌGIDAS BLOQUERECTODEH.A. CIMENTACIONCONPOSTES Cimentaciónconposteselevalasestructurasdemaderaporarribadel terrero,paraelevarladelsueloyasievitarinundacionesdentrodel edificio. 1.00 1.00 1.00 0.50 PilardeMadera Piezametalicadeunion pilarmacizo MacizodeHormigon Piezadeaceroparaunir elpilardemaderaconel hormigondelcimiento ANCLAJEENMACIZODEHORMIGON UNIONARTICULADA FUNDACIONES BloquedeHormigon Rellenoapisonadodearena,
Solerasdemetalgalvanizado
Losasdehormigon Vigasdehormigon ColumnasdeMadera +1.80 ACCESOPRINCIPAL RAMPAS +0.82 +1.39 +1.99 +2.52 +5.70 +3.06 +3.56 +4.10 +4.59 +5.17 20.99 7.99 2.00 11.00
gravarocatrituradalimpia
paraunmejoranclado
CANALETAS CUADRADA MURO CANALETADEACERO GALVANIZADO TECHOINCLINADO JATATA UNION DETALLESCONSTRUCTIVOS

MUROQUIMCHA

MUROQUIMCHA REVOQUEDETIERRA

UNIONES/ARMADORES ENCADENADODECLAVOS

MADERA

ESTRUCTURADEBARRASDEMADERAS BAMBUOCHARROS

PILARES

PILARESDEMADERA,SOSTENDELMURO

SINREVOQUE

VISTANATURAL/ACABOSEPRIMERO

E L E V A C I O N F R O N T A L
E L E V A C I Ó N I Z Q U I E R D A
E L E V A C I Ó N D E R E C H A
E L E V A C I O N T R A S E R A

ESC.1:100

Vegetaciondellugar Psidiumguajava VegetacionPropuesta ARBOLDEGUAYABO Attaleaphalerata Motacu Ceibaspeciosa Toborochi C. coggygria CotinoPurpura Tabebuiachrysantha TajiboAmarillo Mobiliariodellugar Luminariasconbateriasolar - 2cabezas - cabeza Bancadeconcreto Basurerosreciclables - Plastico - organico - Papel Recorridopetonal Suikinkutzu 201.09 87.52 84.37 71.36 75.77 113.50 INGRESOPRINCIPAL AV.PANDO 124.44 26.61 PALMERAS EuterpeprecatoriaMart.1842 Asaí Cocosnucifera Coco ARBOLESFRUTALES ARBOLESFLORALES PLANTASORNAMENTALES PLANTASREPELENTES Ceibaspeciosa OrquideaLimon Eucharisamazonica LiriodelAmazonas Rutachalepensis RudaMacho PLANTASTREPADORAS Ipomoeaquamoclit Cundeamor Wisteriasinensis Glicinaceleste TEXTURAS LOSASDEHORMIGONPARAJARDIN 132.59 VESTIBULO ADMINISTRATIVA PEATONALACCESOPRINCIPAL MUTIFUNCIONAL +1.80SECUNDARIO SECUNDARIO +3.06 VESTIBULO +3.06 DEPOSITO DEPOSITO CERAMICA TALLER TALLADOCARPINTERIA +3.06 +3.06 PRINCIPAL +3.06 CALLEABAROA CALLELIBERTAD
AVENIDA 16 DE JULIO
HOSPITALDE SEGUNDONIVEL
PLANIMETRIADECONJUNTOPAISAJISTICO
Vegetaciondellugar Psidiumguajava VegetacionPropuesta ARBOLDEGUAYABO Attaleaphalerata Motacu Ceibaspeciosa Toborochi C. coggygria CotinoPurpura Tabebuiachrysantha TajiboAmarillo Mobiliariodellugar Luminariasconbateriasolar - cabezas - 1cabeza Bancadeconcreto Basurerosreciclables - Plastico - organico - Papel Recorridopetonal Suikinkutzu INGRESOPRINCIPAL AV.PANDO PALMERAS EuterpeprecatoriaMart.1842 Asaí Cocosnucifera Coco ARBOLESFRUTALES ARBOLESFLORALES PLANTASORNAMENTALES PLANTASREPELENTES Ceibaspeciosa OrquideaLimon Eucharisamazonica LiriodelAmazonas Rutachalepensis RudaMacho PLANTASTREPADORAS Ipomoeaquamoclit Cundeamor Wisteriasinensis Glicinaceleste TEXTURAS LOSASDEHORMIGONPARAJARDIN VESTIBULO ADMINISTRATIVA PEATONALACCESOPRINCIPAL MUTIFUNCIONAL +1.80 SECUNDARIO INGRESO VESTIBULO +3.06 +1.80 DEPOSITO DEPOSITO TALLER CERAMICA TALLER TALLADOCARPINTERIA +3.06 RAMPASACCESOPRINCIPAL +0.00 +0.82 +1.39 +1.99 +2.52 +5.70 +3.06 +3.56 +4.59 +5.17 PLANTABAJAAMBIENTADACONAREAS EXT.YPAISAJISMO ESC.1:100 ESTACIONAMIENTO 45% 45% CORTEA-A` A A` ISOMETRICA ELEVACIONFRONTAL ESTACIONAMIENTO DADODEH.A. BAJANTES/CANALETA ACEROGALBANIZADO

PAISAJISMO RECORRIDO PAISAJISTICO

PAISAJISMO RECORRIDO PAISAJISTICO

PAISAJISMO RECORRIDO PAISAJISTICO

PAISAJISMO RECORRIDO PAISAJISTICO

PAISAJISMO RECORRIDO PAISAJISTICO

PAISAJISMO RECORRIDO PAISAJISTICO

PAISAJISMO RECORRIDO PAISAJISTICO

PAISAJISMO RECORRIDO PAISAJISTICO

PAISAJISMO RECORRIDO PAISAJISTICO

PAISAJISMO RECORRIDO PAISAJISTICO

PAISAJISMO RECORRIDO PAISAJISTICO

PAISAJISMO RECORRIDO PAISAJISTICO

PAISAJISMO RECORRIDO PAISAJISTICO

PAISAJISMO RECORRIDO PAISAJISTICO

PAISAJISMO RECORRIDO PAISAJISTICO

PAISAJISMO RECORRIDO PAISAJISTICO

PAISAJISMO RECORRIDO PAISAJISTICO

PAISAJISMO RECORRIDO PAISAJISTICO

PAISAJISMO RECORRIDO PAISAJISTICO

A X O N O M E T R Í A A D E C O N J U N T O
A X O N O M E T R Í A A D E C O N J U N T O
A X O N O M E T R Í A A D E C O N J U N T O
A X O N O M E T R Í A A D E C O N J U N T O
A X O N O M E T R Í A E S T R U C T U R A L

TECHO DE JATATA

ESTRUCTURA DE MADERA VIGAS DE 30X30 UNIONES METALICOS / DESMONTABLE VIGUETAS DE MADERA DE 20X15

VIGAS PRINCIPALES DE MADERA TIPO: WARREN 15X40

CELOSIAS DE MADERA/ MOSQUITERO STRUCTURA METALICA QUE SE MONTA ENCIMA, TIPO PANEL SANDWICH

LOSAS DE HORMIGON ARMADO Y PISO MADERA

COLUMNAS DE MADERA DE 30X30 DE 5 A 5.50 DE DSTANCIA

ESTRCUTURA MADERA, EN X. UBICADOS A LOS EXTREMOS DE CADA COLUMNA COMO TRASMISOR DE CARGA

LOSA Y VIGAS DE FUNDACION DE HORMIGON ARMADO

CIMENTACION CON POSTES/ ZAPATAS AISLADAS DE BLOQUE RECTO

CANALETAS/BAJANTES DE ACERO

GALVANIZADO

A X O N O M E T R Í A E S T R U C T U R A L
A X O N O M E T R Í A E S T R U C T U R A L
ELE. IZQUIERDA ELE. FRONTAL ELE. DERECHA ELE. TRASERA AXONOMETRICA PLANTA DE TECHOS

AXONOMETRICA

A X O N O M E T R Í A E S T R U C T U R A L
ELE. FRONTAL
GRAN ELEVACIÓN
ELE. TRASERA
A X O N O M E T R Í A E S T R U C T U R A L

TALLER DE CARPINTERIA Y

TALLADO EN MADERA CHONTA

P E R S P E C T I V A S I N T E R I O R E S
P E R S P E C T I V A S I N T E R I O R E S
TALLER DE CERAMICA TAKANA INSTRUMENTOS MUSICALES / OKARINAS

TALLER DE TEJIDO TACANA

TEJIDO MARICO

E R S P E C T I V A S I N T E R I O R E S
P

CIRCULACION VERTICAL ESCALERA ELICOIDAL DE MADERA DE CHONTA

P E R S P E C T I V A S I N T E R I O R E S

LATERAL DERECHA /FRONTAL

P E R S P E C T I V A S E X T E R I O R E S
P E R S P E C T I V A S E X T E R I O R E S
GRAN FRONTAL/ INGRESO PRINCIPAL

APRECIACIÓN DE LAS ESTRUCTURAL TECHOS/ RAMPAS

P E R S P E C T I V A S E X T E R I O R E S

LATERAL DERECHA /FRONTAL

P E R S P E C T I V A S E X T E R I O R E S

Turn static files into dynamic content formats.

Create a flipbook
Issuu converts static files into: digital portfolios, online yearbooks, online catalogs, digital photo albums and more. Sign up and create your flipbook.