Architecture Portfolio - Anandanti

Page 1

Portfolio S e l e c t e d p r o j e c t s 2 0 2 02 0 2 2 ANANDANTIRST@GMAILCOM Anandanti Restu Bumi LINKEDINCOM/IN/ANANDANTIRESTU Architecture & Urban

PERSONAL INFO

ANANDANTI RESTU BUMI TUWUH HADI

Bandung, Indonesia - anandantirst@gmail com

Hello! I'm Anandanti, I graduated from Architectural Engingeering Education at Indonesian Education University (UPI). I have interest in architecture and urban design I learned how to view issues and solutions holistically through architecture I also believe that architecture has the power to be a medium of change in society. I'm enthusiastic and dedicated to enhancing my capacity for creativity, vision, and sense of design

EDUCATION

2018 - 2022 2015 - 2018

Indonesian Education University (UPI)

Architectural Engineering Education

Department of Architectural Educational Engineering

Faculty of Technology And Vocational Education (GPA : 3 80 /4 00)

Senior High School

SMAN 1 Baleendah, Bandung

linkedin com/in/anandantirestu

SKILLS

HARD SKILLS

AutoCAD

Sketchup

Enscape

Adobe Photosop

Adobe Illustrator

Adobe Premier Pro

Microsoft Office

EXPERIENCE

WORK EXPERIENCE

2022 - 2023

6th month

PT Multi Karadiguna Jasa - Project Coordinator

Coordinated the DED project

Created the report of the project

Supervised the team work

SOFT SKILLS

Bahasa Indonesia

English Team work

Creative Spirit

Fast Learner

Communication

Detail Oriented

Strong Analytical

COMPETITION

Mosque and Bale Wargi Design

Competition Yahintara x Oki Kusprianto AWARD (2021)

Participant

Dago Learning Center Bank BTN Design Competition (2022)

1st Runner UP

CERTIFICATION

2022 Green Open Space Planner

Kementerian PUPR

2021 - now

2021

9th month

Freelance Architect

PT. Anugerah Vijaya Kusuma - Intern

Created masterplan of Ciater Tourism Area

Developed the DED and 3D Modelling design

Created design presentations

Supervised the first construction stages

2021

Indonesian Education University - Subang

Masterplan team

Responsible in masterplan design

Created post production masterplan for proposals

ORGANIZATIONAL EXPERIENCE

2019 - 2020

KMA - Kridaya

Staff of Public Relations Division

2020 - 2021

KMA - Kridaya

Head of Media and Information Division

2020

Architecture Expo (AREXPO)

National Contest & Exhibitions

Staff of Publication Division

2022

Architecture Expo (AREXPO)

National Contest & Exhibitions

Steeting Committee

Profile | Anandanti Restu Bumi T.H.
contents 01 Paradise Regency 03 Dago Learning Center Bank BTN 04 Eco-tourism Planning Project Taman Buah Ciater Contents 05 Eco-tourism Planning Project Ciater Leisure Park Academic Project Competition Profesional Project Internship Project 06 Communal Space Planning Highschool Canteen Profesional Project 02 Polbangtan Purbalingga Academic Project

ACADEMIC PROJECT

blok kavling rumah tipe kecil

boulevard area

blok kavling rumah tipe sedang

blok fasilitas sosial & fasilitas umum

Studio Perancangan Arsitektur 3

Team : Anandanti, Rafa, Zain

01 Paradise Regency

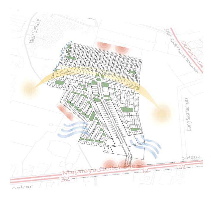
LOKASI

Jl. Soekarno Hatta No.853, Cipadung Wetan, Panyileukan, Bandung Luas site 20 77 Ha | Jumlah penduduk Kec Panyileukan 39 339 jiwa

Perumahan ini berda di lokasi urban atau perkotaan, dengan memanfaatkan lahan di tengah kota besar Berada di kawasan yang cukup padat penduduk, berbatasan dengan pabrik, jalan raya, tanah lapang, dan dekat dengan universitas serta pusat perbelanjaan

Pengerjaan dilakukan secara berkelompok Adapun peran saya dalam project ini adalah dalam pembuatan analisis, siteplan, masterplan, design blok rumah tipe kecil, 3D, dan interior

tipe besar
blok kavling rumah
Paradise Regency | Studio Perancangan Arsitektur 3

Banjir

Kemacetan

Banjir dan kemacetan di Jl..

Raya Sukarno Hatta menjadi salah satu permasalahan pada site. Oleh itu perlu adanya perencanaan alternatif pada akses masuk dan keluar site Perencanaan drainase dan pengolahan air limbah juga menjadi concern dalam perencanaan Dengan perencanaan irigasi dan area resapan pada site yang diharapkan dapat mengurangi potensi banjir

Macro Site Analysis

accessibility, places

Site Iconic places (Pasar Gedebage, Masjid Al-Jabar)

Traffic jam potention

Flood potention Rivers Government service

Jumlah Penduduk Kec. Panyileukan

Tahun 2019 39 277 jiwa

Primary road - Bypass Secondary road Alternative access Stasion School and University Railway

blok rumah sedang

drainase

ruang hijau

boulevard

blok rumah besar blok rumah kecil

sumber kebisingan

5.52 km2

fasos fasum Perempuan Laki laki
Paradise Regency | Studio Perancangan Arsitektur 3
Permasalahan sekitar site

DETAIL JALAN

SKYLINE

Tampak Barat Tampak Utara Jalan Lokal Sekunder 1 Jalan Lokal Sekunder 2
Paradise Regency | Studio Perancangan Arsitektur 3
Jalan Lokal Sekunder 3

POLA JALAN

Jalan lokal sekunder 3

Berdasarkan perhitungan luas lahan yang dilakukan, perumahan dibagi menjadi tiga fungsi, yaitu:

pemukiman Rumah kecil tipe 54/90

Rumah kecil tipe 100/90

Rumah sedang tipe 68/113

Jalan lokal sekunder 2

Rumah sedang tipe 81/135

Rumah besar tipe 81/135

Rumah besar tipe 128/135

Jalan lokal sekunder 1

fasilitas

sosial Sekolah Paud

Gedung Serbaguna

fasilitas

umum Masjid

Mushola

Sarana Olahraga

Pertokoan

KETERANGAN

Jalan lokal sekunder 1 : 15 m

Jalan lokal sekunder 2 : 12 m

Jalan lokal sekunder 3 : 6 m

Paradise Regency | Studio Perancangan Arsitektur 3

Denah Tipe 54/90

Tampak Samping

Tipe rumah 54/90 ini termasuk ke dalam tipe kavling kecil Memiliki 1 lantai dengan dua kamar tidur, km/wc, ruang tamu, ruang makan, daput dan dilengkapi dengan carport, teras serta taman depan dan taman belakang Rumah tipe kecil ini diperuntukkan untuk keluarga kecil yang terdiri dari 3-4 orang Taman yang terletak dibelakang rumah berfungsi sebagai pencahayaan dan sirkulasi untuk ruangan bagian belakang, namun juga dapat dimanfaatkan apabila ingin dilakukan perluasan kedepannya

Tampak Depan
Paradise Regency | Studio Perancangan Arsitektur 3
RUMAH TIPE KECIL 54/90

RUMAH TIPE KECIL 100/90

Tipe rumah 54/90 ini termasuk ke dalam tipe kavling kecil Memiliki 1 lantai dengan dua kamar tidur, km/wc, ruang tamu, ruang makan, daput dan dilengkapi dengan carport, teras serta taman depan dan taman belakang Rumah tipe kecil ini diperuntukkan untuk keluarga kecil yang terdiri dari 3-4 orang Taman yang terletak dibelakang rumah berfungsi sebagai pencahayaan dan sirkulasi untuk ruangan bagian belakang, namun juga dapat dimanfaatkan apabila ingin dilakukan perluasan kedepannya

Tampak Samping Denah Lantai 1 Tampak Depan
Paradise Regency | Studio Perancangan Arsitektur 3
Denah Lantai 2
INTERIOR Paradise Regency | Studio Perancangan Arsitektur 3

ACADEMIC PROJECT

01 Polbangtan Purbalingga

Academic Project

Studio Perancangan Arsitektur 4

LOKASI

Jl. Raya Bojong No. 60, Bojong, Toyareka, Kemangkon, Kabupaten Purbalingga Jawa Tengah

Luas site 11 Ha| KDB 30%

Dilatarbelakangi dengan permasalahan yang ditemukan yaitu kurangnya pendidikan tinggi di Kabupaten Purbalingga yang menyebabkan banyaknya lulusan SMA/SMK yang tidak melanjutkan pendidikannya ke perguruan tinggi

Didukung dengan potensi daerah pada komoditas tanaman pangan di Purbalingga Hasil pertanian unggulan Purbalingga diantaranya padi, dukuh, jagung, singkong, manggis, dll Maka diperlukan sarana pendidikan untuk mengembangkan hasil pertanian tersebut berupa Politeknik Pembangunan Pertanian (Polbangtan) di Kabupaten Purbalingga

Polbangtan Purbalingga | Studio Perancangan Arsitektur 4
Team : Anandanti, Rafa, Nabila

Population Analysis

Sumber: Purbalingga dalam Angka 2020

Berdasarkan data penduduk, mayoritas penduduk Kabupaten Purbalingga memiliki pekerjaan dalam bidang Pertanian, Kehutanan, dan Agriculture

Sumber: Purbalingga dalam Angka 2020

Jumlah perguruan tinggi di Kabupaten Purbalingga baik negeri maupun swasta belum banyak jumlahnya. Kemangkon merupakan salah satu daerah yang belum terdapat perguruan tinggi.

Sumber: Purbalingga dalam Angka 2020

Pendidikan anak di Kabupaten Purbalingga berdasarkan Angka Partisipasi Kasar (APK) pada tahun 2019 di Jenjang Pendidikan SMA/SMK/MA sebesar 67,63.

Dengan adanya kebutuhan perguruan tinggi di daerah Kemangkon, didukung dengan Angka Partisipasi Kasar Pendidikan, serta potensi daerah pada bidang pertanian. Maka, dibutuhkan adanya Perguruan Tinggi di daerah tersebut, yaitu Polbangtan Purbalingga.

Polbangtan Purbalingga | Studio Perancangan Arsitektur 4

Berada di jalan primer, yaitu Jl Raya Toyareka, Kemangkon, Purbalingga Lokasi tapak tidak jauh dari pusat kabupaten, yaitu sejauh 3 7 km dari Alun-Alun Kab Purbalingga

Kondisi tapak memiliki kontur yang rata Memiliki kondisi tanah yang subur, dimana eksisting dan area sekitar tapak merupakan lahan pesawahan

Berada di kawasan produktif, dimana terdapat area pemukiman, area bisnis, dan pendidikan di sekitar tapak.

Polbangtan Purbalingga | Studio Perancangan Arsitektur 4
Batas Timur Pesawahan Batas Utara SMK Muhamadiyah 3 masjid Batas Selatan Puskesmas, Pasar RTH Bojong Batas Barat SDN 1 Bojong Pemukiman

Macro Site Analysis

accessibility, places

Behavior Setting

Primer and tras

Ruang formal dibuat tertutup dengan buaan kaca yang lebar sebagai penghubung dengan ruang luar

Membuat ruang formal dan informal yang terintegrasi satu sama lain

Membuat posisi bangunan secara terpusat, sehingga dapat memudahkan pengguna dalam berkegiatan

Ruang informal dibuat terbuka tanpa sekat, sehingga kebutuhan ruang gerak lebih luas dan fleksibel

Penanaman poshon sepanjang jalan yang memiliki fungsi sebagai peneduk dan penunjuk arah.

ngtan Purbalingga | Studio Perancangan Arsitektur 4 Polbangtan Purbalingga | Studio Perancangan Arsitektur 4
Public Places School
Site River
Bus stop
Membagi zonasi berdasarkan kegiatan pengguna di pendidikan tinggi.

Micro Site Analysis & Synthesis

site, circulation, zoning, mass

Site

Tapak menghadap ke timur dan barat, dengan kecepatan angin sekitar 6mph. Tapak berada di iklim yang cukup lembab dengan kelembaban 60% Suhu rata-rata sekitar 30-33°C

Zoning

Area publik ditempatkan di depan, untuk memudahkan akses pengguna

Area semi publik ditempatkan di tengah sebagai pusat dari kegiatan

Area servis ditempatkan di samping agar dapat mudah diakses dari area publik dan semi publik

Area private ditempatkan di belakang agar tidak terganggu dengan kegiatankegiatan lainnya

Penempatan Massa Bangunan Sirkulasi

Sirkulasi pada tapak mengadaptasi dari bentuk arah mata angin, yaitu terpusat Sehingga dengan bentuk sirkulasi ini dapat memusatkan kegiatan-kegiatan di Polbangtan ini Selain itu juga menggunakan sirkulasi linear sebagai pengarah menuju pusat

Penempatan bangunan mengadaptasi dari bentuk arah mata angin

- 4 arah utama, yaitu timur, barat, utara dan selatan diadaptasi menjadi bangunanbangunan utama yaitu rektorat, gedung perkuliahan, perpustakaan, dan gor

- 4 arah lainnya, yaitu tenggara, barat daya, barat laut, dan timur laut diadaptasi menjadi bangunan-bangunan pendukung, yaitu klinik, lapangan olahraga, kantin, dan masjid

Polbangtan Purbalingga | Studio Perancangan Arsitektur 4 Polbangtan Purbalingga | Studio Perancangan Arsitektur 4
1 2 3 4 9 5 6 15 10 7 11 8 13 12 14 14
Pos keamanan Gedung Rektorat Masjid
KETERANGAN
2 3 4 5
Amphiteather Klinik
1
6 Gedung Olahraga 7 Gedung Perkuliahan 8. Kantin 9 Perpustakaan 10 Parkir 11 Lapangan Sepakbola 12 Kandang 13. Greenhouse 14 Sawah dan Kebun
Polbangtan Purbalingga | Studio Perancangan Arsitektur 4
15 Danau

Gedung Olahraga

Gedung olahraga sebagai salah satu sarana penunjang bagi pengguna untuk melakukan aktivitas olahraga. Di dalamnya terdapat beberapa area lapangan yang dapat digunakan untuk berbagai cabang olahraga. Selain itu, di dalamnya juga terdapat beberapa ruangan penunjang lainnya seperti area servis, kantor pengurus, dan area penonton yang bertingkat. Memiliki banyak bukaan, sehingga cahaya matahari dan sirkulasi udara dapat masuk kedalam gedung

Polbangtan Purbalingga | Studio Perancangan Arsitektur 4

Gedung Perkuliahan

|
Arsitektur 4
Polbangtan Purbalingga
Studio Perancangan

Gedung perkuliahan terdiri dari empat laintai dan rooftop Gedung ini terbagi menjadi dua sayap, yaitu Sayap Utara dan Sayap Selatan yang dihubungkan dengan skybridge di lantai 2 Adanya single koridor pada setiap bangunan membuat sirkulasi dan pencahayaan alami setiap ruang menjadi lebih baik

Gedung perkuliahan ini mencakup lobby, ruang dosen, ruang prodi, ruang kaprodi, ruang rapat, ruang seminar, ruang kelas, ruang praktik dan laboratorium, ruang auditorium, dan ruangan penunjang lainnya

Polbangtan Purbalingga | Studio Perancangan Arsitektur 4
Dago Learning Center Bank BTN | Competition COMPETITION

02

Architecture Competition

1st Runner Up

TEAM Anandanti, Anggun, Andy, Fadia

Dago Learning Center Bank BTN

LOKASI

Dago Pakar, Desa Ciburial, Kabupaten Bandung Barat

Luas site 30 285 m² | KDB 20%

Dago Learning Center merupakan pusat pembelajaran milik Bank BTN yang berlokasi di daerah dataran tinggi Oleh karena itu, lokasi berada dilahan yang berkontur. Sehingga perlu adanya penyesuaian desain dengan kondisi eksisting site

Dalam project sayembara ini saya berperan dalam membuat analisis, digitalisasi, post production, serta layouting

Dago Learning Center Bank BTN | Competition

MACRO SITE ANALYSIS

accessibility, places

Site

Public places and tourism area Schools

Main access from Dago

Transportation road

Alternative access from Punclut Rivers

Dago Learning Center Bank BTN | Competition

SITE ANALYSIS

zone, green area, circulation, orientation, countour

ZONASI

Membagi zonasi ke dalam 4 bagian, yaitu zona pendidikan, zona hunian, zona servis, dan zona publik Zona pendidikan memiliki akses langsung dengan zona lainnya untuk mendukung kegiatan pembelajaran

RUANG HIJAU

Site berada pada area lembah sehingga memanfaatkan lahan terbuka sebagai ruang hijau yang juga berfungsi sebagai area resapan

SIRKULASI

Memisahkan akses masuk dan keluar untuk kendaraan dan pedestrian. Site memiliki dua akses yaitu dari JL Bukit Pakar Timur sebagai akses utama, dan Jl Pakar Barat sebagai akses pendukung yang berbatasan langsung dengan hunian.

ORIENTASI

Site memiliki orientasi ke arah barat dan timur sehingga perlu diperhatikan penempatan bangunan dan bukaan yang ada

POTONGAN KONTUR

Pemanfaatan kontur lahan yang berbentuk lembah dengan proses cut and fill serta orientasi siteplan mengikuti kontur lembah

Dago Learning Center Bank BTN | Competition

DESIGN ISSUES

Accessibility

Dapat diakses oleh pejalan kaki dan kendaraan pribadi maupun transportasi publik Tersedia lahan parkir untuk kendaraan dari luar

Public Space

Tersedianya area public space baik indoor maupun outdoor sebagai pendukung kegiatan

USER

SITE CONCEPT PHOTOSYTHESIS

Fotosintesis menggambarkan proses pendidikan yang terjadi di BTN Learning Center Sebagaimana akar menghasilkan air dan zat untuk daun berfotosintesis Bank BTN memberikan ilmunya kepada pelajar di BTN learning center untuk dapat berkembang dan bermanfaat bagi banyak orang

Environment

Dengan pertimbangan lahan yang cukup berkontur, penempatan bangunan serta akses jalan sangat diperhatikan

Commercial Tersedianya beberapa titik komersial yang dapat di akses oleh pengguna

Visual

Memanfaatkan view eksisting berupa lembah dan pepohonan yang menjadi elemen dalam perencanaan

Dago Learning Center Bank BTN | Competition
Public Student Teacher Communities Workers

MAIN BUILDING CONCEPT

Gedung pertemuan diambil dari bentuk Logo bank BTN yang memiliki bentuk segienam seperti sarang lebah Bentuk ini mengisyaratkan kegiatan menabung sebagaimana lebah menyimpan madunya

Massa bangunan berbentuk panggung agar fleksibel dengan lahan yang berkontur

Dago Learning Center Bank BTN | Competition

OCCUPANCY CONCEPT

Bentuk segitiga pada hunian melambangkan ilmu, hukum, dan agama Pada desain ini segitiga dipilih karena sesuai dengan fungsinya sebagai learning center

Dago Learning Center Bank BTN | Competition

SUPPORTING FACILITIES

Sesuai dengan tema yang digunakan pada bentuk site yaitu FOTOSINTESIS, dalam prosesnya air merupakan unsur yang sangat penting Oleh karena itu, bentuk bangunan-bangunan fasilitas penunjang mengusung konsep WATER DROPLET atau tetesan air yang terlihat dari bentuk atapnya Dengan menggunakan struktur cangkang pada atapnya, bangunan dapat memiliki area yang luas

Dago Learning Center Bank BTN | Competition

ENTRANCE AREA

OPEN SPACE

Ruang terbuka tersebar di berbagai area Berfungsi sebagai area penghijauan, resapan, tempat berkumpul, dan fasilitas terbuka lainnya Terdapat beberapa tanaman dan tempat duduk sebagai penunjang kegiatan pengguna

MAIN BUILDING

Merupakan bangunan awal yang dimasuki oleh pengguna Di dalamnya terdapat lobby, area resepsionis, dan kantor pengelola Bangunan ini berada di area kontur yang paling tinggi, sehingga terlihat pemandangan lembah dan bangunan learing center di s

Terdapat dua area entrance, yaitu terletak di Jl Bukit Pakar Timur dan Jl Pakar Barat Area entrance utama terletak di Jl Bukit Pakar Timur Teradpat beberapa fasilitas penunjang di area entrance tersebut, diantaranya area parkir, ATM Center, drop off, dan bangunan utama
Dago Learning Center Bank BTN | Competition

Center Bank BTN

KETERANGAN :

1 GEDUNG ENTRANCE & R KARYAWAN
2 PLAZA
3 AULA (BESAR & KECIL) 4 RUANG KELAS
5 LAPANG TENIS
6. KOLAM RENANG
ENTRANCE
7. GEDUNG OLAHRAGA 8. RUANG TERBUKA 9 RESTORAN 10 HUNIAN (4X5) 11 HUNIAN (5X5) 12 HUNIAN (6X5) 13 PARKIRAN 14 SECOND
Ruang Kelas Aula ATM Center
Dago Learning Center Bank BTN | Competition
Gedung Olahraga
PROFESIONAL PROJECT

03

Eco-tourism Planning

TEAM Anandanti, Maya

Taman Buah Ciater

LOKASI

Jalan Raya Ciater, Subang, Jawa Barat Luas site 7 1 Ha

Taman Buah Ciater terletah di area pegunungan dengan kondisi lahan eksisting yaitu area kebun teh Berada di area yang berkontur, taman buah ini berfungsi sebagai tempat wisata dan tempat penelitian

Terdapat beberapa kebun buah di antaranya, kebun apel, kebun anggur, kebun alpukat, kebun durian, kebun jambu, kebun dukurh, kebun kelengkeng, dan kebun jeruk. Selain area perkebunan terdapat pula area komersial, danau retensi, playground, menara pandang, dan beberapa fasilitas lainnya.

Terdapat dua akses masuk, yaitu dari arah Selatan dan Utara. Pembagian akses mmasuk tersebut dilakukan untuk meminimalisisr adanya antrean pengunjung apabila terjadi penumpukan pengunjung terutama di hari libur

Taman Buah Ciater | Ecotourism Planning

MACRO SITE ANALYSIS

MICRO SITE ANALYSIS zone, green area, circulation, orientation, countour

Study area
transportation
accessibility, tourism,
Site
Taman Buah Ciater | Ecotourism Planning
Tourism area Primary Road Transportation road Alternative road access River
Main entrance Second entrance Parking & commercial area Green area Public Green area Service Communal area Playground Semi public Jl Raya Ciater Jalan Lokal N Vehichle Pedestrian, shuttle Circulation

DATA

Berdasarkan data statistik BPS 2019, jumlah kunjungan wisatawan ke objek wisata khususnya di Kota Subang sebesar 1080895 wisatawan lokal Namun hal tersebut tidak menutup kemungkinan adanya wisatawan yang berasal dari mancanegara terlebih lagi dengan kemudahan akses menuju Kota Subang

Sumber : Badan Pusat Statistik Jawa Barat 2019

Populasi Pekerja di Kota Subang Tahun 2018

PLANTS SELECTION

Lokasi site yang berada di dataran tinggi dengan iklim tropis sehingga perlu pemilihan tanaman yang sesuai dengan suhu dan kondisi tanah di lokasi Dengan tetap mempertahankan tanaman eksisting, salah satunya tanaman teh.

Nanas menjadi salah satu ikon Kota Subang, sehingga banyak lahan di Kota Subang yang dijadikan area pertanian maupun perkebunan Begitu pula dengan lapangan pekerjaan pada bidang agrikultur yang cukup tinggi Hal tersebut menjadi salah satu potensi yang dapat mendukung perencanaan Ekowisata ini

Sumber : Subang Dalam Angka 2019

USER

CONCEPT

Nodes Contour

Didasarkan pada tujuan perencanaan area wisata sebagai ekowisata, bentuk daun diambil sebagai konsep pola jalan memiliki bentuk dasar yang dinamis, pola tersebut cocok dengan site yang cukup berkontur dengan memadukan beberapa bentuk daun sebagai batas dari setiap kebun, serta penambahan nodes sebagai pusat rekreasi

Local Tourist Domestic Tourist Researcher Communities Workers
Taman Buah Ciater | Ecotourism Planning All Age

Taman Buah Ciater diperuntukkan untuk semua kalangan baik anak kecil hingga dewasa Meskipun eksisting lahan cukup berkontur, jalan tetap dibuat landai untuk kenyamanan pengunjung Jalan juga dibuat interaktif dengan menambahkan beberapaa spot foto dan lorong untuk beberapa tanaman merambat, salah satunya pada Lorong Buah Markisa tersebut.

Terdapat beberapa fasilitas ikonik, salah satunya adalah menara pandang. Terletak di bagian kontur tertinggi, wisatawan dapat menikmati seluruh pemandangan di Taman Buah ini

Planning
Taman
Buah Ciater | Ecotourism
Menara Pandang Kebun Markisa Kebun Apel Gazebo

Sarana - sarana penunjang lainnya seperti gedung penelitian yang dapat digunakan sebagai tempat pengembangan bidang perkebunan Kemudian resto yang memiliki gazebogazebo khusus yang menghadap ke lembah, sehingga dapat menikmati makanan dengan pemandangan yang indah Adapula area servis yang dapat digunakan oleh wisatawan yaitu toilet umum yang tersebar di beberapa titik dan mushola Di area parkir, terdaapat gedung komersil atau ruko yang dapat di sewa sebagai tempat berjualan oleh-oleh atau lainnya

Taman Buah Ciater | Ecotourism Planning
Gedung Penelitian Resto Toilet dan Mushola Gedung Komersil

Ciater Leasure Park

LOKASI

Jalan Raya Ciater, Subang, Jawa Barat

Luas site 17 Ha

Ciater Leasure Park berada di daerah dataran tinggi Ciater. Memiliki view lembah dan perkebunan teh, Ciater Leasure Park menghadirkan area wisata dan penginapan

Terdapat beberapa wisata yang ditawarkan, diantaranya wisata Broadway, Adventure Park, Park of Lights, Resto and Meeting Room, Cottage, dan Glamping Dilengkapi pula dengan fasilitas sosial dan fasilitas umum untuk mendukung aktivitas di kawasan wisata

Dengan lahan yang cukup berkontur, akses masuk dibuat dari dua sisi Hal tersebut dilakukan untuk mempermudah bus maupun mobil untuk masuk kedalam area wisata

Dalam project ini, saya berperan dalam pembuatan proposal beauty contest Melakukan survey lapangan, pengukuran, analisis, design, serta post production

Ciater Leisure Park berada di lokasi yang strategis Dekat dari Kota Bandung dan Subang Memiliki akses yang strategis baik dari Tol maupun Bandara

TUJUAN PEMBANGUNAN

1

Attraction

menjadi objek wisata yang memberikan

keindahan, keunikan atau

nilai yang dimiliki serta

ciri khas tersendiri yang

dimiliki oleh objek wisata

yang dapat membuat

wisatawan tertarik untuk

mengunjunginya

2

Access

menyediakan

kemudahan untuk para wisatawan berupa

tersedianya fasilitasfasilitas transportasi

penunjang perjalanan

dan sistem komunikasi

yang memadai

3

Amenity

tersedianya fasilitas pendukung atau akomodasi untuk para wisatawan yang dapat memberikan kemudahan dan kenyamanan bagi para wisatawan.

Berdasarkan data statistik BPS 2019, jumlah kunjungan wisatawan ke objek wisata khususnya di Kota Subang sebesar 1080895 wisatawan lokal Namun hal tersebut tidak menutup kemungkinan adanya wisatawan yang berasal dari mancanegara terlebih lagi dengan kemudahan akses menuju Kota Subang.

Sumber : Badan Pusat Statistik Jawa Barat 2019

4

Ancillary

berperan sebagai salah

satu lembaga yang

membantu dalam proses

perkembangan wisata

baik itu dalam segi

penyediaan fasilitas

penunjang pariwisata, hingga pengendalian

terhadap dampak

lingkungan

5

Alternatif

memberikan konsep wisata yang berbeda sehingga menjadi alternatif pilihan wisata di kawasan Ciater

Ciater Leasure Park | Ecotourism Planning AKSESIBILITAS ke Cipali Via GT Subang 45 menit ke Husein Via Lembang 1,0 jam ke Kertajati Via Cipali 1,5 jam

Cottage

Cottage - merupakan penginapan yang menjadi salah satu wisata di Ciater Leisure Park Berada di lahan perkebunan teh yang cukup berkontur, bangunan penginapan dibuat 1-3 meter diatas permukaan anah. Sehingga eksisting pohon teh masih dapat dipertahankan dan produksi daun teh tidak terganggu

Ciater Leasure Park | Ecotourism Planning

Park of lights

Park of lights - menawarkan wisata lampion yang dapat dinikmati oleh pengunjung di malam hari. Memiliki beberapa tema sebagai salah satu attraction bagi pengunjung

Berada di area perkebunan teh, wisata ini tetap mempertahankan pohon teh yang ada Jalan menggunakan deck kayu yang ditempatkan di atas level pohon teh Hal tersebut bertujuan agar produsen tetap dapat memetik teh di pagi hari.

Meskipun begitu, wisata park of lights ini tetap dapat dinikmat pengunjung di siang hari dengan pemandangan kebun teh yang ada.

LED Lights

Pohon teh

Deck kayu
Ciater Leasure Park | Ecotourism Planning
Pirates and Ocean Space Thematic Concepts

Adventure Park - menjadi salah satu wisata unggulan, karena menawarkan wisata yang berbeda dari wisata lainnya di daerah Ciater

Terdapat beberapa wahana yang dapat dinaiki oleh semua kalangan sesuai pada umurnya Pemandangan lembah dan kebun teh tetap menjadi point pada wisata wahana ini

Adventure Park

Broadway - Tidak hanya area broadway seperti namanya, wisata ini juga menghadirkan icon icon bangunan dari berbagai negara lainnya, salah satunya icon dari negara Jepang

Broadway
Ciater Leasure Park | Ecotourism Planning

Communal Space Planning

Senior Highschool Canteen

LOKASI

SMA Negeri 1 Baleendah, Bandung

Perencanaan bangunan kantin ini berada di SMAN 1 Baleendah, Bandung. Dengan adanya pandemi COVID19 pembelajaran dilakukan secara WFH, oleh karena itu kurangnya perawatan terhadap bangunan dan fasilitas yang ada di sekolah salah satunya kantin ini. Sehingga dilakukanlah rekonstruksi bangunan kantin yang merespon kondisi tersebut.

Bangunan kantin ini memiliki fungsi lain, selain sebagai area kantin tempat siswa beristirahat juga sebagai sanggar ekskul. Dimana juga mendukung kegiatan bersosial para siswa.

Baleendah HS Canteen | Communal Space Planning
05

Site boundary

SMAN 1 Baleendah

Rusunawa

Sumber kebisingan

ISSUE

Kenyamaan dan keamanan sangat dibutuhkan selama kegiatan belajar mengajar. Posisi sekolah SMAN 1 Baleendah yang berbatasan dengan Rusunawa rawan akan gangguan dan keamanan. Dengan adanya lahan kosong yang dimanfaatkan sebagai area kantin dapat menjadi batas (boundary) ke ruang kelas.

Didukung dengan adanya kebutuhan kantin sehat yang memadai, serta kebutuhan akan ruang kegiatan ekstrakulikuler.

Sehingga diharapkan dengan memanfaatkan area kosong tersebut dapat menjadi tempat beraktivitas para siswa dan warga sekolah disamping kegiatan belajar mengajar.

DESIGN STRATEGY

boundaries generating creating

translated into translated into value

Kenyamanan dan kemanan menjadi dasar dalam design strategy ini. yang diartikan sebagai sebuah batasan (boundaries). Didukung dengan adanya kebutuhan kantin sebagai tempat social activity yang menghasilkan sebuah ruang communal. Dimana semua faktor tersebut terbentuk menjadi sebuah nilai atau value dalam desain

as a filler for containing Baleendah HS Canteen | Communal Space Planning

safe & comfort social activity communality

SITE ANALYSIS

accessibility, function, places

Site

Boundary

USER

Students

Classroom

Highschool service area

Housing

Teachers

Merchant

School People

Service Extracurricular Room

Paving Block

Loading dock access

Primery access

Public transportation

Primery road to SHS

Green area

Food court Sitting area

Baleendah HS Canteen | Communal Space Planning

Terdapat area duduk dan area outdoor dimana siswa dapat beraktivitas dan beristirahat pada area tersebut Terdapat 12 ruangan bagi pedagang, 10 ruang sanggar ekskul dan 1 ruang penyimpanan Kemudian terdapat pula toilet dan spot untuk mencuci tangan

Area lahan yang sempit dimanfaatkan semaksimal mungikin, namun tetap tidak mengganggu sirkulasi jalan yang ada Penggunaan paving block pada sisa lahan sebagai sirkulasi membuat area terlihat bersih, namun tetap memiliki resapan air yang baik

Baleendah HS Canteen | Communal Space Planning
Tampak Depan
Baleendah HS Canteen | Communal Space Planning
Denah Lantai 1 Denah Lantai 2
folio ANANDANTIRST@GMAILCOM LINKEDINCOM/IN/ANANDANTIRESTU
Port-

Turn static files into dynamic content formats.

Create a flipbook
Issuu converts static files into: digital portfolios, online yearbooks, online catalogs, digital photo albums and more. Sign up and create your flipbook.