Skip to main content

Ana Chkhetiani_Portfolio

Page 1


ARCHITECTURAL PORTFOLIO

SELECTED WORKS

ANA CHKHETIANI

LANGUAGES

GEORGIAN SPANISH ENGLISH RUSSIAN MOTHER TONGUE INTERMEDIATE FLUENT INTERMEDIATE

SKILLS

AUTOCAD REVIT RHINO TWINMOTION

PHOTOSHOP ILLUSTRATOR INDESIGN PREMIERE PRO

ACHIEVEMENTS

DESIGN EXCELLENCE AWARD

2021

SEGOVIA, SPAIN DESIGN STUDIO 2

PORTFOLIO

ANA CHKHETIANI

+34 692 90 60 61 +995 599 94 21 71

MADRID, SPAIN

anna.chkhetiani777@gmail.com

Ana Chkhetiani

EDUCATION

IE UNIVERSITY MADRID, SPAIN 2025-PRESENT MASTER IN ARCHITECTURE

IE UNIVERSITY

SEGOVIA/MADRID, SPAIN 2019-2025 BACHELOR IN ARCHITECTURAL STUDIES

WORK EXPERIENCE

POSITIVE LIVINGS

2023

MADRID, SPAIN ARCHITECTURE INTERN

M2 DEVELOPMENT

2021

TBILISI, GEORGIA DESIGN MANAGEMENT INTERN

VOLUNTEER WORK

RED CROSS

2017

TBILISI, GEORGIA

SANCTUM

SANCTUARY FOR UKRAINIAN REFUGESS

SANCTUM PROPOSES A LINEAR HOUSING SYSTEM THAT NEGOTIATES BETWEEN COLLECTIVE AND INDIVIDUAL LIVING THROUGH MODULAR CLUSTERS EMBEDDED IN A TOPOGRAPHIC SECTION. BY OPERATING AS A THRESHOLD BETWEEN CITY, MOUNTAIN, AND SEA, THE PROJECT REDEFINES REFUGEE HOUSING AS AN ADAPTIVE SPATIAL INFRASTRUCTURE RATHER THAN A FIXED TYPOLOGY.

DESIGN STUDIO 9

BACHELOR IN ARCHITECTURAL STUDIES

HOUSING / SYSTEM / THRESHOLD

LOCATION: ALICANTE, SPAIN

YEAR:2025

SERRA GROSSA

INVIDUALIST VS. COLLECTIVIST LIVING

LIVING CELL CLUSTERS

SINGLE CELL CLUSTER
DOUBLE CELL CLUSTER
FAMILY CELL CLUSTER

FLOOR PLAN_WING 1

GROUND FLOOR_WING 2 + 4

FLOOR PLAN_WING 3

GROUND FLOOR_WING 5

LONGITUDINAL SECTION

CROSS SECTION

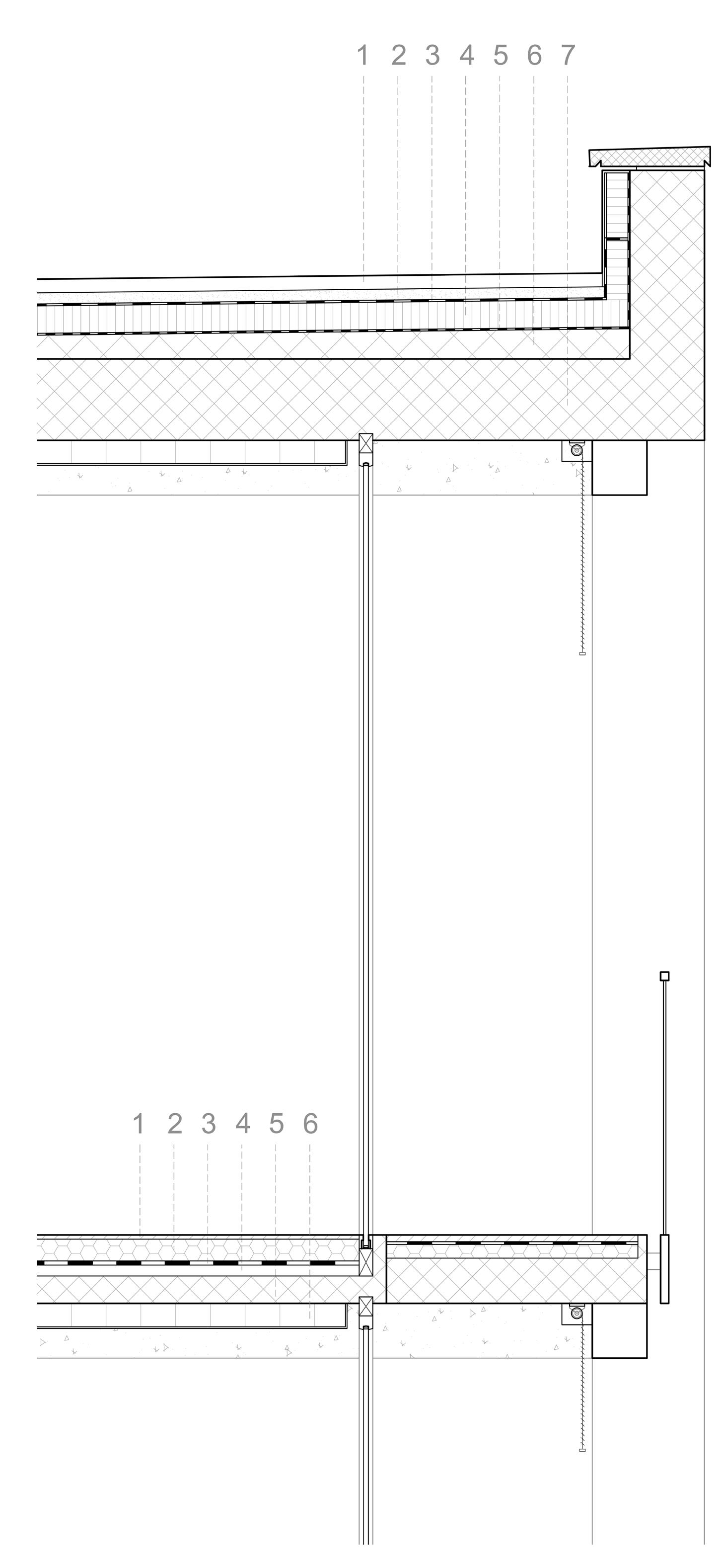
ROOF CONSTRUCTION

1 CONCRETE FLAGS 50mm

2 GRAVEL 40mm

3 SYNTHETIC ROOFING FELT

4 THERMAL INSULATION 100mm

5 VAPOUR BARRIER

6 SCREED LAID TO FALLS 20mm

7 CONCRETE SLAB 300mm

SLAB CONSTRUCTION

1 PARQUET FLOORING 15mm

2 SCREED 80mm

3 WATER MEMBRANE 10mm

4 INSULATION 40mm

5 CONCRETE SLAB 150mm

6 CAVITY FOR SERVICES 90mm

PREFAB CONCRETE BEAMS

IN-SITU CONCRETE FOUNDATION FOOTINGS

THE SKIN

PREFAB CONCRETE COLUMNS
STAINLES STEEL BALCONY RAILING GLAZED ENCLOSURE
COLUMN
BEAM

DANCING MANNEQUINS

MUSEO DEL TRAJE INTERVENTION

DANCING MANNEQUINS REACTIVATES THE MUSEO DEL TRAJE THROUGH A SYSTEM OF SPATIAL TRANSFORMATION DRIVEN BY PERFORMANCE. BY INTRODUCING FLEXIBLE, MOVABLE ELEMENTS WITHIN A RIGID INSTITUTIONAL STRUCTURE, THE PROJECT EXPLORES ARCHITECTURE AS A DYNAMIC FRAMEWORK CAPABLE OF SHIFTING BETWEEN STATIC AND PERFORMATIVE STATES.

ADVANCED DESIGN STUDIO

MASTER IN ARCHITECTURE

PERFORMANCE / TRANSFORMATION / FLEXIBILITY

LOCATION: MADRID, SPAIN

YEAR:2025

THE EXISTING

THE MISSING

RIGID//FLEXIBLE//DYNAMIC

PROGRAMMATIC RIGIDITY//FLEXIBILITY

STRATEGY_THE TOWER

PERFORMANCE THROUGH MOTION

STRATEGY_THE PLINTH

CIRCULARITY

TOWER REUSE
TOWER PANELS

MORNING EVENT_TOWER EXHIBITION

EVENING EVENT_THEATER

AFTERNOON EVENT_MUSEUM

URBAN SCALE [XL]

BUILDING SCALE [L]

BUILDING SCALE [M]

BUILDING SCALE [S]

DETAIL [M]
DETAIL [S]
DETAIL [L]
DETAIL [S+L]

EL TEATRO

STUDENT RESIDENCY FOR A FILM SCHOOL

EL TEATRO INVESTIGATES THE RELATIONSHIP BETWEEN CULTURAL PRODUCTION AND COLLECTIVE LIVING THROUGH A FRAGMENTED ARCHITECTURAL SYSTEM THAT MERGES HOUSING, PERFORMANCE, AND PUBLIC SPACE. BY OPERATING AS A NETWORK OF INTERCONNECTED VOLUMES, THE PROJECT REDEFINES THE THEATRE AS AN URBAN CONDITION RATHER THAN A SINGULAR BUILDING.

DESIGN STUDIO 8

BACHELOR IN ARCHITECTURAL STUDIES

URBAN SYSTEM / CULTURE / FRAGMENTATION

LOCATION: BILBAO, SPAIN

YEAR:2024

HISTORICAL HERITAGE BUILDINGS

URBAN TYPOLOGIES

STRATEGY_FRANKENSTEIN

PROGRAMS

PUBLIC//COMMUNAL//PRIVATE

BUILDING STRATEGY_FRANKENSTEIN

MASTERPLAN
BUILDING

TIMBER COLUMN

STEEL PLATE PROTECTION

TIMBER BOARD

RADIANT FLOOR

CAVITY FOR SERVICES

INSULATION

TIMBER BOARD

TIMBER FACADE

STEEL HOLDER ATTACHED TO SLAB

STEEL PLATE CONNECTOR

STEEL BOLTS

WARSCAPE

HERITAGE PAVILION PATH

WARSCAPE CONSTRUCTS A CONTINUOUS SPATIAL NARRATIVE THAT REINTERPRETS SITES OF CONFLICT THROUGH MOVEMENT, MEMORY, AND EVERYDAY USE. BY INSERTING A LINEAR SYSTEM OF INTERVENTIONS ACROSS A HISTORIC LANDSCAPE, THE PROJECT TRANSFORMS STATIC HERITAGE INTO AN DYNAMIC CIVIC INFRASTRUCTURE.

ADVANCED URBAN PLANNING WORKSHOP

MASTER IN ARCHITECTURE

HISTORY / URBAN PLAYING

LOCATION: MADRID, SPAIN

YEAR:2025

HISTORY AND CONFLICTS

WAR DAMAGES

CIVIL WAR SECTIONS

AREAS OF INTEREST

MUSEO DEL MURO

TEMPORARY EXTENSION FOR A MUSEUM

MUSEO DEL MURO PROPOSES A MODULAR, MOBILE EXHIBITION SYSTEM THAT RETHINKS THE MUSEUM AS A TRAVELING AND RECONFIGURABLE ARCHITECTURE. THROUGH ADAPTABLE WALLS AND LIGHTWEIGHT CONSTRUCTION, THE PROJECT EXPLORES FLEXIBILITY, REUSE, AND TEMPORALITY AS CORE ARCHITECTURAL STRATEGIES.

ADVANCED CONSTRUCTION WORKSHOP 1

MASTER IN ARCHITECTURE

REUSE / EPHEMERAL ARCHITECTURE

LOCATION: MADRID, SPAIN

YEAR:2025

DYNAMIC WALLS

INTERIOR AND ENVELOPE

STRUCTURE

CO-LAB

TRAVELLING EVENT GENERATOR

CO-LAB EXPLORES ARCHITECTURE AS A MOBILE PLATFORM FOR DIGITAL AND SOCIAL INTERACTION THROUGH A TRAVELING EVENT INFRASTRUCTURE. BY COMBINING INFLATABLE SYSTEMS WITH TRANSPORTABLE INTERIORS, THE PROJECT INVESTIGATES ADAPTABILITY, PLAY, AND SPATIAL STORYTELLING ACROSS GLOBAL CONTEXTS.

ALTERNATIVE PRACTICES: DESIGN

BACHELOR IN ARCHITECTURAL STUDIES

EVENT SPACE / SOCIAL MEDIA / FLEXIBILITY

LOCATION: MADRID, SPAIN. TORONTO, CANADA. SINGAPORE

YEAR:2024

COLLECTIVE LIVING

anna.chkhetiani777@gmail.com achkhetiani@student.ie.edu

Turn static files into dynamic content formats.

Create a flipbook
Ana Chkhetiani_Portfolio by Ana Chkhetiani - Issuu