




Oasis
A River Restoration as a Response to Soil Contamination
Rethinking Urban Renewal for Elderly Communities Fostering Inclusive Community and Cultural Heritage
![]()





Oasis
A River Restoration as a Response to Soil Contamination
Rethinking Urban Renewal for Elderly Communities Fostering Inclusive Community and Cultural Heritage
Rethinking Urban Renewal for Elderly Communities
Individual Work
Advisor: Simon Rabyniuk
ARC456/457 | Undergraduate Thesis

Rapid urbanization and increasing class segregation within Seoul, South Korea, have led to the marginalization of the country’s growing demographic of low-income seniors. Excluded elsewhere, they have formed their own safety net communities within the city’s historic core. These enclaves offer vital support to low-income seniors, providing affordable amenities and a sense of belonging in a city that continues to marginalize them. Yet these fragile safety communities face constant threats from potential urban renewal projects, further risking the displacement of low-income senior residents.
Currently, these communities have been protected by the presence of the Sewoon Sangga, a 1.2-kilometer-long mixed-use megastructure built in the 1960s. Home to small electronic shops and emerging start-ups, it has inadvertently become a protective barrier against gentrification. However, ongoing city beautification efforts have sparked debates over its demolition, jeopardizing not only the building’s future but also the communities it helps safeguard.
In response, this project proposes the preservation of Sewoon Sangga through a series of strategic, small-scale public space interventions aimed at strengthening placemaking for the elderly. By closely examining the daily routines and spatial habits of senior residents, the design introduces tailored programming that supports their needs without inviting large-scale commercial development. These subtle architectural adjustments promote intergenerational interaction and community resilience, enhancing the quality of life for low-income seniors while maintaining the area’s social and spatial integrity.





Seoul exhibits stark class segregation, with seniors accounting for more than 40% of its low-income population. This divide is rooted in the city’s uneven post–Korean War development. Rapid urbanization initially concentrated in Gangbuk (north), but subsequent expansion into Gangnam (south) produced high-rise modern districts and some of the wealthiest communities in the country. This imbalance has created significant spatial and economic disparities, limiting opportunities for low-income seniors and widening generational and class divides. As a result, meaningful interaction between different income and age groups has become increasingly rare, reinforcing social isolation and deepening existing inequalities.



The northern districts of Seoul have undergone major redevelopment due to deteriorating buildings, with Sewoon Sangga as a notable example. Built as part of post-war modernization efforts, it was South Korea’s first modernist mixed-use complexes, combining retail on the lower floors with residential spaces above. Its decline began in the 1970s after Gangnam’s rapid development, leading to repeated demolition proposals for both the building and its surrounding districts. Despite this, Sewoon Sangga plays a vital role in protecting the neighborhood from large-scale redevelopment, helping preserve the safety-net communities formed by low-income seniors. This project therefore, proposes revitalizing the public spaces of Sewoon’s two northern buildings to support and strengthen these communities.






Using acupuncture design strategies, the proposal introduces public spaces for low-income seniors without displacing Sewoon Sangga or its surrounding neighborhood. Interventions are carefully placed to address existing issues while improving accessibility and communal life.
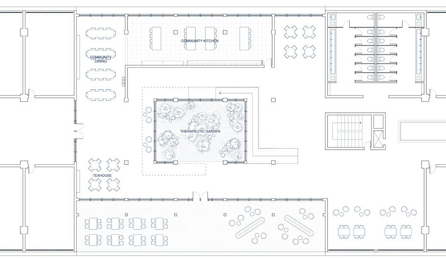
Key areas include the ground floor, hosting a market and open seating for gatherings. On the third floor, the pedestrian bridge will be extended over the market to create a park for seniors to play Go, a traditional Korean board game. A wide gap between the southern buildings will be transformed into a community center, and the rooftops will become community gardens to foster interaction and well-being. Programming is organized vertically: lower levels support shorter, transient activities, while upper floors accommodate longer-stay programs.





and GO park.
and rooftop garden.
The two-story community center is designed to foster connection and activity among elderly residents. The first floor features a communal dining area, shared kitchen, therapeutic garden, and tea bar, while the second floor includes a workshop, art studio, fitness rooms, and indoor-outdoor lounges. To reduce social isolation, the interior is deliberately open, with no solid doors, encouraging fluid movement and spontaneous interaction.
Adjacent rooftops will be transformed into a community garden, red pepper drying station, and additional lounges, further supporting daily use and social engagement.



A River Restoration as a Response to Soil Contamination
Individual Work
Instructor: Behnaz Assadi
ARC363| Landscape Architecture Studio I

Villa Borghese, situated in the northern part of Rome’s city center, is one of the city’s largest and most iconic urban parks, covering roughly 90 hectares. Known for its elegant gardens, renowned museums, and recreational spaces, it has become a major cultural and tourist destination.
Originally a small vineyard, the estate was transformed into a grand residence by the Borghese family. Construction began in 1606 under architect Flaminio Ponzio, who designed the grounds in a formal Italian garden style that blended Renaissance symmetry with Baroque influence. Over the centuries, the park expanded and evolved, eventually embracing the picturesque landscape movement—a shift toward more naturalistic, informal garden design that marked a significant departure from earlier traditions. In recent decades, however, Villa Borghese has faced significant ecological challenges. A network of roads cutting through the park has led to soil contamination, with heavy metals and urban debris leaching into the landscape.
This proposal reimagines the most heavily polluted zones of the park by introducing a constructed wetland system daylighting a hidden river—an ecological intervention that also honors Rome’s historic relationship with water. By removing selected roadways and converting them into pedestrian pathways, the project both reduces vehicular pollution and increases public access to nature. The wetlands will serve as a natural filtration system — purifying contaminated soil, cleansing the daylighted river, and treating stormwater runoff. In doing so, the intervention not only restores ecological health but also reinvents the park as a space of cultural memory and sustainable urban renewal.




As Villa Borghese underwent various transformations, its landscaping evolved alongside it. By the 1770s, the park encompassed three distinct styles—Italian gardens, picturesque landscapes, and hunting grounds—coexisting within a single space. This layering created separate “moments” within the gardens that occurred simultaneously, offering diverse experiences across the park.
The Italian gardens are depicted in two states—during planting and with fully mature trees—highlighting class divisions of the era. The upper class enjoyed the landscaped grounds leisurely, while the lower class, hidden behind the Borghese Gallery, carried out the labor of planting and maintaining the gardens.








Like Villa Borghese, Rome has expanded greatly, which led to increased vehicle traffic and a network of roads surrounding and intersecting the park. This has contaminated the soil near these roads with heavy metals.
Rome also has a rich historical connection to water, which held significant cultural importance, but many of these water sources are now buried beneath the city. To address both soil contamination and this hidden water heritage, the proposal envisions daylighting the river beneath Villa Borghese and creating a permeable, biodiversity-rich edge.








Fostering Inclusive Community and Cultural Heritage
Partner Work with Yuna Song
Instructor: Michael Piper
ARC200 | Drawing and Respresentation II

Located on Bloor St between Christie and Bathurst in downtown Toronto, known as Koreatown, has become a hub for the younger generation in the modern day. Previously considered an ethnic enclave, the Korean immigrants had formed a community there which led to an increase in the Korean population in that area. However, due to its commercial gentrification, this area that used to be filled with family-owned Korean businesses has now become dominated by big chain businesses that target the demographic of the younger generation. Koreatown has now become a place to consume Korean culture recreationally rather than being a place for the Korean community itself.
Therefore, leading to a design proposal of a temporary food market that allows visitors to experience Korean culture. Inspired by the traditional Korean food markets, called Sijangs, this design seeks to create a space that targets everyone from all different age groups and social classes. Furthermore, this market also allows for family-owned Korean businesses to sells their goods to those who visit.
As for the design itself, its form takes inspiration from the architecture of the traditional Korean homes, called Hanok. Utilizing the traditional patterns that are often present in the door and windows of Hanoks, the exterior of the market consists of a lattice structure of these patterns as it stretches across two blocks on Bloor. Moreover, the structure also resembles the Hanok’s typical form, such as the sliding wooden doors, the beams, and the central courtyard. The food stands also demonstrate the Korean traditional patterns and architecture in their design as well. By reinterpreting these traditional forms, this market serves as a spot of cultural exchange while also depicting a modern version of traditional Korean architecture.
* All visuals done by me*




LEFT: Northwest axonometric drawing of study street.
RIGHT: Isometric sections that demonstrate businesses that have experienced commercial gentrification.
Along the selected study street, many businesses have evolved over the years, with several family-owned shops transforming into larger chain establishments, some Korean and some not. The Korean-owned businesses often target younger customers or aim to promote Korean culture. Resulting in commerical gentirfication occuring on Bloor St, which caused for many of the family owned businesses to relocate to North York. Leaving this area that was once considered an ethnic enclave at this state of being lost of its orginial charm.




TYPE 1 | INSPIRATION OF HANOK TYPE 2 | APPLICATION OF PATTERNS TYPE 2 | APPLICATION OF HANJI
Utilizing the architectural styles of traditional Korean homes, this food stand takes inspiration from their roof structures.


A Student Residence
Individual Work
Instructor: Mauricio Quiros
ARC362 | Housing Studio II

Located on the University of Toronto campus, Lateral Habitat is a student residence designed to foster social interaction and build a sense of community. The building is organized into distinct programmatic layers that gradually shift from public to private: the ground and second floors are open to the public, the third to fifth floors contain semi-public zones, and the upper levels house private student units interspersed with shared communal spaces.
The architectural form is defined by a series of large voids carved into the massing, which create generous communal areas for students while also responding to the surrounding urban context. These voids align with the varying building heights in the neighborhood, allowing the structure to mediate between different scales and establish a smooth visual and spatial transition. The building is elevated off the ground on thin columns, with a transparent glass facade at street level that creates an inviting, open atmosphere and visually connects the interior with the public realm.
At the heart of the project is a central, hollowed-out courtyard that serves as the primary social anchor. Immediately accessible upon entry, this courtyard reinforces a sense of openness and connectivity. Two circulation cores and single-loaded corridors ensure that student units maintain a degree of privacy while still encouraging community: each unit at the rear faces the central courtyard, offering natural light, views, and opportunities for passive interaction. In this way, Lateral Habitat balances solitude and sociability, creating an inclusive living environment for students.













Each floor of the student residences features communal open spaces and shared kitchens, promoting both space efficiency and regular interaction among students. At the same time, single-loaded corridors and private balconies for every unit provide daylight, ventilation, and a sense of personal privacy.


