PORT FOLIO
ARCHITECTURE | 2024

AMINE BOUGHLAL
«L’architecture est le dialogue silencieux entre le rêve de l’humain et la patience de la matière, où chaque espace façonné devient une pensée incarnée.»

![]()

«L’architecture est le dialogue silencieux entre le rêve de l’humain et la patience de la matière, où chaque espace façonné devient une pensée incarnée.»





Ce projet consiste à rénover et réhabiliter des bâtiments en ruines situés sur le site de Bel Sito. Ils ont pour vocation d’accueillir la prochaine école d’agriculture urbaine de la région ainsi que des logements pour ses futurs étudiants. Une étude a été préalablement réalisée dans le but de comprendre et de se rapprocher aux mieux des besoins programmatiques de cette école.
Le projet consiste à créer une école d’agriculture urbaine ainsi que des logements pour ses étudiants. Les différentes friches du site sont concernés par le projet et seront soit (partiellement) détruites, soit conservées ou restaurées. L’objectif étant de ne pas dénaturer le site et de s’inscrire dans les problématiques actuelles tel que le réchauffement climatique et l’écologie.


Ce projet propose à créer une surélévation, qui permettrait de créer des colocations, des studios et des terrasses communes extérieures en partie haute. L’espace central sera utilisé comme patio extérieur, la dalle sera alors supprimée ainsi que la toiture actuelle. De plus, des espaces partagés sont proposés en rez-de-chaussé, comme une salle de travail, une salle de sport et un local vélo.




Cette annexe se situera dans le bâtiment en parpaing qui est actuellement en friche. Cet espace sera habité par une future serre et une espace extérieur ouvert, qui permettra d’avoir une vision traversante entre les logements et l’école. L’entrée principale du bâtiment se fera par le long couloir actuellement existant. Cet axe de déambulation desservira des salles didactiques ainsi que des espaces permettant la vie étudiante.

Plan Rez-de-chaussée
Plan 1er étage

L’autre branche du bâtiment sera partiellement détruite. Le rez-de-chaussée sera composé des espaces d’expérimentation ainsi que d’un amphithéâtre extérieur. Le premier niveau sera complètement détruit car il est actuellement en très mauvais état, il sera une extension du rez-de-chaussé car il accueillera le reste des espaces d’expérimentation comme les laboratoires et les serres.

Enfin, une longue coursive couverte longeant la partie Est du bâtiment sera construite. Elle a pour objectif de relier les deux bâtiments abritant l’école (la chartreuse et l’annexe). Elle permettra aussi de desservir un nouveau préau. Ce nouveau couvert sera représenté par une lame métallique qui viendra surplomber le mur de l’ancienne serre. Il a pour vocation d’être destiné au confort d’été. En effet, étant situé au nord, cet espace ombragé pourra être utilisé pour manger ou travailler en extérieur, confortablement.


L’école d’agriculture urbaine sera implantée dans l’ancienne chartreuse de Bel Sito. Cette bâtisse construite au XVIIIè est actuellement en ruine. Notre objectif est de restaurer et de conserver une grande partie. Le bâtiment accueillera d’une part les fonctions destinées à l’accueil du public comme la salle de conférence, la salle d’exposition, une serre et le salon d’été, et de l’autre partie une future bibliothèque, des salles de travail, des sanitaires, le pôle administratif ainsi qu’un amphithéâtre.
L’ensemble sera composé de deux niveaux, excepté la bibliothèque qui se développera par une large coursive sous huit mètres de hauteur. Le projet s’inscrit dans une démarche de restauration du bâtiment existant, c’est donc un projet tourné vers l’architecture d’intérieur et l’ameublement.
L’ensemble des pièces du mobilier sera réalisé sur mesure afin de créer des ambiances propres à chaque espace et fonctions.







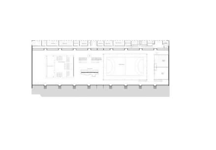
Ce projet consiste à réhabiliter l’ancien marché de Gros du quartier de Belvédère à Casablanca en un centre de jeunesse.
Abandonné depuis 2017. Cet ancien souk est réalisé par les deux architectes français Pierre Jabin et Paul Perotte en 1937 après 12 mois de travaux. Muni d’un toit autoportant de 18m de haut, le marché s’étend sur une surface d’environ 5 000 m2 avec un sous-sol

En identifiant les besoins spécifiques des habitants, le centre offre un espace centralisé pour des programmes éducatifs (Ateliers d’artisanat, salles de cours et de coworking) des activités sportives (Terrain omnisport, salle de dance, salle d’arts martiaux, salle de jeux) et culturelles (Médiathèque, salle d’exposition, salle de conférence) ainsi que des opportunités de développement personnel.







Démolition et aménagement














Le nouveau centre de jeunesse offre aux habitants des espaces de soins et de bien-être, avec un Hammam-spa et ses salons de massage et de coiffure. Ces espaces situés au sous-sol loin des regards des gens sont accessibles de l’intérieur du marché mais également de l’extérieur en passant par un jardin en gradins aménagé.
L’entrée à la Halle couverte à l’étage se fait des quatre façades, avec une entrée principale du coté Sud, où le mur d’escalade se dresse devant nous. Ce marché comporte l’ensemble des espaces de sports, de culture, de restauration et de soins repartis sur plusieurs niveaux avec des structures légères autoportantes en bois et en acier, qui reprennent la trame existante de la voûte.
Le centre de jeunesse offre également des chambres individuelles et des logements temporaires collectifs qui peuvent être utilisés par le personnel et les visiteurs.


Les nouvelles structures autoportantes sont implantées avec un respect totale de la halle, puisqu’elles ne reposent pas sur la voûte à l’étage et sur la structure en arcades au sous-sol. Le toit autoportant de 18 mètre offre la possibilté de construire en hauteur en implantant un mur d’escalade de compétition nationale avec ses 15 métres de hauts, une salle d’exposition au dessus de la salle omnisport, et une médiathèque qui repose sur la salle de conférence.


Tous les espaces du centre sont accessibles aux personnes à mobilité réduite grâce aux trois ascenseurs qui permettent
aux espaces supérieurs et au sous-sol. Ce dernier comporte en plus des espaces de soins et de bien-être, un parking de 100 places automobiles et un parking motos de 65 places.








En tant que grande halle publique, le nouveau centre de jeunesse devient un lieu de rencontre et de rassemblement au sein du quartier, grâce à sa diversité d’usages qui attire une population variée.
Cette convergence se manifeste également dans les espaces extérieurs aménagés, offrant un espace de divertissement et de détente aux habitants, assurant une continuité harmonieuse entre les espaces intérieurs et extérieurs.

Ainsi, la réhabilitation du marché de gros transcende son passé commercial pour devenir un catalyseur dynamique du bien-être communautaire.

Ce projet renforce le tissu social en encourageant l’engagement communautaire, en favorisant l’intégration sociale et en offrant un lieu de rencontre sécurisé, stimulant la cohésion sociale.


Le défi consiste à créer un ensemble de structures durable et soucieuse de l’environnement qui reposent paisiblement, chancelant au bord des falaises, offrant une expérience émotionnelle aux visiteurs.
Cliff Edge Hotel est un éco-hôtel vernaculaire et entièrement durable en équilibre au bord des falaises spectaculaires des Pré-Pyrénées. Le site est situé à côté du petit village de montagne de Tavertet, en Catalogne.
Le projet prend soigneusement en compte l’abondance de la faune de la zone et de l’impact que tout bâtiment peut avoir sur la flore et la faune naturelles du parc naturel.
La conception doit s’inspirer du cadre naturel et se connecter avec son environnement, permettant aux visiteurs de vivre une expérience immersive, à l’intérieur et à l’extérieur de l’hôtel, du paysage spectaculaire et de la faune qui les entoure.


L’hôtel est composé d’un espace de réception, de chambres privées et d’espaces communs comme l’observatoire, l’espace spirituel, la buanderie et les cuisines extérieurs communes et unse structure de rangement de vélos , l’ensemble est desservi par une rampe de circulation qui traverse l’ensemble du projet et crée des percés visuelles.
Chaque espace permet aux visiteurs de quitter temporairement le fardeau de la vie moderne pour se reconnecter et interagir avec la nature.










Le projet du tiers-lieu à Bacalan s’inscrit dans le cadre d’une stratégie urbaine et des actions tactiques pour l’appropriation des berges de Bacalan par les habitants selon une démarche participative.
Le projet consiste d’abord à amenager la promenade des berges de la garonne et de créer un espace participative avec et pour les habitants au sein d’un ancien Hangar renové afin de restaurer des bateaux.
L’aménagement de la promenade vise la création d’une ceinture verte le long des berges de la Garonne. Cet espace vert reliera le Parc de Bradenburg à la réserve écologique des Barails tout en traversant le Club de Canoe qui représentait un obstacle qui brisait la continuité de la promenade.

Afin d’accompagner l’évolution d’un quartier en mutation, le projet du tierslieu à Bacalan a comme objectif de créer un espace de partage, d’apprentissage et de découverte au sein du quartier.
Considéré comme un coeur de ville, l’Hangar est connecté à son environnement et aux berges de la Garonne ce qui permettera aux habitants de ressentir la présence de la nature en ville et atteindre cette transition vers un quartier dynamique




Architecte DEA AMINEBOUGHLAL