Skip to main content

AMALIA MCCARTHY PORTFOLIO 2026

Page 1


EDUCATION:

AVAILABILITY:

WORK EXPERIENCE:

EXTRA

CURRICULARS:

Bachelor of Architectural Studies, Design Hons.

SKILLS:

ACHIEVEMENTS:

+1 (647) 892 3239

amalia.mccarthy1010@gmail.com

Carleton University, Azrieli School of Architecture & Urbanism:

• Expected Graduation Date: May 2026

Available for a 12-16 month placement beginning May 2026

Architectural Assistant (Coop)

AtkinsRealis Architecture and Masterplanning

Ottawa, ON September 2022 - Present

Toronto, ON May 2025 - August 2025

• Contributed to masterplanning and schematic design for Calgary Greenline Downtwon Terminus

• Produced presentation drawings and graphics to communicate design concepts and planning strategies

• Supported the development of design proposals through research, and iterative design work

Architectural Assistant (Coop)

Arcadis IBI Group

Toronto, ON May 2023 - August 2023

• Contributed to the Rolling, Stock, Systems, Operations, and Maintenance (RSSOM) project during design development

• Assisted in production of construction drawings for coordination with engineering teams

• Reviewed Metrolinx design standards to ensure compliance with project requirements

• Produced drawings and graphics for internal meetings

General Member, Landscape Lab (L2)

Azrieli School of Architecture & Urbanism

• Contributed to design-build projects, including an installation promoting environmental design principles

• Collaborated with team members to develop and execute project concepts

General Member, Azrieli Architecture Student Association

Azrieli School of Architecture & Urbanism

Ottawa, ON September 2023 - Present Ottawa, ON September 2023 - May 2024

• Supported student engagement initiatives and school-wide events

• Assisted in organizing and executing events such as Coffee-Haus and RAFKA

3D Modelling: Rhino 3D, Revit, Sketchup, AutoCad

Visualisation: Adobe Creative Suite, Enscape, VRay, D5Render

Languages: English (Native), French (Written proficiency, conversational)

2nd Place, Hobin Prize in Architecture and City Building, 2026Awarded for fourth-year housing studio.

3rd Place, House of the Dictator Design Competition, 2025 - Awarded for a design investigation into authoritarian space-making.

Building 22 Publication - Selected student work

Director’s Project Finalist - Selected as a finalist for the Murray and Murray hand drawing competition amongst students of the Azrieli School of Architecture and Urbanism in 2023-2025

Dean’s Honour Roll - Recognized for achieving a GPA of 10.0 or higher during the academic years of 2023-2025

Carleton Entrance Scholarship ($16,000 ) - Granted upon obtaining an admissions average between 95-100%

01.

AURORA

A sanctuary of light and care empowering maternal comfort

03. 02.

NESTED HEATHERINGTON

Reimagining affordable housing as an architecture of interconnected lives

THE CLAW

pg.16

04.

05.

XENIA

Digital disruption: Embracing the future with Cyber Sigilism pg. 04 pg. 22 pg. 10

Circles of welcome: A modern interpretation of ancient hospitality

LIMINAL LANDSCAPES

Echoing evolution by bridging the present and future with sonic landscapes pg. 26

AURORA

A sanctuary of light and care: Empowering maternal comfort

Kaira Looro Architecture Competition: Maternity Centre, 2024

Collaborators: Nikki Sond

RURAL

The maternity centre design proposal aims to create an efficient, sanitary, and safe environment for women to receive essential medical care from qualified staff, whilst enhancing the “patientcentred” experience through a thoughtful interplay of various densities promoting light and warmth.

It acknowledges that not all issues related to maternal mortality can be solved architecturally, however through careful and mindful spatial organisation, it may help significantly reduce the rate. The design prioritises reducing maternal and neonatal mortality rates by focusing on staff efficiency, infection control and patient care. The design is ultimately devoted to upholding privacy and safety of mothers by integrating the progression towards motherhood.

ROOM

CONSULTATION ROOM

STAFF BATH/CHANGEROOM

PATIENT BATHROOM

MATERNAL WARD

OPERATING ROOMS

SANITATION ROOM

DELIVERY ROOMS

NEO-NATAL WARD

GRIEVING AREA

GRIEVING

NURTURING

The design upholds its values through four key spaces in the maternity centre, focused on providing care, safety and privacy for mothers, their families, and newborns throughout their journey.

An intimate space offers families to grieve in a private and peaceful environment removed from the main circulation of space.

The neonatal space is a specialized environment designed to provide thorough care for newborns ensuring their health and development during the critical early stages of life through medical support and monitoring.

The welcoming space promotes a sense of tranquility and support in order to make families feel at ease during a momentous time.

A monitoring area is thoughtfully designed to balance privacy and comfort whilst providing essential care to ensure mothers receive the attention they need without compromising personal space.

01

03 02

04

CONSTRUCTION STEP 01

FOUNDATION + WALL STRUCTURE

ROSEWOOD BEAMS + PLANKS

CONCRETE SLAB WITH ABOVE-GROUND

ROSEWOOD SKIRTING

CONSTRUCTION STEP 02

SOLID + VENTILATION WALLS

RAMMED EARTH + ROSEWOOD

RAMMED EARTH USES LOCALLY SOURCED SOIL, THICK LOAD BEARING WALLS

STACKED ROSEWOOD PANELS ARRANGED

CONSTRUCTION STEP 03

TIERED ROOF STRUCTURE

ROSEWOOD BEAMS

ROSEWOOD POSTS + BEAMS TO SUPPORT WALLS + TIERED ROOF

CONSTRUCTION STEP 04

TIERED ROSEWOOD ROOF

TIERED ROOF EMPLOYS HAND-CRAFTED

ROSEWOOD PLANKS

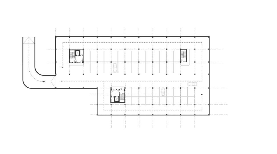
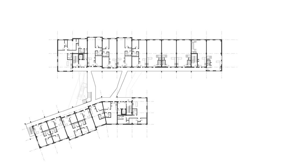
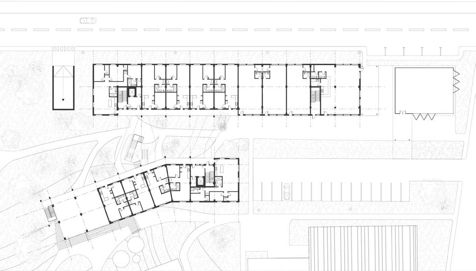
NESTED HEATHERINGTON

Reimagining affordable housing as an architecture of interconnected lives

ARCS 4105: Studio , Fall 2025

Instructor: Honorata Pienkowska-Roseman

Collaborators: Jaime Kfouri

nd

PLACE HOBIN PRIZE RECIPIENT

HEATHERINGTON, OTTAWA, AFFORDABLE HOUSING COMPLEX

The project circulates the investigation of affordable family housing as a spatial ecology of interconnectedness through the orchestration of spaces that carve, cradle and hold communal life. Situated at 1770 Heatherington in Ottawa, Ontario, the site is characterized by a high concentration of family households, in which the proposal responds to the social and spatial needs of collective living.

By drawing residents towards a shared landscaped core, the project cultivates a warm, gravitational centre, Aiming to foster a communal solace across the macrocosm of the site and in turn, the microcosm of the dwelling.

Shaping the ground plane.

SITE BREAKDOWN

The housing development incoorperate residential, commercial, and instituional zones.

OVERALL FRAMEWORK

Highlighting the existing Boys and Girls Club, and the proposed housing development composed of 4 pairs of interconnected buildings. PROPOSED HOUSING DEVELOPMENT

Activating the sunken garden.

PER ACRE (PPA)

+ UNDERGROUND PARKING A

+ EVENT/MARKET SPACE

+ NORTH BLOCK

+ EAST BLOCK

+SURFACE PARKING

+ DAYCARE

+ PLAYFUL BURMS

+ SUNKEN GARDEN

+ CRADLED SEATING

+ SOUTH BLOCK

+ UNDERGROUND PARKING B

01 WATER POCKETS

Sunken garden acts as shallow basins collecting seasonal runoff, emanating a reflecting and ecological environment for childen to engage with.

03

DAYCARE AS ANCHOR

The daycare mediates the landscape, and echoes the concentric community of the housing development, encouraging play and discovery.

+ BOYS AND GIRLS CLUB

+ WEST BLOCK

02 PLAYFUL BURMS

Subtle topographical mounds created from excavated soil transform into a realm of informal play landscapes, encouraging imaginative exploration.

The North Block is positioned at the northern corner of the site, directly addressing Walkley Road as the project’s most publicfacing edge. Due to its proximity to the main road, the building assumes a more civic character, anchored by an event space located along its eastern façade. This programmatic gesture activates the edge condition and establishes a visible point of gathering within the broader housing development.

The block also integrates underground parking. Vehicular access is located to the west of the building along the perimetre to preserve the interior of the site for pedestrian movement and communal life.

01

02

SPLIT

Pulling the mass apart to create a central hold

CONNECT

Stitch the buildings through the elevated connections

01

EGRESS & CORRIDORS

Programmed around exterior single loaded corridors.

02 UNIT BREAKDOWN

Composed of 1, 2, 3, bedroom flats and 3 bedroom masionettes.

03 INDICATE

Expression of interior events through volumetric shifts

03

PARKING, COMMERCIAL, & EVENT

Allocated 5 units of commercial space, street presence via event space, and underground parking

ROOF CONNECTION

Roof membrane

• Xps rigid insulation

Cant

Conc. Slab

Steel stud framing

Gypsum board

• Batt insulation

Sheathing

• Xps rigid insulation

Air and vapour barrier membrane

PARAPET ASSEMBLY

Railing

• Embed plate with side mounted railing bracket

• Cant Stainless coping with drip Bevelededgeplate

Steel stud framing

• Gypsum board

Batt insulation

• Sheathing

45mm air gap

• Masonry ties

Masonry shelf angle

Brick veneers

Steel embed

Xps rigid insulation

• Air and vapour barrier membrane

• 45mm air gap

Masonry ties

• Masonry shelf angle

Brick veneers

Steel embed

COLD OVER WARM CONDITION

Steel column

• Steel embed

Conc. Slab

• Isokorb (conc. To conc. Connections for exposed slab edges)

• Xps rigid insulation

Gypsum board

• Steel stud framing Batt insulation

Sheathing Xps rigid insulation

TYPICAL 2 BEDROOM FLAT

Gypsum board

• Steel stud framing Batt insulation

• Sheathing Xps rigid insulation

Air and vapour barrier membrane

45mm air gap

• Masonry ties

Masonry shelf angles

Brick veneers

COLUMN AT GRADE DETAIL

• Steel column Steel embed

Conc. Block

• Paved concrete 700mm soil

• Conc. Slab

Weather protection board

Cant

Xps rigid insulation

• Conc. Slab Hardwood floor

• Acoustic mat

Conc. Slab

Xps rigid insulation

• Gypsum board

TYPICAL 3 BEDROOM MAISONETTE

THE CLAW

Digital disruption: Embracing the future with Cyber Sigilism

ARCS 2106: Studio 3, Spring 2024

Instructor: Johan Voordouw

CORNWALL, CITY HALL

The design of the Cornwall City hall presents a bold departure from traditional civic architecture, employing a striking “claw” motif as a primary language throughout the design. This architectural approach serves as an act of disruption, ultimately challenging conventional notions of municipal buildings and their role in the urban landscape.

The “claw-like” forms extend throughout the structure and its surrounding site, creating a dynamic interplay between the building and its environment. The design of the claw draws inspiration from the emerging aesthetic of Cyber Sigilism, a contemporary art style characterized by its distinctive blend of curves and sharp, angular lines. Ultimately, by incorporating the artistic influence, the City Hall draws on the sense of digital-age relevance and forward thinking design.

1 OUTDOOR PLAZA

MIST GARDEN

CONCERT BOWL

GROUND FLOOR CAFE

URBAN LIVING ROOM

PUBLIC GALLERY

SKYLIGHTS

SHADOWS CAST A SERIES OF INTERSECTING LINES

METAL PANEL

ECHOES OF THE ROOF DESIGN FOLLOW FACADE

KEY OFFICES

GLAZED WALKWAY

OFFERING DIFFERENT PERSPECTIVES OF THE CORNWALL LANDSCAPE

GRASS SLOPE

MUNICIPAL OFFICES

AUDITORIUM

MOVEABLE SEATING

KEY SPACES

CONCERT BOWL

The design choice of extending the auditorium into the urban living room and then into the landscape was to engage a greater area of space rather than adhereing to the lines of defined areas.

The concert bowl allows a further community engagement, drawing people into the building and into the urban living room, whilst also acting as the more public event space in contrast to the auditorium on the opposing side for more private events such as lectures and presentations.

COUNCIL CHAMBER

The design of the city hall radiates from the council chamber, thereby glorifying the space and establishing a democratic tone to the city hall. The council chamber is purposefully made visible from the urban living room, using the claws as screening , and glazing that allows the public to look in and attend if the council is in session.

The claws surrounding the chamber are not merely used for screening but as a representation of the other, the claw stands as an inspiration for effective government. As established if the claw is a disruption to prevent linear progression, then through the lens of the council chamber, the claw is a symbol of taking all diruptions/perspective into account thus exemplifying the notion of effective decision making and government.

RAMP

The ramp is strategically placed for the public to access public spaces on each of the three floors, whilst allowing privacy for the offices on the second and third floors.

Following the theme of “cutting” through the building through a “claw-like” language, a ramp acting as a viewpoint of Cornwall is used for vertical circulation.

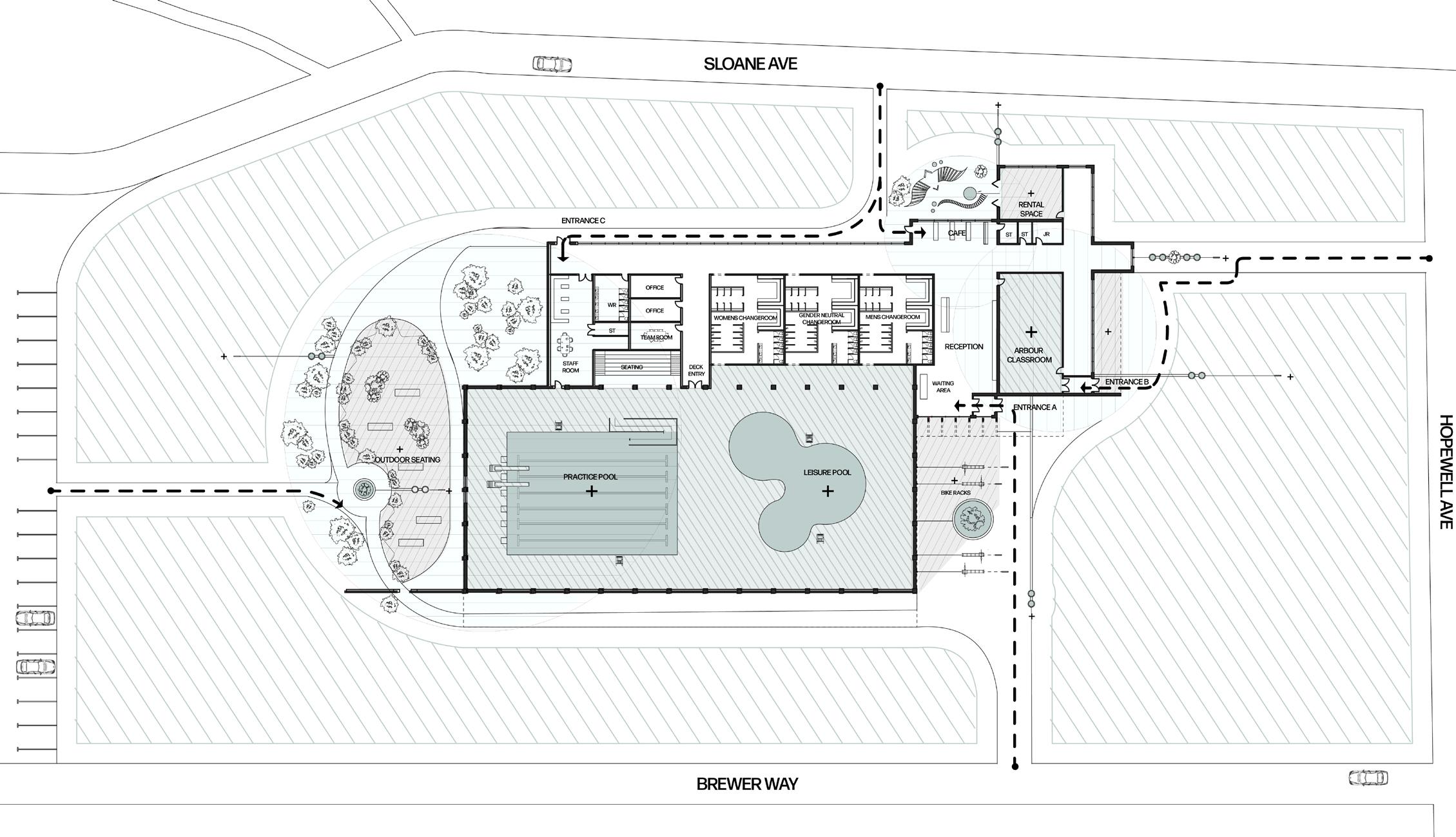
XENIA

Circles of welcome: A modern interpretation of ancient hospitality

ARCS 2105: Studio 2, Fall 2023

Instructor: Janine Debanné

BREWER PARK, POOL AND COMMUNITY CENTRE

The term Xenia is an ancient Greek word, and a primary theme throughout epic including Homer’s Odyssey meaning “Guest Friendship” ultimately encircling the concept of hospitality. The action to show generosity to those who are far away from home through a reciprocal relationship between guest and host. The title lends itself to the primary themes of the design to comfort and accommodate its guests.

The community centre acknowledges its role in the community and the people it will house, particularly youth growing through and into the space. Key elements include orienting the primary roof trusses to align with the long span of the pool hall to emulate a sense of speed, change rooms leading directly to the pool deck, and a great consideration for deck space; however the design is primarily constructed on the foundation of small moments carving spaces for pause, and reflection.

ALUMINUM INSULATED ROOF PANEL SYSTEM

THE ROOF’S ELONGATED AND BUTTERFLY SHAPE EMPHASIZE SPEED

STEEL STRUCTURE

THE STEEL COLUMNS, TRUSSES, AND BEAMS SUPPORT THE LONG SPANNING ROOF

CONCRETE WALLS

CONCRETE WALLS BRING FORTH STRUCTURAL INTEGRITY AND AESTHETIC FEATURES

CONCRETE SLAB ANDFOUNDATIONS

CONCRETE SLAB SERVES AS FOUNDATION AND FLOOR STRUCTURE

COMMUNITY THROUGH CIRCLES

The project begins in the circle, a symbol for unity and bringing people together which is encased in the landscaping, which feeds into floor finishes inside. The circle highlights spaces for gathering, and indicates significant spaces. The circular language is carried into specific doors, the windows, the waterpark at the West facing facade, and most importantly the benches. Throughout the landscaping certain benches are highlighted with two circular ponds at its ends, hinting at a “body of water” (i.e the pool, the sauna, the waterpark) along its linearity.

LIMINAL LANDSCAPES

Echoing evolution by bridging the present and future with sonic landscapes

ARCS 3105: Studio 4, Fall 2024

Instructor: Ozayr Saloojee

ROCKECLIFFE, LEARNING LAB

The motivation for the learning lab was originally founded in a “Playground for Sound” which utilises architectural bioacoustic design to act as a gradient through the building in order to promote playful and engaging learning. Bioacoustics is the study of production, transmission, and reception of animal sounds in nature which provide researchers insight to species diversity, habitat health, and wildlife behaviour. The design is largely influenced by “sound pods” scattered throughout the building, each playing a certain sound that originates from the site itself, to enrich the learning experience.

The title “Liminal Landscape” refers to the idea that the building exists between two states (present and future) in order to evoke a sense of change and possibility. Liminal Landscape ultimately fosters awareness of current issues whilst encouraging progress towards a sustainable future, inviting visitors to reflect on their role in shaping the future

ACOUSTIC PANELLING

01 BIOACOUSTICS

SOUND POD 1

Monitors bird populations such as the Least Bittern (Ixobrychus exilis) and Cerulean Warbler (Denderoica Cerulea) in the trees.

SOUND POD 2

Monitors the populations of Blanding’s Turtle (Emydoidea blandingii) and Western Chorus Frog(Pseudacris triseriata by the shoreline. .

REHABILITATION THROUGH BIOACOUSTICS SPEAKERS

SOUND POD 3

SOUND POD 4

The aspiration is for visitors to seek out each sound pod whilst simultaneously being immersed through the site by exploring the varying pathways through the building. Additionally, it is a long term aspiration that through future visits, visitors will begin to notice differences in the sounds played in each pod; i.e sound pod 4 (located at the lower level) plays sounds by the Sir George-Etienne Cartier Parkway, from a visitors initial visit to their next one in approximately two years perhaps the car noises will have decreased and the “natural “ sounds will have increased.

If the use of bioacoustics brings awareness to its visitors through a live record of rehabilitation, then the building should reinforce action towards rehabilitation of the site/ river. Thus the building not only becomes a playground for sound, but an extension of the landscape through the wet zone housing an artificial floating landscape, and the greenscreens allowing the building to blend with the site.

02 PUBLIC ENGAGEMENT

LEARNING LAB

Public learning lab aiming to bring awareness to the

well as demonstrate the lab’s processes/work

PUBLIC GALLERY

WET ZONE

Houses artificial wetland, extending from the learning lab to promote learning through interaction and play

Monitors the vehicle pollution on the Sir George-Étienne Cartier Parkway..
Hydrophone monitors underwater soundscape, including the critically endangered American eel (Anguilla rostrata) and Lake Sturgeon ((Acipenser fulvescens).
Site plan showing placement of microphones in the landscape.
Gallery space open to public use for events/ exhibitions promoting the rehabilitation for the Ottawa River
rehabilitation of the river as

Turn static files into dynamic content formats.

Create a flipbook