P6_Armendáriz_González_Almudena_Ud.Tuñón

Page 1


INDICE

1. Análisis fábrica y entorno de Clesa

2. Organización volumétrica viviendas residenciales

3. Distribución interior ciudad celular, distribuida cada viviendas a partir de células espaciales:

- Hotel

- Residencia de estudiantes

- Viviendas productivas

4. Rehabilitación de la antigua Fábrica Clesa en Mercado Invernadero-Gastronómico

P6 - Ud. Tuñón
Cua trimestr e Otoño 21/22
Almudena Armendáriz González

ANÁLISIS FÁBRICA Y ENTORNO

CENTRAL LECHERA CLESA

FUENCARRAL

ALE JANDRO DE LA SOTA

Almudena Armendáriz
Elena Martín

Nos encontramos ene le distrito de Fuencarral- El Pardo, en la comunidad de Madrid, en el barrio de Valverde, donde residen alrededor de 90 000 personas. La zona en la que se encuentra La Central Lechera Clesa, se encuentra en una zona más industrial. Sin embargo, al norte de la fábrica, hay diferentes residencias, desde bloque de pisos, a viviendas unifamiliares.

En cuanto a la vegetación, hemos encontrado 14 especies diferentes de árboles, el que más predominio tiene es el Plátano de Sombra.

Plátano de Sombra 9474

Olmo de Siberia 5328 Lodón 3879

Pino pinea 3224

Falsa Acacia 2494

Lila 2147

Ciruelo 2021

Arce negundo 1714

Sophora Japónica 1449

Morera Blanca 1416

Álamo negro 1411

Castaño de Indias 1381

Ciprés Común 1192

Aligustre 1043

Fuencarral-El Pardo
Valverde
Mirasierra
La Paz Pilar
Peñagrande

ORGANIZACIÓN DE LAS VIVIENDAS RESIDENCIALES

Y SUS REFERENCIAS DE ORGANIZACIÓN ESPACIAL

Almudena Armendáriz

Ainhoa Church

María Díaz

P6 - Ud. Tuñón

Cua trimestr e Otoño 21/22

VIVIENDAS PARA ANCIANOS - PERIS + TORAL

Esta tipología permite la mínima vienda, con espacios completamente funcionales a partir de puertas correderas que dan privacidad (al estar cerrados) y permiten uidez y conectividad (al estar abiertas), en todos los espacios.

Cuatrimestre Otoño 21/22

Kalkbreite es un complejo residencial y comercial con depósito de travías integrado que se encuentra en un punto prominente de la ciudad, marcando un límite entre dos zonas, pues combina usos residenciales, de servicio y comerciales.

Viviendas

Actividad económica

Trasteros y sótano

Elementos de comunicación vertical y servicios

Espacios verdes y de ventilación

Ferrocarril

Espacios verdes ajardinados

Almudena Armendáriz | Ainhoa Church | María Díaz

Diseño de la torre DISEÑO DE TORRE

DISTRIBUCIÓN INTERIOR DE LA TORRE

- HOTEL -

P6 - Ud. Tuñón
Cua trimestr e Otoño 21/22
Almudena Armendáriz González

En el Hotel, el cual, se encuentra próximo al Hospital Ramón y Cajal, se disponen distintas tipologías de viviendas, en función la estancia y la cantidad de personas, hay viviendas que se convierten en espacios abiertos gracias a las puertas correderas.

Este hotel está prrincipalmente pensado para aquellas personas que se encuentren en la situación de tener un familiar hospitalizado. Estas habitaciones ofrecen en el espacio mínimo, todo lo necesario para poder vivir, teletrabajar, alimentarse, etc. mientras cuidan de sus seres queridos hospitalizados.

Encontramos viviendas con dos espacios privados para la familia.

Almudena Armendáriz González

Las primeras 9 plantas dispondrán de habitaciones disponibles para una familia. Así, en el espacio mínimo podrán disponer de un espacio habitable, mientras están cerca de sus familiares hospitalizados, durante esa estancia.

UN ÚNICO ESPACIO

En las plantas más altas del hotell se encuentran habitaciónes indivivuales con un único espacio, y un baño que espcio privado que divide todas las estancias.

Todos estos espacios se convierten en un espacio único, uido y diáfano, cuando las puertas correderas son abiertas.

Y además dispone de una pequeña terraza que permite mantener temperaturas más bajas a partir de la evapotransipiración

Encontramos tres tipos de plantas

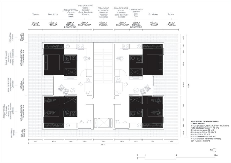
Las más bajas se encuentran divididas en cuatro módulos privados, los cuales dos están comounicados y forman un mismo espacio, pero están diferenciados con un espacio semiprivado a modo de salón y comedor que pueden estar unidos en un espacio único a partir de llas puertas correderas.

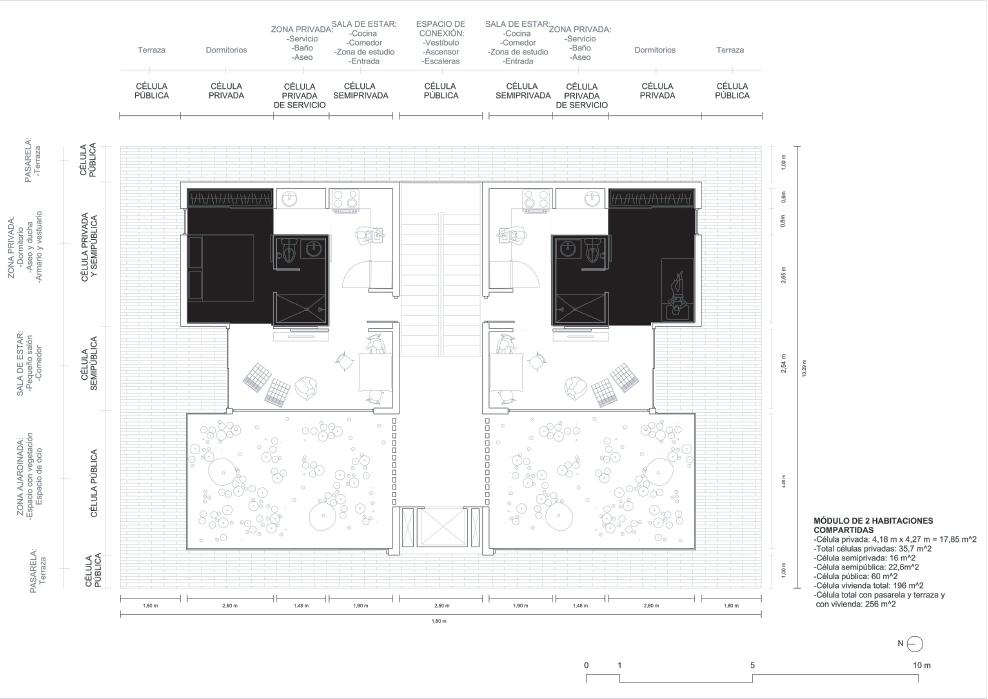
Las plantas superiores disponen de viviendas unitarias, para una sola persona, o una pareja, permitiendo tener un espacio mínimo funcnial.

ESQUEMA ADAPTATIVO

Seguimos una distribución en bandas, con espacios funcionales, que permiten aprovehcar los espacios al máximo.

La resiencia de estudiantes está pensara para estudiantes de la rama de salud, que puedan realizar su residencia en el Hospital Ramón y Cajal, encontrándose cerca del mismo y disponiendo en sus células de viviendas espacios para investigar y estudiar de forma conjunta.

Almudena Armendáriz González

Celosía de madera, con capacidad abatible, que permiten el paso del aire, y a su vez el control de la iluminación y de la intimidad. Además dan carácter a la fachada. Se realiza las desmaterialización del muro, a través de estos sistemas abatibles.

En la Residencia de estudiantes la fachada que da a la cara oeste, aplicamos una fachada bioclimática.

Esta fachada bioclimática, contiene vegetación entre las dos pieles que rebaja la sensación térmica de calor.

En las fachada Oeste. El sol incide fundamentalmente a partir del medio día, sobre todo por la tarde recibiéndose la radiación solar de las últimas horas del día. El ángulo del sol sobre la fachada va decayendo a medida que pasan las horas hasta la puesta de sol.

ESTRATEGIAS A TENER EN CUENTA:.

-Conviene disponer las estancias como el garaje, los servicios de las habitaciones orientadas al sur, zonas de ocio o de juegos, etc.

Carpintería de alumnio con vidrios jos de triple acritalamiento, con cámara de aire de Argón, para asegurar el puente térmico.

Plantas

Maceteros de hormigón que se encargan del control solar, y del enfriamiento del aire, a través evapotranspiración y de la absorición del CO2

– Los huecos de estas fachadas se dispondrán de manera que, junto con los que se abran en las fachadas con orientación este, permitan una adecuada ventilación cruzada para la ventilación de la vivienda así como una correcta refrigeración nocturna en verano.

– Para evitar el deslumbramiento, como en el caso de las fachadas con orientación este, es conveniente disponer de protecciones solares pasivas en los huevos con lamas verticales y no horizontales.

Ventilación natural

VIVIENDAS PRODUCTIVAS

P6 - Ud. Tuñón
Cua trimestr e Otoño 21/22
Almudena Armendáriz González

En las viviendas productivas encontramos una nueva forma de vivir, espacios ordendos por espcios compartidos y prvivados, y un espacio de COWORIKING próximo, al espcio de venta.

Conecta con un espacio en pasarela donde las personas de distintos lugares pueden acceder desde la calle a los locales.

Dentro de las viviendas prodeuctivas nos encontramos una fachada orientada al oeste, con celosías abatibles que permiten entrar la luz o disminuirla a elección del residente.

Almudena Armendáriz González

VIVIR Y PRODUCIR

Utilizamos el mismo esquema para todas las tipologías de viviendas: diferentes células que albergas espccios de índole privado, semiprivado, público, semipúblico, a traves de una ordnación en bandas.

De esta forma se promueve la interacción social.

CONECTAR

Las pasarelas traseras de las viviendas productivas, se encuentran directamente con los locales, y permiten conectar las pasarelas con la calle a partir de escaleras mecánicas.

Se crean unas pasarelas que forman parte de la calle, podiendo atravesarlas cualquier transeunte.

REHABILITACIÓN DE MERCADO GASTRONÓMICO E INVERNADERO EN ANTIGUA FÁBRICA CLESA

P6 - Ud. Tuñón
Cua trimestr e Otoño 21/22
Almudena Armendáriz González

Puesto de degustación productos orgánicos

Puesto de verduras

Puesto de frutas

Floristería
Cata de vinos y cafetería
Barras de degustación
Carnicería
Cata de jamón ibérico y quesos
Almudena Armendáriz
P6 - Ud. Tuñón
Almudena Armendáriz González
Profesor: Emilio Tuñon

Turn static files into dynamic content formats.

Create a flipbook
Issuu converts static files into: digital portfolios, online yearbooks, online catalogs, digital photo albums and more. Sign up and create your flipbook.