HIGH MOOR VIEW
WINKLEIGH

A COLLECTION OF 3 & 4 BEDROOM HOMES


![]()

A COLLECTION OF 3 & 4 BEDROOM HOMES


A village of endless exploration and charm

Life in Winkleigh is enriched by a variety of local shops and businesses, such as the long-established butcher, bespoke cake maker and family business Samβs Cider Shop. Together with a post-office and GP in and around the Square on Fore Street.
Just a few minutesβ walk from home is The Kings Arms, part of Winkleigh life from the time of turnpike road travellers and still a welcoming hostelry, dining venue and meeting place, with four-legged friends welcome at the bar. Families will appreciate being conveniently
close to Winkleigh Primary School including nursery, and rated Good by Ofsted, with Chulmleigh College for 11-16s, part of the Chulmleigh Academy Trust and also rated Good, just a 17 minute drive away.
Winkleigh Sports Centre offers activities from football to table-tennis, snooker and bowls, and is home to the tennis club for match play and junior coaching. The village hall, parish hall and community centre host a range of village groups, while the new well-equipped play space, pocket greens, and community orchard at High Moor View will further enrich amenities for the whole community.

From a Cathedral city and characterful towns to countryside walks on the doorstep and adventurous day trips amongst iconic moorland, this is the starting point to exceptional living.
Okehamptonβs twice-monthly Farmersβ Market offers a selection of fresh produce such as organic cheeses, chocolate, seasonal fruit, free-range eggs, and honey made from Devon nectar. Exeter provides regional shopping, dining, and culture, from the award-winning Princesshay Centre and Gothic Cathedral Quarter to the Corn Exchange and Northcott Theatre.
At High Moor View, youβre surrounded by farmland, orchards, footpaths, and lanesβplus the famous Devon banks, rich in wildlife and birdlife. Winkleigh sits on a highpoint between Exmoor and Dartmoor, renowned for wild ponies and heather moorlands, with activities ranging from cuckoo walks to family rock climbing sessions.
Synonymous with the quality of design and craftsmanship associated with all Allison Homes developments, all the houses at High Moor View benefit from a high standard specification.
This includes contemporary kitchens with stainless steel splashbacks, integrated appliances (on selected homes), a ceramic or induction hob and chimney-style extractors
In all homes, the bathrooms and en suites feature white Hansgrohe* sanitaryware. To help reduce energy bills, all homes feature an energy efficient air source heat pump and thermostatic radiator valves to all habitable rooms. Low energy LED down lights to the kitchen, bathroom and en suite also come as standard.

Each home at High Moor View has been designed to maximise light and space. Selected homes come equipped with a 7Kw EV charger.




We know we are not just building houses, we are creating the most important spaces in peopleβs lives that our customers will love to live in now and throughout the years ahead.
We are passionate about beautiful design that fits with evolving lifestyles, creating homes that are modern, sustainable and affordable.
Our love of quality and great craftsmanship underpins everything we do, because homes are such an important and integral part of all of our lives
Thatβs why we ensure every Allison home is something exceptional.
INTERNAL FIXTURES AND FITTINGS
GENERAL
LABC 10 year warranty
Single colour (white) matt emulsion walls
and ceiling colour throughout
Smooth ceilings throughout
Internal joinery painted white
Staircase handrails and newel caps in oak
Staircase handrails and newel caps in white
Smooth white 5 vertical panel internal doors
Mineral wool insulation to roof space β’
Choice of kitchen unit door fronts from selected range*
Choice of laminate worktops with β’
matching upstands from selected range*
Soft close hinges to all cupboard doors
Choice of stainless steel splashback behind hob
Single bowl sink with mixer tap
1.5 bowl sink with mixer tap
Integrated stainless steel finish single oven
Integrated stainless steel finish eye level double oven
Integrated ceramic hob
Integrated induction hob
Stainless steel chimney hood
Curved glass chimney hood
Integrated dishwasher
Plumbing and removable unit for future installation of dishwasher
Space and plumbing for washing machine
Tumbledryer space where applicable
Space and socket for future installation of fridge/freezer
β’
White sanitaryware
Tiled splashback to basin - choice from standard range
Basin mixer tap
BATHROOM
White sanitaryware
Contemporary mixer taps
Bath filler mixer
Shaver point
White heated towel rail
Half height tiling behind bath - choice from standard range
Tiled splashback behind basin - choice from standard range
White sanitaryware
Contemporary mixer taps
Shaver point
White heated towel rail
Shower enclosure and screen
Tiled splashback behind basin β choice from standard range
Full height tiling to shower area
HEATING AND HOT WATER
Air Source Heat Pump system
Prefinished radiators
Thermostatic radiator valves to most radiators
Smart meters as standard
1no thermostatic shower, with all additional showers to be electric
White LED downlighters to Kitchen
White LED downlighters to Bathroom
and En Suite (where applicable)
Low energy lighting
All sockets to be white fittings
Telephone points to Living Room,
Hallway/Cupboard and Bedroom 1
TV points to Living Room (media plate),
Family room and Bedroom 1
Mains wired smoke detectors
fitted to Building Regulation standards
Fibre internet for high speed connectivity
Range of carpets and flooring available as upgrade option*
3 BEDROOM SEMI-DETACHED HOMES
The Knowle
3 BEDROOM DETACHED HOMES
The Liscombe, The Luccombe and The Brendon
4 BEDROOM HOMES
The Lynton and The Winsford
Traditional construction
House type bricks and roof tiles as per external materials plan
Mineral wool insulation to roof space
Double glazed uPVC windows throughout, white handles
Footpaths and driveways as per external finishes plan
EXTERNAL DOORS
GRP external doors with chrome lever furniture
Front garden turfing and planting to approved landscape plan
Paths, patios and fencing to approved landscape plan
External tap to rear garden
Turfing to rear garden upgrade option available
Front exterior PIR light fitting provided
Power and lighting to garage where within curtilage (where applicable)
EV charger to select homes as per car charging location plan
THE LISCOMBE
3 bedroom bungalow
Homes 67, 68 & 69
THE LUCCOMBE
3 bedroom home
Homes 79, 90, 91, 105, 106, 125, 126, 128, 129 & 130
THE BRENDON
3 bedroom home
Homes 75, 107 & 127
THE EXFORD
3 bedroom home
THE KNOWLE
3 bedroom home
Homes 80 & 81
THE LYNTON
4 bedroom home
Homes 56, 76, 87, 92 & 109
THE WINSFORD
4 bedroom home
Homes 57, 58, 77, 78, 88, 89, 96, 97, 108 & 124
Homes 120, 121, 122 & 123 SHARED RENTED
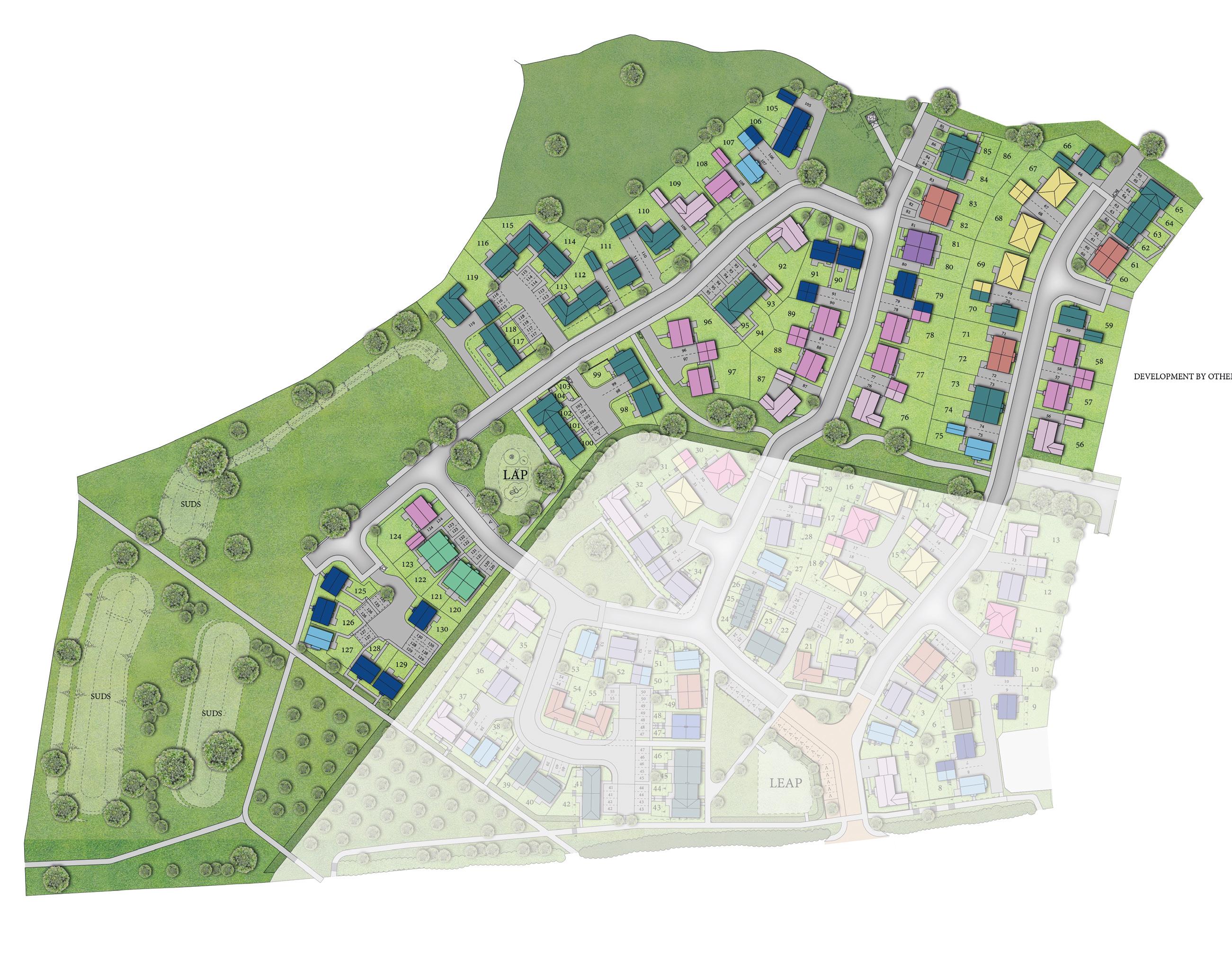
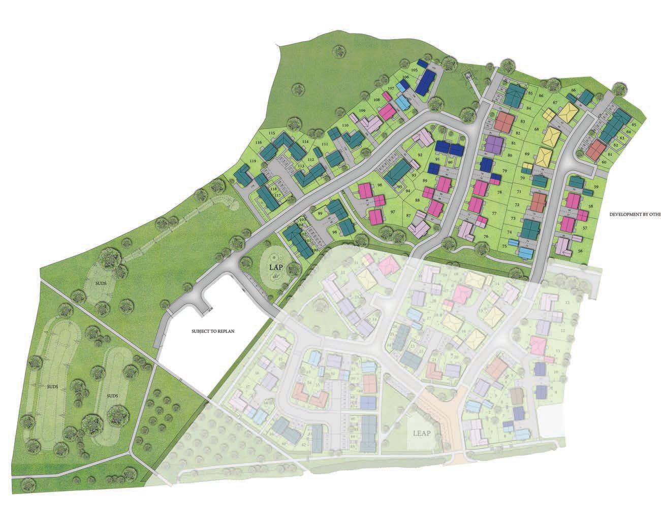
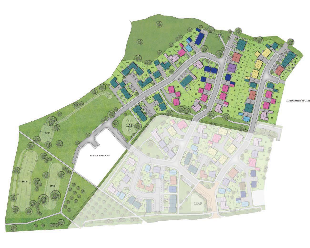
HIGH MOOR VIEW

3 bedroom bungalow
67, 68 & 69

3 bedroom home Homes 80 & 81

3 bedroom home Homes 79, 90, 91, 105, 106, 125, 126, 128, 129 & 130

LYNTON
bedroom home
56, 76, 87, 92 & 109



bedroom home Homes 57, 58, 77, 78, 88, 89, 96, 97, 108 & 124


3 bedroom bungalow Homes 67, 68 & 69
HIGH MOOR VIEW
WINKLEIGH


3 bedroom home
Homes 79, 90, 91, 105, 106, 125, 126, 128, 129 & 130
HIGH MOOR VIEW
WINKLEIGH
3 bedroom home
Homes 79, 90, 91, 105, 106, 125, 126, 128, 129 & 130
GROUND FLOOR Kitchen/Dining 3.70m x 5.80m 12β1β x 19β1β
Room 3.00m x 5.80m 9β8β x 19β1β
1.00m x 1.60m 3β4β x 5β2β
FIRST FLOOR
Bedroom 1
2
x 4.00m 10β0β x 13β2β
x 3.50m 12β1β x 11β6β
3 2.50m x 2.70m 8β1β x 8β8β
2.00m x 2.20m 6β5β x 7β2β


HIGH MOOR VIEW

3 bedroom home
Homes 75, 107 & 127


FIRST FLOOR
HIGH MOOR VIEW

3 bedroom home
Homes 120, 121, 122 & 123
HIGH MOOR VIEW
3 bedroom home Homes 120, 121, 122 & 123
2.59m x 1.80m 8β6β x 5β11β



3 bedroom home
Homes 80 & 81
HIGH MOOR VIEW
WINKLEIGH
3 bedroom home
0.90m x 1.70m 3β0β x 5β7β FIRST
2.60m x 1.70m 8β5β x 5β5β



4 bedroom home
Homes 56, 76, 87, 92 & 109
HIGH MOOR VIEW
WINKLEIGH
4 bedroom home
Homes 56, 76, 87, 92 & 109
3 3.74m x 3.44m 12β3β x 11β3β


HIGH MOOR VIEW

4 bedroom home
Homes 57, 58, 77, 78, 88, 89, 96, 97, 108 & 124
HIGH MOOR VIEW
WINKLEIGH
4 bedroom home
Homes 57, 58, 77, 78, 88, 89, 96, 97, 108 & 124
Kitchen/Dining 3.04m x 6.93m 9β10β x 22β8β
Room 3.20m x 6.93m 10β5β x 22β8β
2.08m x 1.88m 6β8β x 6β2β
1.05m x 1.70m 3β4β x 5β6β
Bedroom 1 3.41m x 4.04m 11β2β x 13β3β
1.93m x 2.24m 6β3β x 7β3β
2 3.09m x 4.04m 10β1β x 13β3β Bedroom 3 3.41m x 2.79m 11β2β x 9β2β Bedroom 4 2.65m x 2.79m 8β7β x 9β2β
2.38m x 1.81m 7β8β x 5β10β


HIGH MOOR VIEW

highmoorview@allison-homes.com