Skip to main content

TALLER DE INGENIERIA GRUPO 02

Page 1


CATEDRA:

DE UN COMPLEJO DEPORTIVO APLICANDO ARQUITECTURA SOSTENIBLE PARA

DE UN COMPLEJO DEPORTIVO APLICANDO ARQUITECTURA SOSTENIBLE PARA

PH.D. ARQ. CARLOS EDUARDO

ZULUETA CUEVA

ARQ. MARIA GABRIELA RUIZ LACHIRA

INTEGRANTES:

FLORES VILELA, YESSICA

PACHERRE ROMAN, ALLAN

M E M O R I A D E M E M O R I A D E E S P E C I A L I D A D E S E S P E C I A L I D A D E S

PROPUESTA DE SECTORIZACIÓN PROPUESTA DE SECTORIZACIÓN

SECTORES SECTORES

SECTOR A: PABELLÓN DE NATACIÓN

SECTOR B: ZONA ADMINISTRATIVA

ZONA COMERCIAL

ZONA MÉDICA

SECTOR C: COLISEO MULTIDEPORTIVO

SECTOR D: CENTRO DE CONVENCIONES

GIMNASIO

COLISEO DE DEPORTES DE CONTACTO

SALAS DE CONCENTRACIÓN DEPORTIVA

SECTOR E: GIMNASIO DE DEPORTES DE CONTACTO

PABELLÓN DE GIMNASIA ARTÍSTICA

SECTOR F: RESIDENCIA DEPORTIVA

SECTOR G: SERVICIOS GENERALES

PREDIMENSIONAMIENTO DE LOSA ALIGERADA PREDIMENSIONAMIENTO DE LOSA ALIGERADA NORMA E.060

NORMATIVA RNE NORMATIVA RNE

NORMA E.030 DISEÑO SISMORRESISTENTE

NORMA E.021 AISLAMIENTO SÍSMICO

NORMA E.050 SUELOS Y CIMIENTACIONES

NORMA E.060 CONCRETO ARMADO

NORMA E.20 CARGAS

NORMA E.090 ESTRUCTURAS METÁLICAS

PARÁMETROS DE DISEÑO PARÁMETROS DE DISEÑO

NÚMERO DE PISOS: 2-3 NIVELES

USO: RECREATIVO

SUELO: TIPO S3 (SUELO INTERMEDIO)

ZONA SÍSMICA: ZONA 4 (0,45)

CARGAS VIVAS: OFICINAS 250KG/M2

LUGARES DE ASAMBLEA: 400 KG/M2

SEPARACIÓN ENTRE BLOQUES SEPARACIÓN ENTRE BLOQUES

S=0.005H≥0.03m

SECTOR E: GIMNASIO DE DEPORTE DE CONTACTO

S=0.005(10)=0.05CM≥0.03m

SECTOR F: RESIDENCIA

S=0.005(8)=0.05CM≥0.03m

NORMA E.030

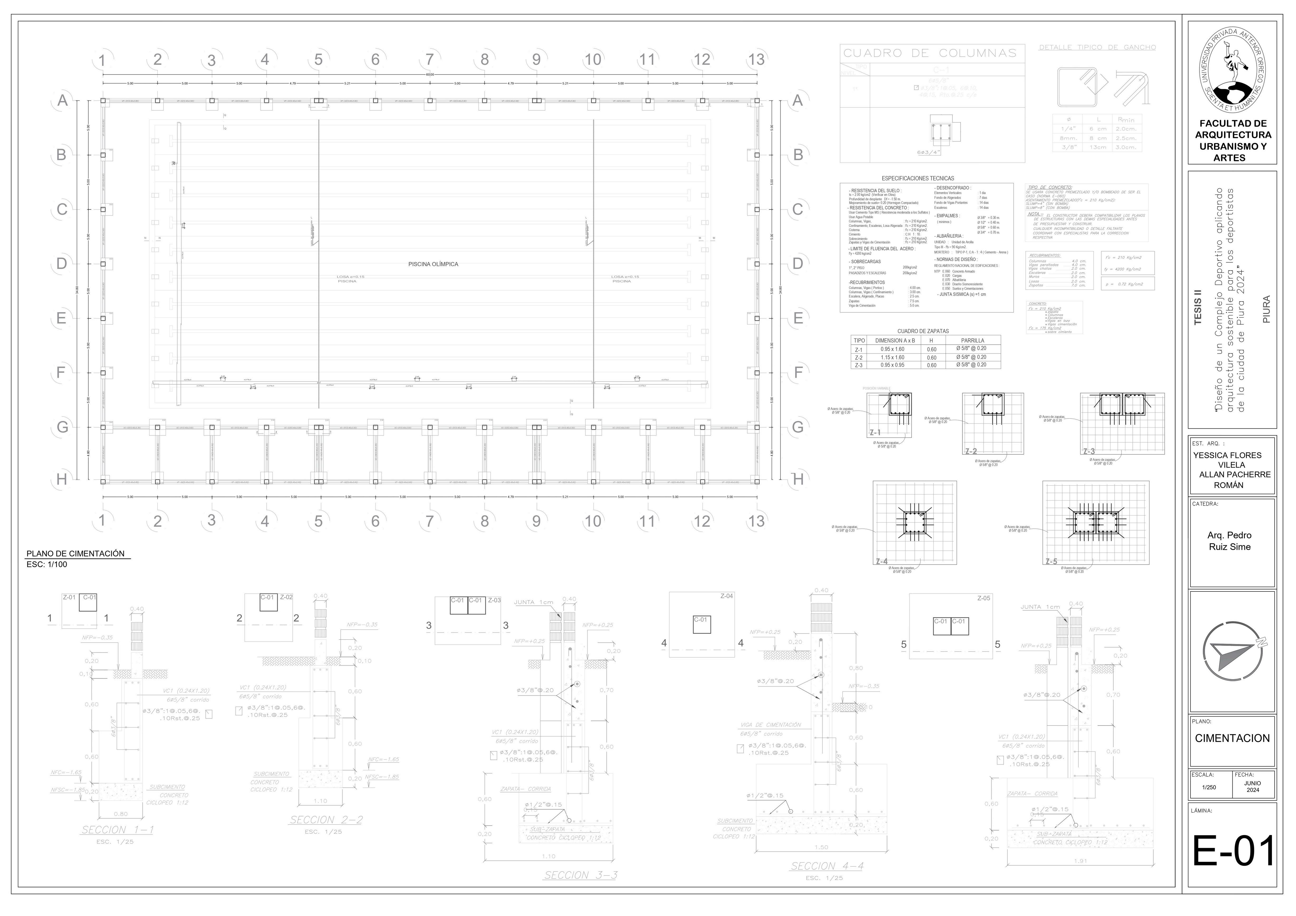
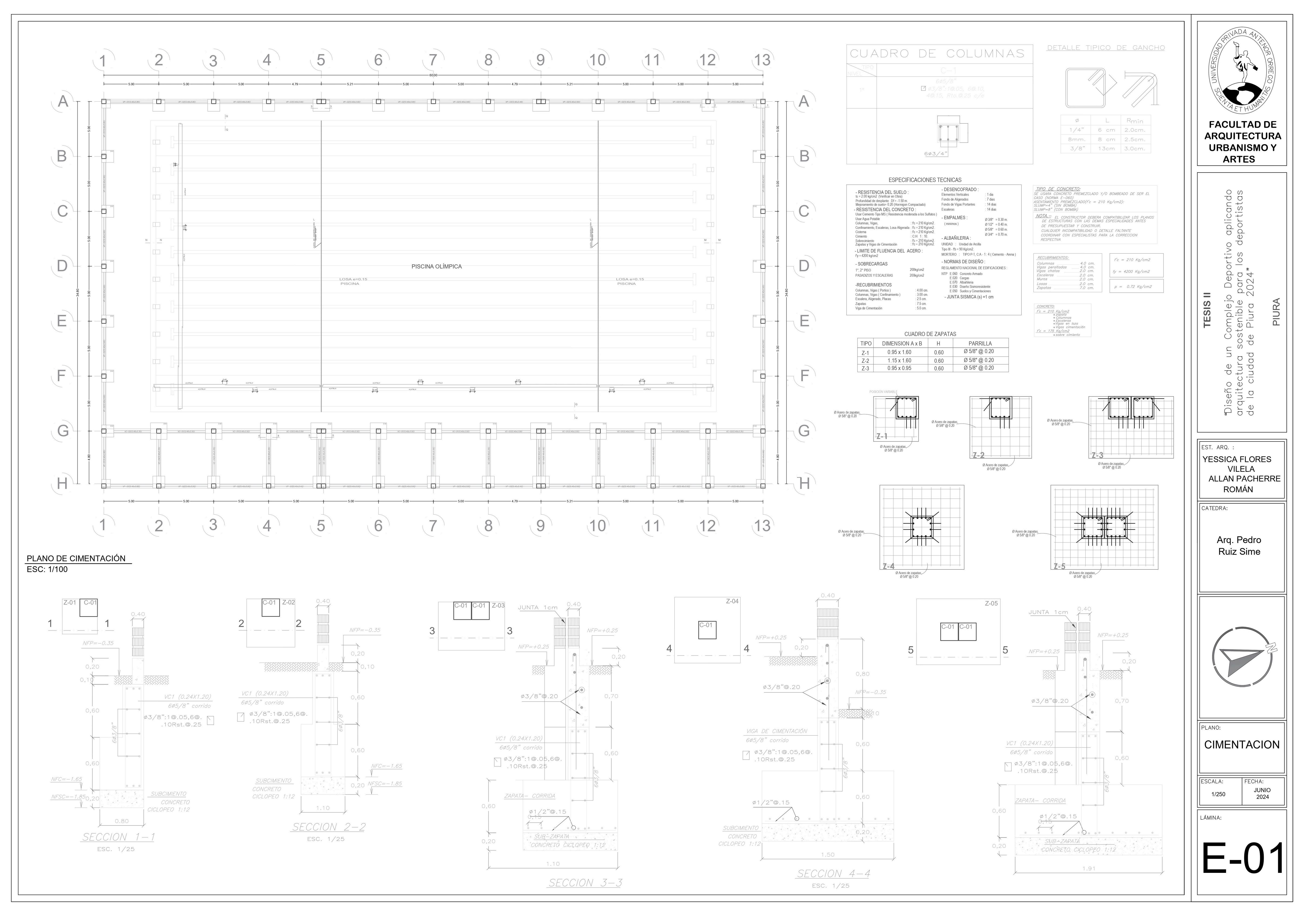
DISEÑO DE ELEMENTOS ESTRUCTURALES - SECTOR A BLOQUE PABELLÓN DE DISEÑO DE ELEMENTOS ESTRUCTURALES - SECTOR A BLOQUE PABELLÓN DE

NATACIÓN NATACIÓN

COLUMNAS COLUMNAS

VIGAS VIGAS

ZZAPATAS APATAS

VIGAS DE CIMENTACIÓN VIGAS DE CIMENTACIÓN

ETALLE CUBIERTA ETALLE CUBIERTA

PANEL TERMOAISLANTE TIPO SANDWICH
ESTRUCTURA METALICA SOBRE SISTEMA APORTICADO CERCHA PRINCIPAL
PERFIL CERCHA DE ACERO PARA COBERTURA INCLINADA COLUMNAS Y VIGAS DE ACERO

UBICACIÓN DE REGISTROS Y BUZONES

UBICACIÓN DE REGISTROS Y BUZONES

UBICACIÓN DE ZONAS HÚMEDAS UBICACIÓN DE ZONAS HÚMEDAS

DETALLE

DE GRASA ISOMETRICO I.S DE COCINA ISOMETRICO I.S DE COCINA

DETALLE LAVADERO DE COCINA 2 POZAS
DETALLE LAVADERO DE COCINA 2 POZAS
DETALLE TRAMPA DE GRASA
TRAMPA

Cuarto de cisternas

Red de agua principal

Red de agua interna

MIENTO GENERAL MIENTO GENERAL

tro proyecto se ha a conexión directa a la te en la cercanía del Se está utilizando e impulsión PVC Ø 2” an la red principal con de cisternas, estas agua por toda la red jo deportivo. dimensionamiento del e utilizará un sistema de ento de agua a la de agua potable, en el área de servicios que contendrán droneumáticas para un ontrol.

DIMENSIONAMIENTO DE CISTERNA

DIMENSIONAMIENTO DE CISTERNA

Teniendo en cuenta la magnitud y escala del complejo deportivo se optó por el uso de bombas hidroneumáticas que utilizaran un sistema de impulsión directo, esto para evitar el uso de tanques elevados en cada sector, puesto que por la tipología de los techos no son viables.

CRITERIOS PARA EL DIMENSIONAMIENTO DE CRITERIOS PARA EL DIMENSIONAMIENTO DE CISTERNA CISTERNA

Para el cálculo de cisterna tomaremos un 100% de la demanda en agua potable, la cual servirá y abastecerá a cada sector del proyecto, tenemos en consideración el siguiente cálculo de dotación de agua potable:

CÁLCULO DE DOTACIÓN DE AGUA - SECTOR

CÁLCULO DE DOTACIÓN DE AGUA - SECTOR

A BLOQUE PABELLÓN DE NATACIÓN A BLOQUE PABELLÓN DE NATACIÓN

DETALLE DE CONEXIÓN DE DETALLE DE CONEXIÓN DE

TABLERO DE DISTRIBUCIÓN TABLERO DE DISTRIBUCIÓN

DETALLE DE SALIDAS
DETALLE DE SALIDAS

DESARROLLO DE INSTALACIONES ELECTRICAS DE PABELLON PISCINA

DESARROLLO DE INSTALACIONES ELECTRICAS DE PABELLON PISCINA

DIAGRAMA UNIFILAR DIAGRAMA UNIFILAR

DETALLES DETALLES

CUADRO DE CARGAS CUADRO DE CARGAS

Turn static files into dynamic content formats.

Create a flipbook
TALLER DE INGENIERIA GRUPO 02 by Allan Pacherre - Issuu