
WELCOME Package Nº3

This package continues the refinement of the preferred design direction, following our recent meeting and discussion. The focus at this stage has been to strengthen spatial clarity, refine key relationships within the plan, and further resolve how the home functions day-to-day.
With the overall architectural language and material palette now established, this iteration concentrates on targeted adjustments to layout, orientation, and use — ensuring the home performs intuitively for your family while remaining aligned with the original design intent.
As we move forward, the project is beginning to shift toward early coordination and validation. Subject to your approval of the floor plan and overall direction, the next steps will include engaging with SIREWALL to review feasibility, cost, and integration of the rammed earth system using site-won material, alongside preliminary energy modelling (ECCHO) to test and refine the thermal performance strategy.
Following this, we will begin preparing a coordinated set of drawings for preliminary costing with a quantity surveyor.
NEXT STEPS
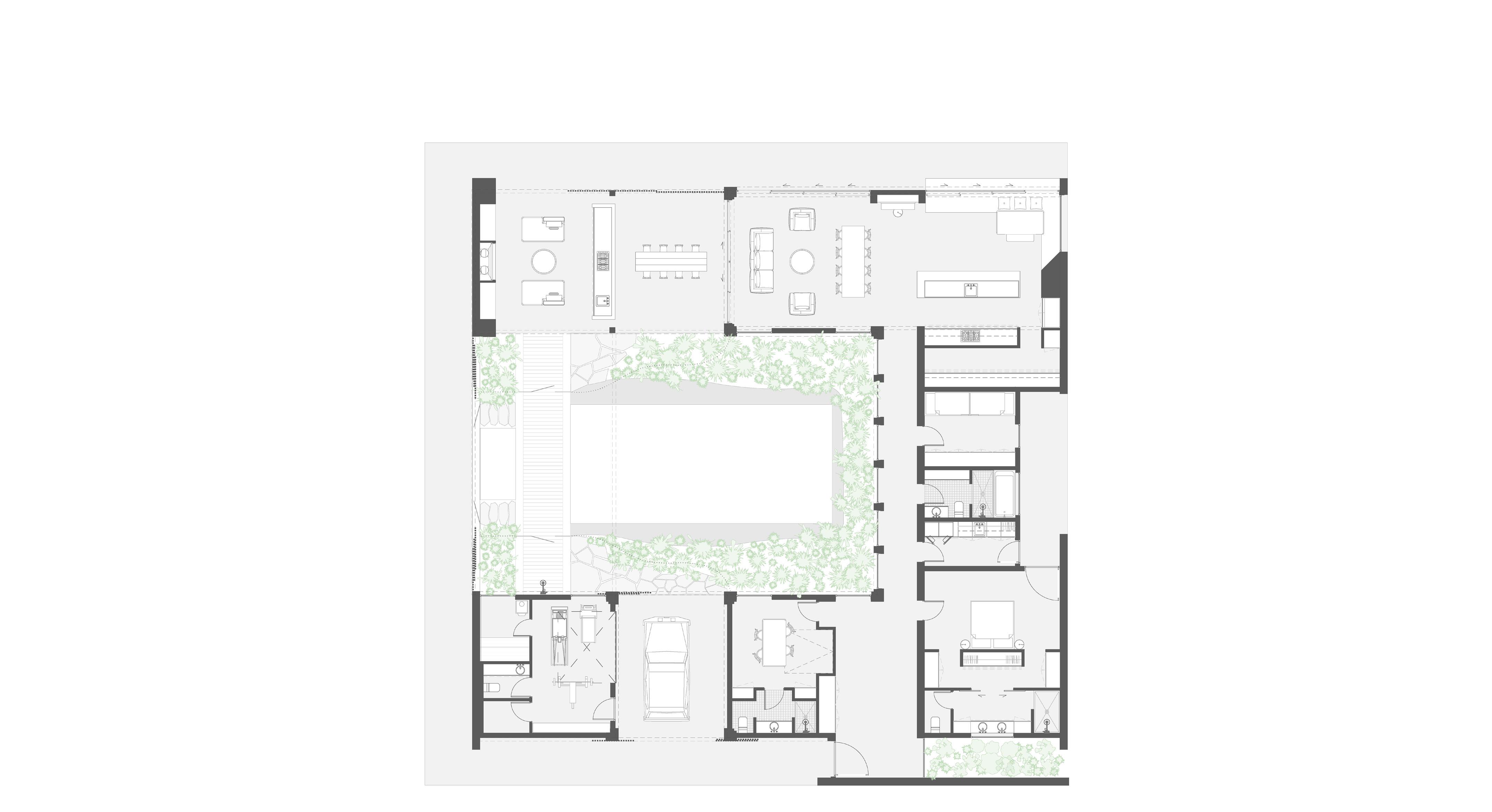
PRELIMINARY FEEDBACK


Our recent discussion focused on refining the spatial plan to strengthen daily function, key moments, and alignment between layout, orientation, and architectural intent.
The building has been rotated 10 degrees east to improve access to morning light while remaining within the established platform. The mudroom has been repositioned closer to the entry and master suite, with the bunk room adjusted accordingly.
The kitchen and scullery have been reconfigured to prioritise northern outlook and efficiency, with a full walk-in scullery allowing clearer workflow and sightlines across living spaces. A new seating nook has been introduced as a primary daily-use area, positioned to capture morning sun and views, with built-in rammed earth seating extending to the exterior.
The former third bedroom has been revised to a flexible space with a Murphy bed and simplified ensuite, while the gym and sauna zone has been rationalised to include a dedicated mechanical room.
The natural pool has been resized to 11m x 5m, with a refined fencing strategy and integrated screening to improve usability across seasons. A library and piano area has also been introduced along the main entry axis as a central feature of the home.

House on the Prairie

The western approach remains consistent in its architectural intent, with minor refinements to the proportion and integration of screening elements. The composition continues to be defined by two rammed earth walls anchoring the home, with the central courtyard and natural pool held between.
Sliding shutters are now supported by integrated insect screening and wind-diffusing mesh, improving performance and usability while maintaining the clean architectural expression.

long and low roofline


large eaves with rammed earth base + charred timber cladding

INSPIRATION
The material palette is durable and performance-driven. Rammed earth walls are proposed as a SIREWALL system — a doublewythe rammed earth assembly with rigid insulation between — providing thermal mass, improved thermal performance, and long-term durability, while acting as a solid barrier to western sun and wind. Charred timber cladding offers low maintenance and UV resilience, introducing depth and contrast to the heavier elements.
A continuous low roof wraps the courtyard on all sides, reinforcing a simple, symmetrical form. Exposed rafters at outdoor living areas express structure and soften transitions between interior and exterior spaces.


covered outdoor areas with exposed rafters

rammed earth extending into interiors

House on the Prairie

The southern entry sequence has been refined to improve clarity and use. The repositioned mudroom now sits closer to both the entry and master suite, strengthening daily function.
The carport, gym, and sauna arrangement remains consistent, with the removal of the internal shower allowing space for a dedicated mechanical room. Visual connection through the entry sequence is maintained, with controlled sightlines directed toward courtyard and garden spaces.









