Skip to main content

Preliminary Package - Muddy Creek

Page 1


ARCHITECTURE + DESIGN STUDIO

CLIENT

PACKAGE

Preliminary LOCATION

DATE 19 Sept 2025

Muddy Creek
Omakau, Otago

WELCOME Package Nº2

This package marks the beginning of Stage B3 — the Preliminary Design phase — where we take your preferred concepts and begin shaping them into a more resolved, buildable design for Muddy Creek Café. Based on your feedback from the Concept Package, we’ve refined the relationships and proportions of spaces, tested the flow and functionality of both the café and the proposed apartments, and started folding in practical considerations such as seismic strengthening, rubbish storage, and service access.

The ideas presented here are more developed than the initial concepts, but still open enough for dialogue and adjustment. This is an exciting step — moving from broad possibilities toward a clear and cohesive direction that supports your business model, property investment goals, and community vision for Muddy Creek Café.

002 Nº27

NEXT STEPS

CONCEPT FEEDBACK

SUMMARY

Following your review of the Concept Package and our subsequent discussions, this section presents the chosen concept for Muddy Creek Café. It combines your preferred elements from the initial scenarios into a single, more resolved scheme — one that maximises indoor seating, improves flow between front and back of house, and sets up the second-floor apartments for long-term investment.

On the following pages you’ll find a summary of your feedback and how it’s being incorporated, before diving into the updated design.

Muddy Creek

THE CONCEPT

Concept 001 takes the most conservative approach to renovation, working primarily within the existing building envelope to maximise adaptive reuse and minimise structural intervention.

The outcome is a warm, functional, and cost-conscious renovation that gently shifts the building toward its next chapter. Concept One

It honours the charm and quirks of the original building, while subtly reconfiguring the layout to unlock the site’s strongest asset — the sun-filled north-east courtyard.

By relocating back-of-house functions and opening up frontof-house activity to the street, this scheme breathes new life into the café without compromising its character.

SPATIAL PLAN

ENTWINING FUNCTION AND DESIGN

Scale 1/100

Back-of-house functions are consolidated along the utility corridor that backs up against attached neighbors, freeing the north-eastern edge for a generous courtyard connection and seamless indoor-outdoor dining.

Kitchen and service zones are bunkered against this internal boundary, creating a clean and welcoming front-of-house space that opens directly to Harvey and Wilson Streets via new pedestrian doors while also utilising the existing accessible ramp access.

A refined counter layout balances function and atmosphere — placing support appliances out of sight, while framing homemade goods and the beer tap as focal points. Circulation behind the counter is kept open and clutter-free, prioritising guest experience and staff efficiency.

Kenetic partitions dissect the space to allow for flexible dining experiences and duality. For example, the beer tap can service the general public and outdoor beer garden, while the partitions can close and allow the kitchen to service a more formal dining experience.

1. Open dining / Fixed and flexible seating
2. Sliding partitions / Space separation 3. Bathrooms / Accessible + Unisex 4. Drinks fridge / Ice-cream / Water
Coffee / Ice
Food Cabinet
Beer Taps
Kitchen
Cleaning
Fridge
Freezer
Outdoor dining / Firepit
Muddy Creek

SPATIAL PLAN

UPPER LEVEL

ENTWINING FUNCTION AND DESIGN Scale 1/100

Above the café, two highly efficient single-bedroom apartments share a common north-east facing deck that provides outdoor space, passive shading, and morning light. Each unit includes a full kitchen, laundry, bathroom, robe, and open-plan living/dining area — carefully arranged around a central services spine to optimise plumbing and utility routes.

This arrangement reduces build complexity, simplifies maintenance, and maximises natural light and privacy. The apartments are compact but dignified — contributing muchneeded housing diversity to the area.

1. Apartment access / East facing deck 2. Apartment 001 / One Bed / One Bath 3. Apartment 002 / One Bed / One Bath 4. Mechanical Deck
Muddy Creek

CONCEPT FEEDBACK

MAXIMISE INDOOR SPACE + INVESTMENT VALUE

• Explore whether the outdoor area can be built over to add internal square metreage.

• Prioritise indoor seating rather than more outdoor seating.

• Retain as much of the exterior brick as possible but gut the interior for new structure.

• Second-floor apartments should be compact but efficient, with potential for resale value and limited visual impact and disturbance.

STRUCTURAL + BUILDING CONSIDERATIONS

• Clarify seismic reinforcement requirements

• Reduce parapet height where possible and use a flashing cap rather than concrete.

• If possible, keep the existing roof (due to asbestos) and work beneath it.

• Treat fragile brick façade as a “skin” with a new structure inside.

• Green colour of Concept 1 and timber cladding/slatted screens of Concept 2 preferred.

• Not keen on the brick lattice — would prefer moveable slatted screens to control shade/light.

• Bistro name loved!

CAFE OPERATIONS + FLOW

• Maintain clear flow between back-of-house and front-of-house with a pass.

• Consider a walkway behind the café counter so barista and cabinet staff can move easily and keep eyes on guests.

• Split barista and food/till sides to avoid bottlenecks.

• Dishwashing area must be quick to access from front-of-house, with food scraps management nearby.

• Provide a larger, practical rubbish bin area — potentially integrated under the staircase, or screen from street front.

APARTMENTS + ACCESS

• Concept 4 preferred for the upper floor — simpler and more buildable.

• Spiral staircase not code-compliant; external stair needs to be an accessible stair and could house bins underneath.

• Bike storage space welcomed.

• Explore potential for a third flat or larger units if building over outdoor area is possible.

CLIENT PROFILE / MUDDY CREEK CAFE

Guided by Alice and Marie’s feedback, the design process has moved from broad concepts to a more refined scheme — testing how best to balance indoor seating, operational flow, and long-term investment value. The priorities and questions you’ve raised form the foundation of the revised preliminary design on the following pages.

Each adjustment — from layout and flow to structure, aesthetics, and the upper apartments — has been tested against your feedback to ensure it supports your customer experience, service efficiency, and structural strategy for both the day-to-day running of the café and the future adaptability of the property. The pages ahead show how these ideas have been woven into a more resolved scheme, while still leaving room for dialogue and fine-tuning together.

Muddy Creek

parapet reduced, but to maintain existing clearances & coverage at existing roof - which is to remain

sliding timber shutters

bin screens

Preliminary One

Preliminary 001 takes the most conservative approach to renovation — retaining and reinforcing the existing doublewythe brick façade as a skin, preserving the roof where possible, and working primarily within the existing building footprint. This approach maximises adaptive reuse and keeps costs more predictable.

By reconfiguring back-of-house functions and opening up the front-of-house, this design improves operational flow and street appeal without compromising the charm of Muddy Creek Café.

DEMOLITION PLAN

The existing timber floors and joists are carefully removed to allow new footings and an insulated concrete slab to be poured to support new walls and services. The 1979 concrete block walls and roof on the east are demolished — these elements are fragile, detached from the building, and cause weather-tightness issues. Removing them creates a clean slate for new insulated timber construction, extended foundations, and an enlarged kitchen and café bar area.

Sections of the eastern brick wall are also removed to accommodate these changes, simplify construction tie-ins, and create a welcoming new entry door that captures the sightlines of visitors driving south on Wilson Street.

Alki Architecture + Design Studio, Preliminary Alice + Marie Muddy Creek

DEMOLITION PLAN

ROOF PLAN

The existing asbestos roof is retained and repainted to avoid disturbing hazardous material where possible. Construction sequencing and temporary support will be required on site so work can continue beneath the roof while the interior is fully gutted. Any new roof areas over extensions or demolished blockwork are built with insulated timber construction to meet modern performance requirements.

Parapets are reduced, but will still need to allow for the existing roof to tie in with sufficient apron flashings. Existing chimneys, however, are removed to reduce their susceptibility to earthquake damage and reduce earthquake strengthening when not a critical feature of the design or function of the café.

The existing awnings along Wilson Street and Harvey Street are removed.

SPATIAL PLAN

1. Open dining / Fixed and flexible seating

2. Bathrooms / Accessible + Unisex

3. Drinks fridge / Ice-cream

4. Barista / Front of house appliances

5. Food Cabinet / Beer Taps / Till

6. Kitchen w. pass

7. Dishwasher / Cleaning 8.

APPLIANCES

(below counter) l. dishwasher (below counter)

ENTWINING FUNCTION AND DESIGN

Scale 1/100

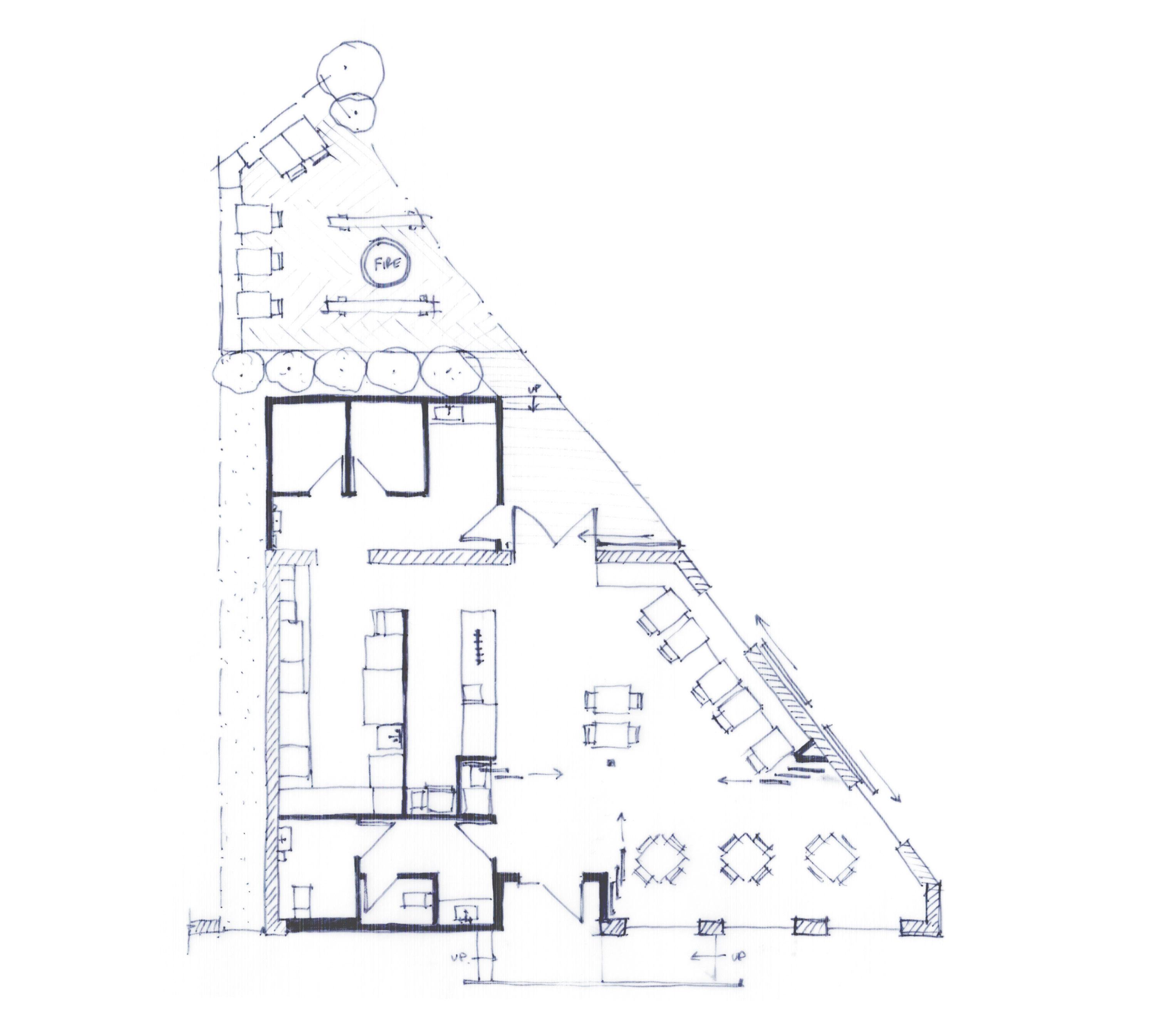
Back-of-house functions are consolidated along the northern utility corridor, freeing the south-eastern edge for generous indoor seating and a seamless connection to the courtyard — maximising the café’s most visible frontage. The existing ramp and stair are widened and slope reduced for full wheelchair accessibility, and the “bump-out” on the west façade has been removed and aligned with the exterior wall to gain additional seating space inside.

Within the café, a discreet dropped ceiling neatly houses the soda fridge and ice-cream freezer so everyday circulation remains clear and uncluttered. New bathrooms — one wheelchair accessible and one unisex — are tucked into the Harvey Street corner, freeing up the prime public zone for guests.

Built-in bench seating along the southern wall provides intimate nooks for smaller groups, while the open-plan layout accommodates larger tables and events. The barista station is positioned for clear sightlines to the dining area, with appliances like pie warmers and toasters tucked behind a screen wall — keeping “mess” hidden while maintaining efficiency and convenience. Above the stainless-steel-framed pass, integrated shelving displays local goods, coffee beans and glassware — turning the service zone into a point of interest and potential retail sales while adding visual warmth for guests. Together, these moves create a welcoming, flexible front-of-house environment.

SPATIAL PLAN

New insulated timber roof areas cover the extended kitchen, tied seamlessly into the existing roof. These new sections improve thermal performance and create clear runs for plumbing and services from the walk-in fridge and freezer to the beer taps at the new café bar, enabling a succinct, efficient service spine. ROOF PLAN 13

ENTWINING FUNCTION AND DESIGN

Scale 1/100

Alki Architecture + Design Studio, Preliminary Alice + Marie Muddy Creek

of house appliances hidden

screen shelving to frame pass

Inside, polished concrete floors create a durable, monolithic surface that’s easy to clean and unifies the space. Reclaimed brick from demolition is reused as wainscot around the perimeter and to form the barista and food cabinetry — a tactile nod to the building’s heritage. Rimu floorboards are repurposed as wall linings where possible, softening the interior and adding warmth.

The centre walkway divides the barista zone from the till and cabinet display, while keeping appliances like pie warmers and toasters tucked out of sight yet within arm’s reach. A stainless steel “picture frame” pass with shelving above doubles as a retail display for local artisan goods, coffee beans, and glassware. Together, these moves create a calm, efficient environment where staff have clear sightlines and guests experience atmosphere over clutter.

reclaimed brick wainscot
reclaimed brick cabinetry fronts
slatted

Sliding shutters

Green Plaster + Planters

Exterior walls are finished in rich green plaster over the existing brick, accented with dark vertical board-and-batten cladding and sliding timber shutters for light control and visual excitement. Interior finishes pair polished concrete floors with reclaimed timber linings and stainless steel counters, balancing resilience with warmth. A dark, acoustically-softened ceiling creates intimacy and manages reverberation, complemented by generous planting in large planters to bring natural greens inside and echo the façade.

MATERIAL PALETTE

slatted timber cladding

ramp and stairs upgraded to meet accessibility requirements

Preliminary One Fin.

From the south-east the renovated Muddy Creek Café + Bistro reads as a confident yet sympathetic update — green plastered brick grounded with timber accents, sliding shutters, and a new entry that frames views from Harvey Street.

It is a warm and functional renovation that gently shifts the building toward its next chapter, combining operational clarity with a vibrant street presence.

Break

Preliminary

Two

Preliminary 002 develops the first concept into a more ambitious scheme. It retains the same lower-floor plan and operational flow as Preliminary 001 but removes the existing asbestos roof and parapets to create a new floor substrate for two compact one-bedroom apartments above. This approach maximises the building’s long-term investment value while maintaining a strong, efficient café at ground level.

The external stair is tucked into the north-eastern courtyard, providing direct access to the apartments and discreetly housing screened bin storage beneath. This version explores how the café and back-of-house remain unchanged at ground level while introducing an efficient upper-floor plan and shared services spine — balancing day-to-day café operations with a future-proof property investment.

Rubbish area under staircase

DEMOLITION PLAN

Everything on the lower floor remains the same as in Preliminary 001. The existing timber floors and joists are removed for new footings and an insulated concrete slab, while the 1979 concrete block walls are demolished to allow new insulated timber construction and an enlarged kitchen and café bar area. The screened bin area is now located beneath the new external stair, maintaining convenient backof-house access while keeping waste out of guest areas.

Muddy Creek

DEMOLITION PLAN

ROOF PLAN

In addition to the removals described in Preliminary 001, this scheme demolishes all parapets and the existing asbestos roof to make way for the new apartment floor structure above. The design allows sufficient space between the café ceiling and the apartment floor to house plumbing, electrical, and mechanical services for both levels, as well as routing kitchen exhaust to the new mechanical deck on the upper floor. Temporary support and careful sequencing will be required to protect the existing brick façade during this work.

Muddy Creek

SPATIAL PLAN

LOWER LEVEL

1. Open dining / Fixed and flexible seating

2. Bathrooms / Accessible + Unisex

3. Drinks fridge / Ice-cream

4. Barista / Front of house appliances

5. Food Cabinet / Beer Taps / Till

6. Kitchen w. pass

7. Dishwasher / Cleaning

8. Fridge

9. Freezer

10. Outdoor dining / Bike storage

11. Understair trash area

12. Accessibility ramp

APPLIANCES

a. soda fridge

b. ice-cream freezer

c. coffee grinder

d. coffee machine

e. microwave

f. toaster

g. pie warmer

h. milk/beer fridge (below counter)

i. till

j. food cabinet

k. freezer/ice (below counter)

l. dishwasher (below counter)

m. dishwasher

n. dish sink

ENTWINING FUNCTION AND

DESIGN

Scale 1/100

All back-of-house functions are consolidated along the northern utility corridor, creating a single, efficient service spine for deliveries, food prep and storage. A central walkway between barista and till reduces bottlenecks and gives staff an easy path between back-of-house and the café floor.

The dishwasher and food-scraps bins sit right at the junction between kitchen and back-of-café counter — close enough to receive plates and cutlery from front-of-house but separated from food preparation zones. This nook doubles as a small staff cleaning area with a coat hanging space for convenience. Adjacent to the cleaning nook and fridge/freezers is a new door leading out to a screened rubbish bin area tucked neatly under the new external stair; this makes taking out waste quick and direct without crossing guest areas or main circulation routes within the kitchen. A handwash station is located at the new door for convenience and hygiene.

The cooking and prep zones are arranged as a single compact spine, lined on both sides with equipment so staff pivot rather than walk long distances. This layout keeps food preparation, cleaning and service within arm’s reach while maintaining a clear separation between messy tasks and guest sightlines. Above the stainless-steel-framed pass, integrated shelving displays local goods, coffee beans and glassware — a hard-wearing, easy-toclean feature that also increases retail potential. Together, these moves create a compact, pivot-based kitchen workflow with clear, efficient staff circulation and service.

food scraps

handwash station

oven

pizza oven

service freezer

toaster

microwave

gas

grill

fryer

SPATIAL PLAN

UPPER LEVEL

ENTWINING FUNCTION AND DESIGN Scale 1/100

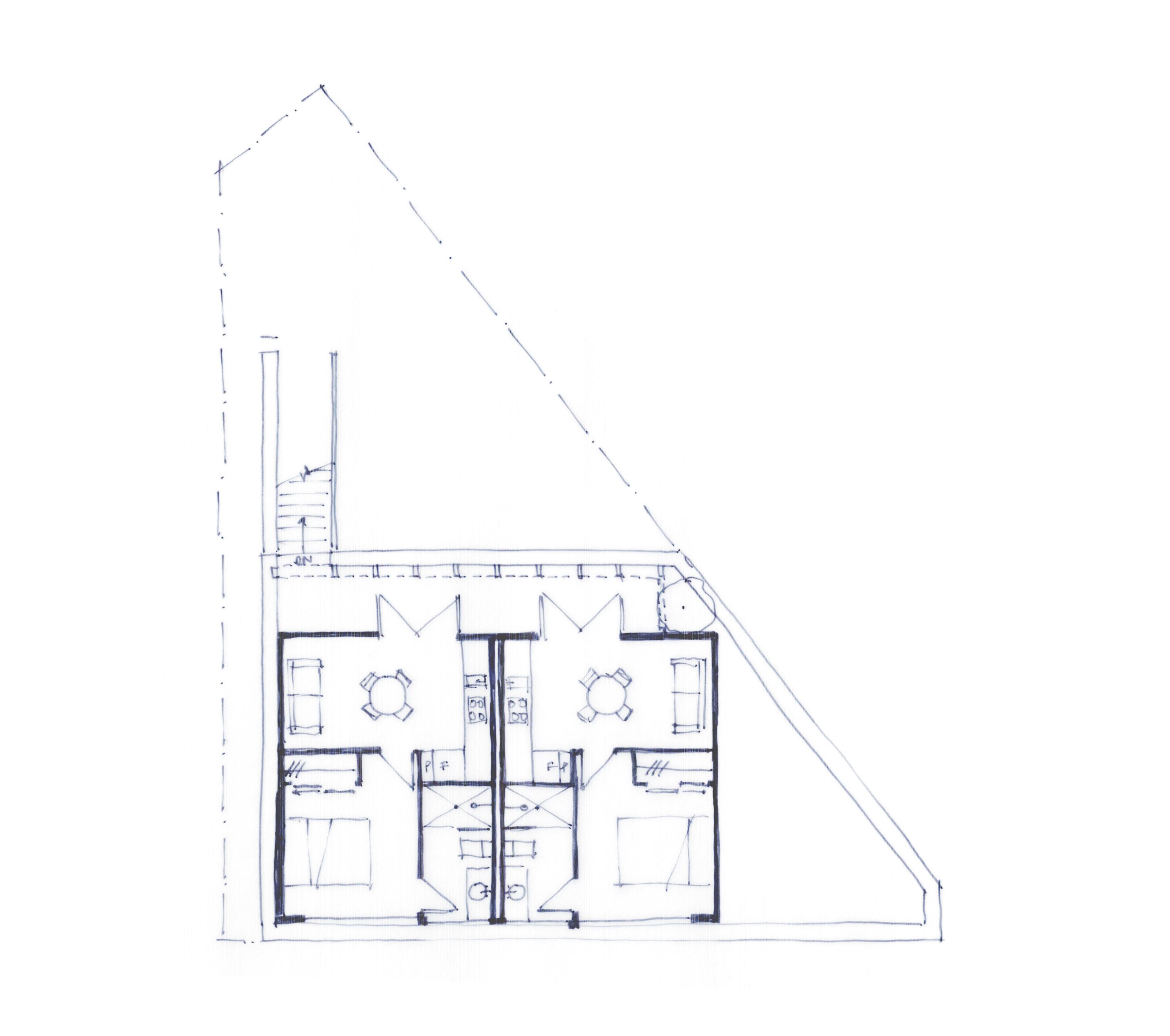
Above the café, two compact 30 m² one-bedroom apartments are introduced. Both feature an ensuite, full kitchen and open living area, strategically arranged to share a central services spine for plumbing and mechanical systems. Morning sun from the east fills the open living spaces, while smaller windows to the west minimise street noise, privacy issues and overheating from the setting sun.

The external stair starts in the north-eastern courtyard, providing access to a shared deck for the two apartments and screening bin storage beneath. This arrangement keeps the café’s groundfloor footprint free for guest use while offering separate access for residents. The north façade is treated as a fire wall with no openings, and the south façade faces a compact mechanical deck to house kitchen and apartment services. Together these moves create efficient, low-maintenance accommodation that adds long-term property value while respecting the café below.

1. Apartment access / East facing deck
2. Apartment 001 / One Bed / One Bath 3. Apartment 002 / One Bed / One Bath
Mechanical Deck

SPATIAL PLAN

ROOF PLAN

ENTWINING FUNCTION AND DESIGN

Scale 1/100

Above the new upper level, a simple low-slope roof spans the apartments. This restrained profile avoids mixing roof styles (no gables above a flat café roof), giving the building a cohesive silhouette and keeping the added height visually discreet.

23 Alki Architecture + Design Studio, Preliminary Alice + Marie Muddy Creek

The interior of the upper apartment is conceived as a compact yet light-filled retreat. Morning sun streams through the north-east facing glazing, illuminating the open living area and connecting it visually to the shared deck outside. Generous glazing frames views to the deck and surrounding landscape, blurring the threshold between inside and outside and making the 30 m² footprint feel larger.

This layout offers a flexible blank canvas for singles or couples — efficient yet airy, with clear zones for living, dining and cooking while maintaining privacy for the bedroom and ensuite. The simple, open plan invites future residents to make it their own while benefiting from a bright, well-oriented and highly practical space above the café.

upper level deck + fall protection

The upper-level apartments use timber cladding to match the café below, with a horizontal timber “cap” breaking up the vertical presence of the new height. Interior finishes pair polished concrete floors with reclaimed timber linings and stainless steel counters, balancing resilience with warmth. A dark, acousticallysoftened ceiling creates intimacy and manages reverberation, complemented by generous planting in large planters to bring natural greens inside and echo the façade. Timber windows and doors

Brick wainscot - using reclaimed brick from demolition
Timber joinery + wall linings
MATERIAL PALETTE
Exterior Staircase with storage below

fall protection

Two Fin.

From the south-east, the expanded Muddy Creek Café + Bistro reads as a confident yet sympathetic update — green plastered brick grounded with timber accents, sliding shutters and a new entry that frames views from Harvey Street, while the upper-level apartments are discreetly expressed above.

It is a warm, functional and future-focused renovation that gently shifts the building toward its next chapter, combining operational clarity, additional income potential and a vibrant street presence.

Slatted

NEXT STEPS

NEXT STEPS

YOUR REVIEW Take your time to explore each design. How does the lower level cafe feel? And how do the apartments above align with your investment portfolio?

OUR REVIEW Let’s book in a zoom call once you're ready to review together. From this point, we will look at obtaining some preliminary quantity surveying. Understanding the cost implications of each design, so you can understand the financial advantages (and disadvantages) to inform what design we wish to move forward with in more detail.

Turn static files into dynamic content formats.

Create a flipbook
Preliminary Package - Muddy Creek by alki.design - Issuu