Skip to main content

Preliminary Package - Matier Residence

Page 1


Sarah + Reece Matier

WELCOME BACK

Package Nº1

This package marks the beginning of Stage B3 — the Preliminary Design phase — where we take your preferred concept and begin to shape it into a more resolved design.

At this stage, we refine the relationships and proportions of spaces, test the flow and functionality, and begin coordinating input from other consultants. Any refinements to your brief are also folded in, ensuring the design continues to align with your goals, lifestyle, and budget.

The ideas presented here are more developed than the initial concepts, but still open enough to allow for dialogue and adjustment. It’s an exciting step — moving from broad possibilities toward a clear and cohesive direction for your new home.

002

NEXT SEPS

CONCEPT FEEDBACK

SUMMARY

Your feedback on Concept Three highlighted the strengths of the ‘H’ design — particularly the way it frames views eastward to the river and creates a sheltered courtyard protected from the prevailing winds. You appreciated the placement of bedrooms to the south for cooler, restful spaces, balanced with light-filled living areas that open to the sun and outdoor flow.

Key refinements you’d like to explore include bringing the kitchen further into the living space for better connection while entertaining, adding a semi-self-contained studio for visiting parents, and ensuring their outdoor space still captures sunshine and views. You also suggested exploring a more pronounced entry with powder room, as well as testing a garage/office swap for improved functionality and StrawSIP for natural performance.

CONCEPT FEEDBACK
+ Reece Matier Residence

THE CONCEPT...

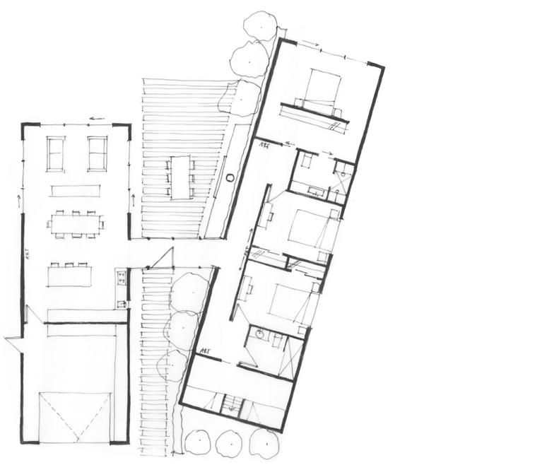
Concept Three

This design is anchored in an 'H'-shaped plan — a thoughtful balance of form and function that centres daily life around two protected courtyards. The heart of the home is a glazed bridge connecting two distinct wings: one for living, one for rest.

The home is designed to frame light, choreograph movement, and hold space for both solitude and connection. Every spatial move is intentional — from framed views to acoustic buffers — resulting in a home that quietly supports the everyday needs of a growing family

SPATIAL PLAN

ENTWINING FUNCTION AND DESIGN

The northern wing houses the garage, laundry, and kitchen/ living areas — designed for practical living with a smooth flow from arrival to unloading groceries directly into the pantry. The kitchen is acoustically buffered from the garage and visually open to both courtyards, offering views to arriving guests and into the main living space.

A built-in low shelving unit defines zones without severing

the open-plan connection between dining and lounge. The southern wing contains bedrooms and study spaces, stepping gently with the site and daylight. A master suite occupies the eastern end for privacy and views, while two guest rooms, a shared bathroom, and a flexible bunk/office room complete the wing with layered functionality and future adaptability.

Garage + laundry + storage
Entry 'bridge'
Kitchen
Dining
Living
Entry couryard
Sheltered courtyard + fire
Master suite
Robe
Master ensuite
Bedroom one
Bedroom two
Bathroom

CLIENT PROFILE / REECE + SARAH MATIER

Guided by Sarah and Reece’s feedback, the design process has moved from broad concepts to more refined explorations — testing how best to balance light, shelter, and connection to the landscape. Each iteration has been an opportunity to weigh lifestyle, materiality, and performance against both the rhythms of everyday family life and the long-term adaptability of the home.

Through these explorations, Sarah and Reece have clarified what feels most aligned with their values: spaces that nurture calm, welcome community, and remain closely tied to nature. With these priorities at the forefront, the preliminary design now weaves together the strongest ideas — refined and evolved through the thoughtful changes we discussed in person.

6 Alki Architecture + Design Studio, Preliminary Sarah + Reece Matier Residence

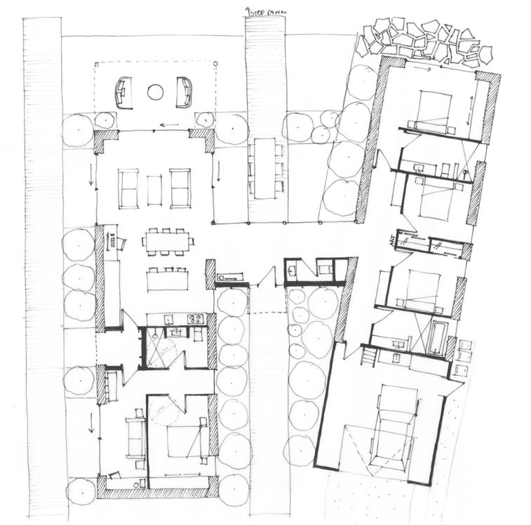
Design 001 revisits the ‘H’-shaped plan, anchoring daily life around two sheltered courtyards. At its core is a glazed bridge connecting the living and bedroom wings, reconfigured to include a clear entry sequence and a powder room for guest convenience.

Both wings use simple monopitch rooflines to reduce structural complexity and cost, while the northern wing is oriented to optimise a future solar panel array — supporting long-term energy efficiency and resilience.

Future Timber Trellis + Shade
Clerestory Windows

SITE PLAN

SPATIAL PLAN

ENTWINING FUNCTION AND DESIGN

The northern wing houses the kitchen, dining, and living spaces, designed for both daily family life and entertaining. At the western end of this wing, a new semi-self-contained studio provides a private, accessible space for visiting parents — complete with kitchenette, living, bathroom, and outdoor seating.

The 1.5-car garage provides generous storage and a laundry with direct outdoor access, positioned adjacent to a bathroom to consolidate services along one wall for cost efficiency and acoustic performance.

The southern wing is dedicated to rest, with a master suite (now simplified with built-in wardrobes) and two guest bedrooms, supported by a bathroom and hallway-accessible linen storage. The new entry sequence introduces a powder room and a dedicated place for furniture — a bench seat or side table for daily essentials — with a minimalist canopy to frame and enhance the presence of the main entry.

1. Garage + laundry + storage
Entry 'bridge'
Kitchen
Dining
Living
Entry courtyard with canopy 7. Sheltered courtyard + fire 8. Master suite
9. Robe
Master ensuite
Bedroom one
Bedroom two
Bathroom + built-in tub
Linen + storage
Power room
Mechanical
Self contained unit
Boardwalk
+ Reece

One

The northern façade highlights the home’s layered environmental strategies: sliding shutters provide adjustable solar control and privacy, while also animating the exterior with shifting patterns of light and shadow. A timber boardwalk runs along the façade, softening circulation and blurring the line between garden and architecture.

These elements work together to ground the home in its landscape, protect against climatic extremes, and create an everyday experience that is both functional and beautiful.

Timber Cladding accents

INSPIRATION

Clad primarily in corrugated iron for durability and cost efficiency, the two wings are softened by moments of timber — shiplap with battens along the glazed bridge, and timber details at key entry points. Sliding shutters to the north regulate heat and privacy, adding rhythm and softness to the façade. Together with the monopitch rooflines and boardwalk circulation, these external features draw on the rural vernacular of Central Otago sheds and miners’ cottages, while introducing subtle warmth and refinement. The aesthetic is robust and timeless, grounded in place yet welcoming in character.

Corrugate with Timber accents
Sliding Shutters
Boardwalk Circulation
Exagerated Sliding Doors

Design 001 provides a highly functional, resilient family home that adapts to lifestyle needs while respecting budget and performance goals. By simplifying circulation, consolidating services, and refining the spatial plan, it enhances liveability while reducing unnecessary complexity.

The reconfigured entry, additional powder room, and semi-self-contained studio elevate functionality, while careful orientation ensures passive comfort. Durable, lowmaintenance materials and thoughtful details position the home as both pragmatic and poetic — a place that balances cost efficiency with long-term quality.

Break

Recommended removal of clerestory

Preliminary Two

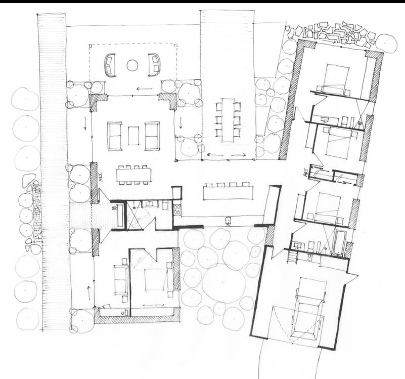
Design 002 retains the strength of the ‘H’-shaped plan, but relocates the kitchen into the central bridge, making it the true hearth of the home. From this position, the kitchen becomes the anchor point of daily life — visually connected to dining, living, both courtyards, and out toward the river and gardens.

This shift also reduces the overall footprint by 5m², offering cost efficiency while improving centrality and flow. The monopitch roofs remain consistent with Design 001, allowing for a solar panel array on the northern wing to support longterm energy resilience.

Future Timber Trellis + Shade

SITE PLAN

SPATIAL PLAN

ENTWINING FUNCTION AND DESIGN

At the centre, the relocated kitchen becomes the hub — visually and functionally linked to living, dining, and outdoor spaces. From the sink, Sarah can look west to the driveway, east to the sheltered courtyard, or across the heart of the home.

The northern wing is now reduced in size, holding the living and dining areas, as well as the semi-self-contained studio for visiting parents. This studio retains its private entry and accessible layout, with kitchenette, bedroom, bathroom, and outdoor seating.

The southern wing remains dedicated to rest, with a master suite and two guest bedrooms. The children’s bathroom reinstates the toilet, while circulation has been streamlined with linen storage along the hallway.

On the northern side, the elevation is defined by the interplay of sliding shutters, boardwalk circulation, and a stone wall that marks the point of entry. The shutters provide adaptable control over sunlight and privacy, while the timber boardwalk softens movement along the façade, encouraging the garden to weave into the architecture.

The stone wall gives the entry a clear visual anchor — a cue of welcome and solidity — while also buffering wind and screening neighbouring views. Together, these elements create a façade that is practical, sheltered, and deeply rooted in its Central Otago context.

PROJECT INSPIRATION

Fieldstone features Built-in Tub + Shower

INSPIRATION

The material palette mirrors Design 001, but here the focus is on interiors — robust, natural, and tactile. Concrete floors provide durable thermal mass, while natural plasters soften walls with texture and breathability. Timber linings bring warmth to ceilings and key details, elevating the kitchen at the heart of the plan into a warm, social anchor. The mood is one of simplicity and groundedness, with courtyards and planting softening the volumes, creating a calm, lived-in quality from day one.

High Ceilings + Plastered Walls + Concrete Floors
Laundry joinery
Simplified Large Sliding doors
Timber + Plaster

Design 002 strengthens the sense of daily rhythm by bringing the kitchen into the literal and figurative centre of the home. This improves sightlines, enhances family connection, and places the home’s most social space at the intersection of all key zones.

The adjustment also improves cost efficiency through a smaller northern wing, while preserving passive performance, flexibility, and long-term resilience. It remains a robust and adaptable family home, carefully tuned to site and climate, with daily practicality woven into every move.

NEXT STEPS

NEXT STEPS

REVIEW Take your time to explore each preliminary variation. Let’s catch up in person to walk through the designs together. I’ll bring the 3D model so we can explore the layout, materials, and sense of space in more detail.

REFINEMENT We'll look to focus on one design, bringing it into the modelling software to more formally determine a Site Plan, Preliminary Sections, Elevations, Floor Plans and Fenestration Schedules.

NEXT STEPS

Turn static files into dynamic content formats.

Create a flipbook