Skip to main content

Concept Package - Brown Residence

Page 1


+ Darrin Brown

WELCOME Package Nº1

This concept package marks the beginning of Stage B2 — where we translate early conversations, values, and site context into architectural possibilities.

Included in the following pages are three initial concepts for your new home at Clearview Street — affectionately dubbed the Happy Lorax Project. Each offers a different way the spaces could function, capture the lake views, and balance flexibility with market appeal. These early ideas are grounded in your brief: a four-bedroom, two-living home of approximately 200–220 m² with generous garaging, a scullery, and a luxurious master suite — designed to be simple, elegant, and timeless, with performance and beauty at its core.

They’re not final answers, but starting points — designed to spark conversation, test feasibility, and help clarify what will position the project most strongly in the market while still carrying a thread of warmth and artistry. I’m excited to explore these directions with you both and can’t wait to hear your thoughts.

NEXT SEPS

PRINCIPAL DESIGNER

YOUR TEAM

Charlotte Muschamp

Charlotte Muschamp is an award-winning Architect (USA) and the founding director of Alki Design, a Wanaka-based studio known for crafting high-performance, character-rich buildings across Aotearoa. With a strong foundation in both architecture and construction, Charlotte brings a thoughtful, hands-on approach to every project — where beauty, functionality, and sustainability go hand in hand.

Charlotte’s work is grounded in a deep respect for place, people, and the natural environment, with a design ethos that values natural materials, long-term performance, and soulful spatial experiences. As your lead designer, she is committed to creating a home that is elegant, flexible, and market-savvy — balancing comfort, resilience, and beauty with care and creativity to achieve a property that stands out in the high-end market.

3 Alki Architecture + Design Studio, Concept Kelly + Darrin Brown Residence

PROJECT SCOPE

SCOPE

This project involves the full architectural design and documentation of a new detached residence at Clearview Drive, Wānaka. The proposed dwelling is approximately 200–220 m² and includes four bedrooms, two living spaces (with one adaptable as a media room or fourth bedroom), a generous master suite with a luxurious ensuite, a wellappointed kitchen with scullery, and a second bathroom for family and guests. Provision is made for one or two-car garaging plus on-site boat parking. The home will be designed for performance and beauty without formal certification, using energy-conscious detailing, thoughtful planning, and durable, low-maintenance materials to achieve a timeless property with strong upper-end market appeal.

INFLUENCES

The design is shaped by the site’s compact footprint, challenging height limitations, orientation, and prized lake views. Strategies such as locating living spaces on the upper level will be explored to maximise outlooks and value while carefully managing solar gain, overheating, and privacy. Regional climate, prevailing winds, and sun paths inform placement of glazing, shading, and outdoor spaces for yearround comfort. A restrained but warm material palette — a “blank canvas” with subtle softness and earthiness.

ESSENCE

At its heart, the Happy Lorax Project is about creating a flexible, resilient and market-savvy home that feels elegant, timeless and quietly distinctive. The spatial strategy emphasises clarity, efficiency and a few intentional “wow” moments — from a tasteful street presence to carefully framed views inside. Small crafted details provide moments of delight that elevate the everyday without alienating prospective buyers. By combining energy-conscious design, durable low-VOC materials and thoughtful planning, the home will offer immediate market appeal, lasting value and a thread of warmth that honours the spirit of trees, place and people.

4 Alki Architecture + Design Studio, Concept Kelly + Darrin Brown Residence

GOALS

GOAL №1

Create a timeless, high-performance home with broad market appeal

Design a residence that captures lake views and stays comfortable yearround through passive solar strategies, energy-conscious detailing, and natural ventilation — delivering a healthy, efficient environment that stands out in the high-end market without requiring formal certification.

GOAL №3

Make the most of lake views and street presence

Explore locating key living spaces on the upper level to frame the lake and enhance value at sale, while carefully managing solar gain, overheating, and privacy. From the street, create a simple yet striking arrival with a refined “wow” factor that feels tasteful and welcoming rather than ostentatious.

GOAL №2

Balance flexibility with a clear, elegant plan

Provide a four-bedroom, two-living layout (with one space adaptable as a media room or additional bedroom) alongside generous garaging and boat parking. Circulation and room proportions should support flexible use and future-proof the home for different buyer profiles while maintaining an easy, intuitive flow.

GOAL №4

Weave warmth and artistry into an investment property

Use a restrained but soft material palette — a blank canvas that appeals to a wide buyer pool, yet punctuated by subtle moments of craft and delight. These touches will differentiate the home from other offerings on the market, creating a sense of care and intention that honours the spirit of the Happy Lorax Project.

SITE ANALYSIS

FEASIBILITY RESULTS

We’ve undertaken a careful analysis of the Clearview Drive site within Universal Developments’ Clearview Wānaka subdivision — including review of QLDC covenants and medium-density residential overlays such as finish, height, and setback restrictions.

These planning and development requirements significantly influence the design approach, guiding how the home’s form, materiality, and placement respond to its context. On the following page, you’ll find a summary of key site observations and considerations. These insights have directly shaped each concept, informing how the home engages with sun, wind, views, privacy, and the surrounding neighbourhood while capturing the spirit of the Happy Lorax Project.

6 Alki Architecture + Design Studio, Concept Kelly + Darrin Brown Residence

SITE OVERVIEW

Lot 35 sits within Universal Developments’ Clearview Wānaka subdivision, in QLDC’s Medium Density Residential Zone. This setting brings both opportunities and constraints: covenants limit building height to 5.5 m, restrict colours to recessive tones (less than 35 % reflectance), and prohibit unplastered brick, concrete block and roof tiles. Site coverage may not exceed 45 %, and a series of setbacks and recession planes create a challenging building envelope — requiring careful juggling of height, bulk and placement to comply while achieving an elegant, efficient design.

The site runs long east–west, giving its northern and southern edges the greatest exposure. Its main outlook is to the west, across Lake Wānaka toward Treble Cone and up the northwestern arm of the lake to Tititea (Mount Aspiring). This orientation presents a valuable sales opportunity but also the potential for high afternoon solar gain; external shading and strategic glazing will be essential to harness the views without overheating.

Prevailing winds arrive from the west, with occasional strong breezes from the south-east. Access is from Clearview Street on the south-east corner — a favourable entry point that allows the programme to capitalise on northern sun and frame north-west views while placing service functions along the southern boundary for privacy and shelter.

CLIENT PROFILE / KELLY + DARRIN BROWN

Kelly and Darrin are shaping the Happy Lorax Project — a refined, high-performing investment home at Clearview Drive designed to capture lake views, market appeal, and moments of quiet artistry. With a vision for a simple yet elegant four-bedroom, two-living residence, they’re seeking a property that feels timeless and adaptable: a blank canvas for future owners, elevated by subtle warmth and craft.

These initial concepts explore different ways the home might sit on the land, frame its views, and balance flexibility with a striking street presence — early sketches to spark conversation and chart the strongest path forward.

8 Alki Architecture + Design Studio, Concept Kelly + Darrin Brown Residence

Skylight visible behind slatted cladding, overlaying curved features

Concept One

Concept One makes a bold first impression by breaking the building mass into two distinct volumes. A low precast concrete base grounds the home firmly in its site, using muted, low-maintenance finishes and anchoring the singlelevel garage to the southern boundary in full compliance with height and recession planes. A strong precast concrete spine runs east–west, dividing the garage wing to the south from the two-storey volume to the north.

Above this, charred or blackened timber screens clad the upper level, creating deep shadow lines and layering privacy and solar protection for the street-facing windows. The entry is marked by a curved timber wall framed by concrete — a soft, sculptural gesture that guides visitors to a full-height glazed door and offers a direct view through the gallery hallway to the garden and lake beyond.

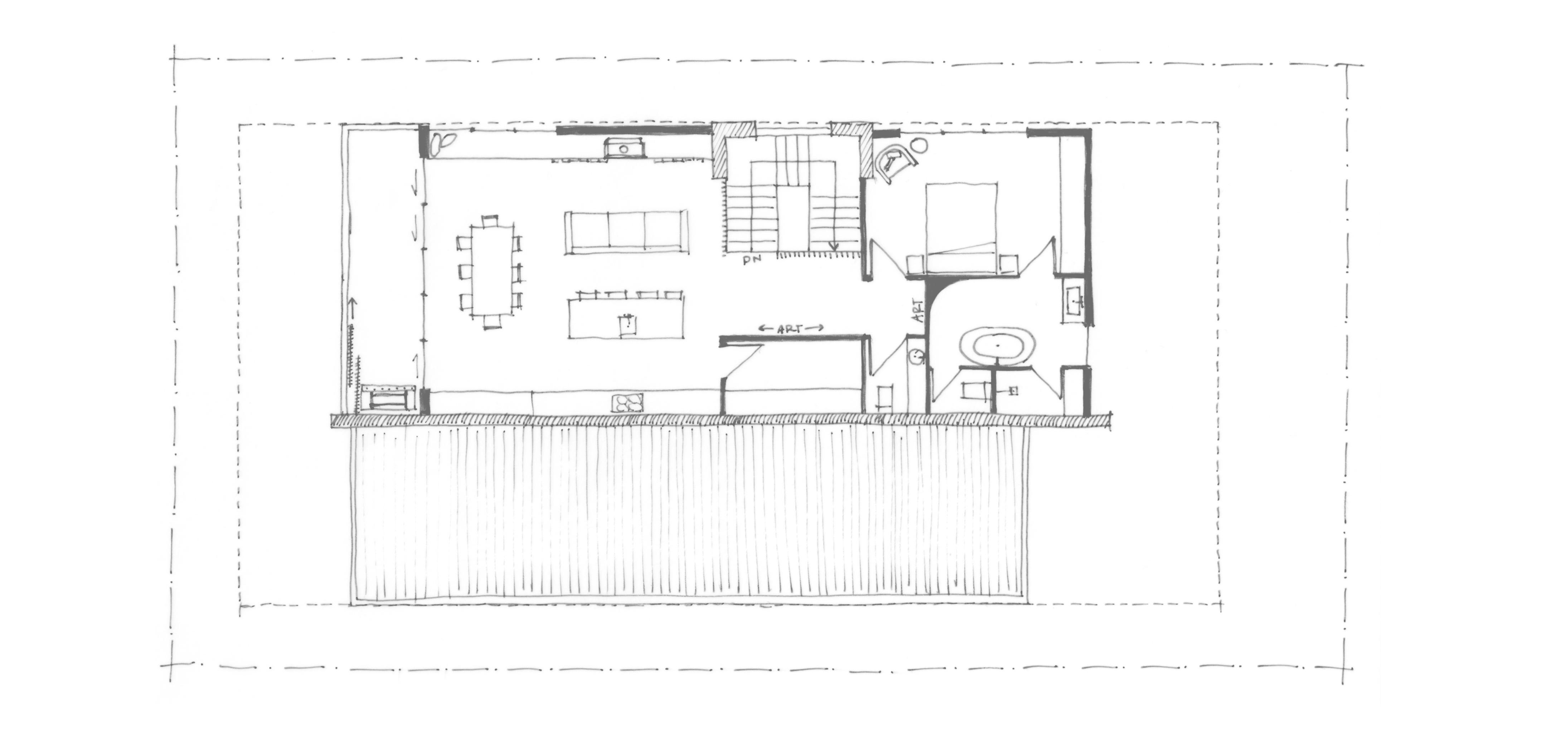
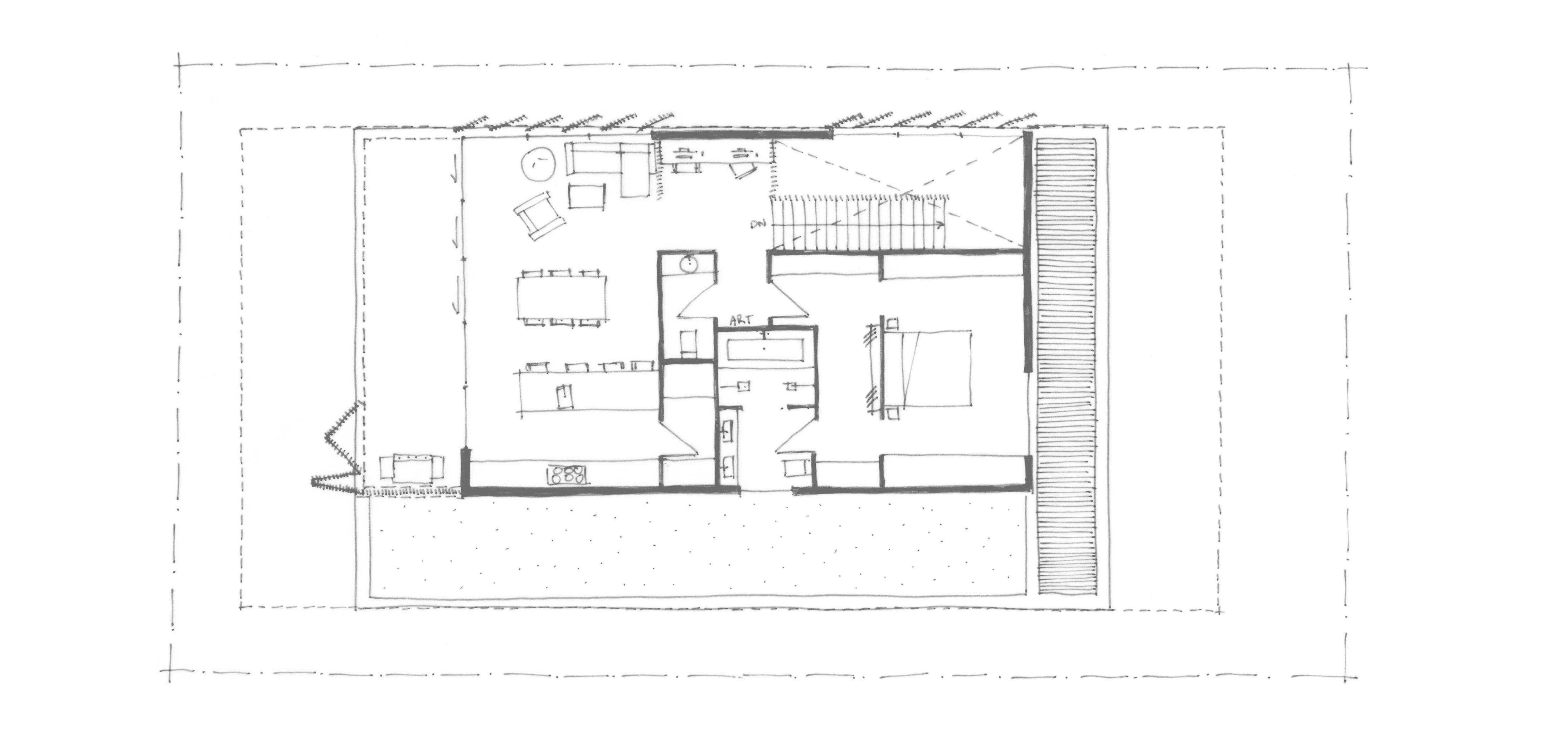
SPATIAL PLAN

On entry, the staircase rises as an open light well, bringing natural daylight into the core of the house. A media room sits to one side, acting as an acoustic buffer from street noise and separating quieter bedroom zones from social areas. A conveniently located bathroom serves the media room and guests while also supporting the four ground-floor bedrooms.

A well-organised laundry connects directly to the outdoor utility corridor and the single-car garage, with built-in bench seating and storage providing ample space for everyday use. This arrangement maximises privacy and sound separation on the lower level while streamlining circulation.

SPATIAL PLAN

ENTWINING FUNCTION AND DESIGN

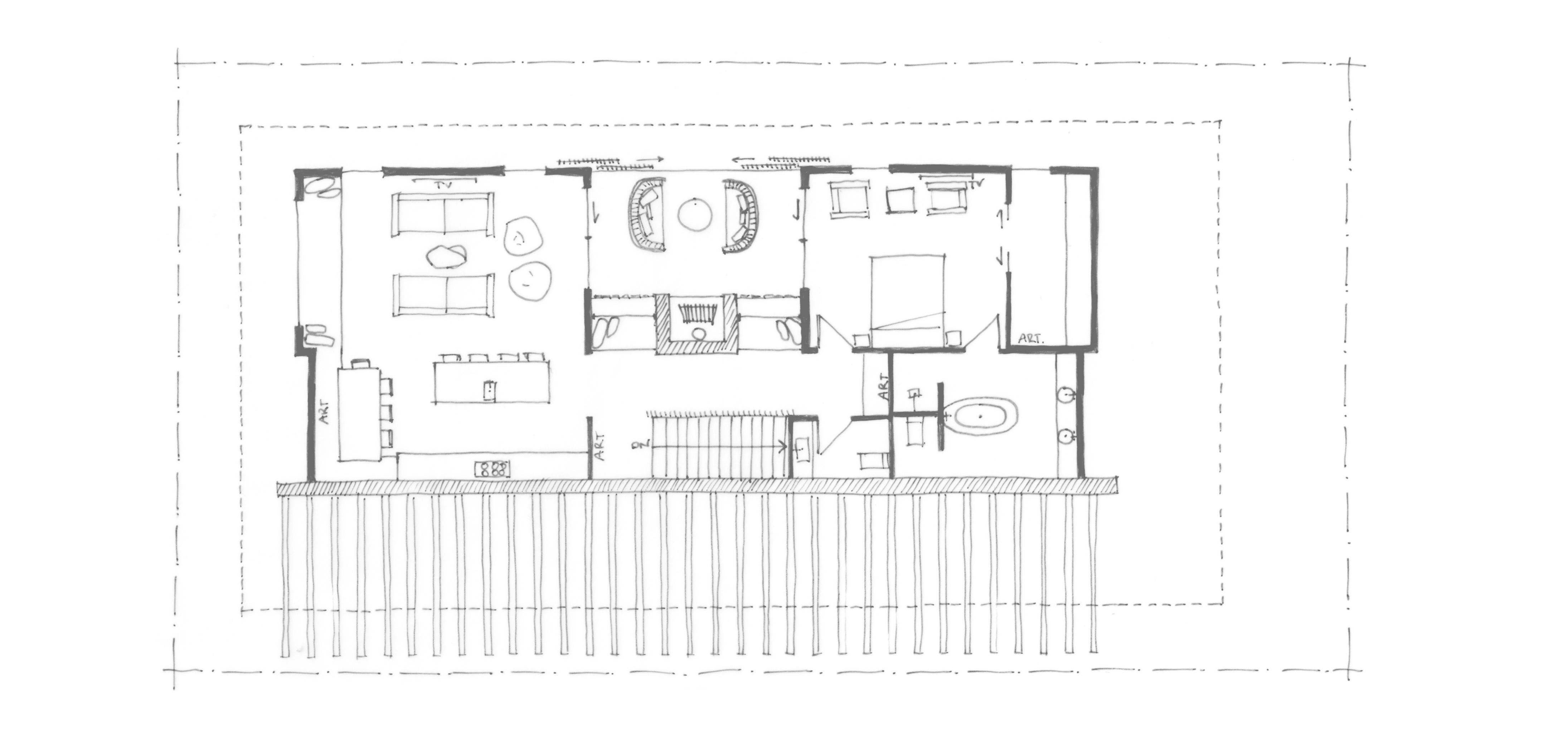
At the top of the stair, a blank feature wall provides a moment for art and pause, completing the procession from entry to light well to the main living level. The upper floor houses a full kitchen with scullery and a built-in bar/coffee station that flows seamlessly onto an outdoor deck for BBQs and entertaining. The living area faces a fireplace with a continuous bench that morphs into a built-in seating nook — allowing formal or informal ways to enjoy the lake view.

The master suite sits at the eastern end, catching morning light, with bespoke joinery enabling a generous ensuite. The ensuite is divided into intimate bathing, showering and toileting zones, with a bathtub centred on a full-height eastfacing window beneath a circular skylight that traces the curved entry wall below. A powder room also serves upstairs guests without disrupting private zones.

ROOF PLAN

RELATIONSHIP TO SITE Scale 1/100 SITE CONTEXT

The roof plan expresses the home’s organising spine: single-storey volumes to the south, two storeys to the north, all within the subdivision’s height and recession limits. Low-sloped roofs unify the massing and proportions while accommodating shading devices and solar panels if desired.

Driveway, garden and utility areas are arranged to the south and east to keep the northern edge open for sun and the western edge clear for views, allowing outdoor living to unfold naturally along the site.

Shutters to mitigate against West solar gains + overheating

Concept One

From the west, the elevation mirrors the street’s composure but softens into a more open face. The upper-level deck is covered for year-round use and fitted with sliding shutters that open wide for unobstructed views or close down against prevailing winds and the harsh setting sun.

This allows the interior to maintain a stable temperature while owners or guests enjoy uninterrupted sightlines to Lake Wānaka, Treble Cone and the north-western arm of the lake.

Fireplace on bench seating

Precast concrete 'core wall' running along the spine of the home PROJECT

Shutters for overheating mitigation

INSPIRATION

Introducing our inspiration board, a curated collection of images and ideas crafted to ignite your creativity and convey the essence of our vision for your home.

The palette combines raw concrete with striking black timber — a contrast of permanence and softness. Concrete anchors the house firmly to the land, while the timber lifts it with sophistication and warmth, creating a timeless, chic, and flexible backdrop that appeals to a broad range of buyers. Black shutters introduce texture and depth to the cubic forms, giving the façade a dynamic rhythm while providing practical protection from the elements.

Curved entry walls

Open staircase with large window

'a light well'

Soft black timber above concrete 'anchor'

Slatted screens to create privacy from neighbors

Vertical circulation feature

This concept minimises circulation to maximise usable space — accommodating five bedrooms and a garage with external hardstand while enhancing profitability and buyer appeal. Open living with west-facing views, a luxurious master suite to the east and a lower-level media buffer tick all the programme boxes.

Services are stacked to the south, freeing the north for light and living. The light-well staircase divides the home’s functions east–west while the concrete spine connects them down the middle, creating a disciplined yet inviting framework for an elegant, market-ready home.

Break

'The Spine'

Concept Two shares Concept One’s grounded presence with a muted plastered base and a solid east–west spine wall, but shifts the typology dramatically. Instead of a conventional garage, a full-length pergola runs along the southern edge of the spine, sitting within the setback as a non-building structure. This frees up internal floor area for living spaces and provides covered parking for up to three vehicles along with storage for bins and utilities.

Over time, climbing vines will colonise the pergola, softening the blank spine and integrating the south side with nature — biophilic design at its finest. Above, black cladding mirrors Concept One, but a horizontal metal band above the entry door frames the approach and breaks down the façade’s scale, giving the rectilinear form a clear wayfinding cue.

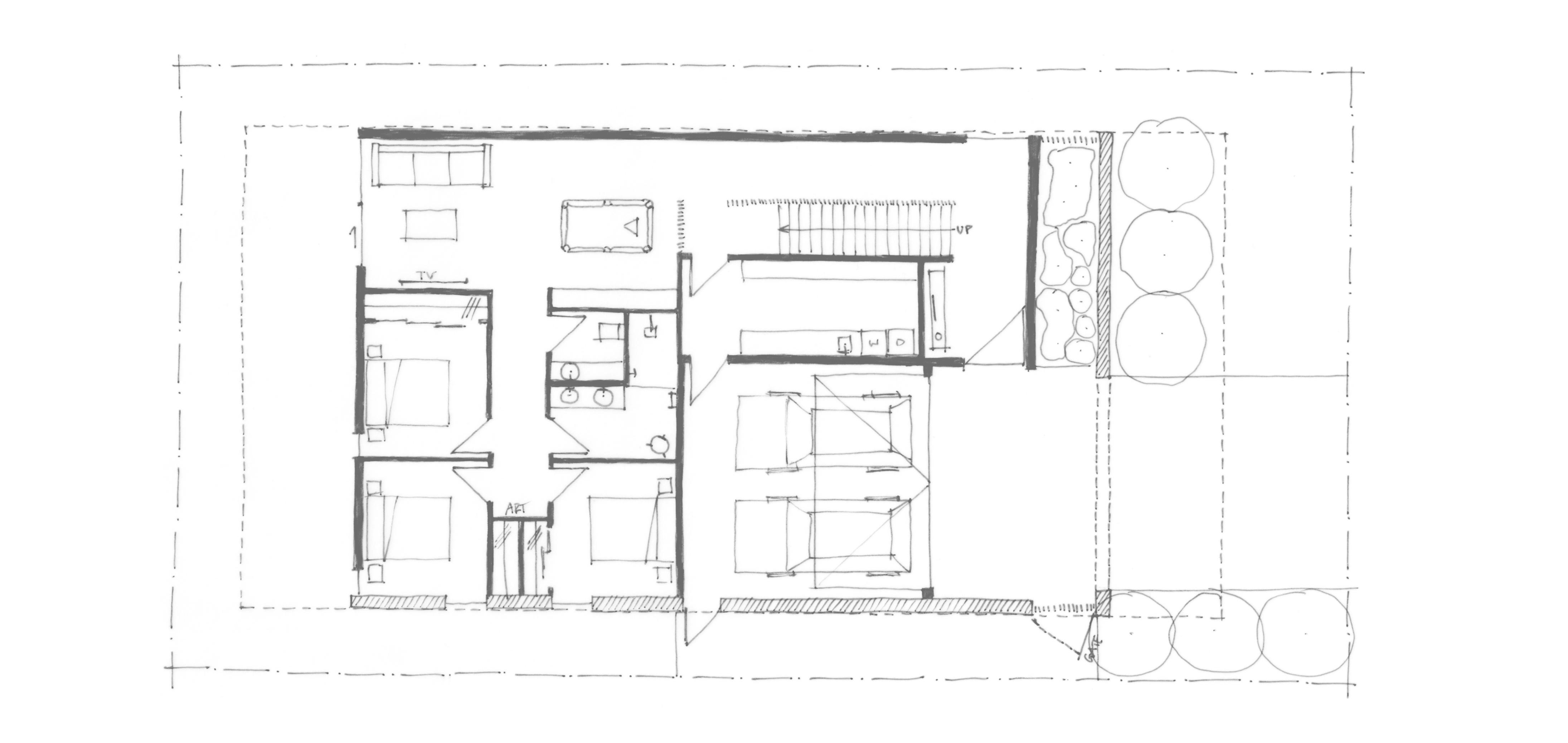
SPATIAL PLAN

ENTWINING FUNCTION AND DESIGN Scale 1/100

The pergola carport and internal courtyard are the defining moves of the lower level. Two courtyards — one at ground level, one directly above — share a stacked fireplace flue, allowing both levels to enjoy sheltered outdoor fires protected from westerly winds. Entry from the pergola leads into a drying/drop room adjacent to the formal street-facing entrance, clustering circulation and storage at the front of house. Along the southern spine are an open staircase, bathroom and laundry, serving four identical bedrooms (one easily adapted as a media room). The internal courtyard provides access to two bedrooms and frames a built-in interior bench beside the fireplace, so some can be curled up indoors while others sit by the fire outside, always visually connected through glazing.

18 Alki Architecture + Design Studio, Concept Kelly + Darrin Brown Residence

SPATIAL PLAN

ENTWINING FUNCTION AND DESIGN Scale 1/100

Upstairs, the central stair opens onto the upper courtyard and its bench seating, echoing the lower level’s arrangement. To the east sits a generous master suite with a large walk-in robe and a luxurious ensuite. A powder room serves guests in the open living areas that occupy the western side of the home, oriented to lake views. Instead of a scullery, the kitchen is oversized and connects directly to a built-in dining nook that

flows into a deep window seat with panoramic views. The living room looks out to the same vistas and connects to the outdoor and central courtyard with open fire, which can be accessed from both the master suite and living space. Sliding shutters close down to protect the courtyard from prevailing winds and solar gain, creating flexible, climate-responsive spaces.

19 Alki Architecture + Design Studio, Concept Kelly + Darrin Brown Residence

ROOF PLAN

RELATIONSHIP TO SITE

The roof form remains simple — a low-slope flat roof north of the spine with the pergola and vines forming the “roof” to the south. This strategy softens the garden edge along the southern boundary and keeps the profile within subdivision height limits.

Planting can extend around the east, north and west to soften the solid base of concrete and plaster, embedding the home in its landscape.

Central Courtyard

Concept Two

From the west, the elevation mirrors the front’s composure but focuses on framing the lake view. A large picture window is centred to capture the vista, while outdoor spaces and sliding shutters manage wind and low-angle sun.

The interplay of courtyard, deck and upper-level living offers multiple vantage points from which to enjoy Lake Wānaka and the surrounding peaks.

Plaster + horizontal cladding feature Sliding shutters

Outdoor fires + bench seating

INSPIRATION

Muted, monolithic plaster finishes keep the cubic forms crisp, acting as a blank canvas for heavy timber pergolas and climbing vines. This repetition and rhythm — nature softening manmade shapes — creates subtle drama without overcomplicating materials. Breaking up the lifted black cladding with horizontal bands over the entry plays with texture and proportion within a simple, buyer-friendly colour palette.

Pergola Post Details

Pergola planting to create 'garage roof'

Concept Two Fin.

This concept plays the role of a “devil’s advocate,” testing more unconventional features to see what could be blended into the final design. By replacing a standard garage with a pergola, it gifts more living space to the north and introduces courtyards with outdoor fire pits on both levels, protected from prevailing winds and harsh sun.

These moves create a distinctive yet practical home: efficient, market-savvy, and infused with warmth, flexibility and biophilic character.

Break

Concept Three

Concept Three celebrates entry as an experience. By setting the house further west on the site, the lower level stays on a single slab, simplifying construction and avoiding unnecessary stairs while complying with tight height restrictions. This strategy allows a layered façade on the eastern street front, creating depth and shadow.

A robust concrete wall fronts the street, softened by planting and acting as a privacy screen. Entry is through a “portcullis” — a slatted timber roof filtering daylight into an entry court — a modern take on a medieval threshold. Moving from the street into the screen court becomes a procession of shifting light, low planting, and shadow play, building anticipation for the home beyond.

The Porticullis

SPATIAL PLAN

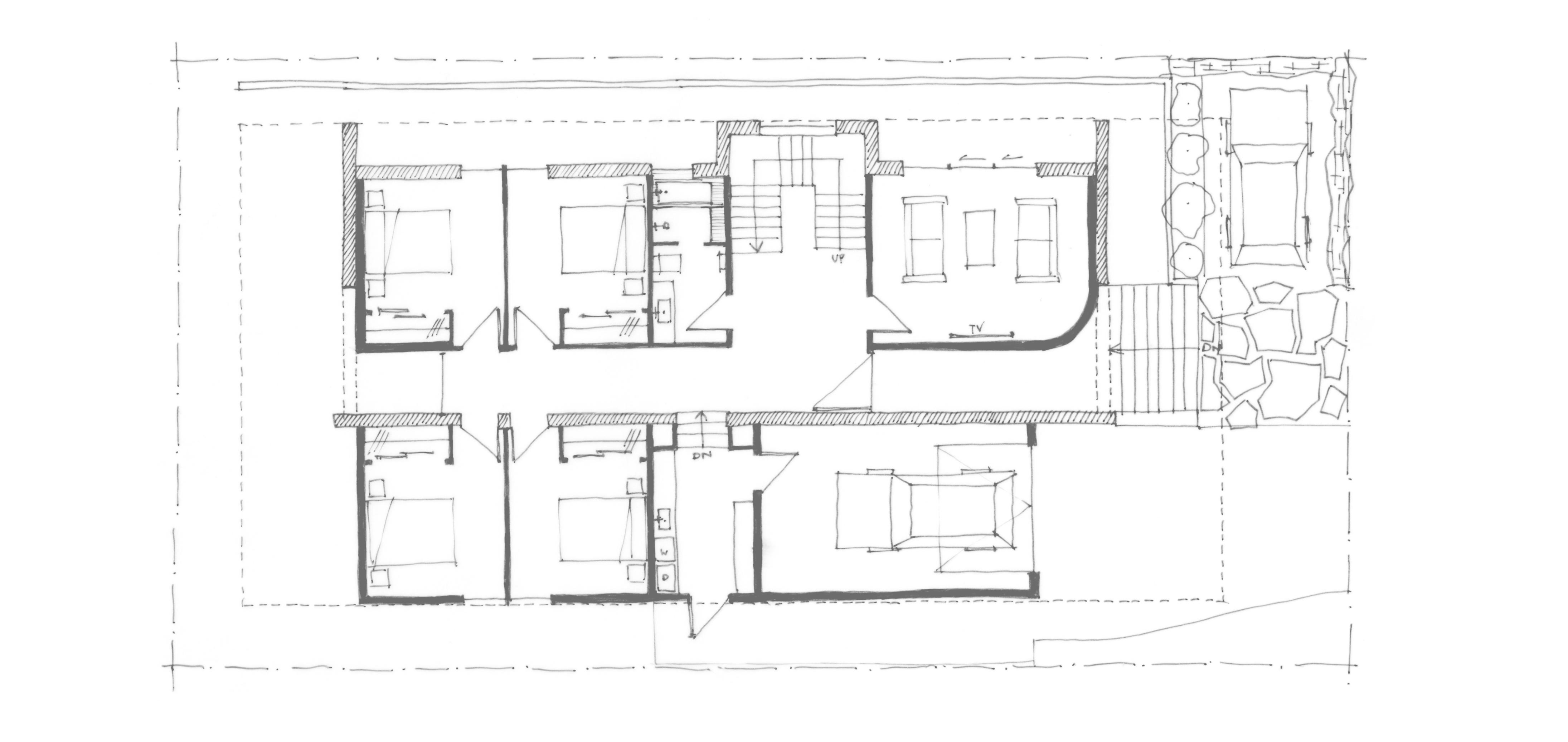
The lower level includes a double garage connecting directly to a southern utility corridor with a laundry, dry room and drop zone beneath the stairs. This central laundry efficiently serves three bedrooms on the ground floor, which are supported by a bathroom with separate toilet.

Cleverly positioned wardrobes buffer sound between bedrooms and the media/games room, which offers generous storage for linens, games and electronics. From the portcullis entry, a light-filled staircase draws morning and all day light deep into both levels and anchoring the circulation space at the northeast corner.

SPATIAL PLAN

ENTWINING FUNCTION AND DESIGN

Ascending the open stair brings you first to a compact office nook before daylight draws you to a corner window capturing the best view up Lake Wānaka toward Tititea (Mt Aspiring). The upper level contains an open-plan kitchen with small scullery and generous living space extending to a covered deck with timber slats above and movable shutters.

Large overhangs shade the deck from high sun, while vertical shutters protect from low western sun and prevailing winds.

A powder room serves the living level, and careful placement keeps sight lines from public spaces away from doors to the private master suite. The master suite itself is generous, with a large walk-in wardrobe and a luxurious ensuite.

ROOF PLAN

SITE CONTEXT

RELATIONSHIP TO SITE

Low-slope membrane roofs ensure compliance with covenant-imposed height restrictions, while timber slats over the portcullis and deck filter light and soften the profile.

Planting wraps the east, north and west sides of the home, creating a three-tiered landscape of low shrubs, mid-level timber cladding along the gournd floor and taller canopy of timber cladding and shutters above a ‘concrete band’ separating levels one and two (to mimic the virtues of the forest). This strategy grounds the house in its setting and blurs the edge between architecture and landscape.

1. low slope membrane roof
slatted timber run roof
28 Alki Architecture + Design Studio, Concept Kelly + Darrin Brown Residence

Operable sun + wind screen

Concept Three

From the west, full-height glazing connects the open living upstairs to the covered deck, establishing seamless indooroutdoor flow and framing Lake Wānaka views. The lowerlevel media room also has backyard access, while narrow windows protect the bedrooms from afternoon overheating. Sliding shutters offer flexibility — opening wide on calm days to embrace the view, or closing to shade from the setting sun and westerlies.

Matching the cladding, the shutters create a dynamic façade that is timeless and functional, resulting in a sophisticated but unassuming volume.

PROJECT INSPIRATION

Screened roof spaces Timber screen cladding

depth of field with concrete walls and recessed gardens

INSPIRATION

The vibe is sophisticated and layered — daylight is used selectively as a wayfinding tool rather than an excess of glazing. Breaking up the façade humanises volumes while integrated landscaping softens a robust programme. The muted palette of concrete and black timber echoes Concepts One and Two, appealing to a wide pool of high-end buyers while adding subtle depth and rhythm.

Screen walls + Landsscaping Patio operable shutters

Material withpalettefixed screens to mitigate overheating

Screened north facade privacy from sun + neighbors

Three Fin.

By pressing the residence back on the site to the west, the slab can drop down to one level and still accommodate a double garage within recession planes — particularly challenging along the southern boundary. This strategy brings the home closer to the view while buffering it from the street, enabling a powerful first impression at the portcullis entry.

Concept Three blends simplicity with drama: a disciplined plan with an experiential threshold, layering light, landscape and privacy for a distinctive, market-ready home.

NEXT STEPS

NEXT STEPS

YOUR REVIEW Take your time to explore each concept, sit with the ideas, and reflect on what feels most aligned with your hopes for this next chapter. This is your space to dream, to imagine, and to shape a project that truly reflects your intention.

OUR REVIEW Let’s catch up in person to walk through the concepts together. I’ll bring the 3D model so we can explore the layout, materials, and sense of space in more detail.

Sitting around the table with Mark from M A Building at our review will give valuable insight on cost feasibility. So we may manage our expectations on scope, construction means + methods, and finishes — to move into the next phase with clarity, confidence, and creativity.

NEXT STEPS

Turn static files into dynamic content formats.

Create a flipbook