Aliyah Kamarul Architecture Portfolio 23'

Page 1

ALIYAH KAMARUL

ARCHITECTURE PORTFOLIO selected works

2020-2023
2 SKETCHES 66-67 EIGHT-TEA CAFE 46-53 AM HOUSE 54-65 AL-HOUT AQUARIUM 16-23 KAMPUNG TAKAFUL 6-15 Academic Internship Miscellaneous Curriculum Vitae 1 2 3 4 CONTENT
2023 3 하나 / HANA 40-45 LAMBDA HOUSE 24-33 スポット / SPOTS 34-39

and writing. Meticulous, introspective, and attentive to the finest details. Firmly believes in the power of comprehensive design to empower individuals and communities alike.

Country of Origin: Brunei Darussalam

Date of Birth: 22.12.2002

Email: aliyahkamarulaa@gmail.com

CV I Aliyah Kamarul 4

Software Proficiency

AutoCad

SketchUp

Enscape

Twinmotion

Adobe PS

Adobe IS

Adobe ID

Procreate

Languages

English

Malay

Chinese

Interests

2023 5

2023

Final Year Project: Eco-city

Bandar Seri Begawan

Brunei Darussalam

KAMPUNG TAKAFUL

Jalan McArthur Development

To revitalise an old town, the proposed Kampung Takaful is a by-product of an adaptive reuse strategy that fosters intergenerational connections through empowering the ageing group predominantly found in Bandar Seri Begawan. With the retention of its original framework, the once a commercial filler is now transformed into an active ageing hub that incubates the locals’ capabilities.

2 I Academic 6
Photoshop
Softwares Utilised Sketchup + Enscape
Scan to find video
render
2023 7
2023 9

Original Building

Concept Diagram

Concept and Ideology

Focus Group: Ageing Population

their roots go deep

The adapted concept (symbiosis) expresses a similarity between the seemingly neglected elderly and parasitic plants found growing from the crevices of old buildings. Just like the plants, when given a proper host, will thrive. Hence, empowering the elderly through a comprehensive scope of programmes held within the building.

Structural Components retention of original framework

2 I Academic 10
new
structure
2023 11 Exploded isometric NTS

Sectional Perspective

PROGRAMMES

2 I Academic
1. Community market 2. Hawker centre 3. Workshops (cooking, IT, handicrafts, carpentry) 4. Community Park (gardening, small-scale agricultural plots) 5. Health and fitness 7. Multi-Purpose Hall (talks, events)
1 2 3 5 7 4 6
6. Tenancies
2023
2 I Academic 14
Elevations NTS Front Rear
2023 15
Left Right

Design Studio III: Commercial Project

Pekan Tutong

Brunei Darussalam

AL-HOUT AQUARIUM

Proposed Commercial Development

Overfishing has taken a great toll on Brunei’s reefs, where the locals often see the surface of the issue, what actually settles on the sea floor are large trawls scraping through the sea bed, destroying the aquatic life’s habitats. This fluctuation of marine-life species results in an imbalanced ecosystem. Parallel to this plight, the dwindling pride of Brunei’s cultural identity, vulnerable to global trends and modern feats. This leads to a cultural

lag and the diminishing hold of Brunei’s national philosophy, MIB. To combat this, awareness, remembrance and representation is vital to conserving both the national identity and marine-life.

The Al-Hout Aquarium (The Whale), embodies a fragment of Brunei’s past and Nabi Yunus AS’s story to reconstruct a lesson, this trailblazes the population towards Wawasan 2035, instilling a greater sense

of patriotism and selfdevelopment.

Bearing 2079sqm on Site 1, the superstructure tucks amongst the trees, instituitions and the PMMPMHAMB Hospital allowing nearby patients, students and civilians to conveniently walk-by and unwind. The facade represents a trawl net, eventually torn apart to portray, release.

2 I Academic 16
2022
Softwares Utilised Sketchup + Enscape Photoshop
2023 17

Sectional Perspective

Concept and Ideology

Reconstruction + Reflection = Orientation

Human beings orient themselves through memory. The equation dissects three components in order to develop a thorough design. First, we apart what we know and reconstruct it again. Hence, taking the renowned Hassanal Bolkiah Aquarium and extracting its basic form, the arc. The shape is then reflected to the whale, a symbol of monumentality and compassion. Relevant elements like stories of the past are reflected upon then portrayed in a new light. Hence, a new orientation.

2 I Academic 20
Entrance
2 I Academic 22
Front
Left Elevations NTS
2023 23
Exploded Isometric NTS Rear Right

2021

Design Studio II: Residential Kampung Lumapas

LAMBDA HOUSE

Proposed Residential Project

The foundation of a nuclear family would usually consist of trust, love and compassion. However, that is not usually the case. With each their own varying and dynamic natural frequency, quarrels, bickering and misunderstandings lead to - friction. Subsequently, creating a fault. Though with time and tolerance, the fault would be bridged and a new understanding will culture. Regardless of individual variance, families will always be of the same wavelength.

Derived from the Greek word λάβδα (λ-wavelength), the Lambda Haus is derivative of its scientific aspects turned function and form. With regionally sourced bamboo veiled across the first-floor characterising compression, the following ground floor is of an open space (rarefaction). Elements of the client’s reminiscence are relived in this design. Glass blocks, arches, frontal lounge placement and dining-staircase proximity. Immediately upon entering the

house, one would be greeted by the central courtyard’s lush greenery and mellow trickling of water. Targeting the “always in the room” dilemma, the courtyard would draw the family to sit by the garden in hopes to bridge their relationship. With the strategic intent of creating a light and air well both illuminating and cooling the house, reducing electrical wastage.

2 I Academic 24
Softwares Utilised Sketchup + Enscape Photoshop + AutoCad
24
2023 25
2023 27

Concept and Ideology Frequency

The form subtly resembles a frequency wave. A satirical pseudonym to the family’s familiarity with arches (a feature from their first house). The spaces were arranged and sculpted with sun, wind and scenic considerations. The family space was to sit directly opposite the public space, which was shifted to the first floor to overlook the open space without compromising the homeowners’ privacy.

2 I Academic 28
2023 29
Front Rear Right Left
2 I Academic 30
Connection detail between prayer room and courtyard
NTS
2023 31
2 I Academic 32
2023 33 Exploded Isometric NTS

2021

Environmental Science: Cabin on a hillside Batu Apoi, Temburong

スポット

Studio Cabin

Covering 32.5sqm of ground area, スポット or Spots (cabin) sits on a slope with a cantilevered deck hovering above Lamaling River. This playful modular design revitalises a traditional Bruneian experience of their own culture through the eyes of a salamander (a native bornean reptile) with a riveting twist of Japanese architecture. Minimal use of carefully selected materials with an unwavering respect to the site’s natural elements. Its seamlessness and limited colour palette is intentional to let shine one’s culminated experience of the cabin. Adapting salamanders as a concept, the team gathered that its characteristics will uplift not only one’s comfort but spirituality. Hatching the name Spots from the namely spotted salamander.

Softwares Utilised Sketchup + Vray Photoshop + AutoCad
2 I Academic 34
2 I Academic 36

Concept and Ideology

2023 37
2 I Academic 38
NTS
Elevations
Front Right
2023 39
NTS
Left
Floor Plans
Rear
Module 1 Pantry + Deck Module 2 Resting area Module 3 T/B Roof Outline

Form, Space and Order: Pavilion

Politeknik Brunei, School of Science and Engineering

Courtyard Pavilion

The Hana pavilion expresses the struggles faced by students at the instituition. The lotusan analogy for the human condition - grows and blooms from muddy waters, students alike, going through unfavourable conditions too, grow. More petals (module 2) can be added to accommodate the growing number of students at the instituition, with a dedicated module (the bud - safe space) that allows solitude, reflection and introspection that supports growth with oneself while being able to transition to collaborative open spaces, that supports growth with other students .

하나
2020
Manually Drawn
2 I Academic 40
2023 41

Concept and Ideology

Growth

Growth within oneself: “Safe Space”

Growth with support (learning with others): Open Space

Growth with the surroundings: Modular expansion

2 I Academic 42 Selected excerpts from Design Process
2023 43
NTS
Elevations

Presentation Boards

2 I Academic 44
2023 45

Bandar Seri Begawan

EIGHT-TEA CAFE

Proposed Interior Fit-Out

Softwares Utilised

2022
Sketchup + Enscape Photoshop
3 I Internship 46
3 I Internship 48
2023 49
3 I Internship 50 Featured Wall Options
2023 51

Construction Detail of Mesh Frame NTS

3 I Internship 52
2023 53
AM HOUSE 2022 Residential Bandar Seri Begawan Softwares Utilised Sketchup + Enscape Photoshop Interior Fit-Out 3 I Internship 54
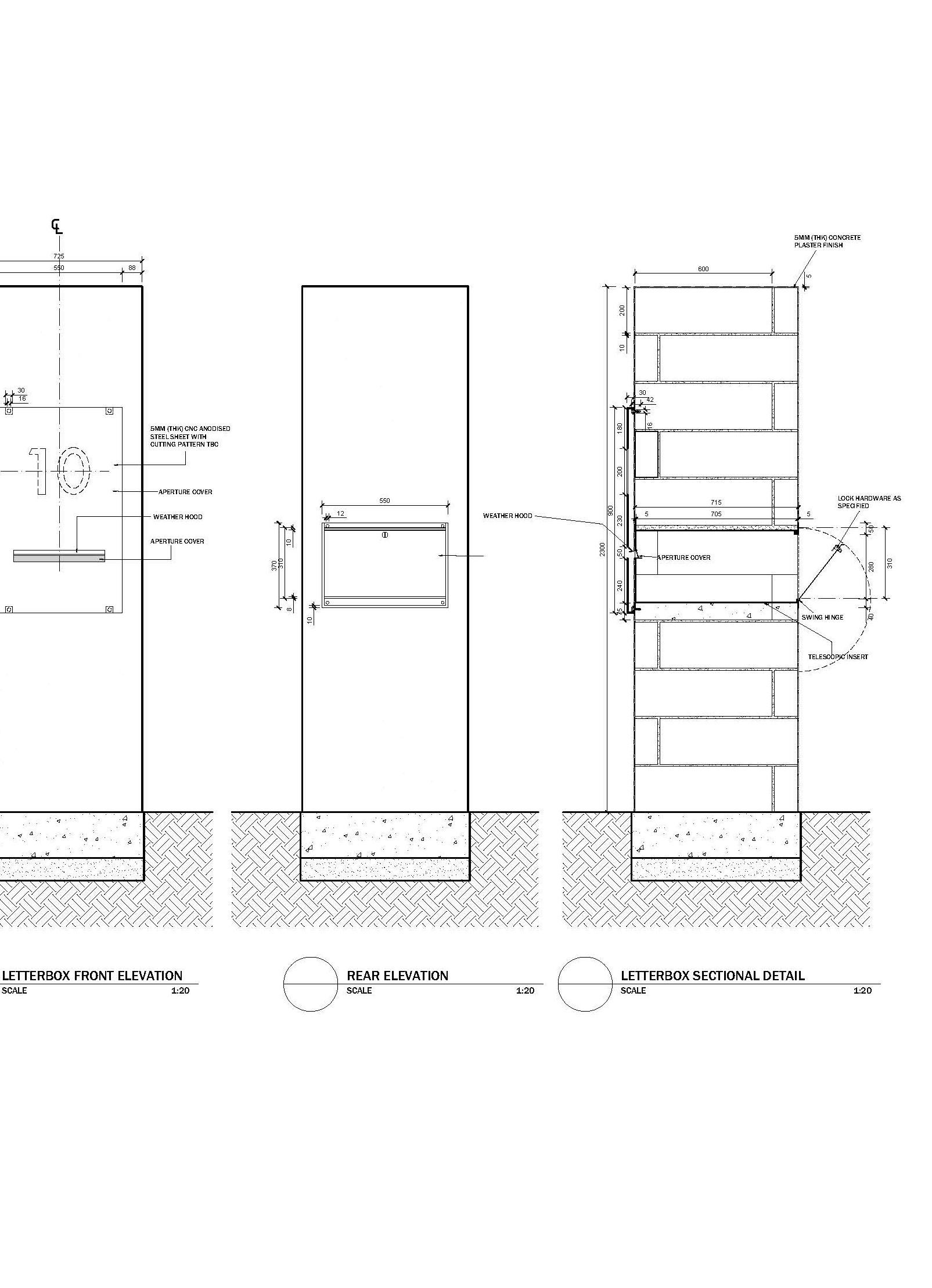
3 I Internship Letterbox Construction Detail NTS
2023
3 I Internship 58
2023 59
3 I Internship 60
2023 61
3 I Internship 62 3200 1230 306 1664 120 120 1424
915
1ST FLOOR SLAB
2023 63 OFFICE VOID 1ST FLOOR SLAB 3200 900 100 540 140 OFFICE 1ST FLOOR SLAB 1 2 5 3 4 6 7 8 10 9 11 12 13 14 15 16 17 18 200 1230 306 1664 120 120 1424 36° 150 180 180 140 560 40 54 54 2620 1044 75 265 15 250 900 1570 425 1690 911 965 915 250 250
3 I Internship 64
2023 65
4 I Miscellaneous 66
2023 67

Turn static files into dynamic content formats.

Create a flipbook
Issuu converts static files into: digital portfolios, online yearbooks, online catalogs, digital photo albums and more. Sign up and create your flipbook.