Portfolio

Page 1


Alisson Pazetto arquiteto e urbanista

Arquiteto e Urbanista membro do CAU desde 2018, atuo profissionalmente na criação de projetos de arquitetura e de interiores. Influenciado pelo movimento tecnológico da implementação da tecnologia BIM, agrego experiência não só de criação de conceito e visualidade, mas também de coordenação e gerenciamento inteligente das informações de um projeto.

Além da arquitetura, pratico fotografia amadora e biking pra esvaziar a mente e preencher o espírito.

R. Prof. Egídio Ferreira Capoeiras, Florianópolis 48 9 9605-6107 alissonpazetto@gmail.com

projeto de arquitetura

e d i f í c i o m o d u l a r

l e v e l

O projeto foi contratado pela empresa executora da obra, Brasil ao Cubo, para desenvolvimento de edifício modular vertical off-site com implantação em um terreno localizado em Tubarão/SC. Foi elaborado através da tecnologia de engenharia simultânea e contrato integrado, onde todas as disciplinas utilizaram ferramentas BIM para o seu desenvolvimento.

O edifício como um todo conta com oito pavimentos estruturados um sobre o outro que contabilizam uma área de 3.121,69m². Ele é composto por 73 módulos de tamanhos variados, indo desde aqueles menores planificados de 3,75x7,50m, até maiores tridimensionais de 3,75x15,0x4,20m.

Além de ser um produto altamente tecnológico, que fez uso de sistemas como o de placas fotovoltaicas e de aproveitamento de água da chuva, o partido arquitetônico utilizou estratégias bioclimáticas através de desenhos que aumentaram a performance do edifício. Neste caso, através dos brises para sombrear as fachadas e do atrium central, que possibilita o efeito chaminé de ventilação. A integração das placas fotovoltaicas foi feita até mesmo na fachada, onde estas ajudam a bloquear a incidência da luz solar direta.

MARCOLINO MARTINS CABRAL

Para iniciar a avaliação de viabilidade de execução do empreendimento em um sistema modular offsite, foi avaliado a localização do terreno Por estar localizado em uma das principais avenidas da cidade, a empresa responsável fez toda a avaliação de trânsito e infraestrutura do local, bem como apresentamos as possibilidades em um estudo de massa preliminar

Partindo das diretrizes características do sistema construtivo modular, fizemos o lançamento da malha estrutura geral e definição do núcleo rígido de acordo com a modulação.

Desde o início dos trabalhos, a equipe de arquitetos e engenheiros trabalhou em paralelo com a fábrica que com seu processo de fabricação e know how, orientou sobre a modulação e características módulos, como conexões espaços de operação e sistemas de fixação dos módulos, e métodos de transporte.

Além de ser um produto altamente tecnológico, que faz uso de sistemas como o de placas fotovoltaicas e de aproveitamento de água da chuva, o partido arquitetônico utilizou estratégias bioclimáticas através de desenhos que aumentam a performance do edifício, alinhando as características construtivas com necessidades de conforto ambiental.

Dentre as soluções necessárias para garantir o conforto e eficiência da edificação, destacam-se a utilização de brises horizontais e verticais e a integração das placas fotovoltaicas junto aos brises verticais das fachadas de maior incidência solar

AV.

3 d i s o m é t r i c o

e x p l o d i d o

detalhe pele isométrico explodido

raio-x | módulo arquitetura e demais disciplinas

cobertura e reservatório

9º pavimento

8º pavimento

7º pavimento

6º pavimento

5º pavimento

4º pavimento

3º pavimento

2º pavimento

1º pavimento

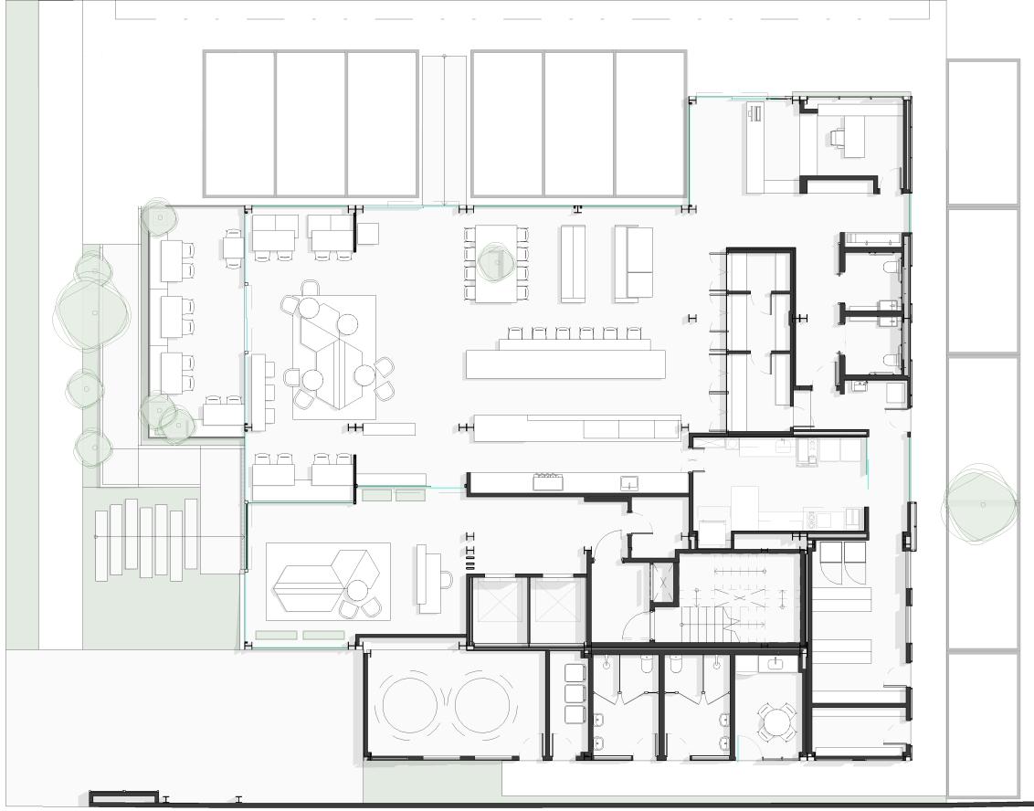
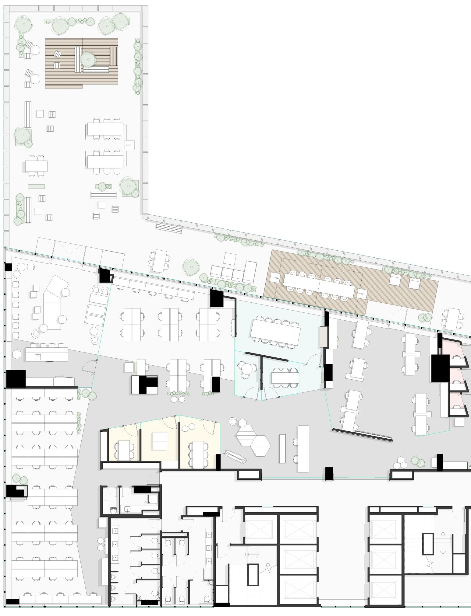
projeto de interiores

i n t e r i o r
c o r p o r a t i v o
r e c h

A Rech é a maior empresa do mercado agrícola brasileiro de peças para máquinas pesadas e agrícolas do Brasil. A empresava buscava um projeto que estivesse lado a lado com os valores que são cultivados por ela, o que incluiu buscar desenvolver espaços que entusiasmem seus funcionários.

No briefing, sempre foram destacadas palavras de ousadia, curiosidade e praticidade. Sendo assim, traduzimos estes aspectos em respostas arquitetônicas e criamos ambientes contemporâneos na área corporativa.

Sendo um espaço muito amplo, foi importante iniciar o conceito do espaço de forma fluída e legível, diluindo as áreas de circulação e, ao mesmo tempo, conectando os ambientes e colaboradores. Buscamos referenciar as cores da marca ao mesmo tempo que fizemos uma composição agradável, divertida e descontraída.

Apresentamos soluções que atendessem as demandas por áreas de open space ao mesmo tempo em que possibilitamos a utilização mais confidencial de alguns usos.

l e g e n d a

1. hall elevadores

2. recepção / espera

3. diretoria

4. reunião secundária

5. reunião principal

6. CPD

7. descompressão

8. reunião individual

9. almoxarifado

10. laboratório

11. área de trabalho

12. á. de trabalho e descompressão ext.

13 dml

14 copa de serviço

15 sanitário

16 área técnica climatização

17. escada

perspectiva seccionada descompressão

perspectiva seccionada área de trabalho

projeto de reabilitação, renovação e restauração

p m f
p r ó - c i d a d ã o +

p r o c o n

O projeto iniciou abrangendo duas edificações com características diferentes: uma de caráter histórico, parte da paisagem tombada de Florianópolis, e uma edificação sem valor arquitetônico significativo. Sendo assim, adotamos como conceito principal a utilização da edificação histórica para criação de uma praça de recepção e estar ao serviço público, resguardando o que ainda encontramos preservado, e trabalhamos as áreas mais técnicas na edificação sem caráter histórico.

Previmos uma estrutura auxiliar metálica para sustentação do telhado, realizamos a troca do madeiramento não aproveitável e fizemos o reassentamento das telhas sem alterar a volumetria original da edificação. Com o intuito de mostrar àquele que visita a edificação a tecnologia utilizada pra ergue-la, fizemos a retirada do reboco - já não original, de concreto - e deixamos o telhado aparente. Tudo isso buscando valorizar a história da edificação e da cidade.

Além disso, utilizamos do contraste de materiais contemporâneos e exploramos a linguagem de arquitetura mais industrial para este projeto.

det. escada | 3d

det. escada | corte

c o r t e

l o n g i t u d i n a l

c o r t e

t r a n s v e r s a l

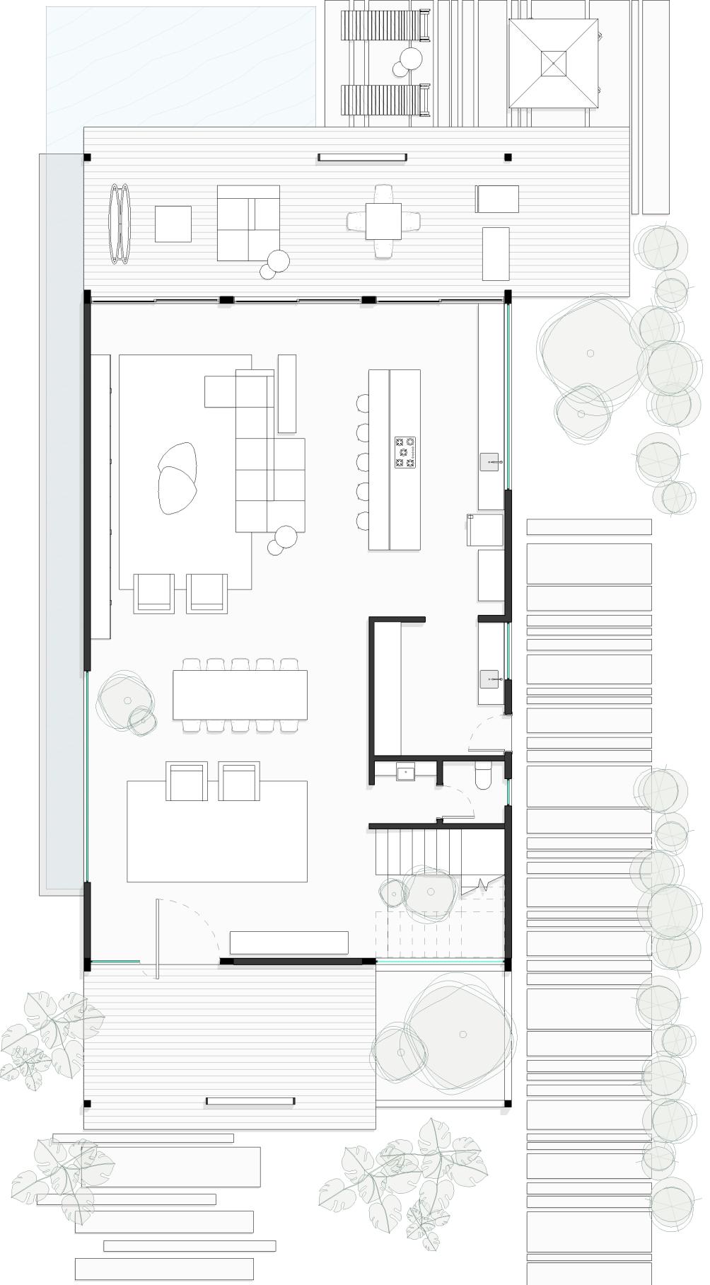
projeto de arquitetura e interiores

casa modular protótipo [térrea]

Assim como as premissas do Edifício Level, a Brasil ao Cubo buscava criar um protótipo para venda comercial de casas modulares. Dessa maneira, buscamos trabalhar com plantas livres, concentrando áreas molhadas em um mesmo módulo e usando de vãos livres para facilitar a produção e montagem apresentando uma arquitetura de qualidade. Para este caso, a proposta era uma residência térrea para um lote urbano padrão.

e s q u e m a d e c o n c e i t o | 3 d

varanda, recepção e entrada principal

home office módulo de transição entre área social e dormitórios

organização das áreas sociais, acessos e serviço

dormitórios e varanda compartilhada

jardim interno/externo área de descanso gourmet

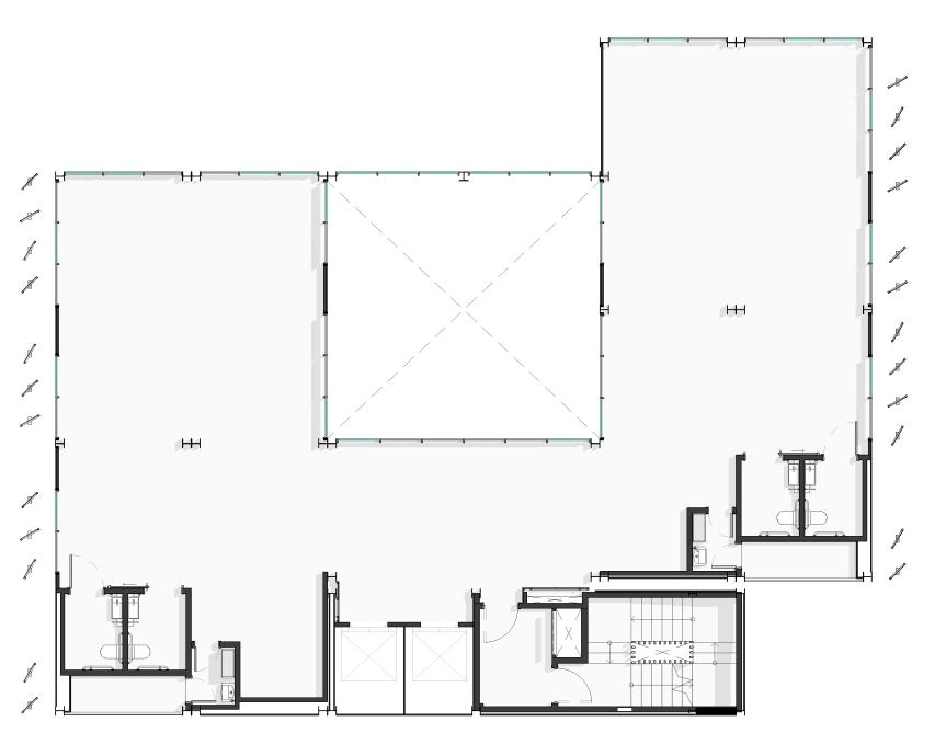
projeto de arquitetura e interiores

casa modular

protótipo [dois pavimentos]

Assim como a casa térrea e utilizando dos mesmos conceitos, a ideia foi utilizar do mesmo lote padrão para implantação de uma residência de dois pavimentos. Apesar de utilizar os mesmos padrões e modo construtivo, utilizamos linguagens e elementos arquitetônicos diferentes que criam uma identidade.

Alisson Pazetto arquiteto e urbanista

Turn static files into dynamic content formats.

Create a flipbook
Issuu converts static files into: digital portfolios, online yearbooks, online catalogs, digital photo albums and more. Sign up and create your flipbook.