Architecture Portfolio

Page 1

ALEXANDER CEA UNDERGRADUATE ARCHITECTURE PORTFOLIO 2021-2024 | KANSAS STATE UNIVERSITY
“RIVERSIDE COMFORT” ACRYLIC PAINTING PAINTING II FALL 2020

Welcome to my architectural portfolio, a creative exploration of three projects that have developed and pushed my abilities as an studying architecture student. These three projects showcase strong narratives, composition, and attention to detail that and will only continue to grow stronger as I continue my studies.

01 02 03
CENTER FOR KAW RIVER CULTURE
2022 COMMUNAL CONTINUANCE UNITY PUBLIC LIBRARY
2023 2023
WALL SECTION
CONSTRUCTION SCIENCE IN ARCH SPRING 2023 SYSTEM & MATERIAL LEGEND Roof Root Barrier Foundation Window/Wall Sun Shading System Interior Feather Reed Grass Gravel Ballast Mineral Wool Insulation Stucco Metal Decking Finish Wood Wood Block Dirt Cast-in-site Concrete Coarse Aggregate Concrete Foundation Wall Drain Tile Waterproofing Membrane Course Aggregate Drainage Edge Protection Board Membrane Roof Vapor Barrier Metal Decking Dens Deck Glazed Ceramic Tubes Aluminum Horizontal Strut Aluminum Vertical Strut Stucco Finish Building Paper Aluminum Window Low-E Coated Insulated Glass 2’’x4’’ Wood Stud 1/2’’ Gypsum Board Interior Finish Finish Flooring Filter Fabric Architectural Admirer
DETAILED
BUILDING

CENTER FOR KAW RIVER CULTURE

The indigenous populations of North America had a common practice of fabricating canoes for transportation. One very common type of canoe was called the “dugout canoe.” These were created through an extensive process of carving the trunk of a fallen tree with sharp shells. This repetitive and strenuous process created the strongest types of canoes. Located in Topeka, Kansas, this design employs these principles of carving to sculpt the landscape and create a cultural center for the people of the six nations, Topeka residents, and visitors of the area. The program features large exhibition spaces, a performance hall, cafe, library, and even small living areas.

01
PROCESS WORK EXTERIOR RENDERING Architectural Design Studio III Prof. Bruce Johnson FALL 2023
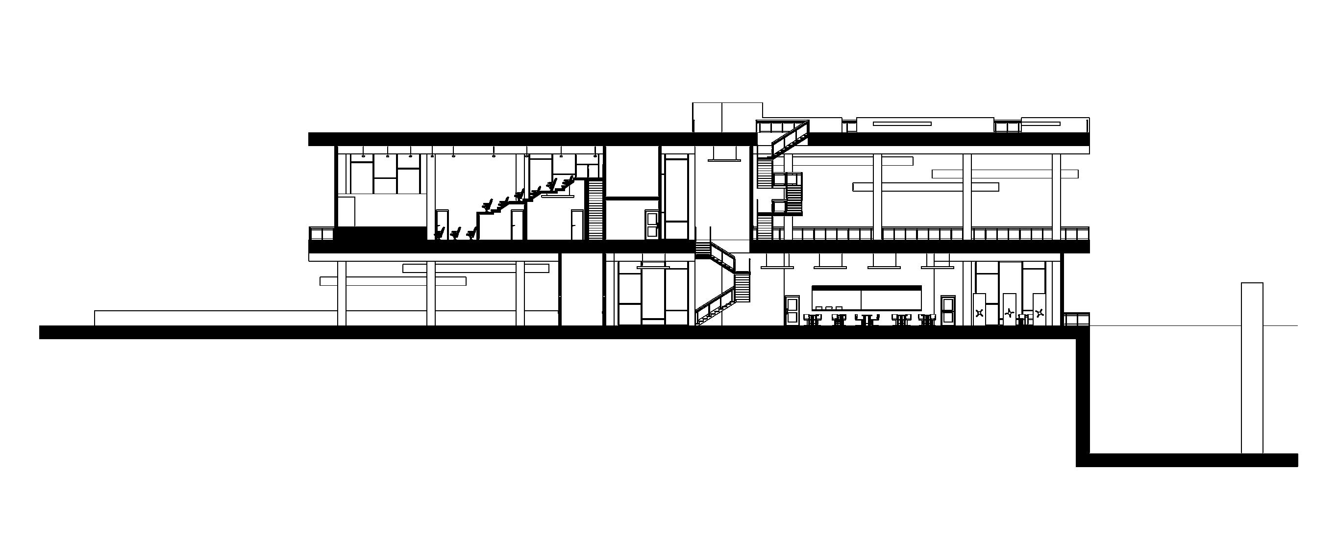
SECTION 01
BALCONY RENDERING
PROGRAM
SECTION 02
FLOOD CONTROL
1ST FLOOR PLAN
LOBBY 2. CAFE 3. LIBRARY 4. LOADING 5. STORAGE / MECHANICAL 6. WORKSHOP
ARTIST RESIDENCE 8. EVENT COORDINATOR 9. BREAK ROOM 10. COPY ROOM 11. CONSERVATORS OFFICE 12. DIRECTORS OFFICE 13. CONFERENCE ROOM 14. WORKSTATIONS
1.
7.

15. PERFORMANCE HALL

16. EXTERIOR GALLERY

17. STUDIO

18. INTERIOR GALLERY

19. CLASSROOM

20. EXTERIOR GALLERY

21. APARTMENT

22. COUNCIL CHAMBERS

2ND FLOOR PLAN
MODEL PHOTOS SITE ELEMENTS
INTERIOR GALLERY RENDERING

COMMUNAL CONTINUANCE

This design is a ten unit compact living proposition for a rural town located in Eureka, Kansas. The conceptual basis of this project is continuity. The site is located between main street and residential homes, providing the perfect opportunity to bridge both public and private sectors in the town to create a housing complex that appeals to those living in the units and also in the surrounding area. The offset curvatures of the internal facades facilitate movement through the site while providing space for a public amphitheater and vegetation. The green roofs, trees, and shrubs bring life and greenery to the units and provide both practical and aesthetic applications.

CONTEXTUAL PHOTOGRAPHS

02
AXONOMETRIC VIEW
Architectural Design Studio III Prof. Bruce Johnson FALL 2023
SITE PLAN
SECTION 01
NORTH ELEVATION WEST ELEVATION EAST ELEVATION SOUTH ELEVATION
ROOFTOP RENDERING
COURTYARD RENDERING
INDIVIDUAL UNIT 1ST FLOOR PLAN INDIVIDUAL UNIT 2ND FLOOR PLAN
DETAILED GREEN ROOF WALL SECTION

UNITY PUBLIC LIBRARY

Located in rural Kansas, this project aims to create a public library facility for the town of Council Grove. This project is designed to unify and combine the varying types of people that live in the town. The parti of this project divides the various types of reading areas into four large wings that all circulate around a cozy central courtyard. The courtyard provides a strong grounding space that functions symbolically as the unifying principle tying all the different sections of the library together. Similar in the way that a library functions to bring a community together in a shared common space.

03
SECTION PERSPECTIVE
Architectural Design Studio II Prof. Kory Beighle SPRING 2023
PARTI PROGRAM
FLOOR PLAN
1ST
2ND FLOOR PLAN
CIRCULATION

STRUCTURE

EAST ELEVATION
SOUTH ELEVATION
SOLAR STUDY 8AM 1PM 6PM
LOBBY RENDERING COURTYARD RENDERING SECTION 01 SECTION 02
ALEXANDER CEA (816) 745-1112 alex.r.cea@gmail.com

Turn static files into dynamic content formats.

Create a flipbook
Issuu converts static files into: digital portfolios, online yearbooks, online catalogs, digital photo albums and more. Sign up and create your flipbook.