COMEDOR TLALTIKPAK




![]()




INTRODUCCI脫N
c o m e d o r t l a l t i k p a k 07. 12. 25 36. PROGRAMA
SERVICIOS ECOSISTEMICOS PROPUESTOS
NECESIDADES Y EXPERIENCIAS COMUNITARIAS
MISI脫N Y VISI脫N
FACHADAS
CORTES
PROCESO CONSTRUCTIVO (FAENAS)
MOBILIARIO, MOODBOARD Y PALETA VEGETAL
PROPUESTA BIOCL脥MATICA
ECOTECN脥AS
08. 09. 11. 15. 19. 23. 26. 28. 32.
ILUSTRACIONES
ESTRUCTURACI脫N
CONCLUSIONES PLANTAS

Este proyecto consiste en la construcci贸n de un comedor para la comunidad escolar del Bachillerato Digital 139 de Cuauhtamazaco, Cuetzalan. Dise帽ado con bamb煤 como material principal. El objetivo es crear un espacio acogedor y sostenible que sirva como punto de encuentro, recreaci贸n, multiusos y alimentaci贸n para la comodidad. El uso del bamb煤 no solo resalta por su est茅tica natural y versatilidad, sino que tambi茅n representa una alternativa ecol贸gica y econ贸mica frente a otros materiales de construcci贸n. Adem谩s, el bamb煤 es resistente, renovable y se adapta bien al clima y las condiciones de la regi贸n, lo que hace que la estructura sea duradera y de bajo impacto ambiental.

c o m e d o r t l a l t i k p a k
Promover el desarrollo sostenible y comunitario en Cuauhtamazaco a trav茅s de la construcci贸n con bamb煤, ofreciendo espacios funcionales, ecol贸gicos y est茅ticamente integrados al entorno natural, que impulsen la econom铆a local, fortalezcan las tradiciones culturales y fomenten el cuidado del medio ambiente.
Ser un referente nacional en arquitectura sustentable y desarrollo comunitario, reconocidos por generar impacto positivo en la calidad de vida de las personas y en la conservaci贸n del medio ambiente, mientras se rescatan y potencian los recursos naturales y saberes locales en la construcci贸n sostenible.


c o m e d o r t l a l t i k p a k

En Cuauhtamazaco, cuetzalan, los servicios ecosist茅micos de la regi贸n ofrecen un gran potencial para un desarrollo sostenible, por lo que se decidi贸 usar los siguientes:
2.
1. Producci贸n de alimentos: La diversidad de 谩rboles frutales, como naranjas, limones, caf茅 y canela, contribuye a la seguridad alimentaria y brinda oportunidades comerciales para productos locales, fomentando una agricultura sostenible.
3.
Abundancia de agua: La alta pluviometr铆a y los r铆os aseguran el abastecimiento de agua para consumo, riego y conservaci贸n ambiental, apoyando la agricultura y potencialmente la generaci贸n de energ铆a hidroel茅ctrica.
Bamb煤 para construcci贸n: La regi贸n cuenta con bamb煤 abundante, un recurso renovable ideal para construir muebles y estructuras ecol贸gicas, que promueve pr谩cticas constructivas sostenibles y reduce el uso de materiales contaminantes.
Purificaci贸n del aire: La vegetaci贸n y los 谩rboles mejoran notablemente la calidad del aire, favoreciendo la salud de la poblaci贸n y haciendo de Cuautlancingo un destino atractivo para el ecoturismo y la educaci贸n ambiental. 4.
Estos recursos naturales posicionan a Cuautlancingo como una comunidad con potencial para un desarrollo equilibrado, que combina sostenibilidad, bienestar y aprovechamiento responsable de su entorno natural.







Participamos en un taller improvisado que nos mostr贸 la falta de instalaciones adecuadas para actividades de capacitaci贸n, un recurso que muchos consideran vital para el desarrollo econ贸mico de la comunidad y debido a la alta de empleo en alba帽ileria y el conocimiento de los padres de familia en el mismo, hace de gran utilidad los talleres de esta indole.
c o m e d o r t l a l t i k p a k







La disposici贸n de ventanas y puertas permite el flujo de aire fresco, aprovechando las corrientes de la regi贸n para mantener el espacio c贸modo sin ventilaci贸n artificial.


Huecos en el bamb煤 permiten que la luz entre de forma difusa, iluminando el comedor durante el d铆a y reduciendo la necesidad de luz artificial.

Una l谩mina reflectante en el techo ayuda a disipar el calor, manteniendo el comedor fresco sin necesidad de sistemas de enfriamiento adicionales.
El bamb煤 y otros materiales de la zona disminuyen el impacto ambiental, se integran bien al clima y apoyan la econom铆a local.
B I O C L 脥 M A T I C A P R O P U E S T A
c o m e d o r t l a l t i k p a k
Se puede observar los distintos niveles topogr谩ficos, la barrera natural para controlar el agua pluvial y la dimensi贸n de los vol煤menes en vista a茅rea

c o m e d o r t l a l t i k p a k

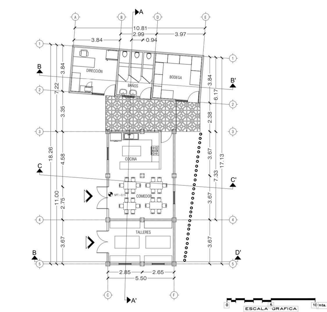
Podemos observar la distribuci贸n de los espacios y las medidas de algunos de ellos.
c o m e d o r t l a l t i k p a k
A partir del levantamiento de sitio, se identific贸 que el terreno se encuentra en una zona monta帽osa, lo cual plantea desaf铆os importantes relacionados con deslaves, acumulaci贸n de humedad y, especialmente, problemas de accesibilidad. Por este motivo, es esencial utilizar materiales adecuados que mitiguen estos riesgos. Se propone la instalaci贸n de rejillas y la creaci贸n de canales que permitan la conducci贸n eficiente del agua hacia niveles inferiores, facilitando adem谩s su reutilizaci贸n.
Otro reto asociado con la inclinaci贸n del terreno es la dificultad para acceder a servicios b谩sicos. En respuesta a ello, se han explorado alternativas ecol贸gicas que permitan brindar estos servicios sin depender de la gesti贸n gubernamental para la instalaci贸n de infraestructura convencional.









c o m e d o r t l a l t i k p a k

En primer lugar, se seleccion贸 una ubicaci贸n adecuada, en este caso el techo, ya que cuenta con buena exposici贸n solar. Despu茅s se procede a montar la estructura de soporte para los paneles solares, asegur谩ndose de que est茅 firmemente instalada y orientada al 谩ngulo 贸ptimo para maximizar la captaci贸n de luz solar.

A continuaci贸n, instalan los paneles solares sobre la estructura, garantizando que cada panel est茅 correctamente asegurado y alineado. Se conectan los paneles en serie o en paralelo, conforme a las especificaciones del dise帽o del sistema, para generar la corriente de energ铆a necesaria.

Finalmente, se conectan los paneles al inversor, que transformar谩 la energ铆a solar en electricidad utilizable. Posteriormente, se enlaza el inversor al sistema el茅ctrico del edificio o al sistema de almacenamiento (si se dispone de bater铆as). Se realizan las pruebas necesarias para verificar el correcto funcionamiento del sistema y aseg煤rando que cumple con los est谩ndares de seguridad exigidos.
c o m e d o r t l a l t i k p a k

COLUMNADEBAMB脷

COLUMNAENCOFRADAEN
LAPARTEINTERIOR ZAPATAAISLADA
imentaci贸n de zapata aislada sponde a una estructura a maximizar la estabilidad y La cimentaci贸n de zapata e continua que distribuye de argas de la estructura, e asentamientos del terreno. n de m贸dulos de cuatro configurando una soluci贸n aprovecha las propiedades de este material. Esta elecci贸n erza la estabilidad de la n introduce una expresi贸n con el entorno y promueve el drillos de adobe, con un parte baja para proteger a s y fuertes lluvias.

Para evitar el contacto directo del bamb煤 con el suelo y su consecuente desgaste por humedad, se emplean cimentaciones elevadas, en este caso zapatas de concreto, seguido por el levantamiento de la estructura de bamb煤

Se inicia el montaje con la instalaci贸n de columnas y vigas principales, verificando que est茅n adecuadamente niveladas y firmemente ancladas. Posteriormente, se colocan paredes y cubiertas. Las paredes se fabrican de tabique rojo.

Para mejorar la estabilidad de la estructura frente a factores clim谩ticos, se instalan arriostramientos adicionales seg煤n lo requerido.
c o m e d o r t l a l t i k p a k

Se aplican revestimientos en interiores y exteriores, utilizando morteros de cal y arena, que proporcionan una capa de protecci贸n adicional.

Se aplica un sellador para proteger el bamb煤 de la exposici贸n a la humedad y rayos UV, manteniendo la integridad del material. Para garantizar la durabilidad de la estructura, es indispensable realizar inspecciones peri贸dicas.

Finalmente, se colocan puertas, ventanas y otros elementos, asegur谩ndose de que su integraci贸n sea compatible con la estructura de bamb煤.

Precio: $5,490 00 Link: https://www.bodegaaurrera. com mx/ p/lineablanca/refrigeradores-ycongeladores/refr geradores /refrigerador-m dea-8-p esliso-gr smdrt210ccnls/0069549038162
5 Lugar de venta: Bodega Aurrera # de piezas 1

Estufa industrial Prec o $5,799.00 Link https //www.amazon.com mx/dp/B09C91KF78? ref=cm sw r mwn dp ZNP1RB8YSDTR6VAQ85A
0&ref =cm sw r mwn dp ZNP1RB8YSDTR6VA
Q85A0&soc al share=cm sw r mwn dp ZNP1
RB8YSDTR6VAQ85A0&language=en US
Lugar de venta: Amazon
# de p ezas: 1

Prec o $7 175 53
Link
https://www mercadolibre.com.mx/coc na-industrialsoluchefes00112-glp-color-gr s/p/MLM36752501? pdp f lters=item d%3AMLM2132465213&from=gshop&matt tool= 51611391&matt word=&matt source=google&matt campa gn id=1 5698047822&matt ad group id=161322106750&matt match type =&matt network=g&matt device=c&matt creative=686691899251 &matt keyword=&matt ad position=&matt ad type=pla&matt merchant d=735120154&matt product id=MLM36752501product&matt product part t on id=2270256756875&matt targe t d=pla2270256756875&cq src=google ads&cq cmp=15698047822&cq ne t=g&cq plt=gp&cq med=pla&gad source=1&gcl d=Cj0KCQjw4Oe4Bh CcARIsADQ0csn1xavhW5AVD7c9mOfrgrLD b ThMSrxtAT FLqwjYDuoUCuQLsPwaAkvkEALw wcB
Lugar de venta: Mercado Libre # de p ezas: 1

Prec o: $1 369.00
L nk
https //www walmart com mx/ p/ferreter a/plomeria-ybano/llaves-gr fos-y-regaderas/kit-de-fregadero-tar a-doblecon-tina-sobreponer-escurr dor-del-lado-derecho-solvex-prok t/00750649221083?
athbdg=L1300&selectedSeller d=1&from=/search
Lugar de venta: WALMART
# de piezas: 8

Prec o $13 499.00
Link
https //www mercadolibre com mx/s et-2-sillas-plegables-reforzadasmetalica-res stente-fiesta-colorrosa/p/MLM26410915
Lugar de venta: Mercado L bre
# de p ezas: 12

Prec o $6,320.00
Link
https//www.amazon.commx/ dp/B0C9SXVW6R?
ref=cm sw r mwn dp 9MVFE BX0ZQBT4M7E51T8&ref =cm s w r mwn dp 9MVFEBX0ZQBT4 M7E51T8&soc al share=cm sw r mwn dp 9MVFEBX0ZQBT4M
7E51T8&language=es-MX&th=1 Lugardeventa:Amazon #dep ezas:8

Precio: $2,660 66
L nk:
https://www amazon com mx/ANDE L -Soldador-multiprocesosoldadura-MIG250ME/dp/B0C651S8LG/ref=asc df B0C651S8LG/?tag=gledskshopmx20&linkCode=df0&hvadid=70985843 7090&hvpos=&hvnetw=g&hvrand=13 976327726047592401&hvpone=&hvp two=&hvqmt=&hvdev=c&hvdvcmdl= &hvlocint=&hvlocphy=9073959&hvt arg d=pla2256149967767&psc=1&mc d=2f9bb8 dfda91351192ecf71523725cee&gad source=1
Lugar de venta Amazon # de piezas 18


















c o m e d o r t l a l t i k p a k
1. 2.
El uso de bamb煤 y un dise帽o etnobioclim谩tico garantizan un bajo impacto ambiental, integr谩ndose de forma arm贸nica al entorno natural
Este proyecto promueve la interacci贸n social, el aprendizaje pr谩ctico y el fortalecimiento del sentido de comunidad.
3. 4.
La elecci贸n de materiales locales asegura resistencia, bajo costo y una larga vida 煤til, adecuada al clima de la regi贸n.
Combina econom铆a, ecolog铆a y funcionalidad, sirviendo como referencia para iniciativas similares en otras comunidades.