Performance & Purpose
ALAIR HOMES

![]()
ALAIR HOMES

For the first time, the nation’s most prestigious show home is a landmark fusion of revolutionary engineering and radical impact.
Set along the shoreline of Lake Osceola in Winter Park, Florida, The New American Home® 2026 (TNAH) is a landmark achievement in modern residential construction.
Built by Alair Homes — the first national builder ever selected for TNAH 2026 — and delivered by the Alair Orlando team, the residence represents a new benchmark for what luxury, performance, and social impact can be when they are designed together from the very beginning.
This is not just a showcase of cutting-edge architecture and technology.
It’s a home built to demonstrate how thoughtful design and social impact can elevate the future of homebuilding.

“This home isn’t just a showcase of the future of home building—it’s a symbol of what’s possible when passion, philanthropy, and innovation come together.”
JASON EICHENHOLZ, PH.D. HOMEOWNER & FOUNDER OF JONATHAN’S LANDING




TNAH 2026 is more than just a stunning showcase of modern luxury; it’s about creating a lasting legacy.
Experience the engineering marvels that make TNAH 2026 one of the most ambitious residential projects ever built.
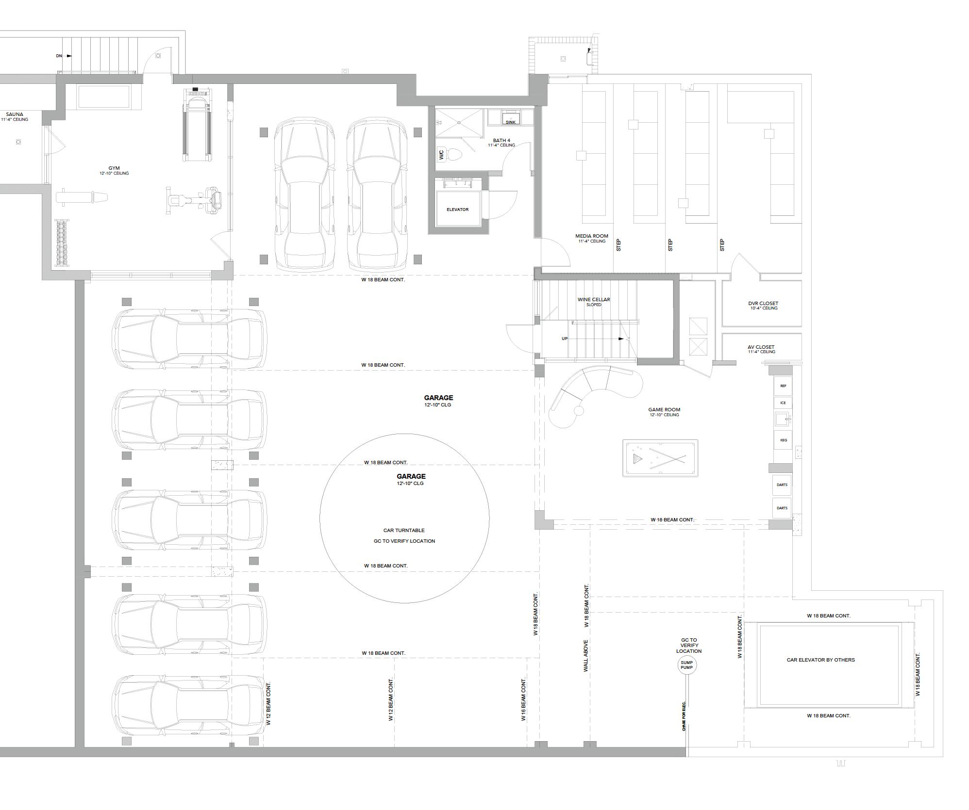
• The Subterranean Sanctuary: In a feat of “impossible” Florida engineering, explore the 16-car underground garage featuring a custom car elevator and automated turntable.
• The Negative-HERS Milestone: While most homes strive for efficiency, TNAH 2026 aims for a HERS Index exceeding -30, reaching the pinnacle of NGBS Emerald and DOE Zero Energy Ready certifications.
• The “Invisible” Staff Entrance: Designed for highprofile entertaining, the home features a private, discreet entrance for catering and staff to ensure seamless events without disrupting the home’s flow.
• Wellness & Grandeur: From the expansive secondfloor master balcony spa to the infinity-edge pool with direct boating access to Lake Osceola, every inch represents the peak of Florida’s indoor-outdoor lifestyle.





For the first time in the history of The New American Home®, the showcase is directly tied to a philanthropic mission.
Homeowner and philanthropist Jason Eichenholz, Ph.D.
— founder of Jonathan’s Landing and CEO of Relativity Networks — is matching partner contributions to support housing and meaningful employment for adults with autism spectrum disorder.
100% of the proceeds from this home will benefit Jonathan’s Landing, a community dedicated to creating opportunity, community, and meaningful employment for adults on the autism spectrum. After the showcase of The New American Home® 2026, Dr. Eichenholz intends to use the home as a venue for future charitable fundraising events.







• Glass, steel, and concrete deliver modern elegance and long-term durability
• Fully integrated smart-home systems create effortless, intuitive living
• Panoramic lake views and expansive glazing enable seamless indoor-outdoor flow
• Targeting a HERS Index below zero, with performance goals exceeding -30
• Certifications including NGBS Emerald and DOE Zero Energy Ready
• Advanced building envelope, insulation, and HVAC systems for year-round comfort
• Solar array and intelligent energy infrastructure for net-zero potential
• 16-car underground garage with automated lift and turntable
• Private theater, wine cellar, wellness suite, and entertainment spaces
• Infinity-edge pool, outdoor kitchen, lakeside dock, and multiple private retreats
• Second-floor balcony spa in the primary suite





The New American Home® 2026 was conceived as a site-specific response to its unique lakefront setting.
Clean geometry, open volumes, and expansive glazing create a continuous connection between interior and exterior, while carefully selected materials introduce warmth, texture, and calm throughout the home.
The layout balances openness with privacy, encouraging connection in shared spaces while providing quiet retreats for work, rest, and reflection.
Garages, let alone basements, are rare in Florida due to the high water table and challenging soil conditions.
Yet The New American Home® 2026 defies convention with its 16-car underground garage, made possible by advanced engineering, specialized construction methods, and the collective expertise of Alair Homes — a national network of elite builders uniquely positioned to collaborate, solve problems, and deliver solutions few single-market teams could achieve alone.





“As a builder, creating a basement garage in Florida is no small feat. But when you have a project with this level of ambition, you find a way to make it work. It’s more than just a parking space — it’s a statement about pushing boundaries in home design.”
JIM KRANTZ, BUILDER
THE NEW AMERICAN HOME® 2026

At Alair Orlando, we are proud to have a team of professionals dedicated to delivering exceptional homes. Our experts bring together craftsmanship, vision, and passion to create homes that set new benchmarks.

ALAIR ORLANDO
KENNERLY & CO. PARTNER & BUILDER

Krantz
ALAIR ORLANDO
JNJ GROUP PARTNER & BUILDER



John Altman
SENIOR PROJECT MANAGER
Logan Witt
SENIOR PROJECT MANAGER
ARCHITECT
Michael Wenrich
INTERIOR DESIGNER
Steele Street Studios
TNAH TASK FORCE CHAIRMAN
Ted Mahoney
ENERGY VERIFIER
Two Trails Inc.
LANDSCAPE DESIGN
Mills Design Group
Founded in 2007, Alair Homes is North America’s largest, privately held custom home building and renovation company. With a rapidly growing network of franchises since 2012, Alair has become a trusted name in over 100 locations across North America.
Our distinctive approach is cemented in partnerships with esteemed architects,
designers, ensuring homeowners a distinctive construction management experience. Striving for continuous improvement through our Client Control® construction management methodology, Alair is dedicated to delivering meticulously crafted, beautiful homes while empowering clients with full transparency and peace of mind from conception to completion.


PLATINUM
LG Air Conditioning
Technologies
LG SKS
GOLD
Kohler Co.
Schneider Electric
LSC MEMBERS
Amrize
Broan-Nutone
EMTEK / Fortune Brands
Garaventa Lift
Generac
Gladiator GarageWorks/Whirlpool
LiftMaster
PARTICIPANTS
42 Audio Visual
AeroBarrier
Aquatica
Aquor
AutoHot
Axiom Fine Art
Bang & Olfsen
Barry Neal Floor & Home
BlumSafe
Carousel USA
Concrete Foundations Assoc.
Composit Cucine
Contractor Source
Crossville Studios
D&D Garage Doors
Daisy
Environmental Water Systems
Euclid Chemical
Firegarden
Fontana Forni USA
SILVER
Bedrock Wireless
Clopay
Coleto Brands: Progress
Lighting & Kichler
Cosentino
DaVinci Custom Fireplaces
Digs
DSA Doors
Euro-Wall
Visual Comfort
Sherwin-Williams
FreePower
Helix Steel
Home Team Pest
Defense
Innovation Cabinetry
J. Gibson Mcilvane
Jinko Solar
Josh.ai
Lawson Design
LG Floor Design Inc.
Origin
Orlando Steel Framing
Fi-Foil
Lutron
Nichiha
OmegaFlex
Progressive Foam
Rinnai
Thermory
Viewrail
VintageView
Pentair
Scena
Schluter Systems
Slim Design Solutions
Solar Stack
Sugatsune
The Home Depot
Tremco
TruFlame
Ubiquiti Inc.

Thanks to product donations from our vendor community, $3 million in products and systems were contributed to this home in direct support of its philanthropic mission, with 100% of proceeds benefiting Jonathan’s Landing. These partnerships did more than elevate the home; they helped turn a bold vision into real impact for adults on the autism spectrum.

At Kohler, we believe exceptional homes begin with exceptional partnerships—and our collaboration with Alair Homes is a testament to that belief. As a global leader in kitchen and bath design for over 150 years, Kohler delivers products that blend timeless aesthetics with cutting edge functionality. From smart toilets and water-saving faucets to statement making sinks, showers, and wellness experiences—including hydrotherapy, saunas, and cold plunge solutions—our offerings are crafted to elevate every space and support the evolving lifestyles of modern homeowners.
PRODUCTS FEATURED IN HOME
• The Ice Bath by Kohler X Remedy Place
• Anthem+ Digital Shower Systems
Soundtiles and Steam incorporated into Digital Showers
• Numi 2.0 Smart Toilet

With everything we create we demonstrate respect for food at every level. Delivering performance, design and precision, we honor the ones who are producing it, the ones preparing it, and most of all, the ones lucky enough to be enjoying it. This is how we stay True to Food.

• Components Kitchen and Bathroom Faucets
• Statement Performance Showering
Real Rain Overhead Shower

PRODUCTS FEATURED IN HOME
• 48-Inch Dual-Fuel Pro Range with Six Burners and Griddle
30-Inch Integrated Column Refrigerator and Freezer
• 24-Inch Integrated Column Wine Refrigerator
• 30-Inch Transitional Combi-Wall Oven 24-Inch Undercounter Convertible Refrigerator / Freezer Drawers
• Powersteam Panel-Ready Dishwasher

Pioneering global innovation since 1958, LG has a presence in almost every country today. Recognized as America’s most reliable home appliance brand, LG offers a broad portfolio of appliance products designed to delivery best in-class technology and reliable service.

PRODUCTS FEATURED IN HOME
Single Unit LG Wash Tower™ with Center Control® 5.0 Cu. Ft. Front Load Washer and 7.4 Cu. Ft. Dryer
• Artcool Mirror
Multi-Position Air Handling Unit

Lutron Electronics is a leading innovator in lighting control, automated shading, and intelligent lighting. With a rich history of pioneering technology, Lutron is committed to enhancing the comfort and efficiency of residential and commercial spaces worldwide. Its dedication to intelligent lighting solutions has made it a trusted name in the industry, providing seamless control and integration options for a variety of applications.
• Multi V™ Inverter Heat Pump Water Heater (Hpwh)
• Mid Static Ducted
LG Studio Washtower™ Smart Front Load 5.0

PRODUCTS FEATURED IN HOME
Homeworks Lighting Control System
• Lumaris Tunable LED Tape Light Sivoia QS Triathlon Roller Shades
• Ketra D2 Downlights Lumaris 4” Downlights

Viewrail designs and manufactures floating stairs and modern railing systems that transform everyday movement into an architectural experience. By managing every step of the process—from initial design through manufacturing, delivery, and installation—Viewrail makes it easier for homeowners and building professionals to bring bold, design-forward ideas to life.

FLIGHT Blade Floating Stairs
FLIGHT Stack Floating Stairs
• FLIGHT Mono Floating Stairs Glass Railing PRODUCTS FEATURED IN HOME

VintageView’s wine racking system brings sleek, minimalist design and custom organization. It showcases collections with clarity and style while keeping bottles accessible and beautifully integrated into contemporary living spaces.

• Vino Series Window
• Vino Series Post System Wine Tower (Customized) PRODUCTS FEATURED IN HOME

Since the early 1970s, Schluter®-Systems’ exclusive purpose has been to develop innovative solutions for tile and stone installations, and most recently, resilient coverings such as LVT. Our products combine state-of-the-art technology and attention to detail for permanently functional and visually appealing results.

PRODUCTS FEATURED IN HOME
Schluter was used in all the bathrooms, showers, and the main interior floor

Since 1930, Sugatsune has designed and manufactured unique, high-quality hardware that helps people Build Better. Sugatsune, the manufacture of LAMP® brand products, is committed to developing the best solutions and provide the right services to ensure that architects, designer and builders can create their desired visions.

PRODUCTS FEATURED IN HOME
• HES Consealed Hinges
• ML-ZN80 Push-To-Open Touch Latch Sliding Pocket Door System

Founded in 1959, Generac was the first to engineer affordable home standby generators, along with the first engine developed specifically for the rigors of generator use, and is now the #1 manufacturer of home backup generators. Generac manufactures the widest range of power products in the marketplace including portable, residential, commercial and industrial generators.

PRODUCTS FEATURED IN HOME
• Home Standby Generator Standby Generator Transfer Switches

Our mission is simple, save homeowners time and water. At Aquor, we make revolutionary leak-free and frost-free outdoor faucets that you’ll actually enjoy using. Aquor Hydrants are low-profile stainless steel hose bibbs that allow you to plug in garden hoses effortlessly.
PRODUCTS FEATURED IN HOME
• Premium House Hydrant V2+




