Grupo 1, Desarrollo de proyecto: fase II

Page 1

Diseño

de Interiores VI- Gran Proyecto Maestra: Olga Roberts Grupo 1 Mercedes De La Cruz A00103682 Aimeé Pérez A00101379 Desarrollo del proyecto: Fase II

Índice

arquitectónica

Planta arquitectónica propuesta Planta dimensionada propuesta

Elevaciones interiores

Aprovechamiento del espacio natural

Aprovechamiento ventilación natural

Evitar encerramiento en las áreas a diseñar

de materiales por áreas Cuadro de necesidades actual Conclusión

del estudiante

Introducción Ubicación y Localización Planta de techo Concepto y estilo Zonificación propuesta Planta
actual
Catálogo
Referencias Aportes
1. 2. 3. 4. 5. 6. 7. 8. 9. 10. 11. 12. 13. 14. 15. 16. 17.

Introducción

En la segunda fase del proyecto de diseño del hotel Costa Azul, tiene como finalidad la creación de un espacio vacacional donde se mezclan el ambiente natural costero con el espacio de hábitat. Por tanto, se trabajarán las partes que compondrán el proyecto, tomando en cuenta la ubicación del proyecto, el concepto y estilo planteados para la armonía del proyecto.

La propuesta de diseño pretende aprovechar los recursos naturales, como los materiales del área, la iluminación y ventilación natural, consiguiendo así, el seguimiento de los lineamientos trazados por el estilo, con el fin de crear espacios que evoquen sensaciones de amplitud, relajación y elegancia.

Ubicación y Localización

Localización

S/E
República Dominicana Océano Atlántico Océano Atlántico Duarte Mar Caribe Río San Juan

Ubicación

Calle camino Playa Grande, Río San Juan. Próximo a Amenera hotel. Océano Atlántico
AutopistaRíoSanJuan
S/E

Plantadetecho

Leyenda S

Dirección de la pendiente. Pendiente del techo

Tejas mixta

Tejas planas

Palma de cana

Techo verde

Tiras de bambu tejidas

Hormigón

Bambu

S/E

Concepto de diseño

Concepto Concha

Es la cobertura exterior, dura, rígida y que poseen los moluscos. Palabras claves:

Movimiento Volumen

Textura Color

Estilo de diseño

Estilo Contemporáneo

El estilo contemporáneo es un estilo práctico que se encuentra entre la vanguardia y lo clásico y tiene un aspecto visual unificado pero cómodo y elegante. Este estilo se caracteriza por:

Presentar materiales de vanguardia, metales y vidrios

No ser ornamentoso, tiene preferencia por lo suave y sutíl

Decoración con tejidos sólidos o estampados muy sutiles

Colocación de accesorios puntuales y no grandes colecciones de objetos

Combinación de paredes y muebles blancos

En ocasiones incorpora elementos naturales

Utiliza paletas de colores de colores neutros, grises, negros y blancos

Tendencia Estilo Natural

El estilo natural es la una tendencia en diseño de interiores que tiene como propósito transmitir una estética natural y artesanal dentro de el interior.

Materiales naturales: Fibras naturales, orgánicas y sostenibles como el lino, el algodón, el ratán, el mimbre o el bambú. Maderas naturales en tonos suaves en acabado tosco.

No se trata del estilo rústico, sino de un ambiente sencillo y acogedor donde predomina la madera y los muebles de líneas básicas

Tejidos naturales como algodón y lino Tonos ligados a la naturaleza como verdes, azules, tierra, arena, crema, o blancos rotos.

Las plantas son imprescindibles

Elementos decorativos: Sillas y cestas de mimbre, alfombras de fibras naturales, muebles de madera vistos, textiles neutros, lámparas de fibras naturales que permiten el paso de la luz, porcelanas artesanas con toques de color...

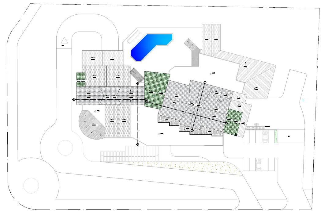
Zonificación

Zonificación actual

Leyenda Dormitorio

Salón Baño Entrada Terraza Closet Circulación Servio de piso Escalera Elevadores S/E

Zonificación propuesta

Leyenda Dormitorio

Salón Baño Entrada Terraza Vestíbulo Circulación Servio de piso Escaleras Elevadores S/E

Planta Actual

Planta Arquitectónica Existente

Leyenda Dormitorio Simple Dormitorio Doble Dormitorio Suit Jr. Baño Vestíbulo Pasillo Terraza Escalera Servicio de Piso

S/E

Planta propuesta

Planta Arquitectónica Amueblada

S/E

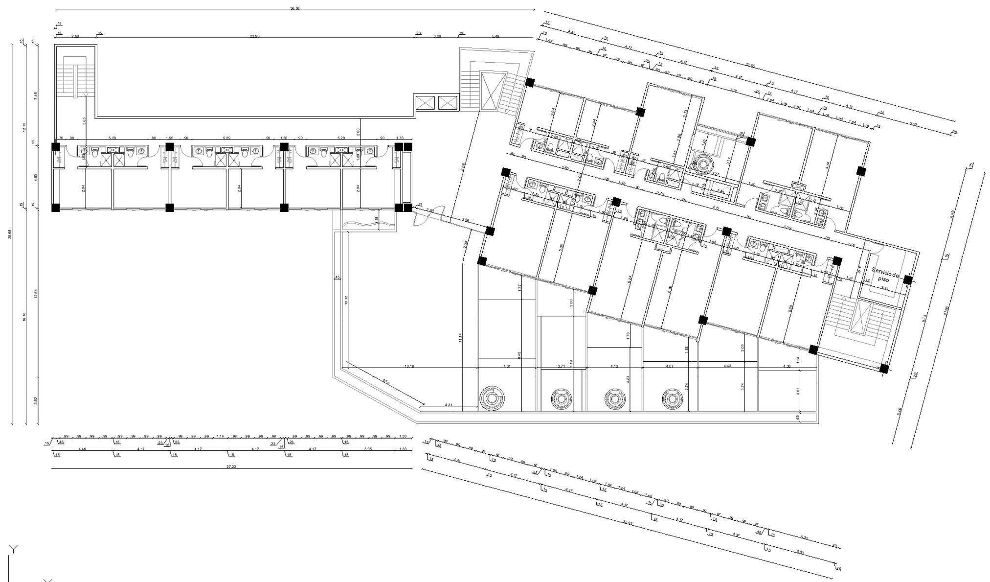
Planta dimensionada propuesta

Planta Dimensionada S/E

Elevaciones Interiores

Sección B-B

Sección A-A

S/E Planta Referencia

Sección D-D

Sección C-C

Planta Referencia
S/E

Aprovechamiento ventilación natural

Ventilación

Para el aprovechamiento de la ventilación natural fueron utilizados distintos medios, entre los cuales se encuentra el empleo de áreas verde; La terraza común e individuales. La vegetación como son la grama y plantas, cumplen con la función de reducir la temperatura creando una atmosfera agradable, también, reducen el ruido exterior y purifican el aire.

Otra forma de utilizar la ventilación natural fue creando una conexión entre las terrazas y el interior, con las habitaciones y vestíbulo. Además, de la integración de un hueco en la pared del pasillo, entre la primera escalera y los ascensores. Por último, el uso de materiales que favorecen el aislamiento térmico y acústico en los techos, el bambú y las tejas.

Aprovechamiento de la iluminación

Iluminación

La luz natural es un recurso vital para la salud de los seres vivos, reduce la fatiga visual, mejora el estado de ánimo, permite la observación de objetos, reduce el gasto energético, resalta formas y colores en el espacio.

En el diseño se creó una apertura en la pared para luz natural en el pasillo donde se encuentran los dormitorios simples. También, se emplearon ventanales en el vestíbulo y en las escaleras que conecta en todos los dormitorios y la terraza con el área común. Además, se fueron integradas cortinas dobles, de tela fina de lino que permitan la entrada de luz durante el día y tipo Blackout de algodón para el descanso de los huéspedes.

Soluciones para evitar cerramientos

Cerramientos

En el proyecto se evitaron espacios cerrados por medio de empleo de distintitos métodos, como el techo a dos aguas que permite generar amplitud en el espacio interior.

El uso de colores claros en revestimientos de pared y pisos, crean la sensación de que es espacio se extiende ya que reflejan la luz. También, por medio de lo ventanales que crean una conexión con el espacio exterior e interior.

Catálogo de materiales

Suite Jr.

Lino
Planta de Referencia Dormitorio S/E
Roble
oscuro Pino americano Panel de roble blanco Color de paredes
Roble oscuro
Lino
Roble oscuro Roble claro
Mesa auxiliar roble Vidrio y aluminio
S J Planta de Referencia Dormitorio S/E Puertas de Respejos atán Mimbre C Madera teca Espejo con luz Porcelana Gres porcelánico Piso gres esmaltado

Dormitorio matrimonial

Madera

Piso

Mármol

teca
de madera teca Mesita de mimbre
y roble blanco Silla de mimbreJardinera de hormigón Gres porcelánico Piso gres PesmaltadoPorcelana orcelana y madera teca Roble oscuro
Roble
oscuro Alfombra de mimbre Planta de Referencia Dormitorio S/E

Dormitorio Matrimonial

Cortinas doble de riel Lino Lino Mesa auxiliar roble Pino americano Roble claro Closet con espejosVentana de aluminio Color de paredes Ratán Planta de Referencia Dormitorio S/E

Dormitorio simple

Cristal y aluminio
Elemento
decorativo
Roble blanco
Planta de Referencia Dormitorio S/E
Roble oscuro
Color de paredes lámparas ratán Closet con espejos Macetero de porcelana

Planta

Dormitorio simple

Piso gres esmaltado

Porcelana y madera teca

Gres porcelánico

Porcelana

Madera teca

Cortinas doble de riel
de Referencia Dormitorio S/E
Espejo con luz
Alfombra de sisal

Dormitorio doble

Piso

Vidrio

Closet con espejos

Planta de Referencia Dormitorio S/E
Cortinas
doble
de
riel
Roble
blanco
gres esmaltado
y aluminio Papel vinil Macetero de porcelana Roble oscuro lámparas ratán

Dormitorio doble

Color de paredes Mimbre Madera teca GPorcelana res porcelánico Piso gres esmaltado Planta de Referencia Dormitorio S/E Porcelana y madera teca
Terrazas Madera teca Madera teca y tela Mimpermeable adera teca y tela Mimpermeable imbre BsintéticoMambú imbre Luces empotrables Bambú Piedra onix Luces focales Tiras de bambú tejidas Planta de Referencia Terrazas S/E

Terrazas

Vestíbulo

Piso gres esmaltado Alfombra
de mimbre Cristal y aluminio Cristal
y
bambú Mimbre Mimbre Piedra laja Roble y Lino Roble y Lino
Planta de Referencia Dormitorio S/E

Cuadro de necesidades

NORTE SELECCIÓN LEYENDA Cuadro de Necesidades Existente ESPACIO ORIENTACIÓN Dormitorios Simples Dormitorios Dobles Suite Jr. ILUMINACIÓN NATURAL(N) ILUMINACIÓN ARTIFICIAL(A) VENTILACIÓN NATURAL(N) RUIDO N S E O 1 2 3 4 5 1 2 3 4 5 1 2 3 4 5 1 2 3 4 5 SUR ESTE OESTE ARTIFICIAL NATURAL Escala numérica: iluminación, ventilación y ruido 1 2 3 4 5 Nulo Poco Regular Suficiente Excesivo XX XX XX X X X X X X X X X X X X N S E O A N X PLANTA DE CONJUNTO S/E
NORTE SELECCIÓN LEYENDA SUR ESTE OESTE ARTIFICIAL NATURAL Escala numérica: iluminación, ventilación y ruido 1 2 3 4 5 Nulo Poco Regular Suficiente Excesivo N S E O A N X PLANTA DE CONJUNTO Cuadro de Necesidades Propuesto ESPACIO ORIENTACIÓN Dormitorios Simples Dormitorios Dobles Suite Jr. ILUMINACIÓN NATURAL(N) ILUMINACIÓN ARTIFICIAL(A) VENTILACIÓN NATURAL(N) RUIDO N S E O 1 2 3 4 5 1 2 3 4 5 1 2 3 4 5 1 2 3 4 5 XX XX XX X X X X X X X X X X X X X X S/E

Conclusión

En el proyecto realizamos una propuesta para el área de las habitaciones del hotel. Como parte del proceso del diseño fuimos capaces de desarrollar los pasos desde el estilo, la zonificación, los planos técnicos y el catalogo de materiales.

Desarrollamos una propuesta que nos permitió cumplir con los estándares que se requieren en el diseño de las habitaciones de un hotel. Además, utilizamos una combinación de materiales y texturas acorde con el estilo y el concepto propuesto. Finalmente, la propuesta de diseño cumple con los objetivos planteados en la primera fase del proyecto.

Referencias: tuoagency.com/cuaderno-de-inspiracion/claves-estilo-contemporaneocontract republicainmobiliaria.com/editorial/estilo-natural-diseno-de-interiores Panero, J y Zelnik, M (1996) LAS DIMENSIONES HUMANAS EN LOS ESPACIOS INTERIORES. México Ediciones G. REGLAMENTO No. 2115 DE CLASIFICACIÓN Y NORMAS PARA ESTABLECIMIENTO HOTELEROS,RD greendok.com/aprovechamiento-de-la-luz-natural-en-el-diseno-deespacios mundohvacr.com.mx/2015/04/mejora-del-aire-interior-conventilacion-natural

Aportes del estudiante

El proyecto de diseño del hotel Costa Azul, segunda fase, se compone por: Introducción, ubicación y localización, concepto y estilo, zonificación propuesta, planta arquitectónica actual, planta arquitectónica propuesta, planta dimensionada propuesta, elevaciones interiores, aprovechamiento del espacio natural, aprovechamiento ventilación natural, evitar encerramiento en las áreas a diseñar, catálogo de materiales por áreas, cuadro de necesidades actual y conclusión. Donde ambas integrantes del grupo trabajaron en conjunto para el diseño del proyecto.

Gracias

Turn static files into dynamic content formats.

Create a flipbook
Issuu converts static files into: digital portfolios, online yearbooks, online catalogs, digital photo albums and more. Sign up and create your flipbook.