Architecture portfolio | Ágnes Jobbágy

Page 1


experiences

2024 - present Senior Architect

RAWplan

• Leading architectural design tasks and ensuring project quality and consistency

• Coordinating structural, MEP designers

• BIM modelling in Revit, supporting the BIM Manager by coordinating and managing BIM-related tasks

• Facilitating communication and coordination between design teams and stakeholders

• Conducting quality control checks to ensure compliance with BIM standards and project requirements

2023- 2024 Architect

Freelance architect

• Independently designed and signed off on a residential building project with full architectural authority in Hungary, responsible for the complete architectural planning, documentation

• Working as a contractor for companies, supporting the team by preparing technical drawings

2021- 2022 Architect

Demeter Design Studio

• Designing, 3D modelling in all project stages from conceptual design to construction details as a team leader

• Succesfully negotiated with investors to invest in quality façade structure utilizing my technical drawings and façade design presentation

• Created LOD 350 detailed 3D model of the buildings

2017- 2021 Architect

TIBA

Architects Studio

• Designing, 3D modelling in all project stages from conceptual design to construction details as a team leader

• Mastered BIM modelling mindset by building 3D model of the buildings in Revit (LOD 350 models)

• Coordinating structural, MEP and urban designers

• Creating comprehensive presentations for supporting projects

• Complexity to work on a wide range of different topics including BREEAM documentation, interior design

• Mentoring role, trained new colleagues to use Revit

2016- 2017 Architect

Kolba and Partners Architect Studio, Art-Master Studio

• Designing, 3D modelling in all project stages from conceptual design to construction details

• Gained comprehensive knowledge in navigating permitting process

education

2016 – Degree of Master’s in Architectural Design

2014 – Degree of Bachelor’s in Architectural Engineering

SZIE-Ybl Miklós Faculty of Architecture and Civil engineering

Member of Folk Science Student Circle (farmhouse surveys), participant in building camps, volunteer mentor for disadvantaged students, editor-in-chief of university journal

76 Fehérvári street, 1117 Budapest - Hungary

exhibition - aWards

2019 – 2nd National Salon of Architecture - Budapest

Special mention

Exhibited master’s degree project: Agriagora, theatre for children

2019 – The silhuette of the future - Kőszeg

Exhibited master’s degree project: Agriagora, theatre for children

2015 – Media’s Architectural Prize - 2nd best finalist plan

Presented bachelor’s degree project: Botanical Research Institute jobbagy.agnes.mail@gmail.com | address: 1/1

skills

Revit Architecture

ArchiCAD

Rhino 3D

AutoCAD

Grasshopper

Sketch up

Lumion

Adobe Photoshop

Adobe InDesign

Adobe Illustrator

MS Office Suite

certification

Qualified architectChamber of Hungarian Architects

Creativity

Analytical thinking

Problem-solving

Collaboration

Responsible

3D modelling - BIM

Technical drawings

Hand graphics

hobbies

rowing, cycling, hiking, painting, wandering around the city, art, cultural activities

about me

I am a highly skilled architect with eight years of design experience, specializing in 3D modeling. My approach to design is holistic; I know that a comprehensive perspective significantly enhances the creative process. I’m confident in my ability to analyze spaces through multiple layers, and I engage in this process with curiosity and meticulous attention to detail. My expertise allows me to deliver innovative and impactful designs that meet the highest standards.

plan plan

liget center auditorium

project

Liget Center Auditorium

type status location year

Tiba Architects Studio office heritage built Budapest 2020-2021

program

Renovation of the Auditorium, extension of the complex with new wing. Offices, conferences rooms, cafateria, café.

csatlakozó megtartandó nagykockakő

ültetett homlokzatra futó növényzet

My parts and responsibility

Concept design 3D modelling Developed design Construction

01 - office / masterplan

Légkondícionáló kültéri egysége

felújítandó közmű szekrény

meglévő, megtartandó taxi megálló kresz tábla hulladékgyűjtővel újonnan kihelyezett, meglévővel azonos típusú hulladékgyűjtő felújítandó kandeláber

science park

Science Park

Tiba Architects Studio public, master plan design

Nagykanizsa 2020

Rehabilition of the industrial area, research institut, education center.

Establishment of an active, recreational green promenade.

My parts and responsibility Concept design

3D modelling Construction Developed design program

turin cloud

Turin Cloud Agnes Jobbagy, David Szegedi, Levente Gulyas

public, master plan competition

Turin - Mappano 2019

Sport citadel, multifuncional sports hall 19 500 pax, handball field in the arena. Shopping, entertainment in the mall.

My parts and responsibility:

VÁcI greens block e-f

Váci Greens - block E-F

Tiba Architects Studio office retail built Budapest 2019

Offices with ground floor retail units open to the public.

Gross floor area 82080 m2 , BREEAM “Excellent” certified.

My parts and responsibility

project

type status location year FOKA bay

Kolba and Partners Architect Studio master plan, urbanism design Budapest 2017 program

Residential area connection to the Danube with promenades leading down to the banks. Urban development plans for this part of town.

My parts and responsibility

residential / hotel

Lake 11

Demeter Design Studio, Coldefy, 5LM residential under construction Budapest 2021 - 2022

program

175 units of housing with underground parking, services, and supporting commercial spaces.

Surface 22400 m2 net area.

My parts and responsibility Concept design 3D modelling Developed design Construction

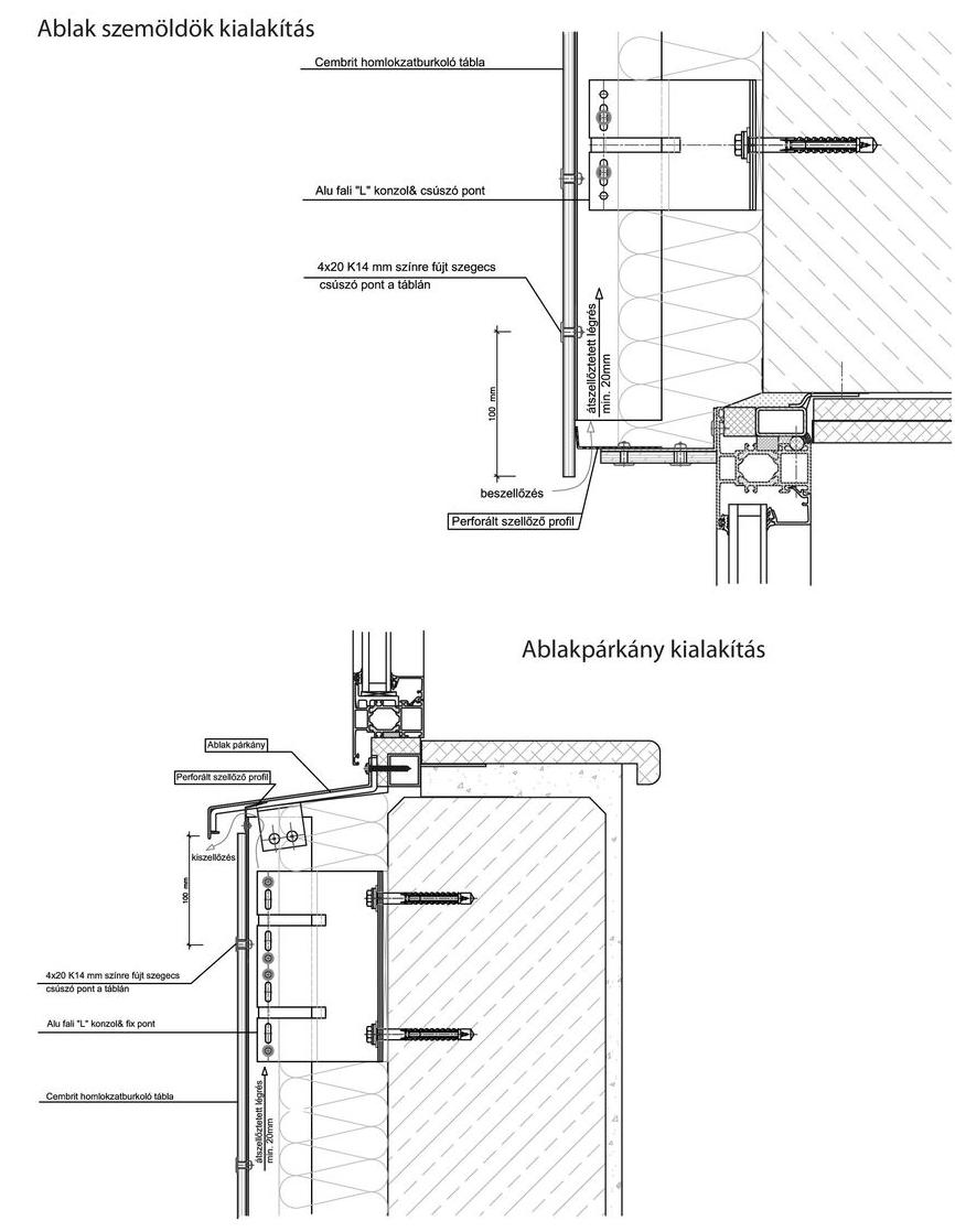
TERASZBURKOLAT

lábakra állított hézagos, elemes teraszburkolat faburkolat / WPC burkolat kerámia lapok

belső vízelvezetés

fém párkánylefedés tűzálló acéllemez alátétvázzal

fém burkolat

külső textilárnylékoló, szúnyoghálóval

3 rétegű hőszigetelt üvegezés

TERASZBURKOLAT

lábakra állított hézagos, elemes teraszburkolat faburkolat / WPC burkolat kerámia lapok fémlemez fedés

folytonos korlátmegfogás min %

18 fémlemez fedés

vakolat

fémlemez fedés

átszellőztetett szálcement vagy nagytáblás kerámia homlokzatburkolat

72

2,40

2 verzió: vasbeton szemöldök + toktoldó + eldobozolás alu-fa vagy alu-műanyag emelő-toló teraszajtó alu-fa vagy alu-műanyag emelő-toló teraszajtó

n9 apartments

N9 apartments

Tiba Architects Studio residential built Budapest 2018 - 2019

Premium apartments, renovation and additional storeys.

Hotel Üllői

hotel üllői

Kolba and Partners Architect Studio hotel, residential design Budapest 2017

6 storeyed hotel and residential, with restaurant, café, gym and recreation. Gross floor area 17000 m2 .

project

lauder JaVne school

Lauder Javne school - extension

Tiba Architects Studio education, public under construction Budapest 2019 - 2020

program

My parts and responsibility

Building complex with 6 classrooms and a smaller gym. Pavilon-like blocks, attached to the central corridor, green wall. Windows that can be used as a seat. Construction

Concept design

3D modelling Developed design

project

Agriagora - theater for children

type status location year

Agnes Jobbagy black box theater

MSc final project

Eger

2016

program

Flexible black box theater with a seated capacity of 80. Performance space, rehearsal space on the first floor. Focus on the interaction of acting and art education.

My parts and responsibility

Concept design 3D modelling Developed design

botanical research institute

Botanical research institute

Agnes Jobbagy education

BSc final project

Gödöllő 2014

program

Botanical research institute and department for 400 students, including an auditorium of 120 seats, various laboratories, café, services, community garden for students.

residential - pri Vate

Bimbo house - extension

Demeter Design Studio residential in progress Budapest 2022

program

6 units of housing, refurbishment of a Bauhaus-style modern building, a new roof level addition.

project

type status location

year

program

R house Agnes Jobbagy family house design

Nagykovácsi

2021

House in a small village near to the forest with gallery, 3 bedrooms, laundry room and home brew room in the basement.

My parts and responsibility

Concept design 3D modelling Developed design

Construction

04 - residential - priVate

c house

C house

Jobbagy, Istvan Mester residential built Budapest 2016-2017

4 units of housing with underground parking, large rooftop terrace.

interior design - furniture

furniture design

liget center auditorium

Liget Center Auditorium

Tiba Architects Studio interior design, office heritage design Budapest 2021

program

Renovation of the Auditorium, extension of the complex with new wing.

Offices, conferences rooms, cafateria, café.

project type status location year program

office interiors

Agnes Jobbagy interior design design Budapest 2016, 2018, 2021

Lobby furniture, reception desk, parametric design. Reception with access control security gate.

My parts and responsibility Concept

graphic design 06

project

Caferol café

caferol

type status location year

Agnes Jobbagy graphic design built Budapest 2021 program

Brand design for a new café in the city center. Including company sign, logo design.

My parts and responsibility

Turn static files into dynamic content formats.

Create a flipbook
Issuu converts static files into: digital portfolios, online yearbooks, online catalogs, digital photo albums and more. Sign up and create your flipbook.
Architecture portfolio | Ágnes Jobbágy by Ágnes Jobbágy - Issuu