Skip to main content

Dossier y memoria Riura

Page 1


Metros cuadrados para vidas redondas

Las imágenes mostradas son una aproximación lo más fiel posible del resultado final del inmueble proyectado, pudiendo darse modificaciones derivadas de exigencias técnicas o jurídicas, siempre que estén justificadas y no supongan una alteración sustancial del objeto y/o calidad de los materiales. El mobiliario mostrado no está incluido, siendo el equipamiento del inmueble el indicado en la memoria de calidades. Toda la información y entrega de documentación se hará según lo establecido en el Real Decreto 515/1989, de 21 de abril, y demás normas que pudieran complementarlo ya sean de carácter estatal o autonómico.

Riura. Valterna

Bienvenidos

Nuestro sello es sinónimo de calidad y confianza y, por eso, queremos contar contigo para hacer de tu vivienda un espacio singular adaptado a tus necesidades. Somos una promotora inmobiliaria de nueva generación que pone a tu disposición el talento y la experiencia de un gran equipo de profesionales.

¿Qué necesitas?

¿Por qué Riura en Paterna?

AEDAS Homes ha nombrado Riura a esta promoción situada en la zona conocida como Valterna en la ciudad de Paterna, en referencia a la palabra “riure” que significa risa en valenciano.

La risa como elemento característico de quien es feliz y, para

AEDAS Homes la felicidad nace en tu casa. Nuestras viviendas están hechas para ser ese lugar ideal donde compartir felicidad y todas esas risas junto a los nuestros.

Paterna, el lugar perfecto para vivir

Paterna fue uno de esos tranquilos y luminosos pueblos agrícolas de la comarca de la Huerta Valenciana con orígenes históricos de los que conserva un rico patrimonio artístico y monumental.

El tiempo ha pasado y la villa de entonces se ha convertido en una próspera ciudad en continuo crecimiento que conforma a su alrededor diferentes núcleos poblacionales que lejos de desarrollarse bajo un urbanismo desenfrenado, han mantenido muchas de estas características.

Valterna, donde se encuentra Riura conserva la luz, la amplitud, la vida apacible y las buenas conexiones con toda la ciudad. Un barrio ideal para disfrutar de la vida en un ambiente mediterráneo.

La casa que estás buscando

Sabemos que la casa que buscas es como tú, tiene tu personalidad, esa forma tuya tan peculiar de ver la vida y un toque de singularidad que la convierte en un espacio solo para ti.

Por eso, desde AEDAS Homes te ofrecemos un exclusivo edificio de 104 viviendas de 1, 2, y 3 dormitorios con garaje y trastero entre las que se incluyen pisos en altura y áticos con grandes terrazas.

En Valterna, a pocos minutos de la ciudad de Valencia, disfrutarás de la comodidad que supone vivir en una zona con todos los servicios que necesitas a tu alcance.

¿Qué significa vivir en Valterna?

Valterna es uno de los desarrollos urbanos comunicado de Paterna que la capital valenciana también quiere abrazar, ofreciéndote la comodidad de vivir a tan solo 15 minutos de la gran ciudad sin perder la escala de barrio tranquilo y moderno, con todo lo necesario para que tu día a día sea tan cómodo como quieres.

Así, tanto la tranquilidad y la comodidad de vivir rodeado de servicios como la facilidad para desplazarse y acceder a las oportunidades que te ofrece la gran urbe, dan a sus habitantes lo mejor de los dos mundos.

Riura. Valterna
Parada de autobús
L141
Parada de tranvía
Accesos carretera
Autovía de Ademuz
Paterna
Autovíade
Ademuz

Un edificio pensado al milímetro

AEDAS Homes busca siempre la belleza y la calidad arquitectónica en todos sus proyectos. En Riura no solo te ofrecemos excelentes calidades interiores, sino que también nos esforzamos por conseguir una arquitectura exterior acorde con la estética y necesidades del siglo XXI.

El diseño llevado a cabo por EAP Arquitectura, responde inmejorablemente al propósito con el que se concibió Riura . La arquitectura de tu nueva vivienda está cuidada al máximo para conjugar la funcionalidad con el más exquisito diseño. Interior y exterior establecen un ‘diálogo’ en el que la luz natural y el paisaje cobran un gran protagonismo espacial.

A un paso de todo lo que necesitas

Ubicación, comunicaciones y servicios, esas son las tres claves para que tu casa esté bien situada en la ciudad. Riura está perfectamente servida de todas ellas. En sus proximidades encontrarás todos los servicios que necesitas y, por eso, es la ubicación perfecta si buscas una vida tranquila sin renunciar a las comodidades de la ciudad.

Junto a tu nueva casa disfrutarás de una amplia oferta de centros educativos de todos los niveles, así como de actividades deportivas, superficies comerciales, centros médicos y mucho más. Todo lo que necesitas lo tendrás a pocos minutos para disfrutarlo con total comodidad.

“Una arquitectura que dialoga con el paisaje y crea un lugar sereno, equilibrado y lleno de luz natural”

EAP

Arquitectura

Lugares para desconectar

Una de las premisas fundamentales de AEDAS Homes es el cuidado de sus clientes y, por eso, queremos hacer que tu día a día sea más fácil. En Riura se han proyectado unas completas zonas comunes donde olvidar el estrés y desconectar.

En las zonas comunes de tu casa encontrarás el lugar perfecto para disfrutar en familia. La urbanización cuenta con una piscina de adultos con solárium, zona de juegos infantiles y zona ajardinada.

Si lo prefieres, también podrás acudir a tu magnífico local social o a tu gimnasio completamente equipado para que no tengas que salir de casa si quieres ponerte en forma.

Para que tu día a día sea más cómodo también contarás con una zona de aparcamiento para bicicletas y una zona de conserjería con servicio de buzones inteligentes. Las bicicletas no ocuparán lugar en tu casa y podrás garantizar la recepción de tus pedidos de paquetería sin necesidad de estar en casa.

Casas con espacio para todos

Las viviendas de Riura están pensadas para satisfacer tus necesidades de espacio y, por eso, ofrecen 1, 2 y 3 dormitorios con variedad de distribuciones y metrajes. Tanto las familias que están empezando a crecer como las ya consolidadas encontrarán su casa ideal en esta promoción.

Además, para que puedas disfrutar del excelente clima mediterráneo, el salón de tu casa se funde con el exterior a través de una confortable terraza que sin duda será uno de tus lugares favoritos en tu nueva vivienda.

La luz como compañera de vida

Cada espacio de Riura está cuidadosamente pensado para que sea funcional, armónico, confortable y bello.

Las vistas al exterior y las perspectivas interiores crean esa sensación única de vivienda urbana pero tranquila e independiente. El aprovechamiento de la luz y las condiciones privilegiadas del entorno del Barranc del L´Endolçà crean ese indefinible bienestar que da el modo de vida mediterráneo.

Porque vivir bien empieza por vivir con luz.

+ AHORRO

Menor consumo y menor mantenimiento.

+ BIENESTAR

Confort térmico, acústico y luminoso.

+ VALOR

Mayor valor del inmueble.

- CONSUMO

Ahorro en las facturas de suministros.

- RUIDO

Mejora el aislamiento acústico.

- CO2

Menores emisiones para proteger nuestro planeta.

La eficiencia energética, siempre en mente

AEDAS Homes apuesta por el futuro a través de construcciones sostenibles tanto en su puesta en marcha como en su fase final. Todas nuestras viviendas ofrecen un alto nivel de calificación energética para que, a la vez que contribuyes al cuidado del medio ambiente, te beneficies de las ventajas de hacerlo.

Puesto que tu nueva casa es eficiente notarás que a fin de mes las facturas son menos abultadas. El proyecto incluye un tipo de acristalamiento que colabora a mantener la temperatura constante y por eso no será necesario un gasto tan elevado en climatización. Junto al confort térmico, notarás cómo el sonido queda completamente amortiguado y podrás descansar sin que nada interrumpa tu sueño.

Estas mejoras en eficiencia contribuyen a reducir las emisiones de CO2, por lo que cada día –sin esfuerzo y sin darte cuenta– estarás ayudando a cuidar nuestro planeta.

Iluminación.

Ventanas de gran dimensión para maximizar la luz natural.

Calidad térmica.

Aislamiento adaptado a necesidades climáticas.

Manual de usuario.

Orientación sobre el uso eficiente del edificio.

Innovación.

Nuevas estrategias para maximizar el beneficio medioambiental.

Energías renovables.

Aerotermia para la producción de agua caliente sanitaria.

Transporte sostenible.

Preinstalación de carga para coches eléctricos.

Aislamiento acústico.

Con el exterior, en divisiones interiores y entre viviendas.

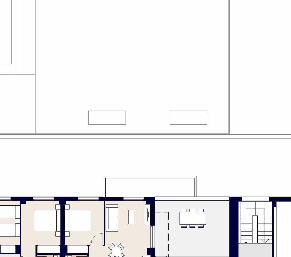
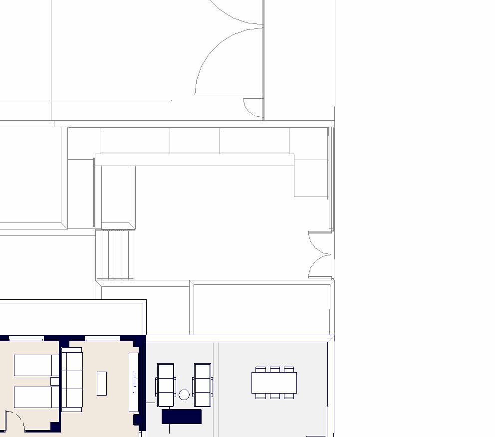
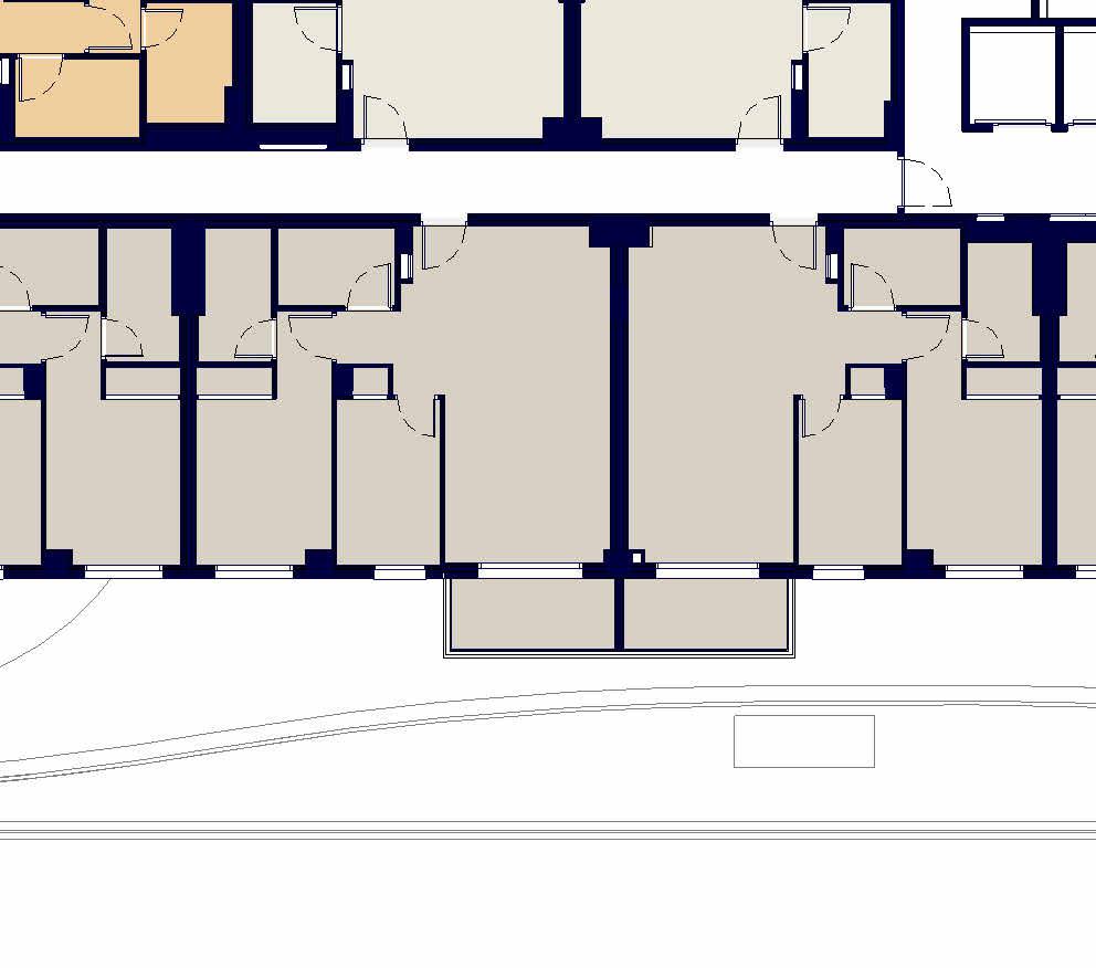
Planos

Urbanización - Planta Baja

APARCAMIENTO
SOLARIUM COMUNITARIO
PISCINA
ZONA

Sótano -1

Calle Murta 2, Parcela UR- 1.2, Sector Lloma Llarga, Valterna, Paterna

Planta Primera

Calle Murta 2, Parcela UR- 1.2, Sector Lloma Llarga, Valterna, Paterna

Planta Segunda

Calle Murta 2, Parcela UR- 1.2, Sector Lloma Llarga, Valterna, Paterna

Planta Segunda

Calle Murta 2, Parcela UR- 1.2, Sector Lloma Llarga, Valterna, Paterna

Planta Tercera

Calle Murta 2, Parcela UR- 1.2, Sector Lloma Llarga, Valterna, Paterna

Planta Tercera

Calle Murta 2, Parcela UR- 1.2, Sector Lloma Llarga, Valterna, Paterna

Planta Cuarta

Calle Murta 2, Parcela UR- 1.2, Sector Lloma Llarga, Valterna, Paterna

Planta Cuarta

Calle Murta 2, Parcela UR- 1.2, Sector Lloma Llarga, Valterna, Paterna

Planta Quinta

Calle Murta 2, Parcela UR- 1.2, Sector Lloma Llarga, Valterna, Paterna
Planta Quinta
Calle Murta 2, Parcela UR- 1.2, Sector Lloma Llarga, Valterna, Paterna
Planta Sexta
Calle Murta 2, Parcela UR- 1.2, Sector Lloma Llarga, Valterna, Paterna
Planta Sexta
Calle Murta 2, Parcela UR- 1.2, Sector Lloma Llarga, Valterna, Paterna
Calle Murta 2, Parcela UR- 1.2, Sector Lloma Llarga, Valterna, Paterna
Calle Murta 2, Parcela UR- 1.2, Sector Lloma Llarga, Valterna, Paterna

Superficie útil interior

Superficie útil exterior

Superficie construida interior

Superficie construida exterior

Superficie construida con ppZZCC

Localización

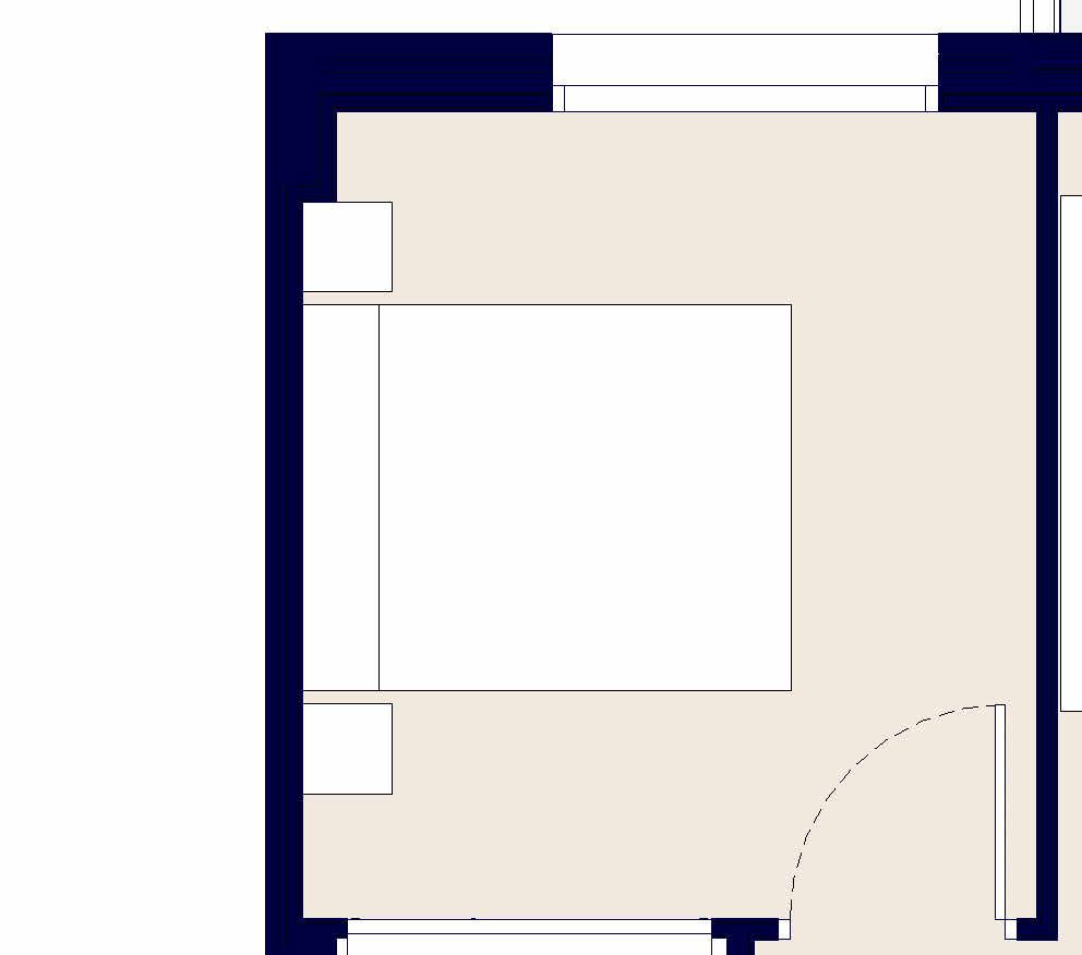
Dormitorio
Terraza
Vivienda Superficies
Calle Murta 2, Parcela
1.2, Sector Lloma Llarga, Valterna, Paterna

Superficie útil interior

Superficie útil exterior

Superficie construida interior

Superficie construida exterior

Superficie construida con ppZZCC

Localización

Vivienda Superficies
Calle Murta 2, Parcela
1.2, Sector Lloma Llarga, Valterna, Paterna

Superficie útil interior

Superficie útil exterior

Superficie construida interior

Superficie construida exterior

Superficie construida con ppZZCC

Localización

Vivienda Superficies
Calle Murta 2, Parcela UR- 1.2, Sector Lloma Llarga, Valterna, Paterna

Superficie útil interior

Superficie útil exterior

Superficie construida interior

Superficie construida exterior

Superficie construida con ppZZCC

Localización

Vivienda Superficies
Calle Murta 2, Parcela UR- 1.2, Sector Lloma Llarga, Valterna, Paterna

Superficie útil interior

Superficie útil exterior

Superficie construida interior

Superficie construida exterior

Superficie construida con ppZZCC

Localización

Vivienda Superficies
Calle Murta 2, Parcela UR- 1.2, Sector Lloma Llarga, Valterna, Paterna

Superficie útil interior

Superficie útil exterior

Superficie construida interior

Superficie construida exterior

Superficie construida con ppZZCC

Localización

Vivienda Superficies
Calle Murta 2, Parcela UR- 1.2, Sector Lloma Llarga, Valterna, Paterna

Superficie útil interior

Superficie útil exterior

Superficie construida interior

Superficie construida exterior

Superficie construida con ppZZCC

Localización

Vivienda Superficies
Calle Murta 2, Parcela UR- 1.2, Sector Lloma Llarga, Valterna, Paterna

Superficie útil interior

Superficie útil exterior

Superficie construida interior

Superficie construida exterior

Superficie construida con ppZZCC

Localización

Vivienda Superficies
Calle Murta 2, Parcela UR- 1.2, Sector Lloma Llarga, Valterna, Paterna

Superficie útil interior

Superficie útil exterior

Superficie construida interior

Superficie construida exterior

Superficie construida con ppZZCC

Localización

Vivienda Superficies
Calle Murta 2, Parcela UR- 1.2, Sector Lloma Llarga, Valterna, Paterna

Superficie útil interior

Superficie útil exterior

Superficie construida interior

Superficie construida exterior

Superficie construida con ppZZCC

Localización

Vivienda Superficies
Calle Murta 2, Parcela UR- 1.2, Sector Lloma Llarga, Valterna, Paterna

Superficie útil interior

Superficie útil exterior

Superficie construida interior

Superficie construida exterior

Superficie construida con ppZZCC

Localización

Vivienda Superficies
Calle Murta 2, Parcela UR- 1.2, Sector Lloma Llarga, Valterna, Paterna

Superficie útil

Superficie construida interior

Superficie construida exterior

Superficie construida con ppZZCC

Vivienda
Calle Murta 2, Parcela UR- 1.2, Sector Lloma Llarga, Valterna, Paterna

Superficie

Superficie

Superficie

Vivienda
Calle Murta 2, Parcela UR- 1.2, Sector Lloma Llarga, Valterna, Paterna

Superficie útil interior

Superficie útil exterior

Superficie construida interior

Superficie construida exterior

Superficie construida con ppZZCC

Localización

Vivienda Superficies
Calle Murta 2, Parcela UR- 1.2, Sector Lloma Llarga, Valterna, Paterna

Superficie útil interior

Superficie útil exterior

Superficie construida interior

Superficie construida exterior

Superficie construida con ppZZCC

Localización

Vivienda Superficies
Calle Murta 2, Parcela UR- 1.2, Sector Lloma Llarga, Valterna, Paterna

Superficie útil interior

Superficie útil exterior

Superficie construida interior

Superficie construida exterior

Superficie construida con ppZZCC

Localización

Vivienda Superficies
Calle Murta 2, Parcela UR- 1.2, Sector Lloma Llarga, Valterna, Paterna

Superficie útil interior

Superficie útil exterior

Superficie construida interior

Superficie construida exterior

Superficie construida con ppZZCC

Localización

Vivienda Superficies
Calle Murta 2, Parcela
1.2, Sector Lloma Llarga, Valterna, Paterna

Superficie útil interior

Superficie útil exterior

Superficie construida interior

Superficie construida exterior

Superficie construida con ppZZCC

Localización

Vivienda Superficies
Calle Murta 2, Parcela
1.2, Sector Lloma Llarga, Valterna, Paterna

Superficie útil interior

Superficie útil exterior

Superficie construida interior

Superficie construida exterior

Superficie construida con ppZZCC

Localización

Vivienda Superficies
Calle Murta 2, Parcela UR- 1.2, Sector Lloma Llarga, Valterna, Paterna

Superficie útil interior

Superficie útil exterior

Superficie construida interior

Superficie construida exterior

Superficie construida con ppZZCC

Localización

Vivienda Superficies
Calle Murta 2, Parcela UR- 1.2, Sector Lloma Llarga, Valterna, Paterna

Superficie útil interior

Superficie útil exterior

Superficie construida interior

Superficie construida exterior

Superficie construida con ppZZCC

Localización

Vivienda Superficies
Calle Murta 2, Parcela UR- 1.2, Sector Lloma Llarga, Valterna, Paterna

Superficie útil interior

Superficie útil exterior

Superficie construida interior

Superficie construida exterior

Superficie construida con ppZZCC

Localización

Vivienda Superficies
Calle Murta 2, Parcela UR- 1.2, Sector Lloma Llarga, Valterna, Paterna

Superficie útil interior

Superficie útil exterior

Superficie construida interior

Superficie construida exterior

Superficie construida con ppZZCC

Localización

Vivienda Superficies
Calle Murta 2, Parcela UR- 1.2, Sector Lloma Llarga, Valterna, Paterna

Superficie útil interior

Superficie útil exterior

Superficie construida interior

Superficie construida exterior

Superficie construida con ppZZCC

Localización

Vivienda Superficies
Calle Murta 2, Parcela UR- 1.2, Sector Lloma Llarga, Valterna, Paterna

Superficie útil interior

Superficie útil exterior

Superficie construida interior

Superficie construida exterior

Superficie construida con ppZZCC

Localización

Vivienda Superficies
Calle Murta 2, Parcela UR- 1.2, Sector Lloma Llarga, Valterna, Paterna

Superficie útil interior

Superficie útil exterior

Superficie construida interior

Superficie construida exterior

Superficie construida con ppZZCC

Localización

Vivienda Superficies
Calle Murta 2, Parcela UR- 1.2, Sector Lloma Llarga, Valterna, Paterna

Superficie útil interior

Superficie útil exterior

Superficie construida interior

Superficie construida exterior

Superficie construida con ppZZCC

Localización

Vivienda Superficies
Calle Murta 2, Parcela UR- 1.2, Sector Lloma Llarga, Valterna, Paterna

Superficie construida

Superficie construida exterior

Superficie construida con ppZZCC

Calle Murta 2, Parcela UR- 1.2, Sector Lloma Llarga, Valterna, Paterna

Superficie

Superficie

Superficie

Vivienda
Calle Murta 2, Parcela UR- 1.2, Sector Lloma Llarga, Valterna, Paterna

Superficie útil interior

Superficie útil exterior

Superficie construida interior

Superficie construida exterior

Superficie construida con ppZZCC

Localización

Vivienda Superficies
Calle Murta 2, Parcela UR- 1.2, Sector Lloma Llarga, Valterna, Paterna

Superficie útil interior

Superficie útil exterior

Superficie construida interior

Superficie construida exterior

Superficie construida con ppZZCC

Localización

Vivienda Superficies
Calle Murta 2, Parcela UR- 1.2, Sector Lloma Llarga, Valterna, Paterna

Superficie útil interior

Superficie útil exterior

Superficie construida interior

Superficie construida exterior

Superficie construida con ppZZCC

Localización

Vivienda Superficies
Calle
1.2, Sector Lloma Llarga, Valterna, Paterna

Superficie útil interior

Superficie útil exterior

Superficie construida interior

Superficie construida exterior

Superficie construida con ppZZCC

Localización

Vivienda Superficies
Calle Murta 2, Parcela
1.2, Sector Lloma Llarga, Valterna, Paterna

Superficie útil interior

Superficie útil exterior

Superficie construida interior

Superficie construida exterior

Superficie construida con ppZZCC

Localización

Vivienda Superficies
Calle Murta 2, Parcela
1.2, Sector Lloma Llarga, Valterna, Paterna

Superficie útil interior

Superficie útil exterior

Superficie construida interior

Superficie construida exterior

Superficie construida con ppZZCC

Localización

Vivienda Superficies
Calle Murta 2, Parcela UR- 1.2, Sector Lloma Llarga, Valterna, Paterna

Superficie útil interior

Superficie útil exterior

Superficie construida interior

Superficie construida exterior

Superficie construida con ppZZCC

Localización

Vivienda Superficies
Calle Murta 2, Parcela UR- 1.2, Sector Lloma Llarga, Valterna, Paterna

Superficie útil interior

Superficie útil exterior

Superficie construida interior

Superficie construida exterior

Superficie construida con ppZZCC

Localización

Vivienda Superficies
Calle Murta 2, Parcela UR- 1.2, Sector Lloma Llarga, Valterna, Paterna

Superficie útil interior

Superficie útil exterior

Superficie construida interior

Superficie construida exterior

Superficie construida con ppZZCC

Localización

Vivienda Superficies
Calle Murta 2, Parcela UR- 1.2, Sector Lloma Llarga, Valterna, Paterna

Superficie útil interior

Superficie útil exterior

Superficie construida interior

Superficie construida exterior

Superficie construida con ppZZCC

Localización

Vivienda Superficies
Calle Murta 2, Parcela UR- 1.2, Sector Lloma Llarga, Valterna, Paterna

Superficie útil interior

Superficie útil exterior

Superficie construida interior

Superficie construida exterior

Superficie construida con ppZZCC

Localización

Vivienda Superficies
Calle Murta 2, Parcela UR- 1.2, Sector Lloma Llarga, Valterna, Paterna

Superficie útil interior

Superficie útil exterior

Superficie construida interior

Superficie construida exterior

Superficie construida con ppZZCC

Localización

Vivienda Superficies
Calle Murta 2, Parcela UR- 1.2, Sector Lloma Llarga, Valterna, Paterna

Superficie útil interior

Superficie útil exterior

Superficie construida interior

Superficie construida exterior

Superficie construida con ppZZCC

Localización

Vivienda Superficies
Calle Murta 2, Parcela UR- 1.2, Sector Lloma Llarga, Valterna, Paterna

Superficie útil interior

Superficie útil exterior

Superficie construida interior

Superficie construida exterior

Superficie construida con ppZZCC

Localización

Vivienda Superficies
Calle Murta 2, Parcela UR- 1.2, Sector Lloma Llarga, Valterna, Paterna

Superficie útil interior

Superficie útil exterior

Superficie construida interior

Superficie construida exterior

Superficie construida con ppZZCC

Localización

Vivienda Superficies
Calle Murta 2, Parcela UR- 1.2, Sector Lloma Llarga, Valterna, Paterna

Superficie útil interior

Superficie útil exterior

Superficie construida interior

Superficie construida exterior

Superficie construida con ppZZCC

Localización

Vivienda Superficies
Calle Murta 2, Parcela UR- 1.2, Sector Lloma Llarga, Valterna, Paterna

Superficies

Superficie útil interior

Superficie útil exterior

Superficie construida interior

Superficie construida exterior

Superficie construida con ppZZCC

Localización

Vivienda
Calle Murta 2, Parcela UR- 1.2, Sector Lloma Llarga, Valterna, Paterna

Superficie útil interior

Superficie útil exterior

Superficie construida interior

Superficie construida exterior

Superficie construida con ppZZCC

Localización

Vivienda Superficies
Calle Murta 2, Parcela UR- 1.2, Sector Lloma Llarga, Valterna, Paterna

Superficie útil interior

Superficie útil exterior

Superficie construida interior

Superficie construida exterior

Superficie construida con ppZZCC

Localización

Vivienda Superficies
Calle
1.2, Sector Lloma Llarga, Valterna, Paterna

Superficie útil interior

Superficie útil exterior

Superficie construida interior

Superficie construida exterior

Superficie construida con ppZZCC

Localización

Vivienda Superficies
Calle Murta 2, Parcela
1.2, Sector Lloma Llarga, Valterna, Paterna

Superficie útil interior

Superficie útil exterior

Superficie construida interior

Superficie construida exterior

Superficie construida con ppZZCC

Localización

Vivienda Superficies
Calle Murta 2, Parcela
1.2, Sector Lloma Llarga, Valterna, Paterna

Superficie útil interior

Superficie útil exterior

Superficie construida interior

Superficie construida exterior

Superficie construida con ppZZCC

Localización

Vivienda Superficies
Calle Murta 2, Parcela UR- 1.2, Sector Lloma Llarga, Valterna, Paterna

Superficie útil interior

Superficie útil exterior

Superficie construida interior

Superficie construida exterior

Superficie construida con ppZZCC

Localización

Vivienda Superficies
Calle Murta 2, Parcela UR- 1.2, Sector Lloma Llarga, Valterna, Paterna

Superficie útil interior

Superficie útil exterior

Superficie construida interior

Superficie construida exterior

Superficie construida con ppZZCC

Localización

Vivienda Superficies
Calle Murta 2, Parcela UR- 1.2, Sector Lloma Llarga, Valterna, Paterna

Superficie útil interior

Superficie útil exterior

Superficie construida interior

Superficie construida exterior

Superficie construida con ppZZCC

Localización

Vivienda Superficies
Calle Murta 2, Parcela UR- 1.2, Sector Lloma Llarga, Valterna, Paterna

Superficie útil interior

Superficie útil exterior

Superficie construida interior

Superficie construida exterior

Superficie construida con ppZZCC

Localización

Vivienda Superficies
Calle Murta 2, Parcela UR- 1.2, Sector Lloma Llarga, Valterna, Paterna

Superficie útil interior

Superficie útil exterior

Superficie construida interior

Superficie construida exterior

Superficie construida con ppZZCC

Localización

Vivienda Superficies
Calle Murta 2, Parcela UR- 1.2, Sector Lloma Llarga, Valterna, Paterna

Superficie útil interior

Superficie útil exterior

Superficie construida interior

Superficie construida exterior

Superficie construida con ppZZCC

Localización

Vivienda Superficies
Calle Murta 2, Parcela UR- 1.2, Sector Lloma Llarga, Valterna, Paterna

Superficie útil interior

Superficie útil exterior

Superficie construida interior

Superficie construida exterior

Superficie construida con ppZZCC

Localización

Vivienda Superficies
Calle Murta 2, Parcela UR- 1.2, Sector Lloma Llarga, Valterna, Paterna

Superficie útil interior

Superficie útil exterior

Superficie construida interior

Superficie construida exterior

Superficie construida con ppZZCC

Localización

Vivienda Superficies
Calle Murta 2, Parcela UR- 1.2, Sector Lloma Llarga, Valterna, Paterna

Superficie útil

Superficie útil

Superficie construida interior

Superficie construida exterior

Superficie construida con ppZZCC

Vivienda Superficies
Calle Murta 2, Parcela UR- 1.2, Sector Lloma Llarga, Valterna, Paterna

Superficie útil interior

Superficie útil exterior

Superficie construida interior

Superficie construida exterior

Superficie construida con ppZZCC

Localización

Vivienda Superficies
Calle Murta 2, Parcela UR- 1.2, Sector Lloma Llarga, Valterna, Paterna

Superficie útil interior

Superficie útil exterior

Superficie construida interior

Superficie construida exterior

Superficie construida con ppZZCC

Localización

Vivienda Superficies
Calle Murta 2, Parcela UR- 1.2, Sector Lloma Llarga, Valterna, Paterna

Superficie útil interior

Superficie útil exterior

Superficie construida interior

Superficie construida exterior

Superficie construida con ppZZCC

Localización

Vivienda Superficies
Calle Murta 2, Parcela UR- 1.2, Sector Lloma Llarga, Valterna, Paterna

Superficie útil interior

Superficie útil exterior

Superficie construida interior

Superficie construida exterior

Superficie construida con ppZZCC

Localización

Vivienda Superficies
Calle
1.2, Sector Lloma Llarga, Valterna, Paterna

Superficie útil interior

Superficie útil exterior

Superficie construida interior

Superficie construida exterior

Superficie construida con ppZZCC

Localización

Dormitorio
Vivienda Superficies
Calle Murta 2, Parcela
1.2, Sector Lloma Llarga, Valterna, Paterna

Superficie útil interior

Superficie útil exterior

Superficie construida interior

Superficie construida exterior

Superficie construida con ppZZCC

Localización

Vivienda Superficies
Calle Murta 2, Parcela
1.2, Sector Lloma Llarga, Valterna, Paterna

Superficie útil interior

Superficie útil exterior

Superficie construida interior

Superficie construida exterior

Superficie construida con ppZZCC

Localización

Vivienda Superficies
Calle Murta 2, Parcela UR- 1.2, Sector Lloma Llarga, Valterna, Paterna

Superficie útil interior

Superficie útil exterior

Superficie construida interior

Superficie construida exterior

Superficie construida con ppZZCC

Localización

Vivienda Superficies
Calle Murta 2, Parcela UR- 1.2, Sector Lloma Llarga, Valterna, Paterna

Superficie útil interior

Superficie útil exterior

Superficie construida interior

Superficie construida exterior

Superficie construida con ppZZCC

Localización

Vivienda Superficies
Calle Murta 2, Parcela UR- 1.2, Sector Lloma Llarga, Valterna, Paterna

Superficie útil interior

Superficie útil exterior

Superficie construida interior

Superficie construida exterior

Superficie construida con ppZZCC

Localización

Vivienda Superficies
Calle Murta 2, Parcela UR- 1.2, Sector Lloma Llarga, Valterna, Paterna

Superficie útil interior

Superficie útil exterior

Superficie construida interior

Superficie construida exterior

Superficie construida con ppZZCC

Localización

Vivienda Superficies
Calle Murta 2, Parcela UR- 1.2, Sector Lloma Llarga, Valterna, Paterna

Superficie útil interior

Superficie útil exterior

Superficie construida interior

Superficie construida exterior

Superficie construida con ppZZCC

Localización

Vivienda Superficies
Calle Murta 2, Parcela UR- 1.2, Sector Lloma Llarga, Valterna, Paterna

Superficie útil interior

Superficie útil exterior

Superficie construida interior

Superficie construida exterior

Superficie construida con ppZZCC

Localización

Vivienda Superficies
Calle Murta 2, Parcela UR- 1.2, Sector Lloma Llarga, Valterna, Paterna

Superficie útil interior

Superficie útil exterior

Superficie construida interior

Superficie construida exterior

Superficie construida con ppZZCC

Localización

Vivienda Superficies
Calle Murta 2, Parcela UR- 1.2, Sector Lloma Llarga, Valterna, Paterna

Superficie útil interior

Superficie útil exterior

Superficie construida interior

Superficie construida exterior

Superficie construida con ppZZCC

Localización

Vivienda Superficies
Calle Murta 2, Parcela UR- 1.2, Sector Lloma Llarga, Valterna, Paterna

Superficie

Calle Murta 2, Parcela UR- 1.2, Sector Lloma Llarga, Valterna, Paterna

Superficie útil interior

Superficie útil exterior

Superficie construida interior

Superficie construida exterior

Superficie construida con ppZZCC

Localización

Vivienda Superficies
Calle Murta 2, Parcela UR- 1.2, Sector Lloma Llarga, Valterna, Paterna

Superficies

Superficie útil interior

Superficie útil exterior

Superficie construida interior

Superficie construida exterior

Superficie construida con ppZZCC

Localización

Vivienda
Calle Murta 2, Parcela UR- 1.2, Sector Lloma Llarga, Valterna, Paterna

Superficie útil interior

Superficie útil exterior

Superficie construida interior

Superficie construida exterior

Superficie construida con ppZZCC

Localización

Vivienda Superficies
Calle Murta 2, Parcela UR- 1.2, Sector Lloma Llarga, Valterna, Paterna

Superficie útil interior

Superficie útil exterior

Superficie construida interior

Superficie construida exterior

Superficie construida con ppZZCC

Localización

Vivienda Superficies
Calle Murta
1.2, Sector Lloma Llarga, Valterna, Paterna

Superficie útil interior

Superficie útil exterior

Superficie construida interior

Superficie construida exterior

Superficie construida con ppZZCC

Localización

Dormitorio
Vivienda Superficies
Calle Murta 2, Parcela
1.2, Sector Lloma Llarga, Valterna, Paterna

Superficie útil interior

Superficie útil exterior

Superficie construida interior

Superficie construida exterior

Superficie construida con ppZZCC

Localización

Vivienda Superficies
Calle Murta 2, Parcela
1.2, Sector Lloma Llarga, Valterna, Paterna

Superficie útil interior

Superficie útil exterior

Superficie construida interior

Superficie construida exterior

Superficie construida con ppZZCC

Localización

Vivienda Superficies
Calle Murta 2, Parcela UR- 1.2, Sector Lloma Llarga, Valterna, Paterna

Superficie útil interior

Superficie útil exterior

Superficie construida interior

Superficie construida exterior

Superficie construida con ppZZCC

Localización

Vivienda Superficies
Calle Murta 2, Parcela UR- 1.2, Sector Lloma Llarga, Valterna, Paterna

Superficie útil interior

Superficie útil exterior

Superficie construida interior

Superficie construida exterior

Superficie construida con ppZZCC

Localización

Vivienda Superficies
Calle Murta 2, Parcela UR- 1.2, Sector Lloma Llarga, Valterna, Paterna

Superficie útil interior

Superficie útil exterior

Superficie construida interior

Superficie construida exterior

Superficie construida con ppZZCC

Localización

Vivienda Superficies
Calle Murta 2, Parcela UR- 1.2, Sector Lloma Llarga, Valterna, Paterna

Superficie útil interior

Superficie útil exterior

Superficie construida interior

Superficie construida exterior

Superficie construida con ppZZCC

Localización

Vivienda Superficies
Calle Murta 2, Parcela UR- 1.2, Sector Lloma Llarga, Valterna, Paterna

Superficie útil interior

Superficie útil exterior

Superficie construida interior

Superficie construida exterior

Superficie construida con ppZZCC

Localización

Vivienda Superficies
Calle Murta 2, Parcela UR- 1.2, Sector Lloma Llarga, Valterna, Paterna

Superficie útil interior

Superficie útil exterior

Superficie construida interior

Superficie construida exterior

Superficie construida con ppZZCC

Localización

Vivienda Superficies
Calle Murta 2, Parcela UR- 1.2, Sector Lloma Llarga, Valterna, Paterna

Superficie útil interior

Superficie útil exterior

Superficie construida interior

Superficie construida exterior

Superficie construida con ppZZCC

Localización

Vivienda Superficies
Calle Murta 2, Parcela UR- 1.2, Sector Lloma Llarga, Valterna, Paterna

Superficie útil interior

Superficie útil exterior

Superficie construida interior

Superficie construida exterior

Superficie construida con ppZZCC

Localización

Vivienda Superficies
Calle Murta 2, Parcela UR- 1.2, Sector Lloma Llarga, Valterna, Paterna

Superficie útil

Superficie construida interior

Superficie construida exterior

Superficie construida con ppZZCC

Vivienda Superficies
Calle Murta 2, Parcela UR- 1.2, Sector Lloma Llarga, Valterna, Paterna

Superficie útil interior

Superficie útil exterior

Superficie construida interior

Superficie construida exterior

Superficie construida con ppZZCC

Localización

Vivienda Superficies
Calle Murta 2, Parcela UR- 1.2, Sector Lloma Llarga, Valterna, Paterna

Superficies

Superficie útil interior

Superficie útil exterior

Superficie construida interior

Superficie construida exterior

Superficie construida con ppZZCC

Localización

Vivienda
Calle Murta 2, Parcela UR- 1.2, Sector Lloma Llarga, Valterna, Paterna

Superficie útil interior

Superficie útil exterior

Superficie construida interior

Superficie construida exterior

Superficie construida con ppZZCC

Localización

Vivienda Superficies
Calle Murta 2, Parcela UR- 1.2, Sector Lloma Llarga, Valterna, Paterna

Superficie útil interior

Superficie útil exterior

Superficie construida interior

Superficie construida exterior

Superficie construida con ppZZCC

Localización

Vivienda Superficies
Calle Murta
1.2, Sector Lloma Llarga, Valterna, Paterna

Superficie útil interior

Superficie útil exterior

Superficie construida interior

Superficie construida exterior

Superficie construida con ppZZCC

Localización

Vivienda Superficies
Calle

Superficie útil interior

Superficie útil exterior

Superficie construida interior

Superficie construida exterior

Superficie construida con ppZZCC

Localización

Vivienda Superficies
Calle Murta 2, Parcela UR- 1.2, Sector Lloma Llarga, Valterna, Paterna

Superficie útil interior

Superficie útil exterior

Superficie construida interior

Superficie construida exterior

Superficie construida con ppZZCC

Localización

Vivienda Superficies
Calle Murta 2, Parcela UR- 1.2, Sector Lloma Llarga, Valterna, Paterna

Superficie útil interior

Superficie útil exterior

Superficie construida interior

Superficie construida exterior

Superficie construida con ppZZCC

Localización

Calle Murta 2, Parcela UR- 1.2, Sector Lloma Llarga, Valterna, Paterna

Vivienda Superficies

Superficie útil interior

Superficie útil exterior

Superficie construida interior

Superficie construida exterior

Superficie construida con ppZZCC

Localización

Calle Murta 2, Parcela UR- 1.2, Sector Lloma Llarga, Valterna, Paterna

Vivienda Superficies

Superficie útil interior

Superficie útil exterior

Superficie construida interior

Superficie construida exterior

Superficie construida con ppZZCC

Vivienda Superficies
Calle Murta 2, Parcela UR- 1.2, Sector Lloma Llarga, Valterna, Paterna

Superficie útil interior

Superficie útil exterior

Superficie construida interior

Superficie construida exterior

Superficie construida con ppZZCC

Localización

Vivienda Superficies
Calle Murta 2, Parcela UR- 1.2, Sector Lloma Llarga, Valterna, Paterna

Superficie construida interior

Superficie construida exterior

Superficie construida con ppZZCC

Localización

Vivienda
Calle Murta
Llarga, Valterna, Paterna
Memoria de calidades

En AEDAS Homes la calidad es una constante y un objetivo siempre presente, de ahí que hayamos pensado en todos los detalles de tu nueva casa.

Tu urbanización

Accesos y portales

En Riura los espacios comunitarios estarán cuidados al máximo. Tanto suelos como paredes de las zonas comunes interiores ofrecerán una combinación de distintos materiales de primera calidad que crearán una agradable transición entre espacios y dotarán al edificio de una estética distinguida.

La tecnología también estará presente a través de alumbrado con detectores de presencia distintos para zonas y plantas, lo que a fin de mes repercutirá en un importante ahorro energético que optimizará el uso de los recursos y consumos.

Los ascensores, con acceso desde la planta sótano a las viviendas, tendrán acabados de cabina acorde con el resto del proyecto y dimensiones según Normativa de Accesibilidad. Las puertas serán automáticas y estarán dotadas de alarma y servicio de telefonía para urgencias.

Espacios equipados comunitarios

Tus zonas comunes conseguirán que te sientas orgulloso de tu nueva casa incluso antes de entrar en ella.

Para compartir momentos inolvidables con los que más quieres, la promoción contará con una amplia zona exterior donde se incluirá piscina comunitaria de cloración salina con zona de solárium, conserjería con servicio de buzones inteligentes, zona ajardinada, zona de juegos infantiles, gimnasio equipado, espacio exterior para calistenia y local social con zona de coworking.

También contarás con espacio para aparcar bicicletas, parking comunitario y trasteros.

Piscina de cloración salina

Zona de solárium

Consejería con buzones inteligentes

Zona ajardinada

Zona de juegos infantil

Gimnasio equipado Local social con zona de coworking

Zona de aparcamiento para bicicletas

Tu vivienda

Todas las viviendas tendrán espacios que asegurarán una buena iluminación y soleamiento. Asimismo, la eficiente distribución de las estancias permitirá aprovechar las superficies al máximo.

Vestíbulo, salón, pasillo y dormitorios

El pavimento de tu nueva casa en vestíbulo, salones, dormitorios y pasillos será de tarima vinílica con acabado imitación madera.

En todas las estancias el suelo estará rematado con un rodapié con acabado en color blanco a juego con la carpintería interior para crear un ambiente completamente integrado en toda la vivienda.

Las paredes y los techos irán acabados con pintura plástica lisa. En las zonas que se requiera por el paso de instalaciones, se colocará falso techo de placa de yeso laminado, terminado en pintura plástica.

Cocina

Preparar tus platos favoritos será mucho más fácil en este espacio pensado para ti. Estas son las calidades y acabados que incluirá tu nueva cocina en Riura:

› En cocinas cerradas, pavimento de baldosas de gres porcelánico rematado con un rodapié con terminación en color blanco.

› Pavimento de tarima vinílica con acabado imitación madera, rematado con un rodapié acabado en color blanco.

› Paramentos verticales acabados en pintura plástica lisa.

› Falso techo continuo de panel de yeso laminado terminado con pintura plástica lisa y registros integrados para las instalaciones.

La cocina se entregará amueblada con un diseño actual de muebles altos y bajos de gran capacidad. Además, incluirá el siguiente equipamiento:

› Placa de inducción.

› Grupo filtrante.

› Horno eléctrico y microondas.

› Encimera y frente de encimera en cuarzo compacto.

› Fregadero con grifería monomando.

Servicio Select

Con el servicio Select de AEDAS Homes podrás personalizar varios aspectos de tu nueva casa:

› Elige entre dos ambientes según tus gustos para personalizar el pavimento y acabados de los baños.

› Adapta los espacios de tu vivienda según tus necesidades, sustituyendo la bañera por plato de ducha en aquellas tipologías que lo permitan.

› Aumenta tu confort con dispositivos tecnológicos y de seguridad.

› Escoge entre varios packs y mejora las calidades, el equipamiento y el confort de tu vivienda.

› Consigue que tu nueva vivienda sea aún más sostenible, mejorando algunos de los equipamientos de serie de tu nueva casa.

Consulta todas las opciones, con y sin coste, en el Dossier Select.

Baños

Las paredes de los baños, tanto principales como secundarios, irán revestidas de gres cerámico para dotar a los espacios de un diseño más elegante y actual.

El suelo estará acabado con gres porcelánico para soportar los golpes y las humedades sin que se dañen las propiedades del pavimento.

Se colocará falso techo antihumedad con pintura plástica lisa. Pensando en tu máxima comodidad, la instalación del sistema de climatización situada en uno de los baños de tu vivienda contará con falso techo con registro o falso techo registrable, según tipología, que permitirá el futuro mantenimiento de la unidad interior.

En ambos baños se instalarán griferías monomando en lavabos y sanitarios blancos de diseño actual. El baño principal contará con espejo, lavabo cerámico con mueble suspendido y plato de ducha con grifería termostática y mampara. El baño secundario contará con lavabo suspendido y bañera o plato de ducha, según tipología, con grifería monomando y teleducha.

Todos los baños dispondrán de luminarias tipo led.

Terrazas, cubiertas y jardines privados

Hemos diseñado las terrazas de tu casa para que puedas disfrutarlas al máximo y las puedas utilizar como si fuese una prolongación de tu salón.

Además, pensando en tu seguridad, la terraza de tu nueva casa se acabará con gres antideslizante especial para exteriores con un rodapié del mismo material en las zonas donde se requiera.

Todas las terrazas incluirán punto de iluminación y toma de corriente y, en el caso de las viviendas ático, además dispondrán de toma de TV y de agua.

Riura. Valterna

Tabiquería interior y aislamientos

La tabiquería seca empleada en tu nueva vivienda resultará de gran utilidad porque evitará las rozas y suprimirá los puentes acústicos al conducir las instalaciones por el espacio intermedio que quedará entre los tabiques. Además, conseguirá un acabado exterior óptimo para la aplicación de pintura lisa.

Las divisiones interiores entre estancias, entre viviendas o entre viviendas y zonas comunes, se ejecutarán con tabiquería seca o seca/mixta. Todas ellas cumplirán con los condicionantes acústicos y térmicos tanto de la normativa estatal -Código Técnico de la Edificación- como de la normativa autonómica y local, garantizando así un adecuado aislamiento para tu bienestar y confort.

Carpintería interior

AEDAS Homes también ha cuidado la carpintería interior para que disfrutes de todos los detalles de tu nueva casa.

› La puerta de acceso a la vivienda será blindada, dotada de mirilla óptica y cerradura de seguridad. Además, se entregará un mando a distancia por cada plaza de garaje.

› Las puertas interiores de la vivienda serán con acabado lacado blanco y tiradores de diseño actual, dotando a la vivienda de un aspecto elegante. Su apertura será en general abatible, incorporándose correderas excepcionalmente por criterios de funcionalidad.

› La vivienda se dotará de armarios empotrados según tipología y plano de vivienda. Los armarios empotrados serán modulares tipo block con puertas de acabado lacado en blanco, abatibles o correderas según necesidad, a juego con el resto de carpintería interior. Interiormente irán revestidos y equipados con balda superior y barra para colgar.

Instalaciones

Fontanería y saneamiento

La instalación de fontanería incluirá las tomas de agua para cada aparato sanitario en baños y cocina –fregadero - y para los electrodomésticos en la zona de cocina – lavavajillas y lavadora-. Tu vivienda dispondrá de una llave de corte general y llaves de corte independientes en cada cuarto húmedo.

Cada uno de los aparatos sanitarios de la vivienda se conectará a la red de saneamiento. La instalación cumplirá lo especificado por el Documento Básico de protección frente al ruido (CTE-DB-HR) en cuanto a las emisiones acústicas.

La producción del agua caliente de la vivienda se realizará mediante sistema de aerotermia centralizada con apoyo de paneles fotovoltaicos. Una instalación de alta eficiencia que mejorará el consumo de tu vivienda y generará importantes ahorros tanto en consumos como en su mantenimiento, disponiendo de contadores de energía para el control individual de los consumos de cada vivienda.

Calefacción/climatización

Para que disfrutes del máximo confort, en tu nueva casa se instalará un sistema de climatización frío-calor por conductos con rejillas de impulsión en salón y dormitorios.

El control de temperatura se conseguirá mediante un termostato.

Pensando en tu comodidad, la instalación del sistema de climatización contará con falso techo registrable en los lugares donde se ubicará la unidad interior para permitir el mantenimiento de los equipos.

Electricidad/telecomunicaciones

Tu vivienda en Riura contará con la dotación de tomas eléctricas y de telecomunicaciones requeridas por el Reglamento Electrotécnico de Baja Tensión, así como un videoportero automático que te comunicará con los portales y con el acceso a la urbanización. Contarás con tomas de datos, teléfono y TV en salón y dormitorios.

Para que puedas disfrutar de tu nueva casa desde el primer día, se colocarán luminarias en la cocina, baños y pasillo. Esta iluminación se realizará con equipos de tecnología led. Los puntos de todas las estancias se colocarán en el techo.

Ventilación

Tu vivienda incorporará un sistema de ventilación para garantizar la salubridad del aire interior y el cumplimiento del Código Técnico de la Edificación mediante simple flujo con microventilación en carpinterías exteriores y bocas de extracción en cuartos húmedos.

El edificio

Fachada y cubierta

Para que disfrutes de tu nueva casa incluso antes de entrar en ella, las fachadas se han diseñado para conseguir una imagen atractiva y actual. Los acabados decorativos combinarán las prestaciones térmicas con el diseño más vanguardista adaptándose a las necesidades del siglo XXI.

Las cubiertas se han diseñado según el uso al que estarán destinadas, garantizando su estanqueidad en todos los casos con impermeabilización.

Carpintería exterior y vidrios

El conjunto de carpintería exterior y acristalamiento asegurará el cumplimiento del Código Técnico de la Edificación, concretamente del Documento Básico Ahorro de Energía y el de Protección frente al Ruido, aumentando el nivel de confort dentro de la vivienda. Riura dispondrá de:

› Carpintería con perfilería de aluminio o PVC, según diseño de proyecto, con rotura de puente térmico, combinando distintos tipos de apertura según ubicación. El sistema con rotura de puente térmico conseguirá un mayor confort en tu vivienda al evitar el paso de la temperatura exterior al interior a través de la perfilería de tus ventanas.

› Acristalamiento de doble vidrio con cámara de aire deshidratado.

› A modo de oscurecimiento y protección solar, se incluirán persianas enrollables de lamas de aluminio perfilado inyectado de accionamiento manual en dormitorios, color similar al de la carpintería exterior.

Estructura y cimentación

La estructura de tu nueva casa será, principalmente, de hormigón armado siguiendo la Normativa de Construcción Sismorresistente. Toda la estructura se calculará según la normativa vigente y el Código Técnico de la Edificación. La cimentación estará proyectada de acuerdo con las conclusiones del Estudio Geotécnico.

Escaleras y vestíbulos de planta

Las escaleras y vestíbulos de planta irán acabados con materiales actuales a juego con el pavimento, la pintura plástica y los revestimientos de las paredes de los zaguanes de planta baja.

Garajes y trasteros

Las puertas de entrada y salida de garajes serán automáticas, con dispositivo de seguridad antiaplastamiento y mando a distancia. Si dispones de vehículo eléctrico no tendrás que hacer incómodas obras en tu garaje tras la entrega de llaves, ya que dispondrás de preinstalación para recarga de vehículos eléctricos.

Los trasteros tendrán puerta metálica, en cumplimiento de la normativa requerida por su ubicación.

Medidas de sostenibilidad

Aerotermia e instalación fotovoltaica

La aerotermia es un sistema que utiliza como fuente de energía renovable el aire, permitiendo obtener agua caliente sanitaria. Una bomba de calor -conocida como unidad exterior- captura la energía del aire, enviándola hasta la unidad interior que calienta el agua para el uso sanitario.

Este sistema combinado con paneles solares fotovoltaicos permite conseguir un ahorro mayor gracias al aporte que proporciona la energía del sol.

Piscina de cloración salina

Pensando en tu bienestar, la piscina de tu nueva casa en Riura será de cloración salina. Este tratamiento de las aguas no utiliza cloro químico, lo que evitará alergias, reacciones en la piel y problemas oculares. Además, no genera residuos y contribuye al cuidado del planeta.

Ahorro de agua

En AEDAS Homes nos esforzamos por hacer un uso responsable de los recursos. Por eso, en Riura hemos implementado diferentes medidas de ahorro hídrico que contribuyen a proteger el planeta a la vez que suponen un desembolso menor en tu factura a fin de mes. Entre estas medidas se incluye la instalación de griferías de bajo consumo, la de inodoros de doble descarga y la reutilización de aguas pluviales para el riego.

Consulta todas las medidas de sostenibilidad de RIura en tu memoria Ecoliving.

Todas las marcas aquí reflejadas son susceptibles de ser sustituidas por otras de nivel equivalente.

Pagos

Firma

reserva

Firma contrato privado de compraventa

10 % en mensualidades

desde firma de contrato privado de compraventa

Escritura y entrega de llaves

Riura. Valterna 144 Llunare. Valterna
Calendario proyecto

Solicitud de licencia de construcción

Inicio de comercialización

Obtención de licencia de construcción

Inicio de construcción

Finalización de construcción

Obtención de licencia primera ocupación y entrega de llaves

Riura. Valterna
Julio 2024
Marzo 2026 (estimado)
Enero 2026
Diciembre 2025
Llunare. Valterna
Infografías
Riura. Valterna
Riura. Valterna
Riura. Valterna
Riura. Valterna
Riura. Valterna
Riura. Valterna
Riura. Valterna
Riura. Valterna
Riura. Valterna
Riura. Valterna
Riura. Valterna
Riura. Valterna
Riura. Valterna
Riura. Valterna
Riura. Valterna
Riura. Valterna

Dirección de promoción:

C/ Murta, 2

46980 Paterna, Valencia

Dirección de oficina de ventas:

Centro Comercial Valterna Plaza, Local 1-2-3

C/ Orenga, 49

46980 Paterna, Valencia

Turn static files into dynamic content formats.

Create a flipbook