
ADRIAN GUTIÉRREZ
![]()

ADRIAN GUTIÉRREZ
PROYECTOS
SELECTOS




Mercado mayorista que fusiona cultura, comercio y naturaleza, impulsando interacciones comerciales y culturales en la “Perla de los Andes”.
CITE agroindustrial que potencia las fortalezas (agricultura) y ayuda a trabajar sus debilidades (falta de educación superior) del distrito de Sapallanga.
Centro de Interpretacion Cultural en Oxapampa. Reconocido con el segundo puesto en la linea de proyectos avanzados en la Expociudad + Arq. 2024.
Conjunto de proyectos realizados para la constructora Ostra. Los renders sirvieron como puente para ayudan al cliente y al diseñador llegar a un consenso
01 03 02 04
Estudiante de Arquitectura

Hola, soy Adrián Gutiérrez , estudiante egresado de la carrera de Arquitectura en la Universidad Continental. En este portafolio he seleccionado algunos proyectos que reflejan mi experiencia durante estos años en el campo de la arquitectura. Dos de ellos fueron realizados dentro de la cátedra y los otros dos fueron llevados a cabo en el ámbito laboral, al cual recién estoy ingresando.
Creo firmemente que la arquitectura debe ser bella sin importar el material con el que se trabaje, ya que el fin último de la arquitectura es acercar la belleza y una correcta funcionalidad a todas las personas, siempre teniendo en cuenta el respeto por la naturaleza. Soy un apasionado de la música y en mi tiempo libre suelo tocar la guitarra, además de disfrutar crear arte y compartirlo con mis amigos.
Nombre
Edad
Lugar
Contacto Email
Adrian Gutiérrez 23 Huancayo +51 990011999 adrian64828@gmail.com
Universidad Continental
Aprendí de arquitectos experimentados, quienes me desafiaron a pensar de manera creativa y audaz para resolver problemas complejos. Esta formación me ha dotado de habilidades esenciales en diseño y resolución de problemas arquitectónicos.
PREGRADO ING. INDUSTRIAL (Por concluir)
Universidad Continental
He aplicado conocimientos de cálculo, estadística y gestión en mi labor arquitectónica. Esta formación me proporciona un sólido entendimiento matemático y habilidades analíticas que son cruciales para la planificación y ejecución de proyectos.
ICPNA
El dominio del idioma me permite acceder a una amplia gama de recursos y conocimientos en inglés, mejorando mi capacidad de aprendizaje continuo. También me permite comunicarme con personas angloparlantes y comunicar ideas de forma precisa.
PRACTICANTE
Constructora Horizonte
Participé en todas las etapas del proceso constructivo y de gestión en un proyecto multifamiliar de 5 pisos. Aprendí sobre abastecimiento de materiales, gestión de tiempos y coordinación del personal en obra. Diseñé planos de un departamento, creé muebles y diseños de interiores, desarrollé renders para la venta, diseñé publicidad y gestioné las redes sociales de la empresa.
OSTRA
Desde finales de 2023, colaboro con OSTRA. Me especializo en la creación de renders maqueta fotorrealistas que ayudan a los clientes a visualizar el proyecto. He sugerido modificaciones en los planos arquitectónicos y el volumen del proyecto que fueron aceptadas y elogiadas por mis superiores, mejorando la calidad y el impacto del proyecto..
ADOBE SUIT
Photoshop
InDesign
Lightroom
Illustrator
MODELADO
Rhino 8
Sketch up
RENDER
V-ray
D5 Render
Twin Motion
Enscape
OTROS
Autocad
Qgis
Corel Draw
Office suite
2023 - 2024
10 meses
2023-2024
13 meses
Adrian Gutiérez | PortFolio
Mercado mayorista.
Tarma - Perú
-11.4028, -75.6853


Diagrama: Emplazamiento
Autoria: Propia
El mercado mayorista Tarama es un proyecto arquitectónico que fusiona cultura, comercio y naturaleza en un único espacio. Situado en Tarma, conocida como la “Perla de los Andes” por su impresionante belleza paisajística y su vasta herencia histórica, este mercado trasciende su función primaria.
Desarrollado como parte del curso de Proyecto Arquitectónico 6, este proyecto se erige como una iniciativa integral. Su propósito es fomentar las interacciones comerciales y culturales entre los habitantes de Tarma y Acobamba, capitalizando la estratégica ubicación del mercado como punto de conver -


Render: Ingreso
Autoria: Propia
El volumen del proyecto está diseñado para no destacar demasiado sobre la majestuosidad de los cerros tarmeños. Se buscaba una simplicidad en la forma que, al mismo tiempo, evocara grandeza, haciendo una analogía con el uso de adobe y sus muros gruesos, así como con la imponente presencia de las montañas.
El edificio principal adopta una forma ortogonal, destacando por su simplicidad y solidez. La piel arquitectónica de madera evoca la materialidad de la arquitectura vernácula, una elección que no solo refuerza la conexión con las tradiciones locales, sino que también añade una textura cálida y acogedora al conjunto. Este revestimiento de madera recuerda a las antiguas construcciones tarmeñas, donde la madera era un material predominante, simbolizando la continuidad y respeto por el legado cultural.
En la arquitectura vernácula de Tarma, la madera se usa frecuentemente como elemento de refuerzo estructural, quedando usualmente oculta a la vista del usuario. En este proyecto, hemos invertido esa tradición, haciendo que la piel arquitectónica de madera sea lo primero que se ve y lo que más llama la atención. Esta elección no solo resalta la belleza natural de la madera, sino que también celebra su importancia histórica y funcional en la construcción local.
Así, el edificio no solo se erige como una estructura funcional y eficiente, sino también como un homenaje visible y tangible a la herencia arquitectónica de Tarma. La madera, en lugar de estar escondida, se convierte en el protagonista del diseño, simbolizando la fortaleza y la resiliencia tanto del material como de la comunidad tarmeña.

Adrian Gutiérez | PortFolio




Adrian Gutiérez | PortFolio
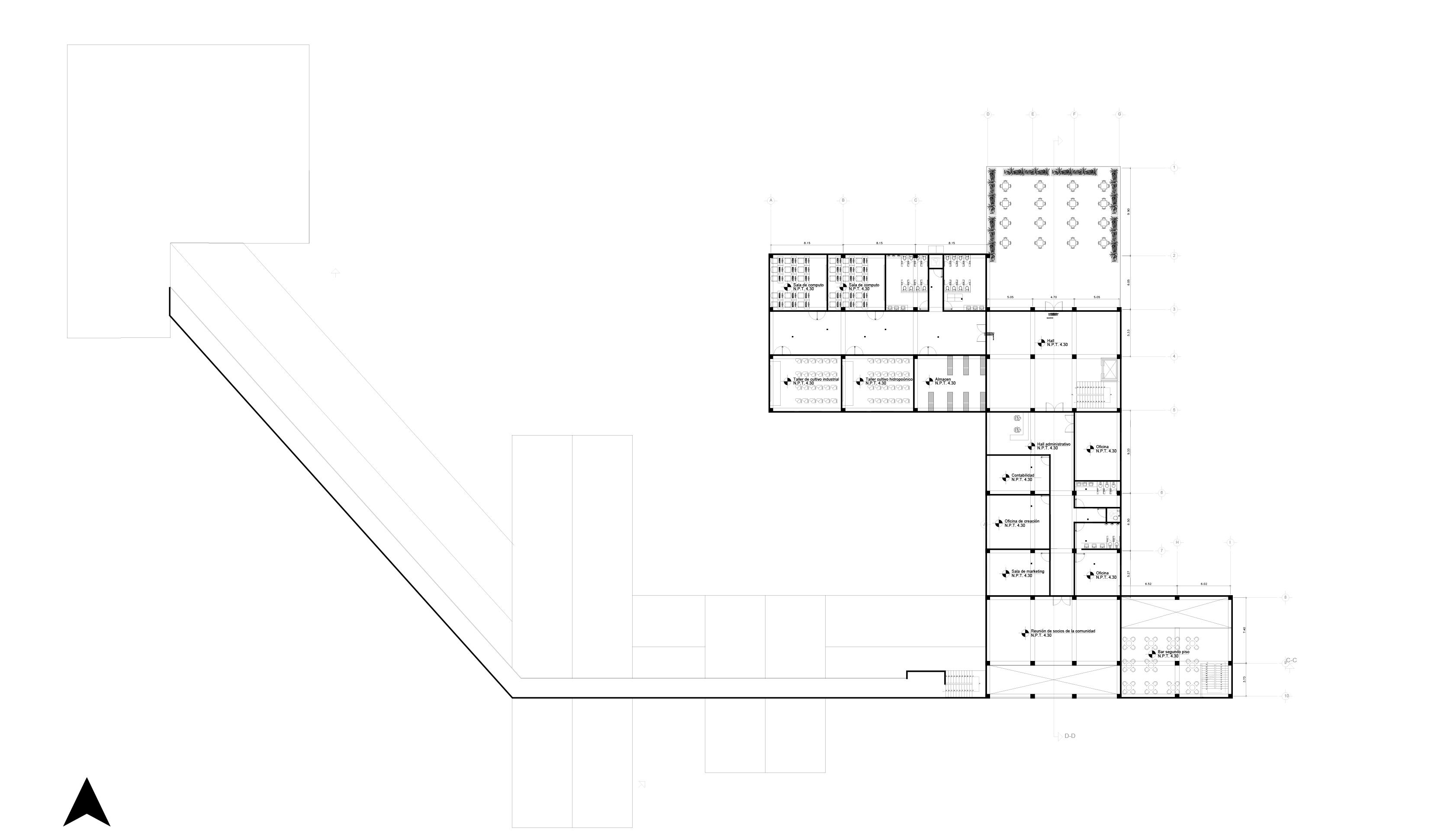
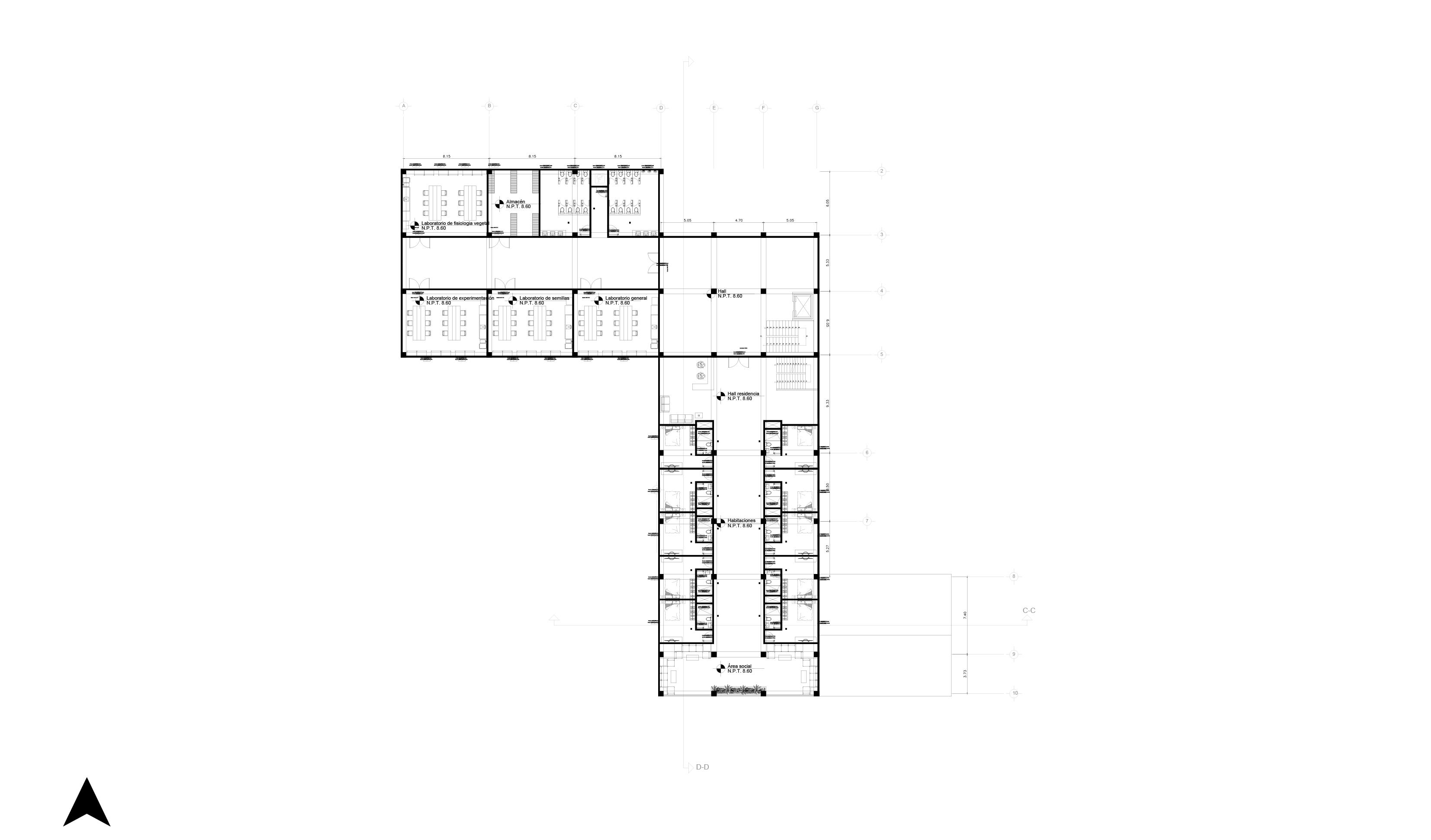
CITE Agroindustrial
Sapallanga - Perú
-12.1357, -75.1697


Diagrama: Emplazamiento
Autoria: Propia
El propósito de este proyecto era crear un Es en este contexto donde la creación del Zaquiv encaja perfectamente, ya que, además de servir como un centro de innovación y convergencia industrial, también funcionará como un centro educativo. Este centro educativo tiene el potencial de formar nuevas mentes innovadoras en el sector agroindustrial, proporcionando conocimientos avanzados y prácticas que impulsarán el desarrollo sostenible y la competitividad del distrito.


Adrian Gutiérez | PortFolio





Gutiérez | PortFolio



Adrian Gutiérez | PortFolio
Centro de Interpretación Cultural
Oxapampa - Perú
-10.6066, -75.4233


Diagramas: ¿Dónde?
Autoria: Propia
Reconocido con el segundo puesto en la línea de proyectos avanzados en la Expociudad + Arq 2024.
Esta especie de anteproyecto se diseñó específicamente para el entorno único de Oxapampa, con el objetivo de crear una conexión profunda con el lugar. El diseño responde a las preguntas clave de qué, cómo, y dónde, asegurando que si se cambia de ubicación, todo el proyecto pierde su sentido. Esta aproximación fomenta un fuerte sentimiento de identidad, dado que el diseño es completamente único y arraigado al contexto local. Dado su enfoque conceptual, no se disponen de planos detallados, enfatizando en su lugar la importancia de la integración y resonancia cultural y geográfica..



Diagramas: Qué y cómo
Autoria: Propia



Adrian Gutiérez | PortFolio
El proyecto adopta su forma única para enmarcar la convergencia exacta entre Chontabamba y Oxapampa, dos distritos rodeados por exuberante vegetación. Busca simbolizar la unión de los humanos en armonía con la naturaleza.

A través de sus líneas y volúmenes, el centro se convierte en un mirador que celebra la fusión de la vida humana con el entorno natural que la sustenta.

Adrian Gutiérez | PortFolio
Renders de proyectos
Ubicaciones variables



Perú
Ayacucho
El cliente solicitaba utilidad y simplicidad debido a un presupuesto limitado. Uno de los desafíos del proyecto fue la ubicación de la escalera, que, según la normativa, debía estar naturalmente iluminada, lo que reducía el espacio de la fachada. Además, el lote destinado a la construcción no era muy grande. Para resolver este problema, se ingenió un “desfase” en la escalera, creando un juego de ventanas muy interesante que no solo cumplía con los requisitos normativos, sino que también añadía un elemento estético distintivo al diseño.

Lima Perú
El cliente requería un semisótano y una oficina en el primer piso, lo que permitió dejar una planta casi libre. Esta configuración, junto a una oficina de cristal, da la impresión de que el piso superior está flotando. El diseño fue aceptado y llevado a revisión por los ingenieros estructuralistas, quienes confirmaron su viabilidad. Esta libertad de diseño nos permitió explorar soluciones arquitectónicas innovadoras que realzan la elegancia y modernidad del edificio.

Perú
Chupaca
El proyecto de Casa Marta no era un proyecto desde cero, sino una ampliación de una casa ya existente. El cliente pidió que la ampliación incluyera una pequeña remodelación que mejorara la fachada original. Aprovechando la presencia de falsos techos a dos aguas y utilizando una pared para cubrir el tanque elevado, logramos crear una remodelación y ampliación que revitalizó la casa de Marta. La nueva fachada y la ampliación añadieron un aire fresco y moderno a la vivienda, y la clienta quedó sumamente satisfecha con el resultado.

